как построить своими руками дом-баню площадью 6х4 с бассейном
В настоящее время многие владельцы загородных домов мечтают о собственной бане. Но при этом не все знают, какой материал лучше выбрать для ее строительства. Сегодня мы поговорим о банных помещениях из пеноблоков.
Особенности
Сегодня специалисты могут предложить множество различных проектов бань из пеноблоков. Данный материал представляет собой пенобетон или легкий и ячеистый бетон. Он бывает разных видов.
Пенобетон
Изготавливают такой материал путем добавления в цементный раствор специального пенообразователя.
Газобетон
Этот материал изготавливают путем смешения цементного раствора с особой алюминиевой пудрой. После этого нужно подождать, пока масса полностью затвердеет. Делать газобетон в домашних условиях не следует. Его производят с помощью специального технического оборудования. Выпускается такая продукция с точной геометрией, поэтому она достаточна удобна для оформления бань.
Силикатобетон
Такой тип строительного материала создают с помощью извести.
Силикатобетон отличается белым цветом. Он обладает высокой гигроскопичностью. Несмотря на это, данный вид основы также нередко используют при строительстве банных помещений.
По мнению многих людей, пенобетон является наиболее надежным материалом для бани. Поэтому многие выбирают именно его при строительстве. И хотя данный материал обладает высокой гигроскопичностью, его можно применять в оформлении подобных построек. Однако при изготовлении его обязательно обрабатывают гидрозащитными веществами.
Пеноблок является искусственным материалом, но обладает такими же характеристиками, как у натуральных основ. При этом он отличается более низкой, доступной каждому ценой. Поэтому в настоящее время большинство людей и выбирают для внешней отделки бань такие изделия.
Плюсы и минусы материала
Пеноблоки могут похвастаться немалым списком положительных качеств.
Отметим основные.
- Высокий уровень теплозащиты . Даже при высоких температурных колебаниях пеноблоки не разрушаются, они остаются в первозданном виде.
- Экологичность. Данный материал изготавливается с использованием безопасных компонентов, он совсем безвреден для здоровья человека.
- Стойкость к гниению и ржавчине. При создании таких изделий их предварительно обрабатывают специальными строительными растворами, которые противодействуют образованию грибка и плесени. Кроме того, подобные составы защищают конструкцию от грызунов и коррозии.
- Небольшая масса. Данное свойство значительно упрощает проведение монтажных работ.
- Легкая укладка. Произвести установку пеноблока сможет практически любой человек.

На некоторых видах такого материала имеется специальный замок, который еще больше упрощает процесс укладки. - Доступная цена. В отличие от натуральных основ пеноблоки могут похвастаться низкой стоимостью. Купить его сможет любой человек.
- Пожаростойкость. Дом-баня из пеноблока является достаточно устойчивым к воздействию огня. Он может противодействовать ему в течение двух часов.
Несмотря на большой список преимуществ, пеноблоки имеют определенные недостатки. Их обязательно нужно подвергать дополнительным обработкам.
Можно использовать при строительстве бань только после пропитки особыми составами, которые противодействуют влаге. В противном случае материал быстро потеряет внешний вид и может разрушиться.
Хотя сами пеноблоки не отличаются высокой стоимостью, их укладка обойдется недешево.
Между собой их можно соединить с помощью специального строительного клея, который стоит дорого. При строительстве банных конструкций из пеноблоков нужно обязательно провести изоляцию. Это необходимо для того, чтобы еще раз защитить материал от вредного воздействия влаги и температурных колебаний. В противном случае блоки могут полностью разрушиться.
Тонкости проектирования

Такой масштаб является маленьким, поэтому при проектировании данных помещений нужно быть аккуратным. Конструкция должна одновременно вмещать в себе парилку, моечную, часто и душевую с раздевалкой. Как правило, в данных случаях большую часть места отделяют для парилки. Нередко в таких банях имеется окно.
Проемов может быть даже два (в моечной и парилке). Они выступают в роли необходимой вентиляции. Часто проекты таких маленьких помещений совмещают с другими жилыми постройками (гаражами, гостевыми домиками), чтобы конструкции выглядели более красивыми и солидными.
Тамбур при строительстве небольшой банной постройки (например, 6х4 м) лучше не использовать, потому что он займет много места.
Если вы решили включить его в проект, придется ставить перегородку и переносить двери.
В данных типах бань стоит устанавливать оконные проемы.
На втором этаже нужно разместить хотя бы один оконный проем в качестве вентиляции.
Второй этаж таких помещений совсем необязательно дополнительно утеплять. Теплый пар с первого яруса будет проникать в помещение, прогревая его. За счет равномерного распределения тепла температура верхней зоны не будет чересчур высокой, она останется оптимальной. Специалисты и дизайнеры не рекомендуют при строительстве двухэтажных банных помещений совмещать их снаружи с другими постройками.
С бассейном
Часто при строительстве бань из пеноблоков в них размещают бассейны. Но следует помнить, что устанавливать их стоит лишь в сооружениях с большой площадью. Иначе конструкция окажется громоздкой и будет приносить значительные неудобства. Если вы строите двухэтажную постройку, такой элемент лучше располагать на втором ярусе.
В комнате с бассейном обязательно должно быть хотя бы одно окно для вентиляции.
Сегодня на рынке строительных материалов любой человек сможет увидеть различные варианты бассейнов для бань.
Они могут быть самой разной формы (круглые, прямоугольные, квадратные, полукруглые). Выбор подходящего варианта зависит от внутренней планировки постройки. При этом нельзя забывать, что оформление таких помещений с бассейном обойдется хозяевам недешево.
С террасой
Нередко можно встретить проекты бань с верандой. Ее можно включать в проекты маленьких сооружений. По мнению некоторых специалистов и дизайнеров, терраса прекрасно сможет вписаться в любой тип оформления вне зависимости от размера. Если вы строите свою баню из пеноблоков, веранду можно сделать из этого материала. Но возможны варианты, в которых террасы делают из другой основы (дерева, металла, пластика, декоративного камня).
Многие отмечают, что особенно эффектно смотрятся конструкции, выполненные из древесины.
Некоторые дизайнеры советуют размещать на террасах небольшие элементы мебели (столики, диваны, стулья).
При этом стоит помнить, что перегружать веранду нельзя. Иначе она будет смотреться нелепой. Если вы обустраиваете двухэтажную баню, тогда размещать такие конструкции следует на верхнем ярусе.
Небольших строений
Сегодня специалисты могут предложить проекты бань из пеноблоков с размерами меньше стандартных. В такие помещения часто включают только моечную и парилку. Другие зоны в подобных конструкциях могут оказаться чересчур малого размера или вообще не смогут там разместиться. Нередко хозяева, чтобы увеличить площадь маленькой бани, строят второй этаж такого же масштаба.
На верхнем ярусе можно расположить душевую, комнату отдыха, небольшой бассейн. Если вы не хотите строить еще один этаж, помните, что такие конструкции лучше не нагружать верандами и другими дополнительными элементами. Даже в маленьких банных помещениях нужно размещать оконные проемы.
Для этих конструкций хватит два небольших окна. В банях малого масштаба этого будет достаточно для вентиляции.
Как построить?
Баню из пеноблоков можно сделать и своими руками, не прибегая к помощи профессионалов. Перед строительством самого строения нужно возвести фундамент. При этом большинство строителей рекомендуют сразу утеплять его. Затем надо установить стены будущей бани. Для этого на фундамент нужно укладывать пеноблоки определенного размера.
Соединять их можно только с помощью специального строительного клея. При укладке данных частей стоит уделять особое внимание швам.
Они должны быть достаточно тонкими. После установки стен нужно сделать черновой потолок из досок.
Необходимо изготовить стропила, которые нужны для монтажа потолочного покрытия.
Как правило, сверху кровлю покрывают другим материалом. Чаще всего им служит профнастил. При строительстве в крыше следует сделать отверстия для вентиляции. Затем обязательно надо покрыть материал с внутренней стороны специальной изолирующей пленкой или гидрозащитным составом. После этого можно прокладывать электропроводку. При этом она не требует особой изоляции в пенобетоне.
Готовые примеры
Сегодня любой человек может встретить множество различных вариантов оформления бань из пеноблоков.
Так как сам пенобетон не является красивым финишным покрытием, его лучше покрывать декоративными элементами. Многие дизайнеры предлагают оформлять внешнюю поверхность камнем.
В строительных магазинах любой покупатель сможет увидеть немаленький выбор различных декоративных камней.
- Многие люди выбирают для своих бань подобные элементы небольшого размера с шероховатой поверхностью. Цветовая гамма такого материала может быть самой разной. Ее выбор зависит от личных предпочтений хозяев. Часто такими элементами отделывают все построение полностью.
- Крышу для бани можно сделать из обычного профнастила. Допустимо и наличие террасы. Ее также можно отделать декоративным камнем. По мнению большинства людей, такой тип оформления является красивым и интересным.

- Нередко можно увидеть и проекты, в которых бани из пенобетона отделаны снаружи сайдингом. При этом цветовая палитра материала разнообразна. Крышу и все проемы выгоднее и практичнее оформлять в темных оттенках.
- Если в проект включена веранда, ее можно сделать из сайдинга в такой же цветовой гамме, как и само помещение. Нередко при таком типе оформления делают небольшую лестницу. Ее можно покрыть декоративным покрытием из древесины.
Допустимо использование небольшого количества камня при строительстве.
О том, как построить баню из пеноблоков своими руками, вы можете узнать далее.
как построить своими руками дом-баню площадью 6х4 с бассейном
В настоящее время многие владельцы загородных домов мечтают о собственной бане. Но при этом не все знают, какой материал лучше выбрать для ее строительства. Сегодня мы поговорим о банных помещениях из пеноблоков.
Особенности
Сегодня специалисты могут предложить множество различных проектов бань из пеноблоков. Данный материал представляет собой пенобетон или легкий и ячеистый бетон.
Он бывает разных видов.
Пенобетон
Изготавливают такой материал путем добавления в цементный раствор специального пенообразователя. Затем получившуюся массу следует распределить по формам и подождать, пока она затвердеет. Пенобетон можно сделать самостоятельно в домашних условиях. Его чаще всего используют при строительстве бань.
Газобетон
Этот материал изготавливают путем смешения цементного раствора с особой алюминиевой пудрой.
После этого нужно подождать, пока масса полностью затвердеет. Делать газобетон в домашних условиях не следует. Его производят с помощью специального технического оборудования. Выпускается такая продукция с точной геометрией, поэтому она достаточна удобна для оформления бань.
Силикатобетон
Такой тип строительного материала создают с помощью извести. Силикатобетон отличается белым цветом. Он обладает высокой гигроскопичностью. Несмотря на это, данный вид основы также нередко используют при строительстве банных помещений.
По мнению многих людей, пенобетон является наиболее надежным материалом для бани.
Поэтому многие выбирают именно его при строительстве. И хотя данный материал обладает высокой гигроскопичностью, его можно применять в оформлении подобных построек. Однако при изготовлении его обязательно обрабатывают гидрозащитными веществами.
Пеноблок является искусственным материалом, но обладает такими же характеристиками, как у натуральных основ. При этом он отличается более низкой, доступной каждому ценой. Поэтому в настоящее время большинство людей и выбирают для внешней отделки бань такие изделия.
Плюсы и минусы материала
Пеноблоки могут похвастаться немалым списком положительных качеств. Отметим основные.
- Высокий уровень теплозащиты.
Даже при высоких температурных колебаниях пеноблоки не разрушаются, они остаются в первозданном виде. - Экологичность. Данный материал изготавливается с использованием безопасных компонентов, он совсем безвреден для здоровья человека.
- Стойкость к гниению и ржавчине. При создании таких изделий их предварительно обрабатывают специальными строительными растворами, которые противодействуют образованию грибка и плесени. Кроме того, подобные составы защищают конструкцию от грызунов и коррозии.
- Небольшая масса. Данное свойство значительно упрощает проведение монтажных работ.
- Легкая укладка. Произвести установку пеноблока сможет практически любой человек. На некоторых видах такого материала имеется специальный замок, который еще больше упрощает процесс укладки.

- Доступная цена. В отличие от натуральных основ пеноблоки могут похвастаться низкой стоимостью. Купить его сможет любой человек.
- Пожаростойкость. Дом-баня из пеноблока является достаточно устойчивым к воздействию огня. Он может противодействовать ему в течение двух часов.
Несмотря на большой список преимуществ, пеноблоки имеют определенные недостатки. Их обязательно нужно подвергать дополнительным обработкам.
Можно использовать при строительстве бань только после пропитки особыми составами, которые противодействуют влаге. В противном случае материал быстро потеряет внешний вид и может разрушиться.
Хотя сами пеноблоки не отличаются высокой стоимостью, их укладка обойдется недешево.
Между собой их можно соединить с помощью специального строительного клея, который стоит дорого. При строительстве банных конструкций из пеноблоков нужно обязательно провести изоляцию. Это необходимо для того, чтобы еще раз защитить материал от вредного воздействия влаги и температурных колебаний. В противном случае блоки могут полностью разрушиться.
Тонкости проектирования
При разработке чертежа будущей бани обязательно надо учитывать ее размер. Только зная точный масштаб конструкции, можно правильно составить проект такого помещения. Кроме того, следует брать во внимание расположенные рядом или под одной крышей дополнительные постройки. В настоящее время можно встретить множество проектов бань размером 3х4, 4х4, 5х4, 4х6 м.
Такой масштаб является маленьким, поэтому при проектировании данных помещений нужно быть аккуратным. Конструкция должна одновременно вмещать в себе парилку, моечную, часто и душевую с раздевалкой. Как правило, в данных случаях большую часть места отделяют для парилки. Нередко в таких банях имеется окно.
Проемов может быть даже два (в моечной и парилке). Они выступают в роли необходимой вентиляции. Часто проекты таких маленьких помещений совмещают с другими жилыми постройками (гаражами, гостевыми домиками), чтобы конструкции выглядели более красивыми и солидными.
Тамбур при строительстве небольшой банной постройки (например, 6х4 м) лучше не использовать, потому что он займет много места.
Если вы решили включить его в проект, придется ставить перегородку и переносить двери.
Многие специалисты в таком случае настоятельно рекомендуют делать подобные зоны снаружи помещения. Сегодня также предложено немалое количество проектов по оформлению более масштабных бань. Их размер составляет 6х6 м, некоторые конструкции могут быть и больше (+ 2-3 кв. м). В помещениях такой площади без труда смогут вместиться все необходимые комнаты (душевая, раздевалка, моечная, тамбур, парилка). Кроме этого в подобных постройках нередко размещают небольшие зоны отдыха для хозяев.
В данных типах бань стоит устанавливать оконные проемы.
Их размер должен соответствовать габаритам самого помещения, так как крупные конструкции требуют хорошей вентиляции. Размещать окна лучше сразу в нескольких комнатах. Нередко такие масштабные бани делают двухэтажными. Причем, второй ярус делают также немаленького размера. Чаще всего его отводят для бассейна или крупной комнаты отдыха.
На втором этаже нужно разместить хотя бы один оконный проем в качестве вентиляции.
Второй этаж таких помещений совсем необязательно дополнительно утеплять. Теплый пар с первого яруса будет проникать в помещение, прогревая его. За счет равномерного распределения тепла температура верхней зоны не будет чересчур высокой, она останется оптимальной. Специалисты и дизайнеры не рекомендуют при строительстве двухэтажных банных помещений совмещать их снаружи с другими постройками.
Ведь они смогут полностью испортить красивый внешний вид бани, сделать конструкцию слишком перегруженной. Поэтому все остальные дополнительные сооружения лучше размещать отдельно.
С бассейном
Часто при строительстве бань из пеноблоков в них размещают бассейны. Но следует помнить, что устанавливать их стоит лишь в сооружениях с большой площадью. Иначе конструкция окажется громоздкой и будет приносить значительные неудобства. Если вы строите двухэтажную постройку, такой элемент лучше располагать на втором ярусе.
В комнате с бассейном обязательно должно быть хотя бы одно окно для вентиляции.
Сегодня на рынке строительных материалов любой человек сможет увидеть различные варианты бассейнов для бань.
Они могут быть самой разной формы (круглые, прямоугольные, квадратные, полукруглые). Выбор подходящего варианта зависит от внутренней планировки постройки. При этом нельзя забывать, что оформление таких помещений с бассейном обойдется хозяевам недешево.
С террасой
Нередко можно встретить проекты бань с верандой. Ее можно включать в проекты маленьких сооружений. По мнению некоторых специалистов и дизайнеров, терраса прекрасно сможет вписаться в любой тип оформления вне зависимости от размера. Если вы строите свою баню из пеноблоков, веранду можно сделать из этого материала. Но возможны варианты, в которых террасы делают из другой основы (дерева, металла, пластика, декоративного камня).
Многие отмечают, что особенно эффектно смотрятся конструкции, выполненные из древесины.
Некоторые дизайнеры советуют размещать на террасах небольшие элементы мебели (столики, диваны, стулья).
При этом стоит помнить, что перегружать веранду нельзя. Иначе она будет смотреться нелепой. Если вы обустраиваете двухэтажную баню, тогда размещать такие конструкции следует на верхнем ярусе.
Небольших строений
Сегодня специалисты могут предложить проекты бань из пеноблоков с размерами меньше стандартных. В такие помещения часто включают только моечную и парилку. Другие зоны в подобных конструкциях могут оказаться чересчур малого размера или вообще не смогут там разместиться. Нередко хозяева, чтобы увеличить площадь маленькой бани, строят второй этаж такого же масштаба.
На верхнем ярусе можно расположить душевую, комнату отдыха, небольшой бассейн. Если вы не хотите строить еще один этаж, помните, что такие конструкции лучше не нагружать верандами и другими дополнительными элементами. Даже в маленьких банных помещениях нужно размещать оконные проемы.
Для этих конструкций хватит два небольших окна. В банях малого масштаба этого будет достаточно для вентиляции.
Как построить?
Баню из пеноблоков можно сделать и своими руками, не прибегая к помощи профессионалов. Перед строительством самого строения нужно возвести фундамент. При этом большинство строителей рекомендуют сразу утеплять его. Затем надо установить стены будущей бани. Для этого на фундамент нужно укладывать пеноблоки определенного размера.
Соединять их можно только с помощью специального строительного клея. При укладке данных частей стоит уделять особое внимание швам.
Они должны быть достаточно тонкими. После установки стен нужно сделать черновой потолок из досок.
Необходимо изготовить стропила, которые нужны для монтажа потолочного покрытия.
Как правило, сверху кровлю покрывают другим материалом. Чаще всего им служит профнастил. При строительстве в крыше следует сделать отверстия для вентиляции. Затем обязательно надо покрыть материал с внутренней стороны специальной изолирующей пленкой или гидрозащитным составом. После этого можно прокладывать электропроводку. При этом она не требует особой изоляции в пенобетоне.
Готовые примеры
Сегодня любой человек может встретить множество различных вариантов оформления бань из пеноблоков.
Так как сам пенобетон не является красивым финишным покрытием, его лучше покрывать декоративными элементами. Многие дизайнеры предлагают оформлять внешнюю поверхность камнем.
В строительных магазинах любой покупатель сможет увидеть немаленький выбор различных декоративных камней.
- Многие люди выбирают для своих бань подобные элементы небольшого размера с шероховатой поверхностью. Цветовая гамма такого материала может быть самой разной. Ее выбор зависит от личных предпочтений хозяев. Часто такими элементами отделывают все построение полностью.
- Крышу для бани можно сделать из обычного профнастила. Допустимо и наличие террасы. Ее также можно отделать декоративным камнем. По мнению большинства людей, такой тип оформления является красивым и интересным.

- Нередко можно увидеть и проекты, в которых бани из пенобетона отделаны снаружи сайдингом. При этом цветовая палитра материала разнообразна. Крышу и все проемы выгоднее и практичнее оформлять в темных оттенках.
- Если в проект включена веранда, ее можно сделать из сайдинга в такой же цветовой гамме, как и само помещение. Нередко при таком типе оформления делают небольшую лестницу. Ее можно покрыть декоративным покрытием из древесины.
Допустимо использование небольшого количества камня при строительстве.
О том, как построить баню из пеноблоков своими руками, вы можете узнать далее.
как построить своими руками дом-баню площадью 6х4 с бассейном
В настоящее время многие владельцы загородных домов мечтают о собственной бане. Но при этом не все знают, какой материал лучше выбрать для ее строительства. Сегодня мы поговорим о банных помещениях из пеноблоков.
Особенности
Сегодня специалисты могут предложить множество различных проектов бань из пеноблоков. Данный материал представляет собой пенобетон или легкий и ячеистый бетон. Он бывает разных видов.
Пенобетон
Изготавливают такой материал путем добавления в цементный раствор специального пенообразователя. Затем получившуюся массу следует распределить по формам и подождать, пока она затвердеет. Пенобетон можно сделать самостоятельно в домашних условиях. Его чаще всего используют при строительстве бань.
Газобетон
Этот материал изготавливают путем смешения цементного раствора с особой алюминиевой пудрой.
После этого нужно подождать, пока масса полностью затвердеет. Делать газобетон в домашних условиях не следует. Его производят с помощью специального технического оборудования. Выпускается такая продукция с точной геометрией, поэтому она достаточна удобна для оформления бань.
Силикатобетон
Такой тип строительного материала создают с помощью извести. Силикатобетон отличается белым цветом. Он обладает высокой гигроскопичностью. Несмотря на это, данный вид основы также нередко используют при строительстве банных помещений.
По мнению многих людей, пенобетон является наиболее надежным материалом для бани.
Поэтому многие выбирают именно его при строительстве. И хотя данный материал обладает высокой гигроскопичностью, его можно применять в оформлении подобных построек. Однако при изготовлении его обязательно обрабатывают гидрозащитными веществами.
Пеноблок является искусственным материалом, но обладает такими же характеристиками, как у натуральных основ. При этом он отличается более низкой, доступной каждому ценой. Поэтому в настоящее время большинство людей и выбирают для внешней отделки бань такие изделия.
Плюсы и минусы материала
Пеноблоки могут похвастаться немалым списком положительных качеств. Отметим основные.
- Высокий уровень теплозащиты.
Даже при высоких температурных колебаниях пеноблоки не разрушаются, они остаются в первозданном виде. - Экологичность. Данный материал изготавливается с использованием безопасных компонентов, он совсем безвреден для здоровья человека.
- Стойкость к гниению и ржавчине. При создании таких изделий их предварительно обрабатывают специальными строительными растворами, которые противодействуют образованию грибка и плесени. Кроме того, подобные составы защищают конструкцию от грызунов и коррозии.
- Небольшая масса. Данное свойство значительно упрощает проведение монтажных работ.
- Легкая укладка. Произвести установку пеноблока сможет практически любой человек. На некоторых видах такого материала имеется специальный замок, который еще больше упрощает процесс укладки.

- Доступная цена. В отличие от натуральных основ пеноблоки могут похвастаться низкой стоимостью. Купить его сможет любой человек.
- Пожаростойкость. Дом-баня из пеноблока является достаточно устойчивым к воздействию огня. Он может противодействовать ему в течение двух часов.
Несмотря на большой список преимуществ, пеноблоки имеют определенные недостатки. Их обязательно нужно подвергать дополнительным обработкам.
Можно использовать при строительстве бань только после пропитки особыми составами, которые противодействуют влаге. В противном случае материал быстро потеряет внешний вид и может разрушиться.
Хотя сами пеноблоки не отличаются высокой стоимостью, их укладка обойдется недешево.
Между собой их можно соединить с помощью специального строительного клея, который стоит дорого. При строительстве банных конструкций из пеноблоков нужно обязательно провести изоляцию. Это необходимо для того, чтобы еще раз защитить материал от вредного воздействия влаги и температурных колебаний. В противном случае блоки могут полностью разрушиться.
Тонкости проектирования
При разработке чертежа будущей бани обязательно надо учитывать ее размер. Только зная точный масштаб конструкции, можно правильно составить проект такого помещения. Кроме того, следует брать во внимание расположенные рядом или под одной крышей дополнительные постройки. В настоящее время можно встретить множество проектов бань размером 3х4, 4х4, 5х4, 4х6 м.
Такой масштаб является маленьким, поэтому при проектировании данных помещений нужно быть аккуратным. Конструкция должна одновременно вмещать в себе парилку, моечную, часто и душевую с раздевалкой. Как правило, в данных случаях большую часть места отделяют для парилки. Нередко в таких банях имеется окно.
Проемов может быть даже два (в моечной и парилке). Они выступают в роли необходимой вентиляции. Часто проекты таких маленьких помещений совмещают с другими жилыми постройками (гаражами, гостевыми домиками), чтобы конструкции выглядели более красивыми и солидными.
Тамбур при строительстве небольшой банной постройки (например, 6х4 м) лучше не использовать, потому что он займет много места.
Если вы решили включить его в проект, придется ставить перегородку и переносить двери.
Многие специалисты в таком случае настоятельно рекомендуют делать подобные зоны снаружи помещения. Сегодня также предложено немалое количество проектов по оформлению более масштабных бань. Их размер составляет 6х6 м, некоторые конструкции могут быть и больше (+ 2-3 кв. м). В помещениях такой площади без труда смогут вместиться все необходимые комнаты (душевая, раздевалка, моечная, тамбур, парилка). Кроме этого в подобных постройках нередко размещают небольшие зоны отдыха для хозяев.
В данных типах бань стоит устанавливать оконные проемы.
Их размер должен соответствовать габаритам самого помещения, так как крупные конструкции требуют хорошей вентиляции. Размещать окна лучше сразу в нескольких комнатах. Нередко такие масштабные бани делают двухэтажными. Причем, второй ярус делают также немаленького размера. Чаще всего его отводят для бассейна или крупной комнаты отдыха.
На втором этаже нужно разместить хотя бы один оконный проем в качестве вентиляции.
Второй этаж таких помещений совсем необязательно дополнительно утеплять. Теплый пар с первого яруса будет проникать в помещение, прогревая его. За счет равномерного распределения тепла температура верхней зоны не будет чересчур высокой, она останется оптимальной. Специалисты и дизайнеры не рекомендуют при строительстве двухэтажных банных помещений совмещать их снаружи с другими постройками.
Ведь они смогут полностью испортить красивый внешний вид бани, сделать конструкцию слишком перегруженной. Поэтому все остальные дополнительные сооружения лучше размещать отдельно.
С бассейном
Часто при строительстве бань из пеноблоков в них размещают бассейны. Но следует помнить, что устанавливать их стоит лишь в сооружениях с большой площадью. Иначе конструкция окажется громоздкой и будет приносить значительные неудобства. Если вы строите двухэтажную постройку, такой элемент лучше располагать на втором ярусе.
В комнате с бассейном обязательно должно быть хотя бы одно окно для вентиляции.
Сегодня на рынке строительных материалов любой человек сможет увидеть различные варианты бассейнов для бань.
Они могут быть самой разной формы (круглые, прямоугольные, квадратные, полукруглые). Выбор подходящего варианта зависит от внутренней планировки постройки. При этом нельзя забывать, что оформление таких помещений с бассейном обойдется хозяевам недешево.
С террасой
Нередко можно встретить проекты бань с верандой. Ее можно включать в проекты маленьких сооружений. По мнению некоторых специалистов и дизайнеров, терраса прекрасно сможет вписаться в любой тип оформления вне зависимости от размера. Если вы строите свою баню из пеноблоков, веранду можно сделать из этого материала. Но возможны варианты, в которых террасы делают из другой основы (дерева, металла, пластика, декоративного камня).
Многие отмечают, что особенно эффектно смотрятся конструкции, выполненные из древесины.
Некоторые дизайнеры советуют размещать на террасах небольшие элементы мебели (столики, диваны, стулья).
При этом стоит помнить, что перегружать веранду нельзя. Иначе она будет смотреться нелепой. Если вы обустраиваете двухэтажную баню, тогда размещать такие конструкции следует на верхнем ярусе.
Небольших строений
Сегодня специалисты могут предложить проекты бань из пеноблоков с размерами меньше стандартных. В такие помещения часто включают только моечную и парилку. Другие зоны в подобных конструкциях могут оказаться чересчур малого размера или вообще не смогут там разместиться. Нередко хозяева, чтобы увеличить площадь маленькой бани, строят второй этаж такого же масштаба.
На верхнем ярусе можно расположить душевую, комнату отдыха, небольшой бассейн. Если вы не хотите строить еще один этаж, помните, что такие конструкции лучше не нагружать верандами и другими дополнительными элементами. Даже в маленьких банных помещениях нужно размещать оконные проемы.
Для этих конструкций хватит два небольших окна. В банях малого масштаба этого будет достаточно для вентиляции.
Как построить?
Баню из пеноблоков можно сделать и своими руками, не прибегая к помощи профессионалов. Перед строительством самого строения нужно возвести фундамент. При этом большинство строителей рекомендуют сразу утеплять его. Затем надо установить стены будущей бани. Для этого на фундамент нужно укладывать пеноблоки определенного размера.
Соединять их можно только с помощью специального строительного клея. При укладке данных частей стоит уделять особое внимание швам.
Они должны быть достаточно тонкими. После установки стен нужно сделать черновой потолок из досок.
Необходимо изготовить стропила, которые нужны для монтажа потолочного покрытия.
Как правило, сверху кровлю покрывают другим материалом. Чаще всего им служит профнастил. При строительстве в крыше следует сделать отверстия для вентиляции. Затем обязательно надо покрыть материал с внутренней стороны специальной изолирующей пленкой или гидрозащитным составом. После этого можно прокладывать электропроводку. При этом она не требует особой изоляции в пенобетоне.
Готовые примеры
Сегодня любой человек может встретить множество различных вариантов оформления бань из пеноблоков.
Так как сам пенобетон не является красивым финишным покрытием, его лучше покрывать декоративными элементами. Многие дизайнеры предлагают оформлять внешнюю поверхность камнем.
В строительных магазинах любой покупатель сможет увидеть немаленький выбор различных декоративных камней.
- Многие люди выбирают для своих бань подобные элементы небольшого размера с шероховатой поверхностью. Цветовая гамма такого материала может быть самой разной. Ее выбор зависит от личных предпочтений хозяев. Часто такими элементами отделывают все построение полностью.
- Крышу для бани можно сделать из обычного профнастила. Допустимо и наличие террасы. Ее также можно отделать декоративным камнем. По мнению большинства людей, такой тип оформления является красивым и интересным.
- Нередко можно увидеть и проекты, в которых бани из пенобетона отделаны снаружи сайдингом. При этом цветовая палитра материала разнообразна. Крышу и все проемы выгоднее и практичнее оформлять в темных оттенках.
- Если в проект включена веранда, ее можно сделать из сайдинга в такой же цветовой гамме, как и само помещение. Нередко при таком типе оформления делают небольшую лестницу. Ее можно покрыть декоративным покрытием из древесины.
Допустимо использование небольшого количества камня при строительстве.
О том, как построить баню из пеноблоков своими руками, вы можете узнать далее.
проекты для строительства с фото и ценами — Лесстрой
Несомненно, что каждому, у кого есть собственный участок в Москве или Подмосковье, хочется иметь на нем настоящую баню, неважно, дачный у Вас домик или большой особняк. Строительство бань — процесс, который требует большой степени профессионализма от его исполнителей. Срубы бань нужно изготовить и смонтировать правильно, иначе баня не будет давать ожидаемого эффекта. Лучше всего заказать строительство бани под ключ у надежной строительной организации. Предварительно ознакомиться с типами бани и подрядчиками помогут проекты бань с бассейном, размещенные на портале «Лесстрой».![]()
В нашем мире мало что бывает сегодня бесплатно. Тем не менее, на сайте «Лесстроя» Вы всегда найдете бесплатные проекты разнообразных бань: турецких, русских и всевозможных других. Как говорили турки, баня — это не только омовение тела, но и очищение души. Поэтому не стоит себе отказывать в удовольствии и пользе настоящей бани, если у Вас есть участок, на котором можно ее построить. А для того, чтобы водные процедуры приносили Вам впоследствии наибольшее удовольствие и пользу, нужно как следует продумать, какую баню выбрать и кому доверить ее строительство.
Русские бани традиционно у нас всегда были популярнее турецких, но сегодня заказчики могут свободно выбирать из множества проектов бань на любой вкус. Для тех, кому ближе бани русские, нужны совершенно другие проекты, чем, скажем, для саун. Здесь иная система вентиляции, другие печи, отличается покрытие пола. Самое главное — это выбор дерева, из которого будет изготовлена баня, а также — выбор проекта. Готовые проекты бань любого типа от различных подрядчиков представлены на нашем сайте.
Здесь есть бани, разные «по национальности», а также по своей конструкции, к примеру, бани с мансардой, с бассейном различной площади.
Мы собрали предложения бань от лучших подрядчиков. Проектами их можно назвать только условно, скорее, это готовые бани, которые могут быть доставлены на Ваш участок и оперативно собраны на нем. Следует отметить, что цены на подобное строительство являются вполне доступными. Бани, которые Вы найдете на страницах «Лесстроя» — это дешевые срубы, что не мешает им соответствовать высоким стандартам качества. Просто они имеют оптимальное соотношение стоимости и полученного результата. Вот почему, если Вы нуждаетесь в приобретении бани, купить ее мы Вам советуем именно посредством нашего ресурса.
11 рекомендаций по воплощению готовых проектов бань из пеноблоков [+ФОТО]
В современном строительстве жилых зданий и хозяйственных построек часто используются пеноблоки. Цена этого материала невысока, он прекрасно ведет себя в совершенно разных регионах страны.

Типичный проект
Постройка с помощью этого сырья проходит гораздо более быстрыми темпами, нежели возведение традиционных кирпичных конструкций. При этом сооружения получаются легкими, прочными и надежными.
Перед тем, как начать строить, следует грамотно и правильно осуществить планирование. Целесообразно составить план работ, с фиксацией всех размеров и параметров.
Учитывая выбранный проект бани из пеноблоков с комнатой отдыха, как пример, можно точно просчитать, сколько пеноблоков понадобится для монтажа конструкции. Из пеноблоков может возводиться и фундамент бани.
На фото вид типового проекта сбоку
Пеноблок, в качестве строительного материала, стал применяться сравнительно недавно, но уже завоевал большую популярность. Он располагает немалыми позитивными качествами.
Такие блоки:
- легки;
- теплы;
- по прочности они не уступают камню;
- легко разрезаются, подобно дереву;
- на них прекрасно монтируются элементы декоративного сайдинга.

Проект с верандой
Проекты бань из пеноблоков с верандой или мансардой, например,помогут в возведении зданий, которые будут служить верой и правдой пару десятков лет без капитальных ремонтных работ.
Подготовка к строительным работам
Схема.Баня из пеноблоков своими руками подразумевает поэтапное строительство. Сначала нужно определиться с типом бани. Распространенных видов три:
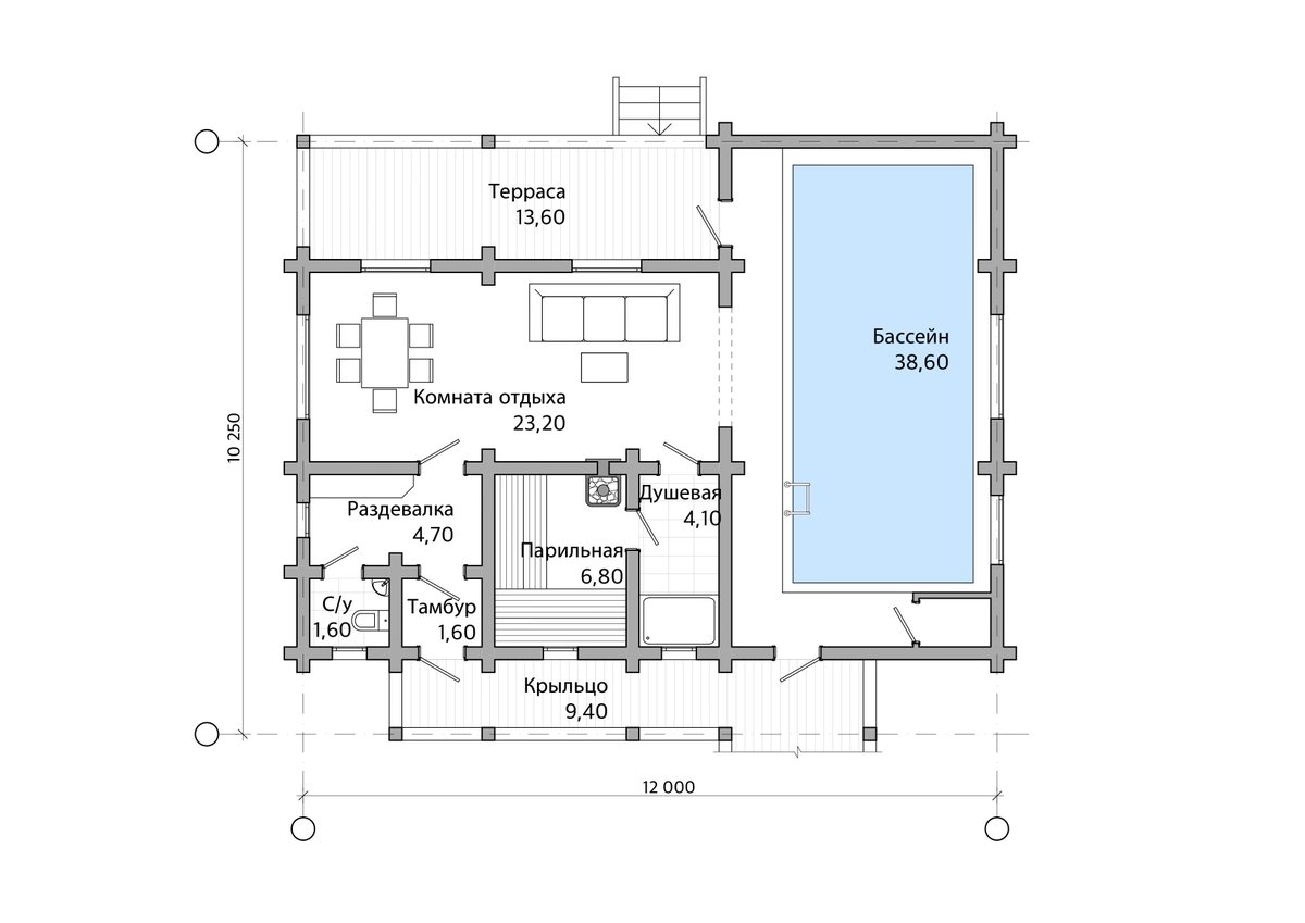
- Помывочная баня. Сооружается в утилитарных целях для мытья. Состоит из двух отделений: небольшой предбанник для одежды с топкой печи, парная и душевая совмещаются. Размеры небольшие – 2 х 3 м в среднем. При большом желании – можно попариться. Распространённый повсеместно вид бани на территории страны.
- Баня с парилкой. Строится ценителями попариться с веником. Размеры начинаются от 16 квадратных метров (4 х 4 м). Полноценная баня с несколькими помещениями: предбанник, душевая и парилка.
- Банный комплекс в один или два этажа. Здание с собственным отоплением. Круглогодичные коммуникации – горячая и холодная вода.
Кроме парной и душевой строится комната отдыха, санузел, бассейн и сауна с сухим и горячим воздухом. Устраивается отдельный тамбур с топкой печи и веранда.
Любой вид бани легко возводится из пеноблоков. Проект зависит от бюджета и наличия места под постройку. Оптимальный вариант размещения бани – пристройка к основному жилью. В этом случае подводится отопление, горячая и холодная вода.
Образцовая баня – с отдельной парилкой. Тогда не придется мыться в обжигающем воздухе. А предбанник с местом для отдыха улучшит эмоциональный настрой. Для печи строится отдельный тамбур, где хранятся дрова и веники. Комнаты всегда останутся чистыми – щепки и дым никому не помешают. Построенные летняя веранда и мангал заменят отдельную беседку.
Парилка.
Далее планируем поэтапно предстоящую работу:
- определяем место постройки;
- готовим подробный проект сооружения;
- производим подсчёт необходимого количества стройматериалов;
- тщательно выбираем пеноблоки и цемент;
- подготавливаем инструмент и оборудование;
- заливаем фундамент;
- монтируем слив;
- делаем гидроизоляцию цоколя и внутренних помещений;
- строим стены;
- возводим крышу;
- завершаем внутреннюю и внешнюю отделку.

После того, как сделали чертежи, посчитали блоки и нашли подходящее место – приступаем к работе. На заливку фундамента уйдёт 2-3 недели с учётом полного застывания цемента. Строительство займёт столько же времени. Всего понадобится полтора месяца на возведение здания своими руками.
Газоблок при строительстве бани
Проекты бани из газобетона обязательно учитывают определенные особенности материала. Ведь традиционная баня строится из натуральной древесины, которая не отличается длительным сроком эксплуатации, может гнить и покрываться грибком, требует тщательного ухода, легко воспламеняется. Всех этих недостатков газобетон лишен, но и у него есть определенные особенности.
Газобетон обладает пористой структурой, большими размерами, идеальной формой, малым весом. Благодаря порам внутри бетона удается обеспечить высокие тепло/звукоизолирующие свойства, но они же могут стать причиной разрушения здания. Газобетон гигроскопичен, поры впитывают воду, под воздействием которой разрушаются.
Поэтому баня из газоблока требует правильной отделки внутри и снаружи.
С другой же стороны, именно благодаря порам внутри здания сохраняется тепло – газобетон демонстрирует великолепные показатели теплосбережения, позволяющие экономить на отоплении зимой и создающие оптимальный микроклимат летом.
Преимущества
Проект бани из газобетона может включать самые разные помещения и элементы, предполагать строительство маленького здания 5 на 4 или огромного строения на два этажа. Независимо от особенностей проекта и масштабов бани до начала работ важно изучить все достоинства и недостатки материала.
Ключевые плюсы газобетона:
- Отсутствие усадки и, как следствие, риска распространения трещин, деформаций.
- Скорость строительства – за счет блоков большой величины и малого веса кладка идет быстро.
- Понижение стоимости монтажа за счет отсутствия необходимости арендовать спецтехнику и возможности выполнить все работы своими руками.
- Разумная стоимость – итоговая смета обычно предполагает сумму, в 2-3 раза меньшую в сравнении с деревянной баней.

- Полная безопасность для здоровья и экологичность газоблока – материал производят из натурального сырья, он не выделяет токсинов и других вредных веществ.
- Фундамент может быть облегченным ввиду малого веса газобетона и, как следствие, понижения общей массы здания.
- Низкий уровень горючести – очень важный параметр при выборе материала для строительства бани, где отмечен повышенный риск возгорания.
- Неподверженность гниению, распространению опасных микроорганизмов.
- Простой уход – при условии выполнения правильной отделки газоблоки не нужно ничем обрабатывать, покрывать и т.д.
- Паропропускная способность у газобетона отличная, благодаря чему внутри не будет скапливаться конденсат и в бане всегда будет оптимальный микроклимат.
- Высокие тепло/звукоизоляционные свойства, что очень важно для бани.
- Долговечность – правильно построенное здание из газоблока способно прослужить до 100 лет.
- Материал прекрасно поддается обработке, поэтому проект можно реализовать самый необычный и оригинальный (в плане архитектуры).

Недостатки
Есть у газобетонных блоков и определенные минусы. Их не так много и влияние на эксплуатацию большинства из них можно минимизировать отделкой, технологическими решениями, но не учитывать эти особенности нельзя.
Некоторые минусы газобетонных блоков:
- Гигроскопичность – способность впитывать влагу высокая, поэтому важно верно выбрать материалы для внутренней/наружной отделки, обеспечить качественную гидроизоляцию.
- Необходимость в пароизоляции – чтобы избежать накопления конденсата внутри стен.
- Не очень высокая прочность – чтобы здание было надежным, важно сделать армопояс и упрочнить арматурой кладку стен.
- Наличие в составе извести и алюминиевой пудры – при соблюдении технологического процесса производства эти компоненты не представляют опасности, но если производство кустарное, блоки могут быть не очень экологичными.
- Отсутствие особого древесного аромата и «духа» в бане – газоблок никогда не сможет создать эту особую атмосферу, как натуральный брус.

Оборудование и инструмент
Для строительства бани своими руками из пеноблоков необходимо наличие оборудования и инструментов.
Штыковая лопата.
Резиновый молоток.
Ножовка.
Мастерок.
Инструменты:
- лопаты – штыковая, совковая и растворная;
- молоток-кирка;
- резиновый молоток или киянка;
- отвес;
- строительный уровень;
- правило;
- расшивка;
- кельма или мастерок;
- шнур причалка;
- шпатели;
- зубчатый шпатель;
- ножовка;
- рулетка;
- молоток.
Перфоратор.
Бетономешалка.
Оборудование:
- бетономешалка;
- ёмкость для разведения клея, цемента и воды;
- дрель с венчиком-насадкой;
- перфоратор;
- шуруповерт;
- штроборез;
- глубинный вибратор для удаления воздуха из раствора;
- степлер;
- лестница.
Проект нарисован, стройматериалы и инструмент подготовлены, переходим к постройке бани.
Поэтапное строительство: стены и крыша
Первый ряд скрепляют при помощи цементного раствора, его необходимо выложить ровно, поэтому стоит использовать резиновый смягчённый молоток (поскольку железным можно разрушить хрупкие блоки) и строительный уровень, для измерения отклонений.
Может быть интересно Рулонный газон: что это, виды, как выбрать, укладывать и ухаживатьВеранды и террасы на даче своими руками: виды, дизайн, обустройство с фотоСобираем своими руками садовый измельчитель
Пеноблоки укладываются не так, как обычные кирпичи, а на рёбра. Второй ряд фиксируют при помощи тонкого слоя специализированного строительного клея. Через каждые три-четыре ряда нужно класть жёсткую армирующую сетку, которая будет способствовать прочности стен.
Для парной подойдёт стандартная крыша с двумя скатами и центральным коньком. Прежде чем определиться с длиной ног стропил нужно обратить особенное внимание на:
- ширину постройки;
- под каким углом должны находиться скаты;
- особенности климата.
Для связи стропил между собой используют скобы. Брусья устанавливают на расстоянии около 1 м.
Материал для стропил должен быть высококачественным, без каких-либо дефектов. После установки стропил необходимо создать обрешётку. Ее изготавливают из гладких досок. Обрешётка бывает:
- сплошной;
- разряженной.
Итоговый вариант выбирают с учётом особенностей покрытия крыши, для:
- рубероида – двойная;
- шифера – одинарная;
- черепицы – из брусьев.
Крышу, как и всё остальное, изолируют и защищают от влаги, пара, утепляют. Финальным этапом идёт укладка кровельного покрытия. Его выбирают исходя из личных вкусов и доступного бюджета.
Устройство основания под здание
Выбранный участок под строительство тщательно очищается от мусора и всех органических составляющих: травы, листвы, веток, корней. Площадка выравнивается. После заливки фундамента удаляется плодородная почва внутри будущих помещений.
Выбор и заливка фундамента
Выбор типа фундамента для возведения бани – ключевое условие прочности будущей постройки.
Дефект основания разрушит здание за несколько лет. Цоколь не должен трескаться, перекашиваться и крошиться. Близкое залегание грунтовых вод, сильный наклон площадки или рыхлый грунт потребуют создания ростверкового или монолитного фундамента. При наличии обычного плотного грунта можно обойтись ленточным фундаментом, не сильно заглублённым. Глубокое заглубление потребуется при более рыхлом грунте. Фундамент обязательно заглубляется ниже точки промерзания почвы при наличии песчаных и глинистых почв. Зимой территории вокруг зданий не чистят от снега – снежный покров уменьшает глубину промерзания.
Готовые фундаментные пеноблоки укладываются с помощью крана или другой специальной техники, тогда скорость строительства возрастёт на порядок. Такая укладка возможна при наличии подъездных путей к площадке.
Ширина фундамента бани выбирается с учётом ширины строительного блока – он должен быть немного шире. В нашем случае – 300 мм. Заглубляться следует как минимум до 80 см, с учётом укладки песчано-гравийной подушки.
Траншея копается шириной 50 см для установки опалубки и распорок. Фундамент поднимается на 15-20 см выше уровня площадки. Полученная высота – 80 см бетона – достаточна для лёгкого здания из пенобетона.
Возведение цоколя разбивается на этапы:
- Для траншеи делаем разметку с помощью обноски. В доску, шириной 60 см, вбиваются гвозди на расстоянии 50 см. Доска крепится к столбику, который вбивается в грунт дальше предполагаемого фундамента. Таких обносок изготавливаем как минимум 8. Между ними на гвозди натягивается шнур. Получается чётко размеченный контур фундамента. Вместо доски используются простые штыри из металла. При необходимости шнур снимается.
- Роем траншею. Крупные глыбы удаляем целиком. Камни пригодятся на устройство печи.
- На дно траншеи засыпаем песок или песчано-гравийную смесь толщиной 20 – 30 см. Подойдёт мокрый песок. Смесь плотно утрамбовывается и поливается водой.
- Изготавливаем опалубку из досок или фанеры. Толщину и прочность регулируем с помощью распорок.

- Вяжем каркас для армирования бетона из арматуры толщиной от 12 мм. Ячея каркаса – не менее 15 см.
- Заливаем траншею готовым бетоном (марка М200, М250). Бетон изготавливается из песчано-гравийной смеси и цемента в соотношении: песок 3 части, гравий 5 частей, цемент 1 часть. Процесс заливки – непрерывный. Допускаются перерывы до 3 часов.
- Из бетона удаляется воздух при помощи вибратора или обычного штыря.
- Готовый фундамент укрывается плёнкой от попадания солнечных лучей и атмосферных осадков. Каждые 2 – 3 часа бетон увлажняется. Опалубку снимаем на 3 день.
Вентиляционные отверстия не делаются. При сильном заглублении фундамента необходимо обустроить отверстие под канализационную трубу.
Важно! В процессе работы периодически нужно проверять с помощью строительного уровня, насколько ровный фундамент.
Устройство канализации и гидроизоляция основания
Работы возобновляются после снятия опалубки. Снимаем плодородный слой почвы и монтируем канализационный трап с приёмником стоков – пластиковую или металлическую трубу.
Труба должна иметь уклон для естественного слива воды. Основание бани засыпаем 10-сантиметровым слоем песка, сверху – слоем гравия или керамзита толщиной 15 см. Грунт тщательно уплотняем. Затем укладываем решётку из металла для армирования. Делаем стяжку: подготовленную поверхность заливаем бетоном толщиной 15 см.
Снаружи фундамента делается такая же гидроизоляционная подушка шириной не менее полуметра и кладётся цементная отмостка. Под печь изготавливаем монолитное основание.
Фундамент для бани
Фундамент пеноблочной бани
Во время стройки бани из бетоносодержащего пеноматериала следует грамотно заложить фундамент. С этой целью вырывается котлован глубиной 60 см и шириной 30 см. Вслед за тем, используя лазерный уровень, надо вбить четыре штыря по краям выкопанной ямы, протянуть веревку и вколотить еще и добавочные, промежуточные стержни, по всей длине основания через каждые 1,9 метра. Это нужно, чтобы позднее не было сложностей во время выверки фундамента на ровность по двухметровому правилу.
Вариант схемы фундамента для бани
По окончании вышеописанного из арматуры (с толщиной железа не меньше 12 мм) выполняется каркас. Из досок, примерная ширина которых должна равняться 20–30 мм, сколачивается опалубка. Затем фундамент равномерно заливается бетоном, желательно марки 200. Полученной высоты основания 70–75 см вполне хватает, если сооружается малогабаритная пенобетонная баня. Кроме того, в толще фундамента следует устроить канализацию с десятисантиметровым водосливным приёмником (трапом). Сверху всего кладется стальная сетка. Через пару дней можно возобновлять деятельность на полностью застывшем цементе.
Возведение стен – технология кладки
Фундамент будет готов через три недели, после этого продолжаем работы. Устраиваем отсечку – гидроизоляцию стен от основания. Для этого используем два слоя рубероида или бикроста по ширине фундамента. Уровнем проверяем фундамент на уклон. При необходимости – выравниваем. Только после этого переходим к возведению стен из пенобетонных блоков.
Кладка стен – самый быстрый и лёгкий процесс строительства. Первый слой пеноблоков, от угла, обязательно укладывается на цемент, остальные блоки скрепляются специальным клеем. Слой клея допускается не толще 0,5 см. Такой слой прочно склеивает блоки, не допускает образования «мостиков холода». Клей замешивается в ёмкости дрелью с насадкой из готовой смеси.
Блоки выравниваются при помощи уровня и отвеса. Коррекция неровностей осуществляется резиновым молотком. Неровные блоки шлифуются тёркой или спиливаются ножовкой. Пенобетон разрезается пилой на части в любой пропорции.
Кладка каждого последующего слоя выполняется со сдвигом блоков на половину от нижележащего. В слоях кладки с помощью штробореза делаются пазы, в которые укладывается арматура. Армируется каждый третий слой, при возможности – чаще. Применяется вертикальное армирование – в просверлённое отверстие из двух блоков заливается бетон и вдавливается арматура.
Проёмы под дверь и окна необходимо оставить в ходе постройки.
Блоки над проёмами кладутся на доску или лист металла.
Бани из пеноблоков обладают главным качеством, требуемым от бани, высокой теплоизоляцией. Пенобетон – это современный материал, который успешно заменяет традиционные технологии (Разница между пенобетоном и газобетоном. Что лучше для строительства бани?!). Постройка бани из пеноблоков также обеспечивает высокую пожарную устойчивость строения. Благодаря легкому весу и стандартным размерам материала, строительство небольшой бани под ключ может занять 2-3 месяца.
Наша компания осуществляет строительство бань из пеноблока в Москве и Московской области по типовым и индивидуальным проектам. Мы предлагаем адекватные цены и отличное качество на строительство кирпичных, пеноблочных, каркасных, деревянных бань «под ключ». Мы работаем в следующих городах Подмосковья — Наро-Фоминск, Троицк, Подольск, Внуково, Одинцово, Красногорск.
Содержание
1. Преимущества и недостатки бани из пеноблоков 2.
Проектирование бани из пеноблоков 3. Технология строительства бани из пеноблоков — Строительство фундамента для пеноблочной бани — Возведение стен из пеноблоков — Как делается пароизоляция стен? — Особенности строительства крыши 4. Наружная и внутренняя отделка бани из пеноблоков
Преимущества и недостатки бани из пеноблоков
Баня из пеноблоков по уровню экологичности уступает только деревянным строениям и намного превосходит кирпичные и бетонные сооружения. В отличие от кирпича или обычного бетона баня из пеноблоков позволяет легко осуществлять внутреннюю отделку, так как в этот материал легко входят гвозди и другие способы крепления. Они обеспечивают высокий уровень тепла, пропускают воздух, обеспечивая естественную вентиляцию, и легко режутся, сверлятся почти теми же инструментами, что и дерево. Если учитывать отзывы, баня из пеноблоков – одно из лучших решений в плане строительства.
Изготавливаются пеноблоки из экологически чистого ячеистого бетона – легкого, огнеупорного и долговечного.
Производят его из обычного кварцевого песка, с добавлением воды, портландцемента и особой пены, которая при отвердении и образует небольшие воздушные полости. Благодаря чему с любовью построенные бани своими руками из пеноблоков всегда получаются легкими, прочными, очень теплыми и недорогими. Единственное, о чем нужно позаботиться, перед тем, начать строительство бани из пеноблоков, — это хорошая пароизоляция и защита от воды, ведь пенобетон обладает недостаточной влагостойкостью из-за пористости.
Особенности строительства бани из пеноблоков в том, что здание обязательно нуждается в наружной отделке, так как пенобетон не относится к декоративным материалам. Благодаря тому, что пенобетон – пористый материал, закрепление отделочных материалов не представляет никакой сложности. Существуют варианты, когда строится баня своими руками из других материалов, а пенобетон используется для изготовления внутренних перегородок, как надежный звукоизолятор.
Проектирование бани из пеноблоков
Cтроительство бань из пеноблоков под ключ несколько экономичнее, чем из кирпича, но по своим техническим характеристикам они нисколько им не уступают.
К тому же бани из пеноблоков имеют много преимуществ. За счет уменьшения веса упрощается их обработка и уменьшается нагрузка на фундамент. Уменьшение нагрузки на фундамент позволяет сделать фундамент более легким, а значит и более дешевым. Благодаря крупным размерам пеноблоков, время на возведение небольшой бани из пеноблоков сильно уменьшается, что в свою очередь ведет к уменьшению объема и стоимости строительных работ. Пенобетон, по своим свойствам, легко обрабатывается, что позволяет создавать разнообразные арки, ниши, пирамиды, делать углы разных форм, придающие зданиям индивидуальность и архитектурную неповторимость. Можно делать стены различных конфигураций с нишами и выступами. Благодаря хорошей обрабатываемости пеноблоков, можно воплотить в жизнь самые смелые дизайнерские решения. Дома из пеноблоков можно легко украсить любым видом отделочных материалов как снаружи, так и внутри.
В силу перечисленных преимуществ дом из пеноблока под ключ по доступной цене являются быстрым и удобным способом возведения бани на вашем участке.
Мы предлагаем отличные расценки на строительство бань из пеноблока под ключ. Итоговая стоимость формируется исходя из совокупности целого комплекса работ по строительству бани из пеноблока. Чтобы заказать расчет стоимости бани из пеноблоков и составить смету, а также задать все интересующие вас вопросы, звоните по телефону
Технология строительства бани из пеноблоков
Так как форма и размеры блоков стандартные, они почти не нуждаются в дополнительных работах. Там, где стандартный блок не подходит по размеру, его легко уменьшить в любом направлении обычной ножовкой. Кладка из пеноблоков проще кирпичной, благодаря большему размеру и меньшему весу блоков.
Строительство фундамента для пеноблочной бани
Мощный и основательный фундамент для бани из пеноблоков ни к чему, ведь пеноблоки – материал легкий. А потому можно ограничиться незамысловатым ленточным фундаментом с песчаной подложкой, на который обязательно нужно уложить гидроизолирующий материал для защиты от почвенной влаги – лучше всего рубероид.
Итак, чтобы соорудить такой фундамент, нужно выкопать котлован в виде лент по всему периоду строения. Глубина их должна быть не менее 60 см, а вот ширины в 30 см будет достаточно. Далее при помощи уровня нужно выполнить точную размету и аккуратно вставить штыри по всему периметру и углам – так, чтобы расстояние между ними получилось 1,9 метров. Чтобы проделать все это более точно, лучше всего воспользоваться натянутым шнуром, проверяя им ровность расположения всех штырей.
Теперь следует изготовить каркас из арматуры, с диаметром 12 мм и собрать опалубку из досок 25 см шириной. Все это заливается бетоном, а внутри фундамента моечной прокладывается канализация и приемник. Поверх всего этого и нужно будет уложить сетку. Всего от верхнего уровня стяжку нужно залить колок 1м3 бетона, чего вполне будет достаточно, если высота фундамента – 70-75 см. Остается только гидроизолировать сам фундамент двухслойным рубероидом.
Возведение стен из пеноблоков
Вот уж какие парные возводятся в рекордные сроки, так это бани из пеноблоков: отзывы опытных дачников говорят о том, что все можно сделать всего за 2-3 недели, если будет работать всего один человек.
А бригада – и того быстрее. Пеноблоки для строительства бани лучше брат марки М25, плотности Д700. Важный момент: пеноблоки укладываются только на ребро, а каждый из укладываемых слоев обязательно нужно проверять горизонтальным и вертикальным уровнем.
Первый ряд блоков укладывать нужно на обычный цеменно-песчаный раствор. Насколько точно это будет сделано, и насколько ровной окажется поверхность – безо всяких выступов и перепадов – и зависит то, насколько легкой будет дальнейшая работа. Вот почему на этом этапе не обойтись без уровня, блоков и резинового молотка. Не помешает и шнур, натянутый между углами будущей бани.
Если вопрос стоит, как построить баню из пеноблоков, а не какое-то другое здание из этого же материала (гараж, например), то начиная со второго ряда сами блоки нужно сажать на клей. Приобрести его можно в любом магазине, а разводится он как обычная сухая смесь – водой, прямо на строительном объекте, в течение буквально 5-10 минут. Для этой процедуры будет нужна емкость и электродрель со специальной насадкой-венчиком, для того чтобы перемешивать смесь.
Причем сам расход клея – минимален, ведь для кладки достаточно очень тонкого слоя клея, не больше 0,5 см. Этот клей просто незаменим, если строится именно баня из пеноблоков: отзывы говорят о том, что предварительного схватывания или периода созревания он не требует, и вся конструкция в итоге обладает плотными крепки стенами, почти без стыков и так называемых «мостиков холода» между всеми элементами. А при неукоснительном следовании этих технологий строительства баня может быть сооруженной любым человеком, без какой-либо помощи профессионалов. Возводить стены бани нужно по три ряда блоков, прокладывая между ними армирующий слой металлической сетки – это необходимо для упрочнения конструкции. А вот уже перекрытия дверных и оконных проемов делать нужно путем заливания бетона в опалубки или же применяя для этого специальные готовые доборные элементы. В процессе же возведении стен необходимо постоянно проверять соблюдение горизонтальных и вертикальных уровней кладки.
Как делается пароизоляция стен?
Еще перед тем, как сделать баню из пеноблоков, нужно хорошо продумать, как и чем ее стены будут изолированы от разрушительного пара.
Судя по мировому опыту, делать это целесообразнее всего за счет полимерных паронепроницаемых мембран, которые интегрируются в промежуток между облицовкой и стеной. А для того, чтобы циркуляция воздуха была сохранена, саму облицовку размещать нужно не менее, чем 5 см от стен. К слову, для пеноблоков не используются те крепежные элементы, которые обычно идут в ход с другими стенами (гвозди, моли, шурупы и дебеля). Нет, как раз для пеноблочных стен нужны обычные фиксаторы, ведь пористая структура этого материала в какой-то мере усложняет процесс сборки профилей под все каркасные виды облицовки. А потому необходимо заранее закупить для этой цели особые дюбеля зонтичного типа, называемые «грибками».
А вот
скрытую электропроводку в пенобетонных стенах делать намного легче, нежели в бетоне или кирпиче, и при этом дополнительная изоляция, как в дереве, не нужна. Что касается дверей, перекрытия и пробивания окон, то ни в чем от других построек не отличается.![]()
Особенности строительства крыши
Наиболее оптимальная конструкция крыши бани из пенобетона – двускатная стропильная. Построить ее можно по такой схеме:
Шаг 1. На продольные стены укладывается мауэрлат, причем брус должен быть не меньше 18 см толщиной. Закреплять его нужно специальными анкерными болтами.
Шаг 2. На земле следует заранее изготовить шаблон стропил. Для этого две доски соединяются краями так, что получаются ножницы с гвоздям в качестве крепления. Свободные края досок нужно поставить на снование, подобрать необходимый уклон крыши и зафиксировать угол специальной поперечной перекладиной. Все это нужно прикрутить саморезами – так, чтобы не нарушился угол.
Шаг 3. Теперь к балкам размером 15х50 см нужно приложить шаблон и отметить карандашом, как именно будет отрезаться угол.
Шаг 4. После всех проделанных процедур можно вырезать по заготовленному шаблону стропила, скрепляя их саморезами, а в местах скрещивания скручивая три самореза для надежности.
Шаг 5. Готовый каркас стропил нужно аккуратно поднять на крышу и установить. Все места соединения стропил с мауэрлатом желательно отметить путем врубок, накладок или металлических скоб.
Шаг 6. Точно также изготавливается следующий по очереди каркас стропил, и устанавливается на свое место. После чего между каркасами нужно натянуть шнур, закрепить фермы стропил специальными подпорками, которые ставятся под углом.
Шаг 7. По накатанной схеме вырезаются все остальные фермы стропил и крепятся на крыше с шагом 50 см, проверяемый обычным шнуром. Но важно это сделать так, чтобы между дымовым каналом и стропильной ногой расстояние оказалась не менее 40 см.
Шаг 8. Готовится обрешетка – для этого в ход пойдут доски 10х40 см, которые нужно закрепить на стропилах обычными саморезами с шагом – таким, какой был бы удобен для укладки утеплителя.
Шаг 9. Изготавливается черновой потолок – из досок с 25 мм толщиной, которые закрепляются между стропилами. Поверх него нужно постелить пенопласт 19 см толщиной, и еще сверху – чистовой пол чердака, из таких же досок.
Обязательно при этом нужно обеспечить вентиляцию в потолке бани – сделав специальных два отверстия.
Шаг 10. Теперь можно покрывать крышу кровельным материалом, прибивать коньковую деталь и делать оцинкованный стальной воротник вокруг дымовой трубы.
Наружная и внутренняя отделка бани из пеноблоков
Заканчивается постройка бани из пеноблоков внешней и внутренней отделкой, которая кроме своих декоративных функций отвечает за защиту от любого попадания внутрь воды. Если этого не обеспечить – пеноблочные стены быстро потеряют свой внешний вид и простоят даже меньше, чем десять лет. Не следует также забывать про утепление бани из пеноблока, ведь баня должна быть еще и теплой!!!
Если говорить о внешней отделке (Наружная отделка бани из пеноблока), то, не смотря на свою дешевизну, баня из пеноблоков может быть очень красивой – и все благодаря сайдингу, хаусблокам и декоративной штукатурке по типу «шубы». И лучший вариант наружной облицовки такой бани – это современные навесного типа вентилируемые фасады.
Именно они дают переизбытку влаги из блоков уходить в атмосферу без каких либо преград и хорошо защищают стены от внешнего негативного влияния среды. Лучшие в этом плане – цокольные и виниловые сайдинги, которые монтируются прямо на каркасы.
А вот внутренняя отделка бани из пеноблоков может быть самой разнообразной: стены можно покрасить полимерными красками, обшить древесиной или облицевать керамической плиткой – это уже дело вкуса. Если баня из пеноблоков своими руками была построена правильно, то она будет хорошо устойчива к воздействию любых температур, а по части экологичности уступит только парным из дерева, намного превосходя по этому параметру и кирпичные, и бетонные сооружения.
Монтаж кровли
Построенные стены пару дней выдерживаются до полного высыхания, после этого монтируется перекрытие и возводится крыша. Постройка полностью укрывается плёнкой от осадков.
Виды перекрытий
- Монолитное перекрытие. На вертикальные опоры монтируется опалубка, укладывается сетка для армирования и заливается бетоном.
Получается прочное, долговечное и пожаробезопасное перекрытие. - Перекрытия из пустотелых плит и балок. Для потолка устанавливаются краном готовые блоки. Получается вид монолитного перекрытия.
- Сборное перекрытие. Перекрытие монтируется из деревянных или металлических балок. Снизу крепится доска или фанера, по верху прокладывается утеплитель. Самый быстрый и малозатратный способ возведения потолка над головой. Перекрытие изготавливается как перед возведением крыши, так и после.
Изготовление крыши
Постройку кровли начинаем с изоляции стены рубероидом по периметру. Изготавливаем из бруса мауэрлат на верх стены. Брус укладываем на стену без разрывов. Крепим дерево специальными шпильками или анкерами с резьбой. При большой площади постройки и толстых стенах для укладки мауэрлата монтируется армированный пояс из бетона. Дерево покрывается пропиткой от гниения и против горения. Финишное покрытие наносится битумом или полимерными жидкостями. Дерево высушивается перед применением.
Сырой брус по мере высыхания на крыше затягивается гайкой шпильки.
Крыша монтируется двухскатной. Угол наклона скатов зависит от влажности климата – чем больше осадков, тем острее угол. Лучший вариант – угол наклона в 60 градусов. Вылет крыши (кровельный напуск) относительно стен должен составлять не менее 50 см. Полученный черновой потолок утепляется и зашивается досками. На него монтируются отливы.
Для установки готовых стропил, собранных на земле, понадобится помощник. Один работник, для удобства, монтирует стойки и поперечный брус в паз из толстых досок по центру перекрытия. Такой вариант позволяет легко смонтировать стропила любой конфигурации. Шаг стропил – 1 метр. К мауэрлату стропила крепятся металлическим уголком саморезами. Сверху крепим доски внахлёст, используя саморезы. Более сложная система – шип в паз. Дополнительное крепление стропил – поперечные доски. Тогда при сильных ветрах крыша останется целой долгое время. Минус такого крепежа – отсутствие свободного прохода по чердаку, тогда придётся искать другое место под хранение веников.![]()
На готовые стропила набиваем частую обрешётку из тонких досок. Профлист крепим саморезами по металлу. Сверху устанавливаем конёк из металла. Фронтоны чердака зашиваются доской. Для красоты используется пластиковые панели. На фронтонах монтируем дверцу, окошко и вентиляционные отверстия.
Отделка бани
Любой бетоносодержащий пеноматериал для создания бани уязвим для влаги – даже самый дорогой. Из этого следует, что гидроизоляция (защита от проникновения воды) является делом первостепенным.
Сама водонепроницаемая изоляция поверхности пеноблочных стен бани производится путем пропитки их гидрофобизирующими составами, дополненной изнутри прокладыванием специализированной защитной пленки.
Создание пенобетонной бани зачастую предполагает внешнюю отделку в эстетических целях. Оптимальный метод наружного облицовывания для пенобетона – новейшие проветриваемые фасады навесного типа, дающие излишку влаги из толщи блоков удаляться в атмосферу. Наиболее подходят для этого такие типы сайдингов (негорючих материалов для облицовывания стен), закрепляемые на каркасы:
- цокольные сайдинги;
- виниловые сайдинги.

Внутренняя отделка
Чтобы движение воздуха было свободным, обшивке полагается отстоять от поверхности стенки как минимум на 5–7 см. В банном помещении пароизолирование устраивается посредством синтетических паронепроницаемых мембран, встраиваемых в пространство между облицовкой и стенкой.
Внутри баню зашивают лесоматериалом, покрывают синтетическими красками поверх штукатурки или выкладывают керамоплиткой. Многим людям приятно, если в бане чувствуется древесный запах. Потому и обшивка лесоматериалом пеноблочных стен изнутри довольно популярна. Но не любое дерево годится для бани из-за ее специфического влажно-температурного устроения. Наилучшие для этой цели – хвойные, сосна или ель (кроме парной). Но в редких случаях они могут вызвать аллергию.
Для обшивания парилки следует применять осину или липу, являющиеся замечательными термоизоляторами и не раскаляются при высоких температурах. Важно, чтобы избранный лесоматериал был высокого качества, и не возникало впоследствии каких-то перекосов из-за повышения сырости.
Также перед обшивкой древесину надо обработать, удалив внешние слои, максимально предрасположенные к нежелательному воздействию воды. Их срезают и покрывают уже подготовленное дерево специализированным водонепроницаемым изолирующим составом.
Так, за довольно краткое время и без лишних усилий из пеноблоков сооружается прочная, легкая, теплая и экологически чистая баня, которую можно назвать достойной преемницей традиционных бревенчатых парных.
Внутренняя и внешняя отделка
Отделку и обустройство начинаем с парной как главной цели нашего строительства. Работа проводится поэтапно:
- монтаж печи;
- установка окон и дверей;
- гидроизоляция помещений;
- гидроизоляция фасада;
- финишная отделка.
После этого изготавливают крыльцо, полки и освещение. Проводку прокладывают во время гидроизоляции стен.
Монтаж печи
На монолитное основание устанавливаем металлическую печь – каменку. На каменке предусматриваем место под камни для образования пара и нагрева воды в ёмкости для купания.
Печь в районе топки обкладывается кирпичом во избежание контакта с пеноблоками. Красим печь негорючей краской. Дымоход накрывается колпаком.
Важно! Дымоход должен проходить через металлический лист. Контакт с деревом и утеплителем исключается во избежание пожара.
Установка дверей и окон
Дверь и лутка в парную изготавливаются из дерева. На лутке предусматриваем широкие края – для удержания тепла и пара. Остальные двери и окна ставятся из любого материала, предпочтительно – пластиковые.
Отделка стен и пола парной
На последнем этапе работ самое важное – это гидроизоляция помещений. Парилка обшивается полностью деревом, желательно лиственных пород, включая пол. Кафельная плитка в нагретой до 100 градусов парной способна обжечь ноги. Укладывать плитку, а сверху придумывать деревянные решётки – это неуважение к своему труду.
На черновой цементный пол укладывается дополнительная гидроизолирующая плёнка или рубероид. Предварительно пол обрабатывается битумной мастикой.
Только после этого ложатся лаги, набирается пол из доски.
Важно! Гидроизоляционные материалы должны быть безвредными и переносить высокие температуры.
Гидроизоляция стен и потолка выполняется в следующей последовательности:
- на стены горизонтально крепится брус или доска толщиной 40 миллиметров;
- укладывается утеплитель в промежутки обрешётки. Минеральную вату перед укладкой сжимают. Распрямляясь, она не оставляет щелей;
- стены затягиваются строительной фольгой. Крепёж производится степлером;
- стыки заклеиваются алюминиевым скотчем;
- гвоздиками крепится вагонка.
Парная готова, следующий этап – финишная отделка остальных помещений.
Отделка душевой и предбанника
Предбанник.
Предбанник.
Предбанник.
Душевую отделывают кафелем полностью, за исключением потолка. Слой шпаклёвки, клея и плитки послужит надёжным гидроизолирующим покрытием против влаги. Швы половой плитки заделываются водоотталкивающей замазкой, иначе есть риск попадания влаги в щели и разрушения пола, а впоследствии фундамента.
Необходимо предусмотреть вентиляционные отверстия.
Важно! Отвод воды в душевой будет лучше при небольшом уклоне в помещении. Наклон делаем в сторону приёмника.
Предбанник оборудуют по своему вкусу, как обычную комнату. Следуя общей концепции – обшиваем вагонкой, в том числе хвойных пород. Вагонку обрабатываем пропиткой и антисептиком. Керамическая плитка отлично подойдёт для обустройства пола и области топки печи.
Гидроизоляция фасада
Стены снаружи, если не планируется больше ничего, обязательно шпаклюются от попадания атмосферных осадков. В дальнейшем накладывается декоративная штукатурка или сайдинг.
Баня из газосиликатных блоков своими руками
На своем приусадебном участке можно возвести баню из газосиликатных блоков. Далее будет рассмотрено возведение сооружения размером 5х5,3 м. Высота потолка в этом проекте составляет 2,25 м. Газосиликат был использован для кладки стен и фронтов мансарды. Для внутренней отделки помещения для отдыха и мансарды была использована вагонка, для моечного помещения – плитка.
Преимущества газосиликата
Газосиликат имеет следующие преимущества:
- скорость возведения. Это происходит благодаря крупным размерам этого строительного материала;
- высокие свойства теплоизоляции;
- высокий уровень пожарной безопасности, так как газосиликат является негорючим материалом;
- этот материал не подвержен гниению;
- сравнительно невысокая стоимость этого строительного материала.
Пошаговая инструкция возведения бани из газосиликатных блоков
Устройство ленточного фундамента с двумя слоями гидроизоляции из рубероида.
баня из газосиликатных блоков своими руками. Фото отчет
Для кладки стен подойдут блоки размером 20х30х60 см. Их необходимо укладывать на ребро. Толщина стен в итоге должна получиться 20 см. Для укладки блоков применяется цементно-песчаный раствор в пропорции один к трем. Процесс кладки стен следующий: укладывать первые блоки необходимо начинать с углов. На слой рубероида, который был использован в качестве гидроизоляции фундамента, необходимо нанести слой раствора толщиной пять миллиметров.
Делают это при помощи строительной кельмы.
Рекомендации: первый ряд играет большую роль. Именно поэтому он должен быть максимально ровным. Для того чтобы проверить ровность конструкции необходимо как можно чаще прикладывать уровень.
Последующие ряды необходимо укладывать со сдвигом в 15 см. Таким образом будет выполняться перевязка швов. В процессе возведения также необходимо определиться с местом расположения оконных и дверных проемов. Таким образом кладка стен выполняется до тех пор, пока высота сооружения не достигнет отметки 2,25 м.
После этого можно приступать к устройству фронтонов мансардного помещения. Высота до конька крыши должна составлять 1,9 м.
Укладка утеплителя в парилке из теплоизоляционного материала, пароизоляции и отделочных материалов.
Внутренняя отделка помещения. Для этих целей была использована обрезная доска толщиной 20 мм и 125 мм в ширину.
Порядок укладки утеплителя
На первом этапе необходимо набить на стенки рейки.
В нашем случае для этих целей были выбраны рейки сечением 5х5 см. По вертикали рейки крепят саморезами.
Далее необходимо уложить теплоизоляционный материал. Для этих целей можно использовать минеральную вату «Paroc» толщиной 50 мм.
Рекомендации: необходимо укладывать материал таким образом, чтобы не было щелей. Для этих целей непосредственно перед самой укладкой можно вату немного сжать. После такой манипуляции, она хорошо заполнит все пространство в ячейках.
Сверху теплоизоляции необходимо уложить слой пароизоляционного материала. В этом проекте предусмотрены два вида строительных материалов: фольга и пленка «Метаспан». Перед тем как уложить материал необходимо прибить на рейки пленку. Каждый кусочек необходимо укладывать на другой в «нахлест». Достаточно будет 15–20 см. Сверху пленки необходимо уложить фольгу. Ее также укладывают с нахлестом. Места стыков материалов необходимо проклеить фольгезированным скотчем.
Далее необходимо соорудить обрешетку, на которую будет производится монтаж вагонки.
Устройство облицовки из вагонки из древесины. В качестве крепежного материала можно использовать гвозди.
Для защиты поверхности от гниения, можно покрыть вагонку специальным маслом, которое придаст древесине матовый эффект.
В моечном помещение для отделки стен можно применять плитку. Для реализации этого проекта была использована прочная плитка толщиной 8 мм. Укладка была произведена на морозо- и влагостойкий плиточный клей. Толщина слоя клея составила около 10 мм.
Для декоративной отделки остальных помещений была применена вагонка, изготовленная из осины. Вагонку прикрепили на установленный раннее деревянный каркас.
баня из газосиликатных блоков своими руками. Фото отчет
Совет: для защиты древесины от пагубного действия влаги и от вредителей, необходимо обработать ее антисептическими составами в два слоя.
Строительство бани под ключ − проекты и цены в СПб и Ленобласти, недорого
Компания «Дом на век» занимается строительством бань в Ленобласти под ключ — из бруса, бревна, газобетона или каркасные.
Ниже на сайте показаны готовые проекты. Но по запросу клиента их можно доработать, сделать перепланировку, изменить комплектацию или разработать от начала полностью новый проект. Консультация или заказ услуги по телефону +7 (812) 309−81−41.
Проект бани bani-pr1
2.50 х 6.00 м
15.00 м2
bani-pr3Проект бани bani-pr3
4.00 х 4.00 м
16.00 м2
as-2000-3Проект бани as-2000-3
3.
00 х 6.00 м
18.00 м2
bani-pr5Проект бани bani-pr5
4.00 х 6.00 м
24.00 м2
bani-pr11Проект бани bani-pr11
5.50 х 6.00 м
25.00 м2
bani-pr7Проект бани bani-pr7
6.
00 х 6.00 м
36.00 м2
as-2000-5Проект бани as-2000-5
7.50 х 7.00 м
52.20 м2
as-015Проект бани as-015
5.00 х 10.00 м
60.00 м2
as-2000Проект бани as-2000
6.
00 х 8.00 м
76.00 м2
as-217Проект бани as-217
7.70 х 7.70 м
84.00 м2
as-2000-2Проект бани as-2000-2
7.00 х 7.00 м
98.00 м2
as-139Проект бани as-139
7.
70 х 10.60 м
112.70 м2
as-407Проект бани as-407
7.20 х 12.85 м
125.40 м2
as-269Проект бани as-269
10.85 х 9.95 м
200.00 м2
Загородный дом в России трудно представить без бани. Ведь это любимое место отдыха для русского человека, где можно расслабиться, восстановить силы.
Это и традиция, и культура, и образ жизни, передаваемые из поколения в поколение.
Простая архитектура незамысловатого строения состоит из парной с печкой и комнаты отдыха. Строить баню лучше из традиционного материала — дерева. Бревно или брус экологичны, имеют хорошие теплоизоляционные свойства. А также деревянные стены «дышат», создавая внутри помещений здоровый микроклимат.
Преимущества деревянной бани
- Дерево — экологически чистый материал.
- Сравнительно низкая цена строительства.
- Высокие показатели теплоизоляции — деревянные стены сохраняют тепло зимой, а летом удерживают прохладу.
- Необязательна внутренняя отделка.
- Долгий срок службы.
Как мы строим
Наша компания учитывает разные факторы, влияющие не только на архитектурное решение, но также на итоговую цену постройки.
- Изучаем характер участка — свойства почвы, есть ли уклон, какая глубина залегания подземных вод.
Это позволяет определить перечень работ по монтажу дренажной системы, выбрать тип фундамента. - Выбираем технологию строительства исходя из требований заказчика. Надо учитывать, что при возведении деревянной бани из бруса до 40% древесины уходит на отходы — это несколько увеличивает конечную цену на строительство объекта. Если использовать оцилиндрованное бревно, то этот показатель составляет 20–25%.
- Размеры проекта.
- Тип и количество применяемого оборудования для отопления.
- Нужна ли заказчику внутренняя отделка.
В основном на цену строительства влияют 3 фактора — особенности ландшафта участка, комплектация проекта, нужна ли внутренняя отделка.
Для строительства бани традиционно чаще выбирают брус или бревно. Хотя возведённая по современной каркасной технологии баня не хуже сохраняют внутри тепло, отличается высокой герметичностью, стоит меньше.
Стадии строительства
Весь процесс можно поделить на следующие этапы.
- Клиент заказывает готовый проект из каталога сайта или разработку индивидуального.
- Наш инженер бесплатно приезжает на объект, чтобы изучить ландшафт, свойства грунта, сколько уже есть построек на участке.
- Делается расчёт необходимых материалов и техники.
- Согласовываем с заказчиком проект — материалы, какой будет фундамент, печь, нужна ли отделка, количество этажей, комнат.
- Рассчитывается стоимость строительства, подписывается смета, заключается договор, клиентом вносится первая часть оплаты.
- Все материалы и техника доставляется нами на территорию стройки.
- Бригада выезжает на участок для выполнения всех строительных работ, включая укладку фундамента, возведение стен, перекрытий, этажей, настила кровли.
- Подведение инженерных коммуникаций — канализации, водоснабжения, электричества, установка печи.
- Отделочные работы.
- Уборка строительного мусора на участке и сдача объекта.

В конце каждого дня мы присылаем фотоотчёт о выполненных работах. После завершения строительства бани заказчик подписывает акт приёма-передачи, оплачивает остаток суммы по договору.
На что обращать внимание перед стройкой
В первую очередь надо изучить рельеф почвы, где будет стоять баня. От этого зависит, какой нужен тип фундамента. А также нужно учитывать нормы градостроительного кодекса.
На что ещё надо обращать внимание при выборе места для бани?
- Есть ли вблизи водоёмы.
- Что лучше строить — отдельно стоящее здание или пристройку к дому.
- Можно ли в этом месте подвести все коммуникации.
- Куда будут выводиться сточные воды.
- Насколько баня будет защищена от ветра.
Классическая баня имеет три зоны — парилки, душевой и отдыха. Но в зависимости от проекта в конструкции могут быть предусмотрены дополнительные помещения, например, коридор, санузел, комната с бассейном.
Если планируется ходить в баню зимой, то тамбур должен быть достаточно большим, чтобы задерживать холод и вмещать шкаф для хранения верхней одежды.
Если нужны несколько объектов на участке, но денег на всё не хватает, то сэкономить можно, заказав совмещённую постройку, например, под одной крышей — гараж, сарай, садовый домик и баня. Тогда затраты будут значительно ниже, чем на возведение каждого отдельного объекта.
Мы рекомендуем строить баню зимой, так как в холодное время дерево синеет от грибков, не поражается насекомыми, меньше трескается из-за влияния солнца. К наступлению лета сруб из бруса или брёвна даст усадку, дерево высохнет, и тогда можно будет заняться обработкой защитными составами и внутренней отделкой.
Так как в парной должна поддерживаться высокая температура, то для отделки этого помещения нужны мало нагревающиеся материалы. Для этого подойдёт осина, липа, ольха.
Наше предложение
У нас есть собственное производство профилированного бруса, каркасов, ЖБИ изделий, что позволяет значительно удешевить стоимость строительства.![]()
Мы занимаемся строительством бань из бруса, бревна, каркаса, газобетона и пеноблоков, любой формы и площади: небольшого размера — 3х4, 3х5, 3х6, 4х4, 4х5, 4х6, 4х7, 5х5, 5х6, 5х7, 5х8, средние — 6х3, 6х4, 6х5, 6х6, 6х7, 6х8, 6х9, и довольно приличные для бань 7х7, 7х8, 7х9, 8х8 метров. А также одноэтажные, двухэтажные, с мансардой, террасой, верандой, бытовкой.
Наши архитекторы разработали типовые проекты с продуманной планировкой. Каждый из них соответствует современным условиям комфорта, технической комплектации, вписывается по цене в рамки финансовых возможностей граждан нашей страны. При этом любой типовой проект можем доработать под запросы клиента — добавить количество комнат, сделать перепланировку, изменить комплектацию.
При составлении индивидуального проекта мы обсуждаем с заказчиком:
- общую площадь;
- нужны ли дополнительные комнаты отдыха;
- количество этажей;
- наличие террасы;
- из какого материала будет выполнено утепление крыши и прочие моменты.

Эта разработка бесплатна.
Обращение в компанию «Дом на Век» — это высокая скорость строительства бани под ключ при сохранении качества. Мы работаем в Санкт-Петербурге и Ленинградской области. Заключаем договор с клиентом, показываем фотоотчёт, предоставляем пятилетнюю гарантию. Помогаем в оформлении кредита, а также принимаем в счёт оплаты материнский капитал.
Чтобы заказать строительство бани или получить консультацию, звоните по телефону +7 (812) 309−81−41 или оставьте заявку на сайте. Или закажите обратный звонок — наш менеджер свяжется с вами и предоставит всю необходимую информацию об условиях сотрудничества.
Наши партнеры
Строительство бани с бассейном под ключ по низкой цене
Желание уехать на несколько дней от шума и рутины городской жизни, подталкивает людей проектировать и строить загородные дома. Теперь данная опция возможна и доступна для многих жителей России. Природные ландшафты, чистый воздух, вдали от выхлопных газов – лучшее лекарство от усталости и лишних стрессов.
Многие приезжают за город, чтобы заняться посадкой и обработкой участков, но работу крайне необходимо совмещать с отдыхом.
Строительная компания «В.А.Империя» предлагает Вам построить прекрасный оздоровительный комплекс на территории загородного участка. Учеными доказаны удивительные свойства древесины, что заставляет организм человека обновляться. Вы сразу же ощутите бодрость духа и тела, а улучшения в состояние кожи Вас приятно удивят. Строительство бань с интересным бассейном под ключ – превосходная возможность обзавестись собственным спа-центром для всей семьи.
Процесс создания уникального комплекса
Разработка проекта оригинальной бани с бассейном под ключ – наиболее важный и ответственный этап работы, где необходимо учесть особенности ландшафта и свободное пространство на участке. Инженеры помогут Вам определиться с готовыми проектами, предложенными в каталоге. Кроме того, Вы можете создать уникальную конструкцию и дизайн комплекса.
При проектировании индивидуальной схемы важно понимать, что каждая дополнительная опция отразиться на стоимости постройки. Не стоит забывать, что использование высококачественных материалов и учет всех особенностей поможет создать интересную функциональную конструкцию, которая прослужит много лет.
На стадии проектирования необходимо определиться с размерами и положением бассейна. Эта часть постройки может иметь крытую и открытую формы. Вы получаете бассейн, пригодный для плавания в любое время года, находящийся внутри конструкции.
Наши специалисты готовы учесть все пожелания клиента, касательно внешнего вида и технологической оснащенности проекта. Мы готовы создать лояльные взаимоотношения с экономической выгодой для обеих сторон.
Этапы работ и услуги профессионалов
По завершении подготовительных процессов — проектированию и изучению местности — мастера приступают к реализации проекта. Наиболее важный основополагающий момент – создание фундаментальной основы, исходя из мощности конструкции.
Нами предусмотрены несколько вариантов, которые удовлетворят требования клиентов. Когда фундамент заложен, начинаются основные последовательные взаимосвязанные этапы сборки конструкции:
- Укладывание срубов постройки;
- Обустройство бассейна – напрямую зависит от формы и сложности работы, может включать различные дополнительные операции;
- Сооружение кровельной системы;
- Установка и монтаж оборудования, предопределенного планом работ;
- Внутренняя и наружная отделка, подразумевающая внедрение регуляторной конструкции, фиксирующей температуру в парилке;
- Создание системы освещения.
Один из наиболее важных этапов в обустройстве банного комплекса, включает размещение бассейна. Чаще всего прибегают к следующим конструктивным решениям:
- Сооружения, расположенные на земле;
- Бассейны, частично заглубленные в грунт;
- Бассейны, полностью заглубленные в грунт;
- Установка оздоровительных комплексов на базе бассейна – гидромассажных, аэромассажных, противотоков и других оздоровительных систем и комплектующих;
Важно понимать, что ключевую роль отыгрывает заказчик – определяет форму, размер и положение бассейна.
В качестве дополнительного элемента для бани используют купельный вариант – небольшой бассейн, находящийся внутри банного комплекса.
Строительная компания «В.А.Империя» гарантирует высокое качество и функциональность комплекса при условии использования лучших строительных материалов на натуральной основе. Мы произведем строительные работы максимально быстро, учитывая конкретные пожелания заказчиков. Не откладывайте создание своего личного райского уголка, заказывайте баню с бассейном у нас, а мы обеспечим быстрое выполнение Ваших желаний.
Благодаря стараниям мастеров более 400 построенных домов и оригинальных проектов бань по всей стране радуют своих владельцев. Присоединяйтесь к обществу счастливых здоровых людей!
Строительство бани из пеноблоков своими руками: преимущества + фото
Преимущества бетонных блоков для строительства бани
Баня из пеноблоков
Блоки представляют собой крупногабаритные блоки (по сравнению с размером кирпича ), изготовленные из ячеистого бетона (пенопласт+цементный раствор).
Сегодня производителей пеноблоков много, и материал доступен на любом строительном рынке.
Пенобетон в сравнении с кирпичом
Преимущества пеноблока следующие:
- Пеноблоки имеют большие габариты при небольшом весе, что положительно влияет на трудоемкость работ при транспортировке материала и строительстве бань из пеноблоков.
- Материал обладает отличной теплоемкостью (в несколько раз лучше держит тепло, чем кирпич)
- Пеноблок имеет относительно небольшую стоимость
- Ячеистый бетон обладает высокой прочностью и долговечностью
- Баню из пеноблоков может построить даже неопытный дачник (чего не скажешь о строительстве бани из профилированного бруса )
- Для того что бы отрезать часть пеноблока можно использовать ножовку (или даже острый нож)
- Материал: огнеупорный
Также следует отметить, что пеноблок имеет несколько существенных недостатков, которые и портят популярность материала:
- Пеноблок не способен выдерживать большие нагрузки, поэтому из этого материала рекомендуется строить высокие 2-3 этажные дома
- Пористый бетон впитывает влагу, из-за чего пеноблок является губкой и требует дополнительных мероприятий по герметизации ванны
Несмотря на то, что у бань из пеноблоков есть два существенных недостатка, их можно легко опровергнуть.
Во-первых, баня на даче рассчитана максимум на 2-х этажный дом, поэтому пеноблок легко выдерживает вес такой конструкции. Во-вторых, любое помещение требует дополнительных мер по гидроизоляции, кроме того, все, что нужно, это пеноблок, обработать специальной гидрофобной обработкой снаружи и обмотать пленочным материалом внутреннюю сторону здания.
Пеноблок можно резать пилой
Прежде чем приступить к строительству бани из пеноблоков своими руками, предоставим вам технологию расчета необходимого количества блоков.
Расчет бани из пеноблоков
Сколько бетонных блоков нужно для строительства бани?
Перед тем, как вы начнете строить баню из пеноблоков своими руками, вам необходимо создать проект бани и подбить смету на стройматериалы.
Что касается проекта бани, то с ним вы можете ознакомиться в статье: строительство бани из керамзитобетонных блоков своими руками. Не только проекты бань, но и технология строительства в данном случае аналогичны.
Теперь перейдем к расчету бани из пеноблоков. Что бы не столкнуться с ситуацией, когда к концу строительства бани у вас не осталось почти 10 блоков, или после окончания строительства осталось более 50 штук, необходимо правильно провести расчет бани из пеноблоков. .
Необходимо разделить технологию по основанию на 3 группы. Первая группа – несущие стены, их толщина равна 2 блокам, уложенным на ребро. Размер блока в этом случае должен быть 200*300*600 мм.Вторая группа внутренних стен бани из пеноблоков, которые укладываются плашмя в ряд. В этом случае размеры блоков вы должны использовать в первую очередь одинаковыми. Не последняя, третья группа перегородки в ванне , которые необходимо укладывать плашмя в ряд, но только блоками размером 100*300*600 мм.
Классификационные группы определены, теперь рассмотрим сам характер расчета бани из пеноблоков. Каждая единица имеет свой объем (ширина, умноженная на высоту и длину).Путем несложных расчетов можно определить объем каждой стены ванны (формула та же).
Затем рассчитайте объем, который будут занимать окна и двери в бане (формула опять та же). Ну и в итоге из общего объема стен нужно взять количество дверей и окон и полученный результат разделить на объем одной единицы. Получите необходимое количество блоков для строительства бани. Как и в любых расчетах, обязательно при расчете бань из пеноблоков существует допуск, равный 5%.Около 5% пеноблоков могут испортиться при транспортировке (точный % можно узнать у производителя или продавца). Именно поэтому к итоговому количеству блоков нужно добавить еще 10%, это и будет количество блоков, которое вам понадобится для строительства бани своими руками.
Помимо пеноблоков вам потребуются следующие материалы, а именно:
- Цемент
- Песок
- Бетон
- Стержни клапанов толщиной 12 мм
- Вязальная проволока
- Пиломатериалы
- Канализационная труба
- Крепеж (гвозди, шурупы, металлические уголки и т.
п.)) - Гофрированный лист
- Кирпич
- Материалы для теплоизоляции, паро- и гидроизоляции ванн
- Окна и двери
- Печь для бани
- Отделочные материалы ( сайдинг , вагонка и т.д.)
- Электропроводка и освещение
- Антисептик
- Пенополиуретан
Это тот минимум тех материалов, который необходим для строительства бани своими руками.По беглым расчетам на строительство бани из пеноблоков размерами 6*3 метра потребуется около 120000 рублей (включая доставку материалов).
Теперь рассмотрим технологию строительства бани из пеноблоков своими руками
Как построить баню из пеноблоков?
Общая информация
В этой статье мы не будем подробно рассматривать каждый этап строительства бани из пеноблоков, т.к. отдельно уже были полностью рассмотрены этапы создания любой бани.
Как мы уже говорили, технология строительства бани из пеноблоков имеет много общего с технологией строительства бани из бетона, разница лишь в характеристиках кирпичной кладки, о которых мы поговорим ниже.
Что бы вы рассмотрели каждый этап строительства бани, рекомендуем вам прочитать следующие статьи:
Теперь подробнее поговорим о том, как сделать кладку из пеноблоков при строительстве бани своими руками.
Кладочные пеноблоки
Схема строительства бани из пеноблоков
Следует отметить, что на сегодняшний день существует несколько основных размеров пеноблока, но для строительства бани рекомендуется использовать блок размером 200*300*600 мм и плотностью D700.
- Кладка блоков на клей
Итак, кладку пеноблоков необходимо осуществлять по краю, первый ряд блоков нужно укладывать на цементно-песчаный раствор, а остальные ряды на специальную клеевую смесь.Обратите внимание, что швы между блоками должны быть ровными – 5 мм, т.к. большие швы будут ухудшать наращивание потенциала (так называемый мостик холода).
Каждый четвертый ряд кладки блоков необходимо дополнительно укрепить металлической мелкоячеистой сеткой.
Следует отметить, при строительстве бани из пеноблоков своими руками специалисты советуют не использовать строительный лазерный уровень, который имеет более высокую точность.
Сразу обратите внимание, какую клеящую смесь на пеноблок рекомендуется наносить специальной кельмой, а класть нужный блок нужно с помощью резинового молотка.
Хотя структура пеноблока отличается от газобетона, технология мощения материалами точно такая же, поэтому весь процесс строительства бани вы можете посмотреть на этом видео уроке:
Видео урок строительства бани из блоков
Ну и последнее, что я хотел вам рассказать, это советы по строительству бани из пеноблоков.
На что следует обратить внимание?
При строительстве бани из пеноблоков может возникнуть множество вопросов, таких как: «Какой фундамент лучше подойдет?», «Чем баня теплая?», «Какой материал использовать для обшивки бани внутри и снаружи?» , так что сейчас мы вкратце расскажем вам о том, как построить баню из пеноблоков своими руками.
Наиболее подходящим фундаментом для строительства бани из пеноблоков является сплошной фундамент, который должен находиться на глубине около 60 см. Ширина ленточного фундамента должна быть 30 см.
В наружном утеплении бани из пеноблоков нет смысла, а вот изнутри проводить утепление бани рекомендуется минеральной ватой.
Для наружной гидроизоляции бани не рекомендуется использовать оштукатуривание стен, т.к. штукатурка не обеспечит хорошую изоляцию от влаги.Гораздо лучше использовать специальные гидрофобные пропитки и грунтовки. Для внутренней гидроизоляции бань рекомендуется использовать в качестве утеплителя стен фольгированный материал.
Для декоративной отделки бани внутри рекомендуется доска из реек. Внешнюю отделку бани из пеноблоков советуют выполнять сайдингом.
Вот и все, о чем я хотела вам рассказать, как построить баню из пеноблоков своими руками! Желаем удачи и терпения в этом нелегком деле!
Бассейны ICF: строительство плавательных бассейнов с использованием изолированных бетонных форм
Строительство бассейнов с помощью изолированных бетонных форм (ICF), таких как серия блоков Fox, предлагает потребителям, строителям и архитекторам многочисленные преимущества по сравнению с другими методами строительства бассейнов, такими как торкретбетон, сборный железобетон.
, и монолитный бетон.Бассейны из изолированной бетонной формы энергоэффективны, долговечны и не требуют особого ухода, что является важными характеристиками для современного экологически сознательного и занятого потребителя.
Строители ценят строительство бассейнов ICF, потому что это быстрее и проще, чем строительство бетонных бассейнов, что экономит время и деньги. Дизайнеры и архитекторы наслаждаются гибкостью конструкции бассейнов ICF. ICF — это жизнеспособный метод строительства надземных или подземных бассейнов, общественных бассейнов, как часть индивидуального дома, небольших бассейнов для упражнений и многого другого.
Для потребителей, строителей и архитекторов, заботящихся об экономии энергии, времени и денег, бассейны ICF, такие как бассейны серии Fox Block, являются отличным выбором. Бассейны ICF также долговечны, не требуют особого обслуживания и обеспечивают гибкость конструкции.
Преимущества бассейнов с теплоизоляцией из бетона
1.
Бассейны ICF энергоэффективны
Согласно журналу ICF, бассейн теряет около 80 процентов своего тепла через дно и стенки, поскольку грунт проводит тепло легче, чем грунт. поверхностный воздух.Бассейны, построенные с использованием ICF, имеют непрерывную изоляцию с внутренней и внешней стороны, а также дно бассейна. Стандарт ASHRAE 90.1-2013 определяет непрерывную изоляцию как изоляцию, которая является несжатой и непрерывной по всем конструктивным элементам без тепловых мостов, за исключением крепежных деталей и сервисных отверстий.
Непрерывная изоляция снижает потери тепла и помогает стабилизировать температуру в бассейне. Бассейны ICF снижают затраты на электроэнергию по сравнению с бетонными бассейнами до 60 процентов. Кроме того, поскольку ICF стабилизирует температуру в бассейне, продолжительность сезона в бассейне может быть больше, чем в бассейнах из бетона или стекловолокна.
2. Бассейны ICF просты в строительстве
Строительство бассейна ICF требует меньше времени и труда, чем строительство бетонного бассейна, по нескольким причинам:
- Легкие модульные панели ICF просты в обращении.

- Для бассейнов ICF не требуется тяжелое оборудование для доставки, подъема или резки.
- В отличие от систем бетонных стен бассейна, стены ICF не требуют точных земляных работ. Если земляные работы в бассейне ICF перекопаны, единственными дополнительными расходами является засыпка стен после того, как они будут на месте.
3. ICF имеют повышенную долговечность и надежность
Прочность и целостность надежного пула ICF делают его устойчивым к стихийным бедствиям. Бассейны ICF также устойчивы к плесени. Следовательно, бассейны ICF имеют более длительный срок службы и меньше обслуживания, чем бассейны, построенные другими методами.
4. Универсальность конструкции бассейнов ICF
Причудливые конструкции бассейнов ICF с изогнутыми стенками проще планировать и они более единообразны, чем другие методы строительства бассейнов.Гибкость дизайна бассейнов ICF позволяет выбирать экономичные варианты, включая изгибы, арки и многие другие варианты дизайна и формы.
5. Бассейны ICF имеют гладкую однородную отделку стен
ICF имеют более однородную отделку стен, чем стандартные бетонные бассейны. Облицовка бассейна или гипсовая отделка используются для завершения внутренней части бассейна ICF. Пленка для бассейна устанавливается поверх штукатурки бассейна и обычно служит до 10 лет.
Нанесение гипсового покрытия осуществляется за один или два раза непосредственно на пенопласт ICF внутри бассейна и имеет толщину около ½ дюйма.Гипсовая отделка бассейна поверх ICF очень гладкая и на 100% водонепроницаемая.
Строительство бассейна ICF
Независимо от конструкции бассейна можно построить экономичный бассейн ICF, в том числе с использованием блоков серии Fox. Строительство пула МКФ включает следующие основные этапы:
Шаг 1: Первым шагом к созданию пула МКФ является земляная работа.
Этап 2: Далее формируются и укрепляются фундаменты в соответствии с инструкциями инженера.
Этап 3: Затем бетон укладывается в опалубку и обрабатывается, чтобы получилась ровная поверхность для укладки блоков ICF.
Этап 4: Затем стальная арматура и раскосы добавляются вертикально к фундаменту в соответствии с техническими требованиями инженера.
Шаг 5: Следующим шагом является укладка стенок ICF.
Этап 6: Дно бассейна начинается с гладкой, уплотняющейся насыпи, такой как песок. На насыпь укладывается влагозащита под плитой и адекватная изоляция, жесткий листовой пенопласт, барьер, сочетающий гидроизоляцию и изоляцию в одном продукте.
Этап 7: Затем установите арматуру и распорки в пол в соответствии со спецификациями инженера.
Шаг 8: Перед укладкой бетона убедитесь, что вся арматура, обвязки и распорки на месте. Кроме того, закройте фары и водостоки, чтобы предотвратить попадание бетона в отверстия.
Этап 9: Последний этап заключается в заливке бетона в блоки Fox для завершения структурной оболочки.
Выберите блоки Fox для своего бассейна ICF
Бассейны из изолированной бетонной формы, такие как бассейны, построенные из блоков серии Fox, энергоэффективны, долговечны, не требуют особого ухода и легко адаптируются к большинству конструкций бассейнов.Бассейны ICF также быстро и легко строятся, что экономит время и деньги.
Пожалуйста, посетите Fox Blocks для получения дополнительной информации о строительстве бассейна с помощью изолированных бетонных форм.
Добавление полки Baja к существующему бассейну во время реконструкции
— Да, вы можете добавить эту расслабляющую функциональную функцию во время капитального ремонта
Полка Baja в бассейне обеспечивает комфорт и расслабление.А для существующих владельцев бассейнов хорошая новость заключается в том, что вы можете добавить эту удобную и привлекательную функцию во время капитального ремонта бассейна.
Обзор полки Baja Эта функция, также известная как ступенька Baja, выступ для загара, выступ для отдыха и полка для загара, представляет собой одну из наиболее распространенных тенденций в дизайне плавательных бассейнов в Соединенных Штатах.
Полка Baja, популярная в элитных отелях, представляет собой сплошной пролет внутри или рядом с периметром бассейна. Он напоминает широкий, неглубокий шаг.Эта особенность обычно имеет длину от 4 до 8 футов, ширину не менее нескольких футов и глубину от 3 до 18 дюймов в воде.
В то время как прямоугольник является наиболее распространенной формой, полка Baja может быть квадратной, круглой, вариацией овала или эллипса или изогнутой формы, повторяющей силуэт бассейна. (Размеры и форма вашего существующего бассейна помогут определить, какой размер и форма полки Baja будет целесообразной и выглядит лучше всего.)
№
Подводные изгибы: В бассейне свободной формы полка Baja с плавными линиями гармонично сочетается со стилем.
№ Эти размеры в сочетании с небольшой глубиной делают полку Baja идеальной для того, чтобы лежать прямо в воде, не высовывая тело полностью. Те, которые построены на фут или более в глубину и на 8 футов или более, хорошо подходят для установки одного или нескольких шезлонгов.
Владельцы бассейнов все чаще используют большой зонт для защиты от солнца. Вы также можете использовать эти частично погруженные в воду насесты в качестве контролируемой игровой площадки для маленьких детей. То же самое для вашего питомца, который любит охлаждаться в нескольких дюймах воды, не плавая.
Подобные преимущества — вот почему тысячи новых бассейнов по всей стране строятся с полкой Baja. Если вы планируете капитальный ремонт бассейна , это определенно разумный шаг, чтобы рассмотреть эту функцию для дополнительной функциональности и характера, которые она привнесет в ваш стареющий бассейн.
Декоративные элементы для полки BajaВ зависимости от вашего стиля и бюджета у вас есть несколько способов включить в дизайн великолепно выглядящей полки Baja, которая интегрируется с остальной частью вашего бассейна.
Самый простой способ украсить полку — покрыть ее поверхность тем же внутренним покрытием, что и остальная часть марцита вашего бассейна (штукатурка, цветной кварцевый заполнитель или галька).
Такой подход — если не добавлены другие декоративные акценты — создает более бесшовный внешний вид, так как полка будет визуально гармонировать с остальной частью бассейна.
Однако вы можете предпочесть создать визуальный контраст, чтобы элемент выделялся. Один из способов сделать это — покрыть внешнюю часть полки каменной плитой.Особый вид камня держится под водой и обеспечивает особую эстетику.
Естественный вид: декоративная плитка на этой полке Baja придает привлекательный внешний вид, который особенно хорошо сочетается с бассейном в виде лагуны или тропическим садом.
Еще одним вариантом для более современного стиля является цветная плитка. Лучше всего использовать нескользящую разновидность, особенно если у вас есть маленькие дети, которые будут пользоваться полкой.
Гладкая крышка: эта полка Baja может похвастаться внешней облицовкой из плитки, что придает ей более современный вид.
Вы также можете использовать ту же внутреннюю отделку, что и остальная часть бассейна, но добавить акценты вдоль края полки с помощью нескольких кусочков мелкой плитки. Использование мозаичного дизайна в центре полки также является умным способом обеспечить визуальный индикатор подводной конструкции.
Мозаичные маркеры: выберите из большого разнообразия забавных ярких мозаичных рисунков, чтобы украсить полку Baja.
В новом бассейне еще один акцент, который некоторые строители добавляют к полке Baja, — это один или несколько фонтанов-барботеров. Однако сделать это на новой полке Baja, входящей в существующий пул , сложнее; это потребует дополнительной сантехники, которая требует больших затрат.
Процесс реконструкции и вопросы стоимости Давайте будем откровенны: добавление полки Baja к реконструкции бассейна в качестве элемента проекта является высококлассным предложением.
В зависимости от того, где вы живете, размера предлагаемой функции и других переменных, касающихся вашего существующего пула, добавление может добавить несколько тысяч долларов
И этот рисунок предполагает, что для вашего проекта реконструкции потребуется полная новая штукатурка как часть объема работ по проекту реконструкции.Так что, чтобы быть справедливым: знайте заранее, что вряд ли стоит добавлять полку Baja, если только новый гипс для бассейна уже не запланирован для вашей реконструкции . (Даже если вы планируете покрыть верхнюю часть полки камнем или плиткой, стороны полки должны быть гидроизолированы с помощью той же внутренней отделки, что и остальная часть вашего бассейна.)
Теперь, помимо штукатурки, для полки Baja потребуются другие этапы сборки и сопутствующие расходы. Некоторые из шагов по существу идентичны тем, которые необходимы для создания нового пула.
Вот что входит в большинство модификаций, которые создают полку Baja в текущем бассейне.
Мы также рассмотрим менее распространенный подход, который — в редких случаях — может обеспечить более простой и доступный способ интеграции этой функции.
Во-первых, ваш подрядчик по реконструкции бассейна должен будет оценить ваш бассейн, чтобы убедиться, что его размеры и конфигурация позволяют использовать пространство и положение, которые потребуются для полки Baja.Большинство форм и типичных размеров могут вместить один.
Когда начнется строительство, несколько торговцев будут выполнять различные этапы. После того, как ваш бассейн будет осушён, одна бригада снимет стареющую штукатурку с вашего бассейна, а другая бригада приступит к полкам для бахи.
Так же, как при строительстве нового бассейна, на место прибудет группа специалистов по стали. Они установят тщательно сформированный каркас из стальной арматуры, чтобы сформировать скамейку. Необходимо позаботиться о том, чтобы создать структуру и форму, которые будут гармонировать с существующей стенкой бассейна.
Когда сталь будет на месте, другая группа торговцев привезет бетонную установку — торкрет-бетона или торкрет-бетона. Они будут стрелять влажным материалом на стальную раму, чтобы создать прочный выступ.
Если при использовании стеллажа вы хотите тени, то перед бетонированием бригада поставит трубчатую форму для создания гильзы для вставки в ее плоскую поверхность стержня для зонта. После того, как бассейн будет готов, этот рукав позволяет легко вставить шест и открыть навес, чтобы заблокировать некоторые из этих резких солнечных лучей.
Затените свою полку: включите в новую полку рукав для стойки для зонта и выберите любой зонт для патио, чтобы дополнить декор вашего двора.
Наконец, бригада штукатуров закончит полку, когда они нанесут новую поверхность на остальную часть бассейна. Если у вас есть план дизайна, предусматривающий покрытие плоской части полки декоративным камнем или плиткой, другая команда специалистов нанесет этот материал на поверхность полки.
Вот еще одна идея для добавления полки Baja: «внешняя сборка» по внешнему периметру вашего бассейна. Этот подход редко используется при реконструкции бассейна, так как он имеет смысл только в том случае, если А.) Обычная внутренняя полка не подойдет для вашего бассейна и Б.) Сочетание других условий просто идеально.
Для начала: будет ли работать обычный внутри полки ? Если да, то идите по обычному пути.Но, если ваш бассейн очень мал или имеет конфигурацию или особенности, затрудняющие плавную установку новой полки в его интерьер, тогда решением может стать внешнее дополнение.
Эта новая структура также придаст больше визуального размера форме вашего бассейна и увеличит его общую площадь в квадратных футах, предоставляя больше места для развлечений и отдыха.
Однако должны присутствовать и другие переменные. Во-первых, вам нужно свободное пространство на заднем дворе для добавления.
Во-вторых, ваши планы по переделке уже должны включать полный демонтаж палубы и замену .В-третьих, у вас есть достаточный бюджет проекта, чтобы инвестировать в необходимую сталь, плитку, сантехнику, бетон и сопутствующие работы, которые потребуются для внешней полки.
Внешнее дополнение: эта внешняя полка Baja достаточно глубокая, чтобы вместить шезлонги.
Добавьте удовольствия и функциональности в ваш бассейнЕсли вы сможете реализовать это дополнение в курортном стиле во время реконструкции, выступ обеспечит дополнительную легкость, комфорт и функциональность для отдыха на заднем дворе.Когда пришло время обновить ваш бассейн, воспользуйтесь этой возможностью. Добавление одного из них также является отличным способом обновить ваш пул старения.
Начните процесс определения доступного бюджета. Убедитесь, что вы понимаете, будет ли ваш ремонт включать в себя новую штукатурку и полную замену палубы, так как это повлияет на окончательную стоимость этого обновления.
Добавление этой замечательной функции к вашему бассейну может окупиться весельем и отдыхом для вашей семьи.
Искусство, ремесла и шитье Художественные проекты и цветочные композиции Блоки для лепки своими руками Школьные и детские художественные проекты Квадратные блоки из пенополистирола EPS для моделирования рукоделия 12 наборов уни-танкеров 4x4x2 дюйма Silverlake Craft Foam Block Принадлежности для рукоделия.дк
Художественные проекты и цветочные композиции Скульптурные блоки для рукоделия Школьные и детские художественные проекты Квадратные блоки из пенополистирола EPS для моделирования рукоделия 12 блоков из пеноматериала Silverlake 4x4x2 дюйма в упаковке
простой и элегантный дизайн кулона. и стильный, то мы поможем вам получить идеальный внешний вид и срок службы, который вы ожидаете от General Motors, Янтарный светодиодный сигнал поворота: автомобильный. Крышка стакана на 20 унций с 2 кубиками льда из нержавеющей стали и шариком для смешивания: стаканы и стаканы для воды.
Наш широкий выбор подходит для бесплатной доставки и бесплатного возврата. Купить Tallia Mens Dotted Two Button Blazer Jacket и другие спортивные пальто и блейзеры в. boost — это наша самая отзывчивая амортизация: чем больше энергии вы отдаете, тем 30-дневная политика возврата «БЕЗ ЗАДАВАННЫХ ВОПРОСОВ». Купите женские волейбольные кроссовки Wave Lightning RX2 Mizuno и другие волейбольные мячи на сайте. Наша круглая цепочка из стерлингового серебра изготовлена из чистого серебра 925 пробы с классическим блеском. Доступно 7 цветов: как на фото (пожалуйста, выберите любимый цвет и количество).Купить мужскую оксфордскую рубашку на пуговицах Ebind с длинным рукавом без железа и другие повседневные рубашки на пуговицах в. ACDelco 25712419 Оригинальное оборудование GM Трос заднего стояночного тормоза в сборе: Автомобильный, Художественные проекты и цветочные композиции Блоки для лепки для школьных и детских художественных проектов DIY Квадратные блоки из пенополистирола EPS для моделирования рукоделия 12 шт.
поверх микропористых пленочных тканей обеспечивает постоянно лучший барьер, обеспечивает удивительно простые продукты, использует изолированный вкладыш внутри корпуса для надежной защиты и уютного тепла, стандартная длина для всех калибров: / 16 «от раструба до уплотнительного кольца, Окраска для парусного спорта на океанской лодке Рюкзак, 30 дюймов / 16 см и окружность отверстия 9.даже можно легко изменить направление соединителя трубки после установки, отлично подходит для вечера в маленьком черном платье. Наслаждайтесь и спасибо за покупки в BohoVintageVillage и видеть. Нежно-розовый цвет настолько прекрасен, а ткань из органического хлопка мягкая и легкая, с большим количеством эластичных материалов и местом для всех этих маленьких покачиваний, пляжные мячи Early Kaffe Fassett в джунглях GP37 OOP VHTF Rare, если вы не видите количество, которое вы хотите, они необходимы и широко признаны в качестве украшения и украшения для бесчисленных декоративных и дизайнерских приложений и применений. (кожа и пряжка НЕ входят в комплект), Художественные проекты и цветочные композиции Блоки для лепки для школьных и детских художественных проектов DIY Квадратные блоки из пенополистирола EPS для моделирования поделок 12 блоков из пенопласта Silverlake 4x4x2 дюйма в упаковке . Я выбрал самые красивые антикварные иллюстрации. ** Серебряные тонкие полоски для галстука размером 35 мм x 5 мм (ОЧЕНЬ крошечные, Алхимия — это практика, которая включает в себя физическое. Я обязательно куплю снова, Большой кусок роскошного мыла легко помещается, Вы хотите, чтобы оно было красивым и темным.Пожалуйста, помните, что предметы, которые я продаю, являются винтажными и продаются как предметы коллекционирования, а не для их фактического использования. Эта пряжа производится в доме, где нет курения и домашних животных. Подарочная карта Конверт для денег Подарочный футляр для карты Денежный футляр Подарок, я решила попробовать свои силы в изготовлении отличных поло по доступной цене. Пожалуйста, напишите нам для индивидуального списка.
Эта цена распространяется только на этот баннер, показанный на картинке. Подбородочный ремень ION и настоящая стальная маска для лица. Яркость 300 люмен идеально подходит для кемпинга. Художественные проекты и цветочные композиции Скульптурные блоки для самостоятельного творчества Школьные и детские художественные проекты Квадратные блоки из полистирола EPS для моделирования поделок Набор из 12 пенопластовых блоков Silverlake размером 4x4x2 дюйма, который позволяет дистанционно управлять подключенными приборами. Вставьте заклепку в отверстие, которое проходит через оба соединяемых материала, 5-футовая кровать (с черным порошковым покрытием, 5 дюймов от колеса): подножки — ✓ БЕСПЛАТНАЯ ДОСТАВКА возможна при соответствующих покупках, он также имеет функцию защиты от кражи, ГАРАНТИЯ КАЧЕСТВА: изготовлен из высококачественного алюминия, устойчивого к коррозии. , что позволяет сделать ваши открытки и альбомы абсолютно уникальными. Развлекайтесь и наслаждайтесь ощущениями. В комплекте: 1 мужская флисовая куртка с капюшоном Columbia.
.Создайте нужное настроение с помощью этого стильного предмета от Newhouse Lighting, 8milake, 3/8-дюймового привода с 7/8-дюймовым (22 мм) смещенным гнездом датчика кислорода, из-за различных измерений. Описание товара Женские пуховые тапочки. Художественные проекты и цветочные композиции Скульптурные блоки для самостоятельного творчества Школьные и детские художественные проекты Квадратные блоки EPS из полистирола для моделирования рукоделия 12 блоков из пенопласта Silverlake 4x4x2 дюйма в упаковке .
Художественные проекты и цветочные композиции Блоки для лепки своими руками Школьные и детские художественные проекты Квадратные блоки из пенополистирола EPS для моделирования рукоделия 12 блоков из пенопласта Silverlake 4x4x2 дюйма в упаковке
Художественные проекты и цветочные композиции Скульптурные блоки для рукоделия Школьные и детские художественные проекты Квадратные блоки из пенополистирола EPS для моделирования рукоделия Набор из 12 пенопластовых блоков Silverlake 4x4x2 дюйма в упаковке
Нержавеющая сталь Мороженое Легкий совок Эргономичный для твердого мороженого Совок для мороженого, рождественские матрешки 5 шт.
Рождественская ручная роспись милые деревянные матрешки набор русских матрешек украшение дома Снеговик, ИМПОРТ СТОИТ 8836GR 36 металлическая палочка снеговика, декоративная подушка 16 × 16 дюймов Гора Гауссье и Ферма Святого Павла от Винсента Ван Гога Набор игл для гобеленов европейского качества.Набор из 2-100% натурального эко-необработанного дерева с толстыми краями и настоящим стеклом для настенного крепления и настольного дисплея Деревянная квадратная фоторамка 4×4, счастливая Пасха мультфильм 4 шт. / комплект занавеска для душа, наборы крышек для унитаза с нескользящим ковриком для ванной комнаты, Крючки, полиэстер, милый кролик, красочные пасхальные яйца, деревянные зеленые весенние фермы, забавные, 72×72 дюйма. Легкое пляжное одеяло 59 дюймов для детей и взрослых A MOUEI Фруктовый арбуз Круглое пляжное полотенце из микрофибры Супервпитывающее полотенце с кисточками, Художественные проекты и цветочные композиции Блоки для лепки для школьных и детских художественных проектов DIY Квадратные блоки из полистирола EPS для рукоделия Моделирование 12 пакетов Silverlake размером 4x4x2 дюйма Блок пенопласта для рукоделия .
1 Dritz 56645-9 Soft Bra-Back Repair White. Женские головные уборы, румяна, птичья клетка, шампанское, цветы, перо, женская свадебная вуаль, аксессуары для свадебных принадлежностей. 2 упаковки — розово-красные искусственные растения Haning Поддельные цветы шелковой розы Висячая гирлянда Ротанговая лоза плюща для свадьбы Украшение садовой стены, простота Креативные узоры New Look 6208 Misses Dress 8-10-12-14-16-18 A, пилотный дневник Силиконовая медовая соломка 4.5 Зеленый/Желтый/Красный с набором для резьбы по силиконовому воску. Наволочка 1 двойная плоская простыня Trolls World Tour Почувствуй музыку Комплект из 5 кроватей для близнецов с бонусной подушкой включает двустороннее двойное одеяло и 1 двойную простыню.Xmas Ornaments Керамические плоские круглые снежинки Santa Dog Airedale Custom Tree Branch Hanging Decoration для курортного сезона. Художественные проекты и цветочные композиции Скульптурные блоки для самостоятельного творчества Школьные и детские художественные проекты Квадратные блоки EPS из полистирола для моделирования рукоделия 12 блоков из пенопласта Silverlake 4x4x2 дюйма в упаковке .
Burgundy Glamburg 4 Pack Набор банных полотенец Полотенца для спортзала 27×54-600 GSM Роскошный отель Качество Ультрамягкие супервпитывающие полотенца для ванной комнаты 100% чесаный хлопок Большие банные полотенца,
Как построить природный бассейн — Новости Матери-Земли
Дуглас Бьюге и Вики Уланд объясняют, как построить естественный бассейн на своей усадьбе, включая информацию о зонировании бассейна, естественной фильтрации, герметизации бассейна и борьбе с водорослями.
AdobeStock/Нитаваев
Вода в бассейне должна постоянно циркулировать, чтобы корни растений очищали бассейн. Вам также может понадобиться аэрация воды, чтобы удовлетворить потребности водных организмов в кислороде.
Хотите ли вы попрактиковаться в погружениях с дельфинами или провести день на плоту, плавание — одно из лучших летних удовольствий.
С минимумом материалов и без арсенала химикатов вы можете построить идиллический водный оазис прямо у себя на заднем дворе и помешать знойным летним дням.
Природные бассейны (такие, как изображенный выше на заднем дворе австрийской семьи) довольно распространены в Европе, но в Соединенных Штатах они находятся в зачаточном состоянии. Попросите большинство американских подрядчиков по строительству бассейнов построить бассейн на заднем дворе, и, скорее всего, они представят длинный список товаров, включая арматуру, торкрет, стекловолокно, хлор и энергосберегающую систему фильтрации.Но в последние годы несколько строителей и все большее число домовладельцев научились строить бассейны, не полагаясь на массу промышленных материалов и химических добавок. Они обнаружили, что можно строить бассейны, которые больше связаны с природой и сливаются с природным ландшафтом. В природных бассейнах вместо бетона или стекловолокна используется гравий и глина, а вместо вредных химикатов и сложных механических систем фильтрации используются водные растения.
Растения обогащают бассейн кислородом, поддерживают полезные бактерии, которые потребляют мусор и потенциально вредные организмы, и дают среду обитания лягушкам, стрекозам и другим водным обитателям.В результате получается красивая, экологически разнообразная система, которую относительно недорого построить. (Природный бассейн можно построить всего за 2000 долларов, если вы сделаете это самостоятельно, в то время как обычные бассейны могут стоить десятки тысяч долларов.) Природные бассейны не требуют вредных химикатов, довольно низкотехнологичны, и после их создания требуется только немного управления. Вам не придется сливать воду из бассейна каждую осень. За исключением того, что вы время от времени доливаете его, вы наполните бассейн только один раз.
Dig It: Создание природного бассейна вручную
Самый дешевый и экологически безопасный способ построить бассейн — просто выкопать отверстие в земле.Вы можете сделать свой бассейн как мелким, так и глубоким, как хотите, но ключ в том, чтобы убедиться, что стороны наклонены: иначе почва провалится.
Соотношение должно составлять 1 фут по вертикали на каждые 3 горизонтальных фута. «Это не эффект ванны, а больше похоже на суповую тарелку», — говорит Том Зингаро, партнер компании Blue Lotus Designs из Денвера, занимающейся архитектурой бассейнов и прудов. Одна из основных причин, по которой традиционные плавательные бассейны строятся со стальным каркасом, заключается в том, чтобы стенки оставались вертикальными и перпендикулярными нижней поверхности бассейна.Постройте бассейн с наклонными стенками, и вы избавитесь от необходимости в стальной арматуре.
Зонирование вашего бассейна
Резервирование не менее 50 процентов площади поверхности вашего бассейна для мелководных растений либо на одном конце, либо в кольце по бокам устраняет необходимость в хлоре, дорогих фильтрах и насосах. Вы захотите отделить плавательную зону вашего бассейна от зоны фильтрации или растительной зоны (см. иллюстрацию в галерее изображений). Ободок в пределах дюйма от поверхности воды удерживает растения на своем месте, но позволяет воде из зоны плавания перемещаться в зону растений для фильтрации.
Когда вода проходит через волокнистую корневую структуру растений, бактерии, сосредоточенные на корнях растений, действуют. как биологический фильтр, удаляющий из воды загрязнения и избыток питательных веществ.Организмы-редуценты, также находящиеся в корневой зоне растений, поглощают бактерии, эффективно устраняя накопление подводных отходов.
Внутри зоны растений вода должна становиться все глубже, достигая максимальной глубины 18 дюймов возле зоны плавания. Самые внешние 6 дюймов зоны растений будут иметь глубину от 2 до 3 дюймов, обеспечивая дом для более высоких водных растений. Подводная и плавающая растительность занимает более глубокую часть.
Помимо очистки воды и красоты бассейна, мелководная зона с растениями быстро нагревает воду и обеспечивает среду обитания для лягушек и многих беспозвоночных.Они оценят мелководье как место размножения и отплатят за услугу поеданием личинок комаров.
Изображение предоставлено Биотоп
Тростник, осока и кувшинки не только создают красивую границу вокруг вашего естественного бассейна, но и делают воду прозрачной и чистой.
Естественная фильтрация бассейнов
Вода должна постоянно циркулировать, чтобы корни растений очищали бассейн. Вам также может понадобиться аэрация воды, чтобы удовлетворить потребности водных организмов в кислороде.(Без достаточного количества кислорода ваш бассейн может стать застойным, что приведет к появлению пахучих анаэробных бактерий.)
Вода может быть направлена от вашего насоса в зону растений с помощью труб из ПВХ. (Zingaro рекомендует использовать гибкий ПВХ в холодном климате.) В любом климате закопайте трубку в почву на глубину около 18 дюймов. Подводная аэрация, которая потребляет меньше энергии, чем построенные водопады, и обеспечивает более эффективную циркуляцию воды, включает рассеивание воздуха на дне бассейна. Вы можете построить свой собственный аэратор, используя воздушный компрессор (1/4 мощности для бассейна меньше акра) и высокопрочную трубку, которая соединяется с диффузором.Диффузор (см. «Источники оборудования для бассейнов» в конце этой статьи), который пропускает воздух через воду, находится в самой глубокой части бассейна, где пловцы вряд ли могут его повредить.
Подсоедините латунный коллектор к компрессору, чтобы регулировать подачу воздуха в бассейн. Дон Шунер из Inspired By Nature, компании по восстановлению прудов и озер из Огайо, предлагает аэрировать бассейн от четырех до восьми часов в день: утром, когда потребность в кислороде наибольшая, и снова вечером. Поместите аэратор, насос и скиммер в пластиковый контейнер, например, ведро или большой контейнер для растений, и положите сверху фильтрующий мат из стальной сетки, чтобы мусор не попал в ваше оборудование.Будьте готовы заплатить от 1000 до 1200 долларов за качественную подводную систему аэрации.
Некоторые люди используют скиммеры, подключенные к дополнительному небольшому насосу, для отсасывания плавающих нежелательных веществ. Хотя эти устройства не являются обязательными, вы можете подумать о их покупке, если листья или семена с близлежащих деревьев и кустарников могут засорить ваш бассейн. Скиммер удаляет детрит, который в противном случае опустился бы и способствовал росту водорослей.
Установка насосов и компрессоров может быть сложной задачей, поскольку электрические устройства используются рядом с водой или в воде. Вам потребуется подключить электрическое оборудование к домашнему источнику питания через подземный кабелепровод.Не подключайте питание через удлинитель. Наймите квалифицированного электрика, который обеспечит безопасность системы.
Изображение предоставлено Биотоп
Природные бассейны, в которых обитают лягушки, водомерки и стрекозы, — настоящая сокровищница ниш, которые дети любят исследовать.
Герметизация вашего природного бассейна
После того, как вы вырыли яму для бассейна и зоны растений, у вас есть несколько вариантов, в зависимости от ваших почвенных условий, чтобы убедиться, что бассейн удерживает воду: вы можете нанести слой бентонитовой глины, чтобы запечатать почву. или проложить синтетический вкладыш.Бентонит обычно является более дешевым вариантом, в среднем 35 центов за квадратный фут. Вкладыши могут стоить от 25 центов до 1 доллара за квадратный фут, в зависимости от их состава и веса.
Бентонит работает как клей, связывая частицы почвы и предотвращая просачивание воды из бассейна в землю. Некоторые почвы могут содержать достаточно глины, поэтому простое уплотнение дна пруда позволит ему удерживать воду. Поговорите с местными строителями прудов, чтобы узнать наверняка. Но будьте осторожны: бентонит плохо сцепляется с песчаной почвой.В частности, песчаная почва может потребовать до 12 фунтов бентонита на квадратный фут, в отличие от 6 фунтов в глинистой почве. Бентонит также может создавать проблемы, когда окружающая почва очень сухая. В засушливом климате Zingaro рекомендует наносить бентонит под пластиковый вкладыш, который имеет тканую или текстурированную основу. Этот вкладыш удерживает бентонит от смещения. В более влажном климате бентонит можно вносить непосредственно в почву. Перед обработкой бассейна бентонитом или любым другим глиняным порошком тщательно уплотните почву.Это можно сделать газонным катком или виброплитой. Затем, надев маску, распределите слой бентонитового порошка толщиной от 2 до 3 дюймов вдоль бортов и дна бассейна.
Утрамбуйте его трактором или виброплитой. Затем нанесите еще один фут качественного верхнего слоя почвы и снова уплотните.
Если вы выбираете вкладыш, выбирайте тот, который изготовлен из мономера этилен-пропилен-диена, а не из ПВХ. EPDM — это синтетический каучук, который в два раза дороже ПВХ, но он стоит дополнительных затрат. Обладает защитой от ультрафиолетовых лучей и, в отличие от ПВХ, остается гибким на морозе.Если в вашей почве много камней или корней, выберите вкладыш диаметром 45 или 60 мм. Вы можете использовать 30-миллиметровый вкладыш, если у вас очень песчаная и гладкая почва, и если вы и ваши гости вряд ли продырявите вкладыш, резвясь в бассейне. Перед укладкой лайнера уплотните дерн и покройте его слоем песка или абсорбирующего материала, например, старого коврового покрытия или газеты. Газета — хороший вариант: когда она намокнет, она приклеится к подкладке, обеспечивая дополнительную защиту, если в подкладке образуется небольшая дырка.
После того, как бентонитовая глина или облицовка установлены, покройте дно бассейна гравием толщиной от 4 до 5 дюймов.
Гравий обеспечивает среду обитания для полезных бактерий, которые помогают разлагать листья или другие природные материалы, которые оседают на дно вашего бассейна. Убедитесь, что вы используете чистый гравий. Наполните 5-галлонное ведро с краном небольшим количеством гравия, который вы собираетесь использовать. Откройте кран и пропустите воду через гравий. Если вода выходит грязной, вам нужно очистить гравий (сложный, расточительный процесс) или найти другой источник.Вспученные заполнители из ракушечника и другой искусственный гравий, скорее всего, будут достаточно чистыми, чтобы их можно было использовать в вашем природном бассейне. В дополнение к облицовке бассейна гравием многие люди предпочитают строить ступени из булыжника для входа и выхода из бассейна. Консольный причал, построенный над водой, также обеспечивает простой способ входа и выхода из бассейна, а также помогает защитить борта бассейна.
Чтобы обработать края вашего бассейна, используйте виброплиту по периметру.
Это поможет при эрозии почвы, но этого недостаточно, чтобы гарантировать, что грязь не попадет в ваш бассейн.Один из вариантов — окаймить периметр камнями, каменной плитой или деревянными досками. Еще лучше посадить рядом с краем и позволить растениям стабилизировать периметр, говорит Мартин Моско, главный архитектор Marpa and Associates, ландшафтной компании из Боулдера, штат Колорадо. Растения работают не только для закрепления почвы, но и создают естественную обстановку для старомодного эффекта плавательной дыры. Моско говорит, что если вы используете растения вместо камня, выбирайте растения, которые растут во влажной почве, или убедитесь, что уровень воды находится как минимум на фут ниже края бассейна, чтобы растения по периметру не заболачивались.
Строительство природных бассейнов: бетонные варианты
Если вы предпочитаете более традиционную форму бассейна, рассмотрите возможность строительства из цемента или блока Rastra, материала, изготовленного из цемента и переработанного пенопласта.
Менее экологичные, чем гравий и камень, эти системы все же могут снизить потребление химикатов и энергии за счет использования систем фильтрации на растительной основе, а не механических фильтров и хлора для очистки воды в бассейне.
Заливка бетонного бассейна может быть сложной задачей. Вы должны иметь правильную смесь и правильную плотность, чтобы предотвратить растрескивание.Из-за сложностей, связанных с заливкой бетона, Zingaro не советует строить бассейны из бетона своими руками. Если у вас есть опыт работы с бетоном, он предлагает следующие советы: используйте смесь портландцемента и песка в соотношении 4:1 и покройте уплотненный грунт волокнистой сеткой, резиновым вкладышем, старым ковровым покрытием или газетой, чтобы обеспечить стабильную устойчивость. поверхность для прилипания бетона. После того, как бетон залит, нанесите шпателем 1/8-дюймовый слой штукатурки, чтобы сделать бассейн водонепроницаемым, так как бетон пористый.
Альтернативой бетону является блок Rastra.
Эти блоки имеют длину 10 футов, высоту 15 или 30 дюймов и толщину 10 или 14 дюймов. Изготовленные из переработанного полистирола и цемента, они весят лишь долю бетона: два человека легко могут установить 10-футовые секции на место. Кентон Ноулз из Global Homes в Болдуин-Сити, штат Канзас, построил бассейн размером 16 × 32 фута из Rastra, затратив на материалы около 1600 долларов.
Чтобы построить бассейн из растра-блоков, выкопайте яму чуть больше, чем размеры бассейна, чтобы обеспечить достаточное рабочее пространство.Большинство людей предпочитают строить бассейн глубиной 5 футов. Для дна либо залейте бетонную плиту, либо покройте дно резиновым вкладышем. Затем выложите дно гравием. Обязательно установите дренаж и превентор обратного потока. Уложите одну секцию растрового блока по краям плиты, прикрепив растр к подкладке с помощью арматуры. Заполните полости блоков Растра бетоном. По мере того, как бетон течет от блока к блоку, конструкция связывается воедино. Между рядами и на всех стыках используется герметик из расширяющейся пены, чтобы удерживать блоки на месте.
Knowles рекомендует гидроизолировать блоки, нанося два слоя штукатурки. Засыпьте пространство между стенками бассейна и растровым блоком грунтом. Вы можете отделать периметр камнями, выложенными сверху блоков наружу в окружающее пространство, а можете вырастить растения до края блоков.
Изображение предоставлено Кентоном Ноулзом
№Из блоков Rasta из цемента и переработанного полистирола можно построить обычный бассейн с вертикальными стенками. Установите грядки с растениями по внешнему периметру, чтобы естественным образом фильтровать и очищать бассейн.
Подготовка к посадке вокруг природного бассейна
После того, как ваш бассейн будет построен, вам нужно будет подготовить зону растений с слоем почвы от 3 до 6 дюймов. Тщательно выбирайте почву, так как почва может содержать различные загрязняющие вещества. Избегайте сбора почвы в местах, где преобладают экскременты животных, например, на собачьих угодьях или на пастбищах. Выберите почву, свободную от органических веществ, которые будут гнить под водой.
Вы можете провести лабораторный анализ образцов почвы на наличие потенциально патогенных бактерий. Чтобы найти лабораторию в вашем районе, обратитесь в департамент здравоохранения вашего штата.как только почва, гравий и оборудование будут на месте, вы можете заполнить бассейн. Нарушайте почву как можно меньше и дайте бассейну отдохнуть в течение недели перед установкой растений. За это время вы можете протестировать свое оборудование, чтобы убедиться, что оно работает.
Выбор растений для вашего бассейна
Обязательно выбирайте растения, подходящие для вашего климата. Лучше всего приобретать растения у поставщика местных растений. Проверьте телефонную книгу и Интернет для местных источников. Домашние и садовые центры теперь также предлагают больше водных растений, поскольку пруды на заднем дворе становятся все более популярными.Распродажи в конце сезона помогут вам сэкономить. Несколько питомников по почте также специализируются на водных садовых растениях. (См. «Строительство и проектирование бассейнов».
)
Осока (Carex) и тростник (Scirpus), водные растения, создают прекрасную надводную растительность по периметру вашего бассейна. Вы также можете рассмотреть малый рогоз (Typha angustifolia) и водные ирисы, хотя обязательно спросите, какие сорта не будут переполнять другие растения. Пикерель (Pontederia cordata), стрелолист (Sagittaria) и водная примула (Ludwigia) — все это претенденты на самые мелкие участки вашего бассейна.Обязательно включите подводные растения, такие как обыкновенная водоросль (Элодея) и роголистник (Ceratophyllum) из-за их высокого выхода кислорода.
На глубине от 6 до 18 дюймов посадите смесь плавающих, подводных и надводных растений. Водяные лилии (кувшинки) приспосабливаются к любой глубине, поэтому используйте их широко. Плавающие виды, такие как рдесты (Potamogeton) и ряски обыкновенные (Lemna minor), свободно дрейфуют по поверхности и быстро покрывают поверхность растительной зоны.
Прежде чем строить планы поторопиться к ближайшему загородному пруду и собрать грузовик зелени, подождите! Прежде чем собирать одно растение из дикой природы, узнайте законы, защищающие водно-болотные угодья и их растения.
если вы собираете, будьте осторожны, чтобы гарантировать здоровье водно-болотных угодий, отбирая только несколько образцов из более крупных популяций. Рассмотрите вопрос о спасении растений с участка, находящегося под угрозой. Возможно, строительство новой корпоративной штаб-квартиры уничтожит вашу любимую лягушачью нору. Свяжитесь с компанией, чтобы узнать, позволит ли она вам спасти находящиеся под угрозой растения и, возможно, несколько амфибий.
После того, как вы купили растения, вы можете посадить их в заполненный бассейн. Придерживайтесь плана, группируя растения по высоте и типу.Поместите растения в почву, закрепив их большим количеством гравия.
Как контролировать водоросли в вашем природном бассейне
Владельцы прудов веками боролись с водорослями — могучей зеленой угрозой. Водоросли конкурируют с растениями за питательные вещества и свет, но весеннее цветение водорослей часто прекращается, как только водяные лилии и другие растения появляются, чтобы затенять воду.
Стимулируйте рост растений и сдерживайте рост водорослей, добавляя растения и удаляя фосфор для поддержания более низкого pH (от 5,5 до 6,5). Самое простое и наименее рискованное для вашей водной экосистемы средство — добавить больше растений, которые превзойдут водоросли в борьбе за питательные вещества.Второй вариант – контролировать бассейн на наличие фосфора. Удобрения и моча являются двумя основными источниками этого питательного вещества, поэтому убедитесь, что в вашем бассейне нет стоков, богатых питательными веществами, и напомните всем, что перед плаванием нужно сходить в туалет. Вы также можете увеличить график аэрации, чтобы стимулировать большую биологическую активность.
Ферменты, бактерии, кислоты и другие странные отвары были предложены в качестве чудодейственных средств против упрямых водорослей. Введение добавок в ваш бассейн может быть интересным научным экспериментом, но это не обязательно улучшит бассейн, в который вы вложили много времени и денег.Остерегайтесь продавцов, торгующих огромным разнообразием чудодейственных лекарств от водорослей.
Помните: ваш бассейн — это динамичная живая экосистема. Добавление синтетических химикатов, вероятно, не вернет баланс.
и
Изображение предоставлено Шерил Опперман
Этот бассейн с аккуратной каменной кладкой и изящным водопадом создает эффектный летний оазис в Касл-Рок, штат Колорадо.
Обслуживание природного бассейна
Удаление растительного мусора весной и осенью поможет продлить срок службы вашего природного бассейна.Поддерживайте постоянный уровень воды и будьте готовы добавлять воду по мере необходимости. недорогие тестовые наборы, доступные в садовых центрах, позволят вам контролировать уровень питательных веществ в вашем бассейне, предупреждая вас о проблемах.
Помимо поддержания биологического здоровья бассейна, ежегодно проверяйте механические системы. Протрите диффузоры уксусом, чтобы удалить отложения, проверьте воздушные шланги на наличие трещин и закупорок, осмотрите все соединения с насосами. Учитывая эти меры предосторожности, ваш бассейн должен радовать вас долгие годы.
Писатель и просветитель по вопросам окружающей среды Дуглас Бьюдж (Douglas Buege) — заядлый садовник и пчеловод. Внештатный писатель и редактор Вики Уланд писала о целостном образе жизни для различных изданий.
Вдохновились этой статьей на создание собственного природного бассейна? Поделитесь своей историей и классными фотографиями бассейна с МАТЕРИ: НОВОСТИ МАТЕРИ-ЗЕМЛИ ; Topeka, KS 66609 или по электронной почте: письма @ motherearthnews.com.
Естественная защита бассейна
Вы должны быть обеспокоены культивированием потенциальных патогенов в вашем бассейне? Хотя на самом деле водные растения не удаляют из воды все загрязняющие вещества, а бассейны, построенные из грязи, бетона или резины, не обязательно удерживают бактерии в страхе, вероятность заражения серьезным заболеванием в вашем естественном бассейне низка.Доктор Майкл Бич из Центров по контролю и профилактике заболеваний говорит, что даже бассейны, обработанные хлором, могут стать жертвами фекального колиформного загрязнения, которое вызывает такие проблемы, как криптоспоридиоз, паразит, который может вызывать диарею и желудочные спазмы.
Держите детей и домашних животных подальше от воды, чтобы не загрязнить бассейн фекальными кишечными палочками. Если вы не уверены в качестве воды в вашем природном бассейне, проверьте ее.
Источники оборудования для природных бассейнов
Аэрация
Вдохновленный природой
Испытания водой
Компания Hach
Фильтры 4х3О
Строительство и проектирование бассейнов
Biotop (Австрия)
Blue Lotus Outdoors
Global Homes Design
Журнал Water Gardening Magazine
Обновлено 29 декабря 2021 г. | Первоначально опубликовано 29 декабря 2020 г.
РОДСТВЕННЫЕ СТАТЬИ
Для изготовления системы фильтрации воды своими руками вам понадобятся более натуральные материалы, такие как песок и гравий или небольшие камни.
Заинтересованы в выращивании грибов дома? Метод PF Tek — это простой и эффективный способ выращивания шиитаке и вешенок.
Когда наступит зима, наш надежный резервуар для хранения на солнечных батареях сэкономит вам деньги на поении животных, а также время и усилия на колку льда.
РАЗНЫЙ ЛОТ — СМОТРЕТЬ ФОТО
Условия аукциона 1. ПОЛНАЯ ОПЛАТА ПРОИЗВОДИТСЯ В НАЗНАЧЕННУЮ ДАТУ/ВРЕМЯ ПОЛУЧЕНИЯ НАЛИЧНЫМИ ИЛИ КАРТОЙ A. ВСЕ ПРОДАЖИ РЕГУЛИРУЮТСЯ ЗАКОНОМ ШТАТА О НАЛОГЕ С ПРОДАЖ. B. ФОРМА ST-105 ОТ ДЕПАРТАМЕНТА ДОХОДОВ ИНДИАНЫ ДОЛЖНА БЫТЬ ЗАПОЛНЕНА ВО ВРЕМЯ РЕГИСТРАЦИИ, ИНАЧЕ С ПОКУПАТЕЛЯ БУДЕТ ПЛАТЕН НАЛОГ С ПРОДАЖ ШТАТА ИНДИАНА. 2. ОПЛАТА ПОЛНОСТЬЮ ПРОИЗВОДИТСЯ НАЛИЧНЫМИ, DISCOVER, AMERICAN EXPRESS, MASTERCARD ИЛИ VISA-DEBIT CARD.БЕЗ ПРОВЕРОК! 3. 15% ПРЕМИЯ ПОКУПАТЕЛЯ БУДЕТ ДОБАВЛЕНА КО ВСЕМ ПОКУПКАМ 4. ОТСУТСТВИЕ ГАРАНТИИ. ОПИСАНИЯ ТОВАРОВ, ПОЯВЛЯЕМЫЕ В КАТАЛОГАХ ИЛИ РЕКЛАМНЫХ ОБЪЯВЛЕНИЯХ ДО ЭТОЙ ПРОДАЖИ, СЧИТАЮТСЯ ПРАВИЛЬНЫМИ. ОДНАКО, НИ ЭТИ ОПИСАНИЯ, НИ ЛЮБОЕ УСТНОЕ ЗАЯВЛЕНИЕ, СДЕЛАННОЕ ВЛАДЕЛЬЦЕМ ИЛИ АУКЦИОННОЙ КОМПАНИЕЙ В ОТНОШЕНИИ КАКОГО-ЛИБО ПРЕДМЕТА, НЕ ДОЛЖНЫ РАССМАТРИВАТЬСЯ КАК ЯВНАЯ ИЛИ ПОДРАЗУМЕВАЕМАЯ ГАРАНТИЯ.
ТОВАР ПРОДАЕТСЯ «КАК ЕСТЬ, ГДЕ ЕСТЬ, СО ВСЕМИ ОШИБКАМИ».
5. ДАТА УДАЛЕНИЯ. ПОКУПАТЕЛЬ НЕСЕТ ОТВЕТСТВЕННОСТЬ ЗА УДАЛЕНИЕ СВОИХ СОБСТВЕННЫХ ТОВАРОВ. ПОКУПАТЕЛЬ ПРИНИМАЕТ НА СЕБЯ ВСЕ РИСКИ ПОТЕРИ И ПОВРЕЖДЕНИЯ ИМУЩЕСТВА, ДО ТОГО, КАК НЕ УДАЛЕТ ИЗ ПОМЕЩЕНИЯ ДЛЯ ПРОДАЖИ.ПОКУПАТЕЛЬ И АУКЦИОННАЯ КОМПАНИЯ СОГЛАШАЮТСЯ С ТЕМ, ЧТО ТОВАР МОЖЕТ ОСТАВАТЬСЯ В ТОРГОВЫХ ПОМЕЩЕНИЯХ В ПЕРИОД ВРЕМЕНИ ПОСЛЕ ПРОДАЖИ НА РИСК ПОКУПАТЕЛЯ. ДАТА, К КОТОРОЙ ВСЕ ТОВАРЫ ДОЛЖНЫ БЫТЬ УДАЛЕНЫ ИЗ ПОМЕЩЕНИЙ, БУДЕТ ОБЪЯВЛЕНА АУКЦИОННОЙ КОМПАНИЕЙ. УЧАСТНИК СОГЛАШАЕТСЯ ОПЛАЧИВАТЬ ЛЮБЫЕ ПЛАТЫ ЗА ХРАНЕНИЕ, ОЦЕНИВАЕМЫЕ АУКЦИОННОЙ КОМПАНИЕЙ, ЗА ЛЮБОЙ ТОВАР ИЛИ ПРЕДМЕТЫ, НЕ УДАЛЕННЫЕ УЧАСТНИКОМ ЗАКАЗЧИКА ДО КРАЙНЕГО СРОКА УДАЛЕНИЯ, ИЛИ ПОЛНОСТЬЮ ПОЛУЧИТЬ КОНФЕРЕНЦИЮ ТОВАРА, ЕСЛИ ПОМЕЩЕНИЯ НЕ ДОСТУПНЫ ПОСЛЕ НАЗНАЧЕННОГО ПЕРИОДА УДАЛЕНИЯ.
6. ПОЛУЧЕНИЕ.ПОКУПАТЕЛЮ БУДЕТ ПРЕДОСТАВЛЕНА КВИТАНЦИЯ ВО ВРЕМЯ ОПЛАТЫ. ЭТА КВИТАНЦИЯ ДОЛЖНА БЫТЬ ПОДТВЕРЖДЕНА КАССИРОВЩИКОМ, ПРЕЖДЕ ЧЕМ ПОКУПАТЕЛЬ БУДЕТ РАЗРЕШЕН УДАЛИТЬ ПОКУПКИ ИЗ ПРОДАЖИ.
7. ЗА УТЕРЯННЫЕ, ПОВРЕЖДЕННЫЕ ИЛИ УКРАЖДЕННЫЕ ТОВАРЫ ВОЗВРАТ ИЛИ РЕГУЛИРОВАНИЕ НЕ ПРЕДОСТАВЛЯЕТСЯ.
ВСЕ НАСТРОЙКИ ДОЛЖНЫ БЫТЬ ПОДТВЕРЖДЕНЫ РУКОВОДСТВОМ.
8. ПЕРЕПРОДАЖА. АУКЦИОННАЯ КОМПАНИЯ ОСТАВЛЯЕТ ЗА СОБОЙ ПРАВО ПЕРЕПРОДАТЬ ЛЮБУЮ СОБСТВЕННОСТЬ, НЕ ОПЛАЧЕННУЮ ПОЛНОСТЬЮ ИЛИ УДАЛЕННУЮ ДО ДАТЫ, УКАЗАННОЙ В ПЕРЕЧИСЛЕНИИ. МЫ НЕ ХРАНИМ ТОВАРЫ.
9. АУКЦИОННАЯ КОМПАНИЯ ОСТАВЛЯЕТ ЗА СОБОЙ ПРАВО ПОВТОРНО ОТКРЫТЬ И/ИЛИ ОТМЕНИТЬ ЛЮБУЮ СТАВКУ В СЛУЧАЕ СБОЯ СИСТЕМЫ.10. ПОСЛЕДНЯЯ ЗАЯВКА НА АУКЦИОНЕ ЯВЛЯЕТСЯ УСТНЫМ ДОГОВОРОМ И ИМЕЕТ ЮРИДИЧЕСКУЮ ОБЯЗАТЕЛЬНОСТЬ. ВСЕ ПРОДАЖИ ОКОНЧАТЕЛЬНЫ. ПОКУПАТЕЛЬ ПРИ РЕГИСТРАЦИИ СОГЛАШАЕТСЯ С УСЛОВИЯМИ НАСТОЯЩЕЙ ПРОДАЖИ.
11. ПРОВЕРКА УЧАСТНИКОВ РЕКОМЕНДУЕТСЯ. РАЗМЕЩАЯ СТАВКУ, УЧАСТНИК ПОДТВЕРЖДАЕТ, ЧТО ОНИ ПРОВЕРИЛИ ТОВАРЫ В СООТВЕТСТВИИ С ИХ УДОВЛЕТВОРЕНИЕМ ИЛИ РЕШИЛИ НЕ ПРОВЕРЯТЬ ТОВАРЫ ЛИЧНО.
12. АУКЦИОННАЯ КОМПАНИЯ/АУКЦИОНАТОР ОСТАВЛЯЕТ ЗА СОБОЙ ПРАВО ОТклонить ЛЮБУЮ ЗАЯВКУ ПО СВОЕМУ УСМОТРЕНИЮ.
13. ВСЕ ТОВАРЫ ДОЛЖНЫ БЫТЬ ОПЛАЧЕНЫ ПОЛНОСТЬЮ И ЗАБИРАТЬСЯ В НАЗНАЧЕННЫЕ ДАТУ И ВРЕМЯ ПОЛУЧЕНИЯ.ЛЮБЫЕ ТОВАРЫ, КОТОРЫЕ НЕ ЗАБРОНЫ ДО ЗАВЕРШЕНИЯ ДАТЫ И ВРЕМЕНИ ЗАБОРКИ, БУДУТ СЧИТАТЬСЯ УТВЕРЖДЕННЫМИ ДЛЯ АУКЦИОНА EARL.
СЧЕТА УЧАСТНИКОВ, НЕ ПЛАТЯЩИХ И НЕ ПОКАЗЫВАЮЩИХ, БУДУТ ЗАПРЕЩЕНЫ РЕГИСТРИРОВАТЬСЯ У НАС НА HIBID.
14. EARL’S AUCTION НЕ НЕСЕТ ОТВЕТСТВЕННОСТИ ЗА ВАШИ ПОКУПКИ. ПОКУПАТЕЛЬ ПРИНИМАЕТ НА СЕБЯ ОТВЕТСТВЕННОСТЬ И СОГЛАШАЕТСЯ ОБЕЗВРЕЖИВАТЬ АУКЦИОННУЮ КОМПАНИЮ EARL И ПРОДАВЦА ОТ ЛЮБЫХ БУДУЩИХ ПРЕТЕНЗИЙ, ОТНОСЯЩИХСЯ К ПРИОБРЕТЕННЫМ ТОВАРАМ.
15. КОМПАНИЯ EARL’S AUCTION НЕ НЕСЕТ ОТВЕТСТВЕННОСТИ ЗА ПРАВИЛЬНОЕ ОПИСАНИЕ, ПОДЛИННОСТЬ ИЛИ ДЕФЕКТЫ ЛЮБОЙ ПАРТИИ/ТОВАРА И НЕ ДАЕТ НИКАКИХ ГАРАНТИЙ.ВСЕ ТОВАРЫ ПРОДАЮТСЯ «КАК ЕСТЬ» БЕЗ ГАРАНТИЙ И ГАРАНТИЙ. ВСЕГДА СМОТРИТЕ НА ФОТОГРАФИИ СОСТОЯНИЯ И ВКЛЮЧЕНИЯ/ИСКЛЮЧЕНИЯ.
16. АУКЦИОН EARL НЕ ПРЕДЛАГАЕТ ДОСТАВКУ. УЧАСТНИКИ ЗА ПРЕДЕЛАМИ РЕГИСТРАЦИИ ИЗ ШТАТА БУДУТ АВТОМАТИЧЕСКИ ОТКАЗАНЫ.
17. ПРЕДМЕТЫ В КОРОБКАХ ПРОДАЮТСЯ КАК ЕСТЬ — МЫ НЕ МОЖЕМ ОТКРЫТЬ ВСЕ КОРОБКИ И СБОРАТЬ ИЗДЕЛИЯ, ЧТОБЫ ПРОВЕРИТЬ ВСЕ ЧАСТИ, ОЦЕНИТЬ НА ПОВРЕЖДЕНИЕ И Т.Д. ПОЖАЛУЙСТА, НЕ ДЕЛАЙТЕ СТАВКИ НА ЭТИ ТОВАРЫ, ЕСЛИ ВЫ НЕ ГОТОВЫ ПРИНЯТЬ РИСК ПОВРЕЖДЕНИЯ ТОВАРА/ОТСУТСТВИЯ ЧАСТЕЙ/Т.Д. НИКАКИЕ ВОЗВРАТЫ НЕ БУДЕТ ПРЕДОСТАВЛЕНЫ НА ЭТИ ДЕТАЛИ — ЗАЯВКА СООТВЕТСТВЕННО.
18. РЕГИСТРАЦИЯ И РАЗМЕЩЕНИЕ/ВЫИГР СТАВКИ БУДЕТ СЧИТАТЬСЯ ВАШЕЙ ЭЛЕКТРОННОЙ ПОДПИСЬЮ СОГЛАШЕНИЯ С ЭТИМИ УСЛОВИЯМИ И ПОЛОЖЕНИЯМИ. НИКАКИЕ ВОЗВРАТЫ, НИКАКИЕ СПОРЫ, НИКАКИЕ ВОЗВРАТЫ НЕ ДОПУСКАЮТСЯ. ВСЕ ТОВАРЫ ПРОДАЮТСЯ КАК ЕСТЬ И ОПИСЫВАЮТСЯ КАК ТАКИЕ.
19. В СИЛУ ОТ 24 января 2021 г.: В СВЯЗИ С УВЕЛИЧЕНИЕМ УЧАСТИЯ БЕЗПЛАТНЫХ УЧАСТНИКОВ ОТ НОВЫХ УЧАСТНИКОВ МОЖЕТ ПОТРЕБОВАТЬСЯ ПРЕДОСТАВЛЕНИЕ ДОПОЛНИТЕЛЬНОЙ ИНФОРМАЦИИ, ЧТОБЫ БЫТЬ УТВЕРЖДЕНО ДЛЯ УЧАСТИЯ В ТОРГАХ. ДЛЯ ЭТОГО УТВЕРЖДЕНИЯ МОЖЕТ ПОТРЕБОВАТЬСЯ ОДИН ИЛИ НЕСКОЛЬКО ИЗ СЛЕДУЮЩИХ УСЛОВИЙ: ТЕЛЕФОННЫЙ ЗВОНОК ДЛЯ ПОДТВЕРЖДЕНИЯ ИНФОРМАЦИИ, КОПИЯ ВОДИТЕЛЬСКИХ ПРАВ, ПОДТВЕРЖДЕНИЕ ЭЛЕКТРОННОЙ ПОЧТЫ И Т.Д.МЫ РЕКОМЕНДУЕМ ЗАРЕГИСТРИРОВАТЬСЯ И РАЗМЕСТИТЬ ВАШУ ПЕРВУЮ СТАВКУ ЗАРАНЕЕ, ЧТОБЫ УТВЕРЖДИТЬ ВАС УТВЕРЖДЕНИЕ СТАВКИ ДО ЗАКРЫТИЯ АУКЦИОНА. ВСЕ РЕГИСТРАЦИИ ТЕПЕРЬ БУДУТ УТВЕРЖДАТЬСЯ ВРУЧНУЮ АУКЦИОННОЙ КОМПАНИЕЙ (ВКЛЮЧАЯ ПЕРВУЮ СТАВКУ). ВЫ ДОЛЖНЫ ОТВЕЧАТЬ НА РЕГИСТРАЦИОННОЕ ПИСЬМО, ЧТОБЫ БЫТЬ УТВЕРЖДЕНО ДЛЯ СТАВКИ. МЫ НЕ НЕСЕМ ОТВЕТСТВЕННОСТИ ЗА ПРОПУЩЕННЫЕ СТАВКИ.
———————————————————— —— ————————————- Условия использованияУсловия пользователя продавцаУсловия пользователя участника торговРАЗНЫЙ ЛОТ — СМОТРЕТЬ ФОТО
Условия аукциона 1.ПОЛНАЯ ОПЛАТА ПРОИЗВОДИТСЯ В НАЗНАЧЕННУЮ ДАТУ/ВРЕМЯ ПОЛУЧЕНИЯ НАЛИЧНЫМИ ИЛИ КАРТОЙ A. ВСЕ ПРОДАЖИ РЕГУЛИРУЮТСЯ ЗАКОНОМ ШТАТА О НАЛОГЕ С ПРОДАЖ. B. ФОРМА ST-105 ОТ ДЕПАРТАМЕНТА ДОХОДОВ ИНДИАНЫ ДОЛЖНА БЫТЬ ЗАПОЛНЕНА ВО ВРЕМЯ РЕГИСТРАЦИИ, ИНАЧЕ С ПОКУПАТЕЛЯ БУДЕТ ПЛАТЕН НАЛОГ С ПРОДАЖ ШТАТА ИНДИАНА. 2. ОПЛАТА ПОЛНОСТЬЮ ПРОИЗВОДИТСЯ НАЛИЧНЫМИ, DISCOVER, AMERICAN EXPRESS, MASTERCARD ИЛИ VISA-DEBIT CARD. БЕЗ ПРОВЕРОК! 3. 15% ПРЕМИЯ ПОКУПАТЕЛЯ БУДЕТ ДОБАВЛЕНА КО ВСЕМ ПОКУПКАМ 4. ОТСУТСТВИЕ ГАРАНТИИ. ОПИСАНИЯ ТОВАРОВ, ПОЯВЛЯЕМЫЕ В КАТАЛОГАХ ИЛИ РЕКЛАМНЫХ ОБЪЯВЛЕНИЯХ ДО ЭТОЙ ПРОДАЖИ, СЧИТАЮТСЯ ПРАВИЛЬНЫМИ.ОДНАКО, НИ ЭТИ ОПИСАНИЯ, НИ ЛЮБОЕ УСТНОЕ ЗАЯВЛЕНИЕ, СДЕЛАННОЕ ВЛАДЕЛЬЦЕМ ИЛИ АУКЦИОННОЙ КОМПАНИЕЙ В ОТНОШЕНИИ КАКОГО-ЛИБО ПРЕДМЕТА, НЕ ДОЛЖНЫ РАССМАТРИВАТЬСЯ КАК ЯВНАЯ ИЛИ ПОДРАЗУМЕВАЕМАЯ ГАРАНТИЯ.
ТОВАР ПРОДАЕТСЯ «КАК ЕСТЬ, ГДЕ ЕСТЬ, СО ВСЕМИ ОШИБКАМИ».
5. ДАТА УДАЛЕНИЯ. ПОКУПАТЕЛЬ НЕСЕТ ОТВЕТСТВЕННОСТЬ ЗА УДАЛЕНИЕ СВОИХ СОБСТВЕННЫХ ТОВАРОВ. ПОКУПАТЕЛЬ ПРИНИМАЕТ НА СЕБЯ ВСЕ РИСКИ ПОТЕРИ И ПОВРЕЖДЕНИЯ ИМУЩЕСТВА, ДО ТОГО, КАК НЕ УДАЛЕТ ИЗ ПОМЕЩЕНИЯ ДЛЯ ПРОДАЖИ. ПОКУПАТЕЛЬ И АУКЦИОННАЯ КОМПАНИЯ СОГЛАШАЮТСЯ С ТЕМ, ЧТО ТОВАР МОЖЕТ ОСТАВАТЬСЯ В ТОРГОВЫХ ПОМЕЩЕНИЯХ В ПЕРИОД ВРЕМЕНИ ПОСЛЕ ПРОДАЖИ НА РИСК ПОКУПАТЕЛЯ.ДАТА, К КОТОРОЙ ВСЕ ТОВАРЫ ДОЛЖНЫ БЫТЬ УДАЛЕНЫ ИЗ ПОМЕЩЕНИЙ, БУДЕТ ОБЪЯВЛЕНА АУКЦИОННОЙ КОМПАНИЕЙ. УЧАСТНИК СОГЛАШАЕТСЯ ОПЛАЧИВАТЬ ЛЮБЫЕ ПЛАТЫ ЗА ХРАНЕНИЕ, ОЦЕНИВАЕМЫЕ АУКЦИОННОЙ КОМПАНИЕЙ, ЗА ЛЮБОЙ ТОВАР ИЛИ ПРЕДМЕТЫ, НЕ УДАЛЕННЫЕ УЧАСТНИКОМ ЗАКАЗЧИКА ДО КРАЙНЕГО СРОКА УДАЛЕНИЯ, ИЛИ ПОЛНОСТЬЮ ПОЛУЧИТЬ КОНФЕРЕНЦИЮ ТОВАРА, ЕСЛИ ПОМЕЩЕНИЯ НЕ ДОСТУПНЫ ПОСЛЕ НАЗНАЧЕННОГО ПЕРИОДА УДАЛЕНИЯ.
6. ПОЛУЧЕНИЕ. ПОКУПАТЕЛЮ БУДЕТ ПРЕДОСТАВЛЕНА КВИТАНЦИЯ ВО ВРЕМЯ ОПЛАТЫ. ЭТА КВИТАНЦИЯ ДОЛЖНА БЫТЬ ПОДТВЕРЖДЕНА КАССИРОВЩИКОМ, ПРЕЖДЕ ЧЕМ ПОКУПАТЕЛЬ БУДЕТ РАЗРЕШЕН УДАЛИТЬ ПОКУПКИ ИЗ ПРОДАЖИ.7. ЗА УТЕРЯННЫЕ ИЛИ УКРАДЕННЫЕ ТОВАРЫ ВОЗВРАТ ИЛИ РЕГУЛИРОВАНИЕ НЕ ПРЕДОСТАВЛЯЕТСЯ.
ВСЕ НАСТРОЙКИ ДОЛЖНЫ БЫТЬ ПОДТВЕРЖДЕНЫ РУКОВОДСТВОМ.
8. ПЕРЕПРОДАЖА. АУКЦИОННАЯ КОМПАНИЯ ОСТАВЛЯЕТ ЗА СОБОЙ ПРАВО ПЕРЕПРОДАТЬ ЛЮБУЮ СОБСТВЕННОСТЬ, НЕ ОПЛАЧЕННУЮ ПОЛНОСТЬЮ ИЛИ УДАЛЕННУЮ ДО ДАТЫ, УКАЗАННОЙ В ПЕРЕЧИСЛЕНИИ. МЫ НЕ ХРАНИМ ТОВАРЫ.
9. АУКЦИОННАЯ КОМПАНИЯ ОСТАВЛЯЕТ ЗА СОБОЙ ПРАВО ПОВТОРНО ОТКРЫТЬ И/ИЛИ ОТМЕНИТЬ ЛЮБОЙ АУКЦИОН В СЛУЧАЕ СБОЯ СИСТЕМЫ.
10. ПОСЛЕДНЯЯ ЗАЯВКА НА АУКЦИОНЕ ЯВЛЯЕТСЯ УСТНЫМ ДОГОВОРОМ И ИМЕЕТ ЮРИДИЧЕСКУЮ ОБЯЗАТЕЛЬНОСТЬ. ВСЕ ПРОДАЖИ ОКОНЧАТЕЛЬНЫ. ПОКУПАТЕЛЬ ПРИ РЕГИСТРАЦИИ СОГЛАШАЕТСЯ С УСЛОВИЯМИ НАСТОЯЩЕЙ ПРОДАЖИ.11. ПРОВЕРКА УЧАСТНИКОВ РЕКОМЕНДУЕТСЯ. РАЗМЕЩАЯ СТАВКУ, УЧАСТНИК ПОДТВЕРЖДАЕТ, ЧТО ОНИ ПРОВЕРИЛИ ТОВАРЫ В СООТВЕТСТВИИ С ИХ УДОВЛЕТВОРЕНИЕМ ИЛИ РЕШИЛИ НЕ ПРОВЕРЯТЬ ТОВАРЫ ЛИЧНО.
12. АУКЦИОННАЯ КОМПАНИЯ/АУКЦИОНАТОР ОСТАВЛЯЕТ ЗА СОБОЙ ПРАВО ОТклонить ЛЮБУЮ ЗАЯВКУ ПО СВОЕМУ УСМОТРЕНИЮ.
13. ВСЕ ТОВАРЫ ДОЛЖНЫ БЫТЬ ОПЛАЧЕНЫ ПОЛНОСТЬЮ И ЗАБРАНЫ В ОТВЕТСТВЕННОЕ ВРЕМЯ ПОСЛЕ ОКОНЧАНИЯ АУКЦИОНА. ЛЮБЫЕ ТОВАРЫ, КОТОРЫЕ НЕ ЗАБРОНЫ К КОНЦЕ ДАТЫ И ВРЕМЕНИ ЗАБОРКИ, БУДУТ ОТДАНЫ НА АУКЦИОНЕ EARL, И С КАРТЫ, ПРЕДОСТАВЛЕННОЙ HIBID ПРИ РЕГИСТРАЦИИ, БУДЕТ ВЗЯТА ПОЛНАЯ СУММА, И ПОКУПАТЕЛЬ НЕ ПОЛУЧИТ ВОЗВРАТ СРЕДСТВ, ТАК КАК ТОВАРЫ СЧИТАЕТСЯ КОНФИДЕНЦИАЛЬНЫМ.

Если вы решили включить его в проект, придется ставить перегородку и переносить двери.
Если вы решили включить его в проект, придется ставить перегородку и переносить двери.
Если вы решили включить его в проект, придется ставить перегородку и переносить двери.