ΡΠ΅ΡΡΠ΅ΠΆ, ΡΠ°Π·ΠΌΠ΅ΡΡ, ΡΠΎΡΠΎ ΠΈ Π²ΠΈΠ΄Π΅ΠΎ
ΠΠΎΠΌΠ°ΡΠ½Π΅Π΅ ΠΊΠΎΠΏΡΠ΅Π½ΠΈΠ΅ ΡΡΠ°Π½ΠΎΠ²ΠΈΡΡΡ Π²ΡΠ΅ Π±ΠΎΠ»Π΅Π΅ ΠΏΠΎΠΏΡΠ»ΡΡΠ½ΡΠΌ ΡΡΠ΅Π΄ΠΈ ΠΎΠ±ΡΡΠ½ΡΡ Π»ΡΠ΄Π΅ΠΉ. ΠΠ΅Π΄Ρ ΡΡΠΎ ΠΈ Π½Π΅ ΡΠ΄ΠΈΠ²ΠΈΡΠ΅Π»ΡΠ½ΠΎ. ΠΠΎΡΠΎΠ²Π°Ρ ΠΏΡΠΎΠ΄ΡΠΊΡΠΈΡ ΠΏΡΠΈ Π΄ΠΎΠ»ΠΆΠ½ΠΎΠΌ ΠΎΠΏΡΡΠ΅ Π½Π΅ ΠΈΠ΄Π΅Ρ Π½ΠΈ Π² ΠΊΠ°ΠΊΠΎΠ΅ ΡΡΠ°Π²Π½Π΅Π½ΠΈΠ΅ Ρ ΠΌΠ°Π³Π°Π·ΠΈΠ½Π½ΡΠΌΠΈ ΠΈΠ»ΠΈ Π·Π°Π»Π΅ΠΆΠ°Π²ΡΠΈΠΌΠΈΡΡ Π±Π°Π·Π°ΡΠ½ΡΠΌΠΈ ΠΊΠΎΠΏΡΠ΅Π½ΠΎΡΡΡΠΌΠΈ. ΠΡΠΎΠΌΠ΅ ΡΠΎΠ³ΠΎ, ΡΡΠΎ ΠΎΡΡΡΠΈΠΌΠ°Ρ ΡΠΊΠΎΠ½ΠΎΠΌΠΈΡ. ΠΡ Π²ΠΊΠ»Π°Π΄ΡΠ²Π°Π΅ΡΠ΅ ΡΠΎΠ»ΡΠΊΠΎ Π² ΡΠ°ΠΌΠΎ ΠΌΡΡΠΎ ΠΈ ΡΠ΅ΠΏΡ, Π΅ΡΠ»ΠΈ Π΅Π΅ Π½Π΅Π³Π΄Π΅ Π½Π°ΡΡΡΡΠ³Π°ΡΡ ΡΠ°ΠΌΠΎΡΡΠΎΡΡΠ΅Π»ΡΠ½ΠΎ. ΠΠΎΠ»ΡΡΠ°Π΅ΡΠ΅ ΠΆΠ΅ Π²Π·Π°ΠΌΠ΅Π½ ΠΎΠ³ΡΠΎΠΌΠ½ΠΎΠ΅ ΠΌΠ½ΠΎΠΆΠ΅ΡΡΠ²ΠΎ Π²Π°ΡΠΈΠ°Π½ΡΠΎΠ² ΠΏΡΠΈΠ³ΠΎΡΠΎΠ²Π»Π΅Π½ΠΈΡ ΠΎΡ ΠΎΠ±ΡΡΠ½ΠΎΠ³ΠΎ ΡΠ°Π»Π°, ΡΡΠ±Ρ, ΠΏΡΠΈΡΡ ΠΈ ΠΌΡΡΠ°, Π΄ΠΎ ΠΊΠΎΠ»Π±Π°Ρ.
ΠΠΎΠ»ΡΡΠΈΠΌ ΠΏΡΠ΅ΠΈΠΌΡΡΠ΅ΡΡΠ²ΠΎΠΌ ΠΊΠΎΠΏΡΠ΅Π½ΠΈΡ Π² Π΄ΠΎΠΌΠ°ΡΠ½ΠΈΡ
 ΡΡΠ»ΠΎΠ²ΠΈΡΡ
 ΡΠ²Π»ΡΠ΅ΡΡΡ Π½Π΅ΠΏΡΠΈΡ
ΠΎΡΠ»ΠΈΠ²ΠΎΡΡΡ ΠΊ Π΅ΠΌΠΊΠΎΡΡΠΈ, Π² ΠΊΠΎΡΠΎΡΠΎΠΉ ΠΏΡΠΎΠΈΡΡ
ΠΎΠ΄ΠΈΡ Π΄Π°Π½Π½ΡΠΉ ΠΏΡΠΎΡΠ΅ΡΡ. Π’ΡΡ ΠΈ Π΄Π°Π»ΡΡΠ΅ ΡΠ°ΡΡΠΌΠ°ΡΡΠΈΠ²Π°Π΅ΠΌ ΡΠΎΠ»ΡΠΊΠΎ Π³ΠΎΡΡΡΠ΅Π΅ ΠΊΠΎΠΏΡΠ΅Π½ΠΈΠ΅, ΠΏΠΎΡΠΎΠΌΡ ΡΡΠΎ Ρ
ΠΎΠ»ΠΎΠ΄Π½ΠΎΠ΅ β ΠΎΡΠ΄Π΅Π»ΡΠ½Π°Ρ Π±ΠΎΠ»ΡΡΠ°Ρ ΡΠ΅ΠΌΠ°. ΠΠΎΠ΄ ΡΡΠΈ Π½ΡΠΆΠ½Ρ ΡΠ°ΡΡΠΎ ΠΈΡΠΏΠΎΠ»ΡΠ·ΡΡΡ Π±ΠΎΡΠΊΡ, Π²ΡΠ²Π°ΡΠΊΡ, Π³Π°Π·ΠΎΠ²ΡΠ΅ Π±Π°Π»Π»ΠΎΠ½Ρ, Π΄Π°ΠΆΠ΅ Π²Π΅Π΄ΡΠ° ΠΈ ΠΊΠ°ΡΡΡΡΠ»ΠΈ. ΠΡΠ½Π΅ΡΠ΅ΠΌ ΠΈΡ
 ΠΊ ΠΏΠΎΠ΄ΡΡΡΠ½ΡΠΌ ΡΡΠ΅Π΄ΡΡΠ²Π°ΠΌ, ΠΈΠ·Π³ΠΎΡΠΎΠ²Π»Π΅Π½ΠΈΠ΅ ΠΊΠΎΡΠΎΡΡΡ
 Π½Π΅ ΡΡΠ΅Π±ΡΠ΅Ρ ΠΎΡΠΎΠ±ΡΡ
 Π½ΡΠ°Π½ΡΠΎΠ². ΠΡ ΠΆΠ΅ ΡΠ°ΡΡΠΌΠΎΡΡΠΈΠΌ ΡΠΎΠ²ΡΠ΅ΠΌΠ΅Π½Π½ΡΡ ΠΊΠΎΠΌΠΌΠ΅ΡΡΠ΅ΡΠΊΡΡ ΠΊΠΎΠ½ΡΡΡΡΠΊΡΠΈΡ ΠΊΠΎΠΏΡΠΈΠ»ΡΠ½ΠΈ Ρ ΡΠ΅ΡΡΠ΅ΠΆΠΎΠΌ. ΠΠ½Π° ΠΏΠΎΠ·Π²ΠΎΠ»ΡΠ΅Ρ Π·Π°Π½ΠΈΠΌΠ°ΡΡΡΡ ΠΊΠΎΠΏΡΠ΅Π½ΠΈΠ΅ΠΌ Π½Π° ΡΠ»ΠΈΡΠ΅, Π±ΡΠ°ΡΡ Ρ ΡΠΎΠ±ΠΎΠΉ Π½Π° ΠΏΡΠΈΡΠΎΠ΄Ρ ΠΈ Π΄Π°ΠΆΠ΅ Π³ΠΎΡΠΎΠ²ΠΈΡΡ Ρ ΡΠ΅Π±Ρ Π½Π° ΠΊΡΡ
Π½Π΅ Π² ΠΌΠ½ΠΎΠ³ΠΎΡΡΠ°ΠΆΠ½ΠΎΠΌ Π΄ΠΎΠΌΠ΅.
Π‘ΠΎΠ΄Π΅ΡΠΆΠ°Π½ΠΈΠ΅:
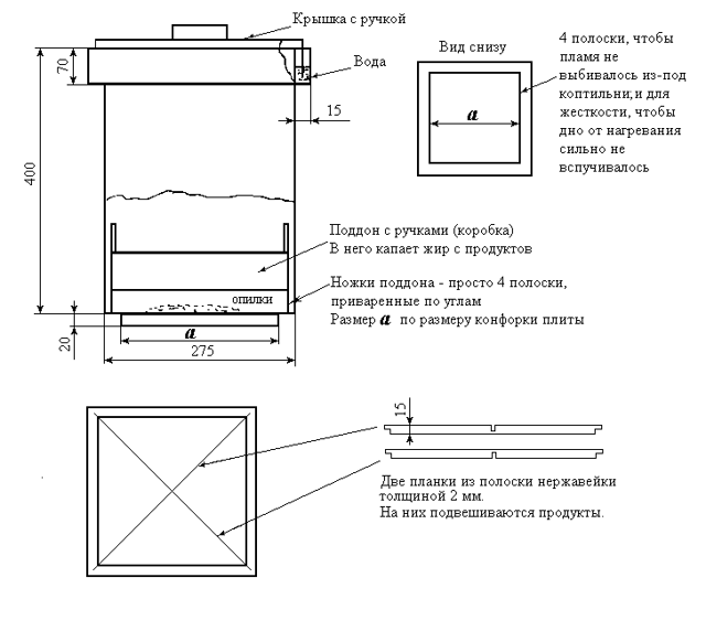
Π£ΡΡΡΠΎΠΉΡΡΠ²ΠΎ ΠΊΠΎΠΏΡΠΈΠ»ΡΠ½ΠΈ Π³ΠΎΡΡΡΠ΅Π³ΠΎ ΠΊΠΎΠΏΡΠ΅Π½ΠΈΡ
ΠΡΠΎ ΡΡΠ°Π»ΠΊΠΈΠ²Π°Π΅ΡΡΡ Π²ΠΏΠ΅ΡΠ²ΡΠ΅ Π΄ΠΎ ΠΊΠΎΠ½ΡΠ° Π½Π΅ ΠΏΠΎΠ½ΠΈΠΌΠ°Π΅Ρ, ΠΊΠ°ΠΊ ΡΡΡΡΠΎΠ΅Π½ΠΈΡ ΠΊΠΎΠΏΡΠΈΠ»ΡΠ½Ρ Π³ΠΎΡΡΡΠ΅Π³ΠΎ ΠΊΠΎΠΏΡΠ΅Π½ΠΈΡ. ΠΠ°Π²Π°ΠΉΡΠ΅ Π΄Π»Ρ Π½Π°ΡΠ°Π»Π° ΡΠ°Π·Π±Π΅ΡΠ΅ΠΌ ΡΡΠΎΡ Π²ΠΎΠΏΡΠΎΡ, ΡΡΠΎΠ±Ρ Π² Π±ΡΠ΄ΡΡΠ΅ΠΌ Π±ΡΠ»ΠΎ Π»Π΅Π³ΡΠ΅ ΡΠ΄Π΅Π»Π°ΡΡ Π΅Π΅ ΡΠ°ΠΌΠΎΡΡΠΎΡΡΠ΅Π»ΡΠ½ΠΎ.
- ΠΠΎΠΏΡΠΈΠ»ΡΠ½Π°Ρ ΠΊΠ°ΠΌΠ΅ΡΠ° — ΡΡΠΎ ΡΡΠΈΠΊ ΠΏΡΡΠΌΠΎΡΠ³ΠΎΠ»ΡΠ½ΠΎΠΉ ΠΈΠ»ΠΈ ΠΊΠ²Π°Π΄ΡΠ°ΡΠ½ΠΎΠΉ ΡΠΎΡΠΌΡ. Π’Π°ΠΊΠΆΠ΅ ΠΌΠΎΠΆΠ΅Ρ Π±ΡΡΡ ΡΠΈΠ»ΠΈΠ½Π΄ΡΠΈΡΠ΅ΡΠΊΠΎΠΉ. Π Π²Π΅ΡΡ Π½Π΅ΠΉ Π΅Π³ΠΎ ΡΠ°ΡΡΠΈ ΡΠ°ΡΠΏΠΎΠ»Π°Π³Π°Π΅ΡΡΡ ΠΆΠ΅Π»ΠΎΠ±, Π²ΡΠΏΠΎΠ»Π½ΡΡΡΠΈΠΉ ΡΡΠ½ΠΊΡΠΈΠΈ Π³ΠΈΠ΄ΡΠΎΠ·Π°ΡΠ²ΠΎΡΠ° ΠΈ ΡΠΏΠΎΡΠ° Π΄Π»Ρ ΠΊΡΡΡΠΊΠΈ. Π‘ Π½Π°ΡΡΠΆΠ½ΠΎΠΉ ΡΠ°ΡΡΠΈ ΠΌΠΎΠΆΠ΅Ρ ΠΈΠΌΠ΅ΡΡ ΡΡΡΠΊΠΈ Π΄Π»Ρ ΡΠ΄ΠΎΠ±Π½ΠΎΠ³ΠΎ ΠΏΠ΅ΡΠ΅Π½ΠΎΡΠ°.
- ΠΠΈΠ΄ΡΠΎΠ·Π°ΡΠ²ΠΎΡ Π² ΠΊΠΎΠΏΡΠΈΠ»ΡΠ½Π΅ Π·Π°ΠΏΠΎΠ»Π½ΡΠ΅ΡΡΡ ΠΎΠ±ΡΠΊΠ½ΠΎΠ²Π΅Π½Π½ΡΠΉ Π²ΠΎΠ΄ΠΎΠΉ. ΠΠ½Π° Π³Π΅ΡΠΌΠ΅ΡΠΈΠ·ΠΈΡΡΠ΅Ρ ΡΡΡΠΊ, ΡΠ΅ΡΠ΅Π· ΠΊΠΎΡΠΎΡΡΠΉ Π½Π΅ ΠΌΠΎΠΆΠ΅Ρ Π²ΡΠΉΡΠΈ Π΄ΡΠΌ.
- ΠΡΡΡΠΊΠ° Π·Π°ΠΊΡΡΠ²Π°Π΅Ρ ΠΊΠΎΠΏΡΠΈΠ»ΡΠ½Ρ Π΄Π»Ρ ΡΠ΄Π΅ΡΠΆΠ°Π½ΠΈΡ Π±ΠΎΠ»ΡΡΠ΅ΠΉ ΡΠ°ΡΡΠΈ Π΄ΡΠΌΠ° Π²Π½ΡΡΡΠΈ ΠΊΠ°ΠΌΠ΅ΡΡ, Π·Π° ΡΡΠ΅Ρ ΡΠ΅Π³ΠΎ ΠΏΡΠΎΠ΄ΡΠΊΡ Π½Π°ΡΠ½Π΅Ρ ΠΈΠΌ ΠΏΡΠΎΠΏΠΈΡΡΠ²Π°ΡΡΡΡ.
- Π’ΡΡΠ±ΠΊΠ° (ΠΏΠ°ΡΡΡΠ±ΠΎΠΊ, ΡΠ°ΠΏΡΠ½) Π½ΡΠΆΠ΅Π½ Π΄Π»Ρ ΠΎΡΠ²ΠΎΠ΄Π° ΠΈΠ·Π»ΠΈΡΠΊΠΎΠ² Π΄ΡΠΌΠ° ΡΠ΅ΡΠ΅Π· ΠΊΡΡΡΠΊΡ. ΠΠ° Π½Π΅Π΅ Π² Π΄ΠΎΠΌΠ°ΡΠ½ΠΈΡ
 ΡΡΠ»ΠΎΠ²ΠΈΡΡ
 ΠΎΠ΄Π΅Π²Π°Π΅ΡΡΡ ΡΠ»Π°Π½Π³, ΠΊΠΎΡΠΎΡΡΠΉ Π΄ΡΡΠ³ΠΈΠΌ ΠΊΠΎΠ½ΡΠΎΠΌ Π²ΡΠ²ΠΎΠ΄ΡΡ Π² Π²Π΅Π½ΡΠΈΠ»ΡΡΠΈΡ ΠΈΠ»ΠΈ ΠΎΠΊΠ½ΠΎ. ΠΠ° Π½Π΅Π΅ Π² Π΄ΠΎΠΌΠ°ΡΠ½ΠΈΡ
 ΡΡΠ»ΠΎΠ²ΠΈΡΡ
 ΠΎΠ΄Π΅Π²Π°Π΅ΡΡΡ ΡΠ»Π°Π½Π³, ΠΊΠΎΡΠΎΡΡΠΉ Π΄ΡΡΠ³ΠΈΠΌ ΠΊΠΎΠ½ΡΠΎΠΌ Π²ΡΠ²ΠΎΠ΄ΡΡ Π² Π²Π΅Π½ΡΠΈΠ»ΡΡΠΈΡ ΠΈΠ»ΠΈ ΠΎΠΊΠ½ΠΎ.
- Π’Π΅ΡΠΌΠΎΠΌΠ΅ΡΡ ΡΡΡΠ°Π½Π°Π²Π»ΠΈΠ²Π°Π΅ΡΡΡ ΠΎΠΏΡΠΈΠΎΠ½Π°Π»ΡΠ½ΠΎ Π΄Π»Ρ Π²ΠΈΠ·ΡΠ°Π»ΡΠ½ΠΎΠΉ ΠΎΡΠ΅Π½ΠΊΠΈ ΡΠΊΠΎΡΠΎΡΡΠΈ ΠΏΡΠΈΡΠΎΡΡΠ° ΡΠ΅ΠΌΠΏΠ΅ΡΠ°ΡΡΡΡ ΠΈ Π΅Π³ΠΎ ΠΌΠ°ΠΊΡΠΈΠΌΠ°Π»ΡΠ½ΠΎΠ³ΠΎ Π·Π½Π°ΡΠ΅Π½ΠΈΡ. ΠΠ°Π΅Ρ Π²Π΅ΡΡΠΌΠ° ΠΎΡΠ½ΠΎΡΠΈΡΠ΅Π»ΡΠ½ΡΠ΅ ΠΏΠΎΠΊΠ°Π·Π°Π½ΠΈΡ.
- ΠΠΈΡΠΎΡΠ»ΠΎΠ²ΠΈΡΠ΅Π»Ρ Π² ΠΊΠΎΠΏΡΠΈΠ»ΡΠ½Π΅ β ΡΡΠΎ ΠΏΠΎΠ΄Π΄ΠΎΠ½ Ρ Π²ΡΡΡΡΠΏΠ°ΡΡΠΈΠΌΠΈ ΠΊΡΠ°ΡΠΌΠΈ, ΡΠ»ΡΠΆΠΈΡ Π΄Π»Ρ ΡΠ±ΠΎΡΠ° ΠΊΠ°ΠΏΠ°ΡΡΠ΅Π³ΠΎ ΠΆΠΈΡΠ° Ρ ΠΏΡΠΎΠ΄ΡΠΊΡΠΎΠ². ΠΡΠ»ΠΈ Π΅Π³ΠΎ Π½Π΅ Π±ΡΠ΄Π΅Ρ, ΡΠΎ ΠΆΠΈΡ Π½Π°ΡΠ½Π΅Ρ ΠΈΠ½ΡΠ΅Π½ΡΠΈΠ²Π½ΠΎ ΠΏΠΎΠΏΠ°Π΄Π°ΡΡ Π½Π° ΡΠ»Π΅ΡΡΡΡ ΡΠ΅ΠΏΡ. Π’Π°ΠΊΠΎΠΉ Π΄ΡΠΌ Π½Π΅ ΡΠΎΠ»ΡΠΊΠΎ ΡΡΠ°Π½ΠΎΠ²ΠΈΡΡΡ Π³ΠΎΡΡΠΊΠΈΠΌ, Π½ΠΎ ΠΈ ΠΎΠΏΠ°ΡΠ½ΡΠΉ Π΄Π»Ρ ΡΠ΅Π»ΠΎΠ²Π΅ΠΊΠ°. Π‘ Π½ΠΈΠ·Ρ ΠΈΠΌΠ΅Π΅Ρ Π½ΠΎΠΆΠΊΠΈ, ΠΊΠΎΡΠΎΡΡΠ΅ ΠΏΡΠΈΠΏΠΎΠ΄Π½ΠΈΠΌΠ°ΡΡ Π½Π° Π½Π΅ΡΠΊΠΎΠ»ΡΠΊΠΎ ΡΠ°Π½ΡΠΈΠΌΠ΅ΡΡΠΎΠ² Π΅Π΅ Π½Π°Π΄ ΡΠ΅ΠΏΠΎΠΉ.
- Π Π΅ΡΠ΅ΡΠΊΠ° Π΄Π°Π΅Ρ Π²ΠΎΠ·ΠΌΠΎΠΆΠ½ΠΎΡΡΡ Π²ΡΠ»ΠΎΠΆΠΈΡΡ Π½Π° Π½Π΅ΠΉ Π±ΡΠ΄ΡΡΠΈΠ΅ ΠΊΠΎΠΏΡΠ΅Π½ΠΎΡΡΠΈ. Π§Π°ΡΠ΅ Π²ΡΠ΅Π³ΠΎ Π΄Π΅Π»Π°ΡΡ ΠΈΠ· Π΄Π²ΡΡ ΡΠ°Π·Π΄Π΅Π»ΡΠ½ΡΡ ΡΡΡΡΠΎΠ². Π ΡΠ»ΡΡΠ°Π΅ Π³Π°Π±Π°ΡΠΈΡΠ½ΠΎΠΉ Π·Π°ΠΊΠ»Π°Π΄ΠΊΠΈ, ΡΠΈΠΏΠ° ΠΊΡΡΠΈΡΡ, Π²ΡΠΎΡΡΡ ΡΠ΅ΡΠ΅ΡΠΊΡ ΡΠ±ΠΈΡΠ°ΡΡ.
ΠΡΠΈΠ½ΡΠΈΠΏ ΡΠ°Π±ΠΎΡΡ ΠΊΠΎΠΏΡΠΈΠ»ΡΠ½ΠΈ
ΠΠΎΡΠ½Π΅ΠΌΡΡ ΡΡΠΎΠΉ ΡΠ΅ΠΌΡ ΠΏΠΎΠ²Π΅ΡΡ Π½ΠΎΡΡΠ½ΠΎ, ΠΏΠΎΡΠΎΠΌΡ ΠΊΠ°ΠΊ Π½Π΅ ΡΠ²Π»ΡΠ΅ΡΡΡ ΠΎΡΠ½ΠΎΠ²Π½ΠΎΠΉ Π² Π΄Π°Π½Π½ΠΎΠΉ ΡΡΠ°ΡΡΠ΅, Π½ΠΎ Π΄Π°ΡΡΠ΅ΠΉ ΠΏΡΠ΅Π΄ΡΡΠ°Π²Π»Π΅Π½ΠΈΠ΅ ΠΎ ΡΠ΅Ρ Π½ΠΎΠ»ΠΎΠ³ΠΈΠΈ.
ΠΠ° Π΄Π½ΠΎ ΠΊΠΎΠΏΡΠΈΠ»ΡΠ½ΠΈ Π·Π°ΡΡΠΏΠ°ΡΡ ΡΠ°Π²Π½ΠΎΠΌΠ΅ΡΠ½ΠΎ Π½Π΅ΠΊΠΎΡΠΎΡΠΎΠ΅ ΠΊΠΎΠ»ΠΈΡΠ΅ΡΡΠ²ΠΎ ΡΠ΅ΠΏΡ. Π‘Π²Π΅ΡΡ
Ρ ΡΡΠ°Π²ΡΡ ΠΏΠΎΠ΄Π΄ΠΎΠ½ Π΄Π»Ρ ΠΆΠΈΡΠ°. Π§ΡΠΎΠ±Ρ Π² Π΄Π°Π»ΡΠ½Π΅ΠΉΡΠ΅ΠΌ Π±ΡΠ»ΠΎ Π»Π΅Π³ΡΠ΅ Π΅Π³ΠΎ ΠΎΡΠΌΡΠ²Π°ΡΡ β ΠΊΠ°ΠΆΠ΄ΡΠΉ ΡΠ°Π· ΡΠ²Π΅ΡΡ
Ρ ΠΊΠ»Π°Π΄ΡΡ ΠΏΠΈΡΠ΅Π²ΡΡ ΡΠΎΠ»ΡΠ³Ρ ΠΈΠ»ΠΈ Π½Π°ΡΡΠΏΠ°ΡΡ ΠΏΠ΅ΡΠΎΠΊ. ΠΠ° ΡΡΡΡΡ Π²ΡΠΊΠ»Π°Π΄ΡΠ²Π°ΡΡΡΡ ΠΌΡΡΠ½ΡΠ΅ ΠΏΡΠΎΠ΄ΡΠΊΡΡ. ΠΠ°ΠΊΡΡΠ²Π°ΡΡ Π²ΡΠ΅ ΠΊΡΡΡΠΊΠΎΠΉ. Π ΠΏΠ°Π· Π³ΠΈΠ΄ΡΠΎΠ·Π°ΡΠ²ΠΎΡΠ° Π½Π°Π»ΠΈΠ²Π°ΡΡ Π²ΠΎΠ΄Ρ, ΡΠ°ΠΊ, ΡΡΠΎΠ±Ρ ΠΎΠ½Π° Π½Π΅ Π΄ΠΎΡ
ΠΎΠ΄ΠΈΠ»Π° Π΄ΠΎ ΠΊΡΠ°Ρ Π±ΠΎΡΡΠΈΠΊΠ°. Π‘ΡΠ΅ΠΊΠ°ΡΡΠΈΠΉ ΠΊΠΎΠ½Π΄Π΅Π½ΡΠ°Ρ Ρ ΠΊΡΡΡΠΊΠΈ Π±ΡΠ΄Π΅Ρ Π² Π½Π΅ΠΌ Π½Π°ΠΊΠ°ΠΏΠ»ΠΈΠ²Π°ΡΡΡΡ, ΡΡΠΎ Π²ΡΠ·ΠΎΠ²Π΅Ρ ΠΏΠ΅ΡΠ΅ΠΏΠΎΠ»Π½Π΅Π½ΠΈΠ΅. Π ΡΠ»ΠΈΡΠ½ΡΡ
 ΡΡΠ»ΠΎΠ²ΠΈΡΡ
 Π½Π΅Ρ Π½Π΅ΠΎΠ±Ρ
ΠΎΠ΄ΠΈΠΌΠΎΡΡΠΈ ΠΈΡΠΏΠΎΠ»ΡΠ·ΠΎΠ²Π°ΡΡ Π³ΠΈΠ΄ΡΠΎΠ·Π°ΡΠ²ΠΎΡ, ΡΠΎΠ»ΡΠΊΠΎ Π²Π½ΡΡΡΠΈ ΠΆΠΈΠ»ΡΡ
 ΠΏΠΎΠΌΠ΅ΡΠ΅Π½ΠΈΠΉ. ΠΡΠΈ Π½Π΅ΠΎΠ±Ρ
ΠΎΠ΄ΠΈΠΌΠΎΡΡΠΈ ΠΎΠ΄Π΅Π²Π°ΡΡ ΡΠ»Π°Π½Π³ Π½Π° ΡΡΡΡΠ΅Ρ Π² ΠΊΡΡΡΠΊΠ΅. ΠΠ°Π»Π΅Π΅ ΠΊΠΎΠΏΡΠΈΠ»ΡΠ½Ρ ΡΠ°ΡΠΏΠΎΠ»Π°Π³Π°ΡΡ Π½Π°Π΄ ΠΈΡΡΠΎΡΠ½ΠΈΠΊΠΎΠΌ ΡΠ΅ΠΌΠΏΠ΅ΡΠ°ΡΡΡΡ. ΠΡΠΎ ΠΌΠΎΠΆΠ΅Ρ Π±ΡΡΡ ΠΊΠΎΡΡΠ΅Ρ, Π³Π°Π·ΠΎΠ²Π°Ρ ΠΈΠ»ΠΈ ΡΠ»Π΅ΠΊΡΡΠΈΡΠ΅ΡΠΊΠ°Ρ ΠΏΠ»ΠΈΡΠ°. ΠΠΎΡΠ»Π΅ ΠΏΠΎΡΠ²Π»Π΅Π½ΠΈΡ ΠΏΠ΅ΡΠ²ΠΎΠ³ΠΎ ΠΏΡΠΈΠ·Π½Π°ΠΊΠ° Π΄ΡΠΌΠ° Π·Π°ΡΠ΅ΠΊΠ°ΡΡ Π²ΡΠ΅ΠΌΡ, ΡΠΎΠΎΡΠ²Π΅ΡΡΡΠ²ΡΡΡΠ΅Π΅ ΡΠ΅ΠΆΠΈΠΌΡ ΠΊΠΎΠΏΡΠ΅Π½ΠΈΡ. ΠΠ° ΠΎΡΡΡΡΡΡΠ²ΠΈΠ΅ ΠΏΠΎΡΡΠΎΡΠ½Π½ΠΎΠΉ Π³ΠΎΡΠ΅ΡΠΈ Π²Π»ΠΈΡΠ΅Ρ ΠΌΠ°ΠΊΡΠΈΠΌΠ°Π»ΡΠ½Π°Ρ ΡΠ΅ΠΌΠΏΠ΅ΡΠ°ΡΡΡΠ°, Π° ΡΠ°ΠΊΠΆΠ΅ ΠΊΠ°ΠΊ Π±ΡΡΡΡΠΎ Π½Π°Π±ΠΈΡΠ°Π΅ΡΡΡ Π³ΡΠ°Π΄ΡΡΡ. ΠΡΠΆΠ½ΠΎ ΡΡΠ°ΡΠ°ΡΡΡΡ ΠΏΠΎΠ΄Π΄Π΅ΡΠΆΠΈΠ²Π°ΡΡ ΠΈΠ½ΡΠ΅Π½ΡΠΈΠ²Π½ΠΎΡΡΡ Π΄ΡΠΌΠ° Π½Π° ΠΌΠΈΠ½ΠΈΠΌΡΠΌΠ΅, ΡΡΠΎ ΠΎΡΠ΅Π½Ρ Π²Π°ΠΆΠ½ΠΎ. ΠΠΎ ΠΎΠΊΠΎΠ½ΡΠ°Π½ΠΈΡ ΡΠ²Π΅ΠΆΠ΅ΠΏΡΠΈΠ³ΠΎΡΠΎΠ²Π»Π΅Π½Π½ΡΠ΅ ΠΊΠΎΠΏΡΠ΅Π½ΠΎΡΡΠΈ Π΄Π°ΡΡ ΠΏΠΎΠ΄ΠΎΠΉΡΠΈ Π² ΡΠ΅ΡΠ΅Π½ΠΈΠ΅ Π½ΠΎΡΠΈ ΠΈΠ»ΠΈ ΡΡΡΠΎΠΊ Π² Ρ
ΠΎΠ»ΠΎΠ΄ΠΈΠ»ΡΠ½ΠΈΠΊΠ΅ Π΄Π»Ρ ΠΏΠΎΠ»ΡΡΠ΅Π½ΠΈΡ Π±ΠΎΠ»Π΅Π΅ ΠΎΠ΄Π½ΠΎΡΠΎΠ΄Π½ΠΎΠ³ΠΎ Π²ΠΊΡΡΠ°.
 Π‘Π²Π΅ΡΡ
Ρ ΡΡΠ°Π²ΡΡ ΠΏΠΎΠ΄Π΄ΠΎΠ½ Π΄Π»Ρ ΠΆΠΈΡΠ°. Π§ΡΠΎΠ±Ρ Π² Π΄Π°Π»ΡΠ½Π΅ΠΉΡΠ΅ΠΌ Π±ΡΠ»ΠΎ Π»Π΅Π³ΡΠ΅ Π΅Π³ΠΎ ΠΎΡΠΌΡΠ²Π°ΡΡ β ΠΊΠ°ΠΆΠ΄ΡΠΉ ΡΠ°Π· ΡΠ²Π΅ΡΡ
Ρ ΠΊΠ»Π°Π΄ΡΡ ΠΏΠΈΡΠ΅Π²ΡΡ ΡΠΎΠ»ΡΠ³Ρ ΠΈΠ»ΠΈ Π½Π°ΡΡΠΏΠ°ΡΡ ΠΏΠ΅ΡΠΎΠΊ. ΠΠ° ΡΡΡΡΡ Π²ΡΠΊΠ»Π°Π΄ΡΠ²Π°ΡΡΡΡ ΠΌΡΡΠ½ΡΠ΅ ΠΏΡΠΎΠ΄ΡΠΊΡΡ. ΠΠ°ΠΊΡΡΠ²Π°ΡΡ Π²ΡΠ΅ ΠΊΡΡΡΠΊΠΎΠΉ. Π ΠΏΠ°Π· Π³ΠΈΠ΄ΡΠΎΠ·Π°ΡΠ²ΠΎΡΠ° Π½Π°Π»ΠΈΠ²Π°ΡΡ Π²ΠΎΠ΄Ρ, ΡΠ°ΠΊ, ΡΡΠΎΠ±Ρ ΠΎΠ½Π° Π½Π΅ Π΄ΠΎΡ
ΠΎΠ΄ΠΈΠ»Π° Π΄ΠΎ ΠΊΡΠ°Ρ Π±ΠΎΡΡΠΈΠΊΠ°. Π‘ΡΠ΅ΠΊΠ°ΡΡΠΈΠΉ ΠΊΠΎΠ½Π΄Π΅Π½ΡΠ°Ρ Ρ ΠΊΡΡΡΠΊΠΈ Π±ΡΠ΄Π΅Ρ Π² Π½Π΅ΠΌ Π½Π°ΠΊΠ°ΠΏΠ»ΠΈΠ²Π°ΡΡΡΡ, ΡΡΠΎ Π²ΡΠ·ΠΎΠ²Π΅Ρ ΠΏΠ΅ΡΠ΅ΠΏΠΎΠ»Π½Π΅Π½ΠΈΠ΅. Π ΡΠ»ΠΈΡΠ½ΡΡ
 ΡΡΠ»ΠΎΠ²ΠΈΡΡ
 Π½Π΅Ρ Π½Π΅ΠΎΠ±Ρ
ΠΎΠ΄ΠΈΠΌΠΎΡΡΠΈ ΠΈΡΠΏΠΎΠ»ΡΠ·ΠΎΠ²Π°ΡΡ Π³ΠΈΠ΄ΡΠΎΠ·Π°ΡΠ²ΠΎΡ, ΡΠΎΠ»ΡΠΊΠΎ Π²Π½ΡΡΡΠΈ ΠΆΠΈΠ»ΡΡ
 ΠΏΠΎΠΌΠ΅ΡΠ΅Π½ΠΈΠΉ. ΠΡΠΈ Π½Π΅ΠΎΠ±Ρ
ΠΎΠ΄ΠΈΠΌΠΎΡΡΠΈ ΠΎΠ΄Π΅Π²Π°ΡΡ ΡΠ»Π°Π½Π³ Π½Π° ΡΡΡΡΠ΅Ρ Π² ΠΊΡΡΡΠΊΠ΅. ΠΠ°Π»Π΅Π΅ ΠΊΠΎΠΏΡΠΈΠ»ΡΠ½Ρ ΡΠ°ΡΠΏΠΎΠ»Π°Π³Π°ΡΡ Π½Π°Π΄ ΠΈΡΡΠΎΡΠ½ΠΈΠΊΠΎΠΌ ΡΠ΅ΠΌΠΏΠ΅ΡΠ°ΡΡΡΡ. ΠΡΠΎ ΠΌΠΎΠΆΠ΅Ρ Π±ΡΡΡ ΠΊΠΎΡΡΠ΅Ρ, Π³Π°Π·ΠΎΠ²Π°Ρ ΠΈΠ»ΠΈ ΡΠ»Π΅ΠΊΡΡΠΈΡΠ΅ΡΠΊΠ°Ρ ΠΏΠ»ΠΈΡΠ°. ΠΠΎΡΠ»Π΅ ΠΏΠΎΡΠ²Π»Π΅Π½ΠΈΡ ΠΏΠ΅ΡΠ²ΠΎΠ³ΠΎ ΠΏΡΠΈΠ·Π½Π°ΠΊΠ° Π΄ΡΠΌΠ° Π·Π°ΡΠ΅ΠΊΠ°ΡΡ Π²ΡΠ΅ΠΌΡ, ΡΠΎΠΎΡΠ²Π΅ΡΡΡΠ²ΡΡΡΠ΅Π΅ ΡΠ΅ΠΆΠΈΠΌΡ ΠΊΠΎΠΏΡΠ΅Π½ΠΈΡ. ΠΠ° ΠΎΡΡΡΡΡΡΠ²ΠΈΠ΅ ΠΏΠΎΡΡΠΎΡΠ½Π½ΠΎΠΉ Π³ΠΎΡΠ΅ΡΠΈ Π²Π»ΠΈΡΠ΅Ρ ΠΌΠ°ΠΊΡΠΈΠΌΠ°Π»ΡΠ½Π°Ρ ΡΠ΅ΠΌΠΏΠ΅ΡΠ°ΡΡΡΠ°, Π° ΡΠ°ΠΊΠΆΠ΅ ΠΊΠ°ΠΊ Π±ΡΡΡΡΠΎ Π½Π°Π±ΠΈΡΠ°Π΅ΡΡΡ Π³ΡΠ°Π΄ΡΡΡ. ΠΡΠΆΠ½ΠΎ ΡΡΠ°ΡΠ°ΡΡΡΡ ΠΏΠΎΠ΄Π΄Π΅ΡΠΆΠΈΠ²Π°ΡΡ ΠΈΠ½ΡΠ΅Π½ΡΠΈΠ²Π½ΠΎΡΡΡ Π΄ΡΠΌΠ° Π½Π° ΠΌΠΈΠ½ΠΈΠΌΡΠΌΠ΅, ΡΡΠΎ ΠΎΡΠ΅Π½Ρ Π²Π°ΠΆΠ½ΠΎ. ΠΠΎ ΠΎΠΊΠΎΠ½ΡΠ°Π½ΠΈΡ ΡΠ²Π΅ΠΆΠ΅ΠΏΡΠΈΠ³ΠΎΡΠΎΠ²Π»Π΅Π½Π½ΡΠ΅ ΠΊΠΎΠΏΡΠ΅Π½ΠΎΡΡΠΈ Π΄Π°ΡΡ ΠΏΠΎΠ΄ΠΎΠΉΡΠΈ Π² ΡΠ΅ΡΠ΅Π½ΠΈΠ΅ Π½ΠΎΡΠΈ ΠΈΠ»ΠΈ ΡΡΡΠΎΠΊ Π² Ρ
ΠΎΠ»ΠΎΠ΄ΠΈΠ»ΡΠ½ΠΈΠΊΠ΅ Π΄Π»Ρ ΠΏΠΎΠ»ΡΡΠ΅Π½ΠΈΡ Π±ΠΎΠ»Π΅Π΅ ΠΎΠ΄Π½ΠΎΡΠΎΠ΄Π½ΠΎΠ³ΠΎ Π²ΠΊΡΡΠ°.
ΠΡΠ±ΠΎΡ Π² ΠΏΠ΅ΡΠ²ΡΡ ΠΎΡΠ΅ΡΠ΅Π΄Ρ Π΄ΠΎΠ»ΠΆΠ΅Π½ Π·Π°Π²ΠΈΡΠ΅ΡΡ ΠΎΡ ΠΌΠ΅ΡΡΠ° ΠΈΡΠΏΠΎΠ»ΡΠ·ΠΎΠ²Π°Π½ΠΈΡ ΠΊΠΎΠΏΡΠΈΠ»ΡΠ½ΠΈ. ΠΠ΅ ΡΡΠ΅Π½ΠΊΠΈ ΠΈΠΌΠ΅ΡΡ ΠΎΠΏΡΠ΅Π΄Π΅Π»Π΅Π½Π½ΡΡ ΡΠ΅ΠΏΠ»ΠΎΠ΅ΠΌΠΊΠΎΡΡΡ, ΠΊΠΎΡΠΎΡΠ°Ρ Π²ΠΎ Π²ΡΠ΅ΠΌΡ Π½Π°Π³ΡΠ΅Π²Π°Π½ΠΈΡ Π½Π°ΡΠΈΠ½Π°Π΅Ρ ΡΠ°Π±ΠΎΡΠ°ΡΡ ΠΊΠ°ΠΊ ΠΊΠ°Π·Π°Π½. ΠΡΠΎ ΠΏΠΎΠ·Π²ΠΎΠ»ΡΠ΅Ρ Π»ΡΡΡΠ΅ ΡΠ°ΡΠΏΡΠ΅Π΄Π΅Π»ΠΈΡΡ ΡΠ΅ΠΌΠΏΠ΅ΡΠ°ΡΡΡΡ Π²Π½ΡΡΡΠΈ ΠΊΠ°ΠΌΠ΅ΡΡ ΠΌΠ΅ΠΆΠ΄Ρ Π½ΠΈΠΆΠ½ΠΈΠΌ ΠΈ Π²Π΅ΡΡ Π½ΠΈΠΌ ΡΡΡΡΠΎΠΌ. ΠΠ° ΠΎΡΠΊΡΡΡΠΎΠΌ Π²ΠΎΠ·Π΄ΡΡ Π΅, Π² ΠΎΡΠ»ΠΈΡΠΈΠ΅ ΠΎΡ Π΄ΠΎΠΌΠ°ΡΠ½ΠΈΡ ΡΡΠ»ΠΎΠ²ΠΈΠΉ, ΠΏΡΠΈΡΡΡΡΡΠ²ΡΠ΅Ρ Π²Π΅ΡΠ΅Ρ Π·Π°Π±ΠΈΡΠ°ΡΡΠΈΠΉ ΡΠ°ΡΡΡ ΡΠ΅ΠΏΠ»Π°, ΡΠ°ΠΌ Π²ΠΎΠ·Π΄ΡΡ ΠΌΠΎΠΆΠ΅Ρ Π±ΡΡΡ Ρ ΠΎΠ»ΠΎΠ΄Π½ΡΠΌ. Π ΡΠ΅Π·ΡΠ»ΡΡΠ°ΡΠ΅ ΠΏΠΎΠ»ΡΡΠΈΠΌ Ρ ΠΎΡΠΎΡΠΎ ΠΏΡΠΎΠ³ΡΠ΅ΡΡΠΉ Π½ΠΈΠ· ΠΈ Π½Π΅Π΄ΠΎΡΡΠ°ΡΠΎΡΠ½ΠΎ ΠΊΡΠ°Ρ Ρ ΠΊΡΡΡΠΊΠΎΠΉ.
Π‘ ΡΠΎΡΠΊΠΈ Π·ΡΠ΅Π½ΠΈΡ ΡΠ΄ΠΎΠ±ΡΡΠ²Π° ΠΈΠ·Π³ΠΎΡΠΎΠ²Π»Π΅Π½ΠΈΡ ΠΊΠΎΠΏΡΠΈΠ»Π΅Π½ ΡΠΎΠ»ΡΡΡΠΉ ΠΌΠ΅ΡΠ°Π»Π» ΡΠ΄ΠΎΠ±Π½Π΅Π΅ ΠΏΡΠΈ ΡΠ²Π°ΡΠΊΠ΅. Π¨ΠΎΠ² ΠΏΠΎΠ»ΡΡΠ°Π΅ΡΡΡ Π±ΠΎΠ»Π΅Π΅ ΡΠ°Π²Π½ΠΎΠΌΠ΅ΡΠ½ΡΠΉ, Ρ ΠΌΠ΅Π½ΡΡΠΈΠΌ ΡΠΈΡΠΊΠΎΠΌ Π±ΡΡΡ ΠΏΡΠΎΠΆΠΆΠ΅Π½Π½ΡΠΌ. ΠΡΠΎΠ±Π΅Π½Π½ΠΎ Π²Π°ΠΆΠ½ΠΎ ΡΡΠΎ ΠΏΡΠΈ ΡΠ²Π°ΡΠΈΠ²Π°Π½ΠΈΠ΅ ΠΏΡΠΎΡΡΡΠΌ ΡΠ»Π΅ΠΊΡΡΠΎΠ΄ΠΎΠΌ Π±Π΅Π· Π±ΠΎΠ»ΡΡΠΎΠ³ΠΎ ΠΎΠΏΡΡΠ°. Π Π½Π΅ΡΠ΄ΠΎΠ±ΡΡΠ²Π°ΠΌ ΠΌΠΎΠΆΠ½ΠΎ ΠΎΡΠ½Π΅ΡΡΠΈ ΠΏΡΠΈΠ»ΠΎΠΆΠ΅Π½ΠΈΠ΅ Π±ΠΎΠ»ΡΡΠ΅ΠΉ ΡΠΈΠ»Ρ Π΄Π»Ρ ΡΠ³ΠΈΠ±Π°Π½ΠΈΡ.
ΠΡ ΡΠ΅ΠΊΠΎΠΌΠ΅Π½Π΄ΡΠ΅ΠΌ ΠΎΡΡΠ°Π½ΠΎΠ²ΠΈΡΡΡΡ Π½Π° Ρ ΠΎΠ»ΠΎΠ΄Π½ΠΎΠΊΠ°ΡΠ°Π½ΠΎΠΉ ΡΡΠ°Π»ΠΈ ΡΠΎΠ»ΡΠΈΠ½ΠΎΠΉ 2 ΠΌΠΌ. ΠΠ΅Π½Π΅Π΅ ΠΆΠ΅Π»Π°ΡΠ΅Π»ΡΠ½ΠΎ ΠΏΡΠΈΠΌΠ΅Π½Π΅Π½ΠΈΠ΅ ΡΡΠ°Π»ΠΈ 1.5 ΠΌΠΌ, Π° Π²ΠΎΡ 1ΠΌΠΌ ΠΏΠΎΠΉΠ΄Π΅Ρ ΡΠ°Π·Π²Π΅ ΡΡΠΎ Π΄Π»Ρ ΠΌΠΈΠ½ΠΈΠΊΠΎΠΏΡΠΈΠ»Π΅Π½Ρ Ρ ΠΏΠΎΠ»ΡΠ°Π²ΡΠΎΠΌΠ°ΡΠΎΠΌ. ΠΡΠΈΠ²Π΅ΡΡΡΠ²ΡΡΡΡΡ ΠΆΠ°ΡΠΎΠΏΡΠΎΡΠ½ΠΎΠ΅ ΠΏΠΎΠΊΡΡΡΠΈΠ΅ ΠΈΠ»ΠΈ ΡΡΠ°Π²Π»Π΅Π½ΠΈΠ΅.
Π€ΠΎΡΠΌΠ° ΠΊΠΎΠΏΡΠΈΠ»ΡΠ½ΠΈ
ΠΠ°ΠΊ ΡΠΆΠ΅ ΠΏΠΈΡΠ°Π»ΠΎΡΡ Π²ΡΡΠ΅ ΡΡΡΠ΅ΡΡΠ²ΡΠ΅Ρ ΠΈΡ
 ΡΡΠΈ Π²ΠΈΠ΄Π°. ΠΠΎ Π½Π°ΡΠ΅ΠΌΡ ΠΌΠ½Π΅Π½ΠΈΡ, Π½Π°ΠΈΠΌΠ΅Π½Π΅Π΅ ΠΏΡΠ°ΠΊΡΠΈΡΠ½Π°Ρ ΠΊΠ²Π°Π΄ΡΠ°ΡΠ½Π°Ρ, Π·Π°ΡΠ΅ΠΌ ΡΠΈΠ»ΠΈΠ½Π΄ΡΠΈΡΠ΅ΡΠΊΠ°Ρ. ΠΠΎΠΏΡΠΎΠ±ΡΠ΅ΠΌ ΠΎΠ±ΡΡΡΠ½ΠΈΡΡ ΡΠ²ΠΎΡ ΡΠΎΡΠΊΡ Π·ΡΠ΅Π½ΠΈΡ. Π€ΠΎΡΠΌΠ°Ρ Π½Π°ΠΏΡΡΠΌΡΡ Π²Π»ΠΈΡΠ΅Ρ Π½Π° ΡΠ΅ ΠΊΠΎΠΏΡΠ΅Π½ΠΎΡΡΠΈ, ΠΊΠΎΡΠΎΡΡΠ΅ Ρ
ΠΎΡΠΈΠΌ ΠΏΠΎΠ»ΡΡΠΈΡΡ. Π ΠΏΡΠΈΠ½ΡΠΈΠΏΠ΅ Π½ΠΈΠΊΠ°ΠΊΠΈΡ
 ΠΏΡΠΎΠ±Π»Π΅ΠΌ Π½Π΅Ρ Ρ ΠΎΠ±ΡΠ΅ΠΌΠΎΠΌ, ΠΏΠΎΠΊΠ° Π½Π΅ ΡΡΠΎΠ»ΠΊΠ½Π΅ΠΌΡΡ Ρ ΠΎΠ³ΡΠ°Π½ΠΈΡΠ΅Π½ΠΈΡΠΌΠΈ ΠΏΠΎ Π΄Π»ΠΈΠ½Π΅ ΠΏΡΠΈ ΠΏΠΎΠΏΡΡΠΊΠ΅ ΡΠ°Π·ΠΌΠ΅ΡΡΠΈΡΡ ΡΠΊΠΎΠ»ΡΠΊΠΎ-Π½ΠΈΠ±ΡΠ΄Ρ ΠΊΡΡΠΏΠ½ΡΡ ΡΡΠ±Ρ. ΠΠΎΠΏΡΠΈΠ»ΡΠ½ΠΈ Ρ Π³ΠΈΠ΄ΡΠΎΠ·Π°ΡΠ²ΠΎΡΠΎΠΌ ΠΏΡΠ΅Π΄Π½Π°Π·Π½Π°ΡΠ΅Π½Ρ ΡΠΎΠ»ΡΠΊΠΎ Π΄Π»Ρ Π³ΠΎΡΠΈΠ·ΠΎΠ½ΡΠ°Π»ΡΠ½ΠΎΠΉ Π·Π°Π³ΡΡΠ·ΠΊΠΈ. Π¨ΠΈΡΠΈΠ½Π° Π² ΡΡΠΎΠΌ ΡΠ»ΡΡΠ°Π΅ ΠΈΠΌΠ΅Π΅Ρ Π²Π°ΠΆΠ½ΠΎΠ΅ Π·Π½Π°ΡΠ΅Π½ΠΈΠ΅. Π‘ Π΄ΡΡΠ³ΠΎΠΉ ΡΡΠΎΡΠΎΠ½Ρ, Π² Π΄ΠΎΠΌΠ°ΡΠ½ΠΈΡ
 ΡΡΠ»ΠΎΠ²ΠΈΡΡ
 Π³Π°Π±Π°ΡΠΈΡΡ Π΄ΠΎΠ»ΠΆΠ½Ρ ΠΎΠ³ΡΠ°Π½ΠΈΡΠΈΠ²Π°ΡΡΡΡ ΡΠ°Π·ΠΌΠ΅ΡΠΎΠΌ Π²Π°ΡΠ΅ΠΉ ΠΏΠ»ΠΈΡΡ ΠΈ Π·Π°Π½ΠΈΠΌΠ°ΡΡ Π΄Π²Π΅ ΠΊΠΎΠ½ΡΠΎΡΠΊΠΈ. Π’Π°ΠΊΠΆΠ΅ ΠΌΠ΅ΡΡΠΎ Π΄Π»Ρ Ρ
ΡΠ°Π½Π΅Π½ΠΈΡ ΠΌΠΎΠΆΠ΅Ρ Π½Π°ΠΊΠ»Π°Π΄ΡΠ²Π°ΡΡ ΡΠ²ΠΎΠΈ ΠΎΠ³ΡΠ°Π½ΠΈΡΠ΅Π½ΠΈΡ. Π’Π°ΠΊ ΡΡΠΎ Π±ΠΎΠ»Π΅Π΅ ΠΊΠ²Π°Π΄ΡΠ°ΡΠ½ΡΠ΅ ΡΠΎΡΠΌΡ ΠΏΠΎΠ΄ΠΎΠΉΠ΄ΡΡ ΡΠΊΠΎΡΠ΅Π΅ Π΄Π»Ρ ΡΠ΄ΠΎΠ±ΡΡΠ² Ρ ΡΠ°ΡΡΠΎΠΉ ΡΡΠ°Π½ΡΠΏΠΎΡΡΠΈΡΠΎΠ²ΠΊΠΎΠΉ Π½Π° ΠΏΡΠΈΡΠΎΠ΄Ρ, ΠΊ ΠΏΡΠΈΠΌΠ΅ΡΡ.
 ΠΠΎ Π½Π°ΡΠ΅ΠΌΡ ΠΌΠ½Π΅Π½ΠΈΡ, Π½Π°ΠΈΠΌΠ΅Π½Π΅Π΅ ΠΏΡΠ°ΠΊΡΠΈΡΠ½Π°Ρ ΠΊΠ²Π°Π΄ΡΠ°ΡΠ½Π°Ρ, Π·Π°ΡΠ΅ΠΌ ΡΠΈΠ»ΠΈΠ½Π΄ΡΠΈΡΠ΅ΡΠΊΠ°Ρ. ΠΠΎΠΏΡΠΎΠ±ΡΠ΅ΠΌ ΠΎΠ±ΡΡΡΠ½ΠΈΡΡ ΡΠ²ΠΎΡ ΡΠΎΡΠΊΡ Π·ΡΠ΅Π½ΠΈΡ. Π€ΠΎΡΠΌΠ°Ρ Π½Π°ΠΏΡΡΠΌΡΡ Π²Π»ΠΈΡΠ΅Ρ Π½Π° ΡΠ΅ ΠΊΠΎΠΏΡΠ΅Π½ΠΎΡΡΠΈ, ΠΊΠΎΡΠΎΡΡΠ΅ Ρ
ΠΎΡΠΈΠΌ ΠΏΠΎΠ»ΡΡΠΈΡΡ. Π ΠΏΡΠΈΠ½ΡΠΈΠΏΠ΅ Π½ΠΈΠΊΠ°ΠΊΠΈΡ
 ΠΏΡΠΎΠ±Π»Π΅ΠΌ Π½Π΅Ρ Ρ ΠΎΠ±ΡΠ΅ΠΌΠΎΠΌ, ΠΏΠΎΠΊΠ° Π½Π΅ ΡΡΠΎΠ»ΠΊΠ½Π΅ΠΌΡΡ Ρ ΠΎΠ³ΡΠ°Π½ΠΈΡΠ΅Π½ΠΈΡΠΌΠΈ ΠΏΠΎ Π΄Π»ΠΈΠ½Π΅ ΠΏΡΠΈ ΠΏΠΎΠΏΡΡΠΊΠ΅ ΡΠ°Π·ΠΌΠ΅ΡΡΠΈΡΡ ΡΠΊΠΎΠ»ΡΠΊΠΎ-Π½ΠΈΠ±ΡΠ΄Ρ ΠΊΡΡΠΏΠ½ΡΡ ΡΡΠ±Ρ. ΠΠΎΠΏΡΠΈΠ»ΡΠ½ΠΈ Ρ Π³ΠΈΠ΄ΡΠΎΠ·Π°ΡΠ²ΠΎΡΠΎΠΌ ΠΏΡΠ΅Π΄Π½Π°Π·Π½Π°ΡΠ΅Π½Ρ ΡΠΎΠ»ΡΠΊΠΎ Π΄Π»Ρ Π³ΠΎΡΠΈΠ·ΠΎΠ½ΡΠ°Π»ΡΠ½ΠΎΠΉ Π·Π°Π³ΡΡΠ·ΠΊΠΈ. Π¨ΠΈΡΠΈΠ½Π° Π² ΡΡΠΎΠΌ ΡΠ»ΡΡΠ°Π΅ ΠΈΠΌΠ΅Π΅Ρ Π²Π°ΠΆΠ½ΠΎΠ΅ Π·Π½Π°ΡΠ΅Π½ΠΈΠ΅. Π‘ Π΄ΡΡΠ³ΠΎΠΉ ΡΡΠΎΡΠΎΠ½Ρ, Π² Π΄ΠΎΠΌΠ°ΡΠ½ΠΈΡ
 ΡΡΠ»ΠΎΠ²ΠΈΡΡ
 Π³Π°Π±Π°ΡΠΈΡΡ Π΄ΠΎΠ»ΠΆΠ½Ρ ΠΎΠ³ΡΠ°Π½ΠΈΡΠΈΠ²Π°ΡΡΡΡ ΡΠ°Π·ΠΌΠ΅ΡΠΎΠΌ Π²Π°ΡΠ΅ΠΉ ΠΏΠ»ΠΈΡΡ ΠΈ Π·Π°Π½ΠΈΠΌΠ°ΡΡ Π΄Π²Π΅ ΠΊΠΎΠ½ΡΠΎΡΠΊΠΈ. Π’Π°ΠΊΠΆΠ΅ ΠΌΠ΅ΡΡΠΎ Π΄Π»Ρ Ρ
ΡΠ°Π½Π΅Π½ΠΈΡ ΠΌΠΎΠΆΠ΅Ρ Π½Π°ΠΊΠ»Π°Π΄ΡΠ²Π°ΡΡ ΡΠ²ΠΎΠΈ ΠΎΠ³ΡΠ°Π½ΠΈΡΠ΅Π½ΠΈΡ. Π’Π°ΠΊ ΡΡΠΎ Π±ΠΎΠ»Π΅Π΅ ΠΊΠ²Π°Π΄ΡΠ°ΡΠ½ΡΠ΅ ΡΠΎΡΠΌΡ ΠΏΠΎΠ΄ΠΎΠΉΠ΄ΡΡ ΡΠΊΠΎΡΠ΅Π΅ Π΄Π»Ρ ΡΠ΄ΠΎΠ±ΡΡΠ² Ρ ΡΠ°ΡΡΠΎΠΉ ΡΡΠ°Π½ΡΠΏΠΎΡΡΠΈΡΠΎΠ²ΠΊΠΎΠΉ Π½Π° ΠΏΡΠΈΡΠΎΠ΄Ρ, ΠΊ ΠΏΡΠΈΠΌΠ΅ΡΡ.
Π ΠΏΡΠΎΠ΄Π°ΠΆΠ΅ Π²ΡΠ΅ ΡΠ°ΡΠ΅ ΠΏΠΎΡΠ²Π»ΡΡΡΡΡ Π²ΡΡΠΎΠΊΠΈΠ΅ ΡΠΈΠ»ΠΈΠ½Π΄ΡΠΈΡΠ΅ΡΠΊΠΈΠ΅ Ρ Π΄ΠΎΡΡΠ°ΡΠΎΡΠ½ΠΎ Π²ΡΡΠΎΠΊΠΈΠΌ ΡΠ΅Π½Π½ΠΈΠΊΠΎΠΌ ΠΈ ΠΈΠ· Π½Π΅ΡΠΆΠ°Π²Π΅ΡΡΠ΅ΠΉ ΡΡΠ°Π»ΠΈ. ΠΠ»Ρ Π·Π°ΠΊΡΠ΅ΠΏΠ»Π΅Π½ΠΈΡ Π²ΡΠ΅ Π½ΡΠΆΠ½ΠΎ ΠΎΠ±Π²ΡΠ·ΡΠ²Π°ΡΡ Ρ ΠΏΠ΅ΡΠ΅Π»ΡΠΊΠ°ΠΌΠΈ, Π·Π° ΠΊΠΎΡΠΎΡΡΠ΅ Π·Π°ΡΠ΅ΠΌ ΠΏΠΎΠ΄Π²Π΅ΡΠΈΡΠ΅ Π½Π° ΠΊΡΡΡΠΊΠΈ. ΠΠ΅ Π·Π°Π±ΡΠ²Π°Π΅ΠΌ, ΡΡΠΎ ΠΏΠΎ ΡΠ΅ΡΠ΅Π΄ΠΈΠ½Π΅ ΠΏΡΠΎΡ
ΠΎΠ΄ΠΈΡ ΡΡΠ΅ΡΠΆΠ΅Π½Ρ Π΄Π»Ρ ΠΏΠΎΠ΄Π²Π΅ΡΠ° ΠΎΡΠ½ΠΈΠΌΠ°ΡΡΠΈΠΉ ΠΏΠΎΠ»Π΅Π·Π½ΠΎΠ΅ ΠΌΠ΅ΡΡΠΎ. Π’Π°ΠΊΠΆΠ΅ ΡΠ°ΡΠΏΡΠ΅Π΄Π΅Π»Π΅Π½ΠΈΠ΅ ΡΠ΅ΠΌΠΏΠ΅ΡΠ°ΡΡΡΡ Π²Π΅ΡΡΠΌΠ° Π½Π΅ΡΡΡΠ΅ΠΊΡΠΈΠ²Π½ΠΎΠ΅. ΠΠΎΠ»ΡΡΠ°Ρ Π²ΡΡΠΎΡΠ° ΡΠΎΠ·Π΄Π°Π΅Ρ Π±ΠΎΠ»ΡΡΠΎΠΉ ΠΏΠ΅ΡΠ΅ΠΏΠ°Π΄ ΠΌΠ΅ΠΆΠ΄Ρ Π½ΠΈΠ·ΠΎΠΌ ΠΈ Π²Π΅ΡΡ
ΠΎΠΌ. ΠΡΠΎΡΠ΅ Π³ΠΎΠ²ΠΎΡΡ, ΡΡΠΎ Π½Π΅ ΡΡΠ°ΡΠ°Ρ ΠΏΡΠΈΠ²ΡΡΠ½Π°Ρ Π±ΠΎΡΠΊΠ° Π²ΠΎ Π΄Π²ΠΎΡΠ΅.
 Π’Π°ΠΊΠΆΠ΅ ΡΠ°ΡΠΏΡΠ΅Π΄Π΅Π»Π΅Π½ΠΈΠ΅ ΡΠ΅ΠΌΠΏΠ΅ΡΠ°ΡΡΡΡ Π²Π΅ΡΡΠΌΠ° Π½Π΅ΡΡΡΠ΅ΠΊΡΠΈΠ²Π½ΠΎΠ΅. ΠΠΎΠ»ΡΡΠ°Ρ Π²ΡΡΠΎΡΠ° ΡΠΎΠ·Π΄Π°Π΅Ρ Π±ΠΎΠ»ΡΡΠΎΠΉ ΠΏΠ΅ΡΠ΅ΠΏΠ°Π΄ ΠΌΠ΅ΠΆΠ΄Ρ Π½ΠΈΠ·ΠΎΠΌ ΠΈ Π²Π΅ΡΡ
ΠΎΠΌ. ΠΡΠΎΡΠ΅ Π³ΠΎΠ²ΠΎΡΡ, ΡΡΠΎ Π½Π΅ ΡΡΠ°ΡΠ°Ρ ΠΏΡΠΈΠ²ΡΡΠ½Π°Ρ Π±ΠΎΡΠΊΠ° Π²ΠΎ Π΄Π²ΠΎΡΠ΅.
ΠΠ»ΠΎΡΠΊΠ°Ρ ΠΊΡΡΡΠΊΠ° ΠΈΠ»ΠΈ Π΄ΠΎΠΌΠΈΠΊΠΎΠΌ Π΄Π»Ρ ΠΊΠΎΠΏΡΠΈΠ»ΡΠ½ΠΈ
ΠΡΡΡΠΊΠ° Π΄ΠΎΠΌΠΈΠΊΠΎΠΌ ΡΠ»ΠΎΠΆΠ½Π΅Π΅ ΠΏΡΠΈ ΠΈΠ·Π³ΠΎΡΠΎΠ²Π»Π΅Π½ΠΈΠΈ, ΡΠ°ΠΊ ΠΊΠ°ΠΊ ΠΈΠΌΠ΅Π΅Ρ Π΄ΠΎΠΏΠΎΠ»Π½ΠΈΡΠ΅Π»ΡΠ½ΡΠ΅ ΠΏΠ»ΠΎΡΠΊΠΎΡΡΠΈ, Π±ΠΎΠ»ΡΡΠ΅ ΡΠ²Π°ΡΠΎΡΠ½ΡΡ ΡΠ²ΠΎΠ². ΠΠ΅ΠΎΡΠΏΠΎΡΠΈΠΌΡΠΉ ΠΏΠ»ΡΡ Π² Π²ΠΎΠ·ΠΌΠΎΠΆΠ½ΠΎΡΡΠΈ ΠΏΠΎΡΡΠΎΡΠ½Π½ΠΎ ΡΠΊΠ°ΡΡΠ²Π°ΡΡΡΡ ΠΊΠΎΠ½Π΄Π΅Π½ΡΠ°ΡΡ Π² ΠΏΠ°Π· Π³ΠΈΠ΄ΡΠΎΠ·Π°ΡΠ²ΠΎΡΠ°. Π£ ΠΊΠΎΠ³ΠΎ ΠΏΠ»ΠΎΡΠΊΠ°Ρ ΠΊΡΡΡΠΊΠ° Π²ΡΠ½ΡΠΆΠ΄Π΅Π½Ρ Π·Π°ΠΊΡΡΠ²Π°ΡΡ ΠΏΡΠΎΠ΄ΡΠΊΡΠΈΡ ΠΏΠΈΡΠ΅Π²ΠΎΠΉ ΡΠΎΠ»ΡΠ³ΠΎΠΉ. Π’Π°ΠΊΠ°Ρ Π²Π»Π°Π³Π° ΡΠΎΠ±ΠΈΡΠ°Π΅Ρ Π² ΡΠ΅Π±Ρ ΡΠ°ΠΆΡ, ΠΊΠΎΠ½ΡΠ΅Π½ΡΡΠ°ΡΠΈΡ Π΄ΡΠΌΠ°. Π ΡΠ΅Ρ ΠΌΠ΅ΡΡΠ°Ρ , ΠΊΡΠ΄Π° ΠΎΠ½Π° ΠΊΠ°ΠΏΠ½Π΅Ρ ΠΏΠΎΡΠ²ΠΈΡΡΡ ΡΠ΅ΡΠ½ΠΎΠ΅ ΠΈ Π³ΠΎΡΡΠΊΠΎΠ΅ ΠΏΡΡΠ½ΠΎ, ΠΊΠΎΡΠΎΡΠΎΠ΅ ΡΠΆΠ΅ Π½Π΅ Π²ΡΠ²Π΅ΡΡΠΈΡΡΡ Π½ΠΈΠΊΠΎΠ³Π΄Π°. ΠΠ° Π΄Π°Π½Π½ΡΠΉ ΠΌΠΎΠΌΠ΅Π½Ρ Π±ΠΎΠ»ΡΡΠΈΠ½ΡΡΠ²ΠΎ ΠΏΡΠΎΠΈΠ·Π²ΠΎΠ΄ΠΈΡΠ΅Π»Π΅ΠΉ ΠΏΡΠ°ΠΊΡΠΈΡΠ΅ΡΠΊΠΈ ΠΎΡΠΊΠ°Π·Π°Π»ΠΈΡΡ ΠΎΡ ΠΏΡΠΎΡΡΡΡ ΠΊΡΡΡΠ΅ΠΊ, ΠΎΡΡΠ°Π²ΠΈΠ² ΠΈΡ ΡΠΎΠ»ΡΠΊΠΎ Π½Π° Π½Π΅ΡΠΆΠ°Π²Π΅ΠΉΠΊΠ΅.
Π Π°Π·ΠΌΠ΅ΡΡ ΠΈ ΡΠ΅ΡΡΠ΅ΠΆΠΈ ΠΊΠΎΠΏΡΠΈΠ»ΡΠ½ΠΈ
ΠΠ° ΡΡΠΎΠΌ Π·Π°ΠΊΠΎΠ½ΡΠΈΠΌ ΡΠ΅ΠΎΡΠ΅ΡΠΈΡΠ΅ΡΠΊΡΡ ΡΠ°ΡΡΡ ΠΈ ΠΏΠ΅ΡΠ΅ΠΉΠ΄Π΅ΠΌ Π½Π΅ΠΏΠΎΡΡΠ΅Π΄ΡΡΠ²Π΅Π½Π½ΠΎ ΠΊ ΠΏΡΠ°ΠΊΡΠΈΡΠ΅ΡΠΊΠΎΠΉ. Π ΠΊΠ°ΡΠ΅ΡΡΠ²Π΅ ΠΎΠ±Π·ΠΎΡΠ° Π²ΠΎΠ·ΡΠΌΠ΅ΠΌ Π³ΠΎΡΠΎΠ²ΡΡ ΠΊΠΎΠΏΡΠΈΠ»ΡΠ½Ρ ΡΡΠ΅Π΄Π½ΠΈΡ
 ΡΠ°Π·ΠΌΠ΅ΡΠΎΠ². ΠΠ°Π½Π½ΡΠΌ ΡΠΊΠ·Π΅ΠΌΠΏΠ»ΡΡΠΎΠΌ Π΄ΠΎΡΡΠ°ΡΠΎΡΠ½ΠΎ ΡΠ°ΡΡΠΎ ΠΏΠΎΠ»ΡΠ·ΡΡΡΡΡ Π² Π±ΡΡΠΎΠ²ΡΡ
 ΡΡΠ»ΠΎΠ²ΠΈΡΡ
 Π½Π° Π³Π°Π·ΠΎΠ²ΠΎΠΉ ΠΏΠ»ΠΈΡΠ΅ Ρ Π΄Π²ΡΠΌΡ ΠΊΠΎΠ½ΡΠΎΡΠΊΠ°ΠΌΠΈ. Π‘Π»Π΅Π΄ΡΡΡΠ°Ρ ΠΏΠΎ ΡΠ°Π·ΠΌΠ΅ΡΡ ΡΠ»ΠΈΡΠΊΠΎΠΌ Π³Π°Π±Π°ΡΠΈΡΠ½Π°Ρ ΠΈ ΠΏΡΠ΅Π΄Π½Π°Π·Π½Π°ΡΠ΅Π½Π° Π±ΠΎΠ»ΡΡΠ΅ Π΄Π»Ρ ΡΠ»ΠΈΡΡ.
 Π‘Π»Π΅Π΄ΡΡΡΠ°Ρ ΠΏΠΎ ΡΠ°Π·ΠΌΠ΅ΡΡ ΡΠ»ΠΈΡΠΊΠΎΠΌ Π³Π°Π±Π°ΡΠΈΡΠ½Π°Ρ ΠΈ ΠΏΡΠ΅Π΄Π½Π°Π·Π½Π°ΡΠ΅Π½Π° Π±ΠΎΠ»ΡΡΠ΅ Π΄Π»Ρ ΡΠ»ΠΈΡΡ.
ΠΠ°Π΄Π°ΡΠ° Π΄Π°Π½Π½ΠΎΠ³ΠΎ ΡΠ°Π·Π΄Π΅Π»Π° Π΄Π°ΡΡ ΡΠΈΡΠ°ΡΠ΅Π»Ρ Π±Π°Π·ΠΎΠ²ΡΠ΅ ΡΠ°Π·ΠΌΠ΅ΡΡ ΠΊΠΎΠΏΡΠΈΠ»ΡΠ½ΠΈ Π³ΠΎΡΡΡΠ΅Π³ΠΎ ΠΊΠΎΠΏΡΠ΅Π½ΠΈΡ. ΠΠΎ Π΅Π³ΠΎ ΠΆΠ΅Π»Π°Π½ΠΈΡ ΠΎΠ½ ΠΌΠΎΠΆΠ΅Ρ ΠΈΡ ΠΏΠΎΠ²ΡΠΎΡΠΈΡΡ ΠΎΠ΄ΠΈΠ½ Π² ΠΎΠ΄ΠΈΠ½, Π»ΠΈΠ±ΠΎ ΠΈΠ·ΠΌΠ΅Π½ΠΈΡΡ ΠΏΡΠΎΠΏΠΎΡΡΠΈΠΈ Π΄ΠΎ ΠΆΠ΅Π»Π°Π΅ΠΌΡΡ ΡΠ΅Π·ΡΠ»ΡΡΠ°ΡΠΎΠ² ΠΈΡΡ ΠΎΠ΄Ρ ΠΈΠ· ΠΏΠΎΡΡΠ΅Π±Π½ΠΎΡΡΠ΅ΠΉ ΠΈ ΠΌΠ°ΡΠ΅ΡΠΈΠ°Π»ΠΎΠ².
Π ΠΈΠ½ΡΠ΅ΡΠ½Π΅Ρ-ΠΌΠ°Π³Π°Π·ΠΈΠ½Π°Ρ ΠΏΡΠΈΠ½ΡΡΠΎ ΡΠΊΠ°Π·ΡΠ²Π°ΡΡ Π² ΠΎΡΠ½ΠΎΠ²Π½ΠΎΠΌ Π²Π½Π΅ΡΠ½ΠΈΠ΅ ΡΠ°Π·ΠΌΠ΅ΡΡ, Π² ΠΊΠΎΡΠΎΡΡΠ΅ Π²Ρ ΠΎΠ΄ΡΡ ΡΠ°ΠΊΠΆΠ΅ ΠΈ Π±ΠΎΠΊΠΎΠ²ΡΠ΅ ΠΈ Π²Π΅ΡΡ Π½ΠΈΠ΅ ΡΡΡΠΊΠΈ. ΠΡΠΎ ΠΌΠ°Π»ΠΎΠ·Π½Π°ΡΠΈΡΠ΅Π»ΡΠ½Π°Ρ ΠΈΠ½ΡΠΎΡΠΌΠ°ΡΠΈΡ, Ρ ΠΎΡΡ ΠΈ Π²Π½ΡΡΠΈΡΠ΅Π»ΡΠ½Π°Ρ Π΄Π»Ρ ΠΏΠΎΠΊΡΠΏΠ°ΡΠ΅Π»Ρ. ΠΠ΅Π»Π°Ρ ΠΊΠΎΠΏΡΠΈΠ»ΡΠ½Ρ ΡΠ²ΠΎΠΈΠΌΠΈ ΡΡΠΊΠ°ΠΌΠΈ Π½Π°ΡΠΈΠ½Π°ΡΡ ΠΏΡΠΎΠ΅ΠΊΡΠΈΡΠΎΠ²Π°Π½ΠΈΠ΅ ΠΆΠ΅Π»Π°ΡΠ΅Π»ΡΠ½ΠΎ Ρ Π²Π½ΡΡΡΠ΅Π½Π½Π΅ΠΉ ΡΠ°Π±ΠΎΡΠ΅ΠΉ ΠΊΠ°ΠΌΠ΅ΡΡ Ρ ΡΡΠ΅ΡΠΎΠΌ ΡΠΈΠΏΠ° ΠΊΡΡΡΠΊΠΈ. ΠΠΎΠΌΠΈΠΊΠΎΠΌ Π΄ΠΎΠ±Π°Π²ΠΈΡ Π΄ΠΎΠΏΠΎΠ»Π½ΠΈΡΠ΅Π»ΡΠ½ΡΠ΅ 2-5 ΡΠ°Π½ΡΠΈΠΌΠ΅ΡΡΠΎΠ².
Π Π°Π·ΠΌΠ΅ΡΡ ΠΏΡΠ΅Π΄ΡΡΠ°Π²Π»Π΅Π½Π½ΠΎΠΉ ΠΊΠΎΠΏΡΠΈΠ»ΡΠ½ΠΈ
| Π Π°Π·ΠΌΠ΅Ρ ΠΊΠΎΠΏΡΠΈΠ»ΡΠ½ΠΈ Π³ΠΎΡΡΡΠ΅Π³ΠΎ ΠΊΠΎΠΏΡΠ΅Π½ΠΈΡ | |
|---|---|
| ΠΠ½Π΅ΡΠ½ΠΈΠΉ ΡΠ°Π·ΠΌΠ΅Ρ: | |
| Π¨ΠΈΡΠΈΠ½Π°, ΠΌΠΌ | 445 | 
| ΠΠ»ΠΈΠ½Π°, ΠΌΠΌ | 240 | 
| ΠΡΡΠΎΡΠ°, ΠΌΠΌ | 265 | 
| ΠΠ½ΡΡΡΠ΅Π½Π½ΠΈΠΉ ΡΠ°Π·ΠΌΠ΅Ρ: | |
| Π¨ΠΈΡΠΈΠ½Π°, ΠΌΠΌ | 400 | 
| ΠΠ»ΠΈΠ½Π°, ΠΌΠΌ | 200 | 
| ΠΡΡΠΎΡΠ°, ΠΌΠΌ | *200 | 
*ΠΡΡΠΎΡΠ° ΡΠΎΠ»ΡΠΊΠΎ ΠΏΠΎ ΠΎΡΠ½ΠΎΠ²Π°Π½ΠΈΡ Π±Π΅Π· ΡΡΠ΅ΡΠ° ΡΠ΅Π»ΡΠ΅ΡΠ° ΠΊΡΡΡΠΊΠΈ
Π§Π΅ΡΡΠ΅ΠΆ ΡΠ΅ΡΠ΅ΡΠΊΠΈ
| Π Π°Π·ΠΌΠ΅Ρ ΡΠ΅ΡΠ΅ΡΠΊΠΈ ΠΊΠΎΠΏΡΠΈΠ»ΡΠ½ΠΈ | |
|---|---|
| Π¨ΠΈΡΠΈΠ½Π°, ΠΌΠΌ | 190 | 
| ΠΠ»ΠΈΠ½Π°, ΠΌΠΌ | 390 | 
| Π¨Π°Π³ ΠΏΠ΅ΡΠ΅ΠΌΡΡΠ΅ΠΊ, ΠΌΠΌ | 40 | 
| Π-Π²ΠΎ ΠΏΠ΅ΡΠ΅ΠΌΡΡΠ΅ΠΊ, ΡΡ | *4 | 
| ΠΠΈΠ°ΠΌΠ΅ΡΡ ΠΏΡΠΎΠ²ΠΎΠ»ΠΎΠΊΠΈ, ΠΌΠΌ | 3 | 
*ΠΡΠΈΠ²Π΅Π΄Π΅Π½ΠΎ ΠΊΠΎΠ»ΠΈΡΠ΅ΡΡΠ²ΠΎ ΡΠΎΠ»ΡΠΊΠΎ Π²Π½ΡΡΡΠ΅Π½Π½ΠΈΡ ΠΏΠ΅ΡΠ΅ΠΌΡΡΠ΅ΠΊ
Π Ρ
ΠΎΠ΄Π΅ ΡΠΊΡΠΏΠ»ΡΠ°ΡΠ°ΡΠΈΠΈ ΠΊΠΎΠΏΡΠΈΠ»ΡΠ½ΠΈ Ρ ΡΠ°ΠΊΠΈΠΌΠΈ ΡΠ΅ΡΠ΅ΡΠΊΠ°ΠΌΠΈ ΠΎΠΊΠ°Π·Π°Π»ΠΎΡΡ, ΡΡΠΎ ΠΎΠ½Π° Π΄ΠΎΠ»ΠΆΠ½Π° ΠΈΠΌΠ΅ΡΡ Π΄ΠΎΠΏΠΎΠ»Π½ΠΈΡΠ΅Π»ΡΠ½ΡΠ΅ ΠΏΠ΅ΡΠ΅ΠΌΡΡΠΊΠΈ ΠΏΠΎ Π΄Π»ΠΈΠ½Π΅ ΠΎΠΊΠΎΠ»ΠΎ 3-4 ΡΡΡΠΊ. ΠΠ΅Π· Π½ΠΈΡ
 ΡΠ»ΠΎΠΆΠ½Π΅Π΅ ΡΠ»ΠΎΠΆΠΈΡΡ ΠΏΡΠΎΠ΄ΡΠΊΡΡ, ΠΊΠΎΡΠΎΡΡΠ΅ ΠΌΠΎΠ³ΡΡ ΠΏΡΠΎΠ²Π°Π»ΠΈΡΡΡΡ. ΠΡΠΎ ΠΎΡΠ½ΠΎΡΠΈΡΡΡ ΠΊ ΡΡΠ±Π΅, ΡΠΎΠ½ΠΊΠΎΠΌΡ ΡΠ°Π»Ρ ΠΈ Π΄Ρ.
 ΠΠ΅Π· Π½ΠΈΡ
 ΡΠ»ΠΎΠΆΠ½Π΅Π΅ ΡΠ»ΠΎΠΆΠΈΡΡ ΠΏΡΠΎΠ΄ΡΠΊΡΡ, ΠΊΠΎΡΠΎΡΡΠ΅ ΠΌΠΎΠ³ΡΡ ΠΏΡΠΎΠ²Π°Π»ΠΈΡΡΡΡ. ΠΡΠΎ ΠΎΡΠ½ΠΎΡΠΈΡΡΡ ΠΊ ΡΡΠ±Π΅, ΡΠΎΠ½ΠΊΠΎΠΌΡ ΡΠ°Π»Ρ ΠΈ Π΄Ρ.
Π§Π΅ΡΡΠ΅ΠΆ ΠΏΠΎΠ΄Π΄ΠΎΠ½Π°
| Π Π°Π·ΠΌΠ΅Ρ ΠΏΠΎΠ΄Π΄ΠΎΠ½Π° ΠΊΠΎΠΏΡΠΈΠ»ΡΠ½ΠΈ | |
|---|---|
| Π’ΠΎΠ»ΡΠΈΠ½Π° ΡΡΠ°Π»ΠΈ, ΠΌΠΌ | 0.8-1 | 
| Π¨ΠΈΡΠΈΠ½Π°, ΠΌΠΌ | 185 | 
| ΠΠ»ΠΈΠ½Π°, ΠΌΠΌ | 380 | 
| ΠΡΡΠΎΡΠ° Π±ΠΎΡΡΠΈΠΊΠΎΠ², ΠΌΠΌ | 20 | 
| ΠΡΡΠΎΡΠ° Π½ΠΎΠΆΠ΅ΠΊ, ΠΌΠΌ | 20 | 
Π§Π΅ΡΡΠ΅ΠΆ ΠΎΡΠ½ΠΎΠ²Π°Π½ΠΈΡ (ΡΡΠΈΠΊΠ°)
Π’Π°Π±Π»ΠΈΡΠ½ΡΠ΅ Π΄Π°Π½Π½ΡΠ΅ ΠΌΠΎΠ³ΡΡ ΠΈΠΌΠ΅ΡΡ Π² Π²Π°ΡΠ΅ΠΌ ΡΠ»ΡΡΠ°Π΅ ΠΏΠΎΠ³ΡΠ΅ΡΠ½ΠΎΡΡΠΈ Π² Π·Π°Π²ΠΈΡΠΈΠΌΠΎΡΡΠΈ ΠΎΡ Π²ΡΠ±ΡΠ°Π½Π½ΠΎΠΉ ΡΠΎΠ»ΡΠ΅Π½Ρ ΠΌΠ΅ΡΠ°Π»Π»Π° ΠΈ ΠΏΠΎΡΠ΅ΡΡ Π½Π° ΡΠ°Π΄ΠΈΡΡ ΠΈΠ·Π³ΠΈΠ±Π°. Π‘ΡΡΠ΅ΡΡΠ²ΡΠ΅Ρ Π½Π΅ΡΠΊΠΎΠ»ΡΠΊΠΎ ΠΌΠ΅ΡΠΎΠ΄ΠΈΠΊ, ΠΏΠΎ ΠΊΠΎΡΠΎΡΡΠΌ ΠΌΠΎΠΆΠ½ΠΎ ΡΠ²Π°ΡΠΈΡΡ ΡΡΠΈΠΊ ΠΊΠΎΠΏΡΠΈΠ»ΡΠ½ΠΈ.
1. ΠΠ°ΠΆΠ΄Π°Ρ ΠΏΠ»ΠΎΡΠΊΠΎΡΡΡ ΡΠ²Π»ΡΠ΅ΡΡΡ ΠΎΡΠ΄Π΅Π»ΡΠ½ΠΎΠΉ Π²ΡΠΊΡΠΎΠΉΠΊΠΎΠΉ
2. ΠΠ° ΡΠ΅Π»ΡΠ½ΠΎΠΌ Π»ΠΈΡΡΠ΅ ΡΠ³ΠΈΠ±Π°ΡΡΡΡ Π²ΡΠ΅ Π²Π΅ΡΡΠΈΠΊΠ°Π»ΡΠ½ΡΠ΅ ΠΏΠ»ΠΎΡΠΊΠΎΡΡΠΈ ΠΈ ΠΏΡΠΈΠ²Π°ΡΠΈΠ²Π°Π΅ΡΡΡ Π½ΠΈΠ·
3. Π‘ ΡΠ΅Π»ΡΠ½ΠΎΠ³ΠΎ Π»ΠΈΡΡΠ° ΡΠ³ΠΈΠ±Π°Π΅ΡΡΡ Π½ΠΈΠ· Ρ ΡΠΈΡΠΎΠΊΠΈΠΌΠΈ ΡΡΠΎΡΠΎΠ½Π°ΠΌΠΈ, Π° ΡΠΎΡΡΡ ΠΏΡΠΈΠ²Π°ΡΠΈΠ²Π°ΡΡΡΡ
ΠΡΠ΅Π΄ΡΡΠ°Π²Π»Π΅Π½Π½Π°Ρ ΠΊΠΎΠΏΡΠΈΠ»ΡΠ½Ρ ΡΠΎΠ±ΠΈΡΠ°Π»Π°ΡΡ ΠΏΠΎ ΡΡΠ΅ΡΡΠ΅ΠΌΡ Π²Π°ΡΠΈΠ°Π½ΡΡ Π½Π° Π³ΠΈΠ±ΠΎΡΠ½ΠΎΠΌ ΡΡΠ°Π½ΠΊΠ΅ Π±Π΅Π· ΠΏΡΠ΅Π΄Π²Π°ΡΠΈΡΠ΅Π»ΡΠ½ΠΎΠΉ ΠΏΡΠΎΠΏΠΈΠ»ΠΊΠΈ ΠΏΠ°Π·ΠΎΠ².
| Π Π°Π·ΠΌΠ΅Ρ ΠΎΡΠ½ΠΎΠ²Π°Π½ΠΈΡ ΠΊΠΎΠΏΡΠΈΠ»ΡΠ½ΠΈ | |
|---|---|
| Π Π°ΡΠΊΡΠΎΠΉΠΊΠ° Π»ΠΈΡΡΠ°: | |
| Π¨ΠΈΡΠΈΠ½Π°, ΠΌΠΌ | 400 | 
| ΠΠ»ΠΈΠ½Π°, ΠΌΠΌ | 600 | 
| Π Π°ΡΠΊΡΠΎΠΉΠΊΠ° ΡΠΎΡΡΠ°: | |
| Π¨ΠΈΡΠΈΠ½Π°, ΠΌΠΌ | 197 | 
| ΠΡΡΠΎΡΠ°, ΠΌΠΌ | 200 | 
ΠΠ° ΡΠΎΡΡΠ΅Π²ΡΡ ΡΡΠ΅Π½ΠΊΠ°Ρ Ρ Π²Π½ΡΡΡΠ΅Π½Π½Π΅ΠΉ ΡΡΠΎΡΠΎΠ½Ρ ΠΏΡΠΈΠ²Π°ΡΠ΅Π½ΠΎ Π΄Π²Π΅ ΠΌΠ΅ΡΠ°Π»Π»ΠΈΡΠ΅ΡΠΊΠΈΠ΅ ΠΏΠΎΠ»ΠΎΡΡ Π²ΡΠΏΠΎΠ»Π½ΡΡΡΠΈΠ΅ ΡΠΎΠ»Ρ ΠΎΠΏΠΎΡΡ Π΄Π»Ρ Π²Π΅ΡΡ Π½Π΅Π³ΠΎ ΡΡΡΡΠ°. ΠΡΠ΅ΠΏΠΈΡΡΡ ΠΎΠ½Π° Π½Π° ΡΠ°ΡΡΡΠΎΡΠ½ΠΈΠ΅ 60ΠΌΠΌ ΠΎΡ Π²Π΅ΡΡ Π½Π΅Π³ΠΎ ΠΊΡΠ°Ρ.
| Π Π°Π·ΠΌΠ΅Ρ ΠΏΠ»ΠΎΡΠ°Π΄ΠΊΠΈ ΠΏΠΎΠ΄ ΡΠ΅ΡΠ΅ΡΠΊΡ | |
|---|---|
| Π¨ΠΈΡΠΈΠ½Π°, ΠΌΠΌ | 100 | 
| ΠΠ»ΠΈΠ½Π°, ΠΌΠΌ | 15 | 
Π§Π΅ΡΡΠ΅ΠΆ Π³ΠΈΠ΄ΡΠΎΠ·Π°ΡΠ²ΠΎΡΠ°
Π§Π°ΡΡΠΎ Π³ΠΈΠ΄ΡΠΎΠ·Π°ΡΠ²ΠΎΡ Π΄Π΅Π»Π°ΡΡ ΠΈΠ· Π³ΠΎΡΠΎΠ²ΠΎΠ³ΠΎ ΡΠ³ΠΎΠ»ΠΊΠ° Π½Π΅Π±ΠΎΠ»ΡΡΠΎΠ³ΠΎ ΡΠ°Π·ΠΌΠ΅ΡΠ°, Π»ΠΈΠ±ΠΎ Π΄ΠΎΠ²ΠΎΠ΄ΡΡ Π±ΠΎΠ»Π³Π°ΡΠΊΠΎΠΉ, ΠΈΠΌΠ΅ΡΡΠΈΠΉΡΡ Π² Π½Π°Π»ΠΈΡΠΈΠΈ. ΠΡΠΎ Π½Π°ΠΌΠ½ΠΎΠ³ΠΎ ΡΠ΄ΠΎΠ±Π½Π΅Π΅, ΡΠ΅ΠΌ Π΅Π³ΠΎ Π³Π½ΡΡΡ Ρ Π»ΠΈΡΡΠΎΠ²ΠΎΠ³ΠΎ ΠΌΠ΅ΡΠ°Π»Π»Π° Π½Π΅ ΠΈΠΌΠ΅Ρ ΡΠΏΠ΅ΡΠΈΠ½ΡΡΡΡΠΌΠ΅Π½ΡΠ°.
| Π Π°Π·ΠΌΠ΅Ρ Π³ΠΈΠ΄ΡΠΎΠ·Π°ΡΠ²ΠΎΡΠ° | |
|---|---|
| Π Π΅ΠΉΠΊΠ° ΠΏΠΎ ΡΠΈΡΠΈΠ½Π΅: | |
| ΠΠ½Π΅ΡΠ½ΡΡ ΡΠΈΡΠΈΠ½Π°, ΠΌΠΌ | 440 | 
| ΠΠ½ΡΡΡΠ΅Π½Π½ΡΡ ΡΠΈΡΠΈΠ½Π°, ΠΌΠΌ | 400 | 
| ΠΡΡΠΎΡΠ°, ΠΌΠΌ | 20 | 
| Π Π΅ΠΉΠΊΠ° ΠΏΠΎ Π΄Π»ΠΈΠ½Π΅: | |
| ΠΠ½Π΅ΡΠ½ΡΡ ΡΠΈΡΠΈΠ½Π°, ΠΌΠΌ | 240 | 
| ΠΠ½ΡΡΡΠ΅Π½Π½ΡΡ ΡΠΈΡΠΈΠ½Π°, ΠΌΠΌ | 200 | 
| ΠΡΡΠΎΡΠ°, ΠΌΠΌ | 20 | 
Π§Π΅ΡΡΠ΅ΠΆ ΠΊΡΡΡΠΊΠΈ
Π Π΄Π°Π½Π½ΠΎΠΌ ΡΠ»ΡΡΠ°Π΅ ΠΊΡΡΡΠΊΠ° ΠΏΡΠ΅Π΄Π»Π°Π³Π°Π΅ΡΡΡ Π² ΡΠΎΡΠΌΠ΅ Π΄ΠΎΠΌΠΈΠΊΠ° ΠΈΠ· ΡΠ΅Π»ΡΠ½ΠΎΠ³ΠΎ Π»ΠΈΡΡΠ° Ρ Π²Π²Π°ΡΠΈΠ²Π°Π΅ΠΌΡΠΌΠΈ Π±ΠΎΠΊΠΎΠ²ΡΠΌΠΈ ΡΠΎΡΡΠ°ΠΌΠΈ. ΠΠ»Ρ ΡΠ΄ΠΎΠ±ΡΡΠ²Π° ΠΈΡ ΠΌΠΎΠΆΠ½ΠΎ ΡΠΎΠ±ΡΠ°ΡΡ ΠΈΠ· ΠΎΡΠ΄Π΅Π»ΡΠ½ΡΡ ΠΏΠΎΠ»ΠΎΡ. ΠΡΠ»ΠΈ ΡΠΎΠ²ΡΠ΅ΠΌ Π½Π΅Ρ ΠΆΠ΅Π»Π°Π½ΠΈΡ, ΡΠΎ ΠΌΠΎΠΆΠ½ΠΎ Π΅Π΅ Π·Π°ΠΌΠ΅Π½ΠΈΡΡ Π½Π° ΠΏΠ»ΠΎΡΠΊΡΡ ΡΡΠΈΡΡΠ²Π°Ρ Π² Π΄Π°Π»ΡΠ½Π΅ΠΉΡΠ΅ΠΌ Π΅Π΅ Π½Π΅Π΄ΠΎΡΡΠ°ΡΠΊΠΈ ΠΏΡΠΈ ΠΊΠΎΠΏΡΠ΅Π½ΠΈΠΈ.
Π’ΠΎΠ»ΡΠΈΠ½Π° ΡΡΠ°Π»ΠΈ ΡΠ°ΠΊΠΆΠ΅ Π²ΡΠ±ΡΠ°Π½Π° 2ΠΌΠΌ.
| Π Π°Π·ΠΌΠ΅Ρ ΠΊΡΡΡΠΊΠΈ ΠΊΠΎΠΏΡΠΈΠ»ΡΠ½ΠΈ | |
|---|---|
| Π Π°Π·ΠΌΠ΅Ρ ΠΏΡΠΎΠ΅ΠΊΡΠΈΠΈ ΠΊΡΡΡΠΊΠΈ: | |
| Π¨ΠΈΡΠΈΠ½Π°, ΠΌΠΌ | 420 | 
| ΠΠ»ΠΈΠ½Π°, ΠΌΠΌ | 230 | 
| ΠΠΎΠ»Π½ΡΠΉ ΡΠ°Π·ΠΌΠ΅Ρ Π»ΠΈΡΡΠ° ΠΊΡΡΡΠΊΠΈ: | |
| Π¨ΠΈΡΠΈΠ½Π°, ΠΌΠΌ | 420 | 
| ΠΠ»ΠΈΠ½Π°, ΠΌΠΌ | 260 | 
Π§Π΅ΡΡΠ΅ΠΆ ΡΠΎΡΡΠ΅Π²ΠΎΠΉ ΡΡΠ΅Π½ΠΊΠΈ ΠΊΡΡΡΠΊΠΈ
Π§Π΅ΡΡΠ΅ΠΆ ΠΏΠ»Π°ΡΡΠΈΠ½Ρ ΠΈΠ· ΠΊΠΎΡΠΎΡΠΎΠΉ Π΄Π΅Π»Π°Π΅ΡΡΡ ΠΊΡΡΡΠΊΠ° ΠΊΠΎΠΏΡΠΈΠ»ΡΠ½ΠΈ ΠΈΠ·ΠΎΠ±ΡΠ°ΠΆΠ΅Π½ Π½Π° ΡΠΈΡΡΠ½ΠΊΠ΅.
Π£ΡΡΠ°Π½ΠΎΠ²ΠΊΠ° Π³ΡΠ°Π΄ΡΡΠ½ΠΈΠΊΠ°
ΠΠ»Ρ ΡΠ΅Ρ , ΠΊΡΠΎ ΡΠ°ΠΌΠΎΡΡΠΎΡΡΠ΅Π»ΡΠ½ΠΎ ΠΎΡΠ²Π°ΠΈΠ²Π°Π΅Ρ Π°Π·Ρ Π³ΠΎΡΡΡΠ΅Π³ΠΎ ΠΊΠΎΠΏΡΠ΅Π½ΠΈΡ Π½Π΅ Π»ΠΈΡΠ½ΠΈΠΌ ΡΡΠ°Π½Π΅Ρ ΡΡΡΠ°Π½ΠΎΠ²ΠΊΠ° ΡΠ΅ΡΠΌΠΎΠΌΠ΅ΡΡΠ°. ΠΠ½ΠΈ Π±ΡΠ²Π°ΡΡ ΡΠ»Π΅ΠΊΡΡΠΎΠ½Π½ΡΠ΅ ΠΈ ΠΌΠ΅Ρ Π°Π½ΠΈΡΠ΅ΡΠΊΠΈΠ΅. ΠΠ±Π° Π½Π΅ Π±ΡΠ΄ΡΡ ΠΏΠΎΠΊΠ°Π·ΡΠ²Π°ΡΡ ΡΠΎΡΠ½ΡΠ΅ ΠΈΠ·ΠΌΠ΅ΡΠ΅Π½ΠΈΡ ΠΏΠΎ ΠΌΠ½ΠΎΠ³ΠΈΠΌ ΠΏΡΠΈΡΠΈΠ½Π°ΠΌ. ΠΡ ΡΡΠΎΠΌΡ ΠΏΠΎΡΠ²ΡΡΠΈΠ»ΠΈ ΠΎΡΠ΄Π΅Π»ΡΠ½ΠΎ ΡΠ½ΡΡΠΎΠ΅ Π²ΠΈΠ΄Π΅ΠΎ, Π³Π΄Π΅ Π²Ρ ΡΠΌΠΎΠΆΠ΅ΡΠ΅ ΡΠ·Π½Π°ΡΡ ΠΎ ΠΌΠ½ΠΎΠ³ΠΈΡ Π½ΡΠ°Π½ΡΠ°Ρ ΠΌΠ΅Ρ Π°Π½ΠΈΡΠ΅ΡΠΊΠΈΡ Π³ΡΠ°Π΄ΡΡΠ½ΠΈΠΊΠΎΠ².
ΠΠ°ΠΊΠ»ΡΡΠ΅Π½ΠΈΠ΅
ΠΠΎ Π²ΡΠ΅ΠΌΡ ΠΏΠΎΠ΄Π³ΠΎΡΠΎΠ²ΠΊΠΈ ΡΡΠ°ΡΡΠΈ ΠΎ ΡΠΎΠΌ, ΠΊΠ°ΠΊ ΡΠ΄Π΅Π»Π°ΡΡ ΠΊΠΎΠΏΡΠΈΠ»ΡΠ½Ρ ΡΠ²ΠΎΠΈΠΌΠΈ ΡΡΠΊΠ°ΠΌΠΈ ΠΌΡ Π½Π°ΡΠ»ΠΈ Π΄Π²Π° Π΄ΠΎΡΡΠ°ΡΠΎΡΠ½ΠΎ ΠΈΠ½ΡΠ΅ΡΠ΅ΡΠ½ΡΡ ΡΠΎΠ»ΠΈΠΊΠ° Π½Π° ΡΡΡΠ±Π΅ Ρ Π½Π°Π³Π»ΡΠ΄Π½ΠΎΠΉ Π΄Π΅ΠΌΠΎΠ½ΡΡΡΠ°ΡΠΈΠ΅ΠΉ Π²ΡΠ΅Π³ΠΎ ΠΏΡΠΎΡΠ΅ΡΡΠ°. Π‘Π°ΠΌΠΎΠ΅ Π²Π°ΠΆΠ½ΠΎΠ΅ Π² Π½ΠΈΡ , ΡΠ²Π°ΡΠΊΠ° Π²Π΅Π΄Π΅ΡΡΡ ΠΎΠ±ΡΡΠ½ΡΠΌ ΡΠ»Π΅ΠΊΡΡΠΎΠ΄ΠΎΠΌ.
Π ΠΏΠ΅ΡΠ²ΠΎΠΌ Π²ΠΈΠ΄Π΅ΠΎ ΠΏΠΎΠΊΠ°Π·ΡΠ²Π°Π΅ΡΡΡ Π½Π° ΡΠΊΠΎΠ»ΡΠΊΠΎ Π»Π΅Π³ΠΊΠΎ ΠΌΠΎΠΆΠ½ΠΎ ΡΠΎΠ±ΡΠ°ΡΡ ΠΊΠΎΠΏΡΠΈΠ»ΡΠ½Ρ Π³ΠΎΡΡΡΠ΅Π³ΠΎ ΠΊΠΎΠΏΡΠ΅Π½ΠΈΡ ΠΈΠ· ΡΡΠ°ΡΠΎΠ³ΠΎ ΡΠΆΠ°Π²ΠΎΠ³ΠΎ Π»ΠΈΡΡΠ° ΠΌΠ΅ΡΠ°Π»Π° Π² ΠΎΠ±ΡΡΠ½ΡΡ Π³Π°ΡΠ°ΠΆΠ½ΡΡ ΡΡΠ»ΠΎΠ²ΠΈΡΡ . ΠΠ· Π·Π°ΠΌΠ΅ΡΠ°Π½ΠΈΠΉ ΡΡΠΎ Π±Π»ΠΈΠ·ΠΊΠΎΡΠ°ΡΠΏΠΎΠ»ΠΎΠΆΠ΅Π½Π½ΡΠ΅ ΠΊ ΡΠ΅Π½ΡΡΡ ΡΡΡΠΊΠΈ Ρ ΠΏΠ΅ΡΠ΅ΠΌΡΡΠΊΠ°ΠΌΠΈ Π½Π° ΠΆΠΈΡΠΎΠ²ΠΎΠΌ ΠΏΠΎΠ΄Π΄ΠΎΠ½Π΅. ΠΠ½ΠΈ ΠΌΠ΅ΡΠ°ΡΡ ΡΠ΄ΠΎΠ±Π½ΠΎ ΠΏΠΎΠ»ΠΎΠΆΠΈΡΡ Π½Π° Π΄Π½ΠΎ ΡΠΎΠ»ΡΠ³Ρ. Π ΠΎΡΡΠ°Π»ΡΠ½ΠΎΠΌ, ΡΡΠΎ ΠΊΠ»Π°Π΄Π΅Π·Ρ ΡΡΠΆΠΎΠ³ΠΎ ΠΎΠΏΡΡΠ°.
youtube.com/embed/6MKliKEmmAk» frameborder=»0″ allow=»accelerometer; autoplay; encrypted-media; gyroscope; picture-in-picture» allowfullscreen=»»/>ΠΡΠΎΡΠΎΠ΅ Π²ΠΈΠ΄Π΅ΠΎ Π±ΠΎΠ»Π΅Π΅ ΡΠ΅Ρ Π½ΠΎΠ»ΠΎΠ³ΠΈΡΠ½ΠΎΠ΅. ΠΠ°ΠΆΠ΄ΡΠΉ ΡΠ»Π΅ΠΌΠ΅Π½Ρ ΡΠΎΡΡΠΎΠΈΡ ΠΈΠ· ΠΎΡΠ΄Π΅Π»ΡΠ½ΠΎ Π²ΡΡΠ΅Π·Π°Π½Π½ΡΡ Π΄Π΅ΡΠ°Π»Π΅ΠΉ. Π£Π΄Π΅Π»Π΅Π½ΠΎ Π²Π½ΠΈΠΌΠ°Π½ΠΈΠ΅ ΡΠ±ΠΎΡΠΊΠ΅ ΠΊΡΡΡΠΊΠΈ ΡΡΠ΅ΡΠ³ΠΎΠ»ΡΠ½ΠΎΠΉ ΡΠΎΡΠΌΡ. ΠΠΎ ΡΡΡ Π½Π° Π½Π°ΡΠ΅ ΠΌΠ½Π΅Π½ΠΈΠ΅ Π½Π΅ Π»ΡΡΡΠ΅Π΅ ΡΠ΅ΡΠ΅Π½ΠΈΠ΅ ΠΏΠΎ ΠΈΠ·Π³ΠΎΡΠΎΠ²Π»Π΅Π½ΠΈΡ Π²Π½ΡΡΡΠ΅Π½Π½Π΅ΠΉ ΡΠ°ΡΡΠΈ Ρ ΡΠ΅ΡΠ΅ΡΠΊΠ°ΠΌΠΈ ΠΈ ΠΏΠΎΠ΄Π΄ΠΎΠ½ΠΎΠΌ. Π’Π°ΠΊΠΆΠ΅ Π΄ΠΈΠ°ΠΌΠ΅ΡΡ ΠΏΠ°ΡΡΡΠ±ΠΊΠ° ΡΠ»ΠΈΡΠΊΠΎΠΌ Π±ΠΎΠ»ΡΡΠΎΠΉ, Π΄ΠΎΡΡΠ°ΡΠΎΡΠ½ΠΎ Ρ Π²Π½ΡΡΡΠ΅Π½Π½ΠΈΠΌ ΠΎΡΠ²Π΅ΡΡΡΠΈΠ΅ΠΌ 10 ΠΌΠΌ.
ΠΡΠ»ΠΈ Π²Ρ Π½Π°ΡΠ»ΠΈ Π² Π½Π°ΡΠ΅ΠΉ ΡΡΠ°ΡΡΠ΅ ΠΏΠΎΠ»Π΅Π·Π½ΡΡ ΠΈΠ½ΡΠΎΡΠΌΠ°ΡΠΈΡ, Π±ΡΠ΄Π΅ΠΌ ΡΠ°Π΄Ρ, Π΅ΡΠ»ΠΈ Π²Ρ Π΅Ρ ΠΏΠΎΠ΄Π΅Π»ΠΈΡΠ΅ΡΡ Π² ΡΠ²ΠΎΠΈΡ ΡΠΎΡΠΈΠ°Π»ΡΠ½ΡΡ ΡΠ΅ΡΡΡ ΠΈΠ»ΠΈ Π½Π° ΡΠΎΡΡΠΌΠ°Ρ Π² ΠΊΠ°ΡΠ΅ΡΡΠ²Π΅ Π±Π»Π°Π³ΠΎΠ΄Π°ΡΠ½ΠΎΡΡΠΈ. Π’Π°ΠΊΠΆΠ΅ ΠΆΠ΄Π΅ΠΌ Π²Π°ΡΠΈΡ Π²ΠΎΠΏΡΠΎΡΠΎΠ² ΠΈ Π΄ΠΎΠΏΠΎΠ»Π½Π΅Π½ΠΈΠΉ Π² ΠΎΡΠ·ΡΠ²Π°Ρ . ΠΡΡΠΊΠΈΠ΅ Π½ΠΎΠ²ΡΠ΅ ΠΏΠΎΠ»Π΅Π·Π½ΠΎΡΡΠΈ Π΄ΠΎΠ±Π°Π²ΠΈΠΌ Π² Π½ΡΠΆΠ½ΡΠΉ ΡΠ°Π·Π΄Π΅Π».
ΡΠ΅ΡΡΠ΅ΠΆ, ΡΠ°Π·ΠΌΠ΅ΡΡ, ΡΠΎΡΠΎ ΠΈ Π²ΠΈΠ΄Π΅ΠΎ
ΠΠΎΠΌΠ°ΡΠ½Π΅Π΅ ΠΊΠΎΠΏΡΠ΅Π½ΠΈΠ΅ ΡΡΠ°Π½ΠΎΠ²ΠΈΡΡΡ Π²ΡΠ΅ Π±ΠΎΠ»Π΅Π΅ ΠΏΠΎΠΏΡΠ»ΡΡΠ½ΡΠΌ ΡΡΠ΅Π΄ΠΈ ΠΎΠ±ΡΡΠ½ΡΡ
 Π»ΡΠ΄Π΅ΠΉ. ΠΠ΅Π΄Ρ ΡΡΠΎ ΠΈ Π½Π΅ ΡΠ΄ΠΈΠ²ΠΈΡΠ΅Π»ΡΠ½ΠΎ. ΠΠΎΡΠΎΠ²Π°Ρ ΠΏΡΠΎΠ΄ΡΠΊΡΠΈΡ ΠΏΡΠΈ Π΄ΠΎΠ»ΠΆΠ½ΠΎΠΌ ΠΎΠΏΡΡΠ΅ Π½Π΅ ΠΈΠ΄Π΅Ρ Π½ΠΈ Π² ΠΊΠ°ΠΊΠΎΠ΅ ΡΡΠ°Π²Π½Π΅Π½ΠΈΠ΅ Ρ ΠΌΠ°Π³Π°Π·ΠΈΠ½Π½ΡΠΌΠΈ ΠΈΠ»ΠΈ Π·Π°Π»Π΅ΠΆΠ°Π²ΡΠΈΠΌΠΈΡΡ Π±Π°Π·Π°ΡΠ½ΡΠΌΠΈ ΠΊΠΎΠΏΡΠ΅Π½ΠΎΡΡΡΠΌΠΈ. ΠΡΠΎΠΌΠ΅ ΡΠΎΠ³ΠΎ, ΡΡΠΎ ΠΎΡΡΡΠΈΠΌΠ°Ρ ΡΠΊΠΎΠ½ΠΎΠΌΠΈΡ. ΠΡ Π²ΠΊΠ»Π°Π΄ΡΠ²Π°Π΅ΡΠ΅ ΡΠΎΠ»ΡΠΊΠΎ Π² ΡΠ°ΠΌΠΎ ΠΌΡΡΠΎ ΠΈ ΡΠ΅ΠΏΡ, Π΅ΡΠ»ΠΈ Π΅Π΅ Π½Π΅Π³Π΄Π΅ Π½Π°ΡΡΡΡΠ³Π°ΡΡ ΡΠ°ΠΌΠΎΡΡΠΎΡΡΠ΅Π»ΡΠ½ΠΎ. ΠΠΎΠ»ΡΡΠ°Π΅ΡΠ΅ ΠΆΠ΅ Π²Π·Π°ΠΌΠ΅Π½ ΠΎΠ³ΡΠΎΠΌΠ½ΠΎΠ΅ ΠΌΠ½ΠΎΠΆΠ΅ΡΡΠ²ΠΎ Π²Π°ΡΠΈΠ°Π½ΡΠΎΠ² ΠΏΡΠΈΠ³ΠΎΡΠΎΠ²Π»Π΅Π½ΠΈΡ ΠΎΡ ΠΎΠ±ΡΡΠ½ΠΎΠ³ΠΎ ΡΠ°Π»Π°, ΡΡΠ±Ρ, ΠΏΡΠΈΡΡ ΠΈ ΠΌΡΡΠ°, Π΄ΠΎ ΠΊΠΎΠ»Π±Π°Ρ.
 ΠΠ΅Π΄Ρ ΡΡΠΎ ΠΈ Π½Π΅ ΡΠ΄ΠΈΠ²ΠΈΡΠ΅Π»ΡΠ½ΠΎ. ΠΠΎΡΠΎΠ²Π°Ρ ΠΏΡΠΎΠ΄ΡΠΊΡΠΈΡ ΠΏΡΠΈ Π΄ΠΎΠ»ΠΆΠ½ΠΎΠΌ ΠΎΠΏΡΡΠ΅ Π½Π΅ ΠΈΠ΄Π΅Ρ Π½ΠΈ Π² ΠΊΠ°ΠΊΠΎΠ΅ ΡΡΠ°Π²Π½Π΅Π½ΠΈΠ΅ Ρ ΠΌΠ°Π³Π°Π·ΠΈΠ½Π½ΡΠΌΠΈ ΠΈΠ»ΠΈ Π·Π°Π»Π΅ΠΆΠ°Π²ΡΠΈΠΌΠΈΡΡ Π±Π°Π·Π°ΡΠ½ΡΠΌΠΈ ΠΊΠΎΠΏΡΠ΅Π½ΠΎΡΡΡΠΌΠΈ. ΠΡΠΎΠΌΠ΅ ΡΠΎΠ³ΠΎ, ΡΡΠΎ ΠΎΡΡΡΠΈΠΌΠ°Ρ ΡΠΊΠΎΠ½ΠΎΠΌΠΈΡ. ΠΡ Π²ΠΊΠ»Π°Π΄ΡΠ²Π°Π΅ΡΠ΅ ΡΠΎΠ»ΡΠΊΠΎ Π² ΡΠ°ΠΌΠΎ ΠΌΡΡΠΎ ΠΈ ΡΠ΅ΠΏΡ, Π΅ΡΠ»ΠΈ Π΅Π΅ Π½Π΅Π³Π΄Π΅ Π½Π°ΡΡΡΡΠ³Π°ΡΡ ΡΠ°ΠΌΠΎΡΡΠΎΡΡΠ΅Π»ΡΠ½ΠΎ. ΠΠΎΠ»ΡΡΠ°Π΅ΡΠ΅ ΠΆΠ΅ Π²Π·Π°ΠΌΠ΅Π½ ΠΎΠ³ΡΠΎΠΌΠ½ΠΎΠ΅ ΠΌΠ½ΠΎΠΆΠ΅ΡΡΠ²ΠΎ Π²Π°ΡΠΈΠ°Π½ΡΠΎΠ² ΠΏΡΠΈΠ³ΠΎΡΠΎΠ²Π»Π΅Π½ΠΈΡ ΠΎΡ ΠΎΠ±ΡΡΠ½ΠΎΠ³ΠΎ ΡΠ°Π»Π°, ΡΡΠ±Ρ, ΠΏΡΠΈΡΡ ΠΈ ΠΌΡΡΠ°, Π΄ΠΎ ΠΊΠΎΠ»Π±Π°Ρ.
ΠΠΎΠ»ΡΡΠΈΠΌ ΠΏΡΠ΅ΠΈΠΌΡΡΠ΅ΡΡΠ²ΠΎΠΌ ΠΊΠΎΠΏΡΠ΅Π½ΠΈΡ Π² Π΄ΠΎΠΌΠ°ΡΠ½ΠΈΡ
 ΡΡΠ»ΠΎΠ²ΠΈΡΡ
 ΡΠ²Π»ΡΠ΅ΡΡΡ Π½Π΅ΠΏΡΠΈΡ
ΠΎΡΠ»ΠΈΠ²ΠΎΡΡΡ ΠΊ Π΅ΠΌΠΊΠΎΡΡΠΈ, Π² ΠΊΠΎΡΠΎΡΠΎΠΉ ΠΏΡΠΎΠΈΡΡ
ΠΎΠ΄ΠΈΡ Π΄Π°Π½Π½ΡΠΉ ΠΏΡΠΎΡΠ΅ΡΡ. Π’ΡΡ ΠΈ Π΄Π°Π»ΡΡΠ΅ ΡΠ°ΡΡΠΌΠ°ΡΡΠΈΠ²Π°Π΅ΠΌ ΡΠΎΠ»ΡΠΊΠΎ Π³ΠΎΡΡΡΠ΅Π΅ ΠΊΠΎΠΏΡΠ΅Π½ΠΈΠ΅, ΠΏΠΎΡΠΎΠΌΡ ΡΡΠΎ Ρ
ΠΎΠ»ΠΎΠ΄Π½ΠΎΠ΅ β ΠΎΡΠ΄Π΅Π»ΡΠ½Π°Ρ Π±ΠΎΠ»ΡΡΠ°Ρ ΡΠ΅ΠΌΠ°. ΠΠΎΠ΄ ΡΡΠΈ Π½ΡΠΆΠ½Ρ ΡΠ°ΡΡΠΎ ΠΈΡΠΏΠΎΠ»ΡΠ·ΡΡΡ Π±ΠΎΡΠΊΡ, Π²ΡΠ²Π°ΡΠΊΡ, Π³Π°Π·ΠΎΠ²ΡΠ΅ Π±Π°Π»Π»ΠΎΠ½Ρ, Π΄Π°ΠΆΠ΅ Π²Π΅Π΄ΡΠ° ΠΈ ΠΊΠ°ΡΡΡΡΠ»ΠΈ. ΠΡΠ½Π΅ΡΠ΅ΠΌ ΠΈΡ
 ΠΊ ΠΏΠΎΠ΄ΡΡΡΠ½ΡΠΌ ΡΡΠ΅Π΄ΡΡΠ²Π°ΠΌ, ΠΈΠ·Π³ΠΎΡΠΎΠ²Π»Π΅Π½ΠΈΠ΅ ΠΊΠΎΡΠΎΡΡΡ
 Π½Π΅ ΡΡΠ΅Π±ΡΠ΅Ρ ΠΎΡΠΎΠ±ΡΡ
 Π½ΡΠ°Π½ΡΠΎΠ². ΠΡ ΠΆΠ΅ ΡΠ°ΡΡΠΌΠΎΡΡΠΈΠΌ ΡΠΎΠ²ΡΠ΅ΠΌΠ΅Π½Π½ΡΡ ΠΊΠΎΠΌΠΌΠ΅ΡΡΠ΅ΡΠΊΡΡ ΠΊΠΎΠ½ΡΡΡΡΠΊΡΠΈΡ ΠΊΠΎΠΏΡΠΈΠ»ΡΠ½ΠΈ Ρ ΡΠ΅ΡΡΠ΅ΠΆΠΎΠΌ. ΠΠ½Π° ΠΏΠΎΠ·Π²ΠΎΠ»ΡΠ΅Ρ Π·Π°Π½ΠΈΠΌΠ°ΡΡΡΡ ΠΊΠΎΠΏΡΠ΅Π½ΠΈΠ΅ΠΌ Π½Π° ΡΠ»ΠΈΡΠ΅, Π±ΡΠ°ΡΡ Ρ ΡΠΎΠ±ΠΎΠΉ Π½Π° ΠΏΡΠΈΡΠΎΠ΄Ρ ΠΈ Π΄Π°ΠΆΠ΅ Π³ΠΎΡΠΎΠ²ΠΈΡΡ Ρ ΡΠ΅Π±Ρ Π½Π° ΠΊΡΡ
Π½Π΅ Π² ΠΌΠ½ΠΎΠ³ΠΎΡΡΠ°ΠΆΠ½ΠΎΠΌ Π΄ΠΎΠΌΠ΅. ΠΠ΅ ΠΎΡΠ»ΠΈΡΠΈΡΠ΅Π»ΡΠ½ΠΎΠΉ Ρ
Π°ΡΠ°ΠΊΡΠ΅ΡΠΈΡΡΠΈΠΊΠΎΠΉ ΡΠ²Π»ΡΠ΅ΡΡΡ ΠΈΡΠΏΠΎΠ»ΡΠ·ΠΎΠ²Π°Π½ΠΈΠ΅ Π³ΠΈΠ΄ΡΠΎΠ·Π°ΡΠ²ΠΎΡΠ° ΠΏΡΠ΅ΠΏΡΡΡΡΠ²ΡΡΡΠ΅Π³ΠΎ ΠΏΡΠΎΠ½ΠΈΠΊΠ½ΠΎΠ²Π΅Π½ΠΈΡ Π΄ΡΠΌΠ° Ρ Π²Π½ΡΡΡΠ΅Π½Π½Π΅ΠΉ ΠΊΠ°ΠΌΠ΅ΡΡ Π² ΠΎΠΊΡΡΠΆΠ°ΡΡΠ΅Π΅ ΠΏΡΠΎΡΡΡΠ°Π½ΡΡΠ²ΠΎ.
Π‘ΠΎΠ΄Π΅ΡΠΆΠ°Π½ΠΈΠ΅:
Π£ΡΡΡΠΎΠΉΡΡΠ²ΠΎ ΠΊΠΎΠΏΡΠΈΠ»ΡΠ½ΠΈ Π³ΠΎΡΡΡΠ΅Π³ΠΎ ΠΊΠΎΠΏΡΠ΅Π½ΠΈΡ
ΠΡΠΎ ΡΡΠ°Π»ΠΊΠΈΠ²Π°Π΅ΡΡΡ Π²ΠΏΠ΅ΡΠ²ΡΠ΅ Π΄ΠΎ ΠΊΠΎΠ½ΡΠ° Π½Π΅ ΠΏΠΎΠ½ΠΈΠΌΠ°Π΅Ρ, ΠΊΠ°ΠΊ ΡΡΡΡΠΎΠ΅Π½ΠΈΡ ΠΊΠΎΠΏΡΠΈΠ»ΡΠ½Ρ Π³ΠΎΡΡΡΠ΅Π³ΠΎ ΠΊΠΎΠΏΡΠ΅Π½ΠΈΡ. ΠΠ°Π²Π°ΠΉΡΠ΅ Π΄Π»Ρ Π½Π°ΡΠ°Π»Π° ΡΠ°Π·Π±Π΅ΡΠ΅ΠΌ ΡΡΠΎΡ Π²ΠΎΠΏΡΠΎΡ, ΡΡΠΎΠ±Ρ Π² Π±ΡΠ΄ΡΡΠ΅ΠΌ Π±ΡΠ»ΠΎ Π»Π΅Π³ΡΠ΅ ΡΠ΄Π΅Π»Π°ΡΡ Π΅Π΅ ΡΠ°ΠΌΠΎΡΡΠΎΡΡΠ΅Π»ΡΠ½ΠΎ.
- ΠΠΎΠΏΡΠΈΠ»ΡΠ½Π°Ρ ΠΊΠ°ΠΌΠ΅ΡΠ° — ΡΡΠΎ ΡΡΠΈΠΊ ΠΏΡΡΠΌΠΎΡΠ³ΠΎΠ»ΡΠ½ΠΎΠΉ ΠΈΠ»ΠΈ ΠΊΠ²Π°Π΄ΡΠ°ΡΠ½ΠΎΠΉ ΡΠΎΡΠΌΡ. Π’Π°ΠΊΠΆΠ΅ ΠΌΠΎΠΆΠ΅Ρ Π±ΡΡΡ ΡΠΈΠ»ΠΈΠ½Π΄ΡΠΈΡΠ΅ΡΠΊΠΎΠΉ. Π Π²Π΅ΡΡ Π½Π΅ΠΉ Π΅Π³ΠΎ ΡΠ°ΡΡΠΈ ΡΠ°ΡΠΏΠΎΠ»Π°Π³Π°Π΅ΡΡΡ ΠΆΠ΅Π»ΠΎΠ±, Π²ΡΠΏΠΎΠ»Π½ΡΡΡΠΈΠΉ ΡΡΠ½ΠΊΡΠΈΠΈ Π³ΠΈΠ΄ΡΠΎΠ·Π°ΡΠ²ΠΎΡΠ° ΠΈ ΡΠΏΠΎΡΠ° Π΄Π»Ρ ΠΊΡΡΡΠΊΠΈ. Π‘ Π½Π°ΡΡΠΆΠ½ΠΎΠΉ ΡΠ°ΡΡΠΈ ΠΌΠΎΠΆΠ΅Ρ ΠΈΠΌΠ΅ΡΡ ΡΡΡΠΊΠΈ Π΄Π»Ρ ΡΠ΄ΠΎΠ±Π½ΠΎΠ³ΠΎ ΠΏΠ΅ΡΠ΅Π½ΠΎΡΠ°.
- ΠΠΈΠ΄ΡΠΎΠ·Π°ΡΠ²ΠΎΡ Π² ΠΊΠΎΠΏΡΠΈΠ»ΡΠ½Π΅ Π·Π°ΠΏΠΎΠ»Π½ΡΠ΅ΡΡΡ ΠΎΠ±ΡΠΊΠ½ΠΎΠ²Π΅Π½Π½ΡΠΉ Π²ΠΎΠ΄ΠΎΠΉ. ΠΠ½Π° Π³Π΅ΡΠΌΠ΅ΡΠΈΠ·ΠΈΡΡΠ΅Ρ ΡΡΡΠΊ, ΡΠ΅ΡΠ΅Π· ΠΊΠΎΡΠΎΡΡΠΉ Π½Π΅ ΠΌΠΎΠΆΠ΅Ρ Π²ΡΠΉΡΠΈ Π΄ΡΠΌ.
- ΠΡΡΡΠΊΠ° Π·Π°ΠΊΡΡΠ²Π°Π΅Ρ ΠΊΠΎΠΏΡΠΈΠ»ΡΠ½Ρ Π΄Π»Ρ ΡΠ΄Π΅ΡΠΆΠ°Π½ΠΈΡ Π±ΠΎΠ»ΡΡΠ΅ΠΉ ΡΠ°ΡΡΠΈ Π΄ΡΠΌΠ° Π²Π½ΡΡΡΠΈ ΠΊΠ°ΠΌΠ΅ΡΡ, Π·Π° ΡΡΠ΅Ρ ΡΠ΅Π³ΠΎ ΠΏΡΠΎΠ΄ΡΠΊΡ Π½Π°ΡΠ½Π΅Ρ ΠΈΠΌ ΠΏΡΠΎΠΏΠΈΡΡΠ²Π°ΡΡΡΡ.
- Π’ΡΡΠ±ΠΊΠ° (ΠΏΠ°ΡΡΡΠ±ΠΎΠΊ, ΡΠ°ΠΏΡΠ½) Π½ΡΠΆΠ΅Π½ Π΄Π»Ρ ΠΎΡΠ²ΠΎΠ΄Π° ΠΈΠ·Π»ΠΈΡΠΊΠΎΠ² Π΄ΡΠΌΠ° ΡΠ΅ΡΠ΅Π· ΠΊΡΡΡΠΊΡ. ΠΠ° Π½Π΅Π΅ Π² Π΄ΠΎΠΌΠ°ΡΠ½ΠΈΡ ΡΡΠ»ΠΎΠ²ΠΈΡΡ ΠΎΠ΄Π΅Π²Π°Π΅ΡΡΡ ΡΠ»Π°Π½Π³, ΠΊΠΎΡΠΎΡΡΠΉ Π΄ΡΡΠ³ΠΈΠΌ ΠΊΠΎΠ½ΡΠΎΠΌ Π²ΡΠ²ΠΎΠ΄ΡΡ Π² Π²Π΅Π½ΡΠΈΠ»ΡΡΠΈΡ ΠΈΠ»ΠΈ ΠΎΠΊΠ½ΠΎ.
- Π’Π΅ΡΠΌΠΎΠΌΠ΅ΡΡ ΡΡΡΠ°Π½Π°Π²Π»ΠΈΠ²Π°Π΅ΡΡΡ ΠΎΠΏΡΠΈΠΎΠ½Π°Π»ΡΠ½ΠΎ Π΄Π»Ρ Π²ΠΈΠ·ΡΠ°Π»ΡΠ½ΠΎΠΉ ΠΎΡΠ΅Π½ΠΊΠΈ ΡΠΊΠΎΡΠΎΡΡΠΈ ΠΏΡΠΈΡΠΎΡΡΠ° ΡΠ΅ΠΌΠΏΠ΅ΡΠ°ΡΡΡΡ ΠΈ Π΅Π³ΠΎ ΠΌΠ°ΠΊΡΠΈΠΌΠ°Π»ΡΠ½ΠΎΠ³ΠΎ Π·Π½Π°ΡΠ΅Π½ΠΈΡ. ΠΠ°Π΅Ρ Π²Π΅ΡΡΠΌΠ° ΠΎΡΠ½ΠΎΡΠΈΡΠ΅Π»ΡΠ½ΡΠ΅ ΠΏΠΎΠΊΠ°Π·Π°Π½ΠΈΡ. ΠΠ°Π΅Ρ Π²Π΅ΡΡΠΌΠ° ΠΎΡΠ½ΠΎΡΠΈΡΠ΅Π»ΡΠ½ΡΠ΅ ΠΏΠΎΠΊΠ°Π·Π°Π½ΠΈΡ.
- ΠΠΈΡΠΎΡΠ»ΠΎΠ²ΠΈΡΠ΅Π»Ρ Π² ΠΊΠΎΠΏΡΠΈΠ»ΡΠ½Π΅ β ΡΡΠΎ ΠΏΠΎΠ΄Π΄ΠΎΠ½ Ρ Π²ΡΡΡΡΠΏΠ°ΡΡΠΈΠΌΠΈ ΠΊΡΠ°ΡΠΌΠΈ, ΡΠ»ΡΠΆΠΈΡ Π΄Π»Ρ ΡΠ±ΠΎΡΠ° ΠΊΠ°ΠΏΠ°ΡΡΠ΅Π³ΠΎ ΠΆΠΈΡΠ° Ρ ΠΏΡΠΎΠ΄ΡΠΊΡΠΎΠ². ΠΡΠ»ΠΈ Π΅Π³ΠΎ Π½Π΅ Π±ΡΠ΄Π΅Ρ, ΡΠΎ ΠΆΠΈΡ Π½Π°ΡΠ½Π΅Ρ ΠΈΠ½ΡΠ΅Π½ΡΠΈΠ²Π½ΠΎ ΠΏΠΎΠΏΠ°Π΄Π°ΡΡ Π½Π° ΡΠ»Π΅ΡΡΡΡ ΡΠ΅ΠΏΡ. Π’Π°ΠΊΠΎΠΉ Π΄ΡΠΌ Π½Π΅ ΡΠΎΠ»ΡΠΊΠΎ ΡΡΠ°Π½ΠΎΠ²ΠΈΡΡΡ Π³ΠΎΡΡΠΊΠΈΠΌ, Π½ΠΎ ΠΈ ΠΎΠΏΠ°ΡΠ½ΡΠΉ Π΄Π»Ρ ΡΠ΅Π»ΠΎΠ²Π΅ΠΊΠ°. Π‘ Π½ΠΈΠ·Ρ ΠΈΠΌΠ΅Π΅Ρ Π½ΠΎΠΆΠΊΠΈ, ΠΊΠΎΡΠΎΡΡΠ΅ ΠΏΡΠΈΠΏΠΎΠ΄Π½ΠΈΠΌΠ°ΡΡ Π½Π° Π½Π΅ΡΠΊΠΎΠ»ΡΠΊΠΎ ΡΠ°Π½ΡΠΈΠΌΠ΅ΡΡΠΎΠ² Π΅Π΅ Π½Π°Π΄ ΡΠ΅ΠΏΠΎΠΉ.
- Π Π΅ΡΠ΅ΡΠΊΠ° Π΄Π°Π΅Ρ Π²ΠΎΠ·ΠΌΠΎΠΆΠ½ΠΎΡΡΡ Π²ΡΠ»ΠΎΠΆΠΈΡΡ Π½Π° Π½Π΅ΠΉ Π±ΡΠ΄ΡΡΠΈΠ΅ ΠΊΠΎΠΏΡΠ΅Π½ΠΎΡΡΠΈ. Π§Π°ΡΠ΅ Π²ΡΠ΅Π³ΠΎ Π΄Π΅Π»Π°ΡΡ ΠΈΠ· Π΄Π²ΡΡ ΡΠ°Π·Π΄Π΅Π»ΡΠ½ΡΡ ΡΡΡΡΠΎΠ². Π ΡΠ»ΡΡΠ°Π΅ Π³Π°Π±Π°ΡΠΈΡΠ½ΠΎΠΉ Π·Π°ΠΊΠ»Π°Π΄ΠΊΠΈ, ΡΠΈΠΏΠ° ΠΊΡΡΠΈΡΡ, Π²ΡΠΎΡΡΡ ΡΠ΅ΡΠ΅ΡΠΊΡ ΡΠ±ΠΈΡΠ°ΡΡ.
ΠΡΠΈΠ½ΡΠΈΠΏ ΡΠ°Π±ΠΎΡΡ ΠΊΠΎΠΏΡΠΈΠ»ΡΠ½ΠΈ
ΠΠΎΡΠ½Π΅ΠΌΡΡ ΡΡΠΎΠΉ ΡΠ΅ΠΌΡ ΠΏΠΎΠ²Π΅ΡΡ Π½ΠΎΡΡΠ½ΠΎ, ΠΏΠΎΡΠΎΠΌΡ ΠΊΠ°ΠΊ Π½Π΅ ΡΠ²Π»ΡΠ΅ΡΡΡ ΠΎΡΠ½ΠΎΠ²Π½ΠΎΠΉ Π² Π΄Π°Π½Π½ΠΎΠΉ ΡΡΠ°ΡΡΠ΅, Π½ΠΎ Π΄Π°ΡΡΠ΅ΠΉ ΠΏΡΠ΅Π΄ΡΡΠ°Π²Π»Π΅Π½ΠΈΠ΅ ΠΎ ΡΠ΅Ρ Π½ΠΎΠ»ΠΎΠ³ΠΈΠΈ.
ΠΠ° Π΄Π½ΠΎ ΠΊΠΎΠΏΡΠΈΠ»ΡΠ½ΠΈ Π·Π°ΡΡΠΏΠ°ΡΡ ΡΠ°Π²Π½ΠΎΠΌΠ΅ΡΠ½ΠΎ Π½Π΅ΠΊΠΎΡΠΎΡΠΎΠ΅ ΠΊΠΎΠ»ΠΈΡΠ΅ΡΡΠ²ΠΎ ΡΠ΅ΠΏΡ. Π‘Π²Π΅ΡΡ
Ρ ΡΡΠ°Π²ΡΡ ΠΏΠΎΠ΄Π΄ΠΎΠ½ Π΄Π»Ρ ΠΆΠΈΡΠ°. Π§ΡΠΎΠ±Ρ Π² Π΄Π°Π»ΡΠ½Π΅ΠΉΡΠ΅ΠΌ Π±ΡΠ»ΠΎ Π»Π΅Π³ΡΠ΅ Π΅Π³ΠΎ ΠΎΡΠΌΡΠ²Π°ΡΡ β ΠΊΠ°ΠΆΠ΄ΡΠΉ ΡΠ°Π· ΡΠ²Π΅ΡΡ
Ρ ΠΊΠ»Π°Π΄ΡΡ ΠΏΠΈΡΠ΅Π²ΡΡ ΡΠΎΠ»ΡΠ³Ρ ΠΈΠ»ΠΈ Π½Π°ΡΡΠΏΠ°ΡΡ ΠΏΠ΅ΡΠΎΠΊ. ΠΠ° ΡΡΡΡΡ Π²ΡΠΊΠ»Π°Π΄ΡΠ²Π°ΡΡΡΡ ΠΌΡΡΠ½ΡΠ΅ ΠΏΡΠΎΠ΄ΡΠΊΡΡ. ΠΠ°ΠΊΡΡΠ²Π°ΡΡ Π²ΡΠ΅ ΠΊΡΡΡΠΊΠΎΠΉ. Π ΠΏΠ°Π· Π³ΠΈΠ΄ΡΠΎΠ·Π°ΡΠ²ΠΎΡΠ° Π½Π°Π»ΠΈΠ²Π°ΡΡ Π²ΠΎΠ΄Ρ, ΡΠ°ΠΊ, ΡΡΠΎΠ±Ρ ΠΎΠ½Π° Π½Π΅ Π΄ΠΎΡ
ΠΎΠ΄ΠΈΠ»Π° Π΄ΠΎ ΠΊΡΠ°Ρ Π±ΠΎΡΡΠΈΠΊΠ°. Π‘ΡΠ΅ΠΊΠ°ΡΡΠΈΠΉ ΠΊΠΎΠ½Π΄Π΅Π½ΡΠ°Ρ Ρ ΠΊΡΡΡΠΊΠΈ Π±ΡΠ΄Π΅Ρ Π² Π½Π΅ΠΌ Π½Π°ΠΊΠ°ΠΏΠ»ΠΈΠ²Π°ΡΡΡΡ, ΡΡΠΎ Π²ΡΠ·ΠΎΠ²Π΅Ρ ΠΏΠ΅ΡΠ΅ΠΏΠΎΠ»Π½Π΅Π½ΠΈΠ΅. Π ΡΠ»ΠΈΡΠ½ΡΡ
 ΡΡΠ»ΠΎΠ²ΠΈΡΡ
 Π½Π΅Ρ Π½Π΅ΠΎΠ±Ρ
ΠΎΠ΄ΠΈΠΌΠΎΡΡΠΈ ΠΈΡΠΏΠΎΠ»ΡΠ·ΠΎΠ²Π°ΡΡ Π³ΠΈΠ΄ΡΠΎΠ·Π°ΡΠ²ΠΎΡ, ΡΠΎΠ»ΡΠΊΠΎ Π²Π½ΡΡΡΠΈ ΠΆΠΈΠ»ΡΡ
 ΠΏΠΎΠΌΠ΅ΡΠ΅Π½ΠΈΠΉ. ΠΡΠΈ Π½Π΅ΠΎΠ±Ρ
ΠΎΠ΄ΠΈΠΌΠΎΡΡΠΈ ΠΎΠ΄Π΅Π²Π°ΡΡ ΡΠ»Π°Π½Π³ Π½Π° ΡΡΡΡΠ΅Ρ Π² ΠΊΡΡΡΠΊΠ΅. ΠΠ°Π»Π΅Π΅ ΠΊΠΎΠΏΡΠΈΠ»ΡΠ½Ρ ΡΠ°ΡΠΏΠΎΠ»Π°Π³Π°ΡΡ Π½Π°Π΄ ΠΈΡΡΠΎΡΠ½ΠΈΠΊΠΎΠΌ ΡΠ΅ΠΌΠΏΠ΅ΡΠ°ΡΡΡΡ. ΠΡΠΎ ΠΌΠΎΠΆΠ΅Ρ Π±ΡΡΡ ΠΊΠΎΡΡΠ΅Ρ, Π³Π°Π·ΠΎΠ²Π°Ρ ΠΈΠ»ΠΈ ΡΠ»Π΅ΠΊΡΡΠΈΡΠ΅ΡΠΊΠ°Ρ ΠΏΠ»ΠΈΡΠ°. ΠΠΎΡΠ»Π΅ ΠΏΠΎΡΠ²Π»Π΅Π½ΠΈΡ ΠΏΠ΅ΡΠ²ΠΎΠ³ΠΎ ΠΏΡΠΈΠ·Π½Π°ΠΊΠ° Π΄ΡΠΌΠ° Π·Π°ΡΠ΅ΠΊΠ°ΡΡ Π²ΡΠ΅ΠΌΡ, ΡΠΎΠΎΡΠ²Π΅ΡΡΡΠ²ΡΡΡΠ΅Π΅ ΡΠ΅ΠΆΠΈΠΌΡ ΠΊΠΎΠΏΡΠ΅Π½ΠΈΡ. ΠΠ° ΠΎΡΡΡΡΡΡΠ²ΠΈΠ΅ ΠΏΠΎΡΡΠΎΡΠ½Π½ΠΎΠΉ Π³ΠΎΡΠ΅ΡΠΈ Π²Π»ΠΈΡΠ΅Ρ ΠΌΠ°ΠΊΡΠΈΠΌΠ°Π»ΡΠ½Π°Ρ ΡΠ΅ΠΌΠΏΠ΅ΡΠ°ΡΡΡΠ°, Π° ΡΠ°ΠΊΠΆΠ΅ ΠΊΠ°ΠΊ Π±ΡΡΡΡΠΎ Π½Π°Π±ΠΈΡΠ°Π΅ΡΡΡ Π³ΡΠ°Π΄ΡΡΡ. ΠΡΠΆΠ½ΠΎ ΡΡΠ°ΡΠ°ΡΡΡΡ ΠΏΠΎΠ΄Π΄Π΅ΡΠΆΠΈΠ²Π°ΡΡ ΠΈΠ½ΡΠ΅Π½ΡΠΈΠ²Π½ΠΎΡΡΡ Π΄ΡΠΌΠ° Π½Π° ΠΌΠΈΠ½ΠΈΠΌΡΠΌΠ΅, ΡΡΠΎ ΠΎΡΠ΅Π½Ρ Π²Π°ΠΆΠ½ΠΎ. ΠΠΎ ΠΎΠΊΠΎΠ½ΡΠ°Π½ΠΈΡ ΡΠ²Π΅ΠΆΠ΅ΠΏΡΠΈΠ³ΠΎΡΠΎΠ²Π»Π΅Π½Π½ΡΠ΅ ΠΊΠΎΠΏΡΠ΅Π½ΠΎΡΡΠΈ Π΄Π°ΡΡ ΠΏΠΎΠ΄ΠΎΠΉΡΠΈ Π² ΡΠ΅ΡΠ΅Π½ΠΈΠ΅ Π½ΠΎΡΠΈ ΠΈΠ»ΠΈ ΡΡΡΠΎΠΊ Π² Ρ
ΠΎΠ»ΠΎΠ΄ΠΈΠ»ΡΠ½ΠΈΠΊΠ΅ Π΄Π»Ρ ΠΏΠΎΠ»ΡΡΠ΅Π½ΠΈΡ Π±ΠΎΠ»Π΅Π΅ ΠΎΠ΄Π½ΠΎΡΠΎΠ΄Π½ΠΎΠ³ΠΎ Π²ΠΊΡΡΠ°.
 Π ΠΏΠ°Π· Π³ΠΈΠ΄ΡΠΎΠ·Π°ΡΠ²ΠΎΡΠ° Π½Π°Π»ΠΈΠ²Π°ΡΡ Π²ΠΎΠ΄Ρ, ΡΠ°ΠΊ, ΡΡΠΎΠ±Ρ ΠΎΠ½Π° Π½Π΅ Π΄ΠΎΡ
ΠΎΠ΄ΠΈΠ»Π° Π΄ΠΎ ΠΊΡΠ°Ρ Π±ΠΎΡΡΠΈΠΊΠ°. Π‘ΡΠ΅ΠΊΠ°ΡΡΠΈΠΉ ΠΊΠΎΠ½Π΄Π΅Π½ΡΠ°Ρ Ρ ΠΊΡΡΡΠΊΠΈ Π±ΡΠ΄Π΅Ρ Π² Π½Π΅ΠΌ Π½Π°ΠΊΠ°ΠΏΠ»ΠΈΠ²Π°ΡΡΡΡ, ΡΡΠΎ Π²ΡΠ·ΠΎΠ²Π΅Ρ ΠΏΠ΅ΡΠ΅ΠΏΠΎΠ»Π½Π΅Π½ΠΈΠ΅. Π ΡΠ»ΠΈΡΠ½ΡΡ
 ΡΡΠ»ΠΎΠ²ΠΈΡΡ
 Π½Π΅Ρ Π½Π΅ΠΎΠ±Ρ
ΠΎΠ΄ΠΈΠΌΠΎΡΡΠΈ ΠΈΡΠΏΠΎΠ»ΡΠ·ΠΎΠ²Π°ΡΡ Π³ΠΈΠ΄ΡΠΎΠ·Π°ΡΠ²ΠΎΡ, ΡΠΎΠ»ΡΠΊΠΎ Π²Π½ΡΡΡΠΈ ΠΆΠΈΠ»ΡΡ
 ΠΏΠΎΠΌΠ΅ΡΠ΅Π½ΠΈΠΉ. ΠΡΠΈ Π½Π΅ΠΎΠ±Ρ
ΠΎΠ΄ΠΈΠΌΠΎΡΡΠΈ ΠΎΠ΄Π΅Π²Π°ΡΡ ΡΠ»Π°Π½Π³ Π½Π° ΡΡΡΡΠ΅Ρ Π² ΠΊΡΡΡΠΊΠ΅. ΠΠ°Π»Π΅Π΅ ΠΊΠΎΠΏΡΠΈΠ»ΡΠ½Ρ ΡΠ°ΡΠΏΠΎΠ»Π°Π³Π°ΡΡ Π½Π°Π΄ ΠΈΡΡΠΎΡΠ½ΠΈΠΊΠΎΠΌ ΡΠ΅ΠΌΠΏΠ΅ΡΠ°ΡΡΡΡ. ΠΡΠΎ ΠΌΠΎΠΆΠ΅Ρ Π±ΡΡΡ ΠΊΠΎΡΡΠ΅Ρ, Π³Π°Π·ΠΎΠ²Π°Ρ ΠΈΠ»ΠΈ ΡΠ»Π΅ΠΊΡΡΠΈΡΠ΅ΡΠΊΠ°Ρ ΠΏΠ»ΠΈΡΠ°. ΠΠΎΡΠ»Π΅ ΠΏΠΎΡΠ²Π»Π΅Π½ΠΈΡ ΠΏΠ΅ΡΠ²ΠΎΠ³ΠΎ ΠΏΡΠΈΠ·Π½Π°ΠΊΠ° Π΄ΡΠΌΠ° Π·Π°ΡΠ΅ΠΊΠ°ΡΡ Π²ΡΠ΅ΠΌΡ, ΡΠΎΠΎΡΠ²Π΅ΡΡΡΠ²ΡΡΡΠ΅Π΅ ΡΠ΅ΠΆΠΈΠΌΡ ΠΊΠΎΠΏΡΠ΅Π½ΠΈΡ. ΠΠ° ΠΎΡΡΡΡΡΡΠ²ΠΈΠ΅ ΠΏΠΎΡΡΠΎΡΠ½Π½ΠΎΠΉ Π³ΠΎΡΠ΅ΡΠΈ Π²Π»ΠΈΡΠ΅Ρ ΠΌΠ°ΠΊΡΠΈΠΌΠ°Π»ΡΠ½Π°Ρ ΡΠ΅ΠΌΠΏΠ΅ΡΠ°ΡΡΡΠ°, Π° ΡΠ°ΠΊΠΆΠ΅ ΠΊΠ°ΠΊ Π±ΡΡΡΡΠΎ Π½Π°Π±ΠΈΡΠ°Π΅ΡΡΡ Π³ΡΠ°Π΄ΡΡΡ. ΠΡΠΆΠ½ΠΎ ΡΡΠ°ΡΠ°ΡΡΡΡ ΠΏΠΎΠ΄Π΄Π΅ΡΠΆΠΈΠ²Π°ΡΡ ΠΈΠ½ΡΠ΅Π½ΡΠΈΠ²Π½ΠΎΡΡΡ Π΄ΡΠΌΠ° Π½Π° ΠΌΠΈΠ½ΠΈΠΌΡΠΌΠ΅, ΡΡΠΎ ΠΎΡΠ΅Π½Ρ Π²Π°ΠΆΠ½ΠΎ. ΠΠΎ ΠΎΠΊΠΎΠ½ΡΠ°Π½ΠΈΡ ΡΠ²Π΅ΠΆΠ΅ΠΏΡΠΈΠ³ΠΎΡΠΎΠ²Π»Π΅Π½Π½ΡΠ΅ ΠΊΠΎΠΏΡΠ΅Π½ΠΎΡΡΠΈ Π΄Π°ΡΡ ΠΏΠΎΠ΄ΠΎΠΉΡΠΈ Π² ΡΠ΅ΡΠ΅Π½ΠΈΠ΅ Π½ΠΎΡΠΈ ΠΈΠ»ΠΈ ΡΡΡΠΎΠΊ Π² Ρ
ΠΎΠ»ΠΎΠ΄ΠΈΠ»ΡΠ½ΠΈΠΊΠ΅ Π΄Π»Ρ ΠΏΠΎΠ»ΡΡΠ΅Π½ΠΈΡ Π±ΠΎΠ»Π΅Π΅ ΠΎΠ΄Π½ΠΎΡΠΎΠ΄Π½ΠΎΠ³ΠΎ Π²ΠΊΡΡΠ°.
ΠΡΠ±ΠΎΡ Π² ΠΏΠ΅ΡΠ²ΡΡ ΠΎΡΠ΅ΡΠ΅Π΄Ρ Π΄ΠΎΠ»ΠΆΠ΅Π½ Π·Π°Π²ΠΈΡΠ΅ΡΡ ΠΎΡ ΠΌΠ΅ΡΡΠ° ΠΈΡΠΏΠΎΠ»ΡΠ·ΠΎΠ²Π°Π½ΠΈΡ ΠΊΠΎΠΏΡΠΈΠ»ΡΠ½ΠΈ. ΠΠ΅ ΡΡΠ΅Π½ΠΊΠΈ ΠΈΠΌΠ΅ΡΡ ΠΎΠΏΡΠ΅Π΄Π΅Π»Π΅Π½Π½ΡΡ ΡΠ΅ΠΏΠ»ΠΎΠ΅ΠΌΠΊΠΎΡΡΡ, ΠΊΠΎΡΠΎΡΠ°Ρ Π²ΠΎ Π²ΡΠ΅ΠΌΡ Π½Π°Π³ΡΠ΅Π²Π°Π½ΠΈΡ Π½Π°ΡΠΈΠ½Π°Π΅Ρ ΡΠ°Π±ΠΎΡΠ°ΡΡ ΠΊΠ°ΠΊ ΠΊΠ°Π·Π°Π½. ΠΡΠΎ ΠΏΠΎΠ·Π²ΠΎΠ»ΡΠ΅Ρ Π»ΡΡΡΠ΅ ΡΠ°ΡΠΏΡΠ΅Π΄Π΅Π»ΠΈΡΡ ΡΠ΅ΠΌΠΏΠ΅ΡΠ°ΡΡΡΡ Π²Π½ΡΡΡΠΈ ΠΊΠ°ΠΌΠ΅ΡΡ ΠΌΠ΅ΠΆΠ΄Ρ Π½ΠΈΠΆΠ½ΠΈΠΌ ΠΈ Π²Π΅ΡΡ
Π½ΠΈΠΌ ΡΡΡΡΠΎΠΌ. ΠΠ° ΠΎΡΠΊΡΡΡΠΎΠΌ Π²ΠΎΠ·Π΄ΡΡ
Π΅, Π² ΠΎΡΠ»ΠΈΡΠΈΠ΅ ΠΎΡ Π΄ΠΎΠΌΠ°ΡΠ½ΠΈΡ
 ΡΡΠ»ΠΎΠ²ΠΈΠΉ, ΠΏΡΠΈΡΡΡΡΡΠ²ΡΠ΅Ρ Π²Π΅ΡΠ΅Ρ Π·Π°Π±ΠΈΡΠ°ΡΡΠΈΠΉ ΡΠ°ΡΡΡ ΡΠ΅ΠΏΠ»Π°, ΡΠ°ΠΌ Π²ΠΎΠ·Π΄ΡΡ
 ΠΌΠΎΠΆΠ΅Ρ Π±ΡΡΡ Ρ
ΠΎΠ»ΠΎΠ΄Π½ΡΠΌ. Π ΡΠ΅Π·ΡΠ»ΡΡΠ°ΡΠ΅ ΠΏΠΎΠ»ΡΡΠΈΠΌ Ρ
ΠΎΡΠΎΡΠΎ ΠΏΡΠΎΠ³ΡΠ΅ΡΡΠΉ Π½ΠΈΠ· ΠΈ Π½Π΅Π΄ΠΎΡΡΠ°ΡΠΎΡΠ½ΠΎ ΠΊΡΠ°Ρ Ρ ΠΊΡΡΡΠΊΠΎΠΉ.
 ΠΡΠΎ ΠΏΠΎΠ·Π²ΠΎΠ»ΡΠ΅Ρ Π»ΡΡΡΠ΅ ΡΠ°ΡΠΏΡΠ΅Π΄Π΅Π»ΠΈΡΡ ΡΠ΅ΠΌΠΏΠ΅ΡΠ°ΡΡΡΡ Π²Π½ΡΡΡΠΈ ΠΊΠ°ΠΌΠ΅ΡΡ ΠΌΠ΅ΠΆΠ΄Ρ Π½ΠΈΠΆΠ½ΠΈΠΌ ΠΈ Π²Π΅ΡΡ
Π½ΠΈΠΌ ΡΡΡΡΠΎΠΌ. ΠΠ° ΠΎΡΠΊΡΡΡΠΎΠΌ Π²ΠΎΠ·Π΄ΡΡ
Π΅, Π² ΠΎΡΠ»ΠΈΡΠΈΠ΅ ΠΎΡ Π΄ΠΎΠΌΠ°ΡΠ½ΠΈΡ
 ΡΡΠ»ΠΎΠ²ΠΈΠΉ, ΠΏΡΠΈΡΡΡΡΡΠ²ΡΠ΅Ρ Π²Π΅ΡΠ΅Ρ Π·Π°Π±ΠΈΡΠ°ΡΡΠΈΠΉ ΡΠ°ΡΡΡ ΡΠ΅ΠΏΠ»Π°, ΡΠ°ΠΌ Π²ΠΎΠ·Π΄ΡΡ
 ΠΌΠΎΠΆΠ΅Ρ Π±ΡΡΡ Ρ
ΠΎΠ»ΠΎΠ΄Π½ΡΠΌ. Π ΡΠ΅Π·ΡΠ»ΡΡΠ°ΡΠ΅ ΠΏΠΎΠ»ΡΡΠΈΠΌ Ρ
ΠΎΡΠΎΡΠΎ ΠΏΡΠΎΠ³ΡΠ΅ΡΡΠΉ Π½ΠΈΠ· ΠΈ Π½Π΅Π΄ΠΎΡΡΠ°ΡΠΎΡΠ½ΠΎ ΠΊΡΠ°Ρ Ρ ΠΊΡΡΡΠΊΠΎΠΉ.
Π‘ ΡΠΎΡΠΊΠΈ Π·ΡΠ΅Π½ΠΈΡ ΡΠ΄ΠΎΠ±ΡΡΠ²Π° ΠΈΠ·Π³ΠΎΡΠΎΠ²Π»Π΅Π½ΠΈΡ ΠΊΠΎΠΏΡΠΈΠ»Π΅Π½ ΡΠΎΠ»ΡΡΡΠΉ ΠΌΠ΅ΡΠ°Π»Π» ΡΠ΄ΠΎΠ±Π½Π΅Π΅ ΠΏΡΠΈ ΡΠ²Π°ΡΠΊΠ΅. Π¨ΠΎΠ² ΠΏΠΎΠ»ΡΡΠ°Π΅ΡΡΡ Π±ΠΎΠ»Π΅Π΅ ΡΠ°Π²Π½ΠΎΠΌΠ΅ΡΠ½ΡΠΉ, Ρ ΠΌΠ΅Π½ΡΡΠΈΠΌ ΡΠΈΡΠΊΠΎΠΌ Π±ΡΡΡ ΠΏΡΠΎΠΆΠΆΠ΅Π½Π½ΡΠΌ. ΠΡΠΎΠ±Π΅Π½Π½ΠΎ Π²Π°ΠΆΠ½ΠΎ ΡΡΠΎ ΠΏΡΠΈ ΡΠ²Π°ΡΠΈΠ²Π°Π½ΠΈΠ΅ ΠΏΡΠΎΡΡΡΠΌ ΡΠ»Π΅ΠΊΡΡΠΎΠ΄ΠΎΠΌ Π±Π΅Π· Π±ΠΎΠ»ΡΡΠΎΠ³ΠΎ ΠΎΠΏΡΡΠ°. Π Π½Π΅ΡΠ΄ΠΎΠ±ΡΡΠ²Π°ΠΌ ΠΌΠΎΠΆΠ½ΠΎ ΠΎΡΠ½Π΅ΡΡΠΈ ΠΏΡΠΈΠ»ΠΎΠΆΠ΅Π½ΠΈΠ΅ Π±ΠΎΠ»ΡΡΠ΅ΠΉ ΡΠΈΠ»Ρ Π΄Π»Ρ ΡΠ³ΠΈΠ±Π°Π½ΠΈΡ.
ΠΡ ΡΠ΅ΠΊΠΎΠΌΠ΅Π½Π΄ΡΠ΅ΠΌ ΠΎΡΡΠ°Π½ΠΎΠ²ΠΈΡΡΡΡ Π½Π° Ρ ΠΎΠ»ΠΎΠ΄Π½ΠΎΠΊΠ°ΡΠ°Π½ΠΎΠΉ ΡΡΠ°Π»ΠΈ ΡΠΎΠ»ΡΠΈΠ½ΠΎΠΉ 2 ΠΌΠΌ. ΠΠ΅Π½Π΅Π΅ ΠΆΠ΅Π»Π°ΡΠ΅Π»ΡΠ½ΠΎ ΠΏΡΠΈΠΌΠ΅Π½Π΅Π½ΠΈΠ΅ ΡΡΠ°Π»ΠΈ 1.5 ΠΌΠΌ, Π° Π²ΠΎΡ 1ΠΌΠΌ ΠΏΠΎΠΉΠ΄Π΅Ρ ΡΠ°Π·Π²Π΅ ΡΡΠΎ Π΄Π»Ρ ΠΌΠΈΠ½ΠΈΠΊΠΎΠΏΡΠΈΠ»Π΅Π½Ρ Ρ ΠΏΠΎΠ»ΡΠ°Π²ΡΠΎΠΌΠ°ΡΠΎΠΌ. ΠΡΠΈΠ²Π΅ΡΡΡΠ²ΡΡΡΡΡ ΠΆΠ°ΡΠΎΠΏΡΠΎΡΠ½ΠΎΠ΅ ΠΏΠΎΠΊΡΡΡΠΈΠ΅ ΠΈΠ»ΠΈ ΡΡΠ°Π²Π»Π΅Π½ΠΈΠ΅.
Π€ΠΎΡΠΌΠ° ΠΊΠΎΠΏΡΠΈΠ»ΡΠ½ΠΈ
ΠΠ°ΠΊ ΡΠΆΠ΅ ΠΏΠΈΡΠ°Π»ΠΎΡΡ Π²ΡΡΠ΅ ΡΡΡΠ΅ΡΡΠ²ΡΠ΅Ρ ΠΈΡ
 ΡΡΠΈ Π²ΠΈΠ΄Π°. ΠΠΎ Π½Π°ΡΠ΅ΠΌΡ ΠΌΠ½Π΅Π½ΠΈΡ, Π½Π°ΠΈΠΌΠ΅Π½Π΅Π΅ ΠΏΡΠ°ΠΊΡΠΈΡΠ½Π°Ρ ΠΊΠ²Π°Π΄ΡΠ°ΡΠ½Π°Ρ, Π·Π°ΡΠ΅ΠΌ ΡΠΈΠ»ΠΈΠ½Π΄ΡΠΈΡΠ΅ΡΠΊΠ°Ρ. ΠΠΎΠΏΡΠΎΠ±ΡΠ΅ΠΌ ΠΎΠ±ΡΡΡΠ½ΠΈΡΡ ΡΠ²ΠΎΡ ΡΠΎΡΠΊΡ Π·ΡΠ΅Π½ΠΈΡ. Π€ΠΎΡΠΌΠ°Ρ Π½Π°ΠΏΡΡΠΌΡΡ Π²Π»ΠΈΡΠ΅Ρ Π½Π° ΡΠ΅ ΠΊΠΎΠΏΡΠ΅Π½ΠΎΡΡΠΈ, ΠΊΠΎΡΠΎΡΡΠ΅ Ρ
ΠΎΡΠΈΠΌ ΠΏΠΎΠ»ΡΡΠΈΡΡ. Π ΠΏΡΠΈΠ½ΡΠΈΠΏΠ΅ Π½ΠΈΠΊΠ°ΠΊΠΈΡ
 ΠΏΡΠΎΠ±Π»Π΅ΠΌ Π½Π΅Ρ Ρ ΠΎΠ±ΡΠ΅ΠΌΠΎΠΌ, ΠΏΠΎΠΊΠ° Π½Π΅ ΡΡΠΎΠ»ΠΊΠ½Π΅ΠΌΡΡ Ρ ΠΎΠ³ΡΠ°Π½ΠΈΡΠ΅Π½ΠΈΡΠΌΠΈ ΠΏΠΎ Π΄Π»ΠΈΠ½Π΅ ΠΏΡΠΈ ΠΏΠΎΠΏΡΡΠΊΠ΅ ΡΠ°Π·ΠΌΠ΅ΡΡΠΈΡΡ ΡΠΊΠΎΠ»ΡΠΊΠΎ-Π½ΠΈΠ±ΡΠ΄Ρ ΠΊΡΡΠΏΠ½ΡΡ ΡΡΠ±Ρ. ΠΠΎΠΏΡΠΈΠ»ΡΠ½ΠΈ Ρ Π³ΠΈΠ΄ΡΠΎΠ·Π°ΡΠ²ΠΎΡΠΎΠΌ ΠΏΡΠ΅Π΄Π½Π°Π·Π½Π°ΡΠ΅Π½Ρ ΡΠΎΠ»ΡΠΊΠΎ Π΄Π»Ρ Π³ΠΎΡΠΈΠ·ΠΎΠ½ΡΠ°Π»ΡΠ½ΠΎΠΉ Π·Π°Π³ΡΡΠ·ΠΊΠΈ. Π¨ΠΈΡΠΈΠ½Π° Π² ΡΡΠΎΠΌ ΡΠ»ΡΡΠ°Π΅ ΠΈΠΌΠ΅Π΅Ρ Π²Π°ΠΆΠ½ΠΎΠ΅ Π·Π½Π°ΡΠ΅Π½ΠΈΠ΅. Π‘ Π΄ΡΡΠ³ΠΎΠΉ ΡΡΠΎΡΠΎΠ½Ρ, Π² Π΄ΠΎΠΌΠ°ΡΠ½ΠΈΡ
 ΡΡΠ»ΠΎΠ²ΠΈΡΡ
 Π³Π°Π±Π°ΡΠΈΡΡ Π΄ΠΎΠ»ΠΆΠ½Ρ ΠΎΠ³ΡΠ°Π½ΠΈΡΠΈΠ²Π°ΡΡΡΡ ΡΠ°Π·ΠΌΠ΅ΡΠΎΠΌ Π²Π°ΡΠ΅ΠΉ ΠΏΠ»ΠΈΡΡ ΠΈ Π·Π°Π½ΠΈΠΌΠ°ΡΡ Π΄Π²Π΅ ΠΊΠΎΠ½ΡΠΎΡΠΊΠΈ. Π’Π°ΠΊΠΆΠ΅ ΠΌΠ΅ΡΡΠΎ Π΄Π»Ρ Ρ
ΡΠ°Π½Π΅Π½ΠΈΡ ΠΌΠΎΠΆΠ΅Ρ Π½Π°ΠΊΠ»Π°Π΄ΡΠ²Π°ΡΡ ΡΠ²ΠΎΠΈ ΠΎΠ³ΡΠ°Π½ΠΈΡΠ΅Π½ΠΈΡ. Π’Π°ΠΊ ΡΡΠΎ Π±ΠΎΠ»Π΅Π΅ ΠΊΠ²Π°Π΄ΡΠ°ΡΠ½ΡΠ΅ ΡΠΎΡΠΌΡ ΠΏΠΎΠ΄ΠΎΠΉΠ΄ΡΡ ΡΠΊΠΎΡΠ΅Π΅ Π΄Π»Ρ ΡΠ΄ΠΎΠ±ΡΡΠ² Ρ ΡΠ°ΡΡΠΎΠΉ ΡΡΠ°Π½ΡΠΏΠΎΡΡΠΈΡΠΎΠ²ΠΊΠΎΠΉ Π½Π° ΠΏΡΠΈΡΠΎΠ΄Ρ, ΠΊ ΠΏΡΠΈΠΌΠ΅ΡΡ.
 Π€ΠΎΡΠΌΠ°Ρ Π½Π°ΠΏΡΡΠΌΡΡ Π²Π»ΠΈΡΠ΅Ρ Π½Π° ΡΠ΅ ΠΊΠΎΠΏΡΠ΅Π½ΠΎΡΡΠΈ, ΠΊΠΎΡΠΎΡΡΠ΅ Ρ
ΠΎΡΠΈΠΌ ΠΏΠΎΠ»ΡΡΠΈΡΡ. Π ΠΏΡΠΈΠ½ΡΠΈΠΏΠ΅ Π½ΠΈΠΊΠ°ΠΊΠΈΡ
 ΠΏΡΠΎΠ±Π»Π΅ΠΌ Π½Π΅Ρ Ρ ΠΎΠ±ΡΠ΅ΠΌΠΎΠΌ, ΠΏΠΎΠΊΠ° Π½Π΅ ΡΡΠΎΠ»ΠΊΠ½Π΅ΠΌΡΡ Ρ ΠΎΠ³ΡΠ°Π½ΠΈΡΠ΅Π½ΠΈΡΠΌΠΈ ΠΏΠΎ Π΄Π»ΠΈΠ½Π΅ ΠΏΡΠΈ ΠΏΠΎΠΏΡΡΠΊΠ΅ ΡΠ°Π·ΠΌΠ΅ΡΡΠΈΡΡ ΡΠΊΠΎΠ»ΡΠΊΠΎ-Π½ΠΈΠ±ΡΠ΄Ρ ΠΊΡΡΠΏΠ½ΡΡ ΡΡΠ±Ρ. ΠΠΎΠΏΡΠΈΠ»ΡΠ½ΠΈ Ρ Π³ΠΈΠ΄ΡΠΎΠ·Π°ΡΠ²ΠΎΡΠΎΠΌ ΠΏΡΠ΅Π΄Π½Π°Π·Π½Π°ΡΠ΅Π½Ρ ΡΠΎΠ»ΡΠΊΠΎ Π΄Π»Ρ Π³ΠΎΡΠΈΠ·ΠΎΠ½ΡΠ°Π»ΡΠ½ΠΎΠΉ Π·Π°Π³ΡΡΠ·ΠΊΠΈ. Π¨ΠΈΡΠΈΠ½Π° Π² ΡΡΠΎΠΌ ΡΠ»ΡΡΠ°Π΅ ΠΈΠΌΠ΅Π΅Ρ Π²Π°ΠΆΠ½ΠΎΠ΅ Π·Π½Π°ΡΠ΅Π½ΠΈΠ΅. Π‘ Π΄ΡΡΠ³ΠΎΠΉ ΡΡΠΎΡΠΎΠ½Ρ, Π² Π΄ΠΎΠΌΠ°ΡΠ½ΠΈΡ
 ΡΡΠ»ΠΎΠ²ΠΈΡΡ
 Π³Π°Π±Π°ΡΠΈΡΡ Π΄ΠΎΠ»ΠΆΠ½Ρ ΠΎΠ³ΡΠ°Π½ΠΈΡΠΈΠ²Π°ΡΡΡΡ ΡΠ°Π·ΠΌΠ΅ΡΠΎΠΌ Π²Π°ΡΠ΅ΠΉ ΠΏΠ»ΠΈΡΡ ΠΈ Π·Π°Π½ΠΈΠΌΠ°ΡΡ Π΄Π²Π΅ ΠΊΠΎΠ½ΡΠΎΡΠΊΠΈ. Π’Π°ΠΊΠΆΠ΅ ΠΌΠ΅ΡΡΠΎ Π΄Π»Ρ Ρ
ΡΠ°Π½Π΅Π½ΠΈΡ ΠΌΠΎΠΆΠ΅Ρ Π½Π°ΠΊΠ»Π°Π΄ΡΠ²Π°ΡΡ ΡΠ²ΠΎΠΈ ΠΎΠ³ΡΠ°Π½ΠΈΡΠ΅Π½ΠΈΡ. Π’Π°ΠΊ ΡΡΠΎ Π±ΠΎΠ»Π΅Π΅ ΠΊΠ²Π°Π΄ΡΠ°ΡΠ½ΡΠ΅ ΡΠΎΡΠΌΡ ΠΏΠΎΠ΄ΠΎΠΉΠ΄ΡΡ ΡΠΊΠΎΡΠ΅Π΅ Π΄Π»Ρ ΡΠ΄ΠΎΠ±ΡΡΠ² Ρ ΡΠ°ΡΡΠΎΠΉ ΡΡΠ°Π½ΡΠΏΠΎΡΡΠΈΡΠΎΠ²ΠΊΠΎΠΉ Π½Π° ΠΏΡΠΈΡΠΎΠ΄Ρ, ΠΊ ΠΏΡΠΈΠΌΠ΅ΡΡ.
Π ΠΏΡΠΎΠ΄Π°ΠΆΠ΅ Π²ΡΠ΅ ΡΠ°ΡΠ΅ ΠΏΠΎΡΠ²Π»ΡΡΡΡΡ Π²ΡΡΠΎΠΊΠΈΠ΅ ΡΠΈΠ»ΠΈΠ½Π΄ΡΠΈΡΠ΅ΡΠΊΠΈΠ΅ Ρ Π΄ΠΎΡΡΠ°ΡΠΎΡΠ½ΠΎ Π²ΡΡΠΎΠΊΠΈΠΌ ΡΠ΅Π½Π½ΠΈΠΊΠΎΠΌ ΠΈ ΠΈΠ· Π½Π΅ΡΠΆΠ°Π²Π΅ΡΡΠ΅ΠΉ ΡΡΠ°Π»ΠΈ. ΠΠ»Ρ Π·Π°ΠΊΡΠ΅ΠΏΠ»Π΅Π½ΠΈΡ Π²ΡΠ΅ Π½ΡΠΆΠ½ΠΎ ΠΎΠ±Π²ΡΠ·ΡΠ²Π°ΡΡ Ρ ΠΏΠ΅ΡΠ΅Π»ΡΠΊΠ°ΠΌΠΈ, Π·Π° ΠΊΠΎΡΠΎΡΡΠ΅ Π·Π°ΡΠ΅ΠΌ ΠΏΠΎΠ΄Π²Π΅ΡΠΈΡΠ΅ Π½Π° ΠΊΡΡΡΠΊΠΈ. ΠΠ΅ Π·Π°Π±ΡΠ²Π°Π΅ΠΌ, ΡΡΠΎ ΠΏΠΎ ΡΠ΅ΡΠ΅Π΄ΠΈΠ½Π΅ ΠΏΡΠΎΡ
ΠΎΠ΄ΠΈΡ ΡΡΠ΅ΡΠΆΠ΅Π½Ρ Π΄Π»Ρ ΠΏΠΎΠ΄Π²Π΅ΡΠ° ΠΎΡΠ½ΠΈΠΌΠ°ΡΡΠΈΠΉ ΠΏΠΎΠ»Π΅Π·Π½ΠΎΠ΅ ΠΌΠ΅ΡΡΠΎ. Π’Π°ΠΊΠΆΠ΅ ΡΠ°ΡΠΏΡΠ΅Π΄Π΅Π»Π΅Π½ΠΈΠ΅ ΡΠ΅ΠΌΠΏΠ΅ΡΠ°ΡΡΡΡ Π²Π΅ΡΡΠΌΠ° Π½Π΅ΡΡΡΠ΅ΠΊΡΠΈΠ²Π½ΠΎΠ΅. ΠΠΎΠ»ΡΡΠ°Ρ Π²ΡΡΠΎΡΠ° ΡΠΎΠ·Π΄Π°Π΅Ρ Π±ΠΎΠ»ΡΡΠΎΠΉ ΠΏΠ΅ΡΠ΅ΠΏΠ°Π΄ ΠΌΠ΅ΠΆΠ΄Ρ Π½ΠΈΠ·ΠΎΠΌ ΠΈ Π²Π΅ΡΡ
ΠΎΠΌ. ΠΡΠΎΡΠ΅ Π³ΠΎΠ²ΠΎΡΡ, ΡΡΠΎ Π½Π΅ ΡΡΠ°ΡΠ°Ρ ΠΏΡΠΈΠ²ΡΡΠ½Π°Ρ Π±ΠΎΡΠΊΠ° Π²ΠΎ Π΄Π²ΠΎΡΠ΅.
 ΠΡΠΎΡΠ΅ Π³ΠΎΠ²ΠΎΡΡ, ΡΡΠΎ Π½Π΅ ΡΡΠ°ΡΠ°Ρ ΠΏΡΠΈΠ²ΡΡΠ½Π°Ρ Π±ΠΎΡΠΊΠ° Π²ΠΎ Π΄Π²ΠΎΡΠ΅.
ΠΠ»ΠΎΡΠΊΠ°Ρ ΠΊΡΡΡΠΊΠ° ΠΈΠ»ΠΈ Π΄ΠΎΠΌΠΈΠΊΠΎΠΌ Π΄Π»Ρ ΠΊΠΎΠΏΡΠΈΠ»ΡΠ½ΠΈ
ΠΡΡΡΠΊΠ° Π΄ΠΎΠΌΠΈΠΊΠΎΠΌ ΡΠ»ΠΎΠΆΠ½Π΅Π΅ ΠΏΡΠΈ ΠΈΠ·Π³ΠΎΡΠΎΠ²Π»Π΅Π½ΠΈΠΈ, ΡΠ°ΠΊ ΠΊΠ°ΠΊ ΠΈΠΌΠ΅Π΅Ρ Π΄ΠΎΠΏΠΎΠ»Π½ΠΈΡΠ΅Π»ΡΠ½ΡΠ΅ ΠΏΠ»ΠΎΡΠΊΠΎΡΡΠΈ, Π±ΠΎΠ»ΡΡΠ΅ ΡΠ²Π°ΡΠΎΡΠ½ΡΡ ΡΠ²ΠΎΠ². ΠΠ΅ΠΎΡΠΏΠΎΡΠΈΠΌΡΠΉ ΠΏΠ»ΡΡ Π² Π²ΠΎΠ·ΠΌΠΎΠΆΠ½ΠΎΡΡΠΈ ΠΏΠΎΡΡΠΎΡΠ½Π½ΠΎ ΡΠΊΠ°ΡΡΠ²Π°ΡΡΡΡ ΠΊΠΎΠ½Π΄Π΅Π½ΡΠ°ΡΡ Π² ΠΏΠ°Π· Π³ΠΈΠ΄ΡΠΎΠ·Π°ΡΠ²ΠΎΡΠ°. Π£ ΠΊΠΎΠ³ΠΎ ΠΏΠ»ΠΎΡΠΊΠ°Ρ ΠΊΡΡΡΠΊΠ° Π²ΡΠ½ΡΠΆΠ΄Π΅Π½Ρ Π·Π°ΠΊΡΡΠ²Π°ΡΡ ΠΏΡΠΎΠ΄ΡΠΊΡΠΈΡ ΠΏΠΈΡΠ΅Π²ΠΎΠΉ ΡΠΎΠ»ΡΠ³ΠΎΠΉ. Π’Π°ΠΊΠ°Ρ Π²Π»Π°Π³Π° ΡΠΎΠ±ΠΈΡΠ°Π΅Ρ Π² ΡΠ΅Π±Ρ ΡΠ°ΠΆΡ, ΠΊΠΎΠ½ΡΠ΅Π½ΡΡΠ°ΡΠΈΡ Π΄ΡΠΌΠ°. Π ΡΠ΅Ρ ΠΌΠ΅ΡΡΠ°Ρ , ΠΊΡΠ΄Π° ΠΎΠ½Π° ΠΊΠ°ΠΏΠ½Π΅Ρ ΠΏΠΎΡΠ²ΠΈΡΡΡ ΡΠ΅ΡΠ½ΠΎΠ΅ ΠΈ Π³ΠΎΡΡΠΊΠΎΠ΅ ΠΏΡΡΠ½ΠΎ, ΠΊΠΎΡΠΎΡΠΎΠ΅ ΡΠΆΠ΅ Π½Π΅ Π²ΡΠ²Π΅ΡΡΠΈΡΡΡ Π½ΠΈΠΊΠΎΠ³Π΄Π°. ΠΠ° Π΄Π°Π½Π½ΡΠΉ ΠΌΠΎΠΌΠ΅Π½Ρ Π±ΠΎΠ»ΡΡΠΈΠ½ΡΡΠ²ΠΎ ΠΏΡΠΎΠΈΠ·Π²ΠΎΠ΄ΠΈΡΠ΅Π»Π΅ΠΉ ΠΏΡΠ°ΠΊΡΠΈΡΠ΅ΡΠΊΠΈ ΠΎΡΠΊΠ°Π·Π°Π»ΠΈΡΡ ΠΎΡ ΠΏΡΠΎΡΡΡΡ ΠΊΡΡΡΠ΅ΠΊ, ΠΎΡΡΠ°Π²ΠΈΠ² ΠΈΡ ΡΠΎΠ»ΡΠΊΠΎ Π½Π° Π½Π΅ΡΠΆΠ°Π²Π΅ΠΉΠΊΠ΅.
Π Π°Π·ΠΌΠ΅ΡΡ ΠΈ ΡΠ΅ΡΡΠ΅ΠΆΠΈ ΠΊΠΎΠΏΡΠΈΠ»ΡΠ½ΠΈ
ΠΠ° ΡΡΠΎΠΌ Π·Π°ΠΊΠΎΠ½ΡΠΈΠΌ ΡΠ΅ΠΎΡΠ΅ΡΠΈΡΠ΅ΡΠΊΡΡ ΡΠ°ΡΡΡ ΠΈ ΠΏΠ΅ΡΠ΅ΠΉΠ΄Π΅ΠΌ Π½Π΅ΠΏΠΎΡΡΠ΅Π΄ΡΡΠ²Π΅Π½Π½ΠΎ ΠΊ ΠΏΡΠ°ΠΊΡΠΈΡΠ΅ΡΠΊΠΎΠΉ. Π ΠΊΠ°ΡΠ΅ΡΡΠ²Π΅ ΠΎΠ±Π·ΠΎΡΠ° Π²ΠΎΠ·ΡΠΌΠ΅ΠΌ Π³ΠΎΡΠΎΠ²ΡΡ ΠΊΠΎΠΏΡΠΈΠ»ΡΠ½Ρ ΡΡΠ΅Π΄Π½ΠΈΡ
 ΡΠ°Π·ΠΌΠ΅ΡΠΎΠ². ΠΠ°Π½Π½ΡΠΌ ΡΠΊΠ·Π΅ΠΌΠΏΠ»ΡΡΠΎΠΌ Π΄ΠΎΡΡΠ°ΡΠΎΡΠ½ΠΎ ΡΠ°ΡΡΠΎ ΠΏΠΎΠ»ΡΠ·ΡΡΡΡΡ Π² Π±ΡΡΠΎΠ²ΡΡ
 ΡΡΠ»ΠΎΠ²ΠΈΡΡ
 Π½Π° Π³Π°Π·ΠΎΠ²ΠΎΠΉ ΠΏΠ»ΠΈΡΠ΅ Ρ Π΄Π²ΡΠΌΡ ΠΊΠΎΠ½ΡΠΎΡΠΊΠ°ΠΌΠΈ. Π‘Π»Π΅Π΄ΡΡΡΠ°Ρ ΠΏΠΎ ΡΠ°Π·ΠΌΠ΅ΡΡ ΡΠ»ΠΈΡΠΊΠΎΠΌ Π³Π°Π±Π°ΡΠΈΡΠ½Π°Ρ ΠΈ ΠΏΡΠ΅Π΄Π½Π°Π·Π½Π°ΡΠ΅Π½Π° Π±ΠΎΠ»ΡΡΠ΅ Π΄Π»Ρ ΡΠ»ΠΈΡΡ.
ΠΠ°Π΄Π°ΡΠ° Π΄Π°Π½Π½ΠΎΠ³ΠΎ ΡΠ°Π·Π΄Π΅Π»Π° Π΄Π°ΡΡ ΡΠΈΡΠ°ΡΠ΅Π»Ρ Π±Π°Π·ΠΎΠ²ΡΠ΅ ΡΠ°Π·ΠΌΠ΅ΡΡ ΠΊΠΎΠΏΡΠΈΠ»ΡΠ½ΠΈ Π³ΠΎΡΡΡΠ΅Π³ΠΎ ΠΊΠΎΠΏΡΠ΅Π½ΠΈΡ. ΠΠΎ Π΅Π³ΠΎ ΠΆΠ΅Π»Π°Π½ΠΈΡ ΠΎΠ½ ΠΌΠΎΠΆΠ΅Ρ ΠΈΡ ΠΏΠΎΠ²ΡΠΎΡΠΈΡΡ ΠΎΠ΄ΠΈΠ½ Π² ΠΎΠ΄ΠΈΠ½, Π»ΠΈΠ±ΠΎ ΠΈΠ·ΠΌΠ΅Π½ΠΈΡΡ ΠΏΡΠΎΠΏΠΎΡΡΠΈΠΈ Π΄ΠΎ ΠΆΠ΅Π»Π°Π΅ΠΌΡΡ ΡΠ΅Π·ΡΠ»ΡΡΠ°ΡΠΎΠ² ΠΈΡΡ ΠΎΠ΄Ρ ΠΈΠ· ΠΏΠΎΡΡΠ΅Π±Π½ΠΎΡΡΠ΅ΠΉ ΠΈ ΠΌΠ°ΡΠ΅ΡΠΈΠ°Π»ΠΎΠ².
Π ΠΈΠ½ΡΠ΅ΡΠ½Π΅Ρ-ΠΌΠ°Π³Π°Π·ΠΈΠ½Π°Ρ ΠΏΡΠΈΠ½ΡΡΠΎ ΡΠΊΠ°Π·ΡΠ²Π°ΡΡ Π² ΠΎΡΠ½ΠΎΠ²Π½ΠΎΠΌ Π²Π½Π΅ΡΠ½ΠΈΠ΅ ΡΠ°Π·ΠΌΠ΅ΡΡ, Π² ΠΊΠΎΡΠΎΡΡΠ΅ Π²Ρ ΠΎΠ΄ΡΡ ΡΠ°ΠΊΠΆΠ΅ ΠΈ Π±ΠΎΠΊΠΎΠ²ΡΠ΅ ΠΈ Π²Π΅ΡΡ Π½ΠΈΠ΅ ΡΡΡΠΊΠΈ. ΠΡΠΎ ΠΌΠ°Π»ΠΎΠ·Π½Π°ΡΠΈΡΠ΅Π»ΡΠ½Π°Ρ ΠΈΠ½ΡΠΎΡΠΌΠ°ΡΠΈΡ, Ρ ΠΎΡΡ ΠΈ Π²Π½ΡΡΠΈΡΠ΅Π»ΡΠ½Π°Ρ Π΄Π»Ρ ΠΏΠΎΠΊΡΠΏΠ°ΡΠ΅Π»Ρ. ΠΠ΅Π»Π°Ρ ΠΊΠΎΠΏΡΠΈΠ»ΡΠ½Ρ ΡΠ²ΠΎΠΈΠΌΠΈ ΡΡΠΊΠ°ΠΌΠΈ Π½Π°ΡΠΈΠ½Π°ΡΡ ΠΏΡΠΎΠ΅ΠΊΡΠΈΡΠΎΠ²Π°Π½ΠΈΠ΅ ΠΆΠ΅Π»Π°ΡΠ΅Π»ΡΠ½ΠΎ Ρ Π²Π½ΡΡΡΠ΅Π½Π½Π΅ΠΉ ΡΠ°Π±ΠΎΡΠ΅ΠΉ ΠΊΠ°ΠΌΠ΅ΡΡ Ρ ΡΡΠ΅ΡΠΎΠΌ ΡΠΈΠΏΠ° ΠΊΡΡΡΠΊΠΈ. ΠΠΎΠΌΠΈΠΊΠΎΠΌ Π΄ΠΎΠ±Π°Π²ΠΈΡ Π΄ΠΎΠΏΠΎΠ»Π½ΠΈΡΠ΅Π»ΡΠ½ΡΠ΅ 2-5 ΡΠ°Π½ΡΠΈΠΌΠ΅ΡΡΠΎΠ².
Π Π°Π·ΠΌΠ΅ΡΡ ΠΏΡΠ΅Π΄ΡΡΠ°Π²Π»Π΅Π½Π½ΠΎΠΉ ΠΊΠΎΠΏΡΠΈΠ»ΡΠ½ΠΈ
| Π Π°Π·ΠΌΠ΅Ρ ΠΊΠΎΠΏΡΠΈΠ»ΡΠ½ΠΈ Π³ΠΎΡΡΡΠ΅Π³ΠΎ ΠΊΠΎΠΏΡΠ΅Π½ΠΈΡ | |
|---|---|
| ΠΠ½Π΅ΡΠ½ΠΈΠΉ ΡΠ°Π·ΠΌΠ΅Ρ: | |
| Π¨ΠΈΡΠΈΠ½Π°, ΠΌΠΌ | 445 | 
| ΠΠ»ΠΈΠ½Π°, ΠΌΠΌ | 240 | 
| ΠΡΡΠΎΡΠ°, ΠΌΠΌ | 265 | 
| ΠΠ½ΡΡΡΠ΅Π½Π½ΠΈΠΉ ΡΠ°Π·ΠΌΠ΅Ρ: | |
| Π¨ΠΈΡΠΈΠ½Π°, ΠΌΠΌ | 400 | 
| ΠΠ»ΠΈΠ½Π°, ΠΌΠΌ | 200 | 
| ΠΡΡΠΎΡΠ°, ΠΌΠΌ | *200 | 
*ΠΡΡΠΎΡΠ° ΡΠΎΠ»ΡΠΊΠΎ ΠΏΠΎ ΠΎΡΠ½ΠΎΠ²Π°Π½ΠΈΡ Π±Π΅Π· ΡΡΠ΅ΡΠ° ΡΠ΅Π»ΡΠ΅ΡΠ° ΠΊΡΡΡΠΊΠΈ
Π§Π΅ΡΡΠ΅ΠΆ ΡΠ΅ΡΠ΅ΡΠΊΠΈ
| Π Π°Π·ΠΌΠ΅Ρ ΡΠ΅ΡΠ΅ΡΠΊΠΈ ΠΊΠΎΠΏΡΠΈΠ»ΡΠ½ΠΈ | |
|---|---|
| Π¨ΠΈΡΠΈΠ½Π°, ΠΌΠΌ | 190 | 
| ΠΠ»ΠΈΠ½Π°, ΠΌΠΌ | 390 | 
| Π¨Π°Π³ ΠΏΠ΅ΡΠ΅ΠΌΡΡΠ΅ΠΊ, ΠΌΠΌ | 40 | 
| Π-Π²ΠΎ ΠΏΠ΅ΡΠ΅ΠΌΡΡΠ΅ΠΊ, ΡΡ | *4 | 
| ΠΠΈΠ°ΠΌΠ΅ΡΡ ΠΏΡΠΎΠ²ΠΎΠ»ΠΎΠΊΠΈ, ΠΌΠΌ | 3 | 
*ΠΡΠΈΠ²Π΅Π΄Π΅Π½ΠΎ ΠΊΠΎΠ»ΠΈΡΠ΅ΡΡΠ²ΠΎ ΡΠΎΠ»ΡΠΊΠΎ Π²Π½ΡΡΡΠ΅Π½Π½ΠΈΡ ΠΏΠ΅ΡΠ΅ΠΌΡΡΠ΅ΠΊ
Π Ρ
ΠΎΠ΄Π΅ ΡΠΊΡΠΏΠ»ΡΠ°ΡΠ°ΡΠΈΠΈ ΠΊΠΎΠΏΡΠΈΠ»ΡΠ½ΠΈ Ρ ΡΠ°ΠΊΠΈΠΌΠΈ ΡΠ΅ΡΠ΅ΡΠΊΠ°ΠΌΠΈ ΠΎΠΊΠ°Π·Π°Π»ΠΎΡΡ, ΡΡΠΎ ΠΎΠ½Π° Π΄ΠΎΠ»ΠΆΠ½Π° ΠΈΠΌΠ΅ΡΡ Π΄ΠΎΠΏΠΎΠ»Π½ΠΈΡΠ΅Π»ΡΠ½ΡΠ΅ ΠΏΠ΅ΡΠ΅ΠΌΡΡΠΊΠΈ ΠΏΠΎ Π΄Π»ΠΈΠ½Π΅ ΠΎΠΊΠΎΠ»ΠΎ 3-4 ΡΡΡΠΊ. ΠΠ΅Π· Π½ΠΈΡ
 ΡΠ»ΠΎΠΆΠ½Π΅Π΅ ΡΠ»ΠΎΠΆΠΈΡΡ ΠΏΡΠΎΠ΄ΡΠΊΡΡ, ΠΊΠΎΡΠΎΡΡΠ΅ ΠΌΠΎΠ³ΡΡ ΠΏΡΠΎΠ²Π°Π»ΠΈΡΡΡΡ. ΠΡΠΎ ΠΎΡΠ½ΠΎΡΠΈΡΡΡ ΠΊ ΡΡΠ±Π΅, ΡΠΎΠ½ΠΊΠΎΠΌΡ ΡΠ°Π»Ρ ΠΈ Π΄Ρ.
 ΠΠ΅Π· Π½ΠΈΡ
 ΡΠ»ΠΎΠΆΠ½Π΅Π΅ ΡΠ»ΠΎΠΆΠΈΡΡ ΠΏΡΠΎΠ΄ΡΠΊΡΡ, ΠΊΠΎΡΠΎΡΡΠ΅ ΠΌΠΎΠ³ΡΡ ΠΏΡΠΎΠ²Π°Π»ΠΈΡΡΡΡ. ΠΡΠΎ ΠΎΡΠ½ΠΎΡΠΈΡΡΡ ΠΊ ΡΡΠ±Π΅, ΡΠΎΠ½ΠΊΠΎΠΌΡ ΡΠ°Π»Ρ ΠΈ Π΄Ρ.
Π§Π΅ΡΡΠ΅ΠΆ ΠΏΠΎΠ΄Π΄ΠΎΠ½Π°
| Π Π°Π·ΠΌΠ΅Ρ ΠΏΠΎΠ΄Π΄ΠΎΠ½Π° ΠΊΠΎΠΏΡΠΈΠ»ΡΠ½ΠΈ | |
|---|---|
| Π’ΠΎΠ»ΡΠΈΠ½Π° ΡΡΠ°Π»ΠΈ, ΠΌΠΌ | 0.8-1 | 
| Π¨ΠΈΡΠΈΠ½Π°, ΠΌΠΌ | 185 | 
| ΠΠ»ΠΈΠ½Π°, ΠΌΠΌ | 380 | 
| ΠΡΡΠΎΡΠ° Π±ΠΎΡΡΠΈΠΊΠΎΠ², ΠΌΠΌ | 20 | 
| ΠΡΡΠΎΡΠ° Π½ΠΎΠΆΠ΅ΠΊ, ΠΌΠΌ | 20 | 
Π§Π΅ΡΡΠ΅ΠΆ ΠΎΡΠ½ΠΎΠ²Π°Π½ΠΈΡ (ΡΡΠΈΠΊΠ°)
Π’Π°Π±Π»ΠΈΡΠ½ΡΠ΅ Π΄Π°Π½Π½ΡΠ΅ ΠΌΠΎΠ³ΡΡ ΠΈΠΌΠ΅ΡΡ Π² Π²Π°ΡΠ΅ΠΌ ΡΠ»ΡΡΠ°Π΅ ΠΏΠΎΠ³ΡΠ΅ΡΠ½ΠΎΡΡΠΈ Π² Π·Π°Π²ΠΈΡΠΈΠΌΠΎΡΡΠΈ ΠΎΡ Π²ΡΠ±ΡΠ°Π½Π½ΠΎΠΉ ΡΠΎΠ»ΡΠ΅Π½Ρ ΠΌΠ΅ΡΠ°Π»Π»Π° ΠΈ ΠΏΠΎΡΠ΅ΡΡ Π½Π° ΡΠ°Π΄ΠΈΡΡ ΠΈΠ·Π³ΠΈΠ±Π°. Π‘ΡΡΠ΅ΡΡΠ²ΡΠ΅Ρ Π½Π΅ΡΠΊΠΎΠ»ΡΠΊΠΎ ΠΌΠ΅ΡΠΎΠ΄ΠΈΠΊ, ΠΏΠΎ ΠΊΠΎΡΠΎΡΡΠΌ ΠΌΠΎΠΆΠ½ΠΎ ΡΠ²Π°ΡΠΈΡΡ ΡΡΠΈΠΊ ΠΊΠΎΠΏΡΠΈΠ»ΡΠ½ΠΈ.
1. ΠΠ°ΠΆΠ΄Π°Ρ ΠΏΠ»ΠΎΡΠΊΠΎΡΡΡ ΡΠ²Π»ΡΠ΅ΡΡΡ ΠΎΡΠ΄Π΅Π»ΡΠ½ΠΎΠΉ Π²ΡΠΊΡΠΎΠΉΠΊΠΎΠΉ
2. ΠΠ° ΡΠ΅Π»ΡΠ½ΠΎΠΌ Π»ΠΈΡΡΠ΅ ΡΠ³ΠΈΠ±Π°ΡΡΡΡ Π²ΡΠ΅ Π²Π΅ΡΡΠΈΠΊΠ°Π»ΡΠ½ΡΠ΅ ΠΏΠ»ΠΎΡΠΊΠΎΡΡΠΈ ΠΈ ΠΏΡΠΈΠ²Π°ΡΠΈΠ²Π°Π΅ΡΡΡ Π½ΠΈΠ·
3. Π‘ ΡΠ΅Π»ΡΠ½ΠΎΠ³ΠΎ Π»ΠΈΡΡΠ° ΡΠ³ΠΈΠ±Π°Π΅ΡΡΡ Π½ΠΈΠ· Ρ ΡΠΈΡΠΎΠΊΠΈΠΌΠΈ ΡΡΠΎΡΠΎΠ½Π°ΠΌΠΈ, Π° ΡΠΎΡΡΡ ΠΏΡΠΈΠ²Π°ΡΠΈΠ²Π°ΡΡΡΡ
ΠΡΠ΅Π΄ΡΡΠ°Π²Π»Π΅Π½Π½Π°Ρ ΠΊΠΎΠΏΡΠΈΠ»ΡΠ½Ρ ΡΠΎΠ±ΠΈΡΠ°Π»Π°ΡΡ ΠΏΠΎ ΡΡΠ΅ΡΡΠ΅ΠΌΡ Π²Π°ΡΠΈΠ°Π½ΡΡ Π½Π° Π³ΠΈΠ±ΠΎΡΠ½ΠΎΠΌ ΡΡΠ°Π½ΠΊΠ΅ Π±Π΅Π· ΠΏΡΠ΅Π΄Π²Π°ΡΠΈΡΠ΅Π»ΡΠ½ΠΎΠΉ ΠΏΡΠΎΠΏΠΈΠ»ΠΊΠΈ ΠΏΠ°Π·ΠΎΠ².
| Π Π°Π·ΠΌΠ΅Ρ ΠΎΡΠ½ΠΎΠ²Π°Π½ΠΈΡ ΠΊΠΎΠΏΡΠΈΠ»ΡΠ½ΠΈ | |
|---|---|
| Π Π°ΡΠΊΡΠΎΠΉΠΊΠ° Π»ΠΈΡΡΠ°: | |
| Π¨ΠΈΡΠΈΠ½Π°, ΠΌΠΌ | 400 | 
| ΠΠ»ΠΈΠ½Π°, ΠΌΠΌ | 600 | 
| Π Π°ΡΠΊΡΠΎΠΉΠΊΠ° ΡΠΎΡΡΠ°: | |
| Π¨ΠΈΡΠΈΠ½Π°, ΠΌΠΌ | 197 | 
| ΠΡΡΠΎΡΠ°, ΠΌΠΌ | 200 | 
ΠΠ° ΡΠΎΡΡΠ΅Π²ΡΡ ΡΡΠ΅Π½ΠΊΠ°Ρ Ρ Π²Π½ΡΡΡΠ΅Π½Π½Π΅ΠΉ ΡΡΠΎΡΠΎΠ½Ρ ΠΏΡΠΈΠ²Π°ΡΠ΅Π½ΠΎ Π΄Π²Π΅ ΠΌΠ΅ΡΠ°Π»Π»ΠΈΡΠ΅ΡΠΊΠΈΠ΅ ΠΏΠΎΠ»ΠΎΡΡ Π²ΡΠΏΠΎΠ»Π½ΡΡΡΠΈΠ΅ ΡΠΎΠ»Ρ ΠΎΠΏΠΎΡΡ Π΄Π»Ρ Π²Π΅ΡΡ Π½Π΅Π³ΠΎ ΡΡΡΡΠ°. ΠΡΠ΅ΠΏΠΈΡΡΡ ΠΎΠ½Π° Π½Π° ΡΠ°ΡΡΡΠΎΡΠ½ΠΈΠ΅ 60ΠΌΠΌ ΠΎΡ Π²Π΅ΡΡ Π½Π΅Π³ΠΎ ΠΊΡΠ°Ρ.
| Π Π°Π·ΠΌΠ΅Ρ ΠΏΠ»ΠΎΡΠ°Π΄ΠΊΠΈ ΠΏΠΎΠ΄ ΡΠ΅ΡΠ΅ΡΠΊΡ | |
|---|---|
| Π¨ΠΈΡΠΈΠ½Π°, ΠΌΠΌ | 100 | 
| ΠΠ»ΠΈΠ½Π°, ΠΌΠΌ | 15 | 
Π§Π΅ΡΡΠ΅ΠΆ Π³ΠΈΠ΄ΡΠΎΠ·Π°ΡΠ²ΠΎΡΠ°
Π§Π°ΡΡΠΎ Π³ΠΈΠ΄ΡΠΎΠ·Π°ΡΠ²ΠΎΡ Π΄Π΅Π»Π°ΡΡ ΠΈΠ· Π³ΠΎΡΠΎΠ²ΠΎΠ³ΠΎ ΡΠ³ΠΎΠ»ΠΊΠ° Π½Π΅Π±ΠΎΠ»ΡΡΠΎΠ³ΠΎ ΡΠ°Π·ΠΌΠ΅ΡΠ°, Π»ΠΈΠ±ΠΎ Π΄ΠΎΠ²ΠΎΠ΄ΡΡ Π±ΠΎΠ»Π³Π°ΡΠΊΠΎΠΉ, ΠΈΠΌΠ΅ΡΡΠΈΠΉΡΡ Π² Π½Π°Π»ΠΈΡΠΈΠΈ. ΠΡΠΎ Π½Π°ΠΌΠ½ΠΎΠ³ΠΎ ΡΠ΄ΠΎΠ±Π½Π΅Π΅, ΡΠ΅ΠΌ Π΅Π³ΠΎ Π³Π½ΡΡΡ Ρ Π»ΠΈΡΡΠΎΠ²ΠΎΠ³ΠΎ ΠΌΠ΅ΡΠ°Π»Π»Π° Π½Π΅ ΠΈΠΌΠ΅Ρ ΡΠΏΠ΅ΡΠΈΠ½ΡΡΡΡΠΌΠ΅Π½ΡΠ°.
| Π Π°Π·ΠΌΠ΅Ρ Π³ΠΈΠ΄ΡΠΎΠ·Π°ΡΠ²ΠΎΡΠ° | |
|---|---|
| Π Π΅ΠΉΠΊΠ° ΠΏΠΎ ΡΠΈΡΠΈΠ½Π΅: | |
| ΠΠ½Π΅ΡΠ½ΡΡ ΡΠΈΡΠΈΠ½Π°, ΠΌΠΌ | 440 | 
| ΠΠ½ΡΡΡΠ΅Π½Π½ΡΡ ΡΠΈΡΠΈΠ½Π°, ΠΌΠΌ | 400 | 
| ΠΡΡΠΎΡΠ°, ΠΌΠΌ | 20 | 
| Π Π΅ΠΉΠΊΠ° ΠΏΠΎ Π΄Π»ΠΈΠ½Π΅: | |
| ΠΠ½Π΅ΡΠ½ΡΡ ΡΠΈΡΠΈΠ½Π°, ΠΌΠΌ | 240 | 
| ΠΠ½ΡΡΡΠ΅Π½Π½ΡΡ ΡΠΈΡΠΈΠ½Π°, ΠΌΠΌ | 200 | 
| ΠΡΡΠΎΡΠ°, ΠΌΠΌ | 20 | 
Π§Π΅ΡΡΠ΅ΠΆ ΠΊΡΡΡΠΊΠΈ
Π Π΄Π°Π½Π½ΠΎΠΌ ΡΠ»ΡΡΠ°Π΅ ΠΊΡΡΡΠΊΠ° ΠΏΡΠ΅Π΄Π»Π°Π³Π°Π΅ΡΡΡ Π² ΡΠΎΡΠΌΠ΅ Π΄ΠΎΠΌΠΈΠΊΠ° ΠΈΠ· ΡΠ΅Π»ΡΠ½ΠΎΠ³ΠΎ Π»ΠΈΡΡΠ° Ρ Π²Π²Π°ΡΠΈΠ²Π°Π΅ΠΌΡΠΌΠΈ Π±ΠΎΠΊΠΎΠ²ΡΠΌΠΈ ΡΠΎΡΡΠ°ΠΌΠΈ. ΠΠ»Ρ ΡΠ΄ΠΎΠ±ΡΡΠ²Π° ΠΈΡ ΠΌΠΎΠΆΠ½ΠΎ ΡΠΎΠ±ΡΠ°ΡΡ ΠΈΠ· ΠΎΡΠ΄Π΅Π»ΡΠ½ΡΡ ΠΏΠΎΠ»ΠΎΡ. ΠΡΠ»ΠΈ ΡΠΎΠ²ΡΠ΅ΠΌ Π½Π΅Ρ ΠΆΠ΅Π»Π°Π½ΠΈΡ, ΡΠΎ ΠΌΠΎΠΆΠ½ΠΎ Π΅Π΅ Π·Π°ΠΌΠ΅Π½ΠΈΡΡ Π½Π° ΠΏΠ»ΠΎΡΠΊΡΡ ΡΡΠΈΡΡΠ²Π°Ρ Π² Π΄Π°Π»ΡΠ½Π΅ΠΉΡΠ΅ΠΌ Π΅Π΅ Π½Π΅Π΄ΠΎΡΡΠ°ΡΠΊΠΈ ΠΏΡΠΈ ΠΊΠΎΠΏΡΠ΅Π½ΠΈΠΈ.
Π’ΠΎΠ»ΡΠΈΠ½Π° ΡΡΠ°Π»ΠΈ ΡΠ°ΠΊΠΆΠ΅ Π²ΡΠ±ΡΠ°Π½Π° 2ΠΌΠΌ.
| Π Π°Π·ΠΌΠ΅Ρ ΠΊΡΡΡΠΊΠΈ ΠΊΠΎΠΏΡΠΈΠ»ΡΠ½ΠΈ | |
|---|---|
| Π Π°Π·ΠΌΠ΅Ρ ΠΏΡΠΎΠ΅ΠΊΡΠΈΠΈ ΠΊΡΡΡΠΊΠΈ: | |
| Π¨ΠΈΡΠΈΠ½Π°, ΠΌΠΌ | 420 | 
| ΠΠ»ΠΈΠ½Π°, ΠΌΠΌ | 230 | 
| ΠΠΎΠ»Π½ΡΠΉ ΡΠ°Π·ΠΌΠ΅Ρ Π»ΠΈΡΡΠ° ΠΊΡΡΡΠΊΠΈ: | |
| Π¨ΠΈΡΠΈΠ½Π°, ΠΌΠΌ | 420 | 
| ΠΠ»ΠΈΠ½Π°, ΠΌΠΌ | 260 | 
Π§Π΅ΡΡΠ΅ΠΆ ΡΠΎΡΡΠ΅Π²ΠΎΠΉ ΡΡΠ΅Π½ΠΊΠΈ ΠΊΡΡΡΠΊΠΈ
Π§Π΅ΡΡΠ΅ΠΆ ΠΏΠ»Π°ΡΡΠΈΠ½Ρ ΠΈΠ· ΠΊΠΎΡΠΎΡΠΎΠΉ Π΄Π΅Π»Π°Π΅ΡΡΡ ΠΊΡΡΡΠΊΠ° ΠΊΠΎΠΏΡΠΈΠ»ΡΠ½ΠΈ ΠΈΠ·ΠΎΠ±ΡΠ°ΠΆΠ΅Π½ Π½Π° ΡΠΈΡΡΠ½ΠΊΠ΅.
Π£ΡΡΠ°Π½ΠΎΠ²ΠΊΠ° Π³ΡΠ°Π΄ΡΡΠ½ΠΈΠΊΠ°
ΠΠ»Ρ ΡΠ΅Ρ , ΠΊΡΠΎ ΡΠ°ΠΌΠΎΡΡΠΎΡΡΠ΅Π»ΡΠ½ΠΎ ΠΎΡΠ²Π°ΠΈΠ²Π°Π΅Ρ Π°Π·Ρ Π³ΠΎΡΡΡΠ΅Π³ΠΎ ΠΊΠΎΠΏΡΠ΅Π½ΠΈΡ Π½Π΅ Π»ΠΈΡΠ½ΠΈΠΌ ΡΡΠ°Π½Π΅Ρ ΡΡΡΠ°Π½ΠΎΠ²ΠΊΠ° ΡΠ΅ΡΠΌΠΎΠΌΠ΅ΡΡΠ°. ΠΠ½ΠΈ Π±ΡΠ²Π°ΡΡ ΡΠ»Π΅ΠΊΡΡΠΎΠ½Π½ΡΠ΅ ΠΈ ΠΌΠ΅Ρ Π°Π½ΠΈΡΠ΅ΡΠΊΠΈΠ΅. ΠΠ±Π° Π½Π΅ Π±ΡΠ΄ΡΡ ΠΏΠΎΠΊΠ°Π·ΡΠ²Π°ΡΡ ΡΠΎΡΠ½ΡΠ΅ ΠΈΠ·ΠΌΠ΅ΡΠ΅Π½ΠΈΡ ΠΏΠΎ ΠΌΠ½ΠΎΠ³ΠΈΠΌ ΠΏΡΠΈΡΠΈΠ½Π°ΠΌ. ΠΡ ΡΡΠΎΠΌΡ ΠΏΠΎΡΠ²ΡΡΠΈΠ»ΠΈ ΠΎΡΠ΄Π΅Π»ΡΠ½ΠΎ ΡΠ½ΡΡΠΎΠ΅ Π²ΠΈΠ΄Π΅ΠΎ, Π³Π΄Π΅ Π²Ρ ΡΠΌΠΎΠΆΠ΅ΡΠ΅ ΡΠ·Π½Π°ΡΡ ΠΎ ΠΌΠ½ΠΎΠ³ΠΈΡ Π½ΡΠ°Π½ΡΠ°Ρ ΠΌΠ΅Ρ Π°Π½ΠΈΡΠ΅ΡΠΊΠΈΡ Π³ΡΠ°Π΄ΡΡΠ½ΠΈΠΊΠΎΠ².
ΠΠ°ΠΊΠ»ΡΡΠ΅Π½ΠΈΠ΅
ΠΠΎ Π²ΡΠ΅ΠΌΡ ΠΏΠΎΠ΄Π³ΠΎΡΠΎΠ²ΠΊΠΈ ΡΡΠ°ΡΡΠΈ ΠΎ ΡΠΎΠΌ, ΠΊΠ°ΠΊ ΡΠ΄Π΅Π»Π°ΡΡ ΠΊΠΎΠΏΡΠΈΠ»ΡΠ½Ρ ΡΠ²ΠΎΠΈΠΌΠΈ ΡΡΠΊΠ°ΠΌΠΈ ΠΌΡ Π½Π°ΡΠ»ΠΈ Π΄Π²Π° Π΄ΠΎΡΡΠ°ΡΠΎΡΠ½ΠΎ ΠΈΠ½ΡΠ΅ΡΠ΅ΡΠ½ΡΡ ΡΠΎΠ»ΠΈΠΊΠ° Π½Π° ΡΡΡΠ±Π΅ Ρ Π½Π°Π³Π»ΡΠ΄Π½ΠΎΠΉ Π΄Π΅ΠΌΠΎΠ½ΡΡΡΠ°ΡΠΈΠ΅ΠΉ Π²ΡΠ΅Π³ΠΎ ΠΏΡΠΎΡΠ΅ΡΡΠ°. Π‘Π°ΠΌΠΎΠ΅ Π²Π°ΠΆΠ½ΠΎΠ΅ Π² Π½ΠΈΡ , ΡΠ²Π°ΡΠΊΠ° Π²Π΅Π΄Π΅ΡΡΡ ΠΎΠ±ΡΡΠ½ΡΠΌ ΡΠ»Π΅ΠΊΡΡΠΎΠ΄ΠΎΠΌ.
Π ΠΏΠ΅ΡΠ²ΠΎΠΌ Π²ΠΈΠ΄Π΅ΠΎ ΠΏΠΎΠΊΠ°Π·ΡΠ²Π°Π΅ΡΡΡ Π½Π° ΡΠΊΠΎΠ»ΡΠΊΠΎ Π»Π΅Π³ΠΊΠΎ ΠΌΠΎΠΆΠ½ΠΎ ΡΠΎΠ±ΡΠ°ΡΡ ΠΊΠΎΠΏΡΠΈΠ»ΡΠ½Ρ Π³ΠΎΡΡΡΠ΅Π³ΠΎ ΠΊΠΎΠΏΡΠ΅Π½ΠΈΡ ΠΈΠ· ΡΡΠ°ΡΠΎΠ³ΠΎ ΡΠΆΠ°Π²ΠΎΠ³ΠΎ Π»ΠΈΡΡΠ° ΠΌΠ΅ΡΠ°Π»Π° Π² ΠΎΠ±ΡΡΠ½ΡΡ Π³Π°ΡΠ°ΠΆΠ½ΡΡ ΡΡΠ»ΠΎΠ²ΠΈΡΡ . ΠΠ· Π·Π°ΠΌΠ΅ΡΠ°Π½ΠΈΠΉ ΡΡΠΎ Π±Π»ΠΈΠ·ΠΊΠΎΡΠ°ΡΠΏΠΎΠ»ΠΎΠΆΠ΅Π½Π½ΡΠ΅ ΠΊ ΡΠ΅Π½ΡΡΡ ΡΡΡΠΊΠΈ Ρ ΠΏΠ΅ΡΠ΅ΠΌΡΡΠΊΠ°ΠΌΠΈ Π½Π° ΠΆΠΈΡΠΎΠ²ΠΎΠΌ ΠΏΠΎΠ΄Π΄ΠΎΠ½Π΅. ΠΠ½ΠΈ ΠΌΠ΅ΡΠ°ΡΡ ΡΠ΄ΠΎΠ±Π½ΠΎ ΠΏΠΎΠ»ΠΎΠΆΠΈΡΡ Π½Π° Π΄Π½ΠΎ ΡΠΎΠ»ΡΠ³Ρ. Π ΠΎΡΡΠ°Π»ΡΠ½ΠΎΠΌ, ΡΡΠΎ ΠΊΠ»Π°Π΄Π΅Π·Ρ ΡΡΠΆΠΎΠ³ΠΎ ΠΎΠΏΡΡΠ°.
youtube.com/embed/6MKliKEmmAk» frameborder=»0″ allow=»accelerometer; autoplay; encrypted-media; gyroscope; picture-in-picture» allowfullscreen=»»/>ΠΡΠΎΡΠΎΠ΅ Π²ΠΈΠ΄Π΅ΠΎ Π±ΠΎΠ»Π΅Π΅ ΡΠ΅Ρ Π½ΠΎΠ»ΠΎΠ³ΠΈΡΠ½ΠΎΠ΅. ΠΠ°ΠΆΠ΄ΡΠΉ ΡΠ»Π΅ΠΌΠ΅Π½Ρ ΡΠΎΡΡΠΎΠΈΡ ΠΈΠ· ΠΎΡΠ΄Π΅Π»ΡΠ½ΠΎ Π²ΡΡΠ΅Π·Π°Π½Π½ΡΡ Π΄Π΅ΡΠ°Π»Π΅ΠΉ. Π£Π΄Π΅Π»Π΅Π½ΠΎ Π²Π½ΠΈΠΌΠ°Π½ΠΈΠ΅ ΡΠ±ΠΎΡΠΊΠ΅ ΠΊΡΡΡΠΊΠΈ ΡΡΠ΅ΡΠ³ΠΎΠ»ΡΠ½ΠΎΠΉ ΡΠΎΡΠΌΡ. ΠΠΎ ΡΡΡ Π½Π° Π½Π°ΡΠ΅ ΠΌΠ½Π΅Π½ΠΈΠ΅ Π½Π΅ Π»ΡΡΡΠ΅Π΅ ΡΠ΅ΡΠ΅Π½ΠΈΠ΅ ΠΏΠΎ ΠΈΠ·Π³ΠΎΡΠΎΠ²Π»Π΅Π½ΠΈΡ Π²Π½ΡΡΡΠ΅Π½Π½Π΅ΠΉ ΡΠ°ΡΡΠΈ Ρ ΡΠ΅ΡΠ΅ΡΠΊΠ°ΠΌΠΈ ΠΈ ΠΏΠΎΠ΄Π΄ΠΎΠ½ΠΎΠΌ. Π’Π°ΠΊΠΆΠ΅ Π΄ΠΈΠ°ΠΌΠ΅ΡΡ ΠΏΠ°ΡΡΡΠ±ΠΊΠ° ΡΠ»ΠΈΡΠΊΠΎΠΌ Π±ΠΎΠ»ΡΡΠΎΠΉ, Π΄ΠΎΡΡΠ°ΡΠΎΡΠ½ΠΎ Ρ Π²Π½ΡΡΡΠ΅Π½Π½ΠΈΠΌ ΠΎΡΠ²Π΅ΡΡΡΠΈΠ΅ΠΌ 10 ΠΌΠΌ.
ΠΡΠ»ΠΈ Π²Ρ Π½Π°ΡΠ»ΠΈ Π² Π½Π°ΡΠ΅ΠΉ ΡΡΠ°ΡΡΠ΅ ΠΏΠΎΠ»Π΅Π·Π½ΡΡ ΠΈΠ½ΡΠΎΡΠΌΠ°ΡΠΈΡ, Π±ΡΠ΄Π΅ΠΌ ΡΠ°Π΄Ρ, Π΅ΡΠ»ΠΈ Π²Ρ Π΅Ρ ΠΏΠΎΠ΄Π΅Π»ΠΈΡΠ΅ΡΡ Π² ΡΠ²ΠΎΠΈΡ ΡΠΎΡΠΈΠ°Π»ΡΠ½ΡΡ ΡΠ΅ΡΡΡ ΠΈΠ»ΠΈ Π½Π° ΡΠΎΡΡΠΌΠ°Ρ Π² ΠΊΠ°ΡΠ΅ΡΡΠ²Π΅ Π±Π»Π°Π³ΠΎΠ΄Π°ΡΠ½ΠΎΡΡΠΈ. Π’Π°ΠΊΠΆΠ΅ ΠΆΠ΄Π΅ΠΌ Π²Π°ΡΠΈΡ Π²ΠΎΠΏΡΠΎΡΠΎΠ² ΠΈ Π΄ΠΎΠΏΠΎΠ»Π½Π΅Π½ΠΈΠΉ Π² ΠΎΡΠ·ΡΠ²Π°Ρ . ΠΡΡΠΊΠΈΠ΅ Π½ΠΎΠ²ΡΠ΅ ΠΏΠΎΠ»Π΅Π·Π½ΠΎΡΡΠΈ Π΄ΠΎΠ±Π°Π²ΠΈΠΌ Π² Π½ΡΠΆΠ½ΡΠΉ ΡΠ°Π·Π΄Π΅Π».
ΠΠΎΠΏΡΠΈΠ»ΡΠ½Ρ ΡΠ²ΠΎΠΈΠΌΠΈ ΡΡΠΊΠ°ΠΌΠΈ ΡΠ΅ΡΡΠ΅ΠΆΠΈ ΠΈ ΡΠΎΡΠΎ ΠΏΠΎΡΠ°Π³ΠΎΠ²Π°Ρ ΠΈΠ½ΡΡΡΡΠΊΡΠΈΡ
 ΠΠ²ΡΠΎΡ Admin ΠΡΠΎΡΠΌΠΎΡΡΠΎΠ² 5. 4k. ΠΠΏΡΠ±Π»ΠΈΠΊΠΎΠ²Π°Π½ΠΎ
 4k. ΠΠΏΡΠ±Π»ΠΈΠΊΠΎΠ²Π°Π½ΠΎ 
ΠΠΎΠΏΡΠ΅Π½ΡΠ΅ Π΄Π΅Π»ΠΈΠΊΠ°ΡΠ΅ΡΡ Π²ΡΠ΅Π³Π΄Π° Π±ΡΠ»ΠΈ ΠΈ Π΅ΡΡΡ Π»ΡΠ±ΠΈΠΌΡΠΌΠΈ Π·Π°ΠΊΡΡΠΊΠ°ΠΌΠΈ Π½Π° ΠΏΡΠ°Π·Π΄Π½ΠΈΡΠ½ΠΎΠΌ ΡΡΠΎΠ»Π΅. ΠΠ΄Π²ΠΎΠΉΠ½Π΅ ΠΏΡΠΈΡΡΠ½Π΅Π΅ Π΅ΡΠ»ΠΈ ΠΊΠΎΠΏΡΠ΅Π½ΡΡ ΡΡΠ±Ρ, ΠΌΡΡΠΎ, ΡΠ΅Π±ΡΡΡΠΊΠΈ, Π³ΡΡΠ΄ΠΈΠ½ΠΊΡ ΠΏΡΠΈΠ³ΠΎΡΠΎΠ²ΠΈΡΡ Ρ ΡΠ΅Π±Ρ Π΄ΠΎΠΌΠ° Π½Π° ΡΠΎΠ±ΡΡΠ²Π΅Π½Π½ΠΎΠΉ ΠΊΠΎΠΏΡΠΈΠ»ΡΠ½Π΅. Π‘Π΄Π΅Π»Π°Π½Π½Π°Ρ ΠΊΠΎΠΏΡΠΈΠ»ΡΠ½Ρ ΡΠ²ΠΎΠΈΠΌΠΈ ΡΡΠΊΠ°ΠΌΠΈ Π³ΠΎΡΡΡΠ΅Π³ΠΎ ΠΈΠ»ΠΈ Ρ ΠΎΠ»ΠΎΠ΄Π½ΠΎΠ³ΠΎ ΠΊΠΎΠΏΡΠ΅Π½ΠΈΡ ΠΏΠΎΠ·Π²ΠΎΠ»ΠΈΡ Π²Π°ΠΌ Π² Π»ΡΠ±ΠΎΠΉ ΠΌΠΎΠΌΠ΅Π½Ρ ΠΏΠΎΡΠ°Π΄ΠΎΠ²Π°ΡΡ ΡΠ²ΠΎΠΈΡ ΡΠΎΠ΄Π½ΡΡ ΠΈ Π³ΠΎΡΡΠ΅ΠΉ Π²ΠΊΡΡΠ½ΡΠΌΠΈ Π±Π»ΡΠ΄Π°ΠΌΠΈ ΠΈΠ· ΡΡΠ±Ρ ΠΈ ΠΌΡΡΠ°.
ΠΠ°ΠΏΠ°Ρ ΠΊΠΎΠΏΡΠ΅Π½ΠΎΠ³ΠΎ Π»Π°ΠΊΠΎΠΌΡΡΠ²Π° Π²ΡΠ·ΡΠ²Π°Π΅Ρ ΠΎΡΡΡΡΠΉ Π°ΠΏΠΏΠ΅ΡΠΈΡ, ΠΈ ΠΏΡΠ°Π·Π΄Π½ΠΈΠΊ Π±ΡΠ΄Π΅Ρ ΠΏΡΠΈΠ½ΠΎΡΠΈΡΡ ΡΠ°Π΄ΠΎΡΡΡ Ρ ΠΎΡΡ ΠΊΠ°ΠΆΠ΄ΡΠΉ Π΄Π΅Π½Ρ. ΠΡΠΏΠΎΠ»ΡΠ·ΡΡ ΡΠ²ΠΎΠ΅ ΠΎΠ±ΠΎΡΡΠ΄ΠΎΠ²Π°Π½ΠΈΠ΅, Π²Ρ ΠΏΠΎΠ»ΡΡΠ°Π΅ΡΠ΅ ΠΏΡΠΎΠ΄ΡΠΊΡ Π½Π°ΠΌΠ½ΠΎΠ³ΠΎ Π΄Π΅ΡΠ΅Π²Π»Π΅. ΠΡΠΈ ΡΡΠΎΠΌ ΠΈΡΠΏΠΎΠ»ΡΠ·ΡΠ΅ΡΡΡ Π½Π°ΡΡΡΠ°Π»ΡΠ½ΡΠ΅ ΠΈΠ½Π³ΡΠ΅Π΄ΠΈΠ΅Π½ΡΡ, Π½Π΅Ρ Π°ΡΠΎΠΌΠ°ΡΠΈΠ·Π°ΡΠΎΡΠΎΠ², ΠΊΡΠ°ΡΠΈΡΠ΅Π»Π΅ΠΉ ΠΈ ΠΆΠΈΠ΄ΠΊΠΎΠ³ΠΎ Π΄ΡΠΌΠ°.
ΠΡΠΈΠ³ΠΎΡΠΎΠ²Π»Π΅Π½Π½Π°Ρ Π΄ΠΎΠΌΠ°ΡΠ½ΡΡ Π΅Π΄Π° Π²ΡΠ΅Π³Π΄Π° Π½Π° ΠΏΠΎΡΡΠ΄ΠΎΠΊ Π²ΡΡΠ΅ ΠΊΠ°ΡΠ΅ΡΡΠ²ΠΎΠΌ ΠΈ Π½Π΅Ρ ΡΠΈΡΠΊΠ°, ΠΏΠΎΠ»ΡΡΠΈΡΡ ΡΠ°ΡΡΡΡΠΎΠΉΡΡΠ²ΠΎ ΠΆΠ΅Π»ΡΠ΄ΠΊΠ°. ΠΠΎ Π΄Π»Ρ ΡΡΠΎΠ³ΠΎ Π²Π°ΡΠ° ΠΊΠΎΠΏΡΠΈΠ»ΡΠ½Ρ Π΄Π»Ρ ΠΊΠ²Π°ΡΡΠΈΡΡ ΠΈΠ»ΠΈ ΡΡΠ°ΡΡΠΊΠ° Π΄ΠΎΠ»ΠΆΠ½Π° Π±ΡΡΡ ΡΠ΄Π΅Π»Π°Π½Π° ΠΏΠΎ Π²ΡΠ΅ΠΌ ΠΏΡΠ°Π²ΠΈΠ»Π°ΠΌ.
ΠΠΈΠ΄Ρ ΠΊΠΎΠΏΡΠΈΠ»Π΅Π½: ΠΎΠΏΠΈΡΠ°Π½ΠΈΠ΅ ΠΈ ΠΏΡΠΈΠ½ΡΠΈΠΏ ΡΠ°Π±ΠΎΡΡ
Π‘ΡΡΠ΅ΡΡΠ²ΡΠ΅Ρ Π΄Π²Π° Π²ΠΈΠ΄Π° ΠΊΠΎΠΏΡΠΈΠ»Π΅Π½: Π³ΠΎΡΡΡΠ΅Π³ΠΎ ΠΈ Ρ
ΠΎΠ»ΠΎΠ΄Π½ΠΎΠ³ΠΎ ΠΊΠΎΠΏΡΠ΅Π½ΠΈΡ. Π Π½Π΅ΠΊΠΎΡΠΎΡΡΡ
 ΡΠ»ΡΡΠ°ΡΡ
 ΠΎΠ½ΠΈ Π²ΡΠΏΠΎΠ»Π½ΡΡΡ ΠΊΠ°ΠΊ Π³ΠΎΡΡΡΠ΅Π΅, ΡΠ°ΠΊ ΠΈ Ρ
ΠΎΠ»ΠΎΠ΄Π½ΠΎΠ΅ ΠΊΠΎΠΏΡΠ΅Π½ΠΈΠ΅. Π£Π½ΠΈΠ²Π΅ΡΡΠ°Π»ΡΠ½Π°Ρ ΠΊΠΎΠΏΡΠΈΠ»ΡΠ½Ρ Π΄Π»Ρ Π΄ΠΎΠΌΠ° Π½Π°ΠΈΠ±ΠΎΠ»Π΅Π΅ ΠΏΠΎΠΏΡΠ»ΡΡΠ½Π°, ΠΊΠΎΠ½ΡΡΡΡΠΊΡΠΈΡ ΠΏΡΠΎΡΡΠ°Ρ Π² ΠΈΠ·Π³ΠΎΡΠΎΠ²Π»Π΅Π½ΠΈΠΈ, ΠΈ ΠΏΠΎΠ·Π²ΠΎΠ»ΡΠ΅Ρ ΠΏΡΠΈΠ³ΠΎΡΠΎΠ²ΠΈΡΡ Π»ΡΠ±ΡΠ΅ ΠΏΡΠΎΠ΄ΡΠΊΡΡ β ΡΡΠ±Ρ, ΠΊΠΎΠ»Π±Π°ΡΡ, ΡΠ°Π»ΠΎ, ΠΌΡΡΠΎ, ΡΡΡ, ΠΏΡΠΈΡΡ ΠΈ ΠΎΠ²ΠΎΡΠΈ.
 Π Π½Π΅ΠΊΠΎΡΠΎΡΡΡ
 ΡΠ»ΡΡΠ°ΡΡ
 ΠΎΠ½ΠΈ Π²ΡΠΏΠΎΠ»Π½ΡΡΡ ΠΊΠ°ΠΊ Π³ΠΎΡΡΡΠ΅Π΅, ΡΠ°ΠΊ ΠΈ Ρ
ΠΎΠ»ΠΎΠ΄Π½ΠΎΠ΅ ΠΊΠΎΠΏΡΠ΅Π½ΠΈΠ΅. Π£Π½ΠΈΠ²Π΅ΡΡΠ°Π»ΡΠ½Π°Ρ ΠΊΠΎΠΏΡΠΈΠ»ΡΠ½Ρ Π΄Π»Ρ Π΄ΠΎΠΌΠ° Π½Π°ΠΈΠ±ΠΎΠ»Π΅Π΅ ΠΏΠΎΠΏΡΠ»ΡΡΠ½Π°, ΠΊΠΎΠ½ΡΡΡΡΠΊΡΠΈΡ ΠΏΡΠΎΡΡΠ°Ρ Π² ΠΈΠ·Π³ΠΎΡΠΎΠ²Π»Π΅Π½ΠΈΠΈ, ΠΈ ΠΏΠΎΠ·Π²ΠΎΠ»ΡΠ΅Ρ ΠΏΡΠΈΠ³ΠΎΡΠΎΠ²ΠΈΡΡ Π»ΡΠ±ΡΠ΅ ΠΏΡΠΎΠ΄ΡΠΊΡΡ β ΡΡΠ±Ρ, ΠΊΠΎΠ»Π±Π°ΡΡ, ΡΠ°Π»ΠΎ, ΠΌΡΡΠΎ, ΡΡΡ, ΠΏΡΠΈΡΡ ΠΈ ΠΎΠ²ΠΎΡΠΈ.
ΠΠ»Ρ ΠΈΠ·Π³ΠΎΡΠΎΠ²Π»Π΅Π½ΠΈΡ ΠΈΡΠΏΠΎΠ»ΡΠ·ΡΡΡΡΡ ΡΠ°Π·Π½ΡΠ΅ ΠΌΠ°ΡΠ΅ΡΠΈΠ°Π»Ρ β ΠΌΠ΅ΡΠ°Π»Π», ΠΊΠΈΡΠΏΠΈΡ, Π΄Π΅ΡΠ΅Π²ΠΎ, ΠΏΠΎΠ΄ΡΡΡΠ½ΡΠ΅ ΠΏΡΠ΅Π΄ΠΌΠ΅ΡΡ. ΠΠΎ Π²ΠΈΠ΄Π°ΠΌ ΡΠ°Π·Π»ΠΈΡΠ°ΡΡ ΡΠ»Π΅Π΄ΡΡΡΠΈΠ΅ ΡΠ°Π·Π½ΠΎΠ²ΠΈΠ΄Π½ΠΎΡΡΠΈ ΡΠ°ΠΌΠΎΠ΄Π΅Π»ΡΠ½ΡΡ ΠΊΠΎΠΏΡΠΈΠ»Π΅Π½:
Π‘ΡΠ°Π½ΡΠΈΠΎΠ½Π°ΡΠ½ΡΠ΅ β ΡΠ°Ρ ΡΠ½ΡΠ΅ (Π²Π΅ΡΡΠΈΠΊΠ°Π»ΡΠ½ΡΠ΅) ΠΈ ΡΡΠ½Π½Π΅Π»ΡΠ½ΡΠ΅ (Π³ΠΎΡΠΈΠ·ΠΎΠ½ΡΠ°Π»ΡΠ½ΡΠ΅). ΠΠ΅ΡΠ΅Π½ΠΎΡΠ½ΡΠ΅ β ΠΊΠ°ΠΌΠ΅ΡΠ½ΡΠ΅ Π² ΡΠΎΡΠΌΠ΅ ΡΡΠΈΠΊΠ°.
ΠΡΡΠΎΡΠ½ΠΈΠΊΠΎΠΌ Π΄ΡΠΌΠ° Π² ΠΊΠ°ΠΆΠ΄ΠΎΠΉ ΠΊΠΎΠΏΡΠΈΠ»ΡΠ½Π΅ ΡΠ²Π»ΡΡΡΡΡ Π΄ΡΠΎΠ²Π°, ΡΠ΅ΠΏΠ°, ΠΎΠΏΠΈΠ»ΠΊΠΈ. ΠΠΎΠ΄Π΄Π΅ΡΠΆΠ°Π½ΠΈΠ΅ Π²ΡΡΠΎΠΊΠΎΠΉ ΡΠ΅ΠΌΠΏΠ΅ΡΠ°ΡΡΡΡ Π² ΠΊΠΎΠΏΡΠΈΠ»ΡΠ½Π΅ Π³ΠΎΡΡΡΠ΅Π³ΠΎ ΠΊΠΎΠΏΡΠ΅Π½ΠΈΡ ΠΎΡΡΡΠ΅ΡΡΠ²Π»ΡΠ΅ΡΡΡ Π·Π° ΡΡΠ΅Ρ Π²Π½Π΅ΡΠ½Π΅Π³ΠΎ ΠΈΡΡΠΎΡΠ½ΠΈΠΊΠ° Π½Π°Π³ΡΠ΅Π²Π° β Π΄ΡΠΎΠ², ΡΠ»Π΅ΠΊΡΡΠΈΡΠ΅ΡΡΠ²Π°, Π³Π°Π·Π°. ΠΡΠΎ ΠΌΠΎΠΆΠ΅Ρ Π±ΡΡΡ ΠΊΡΡ ΠΎΠ½Π½Π°Ρ ΠΏΠ»ΠΈΡΠ°, ΠΊΠΎΡΡΠ΅Ρ, ΡΠ³Π»ΠΈ Π² ΠΌΠ°Π½Π³Π°Π»Π΅.
ΠΡΠΈΠ½ΡΠΈΠΏ ΠΊΠΎΠΏΡΠ΅Π½ΠΈΡ ΠΎΡΠ½ΠΎΠ²Π°Π½ Π½Π° ΡΠ»Π΅Π½ΠΈΠΈ ΡΠ΅ΠΏΡ (ΠΎΠΏΠΈΠ»ΠΎΠΊ), Π² ΡΠ΅Π·ΡΠ»ΡΡΠ°ΡΠ΅ ΠΊΠΎΡΠΎΡΠΎΠ³ΠΎ ΠΏΡΠΎΠΈΡΡ
ΠΎΠ΄ΠΈΡ ΡΠ΅ΡΠΌΠΈΡΠ΅ΡΠΊΠ°Ρ ΠΎΠ±ΡΠ°Π±ΠΎΡΠΊΠ° ΠΏΡΠΎΠ΄ΡΠΊΡΠ° Π΄ΡΠΌΠΎΠΌ. ΠΡΠΌ Π²ΠΎΠ·Π΄Π΅ΠΉΡΡΠ²ΡΠ΅Ρ Π½Π° Π΅Π΄Ρ ΠΈ ΠΏΡΠΎΠΏΠΈΡΡΠ²Π°Π΅Ρ Π΅Π΅ ΠΎΡΠΎΠ±Π΅Π½Π½ΡΠΌ Π°ΡΠΎΠΌΠ°ΡΠΎΠΌ. ΠΠΎΠ΄ΠΎΠ±Π½Π°Ρ Π³ΠΎΡΠΎΠ²ΠΊΠ° Π½Π΅ ΡΠΎΠ»ΡΠΊΠΎ ΠΏΡΠΈΠ΄Π°Π΅Ρ Π²ΠΊΡΡ ΠΊΠΎΠΏΡΠ΅Π½ΠΎΡΡΡΠΌ, Π½ΠΎ ΠΈ ΡΠ²Π΅Π»ΠΈΡΠΈΠ²Π°Π΅Ρ ΡΡΠΎΠΊ Ρ
ΡΠ°Π½Π΅Π½ΠΈΡ.
Π Π°Π·Π»ΠΈΡΠΈΡ Π³ΠΎΡΡΡΠ΅Π³ΠΎ ΠΊΠΎΠΏΡΠ΅Π½ΠΈΠ΅ ΠΎΡ Ρ ΠΎΠ»ΠΎΠ΄Π½ΠΎΠ³ΠΎ
ΠΡΠ΅Π³ΠΎ ΡΡΡΠ΅ΡΡΠ²ΡΠ΅Ρ Π΄Π²Π° Π²ΠΈΠ΄Π° ΠΊΠΎΠΏΡΠ΅Π½ΠΈΡ: Ρ ΠΎΠ»ΠΎΠ΄Π½ΠΎΠ΅ ΠΈ Π³ΠΎΡΡΡΠ΅Π΅. Π ΠΊΠ°ΠΆΠ΄ΠΎΠΌ ΠΏΡΠΎΡΠ΅ΡΡ ΠΈΡΠΏΠΎΠ»ΡΠ·ΡΠ΅ΡΡΡ ΡΠ°Π·Π½ΡΠΉ ΡΠ΅ΠΌΠΏΠ΅ΡΠ°ΡΡΡΠ½ΡΠΉ ΡΠ΅ΠΆΠΈΠΌ, Π΄Π»ΠΈΡΠ΅Π»ΡΠ½ΠΎΡΡΡ ΠΏΡΠΈΠ³ΠΎΡΠΎΠ²Π»Π΅Π½ΠΈΡ ΠΈ ΠΏΡΠ΅Π΄Π²Π°ΡΠΈΡΠ΅Π»ΡΠ½Π°Ρ ΠΏΠΎΠ΄Π³ΠΎΡΠΎΠ²ΠΊΠ° ΠΏΡΠΎΠ΄ΡΠΊΡΠΎΠ². ΠΠ°ΠΊΠΎΠΉ ΠΌΠ΅ΡΠΎΠ΄ ΡΡΡΠ΅ΠΊΡΠΈΠ²Π½Π΅Π΅, ΠΎΠ΄Π½ΠΎΠ·Π½Π°ΡΠ½ΠΎ ΡΠΊΠ°Π·Π°ΡΡ Π½Π΅Π»ΡΠ·Ρ. ΠΠ»Ρ Π½Π΅ΠΊΠΎΡΠΎΡΡΡ ΠΏΡΠΎΠ΄ΡΠΊΡΠΎΠ², ΠΏΠΎΠ΄Ρ ΠΎΠ΄ΠΈΡ ΡΠΎΠ»ΡΠΊΠΎ Ρ ΠΎΠ»ΠΎΠ΄Π½ΠΎΠ΅ ΠΊΠΎΠΏΡΠ΅Π½ΠΈΠ΅ β ΡΡΡΡ, ΠΎΠ²ΠΎΡΠΈ. ΠΡΡΠΎ, ΡΡΠ±Π°, ΡΠ°Π»ΠΎ ΠΌΠΎΠ³ΡΡ Π±ΡΡΡ ΠΏΡΠΈΠ³ΠΎΡΠΎΠ²Π»Π΅Π½Ρ Π»ΡΠ±ΡΠΌ ΡΠΏΠΎΡΠΎΠ±ΠΎΠΌ, Π²ΡΠ΅ Π·Π°Π²ΠΈΡΠΈΡ ΠΎΡ Π²Π°ΡΠΈΡ ΠΏΡΠ΅Π΄ΠΏΠΎΡΡΠ΅Π½ΠΈΠΉ ΠΈ Π²ΠΎΠ·ΠΌΠΎΠΆΠ½ΠΎΡΡΠ΅ΠΉ.
ΠΡΠΎΠ±Π΅Π½Π½ΠΎΡΡΠΈ Π³ΠΎΡΡΡΠ΅Π³ΠΎ ΠΊΠΎΠΏΡΠ΅Π½ΠΈΡ
ΠΡΠΈ Π³ΠΎΡΡΡΠ΅ΠΌ ΡΠΏΠΎΡΠΎΠ±Π΅ ΠΏΡΠΈΠ³ΠΎΡΠΎΠ²Π»Π΅Π½ΠΈΡ ΠΏΡΠΎΠ΄ΡΠΊΡΠΎΠ² Π½Π΅ Π·Π°Π½ΠΈΠΌΠ°Π΅Ρ Π΄Π»ΠΈΡΠ΅Π»ΡΠ½ΠΎΠ³ΠΎ Π²ΡΠ΅ΠΌΠ΅Π½ΠΈ. Π‘ΡΠΎΠΊ Π³ΠΎΡΠΎΠ²ΠΊΠΈ ΠΏΡΠΎΠ΄ΡΠΊΡΠΎΠ² Π½Π΅ Π±ΠΎΠ»Π΅Π΅ 2-3 ΡΠ°ΡΠΎΠ². ΠΠΎΠΏΡΠ΅Π½ΠΎΡΡΠΈ ΠΎΠ±ΡΠ°Π±ΠΎΡΠ°Π½Π½ΡΠ΅ Π³ΠΎΡΡΡΠΈΠΌ ΡΠΏΠΎΡΠΎΠ±ΠΎΠΌ, ΠΏΠΎΠ»ΡΡΠ°ΡΡΡΡ ΠΎΡΠ΅Π½Ρ Π°ΡΠΎΠΌΠ°ΡΠ½ΡΠ΅ ΠΈ ΡΠΎΡΠ½ΡΠ΅, ΡΡΠΊΠΎ-ΠΊΠΎΡΠΈΡΠ½Π΅Π²ΠΎΠΉ ΡΠ²Π΅ΡΠ° Ρ Ρ ΡΡΡΡΡΡΠ΅ΠΉ ΠΊΠΎΡΠΎΡΠΊΠΎΠΉ.
Π’Π΅ΠΌΠΏΠ΅ΡΠ°ΡΡΡΠ° ΠΏΡΠΈ Π³ΠΎΡΡΡΠ΅ΠΌ ΠΊΠΎΠΏΡΠ΅Π½ΠΈΠΈ Π΄Π΅ΡΠΆΠΈΡΡΡ ΠΎΡ 60 Π΄ΠΎ 120Β°Π‘. ΠΡΠΈ ΡΠ°ΠΊΠΎΠΌ ΡΠ΅ΠΌΠΏΠ΅ΡΠ°ΡΡΡΠ½ΠΎΠΌ ΡΠ΅ΠΆΠΈΠΌΠ΅ ΠΏΡΠΎΠΈΡΡ ΠΎΠ΄ΠΈΡ Π½Π΅ ΡΠΎΠ»ΡΠΊΠΎ Π²ΠΎΠ·Π΄Π΅ΠΉΡΡΠ²ΠΈΠ΅ Π΄ΡΠΌΠ° Π½Π° ΠΏΡΠΎΠ΄ΡΠΊΡ, Π½ΠΎ ΠΈ Π΅Π³ΠΎ ΡΠ΅ΡΠΌΠΈΡΠ΅ΡΠΊΠ°Ρ ΠΎΠ±ΡΠ°Π±ΠΎΡΠΊΠ°.
ΠΠΎΡΠ»Π΅ ΠΎΠΊΠΎΠ½ΡΠ°Π½ΠΈΡ Π³ΠΎΡΡΡΠ΅Π³ΠΎ ΠΊΠΎΠΏΡΠ΅Π½ΠΈΡ Π½Π΅ ΡΡΠ΅Π±ΡΠ΅ΡΡΡ Π΄ΠΎΠΏΠΎΠ»Π½ΠΈΡΠ΅Π»ΡΠ½ΠΎΠ³ΠΎ ΠΏΡΠΎΡΡΡΠΈΠ²Π°Π½ΠΈΡ ΠΈΠ»ΠΈ Π²ΡΠ»Π΅Π½ΠΈΡ. ΠΡΠΎΠ΄ΡΠΊΡΡ ΡΡΠ°Π·Ρ Π³ΠΎΡΠΎΠ²Ρ ΠΊ ΡΠΏΠΎΡΡΠ΅Π±Π»Π΅Π½ΠΈΡ. ΠΠΎ Π±Π»ΡΠ΄Π° Π³ΠΎΡΡΡΠ΅Π³ΠΎ ΠΈΠΌΠ΅ΡΡ Π½Π΅Π±ΠΎΠ»ΡΡΠΎΠΉ ΡΡΠΎΠΊ Π³ΠΎΠ΄Π½ΠΎΡΡΠΈ. Π ΡΠ΅ΡΠ΅Π½ΠΈΠΈ 3-5 Π΄Π½Π΅ΠΉ ΠΈΡ
 Π½Π΅ΠΎΠ±Ρ
ΠΎΠ΄ΠΈΠΌΠΎ ΡΠΏΠΎΡΡΠ΅Π±ΠΈΡΡ, ΠΈΠ½Π°ΡΠ΅ ΠΎΠ½ΠΈ ΡΠ΅ΡΡΡΡ ΡΠ²ΠΎΠΉ Π²ΠΊΡΡ. Π ΠΏΠΎΡΠ»Π΅ ΠΎΠ΄Π½ΠΎΠΉ Π½Π΅Π΄Π΅Π»ΠΈ Ρ
ΡΠ°Π½Π΅Π½ΠΈΡ ΠΈ Π²ΠΎΠ²ΡΠ΅ ΠΌΠΎΠ³ΡΡ Π½Π°ΡΠ°ΡΡ ΠΈΡΠΏΠΎΡΡΠΈΡΡΡΡ.
 ΠΡΠΎΠ΄ΡΠΊΡΡ ΡΡΠ°Π·Ρ Π³ΠΎΡΠΎΠ²Ρ ΠΊ ΡΠΏΠΎΡΡΠ΅Π±Π»Π΅Π½ΠΈΡ. ΠΠΎ Π±Π»ΡΠ΄Π° Π³ΠΎΡΡΡΠ΅Π³ΠΎ ΠΈΠΌΠ΅ΡΡ Π½Π΅Π±ΠΎΠ»ΡΡΠΎΠΉ ΡΡΠΎΠΊ Π³ΠΎΠ΄Π½ΠΎΡΡΠΈ. Π ΡΠ΅ΡΠ΅Π½ΠΈΠΈ 3-5 Π΄Π½Π΅ΠΉ ΠΈΡ
 Π½Π΅ΠΎΠ±Ρ
ΠΎΠ΄ΠΈΠΌΠΎ ΡΠΏΠΎΡΡΠ΅Π±ΠΈΡΡ, ΠΈΠ½Π°ΡΠ΅ ΠΎΠ½ΠΈ ΡΠ΅ΡΡΡΡ ΡΠ²ΠΎΠΉ Π²ΠΊΡΡ. Π ΠΏΠΎΡΠ»Π΅ ΠΎΠ΄Π½ΠΎΠΉ Π½Π΅Π΄Π΅Π»ΠΈ Ρ
ΡΠ°Π½Π΅Π½ΠΈΡ ΠΈ Π²ΠΎΠ²ΡΠ΅ ΠΌΠΎΠ³ΡΡ Π½Π°ΡΠ°ΡΡ ΠΈΡΠΏΠΎΡΡΠΈΡΡΡΡ.
Π―ΡΠΊΠΈΠΉ, ΠΏΡΠΈΡΡΠ½ΡΠΉ Π²ΠΊΡΡ ΠΈ Π°ΡΠΎΠΌΠ°Ρ.
ΠΠ°Π»ΠΎΠ΅ Π²ΡΠ΅ΠΌΡ Π³ΠΎΡΠΎΠ²ΠΊΠΈ β 2-3 ΡΠ°ΡΠ°.
ΠΠ΅ Π½ΡΠΆΠ΄Π°Π΅ΡΡΡ Π² Π΄ΠΎΠΏΠΎΠ»Π½ΠΈΡΠ΅Π»ΡΠ½ΠΎΠΉ ΠΏΡΠΎΡΡΡΠΊΠ΅.
ΠΠΎΡΠΎΡΠΊΠΈΠΉ ΡΡΠΎΠΊ Π³ΠΎΠ΄Π½ΠΎΡΡΠΈ β Π½Π΅ Π±ΠΎΠ»Π΅Π΅ 1-2 Π½Π΅Π΄Π΅Π»Ρ Π² Ρ ΠΎΠ»ΠΎΠ΄ΠΈΠ»ΡΠ½ΠΈΠΊΠ΅.
ΠΡΠΎΠ±Π΅Π½Π½ΠΎΡΡΠΈ Ρ ΠΎΠ»ΠΎΠ΄Π½ΠΎΠ³ΠΎ ΠΊΠΎΠΏΡΠ΅Π½ΠΈΡ
Π₯ΠΎΠ»ΠΎΠ΄Π½ΠΎΠ΅ ΠΊΠΎΠΏΡΠ΅Π½ΠΈΠ΅ ΠΏΠΎ ΡΠ΅Ρ Π½ΠΎΠ»ΠΎΠ³ΠΈΠΈ Π±ΠΎΠ»Π΅Π΅ ΡΠ»ΠΎΠΆΠ½ΡΠΉ ΠΏΡΠΎΡΠ΅ΡΡ. ΠΠ»Ρ ΡΡΠΎΠ³ΠΎ ΡΡΠ΅Π±ΡΠ΅ΡΡΡ Π΄ΡΡΠ³ΠΎΠ΅ ΠΎΠ±ΠΎΡΡΠ΄ΠΎΠ²Π°Π½ΠΈΠ΅, ΡΠ΅Ρ Π½ΠΈΡΠ΅ΡΠΊΠΈ ΡΠ»ΠΎΠΆΠ½Π΅Π΅. ΠΡΠΎΡΠ΅ΡΡ ΠΏΡΠΈΠ³ΠΎΡΠΎΠ²Π»Π΅Π½ΠΈΡ ΠΏΡΠΎΠ΄ΡΠΊΡΠΎΠ² Ρ ΠΎΠ»ΠΎΠ΄Π½ΡΠΌ ΡΠΏΠΎΡΠΎΠ±ΠΎΠΌ ΡΠ°ΡΡΡΠ³ΠΈΠ²Π°Π΅ΡΡΡ Π½Π° Π΄Π»ΠΈΡΠ΅Π»ΡΠ½ΠΎΠ΅ Π²ΡΠ΅ΠΌΡ ΠΎΡ ΡΡΡΠΎΠΊ Π΄ΠΎ ΠΏΡΡΠΈ Π΄Π½Π΅ΠΉ.
Π’Π°ΠΊΠΎΠΉ Π΄Π»ΠΈΡΠ΅Π»ΡΠ½ΡΠΉ ΡΡΠΎΠΊ ΠΎΠ±ΡΠ°Π±ΠΎΡΠΊΠΈ ΠΏΠΎΠ·Π²ΠΎΠ»ΡΠ΅Ρ ΠΏΡΠΎΠΏΠΈΡΠ°ΡΡ Π΄ΡΠΌΠΎΠΌ ΠΌΡΡΠΎ ΠΈΠ»ΠΈ ΡΡΠ±Ρ, ΡΠ΄Π°Π»ΠΈΡΡ Π»ΠΈΡΠ½ΡΡ Π²Π»Π°Π³Ρ ΠΈΠ· ΠΏΡΠΎΠ΄ΡΠΊΡΠΎΠ² ΠΊΠΎΠΏΡΠ΅Π½ΠΈΡ. Π’Π΅ΠΌΠΏΠ΅ΡΠ°ΡΡΡΠ° Ρ ΠΎΠ»ΠΎΠ΄Π½ΠΎΠ³ΠΎ ΠΊΠΎΠΏΡΠ΅Π½ΠΈΡ ΡΠΎΡΡΠ°Π²Π»ΡΠ΅Ρ 18-25Β°Π‘.
ΠΠ»Π°Π³ΠΎΠ΄Π°ΡΡ ΡΠ°ΠΊΠΎΠΉ ΡΠ΅ΠΌΠΏΠ΅ΡΠ°ΡΡΡΠ΅ Π² ΠΏΡΠΎΠ΄ΡΠΊΡΠ΅ Π½Π΅ ΡΠ°Π·ΡΡΡΠ°Π΅ΡΡΡ ΠΈ ΡΠΎΡ
ΡΠ°Π½ΡΠ΅ΡΡΡ Π²Π΅ΡΡ ΠΏΠΎΠ»Π΅Π·Π½ΡΠΉ ΡΠΎΡΡΠ°Π² ΠΌΠΈΠΊΡΠΎΡΠ»Π΅ΠΌΠ΅Π½ΡΠΎΠ². ΠΠΎΠΏΡΠ΅Π½ΠΎΡΡΠΈ ΡΠ°ΠΊΠΆΠ΅ ΠΏΡΠΈΠΎΠ±ΡΠ΅ΡΠ°ΡΡ ΠΊΡΠ°ΡΠΈΠ²ΡΠΉ Π·ΠΎΠ»ΠΎΡΠΈΡΡΠΎ Π²ΠΈΡΠ½Π΅Π²ΡΠΉ ΡΠ²Π΅Ρ, Π΄ΡΠΌΠ½ΡΠΉ Π°ΡΠΎΠΌΠ°Ρ ΠΈ Π²ΠΊΡΡ, Π½ΠΎ Π½Π΅ Π½Π°ΡΡΠΎΠ»ΡΠΊΠΎ ΡΡΠΊΠΈΠΉ, ΠΊΠ°ΠΊ ΠΏΡΠΈ Π³ΠΎΡΡΡΠ΅ΠΌ ΠΊΠΎΠΏΡΠ΅Π½ΠΈΠΈ.
Π Π΄ΠΎΠΌΠ°ΡΠ½ΠΈΡ ΡΡΠ»ΠΎΠ²ΠΈΡΡ Ρ ΠΎΠ»ΠΎΠ΄Π½ΠΎΠ΅ ΠΊΠΎΠΏΡΠ΅Π½ΠΈΠ΅ ΠΏΡΠΎΠ²ΠΎΠ΄ΠΈΡΡΡ ΡΠ΅Π·ΠΎΠ½Π½ΠΎ β ΠΎΡΠ΅Π½Ρ, Π·ΠΈΠΌΠ°, Π²Π΅ΡΠ½Π°. Π Π»Π΅ΡΠ½Π΅Π΅ Π²ΡΠ΅ΠΌΡ, ΠΊΠΎΠ³Π΄Π° ΡΠ»ΠΈΡΠ½Π°Ρ ΡΠ΅ΠΌΠΏΠ΅ΡΠ°ΡΡΡΠ° ΠΏΡΠ΅Π²ΡΡΠ°Π΅Ρ Π½Π΅ΠΎΠ±Ρ ΠΎΠ΄ΠΈΠΌΡΠΉ ΠΌΠ°ΠΊΡΠΈΠΌΡΠΌ Π΄Π»Ρ Ρ ΠΎΠ»ΠΎΠ΄Π½ΠΎΠ³ΠΎ ΠΊΠΎΠΏΡΠ΅Π½ΠΈΡ, ΡΠ»ΠΎΠΆΠ½ΠΎ ΠΎΡ Π»Π°Π΄ΠΈΡΡ Π΄ΡΠΌ Π΄ΠΎ Π½Π΅ΠΎΠ±Ρ ΠΎΠ΄ΠΈΠΌΡΡ 18 β 25 Π³ΡΠ°Π΄ΡΡΠΎΠ². Π ΠΏΡΠΈ Π΄Π»ΠΈΡΠ΅Π»ΡΠ½ΠΎΠΌ ΠΊΠΎΠΏΡΠ΅Π½ΠΈΠΈ ΡΠ΅ΠΌΠΏΠ΅ΡΠ°ΡΡΡΠΎΠΉ Π²ΡΡΠ΅ 30Β°Π‘, ΠΏΡΠΎΠ΄ΡΠΊΡ ΠΏΡΠΎΡΡΠΎ ΠΈΡΠΏΠΎΡΡΠΈΡΡΡ. ΠΠΈΠΌΠΎΠΉ, ΠΏΡΡΠ΅ΠΌ Π΄ΠΎΠΏΠΎΠ»Π½ΠΈΡΠ΅Π»ΡΠ½ΠΎΠ³ΠΎ Π½Π°Π³ΡΠ΅Π²Π°, ΠΌΠΎΠΆΠ½ΠΎ Π·Π°Π΄Π°ΡΡ ΠΏΡΠ°Π²ΠΈΠ»ΡΠ½ΡΠΉ ΡΠ΅ΠΌΠΏΠ΅ΡΠ°ΡΡΡΠ½ΡΠΉ ΡΠ΅ΠΆΠΈΠΌ Π² ΠΊΠΎΠΏΡΠΈΠ»ΡΠ½ΠΎΠΉ ΠΊΠ°ΠΌΠ΅ΡΠ΅.
ΠΡΠΎΠ΄ΡΠΊΡΡ Π±ΠΎΠ»Π΅Π΅ ΠΏΠΎΠ»Π΅Π·Π½Ρ.
ΠΠ»ΠΈΡΠ΅Π»ΡΠ½ΡΠΉ ΡΡΠΎΠΊ Ρ ΡΠ°Π½Π΅Π½ΠΈΡ.
ΠΠ»ΠΈΡΠ΅Π»ΡΠ½ΠΎΡΡΡ ΠΊΠΎΠΏΡΠ΅Π½ΠΈΡ.
Π‘Π»ΠΎΠΆΠ½ΠΎΠ΅ ΠΎΠ±ΠΎΡΡΠ΄ΠΎΠ²Π°Π½ΠΈΠ΅.
Π’ΡΡΠ΄ΠΎΠ΅ΠΌΠΊΠΈΠΉ ΠΏΡΠΎΡΠ΅ΡΡ.
ΠΡΠ΅Π΄Π²Π°ΡΠΈΡΠ΅Π»ΡΠ½Π°Ρ ΠΏΠΎΠ΄Π³ΠΎΡΠΎΠ²ΠΊΠ°
Π’ΡΠ΅ΡΡΠ΅ ΠΎΡΠ»ΠΈΡΠΈΠ΅ Π³ΠΎΡΡΡΠ΅Π³ΠΎ ΠΈ Ρ ΠΎΠ»ΠΎΠ΄Π½ΠΎΠ³ΠΎ ΠΊΠΎΠΏΡΠ΅Π½ΠΈΡ Π² ΡΠΎΠΌ, ΡΡΠΎ ΠΏΠ΅ΡΠ΅Π΄ ΠΏΡΠΎΡΠ΅ΡΡΠΎΠΌ ΠΏΡΠΎΠ²ΠΎΠ΄ΠΈΡΡΡ, ΡΠ°Π·Π½Π°Ρ ΠΏΠ΅ΡΠ²ΠΈΡΠ½Π°Ρ ΠΎΠ±ΡΠ°Π±ΠΎΡΠΊΠ° ΠΏΠΎΡΡΠ΅Π±ΡΠ΅ΡΡΡ. ΠΠ»Ρ Ρ ΠΎΠ»ΠΎΠ΄Π½ΠΎΠ³ΠΎ ΠΊΠΎΠΏΡΠ΅Π½ΠΈΡ Π³ΠΎΡΠΎΠ²ΠΈΡΡΡ ΡΠ°ΡΡΠΎΠ» (ΡΡΠ·Π»ΡΠΊ) ΡΠΌΠ΅ΡΡ ΡΠΎΠ»ΠΈ, ΠΏΡΡΠ½ΠΎΡΡΠ΅ΠΉ Π² ΠΊΠΎΡΠΎΡΠΎΠΌ ΠΏΡΠΎΠ΄ΡΠΊΡ ΠΌΠ°ΡΠΈΠ½ΡΠ΅ΡΡΡ Π½Π΅ΡΠΊΠΎΠ»ΡΠΊΠΎ Π΄Π½Π΅ΠΉ. ΠΠ°ΡΠ΅ΠΌ Π΄Π΅Π»Π°Π΅ΡΡΡ ΠΏΡΠΎΡΡΡΠΊΠ°. ΠΡΠΈ Π³ΠΎΡΡΡΠ΅ΠΌ ΡΠΏΠΎΡΠΎΠ±Π΅ ΡΡΠ΅Π±ΡΠ΅ΡΡΡ ΠΌΠΈΠ½ΠΈΠΌΠ°Π»ΡΠ½Π°Ρ ΠΎΠ±ΡΠ°Π±ΠΎΡΠΊΠ° ΠΈΠ»ΠΈ Π²ΠΎΠΎΠ±ΡΠ΅ Π½Π΅ ΠΏΡΠΎΠΈΠ·Π²ΠΎΠ΄ΠΈΡΡΡ, Π² Π·Π°Π²ΠΈΡΠΈΠΌΠΎΡΡΠΈ ΠΎΡ ΡΠ΅ΡΠ΅ΠΏΡΠ°.
ΠΠ΅ΡΠ΅Π²ΡΠ½Π½Π°Ρ ΠΊΠΎΠΏΡΠΈΠ»ΡΠ½Ρ Π΄Π»Ρ Π³ΠΎΡΡΡΠ΅Π³ΠΎ ΠΈ Ρ ΠΎΠ»ΠΎΠ΄Π½ΠΎΠ³ΠΎ ΠΊΠΎΠΏΡΠ΅Π½ΠΈΡ
Π Π΄ΠΎΠΌΠ°ΡΠ½ΠΈΡ
 ΡΡΠ»ΠΎΠ²ΠΈΡΡ
 ΠΏΠΎΠΏΡΠ»ΡΡΠ½ΡΠΌ Π²Π°ΡΠΈΠ°Π½ΡΠΎΠΌ ΡΡΠΈΡΠ°Π΅ΡΡΡ Π΄Π΅ΡΠ΅Π²ΡΠ½Π½Π°Ρ ΠΊΠΎΠ½ΡΡΡΡΠΊΡΠΈΡ. ΠΡΠΌΠ΅ΡΠΈΠΌ, ΡΡΠΎ ΠΊΠΎΠΏΡΠΈΠ»ΡΠ½Ρ ΠΌΠΎΠΆΠ½ΠΎ ΡΠ΄Π΅Π»Π°ΡΡ ΡΠ½ΠΈΠ²Π΅ΡΡΠ°Π»ΡΠ½ΠΎΠΉ ΠΈ Π΄Π΅Π»Π°ΡΡ Π΄Π΅Π»ΠΈΠΊΠ°ΡΠ΅ΡΡ Π³ΠΎΡΡΡΠΈΠΌ ΠΈ Ρ
ΠΎΠ»ΠΎΠ΄Π½ΡΠΌ ΠΊΠΎΠΏΡΠ΅Π½ΠΈΠ΅ΠΌ. ΠΠ°ΠΊ ΠΏΡΠ°Π²ΠΈΠ»ΠΎ, Π΄Π΅ΡΠ΅Π²ΡΠ½Π½ΡΠ΅ ΠΊΠΎΠΏΡΠΈΠ»ΡΠ½ΠΈ Π΄Π»Ρ ΡΡΠ°ΡΡΠΊΠ° ΠΈΠ»ΠΈ ΡΠ°ΡΡΠ½ΠΎΠ³ΠΎ Π΄ΠΎΠΌΠ° Π΄Π΅Π»Π°ΡΡ Π² Π²ΠΈΠ΄Π΅ Π½Π΅Π±ΠΎΠ»ΡΡΠΎΠ³ΠΎ Π΄ΠΎΠΌΠΈΠΊΠ° Ρ Π΄Π²ΡΡ
ΡΠΊΠ°ΡΠ½ΠΎΠΉ ΠΊΡΡΡΠ΅ΠΉ.
 ΠΡΠΌΠ΅ΡΠΈΠΌ, ΡΡΠΎ ΠΊΠΎΠΏΡΠΈΠ»ΡΠ½Ρ ΠΌΠΎΠΆΠ½ΠΎ ΡΠ΄Π΅Π»Π°ΡΡ ΡΠ½ΠΈΠ²Π΅ΡΡΠ°Π»ΡΠ½ΠΎΠΉ ΠΈ Π΄Π΅Π»Π°ΡΡ Π΄Π΅Π»ΠΈΠΊΠ°ΡΠ΅ΡΡ Π³ΠΎΡΡΡΠΈΠΌ ΠΈ Ρ
ΠΎΠ»ΠΎΠ΄Π½ΡΠΌ ΠΊΠΎΠΏΡΠ΅Π½ΠΈΠ΅ΠΌ. ΠΠ°ΠΊ ΠΏΡΠ°Π²ΠΈΠ»ΠΎ, Π΄Π΅ΡΠ΅Π²ΡΠ½Π½ΡΠ΅ ΠΊΠΎΠΏΡΠΈΠ»ΡΠ½ΠΈ Π΄Π»Ρ ΡΡΠ°ΡΡΠΊΠ° ΠΈΠ»ΠΈ ΡΠ°ΡΡΠ½ΠΎΠ³ΠΎ Π΄ΠΎΠΌΠ° Π΄Π΅Π»Π°ΡΡ Π² Π²ΠΈΠ΄Π΅ Π½Π΅Π±ΠΎΠ»ΡΡΠΎΠ³ΠΎ Π΄ΠΎΠΌΠΈΠΊΠ° Ρ Π΄Π²ΡΡ
ΡΠΊΠ°ΡΠ½ΠΎΠΉ ΠΊΡΡΡΠ΅ΠΉ.
Π’ΠΎΠΏΠΊΠΎΠΉ ΡΠ»ΡΠΆΠΈΡ ΠΎΡΠ΄Π΅Π»ΡΠ½ΡΠΉ ΠΎΡ ΠΊΠΎΠ½ΡΡΡΡΠΊΡΠΈΠΈ ΠΎΡΠ°Π³ ΡΠΎΠ΅Π΄ΠΈΠ½Π΅Π½Π½ΡΠΉ ΡΡΡΠ±ΠΎΠΉ Ρ ΠΊΠΎΠ½ΡΡΡΡΠΊΡΠΈΠ΅ΠΉ ΠΈΠ»ΠΈ Π½Π°Π³ΡΠ΅Π²Π°ΡΠ΅Π»ΡΠ½ΡΠΉ ΡΠ»Π΅ΠΌΠ΅Π½Ρ Π²Π½ΡΡΡΠΈ ΠΊΠ°ΠΌΠ΅ΡΡ. ΠΡΠΈ ΠΆΠ΅Π»Π°Π½ΠΈΠΈ ΠΊΠΎΠΏΡΠΈΠ»ΡΠ½Ρ ΠΌΠΎΠΆΠ½ΠΎ ΠΏΠ΅ΡΠ΅Π½Π΅ΡΡΠΈ Π² Π΄ΡΡΠ³ΠΎΠ΅ ΠΌΠ΅ΡΡΠΎ, ΡΡΠΎ Π²ΠΏΠΎΠ»Π½Π΅ ΠΏΠΎΠ΄ ΡΠΈΠ»Ρ Π΄Π²ΠΎΠΈΠΌ Π»ΡΠ΄ΡΠΌ.
Π‘ΠΎΡΡΠ°Π² ΠΈ ΠΏΡΠΈΠ½ΡΠΈΠΏ ΡΠ°Π±ΠΎΡΡ
Π£Π½ΠΈΠ²Π΅ΡΡΠ°Π»ΡΠ½Π°Ρ ΠΊΠΎΠ½ΡΡΡΡΠΊΡΠΈΡ ΠΊΠΎΠΏΡΠΈΠ»ΡΠ½ΠΈ Ρ Π΄ΡΠΌΠΎΠ³Π΅Π½Π΅ΡΠ°ΡΠΎΡΠΎΠΌ
ΠΠΎΠΌΠ°ΡΠ½ΡΡ ΠΊΠΎΠΏΡΠΈΠ»ΡΠ½Ρ ΠΈΠ· Π΄Π΅ΡΠ΅Π²Π° ΠΈΠΌΠ΅Π΅Ρ ΡΠ²ΠΎΠΈ ΠΏΡΠ΅ΠΈΠΌΡΡΠ΅ΡΡΠ²Π° ΡΠ°ΠΊ ΠΈ Π½Π΅Π΄ΠΎΡΡΠ°ΡΠΊΠΈ. ΠΠΎ ΠΏΠ»ΡΡΠΎΠ² Π½Π°ΠΌΠ½ΠΎΠ³ΠΎ Π±ΠΎΠ»ΡΡΠ΅.
ΠΡΠ΅ΠΈΠΌΡΡΠ΅ΡΡΠ²Π°:
- ΠΠ΅Π²ΡΡΠΎΠΊΠ°Ρ ΡΡΠΎΠΈΠΌΠΎΡΡΡ, Π΄ΠΎΡΡΡΠΏΠ½ΠΎΡΡΡ ΠΌΠ°ΡΠ΅ΡΠΈΠ°Π»Π°.
- ΠΡΠΎΡΡΠΎΡΠ° ΠΎΠ±ΡΠ°Π±ΠΎΡΠΊΠΈ, Π²ΠΎΠ·ΠΌΠΎΠΆΠ½ΠΎΡΡΡ ΠΏΡΠΈΠ΄Π°ΡΡ Π»ΡΠ±ΡΡ ΡΠΎΡΠΌΡ.
- ΠΠ΅ΡΠ΅Π²ΠΎ Π½Π°ΡΡΡΠ°Π»ΡΠ½ΡΠΉ ΠΈ ΡΠΊΠΎΠ»ΠΎΠ³ΠΈΡΠ΅ΡΠΊΠΈΠΉ ΠΌΠ°ΡΠ΅ΡΠΈΠ°Π».
- ΠΠΎΡΡΡΠΏΠ½ΡΠΉ ΡΠ΅ΠΌΠΎΠ½Ρ.
- ΠΠΎΠ·ΠΌΠΎΠΆΠ½ΠΎΡΡΡ ΡΡΠ΅ΠΏΠ»Π΅Π½ΠΈΡ.
ΠΠ΅Π΄ΠΎΡΡΠ°ΡΠΊΠΈ:
- ΠΠΎΠΆΠ°ΡΠΎΠΎΠΏΠ°ΡΠ½ΠΎΡΡΡ.
- ΠΠΈΠ³ΡΠΎΡΠΊΠΎΠΏΠΈΡΠ½ΠΎΡΡΡ.
- Π§ΡΠ²ΡΡΠ²ΠΈΡΠ΅Π»ΡΠ½ΠΎΡΡΡ ΠΊ ΠΏΠ΅ΡΠ΅ΠΏΠ°Π΄Π°ΠΌ ΡΠ΅ΠΌΠΏΠ΅ΡΠ°ΡΡΡΡ. 
Π‘ ΠΏΠΎΡΠ»Π΅Π΄Π½ΠΈΠΌΠΈ Π΄Π²ΡΠΌΡ ΠΏΡΠ½ΠΊΡΠ°ΠΌΠΈ ΠΌΠΎΠΆΠ½ΠΎ ΡΠΏΡΠ°Π²ΠΈΡΡΡΡ Ρ ΠΏΠΎΠΌΠΎΡΡΡ Π½Π°ΡΡΠΆΠ½ΠΎΠΉ ΠΎΠ±ΡΠ°Π±ΠΎΡΠΊΠΈ ΠΊΠΎΠΏΡΠΈΠ»ΡΠ½ΠΈ ΡΠΏΠ΅ΡΠΈΠ°Π»ΡΠ½ΡΠΌΠΈ Π»Π°ΠΊΠ°ΠΌΠΈ, ΠΊΡΠ°ΡΠΊΠ°ΠΌΠΈ, Π»ΠΈΡΡΠΎΠ²ΡΠΌ ΠΆΠ΅Π»Π΅Π·ΠΎΠΌ.
ΠΠ΅ΠΎΠ±Ρ ΠΎΠ΄ΠΈΠΌΡΠ΅ ΠΌΠ°ΡΠ΅ΡΠΈΠ°Π»Ρ ΠΈ ΠΈΠ½ΡΡΡΡΠΌΠ΅Π½ΡΡ
ΠΠ»Ρ ΠΊΠ°ΡΠΊΠ°ΡΠ° ΠΈ Π½Π°ΡΡΠΆΠ½ΠΎΠΉ ΠΎΡΠ΄Π΅Π»ΠΊΠΈ ΠΏΠΎΠ΄ΠΎΠΉΠ΄ΡΡ Π»ΡΠ±ΡΠ΅ ΠΏΠΎΡΠΎΠ΄Ρ Π΄Π΅ΡΠ΅Π²Π°, Π½ΠΎ Π² ΠΎΡΠ½ΠΎΠ²Π½ΠΎΠΌ ΠΈΡΠΏΠΎΠ»ΡΠ·ΡΠ΅ΡΡΡ ΡΠΎΡΠ½Π°, ΠΊΠ΅Π΄Ρ. ΠΠ»Ρ Π²Π½ΡΡΡΠ΅Π½Π½Π΅ΠΉ ΠΊΠ°ΠΌΠ΅ΡΡ ΠΊΠΎΠΏΡΠΈΠ»ΡΠ½ΠΈ ΠΏΡΠΈΠΌΠ΅Π½ΡΡΡ Π½Π΅ ΡΠΌΠΎΠ»ΠΈΡΡΡΠ΅ ΠΏΠΎΡΠΎΠ΄Ρ β Π»ΠΈΠΏΠ°, ΠΎΡΠΈΠ½Π°, ΠΎΠ»ΡΡ Π°, Π±Π΅ΡΠ΅Π·Π°.
ΠΠ½ΠΈΠΌΠ°Π½ΠΈΠ΅! ΠΡΠ±ΠΈΡΠ°ΡΡ Π΄Π»Ρ ΠΊΠΎΠΏΡΠΈΠ»ΡΠ½ΠΈ ΡΡΠΎΠΈΡ Π½Π΅ Ρ Π²ΠΎΠΉΠ½ΠΎΠ΅ Π΄Π΅ΡΠ΅Π²ΠΎ, Π² ΠΏΡΠΎΡΠΈΠ²Π½ΠΎΠΌ ΡΠ»ΡΡΠ°Π΅ ΠΊΠΎΠΏΡΠ΅Π½ΠΎΡΡΠΈ Π±ΡΠ΄ΡΡ ΠΏΠΎΠ»ΡΡΠ°ΡΡΡΡ Π³ΠΎΡΡΠΊΠΈΠΌΠΈ ΠΈ Ρ Π½Π΅ΠΏΡΠΈΡΡΠ½ΡΠΌ Π·Π°ΠΏΠ°Ρ ΠΎΠΌ, ΠΈΠ·-Π·Π° Π±ΠΎΠ»ΡΡΠΎΠ³ΠΎ ΡΠΎΠ΄Π΅ΡΠΆΠ°Π½ΠΈΡ ΡΠΌΠΎΠ»Ρ Π² Π΄ΡΠ΅Π²Π΅ΡΠΈΠ½Π΅.
ΠΠ°ΡΠΊΠ°Ρ Π²ΡΠΏΠΎΠ»Π½ΡΠ΅ΡΡΡ ΠΈΠ· Π±ΡΡΡΠΊΠΎΠ². ΠΠ½ΡΡΡΠ΅Π½Π½ΡΡ ΠΎΠ±ΡΠΈΠ²ΠΊΠ° ΠΈΠ· Π²Π°Π³ΠΎΠ½ΠΊΠΈ ΠΈΠ»ΠΈ ΡΡΡΡΠ³Π°Π½Π½ΡΡ Π΄ΠΎΡΠΎΠΊ. Π‘Π½Π°ΡΡΠΆΠΈ ΡΠΊΠ°Ρ ΠΎΠ±ΡΠΈΠ²Π°Π΅ΡΡΡ ΡΠ°Π½Π΅ΡΠΎΠΉ ΡΠΎΠ»ΡΠΈΠ½ΠΎΠΉ 8-10 ΠΌΠΌ, Π΄ΠΎΡΠΊΠ°ΠΌΠΈ ΠΈΠ»ΠΈ Π²Π°Π³ΠΎΠ½ΠΊΠΎΠΉ.
Π‘Ρ Π΅ΠΌΠ° ΠΈ ΡΠ΅ΡΡΠ΅ΠΆΠΈ Π΄Π΅ΡΠ΅Π²ΡΠ½Π½ΠΎΠΉ ΠΊΠΎΠΏΡΠΈΠ»ΡΠ½ΠΈ
ΠΠ΅ΡΠ΅Π΄ Π½Π°ΡΠ°Π»ΠΎΠΌ ΡΠ°Π±ΠΎΡ Π½Π΅ΠΎΠ±Ρ
ΠΎΠ΄ΠΈΠΌΠΎ ΠΎΠ·Π½Π°ΠΊΠΎΠΌΠΈΡΡΡΡ ΡΠΎ ΡΡ
Π΅ΠΌΠ°ΠΌΠΈ ΠΈΠ»ΠΈ ΡΠ΅ΡΡΠ΅ΠΆΠ°ΠΌΠΈ ΠΊΠΎΠ½ΡΡΡΡΠΊΡΠΈΠΈ. ΠΠ»Ρ ΡΠ°ΡΡΠ½ΠΎΠ³ΠΎ, Π΄ΠΎΠΌΠ°ΡΠ½Π΅Π³ΠΎ ΠΈΡΠΏΠΎΠ»ΡΠ·ΠΎΠ²Π°Π½ΠΈΡ ΠΏΡΠΎΠΌΡΡΠ»Π΅Π½Π½Π°Ρ ΠΊΠΎΠΏΡΠΈΠ»ΡΠ½Ρ Π½Π΅ Π½ΡΠΆΠ½Π°, Π΄ΠΎΡΡΠ°ΡΠΎΡΠ½ΠΎ ΡΠ΄Π΅Π»Π°ΡΡ ΠΊΠΎΠ½ΡΡΡΡΠΊΡΠΈΡ ΡΠ°Π·ΠΌΠ΅ΡΠΎΠΌ 50 Ρ
 50 ΡΠΌ ΠΈ Π²ΡΡΠΎΡΠΎΠΉ 100 ΡΠΌ. Π ΡΠ°ΠΊΠΎΠΉ ΠΊΠΎΠΏΡΠΈΠ»ΡΠ½Π΅ ΠΌΠΎΠΆΠ½ΠΎ ΡΠ²ΠΎΠ±ΠΎΠ΄Π½ΠΎ ΡΠΌΠ΅ΡΡΠΈΡΡ Π΄Π²Π΅ ΡΡΡΠΊΠΈ ΠΊΡΡΠΈΡΡ, ΠΎΠ΄Π½ΠΎΠ³ΠΎ Π³ΡΡΡ, Π½Π΅ΡΠΊΠΎΠ»ΡΠΊΠΎ Π±Π°ΡΠΎΠ½ΠΎΠ² ΠΈΠ»ΠΈ ΠΊΠ°ΡΡΠ»Π΅ΠΊ ΠΊΠΎΠ»Π±Π°ΡΡ, 10-15 ΡΡΡΠΊ ΡΠΊΡΠΌΠ±ΡΠΈΠΉ. ΠΠ»Ρ ΡΠ΅ΠΌΡΠΈ ΠΈΠ· 3-5 ΡΠ΅Π»ΠΎΠ²Π΅ΠΊ Π±ΠΎΠ»Π΅Π΅ ΡΠ΅ΠΌ Π΄ΠΎΡΡΠ°ΡΠΎΡΠ½ΠΎ, ΠΎΡΡΠ°Π½Π΅ΡΡΡ ΡΠ³ΠΎΡΡΠΈΡΡ ΠΈ Π±ΠΎΠ»ΡΡΡΡ ΠΊΠΎΠΌΠΏΠ°Π½ΠΈΡ Π³ΠΎΡΡΠ΅ΠΉ.
 Π ΡΠ°ΠΊΠΎΠΉ ΠΊΠΎΠΏΡΠΈΠ»ΡΠ½Π΅ ΠΌΠΎΠΆΠ½ΠΎ ΡΠ²ΠΎΠ±ΠΎΠ΄Π½ΠΎ ΡΠΌΠ΅ΡΡΠΈΡΡ Π΄Π²Π΅ ΡΡΡΠΊΠΈ ΠΊΡΡΠΈΡΡ, ΠΎΠ΄Π½ΠΎΠ³ΠΎ Π³ΡΡΡ, Π½Π΅ΡΠΊΠΎΠ»ΡΠΊΠΎ Π±Π°ΡΠΎΠ½ΠΎΠ² ΠΈΠ»ΠΈ ΠΊΠ°ΡΡΠ»Π΅ΠΊ ΠΊΠΎΠ»Π±Π°ΡΡ, 10-15 ΡΡΡΠΊ ΡΠΊΡΠΌΠ±ΡΠΈΠΉ. ΠΠ»Ρ ΡΠ΅ΠΌΡΠΈ ΠΈΠ· 3-5 ΡΠ΅Π»ΠΎΠ²Π΅ΠΊ Π±ΠΎΠ»Π΅Π΅ ΡΠ΅ΠΌ Π΄ΠΎΡΡΠ°ΡΠΎΡΠ½ΠΎ, ΠΎΡΡΠ°Π½Π΅ΡΡΡ ΡΠ³ΠΎΡΡΠΈΡΡ ΠΈ Π±ΠΎΠ»ΡΡΡΡ ΠΊΠΎΠΌΠΏΠ°Π½ΠΈΡ Π³ΠΎΡΡΠ΅ΠΉ.
ΠΡΠ»ΠΈ ΡΠ΅ΡΡΠ΅ΠΆ ΠΊΠΎΠΏΡΠΈΠ»ΡΠ½ΠΈ ΠΏΠΎΠΊΠ°ΠΆΠ΅ΡΡΡ ΠΌΠ°Π»Π΅Π½ΡΠΊΠΈΠΌ, ΡΠΎ Π½Π°ΡΠ°Π»ΡΠ½ΠΎΠΌ ΡΡΠ°ΠΏΠ΅ ΠΌΠΎΠΆΠ½ΠΎ ΠΈΠ·ΠΌΠ΅Π½ΠΈΡΡ ΡΠ°Π·ΠΌΠ΅ΡΡ ΠΏΠΎΠ΄ ΡΠ²ΠΎΠΈ Π½ΡΠΆΠ΄Ρ.
ΠΠ°ΠΊ ΡΠ΄Π΅Π»Π°ΡΡ Π΄Π΅ΡΠ΅Π²ΡΠ½Π½ΡΡ ΠΊΠΎΠΏΡΠΈΠ»ΡΠ½Ρ ΡΠ²ΠΎΠΈΠΌΠΈ ΡΡΠΊΠ°ΠΌΠΈ
ΠΠ»Ρ ΡΠ°Π±ΠΎΡΡ ΠΏΠΎΠ½Π°Π΄ΠΎΠ±ΡΡΡΡ ΡΠ»Π΅Π΄ΡΡΡΠΈΠ΅ ΠΌΠ°ΡΠ΅ΡΠΈΠ°Π»Ρ ΠΈ ΠΈΠ½ΡΡΡΡΠΌΠ΅Π½ΡΡ:
- Π‘Π»Π΅ΡΠ°ΡΠ½ΡΠΉ ΠΈΠ½ΡΡΡΡΠΌΠ΅Π½Ρ;
- Π¨ΡΡΡΠΏΠΎΠ²Π΅ΡΡ;
- ΠΠ²ΠΎΠ·Π΄ΠΈ, ΡΠ°ΠΌΠΎΡΠ΅Π·Ρ;
- ΠΠ΅ΡΠ°Π»Π»ΠΈΡΠ΅ΡΠΊΠΈΠ΅ ΡΠ³ΠΎΠ»ΠΊΠΈ;
- ΠΡΡΡ 50-50 ΠΌΠΌ;
- ΠΠ°Π³ΠΎΠ½ΠΊΠ° Π»ΠΈΠΏΠΎΠ²Π°Ρ;
- ΠΠ°Π³ΠΎΠ½ΠΊΠ° ΡΠΎΡΠ½ΠΎΠ²Π°Ρ;
- Π£ΡΠ΅ΠΏΠ»ΠΈΡΠ΅Π»Ρ;
- Π€ΠΎΠ»ΡΠ³Π°;
- ΠΠ΅ΡΠ»ΠΈ;
- Π’ΡΡΠ±Π° Π΄Π»Ρ Π΄ΡΠΌΠΎΡ ΠΎΠ΄Π°;
- ΠΠ΅ΡΠ°Π»Π»ΠΈΡΠ΅ΡΠΊΠΈΠΉ ΠΏΠΎΠ΄Π΄ΠΎΠ½ Π΄Π»Ρ ΡΠ±ΠΎΡΠ° ΠΆΠΈΡΠ°;
- Π Π΅ΡΠ΅ΡΠΊΠΈ Π΄Π»Ρ ΠΏΡΠΎΠ΄ΡΠΊΡΠΎΠ²;
- ΠΡΡΡΠΊΠΈ Π΄Π»Ρ ΠΏΠΎΠ΄Π²Π΅ΡΠΈΠ²Π°Π½ΠΈΡ ΠΏΡΠΎΠ΄ΡΠΊΡΠΎΠ²;
- ΠΠ°ΡΠ΅ΡΠΈΠ°Π» Π΄Π»Ρ ΠΊΡΠΎΠ²Π»ΠΈ β ΡΠΈΡΠ΅Ρ ΠΈΠ»ΠΈ ΠΏΡΠΎΡΠΈΠ»Ρ.
- ΠΠ». Π’ΠΠ 1 ΠΊΠΡ.
ΠΠ·Π³ΠΎΡΠΎΠ²Π»Π΅Π½ΠΈΠ΅ ΠΊΠ°ΡΠΊΠ°ΡΠ°
Π‘ΠΎΡΠ½ΠΎΠ²ΡΠ΅ Π±ΡΡΡΠΊΠΈ ΠΏΡΠΎΡΡΡΠΎΠ³Π°ΡΡ, Π½Π°ΠΏΠΈΠ»ΠΈΡΡ ΠΏΠΎ Π΄Π»ΠΈΠ½Π΅ Π½Π΅ΠΎΠ±Ρ
ΠΎΠ΄ΠΈΠΌΠΎΠ³ΠΎ ΡΠ°Π·ΠΌΠ΅ΡΠ°. ΠΡΠΈ ΠΏΠΎΠΌΠΎΡΠΈ ΡΡΠ°Π»ΡΠ½ΡΡ
 ΡΠ³ΠΎΠ»ΠΊΠΎΠ² ΠΈ ΡΡΡΡΠΏΠΎΠ² ΡΠΎΠ±ΡΠ°ΡΡ ΠΊΠΎΠ½ΡΡΡΡΠΊΡΠΈΡ ΠΊΠ°ΠΊ Π½Π° ΡΠΎΡΠΎ, ΠΎΡΡΠ°Π²ΠΈΡΡ ΠΌΠ΅ΡΡΠΎ Π΄Π»Ρ Π΄Π²Π΅ΡΠΈ. ΠΠ»Ρ ΡΡΡΠΎΠΉΡΠΈΠ²ΠΎΡΡΠΈ ΠΌΠΎΠΆΠ½ΠΎ ΡΠΊΡΠ΅ΠΏΠΈΡΡ ΠΊΠ°ΡΠΊΠ°Ρ Π΄Π»ΠΈΠ½Π½ΡΠΌΠΈ ΡΠ°ΠΌΠΎΡΠ΅Π·Π°ΠΌΠΈ ΠΏΠΎ Π΄Π΅ΡΠ΅Π²Ρ.
 ΠΡΠΈ ΠΏΠΎΠΌΠΎΡΠΈ ΡΡΠ°Π»ΡΠ½ΡΡ
 ΡΠ³ΠΎΠ»ΠΊΠΎΠ² ΠΈ ΡΡΡΡΠΏΠΎΠ² ΡΠΎΠ±ΡΠ°ΡΡ ΠΊΠΎΠ½ΡΡΡΡΠΊΡΠΈΡ ΠΊΠ°ΠΊ Π½Π° ΡΠΎΡΠΎ, ΠΎΡΡΠ°Π²ΠΈΡΡ ΠΌΠ΅ΡΡΠΎ Π΄Π»Ρ Π΄Π²Π΅ΡΠΈ. ΠΠ»Ρ ΡΡΡΠΎΠΉΡΠΈΠ²ΠΎΡΡΠΈ ΠΌΠΎΠΆΠ½ΠΎ ΡΠΊΡΠ΅ΠΏΠΈΡΡ ΠΊΠ°ΡΠΊΠ°Ρ Π΄Π»ΠΈΠ½Π½ΡΠΌΠΈ ΡΠ°ΠΌΠΎΡΠ΅Π·Π°ΠΌΠΈ ΠΏΠΎ Π΄Π΅ΡΠ΅Π²Ρ.
ΠΠ½ΡΡΡΠ΅Π½Π½ΡΡ ΠΎΠ±ΡΠΈΠ²ΠΊΠ°
ΠΠ°ΠΌΠ΅ΡΡ ΠΈΠ·Π½ΡΡΡΠΈ Π·Π°ΡΠΈΠ²Π°Π΅ΡΡΡ Π½Π°ΠΏΠΈΠ»Π΅Π½Π½ΡΠΌΠΈ ΠΏΠΎ ΡΠ°Π·ΠΌΠ΅ΡΡ ΡΠΎΠ½ΠΊΠΈΠΌΠΈ Π΄ΠΎΡΠΊΠ°ΠΌΠΈ ΠΈΠ»ΠΈ Π²Π°Π³ΠΎΠ½ΠΊΠΎΠΉ. ΠΠ»Ρ ΠΊΡΠ΅ΠΏΠ»Π΅Π½ΠΈΡ Π΄ΠΎΡΠΎΠΊ ΠΈΡΠΏΠΎΠ»ΡΠ·ΡΡΡΡΡ ΡΠΈΠ½ΠΈΡΠ½ΡΠ΅ Π³Π²ΠΎΠ·Π΄ΠΈ ΠΈΠ»ΠΈ ΡΡΡΡΠΏΡ ΠΏΠΎ Π΄Π΅ΡΠ΅Π²Ρ. ΠΠ°ΡΠ΅ΡΠΈΠ°Π» Π΄ΠΎΠ»ΠΆΠ΅Π½ Π±ΡΡΡ ΠΎΠ±ΡΠ·Π°ΡΠ΅Π»ΡΠ½ΠΎ ΠΈΠ· Π»ΠΈΡΡΠ²Π΅Π½Π½ΡΡ ΠΏΠΎΡΠΎΠ΄ Π΄Π΅ΡΠ΅Π²Π° β Π»ΠΈΠΏΡ, ΠΎΡΠΈΠ½Ρ, ΠΎΠ»ΡΡ ΠΈ.
ΠΠ»ΡΡ ΠΎΡΠ΄Π΅Π»ΠΊΠΈ Π²Π°Π³ΠΎΠ½ΠΊΠΎΠΉ: ΡΠΎΠ²Π½Π°Ρ ΠΏΠΎΠ²Π΅ΡΡ Π½ΠΎΡΡΡ, ΠΊΠ°ΠΆΠ΄Π°Ρ ΠΏΠ»Π°Π½ΠΊΠ° Π²ΡΡΠ°Π²Π»ΡΠ΅ΡΡΡ Π² ΠΏΠ°Π·, ΡΡΠΎ ΡΠ»ΡΡΡΠ°Π΅Ρ ΡΠ΅ΡΠΌΠΎΠΈΠ·ΠΎΠ»ΡΡΠΈΡ ΠΈ ΡΠΌΠ΅Π½ΡΡΠ°Π΅Ρ ΠΏΠΎΠΏΠ°Π΄Π°Π½ΠΈΡ Π΄ΡΠΌΠ° Π² ΡΠ΅Π»ΠΈ.
Π£ΡΠ΅ΠΏΠ»Π΅Π½ΠΈΠ΅
ΠΠ»Ρ ΡΠΎΠ³ΠΎ ΡΡΠΎΠ±Ρ ΡΠ»ΡΡΡΠΈΡΡ ΡΠ΅ΡΠΌΠΎΠΈΠ·ΠΎΠ»ΡΡΠΈΡ ΠΊΠΎΠΏΡΠΈΠ»ΡΠ½ΠΈ, Π½ΡΠΆΠ½ΠΎ ΡΠ΄Π΅Π»Π°ΡΡ Π΅Ρ ΠΏΠΎ ΠΏΡΠΈΠ½ΡΠΈΠΏΡ ΡΠ΅ΡΠΌΠΎΡΠ°. Π ΠΏΠ΅ΡΠ²ΡΡ ΠΎΡΠ΅ΡΠ΅Π΄Ρ ΠΏΠΈΡΠ΅Π²ΠΎΠΉ ΡΠΎΠ»ΡΠ³ΠΎΠΉ ΠΏΡΠΈ ΠΏΠΎΠΌΠΎΡΠΈ ΡΡΠ΅ΠΏΠ»Π΅ΡΠ° Π·Π°ΠΊΡΡΠ²Π°Π΅ΡΡΡ Π²Π½ΡΡΡΠ΅Π½Π½ΡΡ ΡΡΠΎΡΠΎΠ½ Π²Π°Π³ΠΎΠ½ΠΊΠΈ.
ΠΠΎΠΏΡΠΈΠ»ΡΠ½Ρ ΡΠ²ΠΎΠΈΠΌΠΈ ΡΡΠΊΠ°ΠΌΠΈ — 90 ΡΠΎΡΠΎ Π»ΡΡΡΠΈΡ Π²Π°ΡΠΈΠ°Π½ΡΠΎΠ². Π§Π΅ΡΡΠ΅ΠΆΠΈ, ΡΠ°Π·ΠΌΠ΅ΡΡ, ΠΈΠ· ΠΊΠΈΡΠΏΠΈΡΠ°, ΠΈΠ½ΡΡΡΡΠΊΡΠΈΡ ΠΈ ΡΠΎΠ²Π΅ΡΡ!
ΠΠ½ΠΎΠ³ΠΈΠ΅ ΠΈΠ· Π½Π°Ρ ΠΌΠ΅ΡΡΠ°ΡΡ ΠΈΠΌΠ΅ΡΡ ΡΠΎΠ±ΡΡΠ²Π΅Π½Π½ΡΡ ΠΊΠΎΠΏΡΠΈΠ»ΡΠ½Ρ, Π½ΠΎ ΠΏΠΎ ΡΠ°Π·Π½ΡΠΌ ΠΏΡΠΈΡΠΈΠ½Π°ΠΌ ΠΎΡΠΊΠ»Π°Π΄ΡΠ²Π°ΡΡ ΡΠ΅Π°Π»ΠΈΠ·Π°ΡΠΈΡ ΡΡΠΎΠΉ Π·Π°ΡΠ΅ΠΈ. ΠΠ»Π°Π²Π½Π°Ρ ΠΏΡΠΈΡΠΈΠ½Π° β ΡΠ΅Π½Π°. ΠΠΎΠΏΡΠΈΠ»ΡΠ½Ρ Ρ
ΠΎΠ»ΠΎΠ΄Π½ΠΎΠ³ΠΎ ΠΊΠΎΠΏΡΠ΅Π½ΠΈΡ ΠΎΠ±ΠΎΠΉΠ΄Π΅ΡΡΡ Π² Π·Π½Π°ΡΠΈΡΠ΅Π»ΡΠ½ΡΡ ΡΡΠΌΠΌΡ. ΠΠ»Ρ Π³ΠΎΡΡΡΠ΅Π³ΠΎ Π΄Π΅ΡΠ΅Π²Π»Π΅, ΠΎΠ΄Π½Π°ΠΊΠΎ ΡΠ°ΡΠ΅ ΠΌΡ ΠΏΡΠ΅Π΄ΠΏΠΎΡΠΈΡΠ°Π΅ΠΌ Π²ΡΠ΅ ΠΆΠ΅ Π±Π»ΡΠ΄Π° Ρ
ΠΎΠ»ΠΎΠ΄Π½ΠΎΠ³ΠΎ ΠΊΠΎΠΏΡΠ΅Π½ΠΈΡ.
 ΠΠ»Π°Π²Π½Π°Ρ ΠΏΡΠΈΡΠΈΠ½Π° β ΡΠ΅Π½Π°. ΠΠΎΠΏΡΠΈΠ»ΡΠ½Ρ Ρ
ΠΎΠ»ΠΎΠ΄Π½ΠΎΠ³ΠΎ ΠΊΠΎΠΏΡΠ΅Π½ΠΈΡ ΠΎΠ±ΠΎΠΉΠ΄Π΅ΡΡΡ Π² Π·Π½Π°ΡΠΈΡΠ΅Π»ΡΠ½ΡΡ ΡΡΠΌΠΌΡ. ΠΠ»Ρ Π³ΠΎΡΡΡΠ΅Π³ΠΎ Π΄Π΅ΡΠ΅Π²Π»Π΅, ΠΎΠ΄Π½Π°ΠΊΠΎ ΡΠ°ΡΠ΅ ΠΌΡ ΠΏΡΠ΅Π΄ΠΏΠΎΡΠΈΡΠ°Π΅ΠΌ Π²ΡΠ΅ ΠΆΠ΅ Π±Π»ΡΠ΄Π° Ρ
ΠΎΠ»ΠΎΠ΄Π½ΠΎΠ³ΠΎ ΠΊΠΎΠΏΡΠ΅Π½ΠΈΡ.
ΠΠ°Ρ ΠΎΡΡΠ°Π½Π°Π²Π»ΠΈΠ²Π°Π΅Ρ ΡΠ»ΠΎΠΆΠ½Π°Ρ ΡΠ΅Ρ Π½ΠΎΠ»ΠΎΠ³ΠΈΡ ΠΏΡΠΈΠ³ΠΎΡΠΎΠ²Π»Π΅Π½ΠΈΡ ΡΠ°ΠΊΠΈΡ Π±Π»ΡΠ΄. Π’Π΅ΠΌ Π½Π΅ ΠΌΠ΅Π½Π΅Π΅ ΠΊΠ°ΡΠ΅ΡΡΠ²ΠΎ Π²ΡΠ΅Π³ΠΎ, ΡΡΠΎ ΠΏΡΠΈΠ³ΠΎΡΠΎΠ²Π»Π΅Π½ΠΎ ΡΠΎΠ±ΡΡΠ²Π΅Π½Π½ΡΠΌΠΈ ΡΡΠΊΠ°ΠΌΠΈ, ΠΊΠΎΠ½Π΅ΡΠ½ΠΎ ΠΆΠ΅, Π½Π΅ ΡΡΠ°Π²Π½ΠΈΡΡΡΡ Π½ΠΈ Ρ ΡΠ΅ΠΌ. ΠΠΎΡΡΠΎΠΌΡ ΠΌΡ ΡΠ°ΡΡΠΎ ΠΌΠ΅ΡΡΠ°Π΅ΠΌ ΠΎ ΡΠΎΠΌ, ΡΡΠΎΠ±Ρ Π½Π° Π·Π°Π³ΠΎΡΠΎΠ΄Π½ΠΎΠΌ ΡΡΠ°ΡΡΠΊΠ΅ ΠΏΠΎΡΠ²ΠΈΠ»Π°ΡΡ ΡΠΎΠ±ΡΡΠ²Π΅Π½Π½Π°Ρ ΠΊΠΎΠΏΡΠΈΠ»ΡΠ½Ρ.
ΠΠΎ ΡΠ²ΠΎΠ΅ΠΌΡ ΠΎΠΏΡΡΡ ΠΌΠΎΠ³Ρ Ρ ΡΠ²Π΅ΡΠ΅Π½Π½ΠΎΡΡΡΡ ΡΠΊΠ°Π·Π°ΡΡ, ΡΡΠΎ ΠΊΠ°ΠΆΠ΄ΠΎΠΌΡ ΠΏΠΎΠ΄ ΡΠΈΠ»Ρ ΡΠΎΠ·Π΄Π°ΡΡ ΡΡΠΎΡ ΡΠ΅Ρ Π½ΠΈΡΠ΅ΡΠΊΠΈ Π½Π΅ΡΠ»ΠΎΠΆΠ½ΡΠΉ Π°Π³ΡΠ΅Π³Π°Ρ. Π ΠΈΠ½ΡΠ΅ΡΠ½Π΅ΡΠ΅ Π½Π°ΠΉΠ΄ΡΡΡΡ ΡΠ°ΠΌΡΠ΅ ΡΠ°Π·Π½ΠΎΠΎΠ±ΡΠ°Π·Π½ΡΠ΅ Π²Π°ΡΠΈΠ°Π½ΡΡ ΡΠ°ΠΌΠΎΠ΄Π΅Π»ΡΠ½ΠΎΠΉ ΠΊΠΎΠΏΡΠΈΠ»ΡΠ½ΠΈ Π½Π° Π»ΡΠ±ΠΎΠΉ Π²ΠΊΡΡ ΠΈ Π±ΡΠ΄ΠΆΠ΅Ρ.
ΠΡΠ°ΡΠΊΠΎΠ΅ ΡΠΎΠ΄Π΅ΡΠΆΠΈΠΌΠΎΠ΅ ΡΡΠ°ΡΡΠΈ:
ΠΠ° ΡΠ΅ΠΌ ΠΎΡΡΠ°Π½ΠΎΠ²ΠΈΡΡ ΡΠ²ΠΎΠΉ Π²ΡΠ±ΠΎΡ
Π’Π΅, ΠΊΡΠΎ Π½ΠΈΠΊΠΎΠ³Π΄Π° Π½Π΅ ΡΡΠ°Π»ΠΊΠΈΠ²Π°Π»ΡΡ Ρ ΠΏΠΎΠ΄ΠΎΠ±Π½ΡΠΌ ΡΡΡΡΠΎΠΉΡΡΠ²ΠΎΠΌ, Π΄ΠΎΠ»ΠΆΠ½Ρ ΡΡΠΈΡΡΠ²Π°ΡΡ, ΡΡΠΎ Π΄Π»Ρ Ρ ΠΎΠ»ΠΎΠ΄Π½ΠΎΠ³ΠΎ ΠΈ Π³ΠΎΡΡΡΠ΅Π³ΠΎ ΠΊΠΎΠΏΡΠ΅Π½ΠΈΡ ΠΏΡΠΈΠΌΠ΅Π½ΡΡΡΡΡ ΡΠ°Π·Π½ΡΠ΅ ΡΠ΅Ρ Π½ΠΎΠ»ΠΎΠ³ΠΈΠΈ. Π‘ΠΎΠΎΡΠ²Π΅ΡΡΡΠ²Π΅Π½Π½ΠΎ, ΡΠ°Π·Π½ΡΠΌ Π±ΡΠ΄Π΅Ρ ΠΈ ΠΊΠΎΠΏΡΠΈΠ»ΡΠ½ΠΎΠ΅ ΠΎΠ±ΠΎΡΡΠ΄ΠΎΠ²Π°Π½ΠΈΠ΅.
ΠΠ»Ρ Π³ΠΎΡΡΡΠ΅Π³ΠΎ ΠΌΠΎΠΆΠ½ΠΎ ΠΈΡΠΏΠΎΠ»ΡΠ·ΠΎΠ²Π°ΡΡ Π½Π΅Π±ΠΎΠ»ΡΡΠΎΠΉ ΠΆΠ΅Π»Π΅Π·Π½ΡΠΉ ΡΡΠΈΠΊ Ρ ΠΊΡΡΡΠΊΠΎΠΉ Π»ΡΠ±ΠΎΠΉ ΡΠΎΡΠΌΡ. Π§Π΅ΠΌ ΠΏΠ»ΠΎΡΠ½Π΅Π΅ ΠΊΡΡΡΠΊΠ°, ΡΠ΅ΠΌ Π±ΡΡΡΡΠ΅Π΅ ΠΏΠΎΠΉΠ΄Π΅Ρ ΠΏΡΠΎΡΠ΅ΡΡ. ΠΠ° Π΄Π½ΠΎ ΡΡΠΈΠΊΠ° ΠΊΠ»Π°Π΄Π΅ΡΡΡ ΡΠ΅ΡΠ΅ΡΠΊΠ° Ρ Π½Π΅Π±ΠΎΠ»ΡΡΠΈΠΌΠΈ ΠΎΡΠ²Π΅ΡΡΡΠΈΡΠΌΠΈ. ΠΠΎΠ΄ Π½Π΅Ρ ΡΠΊΠ»Π°Π΄ΡΠ²Π°Π΅ΡΡΡ Π΄Π΅ΡΠ΅Π²ΡΠ½Π½Π°Ρ ΡΠ΅ΠΏΠ° ΠΈΠ· ΠΎΠ»ΡΡ
ΠΈ, Π΄ΡΠ±Π° ΠΈΠ»ΠΈ ΠΎΡΠΈΠ½Ρ. ΠΠ΄Π΅ΡΡ ΠΌΠΎΠΆΠ½ΠΎ ΠΈΡΠΏΠΎΠ»ΡΠ·ΠΎΠ²Π°ΡΡ ΠΏΠΎΡΡΠΈ Π»ΡΠ±ΠΎΠ΅ Π΄Π΅ΡΠ΅Π²ΠΎ.
 Π§Π΅ΠΌ ΠΏΠ»ΠΎΡΠ½Π΅Π΅ ΠΊΡΡΡΠΊΠ°, ΡΠ΅ΠΌ Π±ΡΡΡΡΠ΅Π΅ ΠΏΠΎΠΉΠ΄Π΅Ρ ΠΏΡΠΎΡΠ΅ΡΡ. ΠΠ° Π΄Π½ΠΎ ΡΡΠΈΠΊΠ° ΠΊΠ»Π°Π΄Π΅ΡΡΡ ΡΠ΅ΡΠ΅ΡΠΊΠ° Ρ Π½Π΅Π±ΠΎΠ»ΡΡΠΈΠΌΠΈ ΠΎΡΠ²Π΅ΡΡΡΠΈΡΠΌΠΈ. ΠΠΎΠ΄ Π½Π΅Ρ ΡΠΊΠ»Π°Π΄ΡΠ²Π°Π΅ΡΡΡ Π΄Π΅ΡΠ΅Π²ΡΠ½Π½Π°Ρ ΡΠ΅ΠΏΠ° ΠΈΠ· ΠΎΠ»ΡΡ
ΠΈ, Π΄ΡΠ±Π° ΠΈΠ»ΠΈ ΠΎΡΠΈΠ½Ρ. ΠΠ΄Π΅ΡΡ ΠΌΠΎΠΆΠ½ΠΎ ΠΈΡΠΏΠΎΠ»ΡΠ·ΠΎΠ²Π°ΡΡ ΠΏΠΎΡΡΠΈ Π»ΡΠ±ΠΎΠ΅ Π΄Π΅ΡΠ΅Π²ΠΎ.  
ΠΠ΅ ΡΠ΅ΠΊΠΎΠΌΠ΅Π½Π΄ΡΠ΅ΡΡΡ ΡΠΎΡΠ½Π° ΠΈ Π΅Π»Ρ ΠΈΠ·-Π·Π° Π±ΠΎΠ»ΡΡΠΎΠ³ΠΎ ΡΠΎΠ΄Π΅ΡΠΆΠ°Π½ΠΈΡ ΡΠΌΠΎΠ»Ρ, ΠΊΠΎΡΠΎΡΠ°Ρ Π΄Π°Π΅Ρ ΡΠΈΠ»ΡΠ½ΡΠΉ ΡΠΌΠΎΠ»ΡΠ½ΠΎΠΉ ΠΏΡΠΈΠ²ΠΊΡΡ.
ΠΠ±ΡΠ°ΡΠΈΡΠ΅ Π²Π½ΠΈΠΌΠ°Π½ΠΈΠ΅: Π§ΡΠΎ Π±Ρ ΠΏΡΠ°Π²ΠΈΠ»ΡΠ½ΠΎ ΠΏΠΎΡΠΈΡΡΠΈΡΡ ΠΏΠΎΡΡΠ΄Ρ ΠΈ ΠΈΠ½ΡΡΡΡΠΌΠ΅Π½ΡΡ ΡΠ΅ΠΊΠΎΠΌΠ΅Π½Π΄ΡΠ΅ΠΌ ΠΏΠΎΡΠ΅ΡΠΈΡΡ ΠΏΠΎΡΡΠ°Π»Β https://hozjajkainfo.ru Π·Π΄Π΅ΡΡ Π²Ρ Π½Π°ΠΉΠ΄Π΅ΡΠ΅ ΠΌΠ½ΠΎΠ³ΠΎ ΠΈΠ΄Π΅ΠΉ Π΄Π»Ρ Π½Π°ΡΡΠΎΡΡΠ΅ΠΉ Ρ ΠΎΠ·ΡΠΉΠΊΠΈ (+ΠΈΠ½ΡΡΡΡΠΊΡΠΈΠΈ ΠΎΡ ΠΏΡΠΎΡΠΈ)
ΠΠ΅ΠΆΠ΄Ρ ΡΠ΅ΡΠ΅ΡΠΊΠΎΠΉ ΠΈ Π΄Π½ΠΎΠΌ Π΄ΠΎΠ»ΠΆΠ½ΠΎ Π±ΡΡΡ Π΄ΠΎΡΡΠ°ΡΠΎΡΠ½ΠΎΠ΅ ΡΠ°ΡΡΡΠΎΡΠ½ΠΈΠ΅, ΡΡΠΎΠ±Ρ ΡΠ΅ΡΠ΅ΡΠΊΠ° Π½Π΅ ΠΊΠ°ΡΠ°Π»Π°ΡΡ Π΄Π΅ΡΠ΅Π²Π°. ΠΠ°ΠΊΡΡΠ²Π°Π΅ΠΌ Π²ΡΠ΅ ΡΡΠΎ ΠΏΠ»ΠΎΡΠ½ΠΎΠΉ ΠΊΡΡΡΠΊΠΎΠΉ ΠΈ ΡΡΠ°Π²ΠΈΠΌ Π½Π° ΠΎΠ³ΠΎΠ½Ρ. ΠΠΎΠΆΠ½ΠΎ Π½Π° ΠΎΡΠΊΡΡΡΡΠΉ, ΠΌΠΎΠΆΠ½ΠΎ Π½Π° Π³Π°Π·ΠΎΠ²ΡΡ Π³ΠΎΡΠ΅Π»ΠΊΡ, Π° ΠΌΠΎΠΆΠ½ΠΎ ΠΈ Π½Π° ΠΎΠ±ΡΡΠ½ΡΠ΅ ΡΠ³Π»ΠΈ Π΄Π»Ρ ΡΠ°ΡΠ»ΡΠΊΠ°.
ΠΠΎΠ΄Π³ΠΎΡΠ΅ΡΡ Π·Π΄Π΅ΡΡ Π½ΠΈΡΠ΅Π³ΠΎ Π½Π΅ ΠΌΠΎΠΆΠ΅Ρ, ΡΠ°ΠΊ ΠΊΠ°ΠΊ ΡΠ΅ΠΏΠ° ΠΏΡΠ΅Π΄Π²Π°ΡΠΈΡΠ΅Π»ΡΠ½ΠΎ Π²ΡΠΌΠ°ΡΠΈΠ²Π°Π΅ΡΡΡ Π² ΠΏΡΠΎΡΡΠΎΠΉ Π²ΠΎΠ΄Π΅, ΡΡΠΎΠ±Ρ ΡΠ΅Π» ΠΏΡΠΎΡΠ΅ΡΡ ΡΠ»Π΅Π½ΠΈΡ, Π° Π½Π΅ Π³ΠΎΡΠ΅Π½ΠΈΡ. ΠΠΈ Π² ΠΊΠΎΠ΅ΠΌ ΡΠ»ΡΡΠ°Π΅ Π½Π΅Π»ΡΠ·Ρ Π΄ΠΎΠΏΡΡΠΊΠ°ΡΡ, ΡΡΠΎΠ±Ρ Π΄Π΅ΡΠ΅Π²ΠΎ Π³ΠΎΡΠ΅Π»ΠΎ.
ΠΡΡ Π·Π°ΠΉΠΌΠ΅Ρ ΠΎΡ Π΄Π²Π°Π΄ΡΠ°ΡΠΈ Π΄ΠΎ ΡΠΎΡΠΎΠΊΠ° ΠΌΠΈΠ½ΡΡ. Π ΠΈΠ½ΡΠ΅ΡΠ½Π΅ΡΠ΅ Π·Π°ΡΠ΅ΠΌ ΠΌΠΎΠΆΠ½ΠΎ ΡΠ°Π·ΠΌΠ΅ΡΡΠΈΡΡ ΡΠΎΡΠΎ ΠΊΠΎΠΏΡΠΈΠ»ΡΠ½ΠΈ ΡΠ΄Π΅Π»Π°Π½Π½ΠΎΠΉ ΡΠ²ΠΎΠΈΠΌΠΈ ΡΡΠΊΠ°ΠΌΠΈ ΠΈ ΠΎΠ±ΡΡΠ΄ΠΈΡΡ ΡΠ΅ΡΠ΅ΠΏΡΡ ΡΠΎΠ±ΡΡΠ²Π΅Π½Π½ΠΎΠ³ΠΎ ΠΏΡΠΈΠ³ΠΎΡΠΎΠ²Π»Π΅Π½ΠΈΡ. ΠΡΠ΅ ΡΡΠΎ, ΠΊΠΎΠ½Π΅ΡΠ½ΠΎ ΠΆΠ΅, ΡΡΠΎΠΈΡ Π΄Π΅Π»Π°ΡΡ ΡΠ°ΠΌΠΎΠΌΡ.
Π Π½Π° Π²ΠΎΠΏΡΠΎΡ Ρ ΠΎΠ»ΠΎΠ΄Π½ΠΎΠ΅ ΠΈΠ»ΠΈ Π³ΠΎΡΡΡΠ΅Π΅ ΠΎΡΠ²Π΅Ρ Π΄ΠΎΡΡΠ°ΡΠΎΡΠ½ΠΎ ΠΏΡΠΎΡΡΠΎΠΉ. ΠΠΎΠΌΡ ΡΡΠΎ Π½ΡΠ°Π²ΠΈΡΡΡ. Π£ ΠΌΠ΅Π½Ρ, Π½Π°ΠΏΡΠΈΠΌΠ΅Ρ, Π½Π° Π΄Π°ΡΠ΅ Π΄Π²Π΅ ΠΊΠΎΠΏΡΠΈΠ»ΡΠ½ΠΈ ΡΠΎΠ±ΡΡΠ²Π΅Π½Π½ΠΎΠΉ ΠΊΠΎΠ½ΡΡΡΡΠΊΡΠΈΠΈ, ΠΊΠΎΡΠΎΡΡΠ΅ ΠΌΠ½ΠΎΠ³ΠΎ Π»Π΅Ρ ΡΠ΄ΠΎΠ²Π»Π΅ΡΠ²ΠΎΡΡΡΡ ΠΌΠΎΠΈ ΠΊΡΠ»ΠΈΠ½Π°ΡΠ½ΡΠ΅ ΡΠ°Π½ΡΠ°Π·ΠΈΠΈ.
ΠΡΠΎΠ±Π΅Π½Π½ΠΎΡΡΠΈ Ρ ΠΎΠ»ΠΎΠ΄Π½ΠΎΠ³ΠΎ ΠΊΠΎΠΏΡΠ΅Π½ΠΈΡ
ΠΠ»Ρ Ρ ΠΎΠ»ΠΎΠ΄Π½ΠΎΠ³ΠΎ ΠΊΠΎΠΏΡΠ΅Π½ΠΈΡ ΠΏΡΠΈΠΌΠ΅Π½ΡΠ΅ΡΡΡ Π±ΠΎΠ»Π΅Π΅ ΡΠ»ΠΎΠΆΠ½ΠΎΠ΅ ΡΡΡΡΠΎΠΉΡΡΠ²ΠΎ, ΠΊΠΎΡΠΎΡΠΎΠ΅ ΠΏΠΎΠ΄ ΡΠΈΠ»Ρ ΠΈΠ·Π³ΠΎΡΠΎΠ²ΠΈΡΡ ΡΠ°ΠΌΠΎΠΌΡ. ΠΡΠ΅ΠΆΠ΄Π΅ Π²ΡΠ΅Π³ΠΎ Π²ΠΎΠ·Π½ΠΈΠΊΠ°Π΅Ρ Π²ΠΎΠΏΡΠΎΡ β ΠΈΠ· ΡΠ΅Π³ΠΎ ΡΠ΄Π΅Π»Π°ΡΡ ΠΊΠΎΠΏΡΠΈΠ»ΡΠ½Ρ.
Π‘Π°ΠΌΠΎΠ΅ ΠΎΠΏΡΠΈΠΌΠ°Π»ΡΠ½ΠΎΠ΅ ΠΈΠ· Π½Π΅ΡΠΆΠ°Π²Π΅ΡΡΠ΅Π³ΠΎ ΠΌΠ΅ΡΠ°Π»Π»Π°. ΠΠ΄Π½Π°ΠΊΠΎ, Π½ΡΠΆΠ½ΠΎ ΡΡΠΈΡΡΠ²Π°ΡΡ, ΡΡΠΎ ΡΠ°ΠΊΠΎΠΉ Π°Π³ΡΠ΅Π³Π°Ρ ΡΠΎΡΡΠΎΠΈΡ ΠΈΠ· ΡΡΠ΅Ρ ΠΎΡΠ½ΠΎΠ²Π½ΡΡ ΡΠ°ΡΡΠ΅ΠΉ. ΠΡΠ½ΠΎΠ²Π½Π°Ρ ΡΠ°ΡΡΡ β ΡΡΠΎ ΡΠ°ΠΌ ΠΊΠΎΠΏΡΠΈΠ»ΡΠ½ΡΠΉ ΡΠΊΠ°Ρ. ΠΠ°ΡΠ΅ΠΌ ΡΠ°ΠΊ Π½Π°Π·ΡΠ²Π°Π΅ΠΌΡΠΉ Π³Π΅Π½Π΅ΡΠ°ΡΠΎΡ Π΄ΡΠΌΠ°, ΠΊΠΎΡΠΎΡΡΠΉ ΠΏΡΠΎΠΈΠ·Π²ΠΎΠ΄ΠΈΡ Π΄ΡΠΌ Π΄Π»Ρ ΠΊΠΎΠΏΡΠ΅Π½ΠΈΡ.
ΠΡΠΌ ΠΏΠΎΡΡΡΠΏΠ°Π΅Ρ Π² ΠΊΠΎΠΏΡΠΈΠ»ΡΠ½ΡΠΉ ΡΠΊΠ°Ρ, Π³Π΄Π΅ ΠΈ ΠΏΡΠΎΠΈΡΡ
ΠΎΠ΄ΠΈΡ ΠΏΡΠΎΡΠ΅ΡΡ Ρ
ΠΎΠ»ΠΎΠ΄Π½ΠΎΠ³ΠΎ ΠΊΠΎΠΏΡΠ΅Π½ΠΈΡ. Π₯ΠΎΠ»ΠΎΠ΄Π½ΡΠΌ ΠΏΡΠΎΡΠ΅ΡΡ ΠΌΠΎΠΆΠ½ΠΎ Π½Π°Π·Π²Π°ΡΡ ΡΡΠ»ΠΎΠ²Π½ΠΎ, ΡΠ°ΠΊ ΠΊΠ°ΠΊ Π΄Π»Ρ ΠΊΠ°ΡΠ΅ΡΡΠ²Π΅Π½Π½ΠΎΠ³ΠΎ ΠΏΡΠΈΠ³ΠΎΡΠΎΠ²Π»Π΅Π½ΠΈΡ ΠΏΡΠΎΠ΄ΡΠΊΡΠ° Π½ΡΠΆΠ½Π° ΠΏΠ»ΡΡΠΎΠ²Π°Ρ ΡΠ΅ΠΌΠΏΠ΅ΡΠ°ΡΡΡΠ° ΠΏΠΎΡΡΠ΄ΠΊΠ° Π΄Π²Π°Π΄ΡΠ°ΡΠΈ Π³ΡΠ°Π΄ΡΡΠΎΠ².
 Π₯ΠΎΠ»ΠΎΠ΄Π½ΡΠΌ ΠΏΡΠΎΡΠ΅ΡΡ ΠΌΠΎΠΆΠ½ΠΎ Π½Π°Π·Π²Π°ΡΡ ΡΡΠ»ΠΎΠ²Π½ΠΎ, ΡΠ°ΠΊ ΠΊΠ°ΠΊ Π΄Π»Ρ ΠΊΠ°ΡΠ΅ΡΡΠ²Π΅Π½Π½ΠΎΠ³ΠΎ ΠΏΡΠΈΠ³ΠΎΡΠΎΠ²Π»Π΅Π½ΠΈΡ ΠΏΡΠΎΠ΄ΡΠΊΡΠ° Π½ΡΠΆΠ½Π° ΠΏΠ»ΡΡΠΎΠ²Π°Ρ ΡΠ΅ΠΌΠΏΠ΅ΡΠ°ΡΡΡΠ° ΠΏΠΎΡΡΠ΄ΠΊΠ° Π΄Π²Π°Π΄ΡΠ°ΡΠΈ Π³ΡΠ°Π΄ΡΡΠΎΠ².
ΠΡΠ»ΠΈ Π²ΡΠ΅ ΠΏΡΠΎΠΈΡΡ ΠΎΠ΄ΠΈΡ Π½Π° ΡΠ»ΠΈΡΠ΅ Π² Ρ ΠΎΠ»ΠΎΠ΄Π½ΠΎΠ΅ Π²ΡΠ΅ΠΌΡ Π³ΠΎΠ΄Π°, ΡΠΎ Π½Π΅ΠΎΠ±Ρ ΠΎΠ΄ΠΈΠΌΠΎ ΠΏΡΠ΅Π΄ΡΡΠΌΠΎΡΡΠ΅ΡΡ ΠΏΠΎΠ΄ΠΎΠ³ΡΠ΅Π² ΠΊΠΎΠΏΡΠΈΠ»ΡΠ½ΠΎΠ³ΠΎ ΡΠΊΠ°ΡΠ°. ΠΠ»Ρ ΡΡΠΎΠ³ΠΎ ΠΏΠΎΠ΄ΠΎΠΉΠ΄Π΅Ρ ΠΎΠ±ΡΡΠ½Π°Ρ Π»Π°ΠΌΠΏΠ° ΠΎΡΠ²Π΅ΡΠ΅Π½ΠΈΡ. Π‘Π²Π΅ΡΠΎΠ΄ΠΈΠΎΠ΄Π½Π°Ρ Π»Π°ΠΌΠΏΠ° Π½Π΅ ΠΏΠΎΠ΄ΠΎΠΉΠ΄Π΅Ρ, ΠΎΠ½Π° Π²ΡΠ΄Π΅Π»ΡΠ΅Ρ Π½Π΅Π΄ΠΎΡΡΠ°ΡΠΎΡΠ½ΠΎΠ΅ ΠΊΠΎΠ»ΠΈΡΠ΅ΡΡΠ²ΠΎ ΡΠ΅ΠΏΠ»Π°.
ΠΠ΅ΠΌΠ°Π»ΠΎΠ²Π°ΠΆΠ½ΡΠΉ ΡΠ»Π΅ΠΌΠ΅Π½Ρ Π΄Π»Ρ ΠΊΠ°ΡΠ΅ΡΡΠ²Π΅Π½Π½ΠΎΠ³ΠΎ ΠΏΡΠΈΠ³ΠΎΡΠΎΠ²Π»Π΅Π½ΠΈΡ β ΡΡΡΠΈΠ»ΡΠ½ΡΠΉ ΡΠΊΠ°Ρ. ΠΡΠΎ ΡΡΡΡΠΎΠΉΡΡΠ²ΠΎ ΠΈΠ·Π±Π°Π²Π»ΡΠ΅Ρ ΠΏΡΠΎΠ΄ΡΠΊΡ ΠΎΡ ΠΈΠ·Π»ΠΈΡΠ½Π΅ΠΉ Π²Π»Π°Π³ΠΈ.
ΠΡΠΎΡΠ΅ΡΡ ΡΡΡΠΊΠΈ ΠΌΠΎΠΆΠ½ΠΎ ΠΏΡΠΎΠΈΠ·Π²ΠΎΠ΄ΠΈΡΡ Π½Π° ΠΎΡΠΊΡΡΡΠΎΠΌ Π²ΠΎΠ·Π΄ΡΡ Π΅. Π ΡΡΠΎΠΌ ΡΠ»ΡΡΠ°Π΅ Π½ΡΠΆΠ½ΠΎ Π±ΡΠ΄Π΅Ρ Π²ΡΠΏΠΎΠ»Π½ΠΈΡΡ Π²ΡΠ΅ Π½Π΅ΠΎΠ±Ρ ΠΎΠ΄ΠΈΠΌΡΠ΅ ΡΡΠ»ΠΎΠ²ΠΈΡ ΡΡΡΠΊΠΈ ΠΏΡΠΎΠ΄ΡΠΊΡΠ° Π½Π° ΠΎΡΠΊΡΡΡΠΎΠΌ Π²ΠΎΠ·Π΄ΡΡ Π΅. ΠΠΎΠΆΠ½ΠΎ ΡΠΎΠ²ΠΌΠ΅ΡΡΠΈΡΡ ΡΡΡΠΈΠ»ΡΠ½ΡΠΉ ΠΈ ΠΊΠΎΠΏΡΠΈΠ»ΡΠ½ΡΠΉ ΡΠΊΠ°Ρ Π² ΠΎΠ΄Π½ΠΎΠΌ ΠΏΡΠΎΡΡΡΠ°Π½ΡΡΠ²Π΅.
ΠΠ· ΡΠ΅Π³ΠΎ ΠΆΠ΅ ΠΏΡΠΎΡΠ΅ Π²ΡΠ΅Π³ΠΎ ΠΈΠ·Π³ΠΎΡΠΎΠ²ΠΈΡΡ ΡΡΡΡΠΎΠΉΡΡΠ²ΠΎ Π΄Π»Ρ ΠΊΠΎΠΏΡΠ΅Π½ΠΈΡ
Π‘Π°ΠΌΡΠΉ ΠΏΠΎΡΡΠΎΠΉ Π²Π°ΡΠΈΠ°Π½Ρ β ΠΎΠ±ΡΡΠ½Π°Ρ Π±ΠΎΡΠΊΠ°, ΠΊΠΎΡΠΎΡΠ°Ρ Π½Π°ΠΉΠ΄Π΅ΡΡΡ ΠΏΠΎΡΡΠΈ Π² ΠΊΠ°ΠΆΠ΄ΠΎΠΌ Ρ
ΠΎΠ·ΡΠΉΡΡΠ²Π΅. Π§Π΅ΠΌ ΠΎΠ½Π° Π±ΠΎΠ»ΡΡΠ΅, ΡΠ΅ΠΌ ΠΏΡΠΎΠΈΠ·Π²ΠΎΠ΄ΠΈΡΠ΅Π»ΡΠ½Π΅ΠΉ Π΄ΠΎΠ»ΠΆΠ΅Π½ Π±ΡΡΡ ΠΈ Π΄ΡΠΌΠΎΠ³Π΅Π½Π΅ΡΠ°ΡΠΎΡ. ΠΠ»Ρ Π΄ΠΎΠΌΠ°ΡΠ½Π΅Π³ΠΎ ΠΏΡΠΎΠΈΠ·Π²ΠΎΠ΄ΡΡΠ²Π° Π²ΠΏΠΎΠ»Π½Π΅ ΠΏΠΎΠ΄ΠΎΠΉΠ΄Π΅Ρ ΠΊΠΎΠΏΡΠΈΠ»ΡΠ½Ρ ΠΈΠ· Π±ΠΎΡΠΊΠΈ Π½Π° ΠΏΡΡΡΠ΄Π΅ΡΡΡ β ΡΡΠΎ Π»ΠΈΡΡΠΎΠ².
 ΠΠ»Ρ Π΄ΠΎΠΌΠ°ΡΠ½Π΅Π³ΠΎ ΠΏΡΠΎΠΈΠ·Π²ΠΎΠ΄ΡΡΠ²Π° Π²ΠΏΠΎΠ»Π½Π΅ ΠΏΠΎΠ΄ΠΎΠΉΠ΄Π΅Ρ ΠΊΠΎΠΏΡΠΈΠ»ΡΠ½Ρ ΠΈΠ· Π±ΠΎΡΠΊΠΈ Π½Π° ΠΏΡΡΡΠ΄Π΅ΡΡΡ β ΡΡΠΎ Π»ΠΈΡΡΠΎΠ².
ΠΡΠ»ΠΈ Π² Ρ ΠΎΠ·ΡΠΉΡΡΠ²Π΅ Π±ΠΎΡΠΊΠΈ Π½Π΅ Π½Π°ΡΠ»ΠΎΡΡ
ΠΠ° ΡΠ°ΠΌΠΎΠΌ Π΄Π΅Π»Π΅ ΠΏΠΎΠ΄ΠΎΠΉΠ΄Π΅Ρ Π»ΡΠ±ΠΎΠΉ ΠΌΠ΅ΡΠ°Π»Π»ΠΈΡΠ΅ΡΠΊΠΈΠΉ ΡΡΠΈΠΊ ΠΈΠ· Π΄ΠΎΠΌΠ°ΡΠ½Π΅ΠΉ ΡΡΠ²Π°ΡΠΈ. ΠΠ°ΠΏΡΠΈΠΌΠ΅Ρ ΡΡΠ°ΡΡΠΉ Ρ ΠΎΠ»ΠΎΠ΄ΠΈΠ»ΡΠ½ΠΈΠΊ. ΠΠΎΠΏΡΠΈΠ»ΡΠ½Ρ ΠΈΠ· Ρ ΠΎΠ»ΠΎΠ΄ΠΈΠ»ΡΠ½ΠΈΠΊΠ° Π²ΠΏΠΎΠ»Π½Π΅ ΠΏΡΠΈΠ΅ΠΌΠ»Π΅ΠΌΡΠΉ Π²Π°ΡΠΈΠ°Π½Ρ. ΠΠ΄Π΅ΡΡ ΠΌΠΎΠΆΠ½ΠΎ ΡΠΎΠ²ΠΌΠ΅ΡΡΠΈΡΡ ΠΊΠΎΠΏΡΠΈΠ»ΡΠ½ΡΡ ΠΊΠ°ΠΌΠ΅ΡΡ, Π³Π΅Π½Π΅ΡΠ°ΡΠΎΡ Π΄ΡΠΌΠ° ΠΈ ΡΡΡΠΈΠ»ΠΊΡ Π² ΠΎΠ΄Π½ΠΎΠΌ ΠΊΠΎΡΠΏΡΡΠ΅.
ΠΠ»Ρ ΡΠ΅Ρ , ΠΊΡΠΎ Π»ΡΠ±ΠΈΡ ΡΡΡΠΎΠΈΡΡ Π½Π° Π²Π΅ΠΊΠ°
ΠΠΏΠΎΠ»Π½Π΅ Π²ΠΎΠ·ΠΌΠΎΠΆΠ½ΠΎ ΠΏΠΎΡΡΡΠΎΠΈΡΡ ΡΠ²ΠΎΠΈΠΌΠΈ ΡΡΠΊΠ°ΠΌΠΈ ΠΊΠΎΠΏΡΠΈΠ»ΡΠ½Ρ ΠΈΠ· ΠΊΠΈΡΠΏΠΈΡΠ°. ΠΠ΄Π΅ΡΡ ΠΏΠΎΠ»Π΅Ρ ΡΠ°Π½ΡΠ°Π·ΠΈΠΈ Π½Π΅ΠΎΠ³ΡΠ°Π½ΠΈΡΠ΅Π½ ΠΈ Π²ΡΡ ΠΎΠ±ΠΎΡΡΠ΄ΠΎΠ²Π°Π½ΠΈΠ΅ ΠΌΠΎΠΆΠ½ΠΎ ΠΎΠ±ΡΠ΅Π΄ΠΈΠ½ΠΈΡΡ Π² ΠΎΠ΄Π½ΠΎΠΌ ΠΏΡΠΎΡΡΡΠ°Π½ΡΡΠ²Π΅.
Π‘ΡΡΠΎΠΈΡΡ Π»ΡΡΡΠ΅ Π²ΡΠ΅Π³ΠΎ ΡΠ°ΠΌ ΠΆΠ΅, Π³Π΄Π΅ ΡΠ°ΡΠΏΠΎΠ»ΠΎΠΆΠ΅Π½ ΠΌΠ°Π½Π³Π°Π» ΠΈΠ»ΠΈ ΠΏΠΎΠ±Π»ΠΈΠ·ΠΎΡΡΠΈ. ΠΡΠΎ ΡΠ°ΠΌΡΠΉ Π½Π°Π΄Π΅ΠΆΠ½ΡΠΉ ΠΈ Π΄ΠΎΠ»Π³ΠΎΠ²Π΅ΡΠ½ΡΠΉ Π²Π°ΡΠΈΠ°Π½Ρ.
ΠΠ· ΡΠΎΠ±ΡΡΠ²Π΅Π½Π½ΠΎΠ³ΠΎ ΠΎΠΏΡΡΠ°
Π£ ΠΌΠ΅Π½Ρ Π΅ΡΡΡ ΡΠ²ΠΎΡ ΠΏΠΎΡΠ°Π³ΠΎΠ²Π°Ρ ΠΈΠ½ΡΡΡΡΠΊΡΠΈΡ ΠΊΠ°ΠΊ ΡΠ΄Π΅Π»Π°ΡΡ ΠΊΠΎΠΏΡΠΈΠ»ΡΠ½Ρ Π³ΠΎΡΡΡΠ΅Π³ΠΎ ΠΊΠΎΠΏΡΠ΅Π½ΠΈΡ ΡΠ²ΠΎΠΈΠΌΠΈ ΡΡΠΊΠ°ΠΌΠΈ. ΠΡΠ½ΠΎΠ²Π½ΡΡ ΠΈ Π½Π°ΠΈΠ±ΠΎΠ»Π΅Π΅ Π³ΡΠΎΠΌΠΎΠ·Π΄ΠΊΡΡ ΡΠ°ΡΡΡ ΠΊΠΎΠ½ΡΡΡΡΠΊΡΠΈΠΈ Ρ ΡΠ΄Π΅Π»Π°Π» ΠΈΠ· ΠΊΠ»Π΅Π΅Π½ΡΡ
 Π΄Π΅ΡΠ΅Π²ΡΠ½Π½ΡΡ
 ΠΏΠ°Π½Π΅Π»Π΅ΠΉ, ΠΊΡΠΏΠ»Π΅Π½Π½ΡΡ
 Π² Ρ
ΠΎΠ·ΡΠΉΡΡΠ²Π΅Π½Π½ΠΎΠΌ ΠΌΠ°Π³Π°Π·ΠΈΠ½Π΅. Π‘ΠΎΡΠ½Π° Π΄Π»Ρ ΡΡΠΎΠ³ΠΎ Π²ΠΏΠΎΠ»Π½Π΅ ΠΏΠΎΠ΄ΠΎΡΠ»Π°.
ΠΡΠΈ ΠΏΠΎΠΌΠΎΡΠΈ ΡΡΡΡΠΏΠΎΠ² ΡΠΎΠ±ΡΠ°Π» ΠΊΡΠ± ΡΠ°Π·ΠΌΠ΅ΡΠΎΠΌ 80 Π½Π° 80 ΡΠ°Π½ΡΠΈΠΌΠ΅ΡΡΠΎΠ², Π²ΡΡΠΎΡΠΎΠΉ ΠΎΠ΄ΠΈΠ½ ΠΌΠ΅ΡΡ β ΡΡΠΎ ΡΠ°Π·ΠΌΠ΅Ρ Π³ΠΎΡΠΎΠ²ΡΡ ΠΏΠ°Π½Π΅Π»Π΅ΠΉ. Π‘Π²Π΅ΡΡ Ρ ΠΏΠ»ΠΎΡΠ½Π°Ρ ΠΊΡΡΡΠΊΠ° ΠΈΠ· ΡΠΎΠ³ΠΎ ΠΆΠ΅ Π΄Π΅ΡΠ΅Π²Π°. ΠΠ·Π½ΡΡΡΠΈ Π²ΡΠ΅ ΠΏΡΠΎΡΡΡΠ°Π½ΡΡΠ²ΠΎ ΠΏΠΎΠΊΡΡΠ» ΡΠΎΠ»ΡΡΠΎΠΉ Π°Π»ΡΠΌΠΈΠ½ΠΈΠ΅Π²ΠΎΠΉ ΡΠΎΠ»ΡΠ³ΠΎΠΉ, ΡΠ°ΠΊ ΠΊΠ°ΠΊ Π΄Π΅ΡΠ΅Π²ΠΎ, ΠΎΡΠΎΠ±Π΅Π½Π½ΠΎ ΡΠΎΡΠ½Π°, Π²ΡΠ΄Π΅Π»ΡΠ΅Ρ ΠΌΠ½ΠΎΠ³ΠΎ ΡΠΌΠΎΠ»Ρ, ΡΡΠΎ Π½Π΅ ΠΎΡΠ΅Π½Ρ Ρ ΠΎΡΠΎΡΠΎ Π΄Π»Ρ ΠΏΠΈΡΠ΅Π²ΡΡ ΠΏΡΠΎΠ΄ΡΠΊΡΠΎΠ².
Π ΠΊΡΡΡΠΊΠ΅ ΠΏΡΠΎΡΠ²Π΅ΡΠ»ΠΈΠ» ΠΎΡΠ²Π΅ΡΡΡΠΈΠ΅ Π΄ΠΈΠ°ΠΌΠ΅ΡΡΠΎΠΌ 50 ΠΌΠΈΠ»Π»ΠΈΠΌΠ΅ΡΡΠΎΠ² Π΄Π»Ρ Π΄ΡΠΌΠΎΡ ΠΎΠ΄Π°. ΠΠΎΠ΄ΠΎΡΠ»Π° ΠΎΠ±ΡΡΠ½Π°Ρ Π²ΠΎΠ΄ΠΎΠΏΡΠΎΠ²ΠΎΠ΄Π½Π°Ρ ΡΡΡΠ±Π° ΠΈΠ· ΠΏΠ»Π°ΡΡΠΈΠΊΠ°. Π‘Π±ΠΎΠΊΡ ΠΏΡΠΈΠ΄Π΅Π»Π°Π» Π΄ΡΠΌΠΎΠ³Π΅Π½Π΅ΡΠ°ΡΠΎΡ.
ΠΠ° Π΅Π³ΠΎ ΠΊΠΎΠ½ΡΡΡΡΠΊΡΠΈΠΈ ΠΎΡΡΠ°Π½ΠΎΠ²ΠΈΠΌΡΡ ΠΎΡΠ΄Π΅Π»ΡΠ½ΠΎ
Π― ΠΏΠΎΡΠ΅Π» ΠΏΠΎ Π½Π°ΠΈΠ±ΠΎΠ»Π΅Π΅ ΠΎΠΏΡΠΈΠΌΠ°Π»ΡΠ½ΠΎΠΌΡ ΠΏΡΡΠΈ ΠΈ ΠΊΡΠΏΠΈΠ» Π³ΠΎΡΠΎΠ²ΠΎΠ΅ ΡΡΡΡΠΎΠΉΡΡΠ²ΠΎ. ΠΡΠΎ Π±ΡΠ»ΠΎ ΠΏΡΠΎΡΠ΅, ΡΠ°ΠΊ ΠΊΠ°ΠΊ Π² ΠΊΠΎΠΌΠΏΠ»Π΅ΠΊΡ Π²Ρ ΠΎΠ΄ΠΈΠ» Π½Π΅Π±ΠΎΠ»ΡΡΠΎΠΉ ΠΊΠΎΠΌΠΏΡΠ΅ΡΡΠΎΡ, ΠΊΠΎΡΠΎΡΡΠΉ ΠΏΠΎΠΌΠΎΠ³Π°Π΅Ρ Π½Π°Π³Π½Π΅ΡΠ°ΡΡ Π΄ΡΠΌ Π² ΠΊΠΎΠΏΡΠΈΠ»ΡΠ½Ρ. ΠΠΎΠΌΠΏΡΠ΅ΡΡΠΎΡ ΠΌΠΎΠΆΠ½ΠΎ Π½Π΅ ΠΈΡΠΏΠΎΠ»ΡΠ·ΠΎΠ²Π°ΡΡ.
ΠΡΠ»ΠΈ ΠΊΠΎΠ½ΡΡΡΡΠΊΡΠΈΡ ΠΈΠ·Π³ΠΎΡΠΎΠ²Π»Π΅Π½Π° ΠΏΡΠ°Π²ΠΈΠ»ΡΠ½ΠΎ, ΡΠΎ Π΄ΡΠΌ Π±ΡΠ΄Π΅Ρ ΠΏΠΎΡΡΡΠΏΠ°ΡΡ Π² Π΄ΠΎΡΡΠ°ΡΠΎΡΠ½ΠΎΠΌ ΠΊΠΎΠ»ΠΈΡΠ΅ΡΡΠ²Π΅ ΠΈ Π±Π΅Π· Π΄ΠΎΠΏΠΎΠ»Π½ΠΈΡΠ΅Π»ΡΠ½ΡΡ ΠΏΡΠΈΡΠΏΠΎΡΠΎΠ±Π»Π΅Π½ΠΈΠΉ. ΠΠΎ Ρ ΠΊΠΎΠΌΠΏΡΠ΅ΡΡΠΎΡΠΎΠΌ Π½Π°Π΄Π΅ΠΆΠ½Π΅ΠΉ. Π’Π°ΠΊΠΎΠΉ Π³Π΅Π½Π΅ΡΠ°ΡΠΎΡ Π½Π΅ΡΡΡΠ΄Π½ΠΎ ΡΠ΄Π΅Π»Π°ΡΡ ΡΠ°ΠΌΠΎΡΡΠΎΡΡΠ΅Π»ΡΠ½ΠΎ.
ΠΠ°ΠΊ ΡΠΎΠ±ΡΠ°ΡΡ Π³Π΅Π½Π΅ΡΠ°ΡΠΎΡ Π΄ΡΠΌΠ°
ΠΠΎΠ΄ΠΎΠΉΠ΄Π΅Ρ Π»ΡΠ±Π°Ρ ΠΌΠ΅ΡΠ°Π»Π»ΠΈΡΠ΅ΡΠΊΠ°Ρ ΡΡΡΠ±Π° Π΄ΠΈΠ°ΠΌΠ΅ΡΡΠΎΠΌ 80-100 ΠΌΠΈΠ»Π»ΠΈΠΌΠ΅ΡΡΠΎΠ². Π Π΅Ρ Π½ΠΈΠΆΠ½Π΅ΠΉ ΡΠ°ΡΡΠΈ Π΄Π΅Π»Π°Π΅ΠΌ Π½Π΅ΡΠΊΠΎΠ»ΡΠΊΠΎ ΠΎΡΠ²Π΅ΡΡΡΠΈΠΉ. ΠΠ°ΡΠ΅ΠΌ Π½Π° ΠΌΠ΅ΡΠ°Π»Π»ΠΈΡΠ΅ΡΠΊΡΡ ΠΏΠΎΠ²Π΅ΡΡ Π½ΠΎΡΡΡ, Π΄Π»Ρ ΡΡΠΎΠ³ΠΎ ΠΏΠΎΠ΄ΠΎΠΉΠ΄Π΅Ρ ΡΡΠ°ΡΠ°Ρ ΡΠΊΠΎΠ²ΠΎΡΠΎΠ΄ΠΊΠ°, Π½Π°ΡΡΠΏΠ°Π΅ΠΌ Π½Π΅ΠΌΠ½ΠΎΠ³ΠΎ Π·Π°ΡΠ°Π½Π΅Π΅ Π·Π°ΠΌΠΎΡΠ΅Π½Π½ΠΎΠΉ ΡΠ΅ΠΏΡ ΠΈ ΡΠ°Π·ΠΆΠΈΠ³Π°Π΅ΠΌ Π΅Ρ.
ΠΠΎΠ³Π΄Π° Π΄Π΅ΡΠ΅Π²ΠΎ ΡΠ°Π·Π³ΠΎΡΠΈΡΡΡ, ΡΠΎΡΠ½Π΅Π΅ Π½Π°ΡΠ½Π΅Ρ ΡΠ»Π΅ΡΡ, Π½Π°ΠΊΡΡΠ²Π°Π΅ΠΌ Π΅Π³ΠΎ ΡΡΡΠ±ΠΎΠΉ. ΠΡΠ²Π΅ΡΡΡΠΈΡ Π΄ΠΎΠ»ΠΆΠ½Ρ Π΄Π°Π²Π°ΡΡ Π½Π΅ΠΎΠ±Ρ ΠΎΠ΄ΠΈΠΌΡΠΉ ΠΏΡΠΈΡΠΎΠΊ Π²ΠΎΠ·Π΄ΡΡ Π° Π΄Π»Ρ ΠΏΠΎΠ΄Π΄Π΅ΡΠΆΠ°Π½ΠΈΡ ΠΏΡΠΎΡΠ΅ΡΡΠ° ΡΠ»Π΅Π½ΠΈΡ. Π ΠΈΠ΄Π΅Π°Π»Π΅ Π½ΠΈΠ· ΡΡΡΠ±Ρ Π½ΡΠΆΠ½ΠΎ Π·Π°Π²Π°ΡΠΈΡΡ ΠΈ ΠΏΡΠΎΠ΄Π΅Π»Π°ΡΡ ΠΎΠ΄Π½ΠΎ Π±ΠΎΠ»ΡΡΠΎΠ΅ ΠΎΡΠ²Π΅ΡΡΡΠΈΠ΅ Π΄Π»Ρ Π·Π°ΠΏΠΎΠ»Π½Π΅Π½ΠΈΡ ΡΠ΅ΠΏΠΎΠΉ ΠΈ ΠΏΡΠΈΡΠΎΠΊΠ° Π²ΠΎΠ·Π΄ΡΡ Π°.
Π Π±ΠΎΠΊΠΎΠ²ΠΎΠΉ ΡΠ°ΡΡΠΈ ΡΡΡΠ±Ρ Π½Π΅ΠΎΠ±Ρ ΠΎΠ΄ΠΈΠΌΠΎ ΠΏΡΠ΅Π΄Π²Π°ΡΠΈΡΠ΅Π»ΡΠ½ΠΎ ΠΏΠΎΠ΄Π΅Π»Π°ΡΡ ΠΎΡΠ²Π΅ΡΡΡΠΈΠ΅ Π½Π° ΡΡΠΎΠ²Π½Π΅ Π΄Π²Π΅ ΡΡΠ΅ΡΠΈ ΠΎΡ Π½ΠΈΠΆΠ½Π΅ΠΉ ΡΠ°ΡΡΠΈ ΠΈ Π²ΡΡΠ°Π²ΠΈΡΡ ΡΡΠ΄Π° Π³ΠΎΡΠΈΠ·ΠΎΠ½ΡΠ°Π»ΡΠ½ΡΡ ΠΌΠ΅ΡΠ°Π»Π»ΠΈΡΠ΅ΡΠΊΡΡ ΡΡΡΠ±Ρ ΡΠ°ΠΊ, ΡΡΠΎΠ±Ρ ΠΎΠ½Π° ΡΠΎΠ΅Π΄ΠΈΠ½ΡΠ»Π° ΠΊΠΎΠΏΡΠΈΠ»ΡΠ½ΡΠΉ ΡΠΊΠ°Ρ ΠΈ Π΄ΡΠΌΠΎΠ³Π΅Π½Π΅ΡΠ°ΡΠΎΡ.
ΠΠ΅ΡΡ Π½ΡΡ ΡΠ°ΡΡΡ Π½Π°ΠΊΡΡΠ²Π°Π΅ΠΌ ΠΏΠ»ΠΎΡΠ½ΠΎΠΉ ΠΊΡΡΡΠΊΠΎΠΉ ΠΈ ΡΠ»Π΅Π΄ΠΈΠΌ, ΡΡΠΎΠ±Ρ Π΄ΡΠΌ Π½Π΅ ΡΠΎΡΠΈΠ»ΡΡ ΠΈΠ· Π½Π΅ΠΏΠ»ΠΎΡΠ½ΡΡ ΡΠΎΠ΅Π΄ΠΈΠ½Π΅Π½ΠΈΠΉ. ΠΡΠ»ΠΈ Π²ΡΠ΅ ΡΠ΄Π΅Π»Π°Π½ΠΎ ΠΏΡΠ°Π²ΠΈΠ»ΡΠ½ΠΎ, ΡΠΎ Π²Π΅ΡΡ Π΄ΡΠΌ Π±ΡΠ΄Π΅Ρ ΠΏΠΎΡΡΡΠΏΠ°ΡΡ Π² ΠΊΠΎΠΏΡΠΈΠ»ΡΠ½Ρ ΠΈ ΠΏΡΠΎΡΠ΅ΡΡ ΠΏΡΠΎΠΉΠ΄Π΅Ρ ΠΊΠ°ΡΠ΅ΡΡΠ²Π΅Π½Π½ΠΎ ΠΈ Π΄ΠΎΡΡΠ°ΡΠΎΡΠ½ΠΎ Π±ΡΡΡΡΠΎ.
ΠΠ°ΠΊ ΡΡΡΠ°Π½ΠΎΠ²ΠΈΡΡ Π΄ΠΎΠΏΠΎΠ»Π½ΠΈΡΠ΅Π»ΡΠ½ΡΠΉ ΠΊΠΎΠΌΠΏΡΠ΅ΡΡΠΎΡ
ΠΠ»Ρ ΡΡΠΎΠ³ΠΎ ΠΏΠΎΠ΄ΠΎΠΉΠ΄Π΅Ρ ΠΎΠ±ΡΡΠ½ΡΠΉ Π°ΠΊΠ²Π°ΡΠΈΡΠΌΠ½ΡΠΉ ΠΊΠΎΠΌΠΏΡΠ΅ΡΡΠΎΡ Ρ ΠΏΠ»Π°ΡΡΠΈΠΊΠΎΠ²ΠΎΠΉ ΡΡΡΠ±ΠΊΠΎΠΉ, ΡΠ΅ΡΠ΅Π· ΠΊΠΎΡΠΎΡΡΡ ΠΏΠΎΠ΄ Π½Π΅Π±ΠΎΠ»ΡΡΠΈΠΌ Π΄Π°Π²Π»Π΅Π½ΠΈΠ΅ΠΌ ΠΏΡΠΎΡ ΠΎΠ΄ΠΈΡ Π²ΠΎΠ·Π΄ΡΡ . ΠΡΡ ΡΡΡΠ±ΠΊΡ Π½ΡΠΆΠ½ΠΎ Π²ΡΡΠ°Π²ΠΈΡΡ Π² ΠΏΠΎΠΏΠ΅ΡΠ΅ΡΠ½ΡΡ ΡΡΡΠ±Ρ, ΠΊΠΎΡΠΎΡΠ°Ρ ΡΠΎΠ΅Π΄ΠΈΠ½ΡΠ΅Ρ Π³Π΅Π½Π΅ΡΠ°ΡΠΎΡ ΠΈ ΠΊΠΎΠΏΡΠΈΠ»ΡΠ½ΡΠΉ ΡΠΊΠ°Ρ. ΠΡΡΡΠ΅ Π²ΡΠ΅Π³ΠΎ ΠΏΡΠ΅Π΄ΡΡΠΌΠΎΡΡΠ΅ΡΡ Π΄ΠΎΠΏΠΎΠ»Π½ΠΈΡΠ΅Π»ΡΠ½ΡΠΉ ΡΡΡΡΠ΅Ρ. ΠΡΠ΅ ΡΠΎΠ΅Π΄ΠΈΠ½Π΅Π½ΠΈΡ Π΄ΠΎΠ»ΠΆΠ½Ρ Π±ΡΡΡ ΠΎΡΠ΅Π½Ρ ΠΏΠ»ΠΎΡΠ½ΡΠΌΠΈ. Π’Π΅ΠΏΠ΅ΡΡ ΠΌΠΎΠΆΠ½ΠΎ ΠΊΠΎΠΏΡΠΈΡΡ.
Π‘ΡΡΠΈΠ»ΡΠ½ΡΠΉ ΡΠΊΠ°Ρ
ΠΡΡΡΠ΅ Π²ΡΠ΅Π³ΠΎ ΠΈΡΠΏΠΎΠ»ΡΠ·ΠΎΠ²Π°ΡΡ ΡΠΏΠ΅ΡΠΈΠ°Π»ΡΠ½ΡΠΉ ΡΡΡΠΈΠ»ΡΠ½ΡΠΉ ΡΠΊΠ°Ρ, ΠΊΠΎΡΠΎΡΡΠΉ ΠΈΠ·Π±Π°Π²ΠΈΡ Π½Π°Ρ ΠΏΡΠΎΠ΄ΡΠΊΡ ΠΎΡ ΠΈΠ·Π»ΠΈΡΠ½Π΅ΠΉ Π²Π»Π°Π³ΠΈ. ΠΠ³ΠΎ ΡΠΎΠΆΠ΅ Π²ΠΏΠΎΠ»Π½Π΅ ΠΏΠΎΠ΄ ΡΠΈΠ»Ρ ΠΈΠ·Π³ΠΎΡΠΎΠ²ΠΈΡΡ ΡΠ°ΠΌΠΎΡΡΠΎΡΡΠ΅Π»ΡΠ½ΠΎ. Π― ΠΊΡΠΏΠΈΠ» ΠΏΠ»Π°ΡΡΠΈΠΊΠΎΠ²ΡΠΉ ΡΡΠΈΠΊ Ρ ΠΏΠ»ΠΎΡΠ½ΠΎΠΉ ΠΊΡΡΡΠΊΠΎΠΉ ΠΎΠ±ΡΠ΅ΠΌΠΎΠΌ 20 Π»ΠΈΡΡΠΎΠ². Π Π±ΠΎΠΊΠΎΠ²ΡΡ Π΅Π³ΠΎ ΡΠ°ΡΡΡ Π²ΡΡΠ°Π²ΠΈΠ» Π½Π΅Π±ΠΎΠ»ΡΡΠΎΠΉ Π²Π΅Π½ΡΠΈΠ»ΡΡΠΎΡ. ΠΠΎΠ΄ΠΎΠΉΠ΄Π΅Ρ Π»ΡΠ±ΠΎΠΉ ΠΈΠ· ΡΠ΅Ρ , ΡΡΠΎ Π½Π°ΠΉΠ΄Π΅ΡΡΡ Π² ΠΠ°ΡΠ΅ΠΌ Ρ ΠΎΠ·ΡΠΉΡΡΠ²Π΅.
ΠΠ»Π°Π΄Π΅ΠΌ, Π° Π»ΡΡΡΠ΅ ΠΏΠΎΠ΄Π²Π΅ΡΠΈΠ²Π°Π΅ΠΌ, ΠΏΡΠ΅Π΄Π²Π°ΡΠΈΡΠ΅Π»ΡΠ½ΠΎ Π·Π°ΡΠΎΠ»Π΅Π½Π½ΡΠΉ ΠΏΡΠΎΠ΄ΡΠΊΡ Π² ΡΡΡΠΈΠ»ΡΠ½ΡΠΉ ΡΠΊΠ°Ρ. ΠΠΊΠ»ΡΡΠ°Π΅ΠΌ Π²Π΅Π½ΡΠΈΠ»ΡΡΠΎΡ ΠΈ ΠΆΠ΄Π΅ΠΌ 2-3 Π΄Π½Ρ Π΄ΠΎ ΠΏΠΎΠ»Π½ΠΎΠΉ ΠΏΡΠΎΡΡΡΠΊΠΈ. Π‘Π΅ΠΉΡΠ°Ρ Π½Π΅ ΠΏΡΠΈΠ½ΡΡΠΎ ΡΡΠΎ Π΄Π΅Π»Π°ΡΡ Π½Π° ΠΎΡΠΊΡΡΡΠΎΠΌ Π²ΠΎΠ·Π΄ΡΡ Π΅, Π»ΡΡΡΠ΅ Π² ΡΡΡΠΈΠ»ΡΠ½ΠΎΠΌ ΡΠΊΠ°ΡΡ Π»ΡΠ±ΠΎΠΉ ΠΊΠΎΠ½ΡΡΡΡΠΊΡΠΈΠΈ.
ΠΡΠΆΠ½ΠΎ ΡΡΠΈΡΡΠ²Π°ΡΡ, ΡΡΠΎ ΡΠ΅ΠΌ ΡΠΈΠ»ΡΠ½Π΅Π΅ ΠΏΠΎΡΠΎΠΊ Π²ΠΎΠ·Π΄ΡΡ Π°, ΡΠ΅ΠΌ Π±ΡΡΡΡΠ΅Π΅ ΠΏΡΠΎΠΉΠ΄Π΅Ρ ΠΏΠΎΠ΄Π³ΠΎΡΠΎΠ²ΠΊΠ° ΠΊ ΠΊΠΎΠΏΡΠ΅Π½ΠΈΡ. ΠΠ΅ΠΌΠ°Π»ΠΎΠ²Π°ΠΆΠ½ΠΎ ΠΈ ΡΠΎ, ΠΊΠ°ΠΊΠ°Ρ ΡΠ΅ΠΌΠΏΠ΅ΡΠ°ΡΡΡΠ° ΠΎΠΊΡΡΠΆΠ°ΡΡΠ΅ΠΉ ΡΡΠ΅Π΄Ρ. Π Π»Π΅ΡΠ½Π΅Π΅ Π²ΡΠ΅ΠΌΡ Π³ΠΎΠ΄Π° Π½Π΅Π»ΡΠ·Ρ ΡΡΠ°Π²ΠΈΡΡ ΡΡΡΠΈΠ»ΠΊΡ Π½Π° ΡΠΎΠ»Π½ΡΠ΅, Π° Π»ΡΡΡΠ΅ Π½Π°ΠΉΡΠΈ ΠΏΡΠΎΡ Π»Π°Π΄Π½ΠΎΠ΅ ΠΌΠ΅ΡΡΠΎ Π³Π΄Π΅-ΡΠΎ Π² ΡΠ°ΡΠ°Π΅ ΠΈΠ»ΠΈ ΠΏΠΎΠ³ΡΠ΅Π±Π΅. ΠΡΠ»ΠΈ Π²ΡΠ΅ ΡΠ΄Π΅Π»Π°Π½ΠΎ ΠΏΡΠ°Π²ΠΈΠ»ΡΠ½ΠΎ, ΡΠΎ ΠΏΡΠΎΡΠ΅ΡΡ ΠΊΠΎΠΏΡΠ΅Π½ΠΈΡ Π·Π°ΠΉΠΌΠ΅Ρ ΠΏΠΎΡΡΠ΄ΠΊΠ° 40-50 ΠΌΠΈΠ½ΡΡ.
ΠΠΎΠΆΠ½ΠΎ ΠΊΠΎΠΏΡΠΈΡΡ ΠΈ Π±ΠΎΠ»Π΅Π΅ Π΄Π»ΠΈΡΠ΅Π»ΡΠ½ΠΎΠ΅ Π²ΡΠ΅ΠΌΡ, Π½ΠΎ Π·Π΄Π΅ΡΡ ΠΌΠΎΠΆΠ½ΠΎ ΠΏΠ΅ΡΠ΅Π±ΠΎΡΡΠΈΡΡ ΠΈ ΡΠΎΠ³Π΄Π° ΠΠ°ΡΠ΅ Π±Π»ΡΠ΄ΠΎ ΠΏΡΠΈΠΎΠ±ΡΠ΅ΡΠ΅Ρ Π³ΠΎΡΡΠΊΠΎΠ²Π°ΡΡΠΉ ΠΏΡΠΈΠ²ΠΊΡΡ. Π Π΅ΡΠ΅ΠΏΡΠΎΠ², ΠΊΠ°ΠΊ ΠΈ ΡΠΊΠΎΠ»ΡΠΊΠΎ ΠΊΠΎΠΏΡΠΈΡΡ ΡΠΎΡ ΠΈΠ»ΠΈ ΠΈΠ½ΠΎΠΉ ΠΏΡΠΎΠ΄ΡΠΊΡ Π±Π΅ΡΠΊΠΎΠ½Π΅ΡΠ½ΠΎΠ΅ ΠΌΠ½ΠΎΠΆΠ΅ΡΡΠ²ΠΎ Π² ΠΈΠ½ΡΠ΅ΡΠ½Π΅ΡΠ΅.
Π€ΠΎΡΠΎ ΠΊΠΎΠΏΡΠΈΠ»ΡΠ½ΠΈ ΡΠ²ΠΎΠΈΠΌΠΈ ΡΡΠΊΠ°ΠΌΠΈ
Π‘ΠΎΡ ΡΠ°Π½ΠΈΡΠ΅ ΡΡΠ°ΡΡΡ ΡΠ΅Π±Π΅ Π½Π° ΡΡΡΠ°Π½ΠΈΡΡ:ΠΠΎΡΡ ΠΎΠΏΡΠ±Π»ΠΈΠΊΠΎΠ²Π°Π½: 18.11
ΠΡΠΈΡΠΎΠ΅Π΄ΠΈΠ½ΡΠΉΡΠ΅ΡΡ ΠΊ ΠΎΠ±ΡΡΠΆΠ΄Π΅Π½ΠΈΡ: Copyright Β© 2020 LandshaftDizajn.Ru — ΠΏΠΎΡΡΠ°Π» ΠΎ Π»Π°Π½Π΄ΡΠ°ΡΡΠ½ΠΎΠΌ Π΄ΠΈΠ·Π°ΠΉΠ½Π΅ β1 ***Π‘Π°ΠΉΡ ΠΏΡΠΈΠ½Π°Π΄Π»Π΅ΠΆΠΈΡ ΠΠ°ΡΠΈΠΈ ΠΠΎΠ·Π°ΠΊΠΎΡΠΎΠ±Π΅Π½Π½ΠΎΡΡΠΈ, ΡΠ΅ΡΡΠ΅ΠΆΠΈ, ΡΠ°Π·ΠΌΠ΅ΡΡ, ΠΈΠ½ΡΡΡΡΠΊΡΠΈΡ (90 ΡΠΎΡΠΎ)
Π’Π°ΠΊΠΎΠ΅ ΠΈΠ½ΡΠ΅ΡΠ΅ΡΠ½ΠΎΠ΅ ΡΡΡΡΠΎΠΉΡΡΠ²ΠΎ ΠΊΠ°ΠΊ ΠΊΠΎΠΏΡΠΈΠ»ΡΠ½Ρ Π³ΠΎΡΡΡΠ΅Π³ΠΎ ΠΊΠΎΠΏΡΠ΅Π½ΠΈΡ ΡΠ°Π΄ΡΠ΅Ρ ΡΠ²ΠΎΠΈΡ Ρ ΠΎΠ·ΡΠ΅Π² Π²ΠΊΡΡΠ½ΡΠΌΠΈ ΠΏΡΠΎΠ΄ΡΠΊΡΠ°ΠΌΠΈ, ΠΊΠΎΡΠΎΡΡΠ΅ ΠΌΠΎΠΆΠ½ΠΎ ΠΏΡΠΈΠ³ΠΎΡΠΎΠ²ΠΈΡΡ ΡΠΎΠ»ΡΠΊΠΎ Ρ Π΅Ρ ΠΏΠΎΠΌΠΎΡΡΡ. ΠΠ°Π»ΠΎ ΠΊΡΠΎ ΠΎΡΠΊΠ°ΠΆΠ΅ΡΡΡ ΠΎΡ ΠΊΠΎΠΏΡΠ΅Π½ΡΡ Π±Π»ΡΠ΄, Π΄Π° Π΅ΡΡ ΠΈ ΡΠ΄Π΅Π»Π°Π½Π½ΡΡ Π² ΡΠΎΠ±ΡΡΠ²Π΅Π½Π½ΠΎΠΉ ΠΊΠΎΠΏΡΠΈΠ»ΡΠ½Π΅. ΠΠΈΠ΄Ρ ΠΊΠΎΠΏΡΠΈΠ»ΡΠ½ΠΈ ΠΈΠ·Π²Π΅ΡΡΠ½Ρ Π²ΡΠ΅ΠΌ, Π²ΡΠ΅Π³ΠΎ ΠΈΡ Π΄Π²Π° ΡΠ°Π·Π»ΠΈΡΠ½ΡΡ Π²ΠΈΠ΄Π°, Π½ΠΎ ΠΈΠΌΠ΅Π½Π½ΠΎ ΠΎ ΠΊΠΎΠΏΡΠΈΠ»ΡΠ½Π΅ Π³ΠΎΡΡΡΠ΅Π³ΠΎ ΠΊΠΎΠΏΡΠ΅Π½ΠΈΡ ΠΏΠΎΠΉΠ΄ΡΡ ΡΠ΅ΡΡ.
ΠΡΠ°ΡΠΊΠΎΠ΅ ΡΠΎΠ΄Π΅ΡΠΆΠΈΠΌΠΎΠ΅ ΡΡΠ°ΡΡΠΈ:
ΠΠΎΡΠ΅ΠΌΡ ΡΡΠΎΠΈΡ Π²ΡΠ±ΡΠ°ΡΡ ΠΈΠΌΠ΅Π½Π½ΠΎ Π³ΠΎΡΡΡΠ΅Π΅ ΠΊΠΎΠΏΡΠ΅Π½ΠΈΠ΅?
Π‘Π°ΠΌΡΠΉ Π³Π»Π°Π²Π½ΡΠΉ Π°ΡΠ³ΡΠΌΠ΅Π½Ρ Π² ΠΏΠΎΠ»ΡΠ·Ρ Π³ΠΎΡΡΡΠ΅Π³ΠΎ ΡΠΏΠΎΡΠΎΠ±Π° β ΡΡΠΎ Π½Π΅ΠΏΠΎΠ²ΡΠΎΡΠΈΠΌΡΠΉ Π²ΠΊΡΡ ΠΈ Π°ΡΠΎΠΌΠ°Ρ. ΠΡΠ»ΠΈ Π³ΠΎΡΠΎΠ²ΠΈΡΡ Π² ΠΊΠΎΠΏΡΠΈΠ»ΡΠ½Π΅ Ρ ΠΎΠ»ΠΎΠ΄Π½ΠΎΠ³ΠΎ ΠΊΠΎΠΏΡΠ΅Π½ΠΈΡ, ΡΠΎ Π²ΠΊΡΡ ΠΈ Π·Π°ΠΏΠ°Ρ Π΄ΡΠΌΠ° Π±ΡΠ΄Π΅Ρ Π½Π΅ ΡΠ°ΠΊΠΈΠΌ ΡΠΈΠ»ΡΠ½ΡΠΌ. Π§Π°ΡΠ΅ Π²ΡΠ΅Π³ΠΎ ΠΈΠΌΠ΅Π½Π½ΠΎ ΠΏΠΎΡΡΠΎΠΌΡ Π»ΡΠ΄ΠΈ ΠΎΡΠ΄Π°ΡΡ ΠΏΡΠ΅Π΄ΠΏΠΎΡΡΠ΅Π½ΠΈΠ΅ Π³ΠΎΡΡΡΠ΅ΠΌΡ ΡΠΏΠΎΡΠΎΠ±Ρ.
Π‘ΡΠΎΠΈΡ ΡΡΠ°Π²Π½ΠΈΡΡ Π²ΡΠ΅ΠΌΡ ΠΏΡΠΈΠ³ΠΎΡΠΎΠ²Π»Π΅Π½ΠΈΡ. ΠΡΠ»ΠΈ ΠΈΡΠΏΠΎΠ»ΡΠ·ΠΎΠ²Π°ΡΡ Ρ ΠΎΠ»ΠΎΠ΄Π½ΡΡ ΠΎΠ±ΡΠ°Π±ΠΎΡΠΊΡ, ΡΠΎ ΠΌΠΈΠ½ΠΈΠΌΠ°Π»ΡΠ½ΠΎΠ΅ Π²ΡΠ΅ΠΌΡ Π΄Π»Ρ ΠΏΡΠΈΠ³ΠΎΡΠΎΠ²Π»Π΅Π½ΠΈΡ ΡΠΎΡΡΠ°Π²ΠΈΡ 3 Π΄Π½Ρ. ΠΠ½ΠΎΠ³Π΄Π° ΠΏΡΠΎΡΠ΅ΡΡ Π·Π°Π½ΠΈΠΌΠ°Π΅Ρ Π΄Π°ΠΆΠ΅ Π½Π΅Π΄Π΅Π»Ρ, Π° ΡΠΎ ΠΈ Π΄ΠΎΠ»ΡΡΠ΅. ΠΡΠΈ Π³ΠΎΡΡΡΠ΅ΠΉ ΠΎΠ±ΡΠ°Π±ΠΎΡΠΊΠ΅ ΠΏΠΈΡΠ° Π±ΡΠ΄Π΅Ρ Π³ΠΎΡΠΎΠ²Π° ΠΎΡ 40 Π΄ΠΎ 120 ΠΌΠΈΠ½ΡΡ.
Π’Π΅ΠΌ, ΠΊΡΠΎ Π·Π°Π±ΠΎΡΠΈΡΡΡ ΠΎ ΡΠ²ΠΎΡΠΌ Π·Π΄ΠΎΡΠΎΠ²ΡΠ΅ ΠΈΠ»ΠΈ ΡΠΈΠ΄ΠΈΡ Π½Π° Π΄ΠΈΠ΅ΡΠ΅ Π½Π΅ ΡΡΠΎΠΈΡ ΠΈΡΠΏΠΎΠ»ΡΠ·ΠΎΠ²Π°ΡΡ Π³ΠΎΡΡΡΠΈΠΉ ΡΠΏΠΎΡΠΎΠ± β ΠΏΡΠΈ ΡΠ΅ΠΌΠΏΠ΅ΡΠ°ΡΡΡΠ½ΠΎΠΉ ΠΎΠ±ΡΠ°Π±ΠΎΡΠΊΠ΅ Π² ΠΏΠΈΡΠ΅ Π½Π°ΠΊΠ°ΠΏΠ»ΠΈΠ²Π°Π΅ΡΡΡ Π½Π΅ΠΊΠΎΡΠΎΡΠΎΠ΅ ΠΊΠΎΠ»ΠΈΡΠ΅ΡΡΠ²ΠΎ Π²Π΅ΡΠ΅ΡΡΠ², ΠΊΠΎΡΠΎΡΡΠ΅ ΠΌΠΎΠ³ΡΡ ΠΏΠΎΠ²ΡΠ΅Π΄ΠΈΡΡ ΡΠΈΠ³ΡΡΠ΅.
ΠΡΠΈΠ½ΡΠΈΠΏ ΡΠ°Π±ΠΎΡΡ ΠΊΠΎΠΏΡΠΈΠ»ΡΠ½ΠΈ
ΠΠ° ΡΠ°ΠΌΠΎΠΌ Π΄Π΅Π»Π΅, Π²ΡΠ΅ Π½Π΅ ΡΠ°ΠΊ ΡΠ»ΠΎΠΆΠ½ΠΎ, ΠΊΠ°ΠΊ ΠΌΠΎΠΆΠ΅Ρ ΠΏΠΎΠΊΠ°Π·Π°ΡΡΡΡ Ρ ΠΏΠ΅ΡΠ²ΠΎΠ³ΠΎ Π²Π·Π³Π»ΡΠ΄Π°. ΠΡΠ»ΠΈ ΠΏΠΎΠΈΡΠΊΠ°ΡΡ ΡΠΎΡΠΎ ΠΊΠΎΠΏΡΠΈΠ»ΡΠ½ΠΈ Π³ΠΎΡΡΡΠ΅Π³ΠΎ ΠΊΠΎΠΏΡΠ΅Π½ΠΈΡ Π² ΡΠ°Π·Π»ΠΈΡΠ½ΡΡ ΠΊΠΎΠ½ΡΡΡΡΠΊΡΠΈΡΡ , Π²ΠΈΠ΄Π½ΠΎ, ΡΡΠΎ Π½Π΅ΠΎΠ±Ρ ΠΎΠ΄ΠΈΠΌΠΎ ΠΏΡΠΈΠ½ΠΈΠΌΠ°ΡΡ Π²ΠΎ Π²Π½ΠΈΠΌΠ°Π½ΠΈΠ΅ Π½Π΅ΡΠΊΠΎΠ»ΡΠΊΠΎ ΠΎΡΠ½ΠΎΠ²Π½ΡΡ ΠΏΡΠ°Π²ΠΈΠ», ΠΊΠΎΡΠΎΡΡΠ΅ ΠΎΠ±ΡΠ·Π°ΡΠ΅Π»ΡΠ½Ρ Π΄Π»Ρ ΠΈΡΠΏΠΎΠ»Π½Π΅Π½ΠΈΡ. ΠΠ°ΠΏΡΠΈΠΌΠ΅Ρ, Π²Π°ΠΆΠ½ΠΎ ΡΠ΄Π΅Π»Π°ΡΡ Π΅ΠΌΠΊΠΎΡΡΡ Π΄Π»Ρ ΡΡΠ΅ΠΊΠ°Π½ΠΈΡ ΠΆΠΈΡΠ°, ΠΈΠ½Π°ΡΠ΅ Π±ΡΠ΄ΡΡ ΠΎΠ±ΡΠ°Π·ΠΎΠ²ΡΠ²Π°ΡΡΡΡ ΠΊΠ°Π½ΡΠ΅ΡΠΎΠ³Π΅Π½Ρ, Π΄Π΅Π»Π°ΡΡΠΈΠ΅ ΠΏΡΠΎΠ΄ΡΠΊΡ Π½Π΅ ΡΠ°ΠΊΠΈΠΌ ΡΠΆ ΠΏΠΎΠ»Π΅Π·Π½ΡΠΌ.
ΠΠΎΠΏΡΠΈΠ»ΡΠ½Ρ, ΡΠ΄Π΅Π»Π°Π½Π½Π°Ρ ΡΠ²ΠΎΠΈΠΌΠΈ ΡΡΠΊΠ°ΠΌΠΈ ΠΌΠΎΠΆΠ΅Ρ Π±ΡΡΡ ΠΊΠ°ΠΊ ΠΏΠ΅ΡΠ΅Π½ΠΎΡΠ½Π°Ρ, ΡΠ°ΠΊ ΠΈ Π² Π²ΠΈΠ΄Π΅ ΠΊΠΎΠ½ΡΡΡΡΠΊΡΠΈΠΈ, ΠΊΠΎΡΠΎΡΠ°Ρ Π²ΡΠ΅Π³Π΄Π° Π±ΡΠ΄Π΅Ρ ΡΠ°ΡΠΏΠΎΠ»Π°Π³Π°ΡΡΡΡ Π½Π° ΠΎΠ΄Π½ΠΎΠΌ ΠΌΠ΅ΡΡΠ΅. ΠΠ°ΠΆΠ½ΠΎ ΡΠΎΠ»ΡΠΊΠΎ ΠΏΠΎΠ½ΡΡΡ ΠΏΡΠΈΠ½ΡΠΈΠΏ ΡΠ°Π±ΠΎΡΡ Π΄Π»Ρ ΡΡΠΏΠ΅ΡΠ½ΠΎΠ³ΠΎ ΠΈΠ·Π³ΠΎΡΠΎΠ²Π»Π΅Π½ΠΈΡ. Π§Π°ΡΠ΅ Π²ΡΠ΅Π³ΠΎ ΠΈΡΠΏΠΎΠ»ΡΠ·ΡΠ΅ΡΡΡ ΠΌΠ΅ΡΠ°Π»Π»ΠΈΡΠ΅ΡΠΊΠΈΠΉ ΡΠΈΠ»ΠΈΠ½Π΄Ρ, ΠΊΠΎΡΠΎΡΡΠΉ ΡΡΠ°Π²ΠΈΡΡΡ ΠΈΠ»ΠΈ ΠΏΠΎΠ΄Π²Π΅ΡΠΈΠ²Π°Π΅ΡΡΡ Π½Π°Π΄ ΠΈΡΡΠΎΡΠ½ΠΈΠΊΠΎΠΌ ΠΎΠ³Π½Ρ (ΠΏΠ»ΠΈΡΠ°, ΠΊΠΎΡΡΡΡ).
ΠΠΎΠ³Π΄Π° ΠΊΠΎΠΏΡΠΈΠ»ΡΠ½Ρ ΠΏΠΎΠΌΠ΅ΡΠ°Π΅ΡΡΡ Π½Π°Π΄ ΠΎΠ³Π½ΡΠΌ, Π΅Π³ΠΎ Π·Π°Π΄Π°ΡΠ° Π½Π°Π³ΡΠ΅ΡΡ ΠΎΠΏΠΈΠ»ΠΊΠΈ, ΠΊΠΎΡΠΎΡΡΠ΅ Π½Π°Ρ ΠΎΠ΄ΡΡΡΡ Π² ΡΠ°ΠΌΠΎΠΌ Π½ΠΈΠ·Ρ. ΠΠ½ΠΈ Π½Π°ΡΠΈΠ½Π°ΡΡ ΠΎΠ±ΡΠ³Π»ΠΈΠ²Π°ΡΡΡΡ ΠΈ Π²ΡΠ΄Π΅Π»ΡΡΡ Π΄ΡΠΌ, ΠΊΠΎΡΠΎΡΡΠΉ ΠΈ ΠΏΡΠΈΠ΄Π°ΡΡ ΡΠ°ΠΊΠΎΠΉ Π°ΡΠΎΠΌΠ°Ρ ΠΏΡΠΎΠ΄ΡΠΊΡΠ°ΠΌ.
ΠΠ°ΠΆΠ½ΠΎ, ΡΡΠΎΠ±Ρ ΠΏΠΈΡΠ° Π½Π°Ρ ΠΎΠ΄ΠΈΠ»Π°ΡΡ Π² ΡΠ°ΠΌΠΎΠΌ Π²Π΅ΡΡ Ρ, Π° ΠΏΠΎΠ΄ Π½Π΅ΠΉ Π½Π°Ρ ΠΎΠ΄ΠΈΠ»Π°ΡΡ ΡΠΏΠ΅ΡΠΈΠ°Π»ΡΠ½Π°Ρ Π΅ΠΌΠΊΠΎΡΡΡ Π΄Π»Ρ ΡΡΠ΅ΠΊΠ°Π½ΠΈΡ ΠΆΠΈΡΠ°, Π΄Π»Ρ ΡΠΎΠ³ΠΎ, ΡΡΠΎΠ±Ρ ΠΎΠ½ Π½Π΅ ΠΏΠΎΠΏΠ°Π΄Π°Π» Π½Π° ΡΠ³Π»ΠΈ. ΠΡΠΈ ΡΡΠΎΠΌ Π½Π΅ΠΎΠ±Ρ ΠΎΠ΄ΠΈΠΌΠΎ ΠΎΠ±Π΅ΡΠΏΠ΅ΡΠΈΡΡ Π³Π΅ΡΠΌΠ΅ΡΠΈΡΠ½ΠΎΡΡΡ ΡΠΈΠ»ΠΈΠ½Π΄ΡΠ°, ΡΡΠΎΠ±Ρ Π²ΠΎΠ·Π΄ΡΡ ΡΠ½Π°ΡΡΠΆΠΈ Π½Π΅ ΠΏΡΠΎΠ½ΠΈΠΊΠ°Π» Π²Π½ΡΡΡΡ, Π½ΠΎ Π΅Π³ΠΎ ΠΈΠ·Π»ΠΈΡΠΊΠΈ ΠΌΠΎΠ³Π»ΠΈ Π²ΡΡ ΠΎΠ΄ΠΈΡΡ Π½Π°ΡΡΠΆΡ.
ΠΠ·Π³ΠΎΡΠΎΠ²Π»Π΅Π½ΠΈΠ΅ ΠΊΠΎΠΏΡΠΈΠ»ΡΠ½ΠΈ ΡΠ²ΠΎΠΈΠΌΠΈ ΡΡΠΊΠ°ΠΌΠΈ
ΠΠ»Ρ ΡΡΠΎΠ³ΠΎ ΠΈΡΠΏΠΎΠ»ΡΠ·ΡΡΡΡΡ Π»ΡΠ±ΡΠ΅ ΠΏΠΎΠ΄ΡΡΡΠ½ΡΠ΅ ΡΡΠ΅Π΄ΡΡΠ²Π°. ΠΠ΅Π΄ΠΈΡΠΈΠ½ΡΠΊΠΈΠ΅ Π±ΠΈΠΊΡΡ, ΡΠ΅ΡΠ΅ΡΠΊΠΈ, Π΄Π΅ΡΠ΅Π²ΡΠ½Π½ΡΠ΅ Π±ΠΎΡΠΊΠΈ, Π²Π΅Π΄ΡΠ° ΠΈ ΠΊΠ°ΡΡΡΡΠ»ΠΈ. ΠΡΠ»ΠΈ ΠΏΡΠ°Π²ΠΈΠ»ΡΠ½ΠΎ ΠΏΠΎΠ½ΡΡΡ ΠΏΡΠΈΠ½ΡΠΈΠΏ ΡΠ°Π±ΠΎΡΡ ΠΊΠΎΠΏΡΠΈΠ»ΡΠ½ΠΈ β ΠΈΠ·Π³ΠΎΡΠΎΠ²Π»Π΅Π½ΠΈΠ΅ Π½Π΅ ΡΠΎΡΡΠ°Π²ΠΈΡ ΡΡΡΠ΄Π° ΠΈ ΠΌΠΎΠΆΠ΅Ρ ΠΏΡΠΈΠΌΠ΅Π½ΡΡΡΡΡ Π°Π±ΡΠΎΠ»ΡΡΠ½ΠΎ Π»ΡΠ±Π°Ρ ΡΡΠ²Π°ΡΡ.
ΠΠΎΠΌΠΈΠΌΠΎ ΠΏΡΠΈΠΌΠ΅Π½Π΅Π½ΠΈΡ ΠΏΠΎΠ΄ΡΡΡΠ½ΡΡ ΡΡΠ΅Π΄ΡΡΠ² Π²ΠΎΠ·ΠΌΠΎΠΆΠ½ΠΎ ΠΈΡΠΏΠΎΠ»ΡΠ·ΠΎΠ²Π°ΡΡ ΠΌΠ΅ΡΠ°Π»Π» Π² ΠΏΠ»Π°ΡΡΠΈΠ½Π°Ρ , Π½ΠΎ ΠΏΡΠΈΠ΄ΡΡΡΡ ΠΏΡΠΈΠΌΠ΅Π½ΡΡΡ ΠΈΠ½ΡΡΡΡΠΌΠ΅Π½Ρ Π΄Π»Ρ Π½Π°ΡΠ΅Π·ΠΊΠΈ ΠΈ ΠΎΠ±ΡΠ°Π±ΠΎΡΠΊΠΈ. Π§Π΅ΡΡΠ΅ΠΆΠΈ ΠΊΠΎΠΏΡΠΈΠ»ΡΠ½ΠΈ ΡΠ΄Π΅Π»Π°ΡΡ Π½Π΅ ΡΠ»ΠΎΠΆΠ½ΠΎ, ΠΏΡΠΈ ΡΠΎΠΌ, ΡΡΠΎ Π² ΠΈΠ½ΡΠ΅ΡΠ½Π΅ΡΠ΅ ΠΌΠ½ΠΎΠΆΠ΅ΡΡΠ²ΠΎ ΡΠ°Π·Π»ΠΈΡΠ½ΡΡ Π²ΠΈΠ΄ΠΎΠ² ΠΊΠΎΠΏΡΠΈΠ»Π΅Π½ ΠΈ ΠΌΠΎΠΆΠ½ΠΎ Π°Π΄Π°ΠΏΡΠΈΡΠΎΠ²Π°ΡΡ ΠΎΠ΄ΠΈΠ½ ΠΈΠ· ΡΠ΅ΡΡΠ΅ΠΆΠ΅ΠΉ ΠΏΠΎΠ΄ ΡΠ²ΠΎΠΈ ΡΠ°Π·ΠΌΠ΅ΡΡ.
ΠΠΌΠ΅Π΅ΡΡΡ Π½Π΅ΡΠΊΠΎΠ»ΡΠΊΠΎ ΠΏΠΎΠ»ΠΎΠΆΠΈΡΠ΅Π»ΡΠ½ΡΡ ΡΠ°ΠΊΡΠΎΡΠΎΠ², ΠΊΠΎΡΠΎΡΡΠ΅ ΡΠΈΠ»ΡΠ½ΠΎ Π²Π»ΠΈΡΡΡ Π½Π° Π²ΡΠ±ΠΎΡ Π΄ΠΎΠΌΠ°ΡΠ½Π΅ΠΉ ΠΊΠΎΠΏΡΠΈΠ»ΡΠ½ΠΈ ΡΠ΄Π΅Π»Π°Π½Π½ΠΎΠΉ ΡΠ²ΠΎΠΈΠΌΠΈ ΡΡΠΊΠ°ΠΌΠΈ. ΠΠ°ΠΏΡΠΈΠΌΠ΅Ρ, ΠΊΠΎΠ½ΡΡΡΡΠΊΡΠΈΡ ΠΌΠΎΠΆΠ΅Ρ Π±ΡΡΡ Π°Π±ΡΠΎΠ»ΡΡΠ½ΠΎ Π»ΡΠ±ΠΎΠΉ, ΠΈΠΌΠ΅ΡΡ Π½Π΅ΡΠΊΠΎΠ»ΡΠΊΠΎ ΡΡΠΎΠ²Π½Π΅ΠΉ, Π±ΡΡΡ ΠΏΠ΅ΡΠ΅Π½ΠΎΡΠ½ΠΎΠΉ ΠΈΠ»ΠΈ ΡΡΠ°ΡΠΈΠΎΠ½Π°ΡΠ½ΠΎΠΉ.
ΠΠ°ΡΡΠ°ΡΡ Π½Π° ΠΈΠ·Π³ΠΎΡΠΎΠ²Π»Π΅Π½ΠΈΠ΅ ΡΠ²ΠΎΠΈΠΌΠΈ ΡΡΠΊΠ°ΠΌΠΈ ΠΌΠΈΠ½ΠΈΠΌΠ°Π»ΡΠ½ΡΠ΅ ΠΈ Π½Π΅ ΡΡΠ΅Π±ΡΡΡ ΠΎΡΠΎΠ±ΡΡ Π²Π»ΠΎΠΆΠ΅Π½ΠΈΠΉ, ΠΏΠΎΡΡΠΎΠΌΡ ΠΌΠ½ΠΎΠ³ΠΈΠ΅ ΠΎΡΠ΄Π°ΡΡ ΠΏΡΠ΅Π΄ΠΏΠΎΡΡΠ΅Π½ΠΈΠ΅ ΠΈΠ·Π³ΠΎΡΠΎΠ²ΠΈΡΡ ΠΊΠΎΠΏΡΠΈΠ»ΡΠ½Ρ ΡΠ°ΠΌΠΎΡΡΠΎΡΡΠ΅Π»ΡΠ½ΠΎ.
ΠΠ»Ρ ΠΌΠ°Π»ΠΎΠ³ΠΎ Π±ΠΈΠ·Π½Π΅ΡΠ° ΠΈΠ»ΠΈ Π΄Π»Ρ ΡΠ΅Π΄ΠΊΠΎΠ³ΠΎ ΠΈΡΠΏΠΎΠ»ΡΠ·ΠΎΠ²Π°Π½ΠΈΡ Π΄ΠΎΡΡΠ°ΡΠΎΡΠ½ΠΎ ΠΌΠ°Π»ΡΡ ΡΠ°Π·ΠΌΠ΅ΡΠΎΠ². Π Π²ΠΎΡ Π΄Π»Ρ Π±ΠΎΠ»ΡΡΠΎΠΉ Π·Π°Π³ΡΡΠ·ΠΊΠΈ ΠΌΡΡΠ° ΠΏΠΎΡΡΠ΅Π±ΡΠ΅ΡΡΡ ΠΈΡΠΏΠΎΠ»ΡΠ·ΠΎΠ²Π°Π½ΠΈΠ΅ Π±ΠΎΠ»ΡΡΠΎΠΉ, ΡΡΠ°ΡΠΈΠΎΠ½Π°ΡΠ½ΠΎΠΉ ΠΊΠΎΠΏΡΠΈΠ»ΡΠ½ΠΈ, ΠΊΠΎΡΠΎΡΠ°Ρ ΠΌΠΎΠΆΠ΅Ρ Π±ΡΡΡ Π²ΡΠΏΠΎΠ»Π½Π΅Π½Π° ΠΈΠ· Π½Π΅ΡΠΊΠΎΠ»ΡΠΊΠΈΡ ΠΌΠ΅ΡΠ°Π»Π»ΠΈΡΠ΅ΡΠΊΠΈΡ Π»ΠΈΡΡΠΎΠ² ΠΈΠ»ΠΈ ΠΊΠΈΡΠΏΠΈΡΠ΅ΠΉ.
ΠΡΠΆΠ½ΠΎ ΠΎΠ±ΡΠ°ΡΠΈΡΡ Π²Π½ΠΈΠΌΠ°Π½ΠΈΠ΅ Π½Π° ΡΠΎ, ΡΡΠΎ ΠΎΡ ΠΊΠΎΠΏΡΠΈΠ»ΡΠ½ΠΈ Π±ΡΠ΄Π΅Ρ ΠΈΠ΄ΡΠΈ ΠΌΠ½ΠΎΠ³ΠΎ Π΄ΡΠΌΠ°, ΠΏΠΎΡΡΠΎΠΌΡ Π½Π΅ ΡΡΠΎΠΈΡ ΡΠ°Π·ΠΌΠ΅ΡΠ°ΡΡ Π΅Ρ Π²Π±Π»ΠΈΠ·ΠΈ Π΄ΠΎΠΌΠ° ΠΈΠ»ΠΈ ΠΌΠ΅ΡΡ, Π³Π΄Π΅ ΡΠΎΠ΄Π΅ΡΠΆΠ°ΡΡΡ ΠΆΠΈΠ²ΠΎΡΠ½ΡΠ΅.
ΠΠ½ΠΎΠ³ΠΈΠ΅ Π·Π°Π΄Π°ΡΡΡΡ Π²ΠΎΠΏΡΠΎΡΠΎΠΌ: Β«ΠΊΠ°ΠΊΡΡ ΡΠ΅ΠΏΡ Π±ΡΠ°ΡΡ Π΄Π»Ρ ΠΊΠΎΠΏΡΠ΅Π½ΠΈΡ?Β». Π‘Π°ΠΌΡΠΉ Π»ΡΡΡΠΈΠΉ Π²ΡΠ±ΠΎΡ β ΡΡΠΎ ΡΠ΅ΠΏΠ° ΠΈΠ· ΠΊΡΡΡΠ°ΡΠ½ΠΈΠΊΠΎΠ² ΠΈ Π»ΠΈΡΡΠ²Π΅Π½Π½ΡΡ Π΄Π΅ΡΠ΅Π²ΡΠ΅Π². ΠΠ°ΠΏΡΠΈΠΌΠ΅Ρ, ΠΎΠ»ΡΡ Π°, ΡΠ±Π»ΠΎΠ½Ρ, Π΄ΡΠ±, Π³ΡΡΡΠ°, ΠΌΠΎΠΆΠΆΠ΅Π²Π΅Π»ΡΠ½ΠΈΠΊ ΠΈ Π²ΠΈΡΠ½Ρ. ΠΡΠΎ ΡΠ°ΠΌΡΠ΅ ΠΏΠΎΠΏΡΠ»ΡΡΠ½ΡΠ΅ Π²ΠΈΠ΄Ρ, ΠΊΠΎΡΠΎΡΡΠ΅ ΡΠ°ΡΡΠΎ ΠΈΡΠΏΠΎΠ»ΡΠ·ΡΡΡΡΡ Π΄Π»Ρ ΠΊΠΎΠΏΡΠ΅Π½ΠΈΡ ΠΈ ΠΈΡ Π΄ΠΎΠ²ΠΎΠ»ΡΠ½ΠΎ ΠΏΡΠΎΡΡΠΎ ΠΏΡΠΈΠΎΠ±ΡΠ΅ΡΡΠΈ Π² Π»ΡΠ±ΡΡ ΠΊΠΎΠ»ΠΈΡΠ΅ΡΡΠ²Π°Ρ .
ΠΠ°ΠΆΠ½ΠΎ ΠΎΠ±ΡΠ°ΡΠ°ΡΡ Π²Π½ΠΈΠΌΠ°Π½ΠΈΠ΅ Π½Π° ΡΠ°Π·ΠΌΠ΅ΡΡ ΡΠ΅ΠΏΡ, ΡΠ°ΠΌΠ°Ρ ΠΊΡΡΠΏΠ½Π°Ρ Π΄ΠΎΠ»ΠΆΠ½Π° Π±ΡΡΡ Π½Π΅ Π±ΠΎΠ»ΡΡΠ΅ 10 ΡΠ°Π½ΡΠΈΠΌΠ΅ΡΡΠΎΠ². ΠΠΎΠ»ΡΡΠΈΠΉ ΡΠ°Π·ΠΌΠ΅Ρ ΡΠ΅ΠΏΡ Π±ΡΠ΄Π΅Ρ ΡΡΡΠ΄Π½Π΅Π΅ ΠΎΠ±ΡΠ³Π»ΠΈΡΡ, ΡΡΠΎ Π·Π°ΠΉΠΌΡΡ Π±ΠΎΠ»ΡΡΠ΅ Π²ΡΠ΅ΠΌΠ΅Π½ΠΈ ΠΈ ΡΠΎΠΎΡΠ²Π΅ΡΡΡΠ²Π΅Π½Π½ΠΎ ΡΠ²Π΅Π»ΠΈΡΠΈΡ Π²ΡΠ΅ΠΌΡ ΠΏΡΠΈΠ³ΠΎΡΠΎΠ²Π»Π΅Π½ΠΈΡ.
ΠΠΎΡΡΡΠ°Ρ ΠΌΠΈΠ½ΠΈ-ΠΊΠΎΠΏΡΠΈΠ»ΡΠ½Ρ
ΠΡ ΠΈΡΠΏΠΎΠ»ΡΠ·ΡΡΡ Π² ΡΡΠ»ΠΎΠ²ΠΈΡΡ , ΠΊΠΎΠ³Π΄Π° Π½Π΅Ρ Π²ΠΎΠ·ΠΌΠΎΠΆΠ½ΠΎΡΡΠΈ ΡΠ΄Π΅Π»Π°ΡΡ ΠΊΠΎΠΏΡΠΈΠ»ΡΠ½Ρ Π½Π° ΡΠ»ΠΈΡΠ΅. ΠΡΠΈΠΌΠ΅Π½ΡΠ΅ΡΡΡ Π½Π° ΠΊΡΡ Π½Π΅ Π΄Π»Ρ ΠΊΠΎΠΏΡΠ΅Π½ΠΈΡ ΠΌΠ°Π»ΡΡ ΠΎΠ±ΡΠ΅ΠΌΠΎΠ² ΠΏΠΈΡΠΈ. ΠΠ½Π° ΠΈΠΌΠ΅Π΅Ρ Π΄ΠΎΡΡΠ°ΡΠΎΡΠ½ΠΎ ΠΌΠ°Π»ΡΠ΅ ΡΠ°Π·ΠΌΠ΅ΡΡ Π΄Π»Ρ ΡΠΎΠ³ΠΎ, ΡΡΠΎΠ±Ρ Ρ Π»Π΅Π³ΠΊΠΎΡΡΡΡ ΠΏΠΎΠΌΠ΅ΡΡΠΈΡΡΡΡ Π½Π° Π³Π°Π·ΠΎΠ²ΠΎΠΉ ΠΏΠ»ΠΈΡΠ΅ ΠΈ Π½Π΅ ΠΌΠ΅ΡΠ°ΡΡ. ΠΡ ΡΠ°ΠΊΠΆΠ΅ ΠΌΠΎΠΆΠ½ΠΎ ΠΈΠ·Π³ΠΎΡΠΎΠ²ΠΈΡΡ ΡΠ²ΠΎΠΈΠΌΠΈ ΡΡΠΊΠ°ΠΌΠΈ ΠΈΠ»ΠΈ ΠΊΡΠΏΠΈΡΡ Π² ΡΠΏΠ΅ΡΠΈΠ°Π»ΠΈΠ·ΠΈΡΠΎΠ²Π°Π½Π½ΠΎΠΌ ΠΌΠ°Π³Π°Π·ΠΈΠ½Π΅.
ΠΠΌΠ΅Π½Π½ΠΎ ΠΌΠΈΠ½ΠΈ ΠΊΠΎΠΏΡΠΈΠ»ΡΠ½Ρ ΡΠ΅ΠΉΡΠ°Ρ ΡΡΠ°Π»Π° ΡΠ°ΠΌΠΎΠΉ ΠΏΠΎΠΏΡΠ»ΡΡΠ½ΠΎΠΉ, Π²Π΅Π΄Ρ Π΅Ρ ΡΠ΄ΠΎΠ±Π½ΠΎ Π±ΡΠ°ΡΡ Ρ ΡΠΎΠ±ΠΎΠΉ Π½Π° ΠΎΡ ΠΎΡΡ ΠΈ ΡΡΠ±Π°Π»ΠΊΡ. ΠΠ½Π° Π½Π΅ Π·Π°Π½ΠΈΠΌΠ°Π΅Ρ ΠΌΠ½ΠΎΠ³ΠΎ ΠΌΠ΅ΡΡΠ°, Π±ΡΡΡΡΠΎ ΠΎΡΡΡΠ²Π°Π΅Ρ. ΠΡΠ»ΠΈ ΠΌΠΈΠ½ΠΈ ΠΊΠΎΠΏΡΠΈΠ»ΡΠ½Ρ ΡΠ΄Π΅Π»Π°Π½Π° ΡΠ²ΠΎΠΈΠΌΠΈ ΡΡΠΊΠ°ΠΌΠΈ, ΡΠΎ Π΅Π΅ ΠΌΠΎΠΆΠ½ΠΎ ΡΠ°Π·ΠΎΠ±ΡΠ°ΡΡ ΠΈ ΡΠΎΠ±ΡΠ°ΡΡ Π·Π°ΡΡΠ°ΡΠΈΠ²Π°Ρ ΠΌΠΈΠ½ΠΈΠΌΡΠΌ ΡΡΠΈΠ»ΠΈΠΉ ΠΈ Π²ΡΠ΅ΠΌΠ΅Π½ΠΈ.
Π’Π΅Ρ Π½ΠΈΠΊΠ° Π±Π΅Π·ΠΎΠΏΠ°ΡΠ½ΠΎΡΡΠΈ
ΠΠ»Ρ ΠΈΡΠΏΠΎΠ»ΡΠ·ΠΎΠ²Π°Π½ΠΈΡ ΠΊΠΎΠΏΡΠΈΠ»ΡΠ½ΠΈ Π½Π° ΠΊΡΡ Π½Π΅ Π²Π°ΠΆΠ½ΠΎ ΠΎΠ±Π΅Π·ΠΎΠΏΠ°ΡΠΈΡΡ ΡΠ΅Π±Ρ ΠΈ ΡΠ²ΠΎΠΈΡ Π±Π»ΠΈΠ·ΠΊΠΈΡ . ΠΠ»Ρ ΡΡΠΎΠ³ΠΎ Ρ ΡΡΡΡΠΎΠΉΡΡΠ²Π° Π΄ΠΎΠ»ΠΆΠ΅Π½ Π±ΡΡΡ ΠΎΡΠ²ΠΎΠ΄ Π»ΠΈΡΠ½Π΅Π³ΠΎ Π²ΠΎΠ·Π΄ΡΡ Π° (ΠΊΠ»Π°ΠΏΠ°Π½), Π½ΠΎ ΠΏΠΎΠΌΠΈΠΌΠΎ ΡΡΠΎΠ³ΠΎ ΠΎΠ±ΡΠ·Π°ΡΠ΅Π»Π΅Π½ Π²ΡΠ²ΠΎΠ΄ Π²ΠΎΠ·Π΄ΡΡ Π° Π² Π²ΡΡΡΠΆΠΊΡ ΠΈΠ»ΠΈ ΠΎΠΊΠ½ΠΎ. ΠΠ±ΡΡΠ½ΠΎ ΠΈΡΠΏΠΎΠ»ΡΠ·ΡΠ΅ΡΡΡ Π΄Π»ΠΈΠ½Π½ΡΠΉ ΡΠ»Π°Π½Π³, ΠΊΠΎΡΠΎΡΡΠΉ ΠΏΡΠΈΡΠΎΠ΅Π΄ΠΈΠ½ΡΡΡ ΠΊ ΠΊΠ»Π°ΠΏΠ°Π½Ρ. Π ΡΠ°ΠΌΠΎ ΠΏΠΎΠΌΠ΅ΡΠ΅Π½ΠΈΠ΅ Π΄ΠΎΠ»ΠΆΠ½ΠΎ Π±ΡΡΡ Ρ ΠΎΡΠΎΡΠΎ ΠΏΡΠΎΠ²Π΅ΡΡΠΈΠ²Π°Π΅ΠΌΡΠΌ.
Π‘ΠΎΠ±Π»ΡΠ΄Π΅Π½ΠΈΠ΅ ΡΠ»Π΅ΠΌΠ΅Π½ΡΠ°ΡΠ½ΠΎΠΉ ΡΠ΅Ρ Π½ΠΈΠΊΠΈ Π±Π΅Π·ΠΎΠΏΠ°ΡΠ½ΠΎΡΡΠΈ ΠΏΠΎΠ·Π²ΠΎΠ»ΠΈΡ ΡΠΏΠΎΠΊΠΎΠΉΠ½ΠΎ Π·Π°Π½ΠΈΠΌΠ°ΡΡΡΡ ΠΊΠΎΠΏΡΠ΅Π½ΠΈΠ΅ΠΌ Π² Π΄ΠΎΠΌΠ°ΡΠ½ΠΈΡ ΡΡΠ»ΠΎΠ²ΠΈΡΡ Π½Π΅ Π±ΠΎΡΡΡ Π·Π° ΡΠ΅Π±Ρ ΠΈ ΡΠ²ΠΎΠΈΡ Π±Π»ΠΈΠ·ΠΊΠΈΡ . Π Π΄Π»Ρ Π΅ΡΡ Π±ΠΎΠ»ΡΡΠ΅ΠΉ Π±Π΅Π·ΠΎΠΏΠ°ΡΠ½ΠΎΡΡΠΈ Π² ΡΠΏΠ΅ΡΠΈΠ°Π»ΡΠ½ΡΡ ΠΌΠ°Π³Π°Π·ΠΈΠ½Π°Ρ ΠΌΠΎΠΆΠ½ΠΎ Π½Π°ΠΉΡΠΈ ΡΠ»Π΅ΠΊΡΡΠΈΡΠ΅ΡΠΊΠΈΠ΅ ΠΊΠΎΠΏΡΠΈΠ»ΡΠ½ΠΈ.
ΠΠ»Ρ ΡΠ²Π΅Π»ΠΈΡΠ΅Π½ΠΈΡ ΠΏΡΠΎΠΈΠ·Π²ΠΎΠ΄ΠΈΡΠ΅Π»ΡΠ½ΠΎΡΡΠΈ ΠΈΡΠΏΠΎΠ»ΡΠ·ΡΡΡ ΠΏΡΠΈΠ½ΡΠ΄ΠΈΡΠ΅Π»ΡΠ½ΡΡ Π·Π°ΠΊΠ°ΡΠΊΡ Π΄ΡΠΌΠ°. ΠΠ»Ρ ΡΡΠΎΠ³ΠΎ Π½ΡΠΆΠ΅Π½ ΠΊΠΎΠΌΠΏΡΠ΅ΡΡΠΎΡ ΠΈΠ»ΠΈ Π²Π΅Π½ΡΠΈΠ»ΡΡΠΎΡ, ΠΊΠΎΡΠΎΡΡΠΉ Π±ΡΠ΄Π΅Ρ ΠΈΡΠΊΡΡΡΡΠ²Π΅Π½Π½ΠΎ ΡΠ²Π΅Π»ΠΈΡΠΈΠ²Π°ΡΡ ΠΊΠΎΠ»ΠΈΡΠ΅ΡΡΠ²ΠΎ Π΄ΡΠΌΠ° ΠΏΠΎΡΡΡΠΏΠ°ΡΡΠ΅Π³ΠΎ Π²Π½ΡΡΡΡ ΠΊΠΎΠΏΡΠΈΠ»ΡΠ½ΠΈ. ΠΡΠΎ ΡΠ²Π΅Π»ΠΈΡΠΈΡ ΠΏΡΠΎΠ³ΡΠ΅Π²Π°Π΅ΠΌΠΎΡΡΡ ΠΏΡΠΎΠ΄ΡΠΊΡΠΎΠ² ΠΈ Π°ΡΠΎΠΌΠ°Ρ Π΄ΡΠΌΠ°.
ΠΡΠΎΠ³
ΠΠΎΠΌΠ°ΡΠ½ΡΡ ΠΊΠΎΠΏΡΠΈΠ»ΡΠ½Ρ ΠΏΠΎΠ·Π²ΠΎΠ»ΡΠ΅Ρ ΠΈΠ·Π³ΠΎΡΠ°Π²Π»ΠΈΠ²Π°ΡΡ ΠΌΡΡΠ½ΡΠ΅ Π΄Π΅Π»ΠΈΠΊΠ°ΡΠ΅ΡΡ Π½Π° Π»ΡΠ±ΠΎΠΉ Π²ΠΊΡΡ, Π° ΡΠ°ΠΊΠΆΠ΅ ΠΈΠ½ΠΎΠ³Π΄Π° ΠΈ Π΄Π»Ρ ΠΌΠ°Π»ΠΎΠ³ΠΎ Π±ΠΈΠ·Π½Π΅ΡΠ°. ΠΠΎΠΌΠΈΠΌΠΎ ΠΌΡΡΠΎΠΏΡΠΎΠ΄ΡΠΊΡΠΎΠ² Π΄Π»Ρ ΠΊΠΎΠΏΡΠ΅Π½ΠΈΡ ΠΈΡΠΏΠΎΠ»ΡΠ·ΡΡΡ ΡΡΡΠΊΡΡ ΠΈ ΠΎΠ²ΠΎΡΠΈ. ΠΠ°ΠΏΡΠΈΠΌΠ΅Ρ, Π°Π±ΡΠΈΠΊΠΎΡΡ, Π±Π°ΠΊΠ»Π°ΠΆΠ°Π½Ρ, ΠΊΠ°ΡΡΠΎΡΠ΅Π»Ρ, ΡΠ»ΠΈΠ²Ρ, ΡΠ±Π»ΠΎΠΊΠΈ ΠΈ Π΄Π°ΠΆΠ΅ Π±Π°Π½Π°Π½Ρ.
Π Π±Π»Π°Π³ΠΎΡΠΎΠ΄Π½ΡΠ΅ ΡΠΎΡΡΠ° Π³ΡΠΈΠ±ΠΎΠ² ΠΎΡ ΠΎΡΠ½ΠΎ ΠΏΠΎΠΊΡΠΏΠ°ΡΡ ΡΠ΅ΡΡΠΎΡΠ°Π½Ρ Π΄Π»Ρ ΡΠΎΠ·Π΄Π°Π½ΠΈΡ ΡΠ½ΠΈΠΊΠ°Π»ΡΠ½ΡΡ Π±Π»ΡΠ΄. ΠΡΠΈ ΠΈΠ·Π³ΠΎΡΠΎΠ²Π»Π΅Π½ΠΈΠΈ ΡΠ²ΠΎΠΈΠΌΠΈ ΡΡΠΊΠ°ΠΌΠΈ β ΡΠ°Π·ΠΌΠ΅ΡΡ ΠΊΠΎΠΏΡΠΈΠ»ΡΠ½ΠΈ, Π΅Ρ ΡΠΎΡΠΌΠ° ΠΈ Π²Π½Π΅ΡΠ½ΠΈΠΉ Π²ΠΈΠ΄ Π·Π°Π²ΠΈΡΡΡ ΡΠΎΠ»ΡΠΊΠΎ ΠΎΡ ΡΠ°Π½ΡΠ°Π·ΠΈΠΈ ΠΈ Π½Π°Π»ΠΈΡΠΈΡ ΠΈΠ½ΡΡΡΡΠΌΠ΅Π½ΡΠΎΠ², Π° ΡΠ°ΠΊΠΆΠ΅ ΠΆΠ΅Π»Π°Π½ΠΈΡ.
Π€ΠΎΡΠΎ ΠΊΠΎΠΏΡΠΈΠ»ΡΠ½ΠΈ Π³ΠΎΡΡΡΠ΅Π³ΠΎ ΠΊΠΎΠΏΡΠ΅Π½ΠΈΡ
ΠΠΎΡΡ ΠΎΠΏΡΠ±Π»ΠΈΠΊΠΎΠ²Π°Π½: 24.11
ΠΡΠΈΡΠΎΠ΅Π΄ΠΈΠ½ΡΠΉΡΠ΅ΡΡ ΠΊ ΠΎΠ±ΡΡΠΆΠ΄Π΅Π½ΠΈΡ: Copyright Β© 2020 LandshaftDizajn.Ru — ΠΏΠΎΡΡΠ°Π» ΠΎ Π»Π°Π½Π΄ΡΠ°ΡΡΠ½ΠΎΠΌ Π΄ΠΈΠ·Π°ΠΉΠ½Π΅ β1 ***Π‘Π°ΠΉΡ ΠΏΡΠΈΠ½Π°Π΄Π»Π΅ΠΆΠΈΡ ΠΠ°ΡΠΈΠΈ ΠΠΎΠ·Π°ΠΊΡΠ΅ΡΡΠ΅ΠΆΠΈ Ρ ΡΠ°Π·ΠΌΠ΅ΡΠ°ΠΌΠΈ, Π²ΠΈΠ΄Π΅ΠΎ ΠΈΠ·Π³ΠΎΡΠΎΠ²Π»Π΅Π½ΠΈΡ
ΠΡΠ±ΠΈΡΠ΅Π»ΡΠΌ ΠΊΠΎΠΏΡΠ΅Π½ΡΡ ΠΈΠ·ΡΡΠΊΠΎΠ², ΠΊΠΎΡΠΎΡΡΠ΅ ΡΠ°Π·ΠΎΡΠ°ΡΠΎΠ²Π°Π»ΠΈΡΡ Π² ΠΏΠΎΠΊΡΠΏΠ½ΡΡ ΠΈΠ·Π΄Π΅Π»ΠΈΡΡ , Π½Π΅ΠΏΡΠ΅ΠΌΠ΅Π½Π½ΠΎ Π½ΡΠΆΠ½Π° ΡΠΎΠ±ΡΡΠ²Π΅Π½Π½Π°Ρ Π½Π΅Π±ΠΎΠ»ΡΡΠ°Ρ ΠΊΠΎΠΏΡΠΈΠ»ΡΠ½Ρ. Π‘Π°ΠΌΠ° ΡΠ΅Ρ Π½ΠΎΠ»ΠΎΠ³ΠΈΡ ΠΊΠΎΠΏΡΠ΅Π½ΠΈΡ, ΠΎΡΠΎΠ±Π΅Π½Π½ΠΎ Π³ΠΎΡΡΡΠ΅Π³ΠΎ, Π½ΠΈΡΡΡΡ Π½Π΅ ΡΠ»ΠΎΠΆΠ½Π΅Π΅ ΠΏΡΠΈΠ³ΠΎΡΠΎΠ²Π»Π΅Π½ΠΈΡ ΡΠ°ΡΠ»ΡΠΊΠΎΠ² ΠΈ Π²ΠΏΠΎΠ»Π½Π΅ Π΄ΠΎΡΡΡΠΏΠ½Π° ΠΊΠ°ΠΆΠ΄ΠΎΠΌΡ. Π£ΡΡΡΠΎΠΉΡΡΠ²ΠΎ ΠΌΠΎΠΆΠ½ΠΎ Ρ Π»Π΅Π³ΠΊΠΎΡΡΡΡ ΠΊΡΠΏΠΈΡΡ, ΠΎΠ΄Π½Π°ΠΊΠΎ ΡΠ΄Π΅Π»Π°ΡΡ Π΅Π³ΠΎ ΡΠ²ΠΎΠΈΠΌΠΈ ΡΡΠΊΠ°ΠΌΠΈ Π±ΡΠ΄Π΅Ρ Π³ΠΎΡΠ°Π·Π΄ΠΎ ΠΏΡΠ°ΠΊΡΠΈΡΠ½Π΅ΠΉ ΠΈ Π²ΡΠ³ΠΎΠ΄Π½Π΅ΠΉ. ΠΡΠΈ Π²ΡΠ±ΠΎΡΠ΅ ΠΊΠΎΠΏΡΠΈΠ»ΡΠ½ΠΈ, ΡΡΠΎ ΠΏΡΠΈ ΠΏΠΎΠΊΡΠΏΠΊΠ΅, ΡΡΠΎ ΠΏΡΠΈ ΡΠ°ΠΌΠΎΡΡΠΎΡΡΠ΅Π»ΡΠ½ΠΎΠΌ ΠΈΠ·Π³ΠΎΡΠΎΠ²Π»Π΅Π½ΠΈΠΈ, Π½Π΅ΠΎΠ±Ρ ΠΎΠ΄ΠΈΠΌΠΎ ΠΏΡΠ°Π²ΠΈΠ»ΡΠ½ΠΎ Π²ΡΠ±ΡΠ°ΡΡ Π΅Π΅ ΡΠ°Π·ΠΌΠ΅ΡΡ. ΠΡ ΡΡΠΎΠ³ΠΎ Π·Π°Π²ΠΈΡΠΈΡ Π½Π΅ ΡΠΎΠ»ΡΠΊΠΎ ΠΏΡΠ°Π²ΠΈΠ»ΡΠ½ΠΎΡΡΡ ΠΏΡΠΎΡΠ΅ΡΡΠ° ΠΊΠΎΠΏΡΠ΅Π½ΠΈΡ, Π½ΠΎ ΠΈ ΠΊΠΎΠ»ΠΈΡΠ΅ΡΡΠ²ΠΎ Π½Π°ΡΡΡΠΈΠ²ΡΠΈΡ ΡΡ ΠΎΠΊΡΡΠΆΠ°ΡΡΠΈΡ . ΠΠ»Ρ ΡΡΠ΅Π΄Π½Π΅ΡΡΠ°ΡΠΈΡΡΠΈΡΠ΅ΡΠΊΠΎΠΉ ΡΠ΅ΠΌΡΠΈ ΠΏΠΎΠ΄ΡΡΠΈΡΠ°Π½Ρ Π½Π΅ΠΊΠΎΡΠΎΡΡΠ΅ ΡΠ΅ΠΊΠΎΠΌΠ΅Π½Π΄ΡΠ΅ΠΌΡΠ΅ Π·Π½Π°ΡΠ΅Π½ΠΈΡ: Π΄Π»ΠΈΠ½Ρ, Π²ΡΡΠΎΡΡ ΠΈ ΡΠΈΡΠΈΠ½Ρ ΠΊΠΎΠΏΡΠΈΠ»ΡΠ½ΠΈ Π΄Π»Ρ Π³ΠΎΡΡΡΠ΅Π³ΠΎ ΠΊΠΎΠΏΡΠ΅Π½ΠΈΡ.
Π Π°Π·ΠΌΠ΅ΡΡ
Π Π΅ΠΊΠΎΠΌΠ΅Π½Π΄ΡΠ΅ΠΌΠ°Ρ Π΄Π»ΠΈΠ½Π°
ΠΠΏΡΠ΅Π΄Π΅Π»ΡΠ΅ΡΡΡ ΠΏΡΠ΅Π΄ΠΏΠΎΠ»Π°Π³Π°Π΅ΠΌΡΠΌΠΈ ΡΠ°Π·ΠΌΠ΅ΡΠ°ΠΌΠΈ ΡΡΠ±Ρ, ΠΊΠΎΡΠΎΡΡΡ Π±ΡΠ΄ΡΡ ΠΊΠΎΠΏΡΠΈΡΡ Π² Π΄Π°Π»ΡΠ½Π΅ΠΉΡΠ΅ΠΌ. Π Π΅ΠΊΠΎΠΌΠ΅Π½Π΄ΡΠ΅ΡΡΡ Π²ΡΠ±ΠΈΡΠ°ΡΡ ΡΡΠ΅Π΄Π½ΠΈΠΉ ΡΠ°Π·ΠΌΠ΅Ρ Π΄Π»ΠΈΠ½Ρ ΠΊΠΎΠ½ΡΡΡΡΠΊΡΠΈΠΈ ΡΠ°Π²Π½ΡΠΉ ~ 450 ΠΌΠΌ.
Π¨ΠΈΡΠΈΠ½Π°
ΠΠ»Ρ ΠΏΠ°ΡΡ-ΡΡΠΎΠΉΠΊΠΈ ΡΡΠ΅Π΄Π½ΠΈΡ ΡΡΠ±ΠΎΠΊ, ΠΊΠΎΡΠΎΡΡΠ΅ Π΄ΠΎΠ»ΠΆΠ½Ρ Π»Π΅ΠΆΠ°ΡΡ ΡΠ²ΠΎΠ±ΠΎΠ΄Π½ΠΎ ΠΈ ΡΠ°Π²Π½ΠΎΠΌΠ΅ΡΠ½ΠΎ ΠΎΠ±ΠΆΠ°ΡΠΈΠ²Π°ΡΡΡΡ, ΡΠ΅ΠΊΠΎΠΌΠ΅Π½Π΄ΡΠ΅ΠΌΠ°Ρ ΡΠΈΡΠΈΠ½Π° ΠΊΠΎΠΏΡΠΈΠ»ΡΠ½ΠΎΠ³ΠΎ ΡΡΡΡΠΎΠΉΡΡΠ²Π° Π΄Π»Ρ Π³ΠΎΡΡΡΠ΅Π³ΠΎ ΠΊΠΎΠΏΡΠ΅Π½ΠΈΡ ΡΠ°Π²Π½Π° ~ 250 ΠΌΠΌ.
ΠΡΡΠΎΡΠ°
ΠΠ°ΠΊ ΠΏΡΠ°Π²ΠΈΠ»ΠΎ, Π±ΠΎΠ»ΡΡΠΈΠ½ΡΡΠ²ΠΎ ΠΊΠΎΠΏΡΠΈΠ»Π΅Π½ ΡΠ²Π»ΡΡΡΡΡ Π΄Π²ΡΡ ΡΡΡΡΡΠ½ΡΠΌΠΈ ΠΊΠΎΠ½ΡΡΡΡΠΊΡΠΈΡΠΌΠΈ ΠΈ Π΄Π»Ρ ΡΠ°ΠΊΠΈΡ ΠΈΠ·Π΄Π΅Π»ΠΈΠΉ ΡΠ΅ΠΊΠΎΠΌΠ΅Π½Π΄ΡΠ΅ΠΌΠ°Ρ Π²ΡΡΠΎΡΠ° ΡΠ°Π²Π½Π° ~ 250 ΠΌΠΌ.
Π ΠΈΡΠΎΠ³Π΅ ΠΏΠΎΠ»ΡΡΠ°Π΅ΡΡΡ, ΡΡΠΎ ΠΊΠΎΠΏΡΠΈΠ»ΡΠ½Ρ Ρ ΡΠ°Π·ΠΌΠ΅ΡΠ°ΠΌΠΈ 450Ρ 250Ρ 250 ΠΌΠΌ ΠΎΡΠ»ΠΈΡΠ½ΠΎ ΠΏΠΎΠ΄ΠΎΠΉΠ΄Π΅Ρ ΠΌΠ½ΠΎΠ³ΠΈΠΌ Π»ΡΠ±ΠΈΡΠ΅Π»ΡΠΌ ΠΊΠΎΠΏΡΠ΅Π½ΠΎΡΡΠ΅ΠΉ.
ΠΠΎΡΠ΅ΠΌΡ ΠΈΠ·Π½Π°ΡΠ°Π»ΡΠ½ΠΎ Π½Π΅ΠΎΠ±Ρ ΠΎΠ΄ΠΈΠΌΠΎ Π²ΡΠ±ΡΠ°ΡΡ ΠΊΠΎΠΏΡΠΈΠ»ΡΠ½Ρ ΠΈΠΌΠ΅Π½Π½ΠΎ Π³ΠΎΡΡΡΠ΅Π³ΠΎ ΠΊΠΎΠΏΡΠ΅Π½ΠΈΡ?
ΠΠ½Π° ΠΎΠ±Π»Π°Π΄Π°Π΅Ρ ΡΠ΅Π»ΡΠΌ ΡΡΠ΄ΠΎΠΌ ΠΏΡΠ΅ΠΈΠΌΡΡΠ΅ΡΡΠ²:
- ΡΠ»Π΅ΠΌΠ΅Π½ΡΠ°ΡΠ½ΠΎΡΡΡ ΡΡΡΡΠΎΠΉΡΡΠ²Π° ΠΌΠ½ΠΎΠ³ΠΈΡ ΠΊΠΎΠ½ΡΡΡΡΠΊΡΠΈΠΉ, ΡΡΠΎ ΠΏΠΎΠ·Π²ΠΎΠ»ΡΠ΅Ρ Π»Π΅Π³ΠΊΠΎ ΠΈΡ ΠΈΠ·Π³ΠΎΡΠΎΠ²ΠΈΡΡ Π΄Π°ΠΆΠ΅ Π² Π΄ΠΎΠΌΠ°ΡΠ½ΠΈΡ ΡΡΠ»ΠΎΠ²ΠΈΡΡ ;
- ΡΠΊΠΎΡΠΎΡΡΡ ΠΏΡΠΎΡΠ΅ΡΡΠ° Π³ΠΎΡΡΡΠ΅Π³ΠΎ ΠΊΠΎΠΏΡΠ΅Π½ΠΈΡ Π΄ΠΎΡΡΠ°ΡΠΎΡΠ½ΠΎ Π²Π΅Π»ΠΈΠΊΠ°;
- Π½Π΅ ΡΡΠ΅Π±ΡΠ΅ΡΡΡ Π²Π»ΠΎΠΆΠ΅Π½ΠΈΡ Π·Π½Π°ΡΠΈΡΠ΅Π»ΡΠ½ΡΡ ΡΠΈΠ½Π°Π½ΡΠΎΠ²;
- ΠΌΠΎΠ±ΠΈΠ»ΡΠ½ΠΎΡΡΡ ΠΈ ΡΠ½ΠΈΠ²Π΅ΡΡΠ°Π»ΡΠ½ΠΎΡΡΡ ΠΏΠΎΠ΄ΠΎΠ±Π½ΡΡ ΠΈΠ·Π΄Π΅Π»ΠΈΠΉ. ΠΠΎΠΏΡΠΈΠ»ΡΠ½ΠΈ Π΄Π»Ρ Π³ΠΎΡΡΡΠ΅Π³ΠΎ ΠΊΠΎΠΏΡΠ΅Π½ΠΈΡ ΠΌΠΎΠ³ΡΡ ΡΡΠΏΠ΅ΡΠ½ΠΎ ΡΡΠ½ΠΊΡΠΈΠΎΠ½ΠΈΡΠΎΠ²Π°ΡΡ Π² ΡΠΎΠ²Π΅ΡΡΠ΅Π½Π½ΠΎ ΡΠ°Π·Π»ΠΈΡΠ½ΡΡ ΡΡΠ»ΠΎΠ²ΠΈΡΡ : Π½Π° Π΄Π°ΡΠ΅, Π΄ΠΎΠΌΠ° ΠΈΠ»ΠΈ ΠΏΡΠΎΡΡΠΎ Π½Π° ΠΏΡΠΈΡΠΎΠ΄Π΅;
- ΠΎΠ±Π΅ΡΠΏΠ΅ΡΠ΅Π½ΠΈΠ΅ Π²ΡΡΠΎΠΊΠΎΠ³ΠΎ ΠΊΠ°ΡΠ΅ΡΡΠ²Π° Π·Π°ΠΊΠΎΠΏΡΠ΅Π½Π½ΡΡ ΠΏΡΠΎΠ΄ΡΠΊΡΠΎΠ², ΠΊΠΎΡΠΎΡΠΎΠ΅ ΡΠ²Π½ΠΎ ΠΏΡΠ΅Π²ΠΎΡΡ ΠΎΠ΄ΠΈΡ ΠΊΠ°ΡΠ΅ΡΡΠ²ΠΎ ΠΏΠΎΠΊΡΠΏΠ½ΠΎΠΉ ΠΏΡΠΎΠ΄ΡΠΊΡΠΈΠΈ.
ΠΠ΄ΠΈΠ½ΡΡΠ²Π΅Π½Π½ΡΠΌ Π½Π΅Π΄ΠΎΡΡΠ°ΡΠΊΠΎΠΌ ΡΠ²Π»ΡΠ΅ΡΡΡ ΡΠΎ, ΡΡΠΎ Π³ΠΎΡΡΡΠ΅Π΅ ΠΊΠΎΠΏΡΠ΅Π½ΠΈΠ΅ ΠΏΡΠΎΠ΄ΡΠΊΡΠΎΠ² Π½Π΅ ΠΏΡΠ΅Π΄ΡΡΠΌΠ°ΡΡΠΈΠ²Π°Π΅Ρ ΠΈΡ Π΄Π»ΠΈΡΠ΅Π»ΡΠ½ΠΎΠ΅ Ρ ΡΠ°Π½Π΅Π½ΠΈΠ΅.
ΠΡΠ»ΠΈ ΠΏΡΠΈΠ½ΡΡΠΎ ΡΠ΅ΡΠ΅Π½ΠΈΠ΅ ΠΎ ΡΠ°ΠΌΠΎΡΡΠΎΡΡΠ΅Π»ΡΠ½ΠΎΠΌ ΠΈΠ·Π³ΠΎΡΠΎΠ²Π»Π΅Π½ΠΈΠΈ, ΡΠΎ Π»Π΅Π³ΠΊΠΎ Π½Π°ΠΉΡΠΈ ΡΠ΅ΡΡΠ΅ΠΆΠΈ ΠΊΠΎΠΏΡΠΈΠ»ΡΠ½ΠΈ Π³ΠΎΡΡΡΠ΅Π³ΠΎ ΠΊΠΎΠΏΡΠ΅Π½ΠΈΡ Π»ΡΠ±ΠΎΠΉ ΡΠ»ΠΎΠΆΠ½ΠΎΡΡΠΈ. ΠΡΠΎ ΠΌΠΎΠ³ΡΡ Π±ΡΡΡ ΠΈ ΡΠ»Π΅ΠΌΠ΅Π½ΡΠ°ΡΠ½ΡΠ΅ ΠΊΠΎΠ½ΡΡΡΡΠΊΡΠΈΠΈ ΠΈΠ· ΠΏΠΎΠ΄Ρ ΠΎΠ΄ΡΡΠΈΡ ΠΏΠΎΠ΄ΡΡΡΠ½ΡΡ ΡΡΠ΅Π΄ΡΡΠ², ΠΈ ΡΠ»ΠΎΠΆΠ½ΡΠ΅ ΠΊΠΎΠ½ΡΡΡΡΠΊΡΠΈΠΈ Π΄Π»Ρ Π³ΠΎΡΡΡΠ΅Π³ΠΎ ΠΊΠΎΠΏΡΠ΅Π½ΠΈΡ, Π½Π°ΠΏΡΠΈΠΌΠ΅Ρ, Ρ Π³ΠΈΠ΄ΡΠΎΠ·Π°ΡΠ²ΠΎΡΠΎΠΌ. ΠΠΎ Π½Π΅Π·Π°Π²ΠΈΡΠΈΠΌΠΎ ΠΎΡ ΡΠ»ΠΎΠΆΠ½ΠΎΡΡΠΈ, Π²ΠΎ Π²ΡΠ΅Ρ ΠΊΠΎΠΏΡΠΈΠ»ΡΠ½ΡΡ ΠΈΡΠΏΠΎΠ»ΡΠ·ΡΠ΅ΡΡΡ Π΅Π΄ΠΈΠ½ΡΠΉ ΠΏΡΠΈΠ½ΡΠΈΠΏ Π³ΠΎΡΡΡΠ΅Π³ΠΎ ΠΊΠΎΠΏΡΠ΅Π½ΠΈΡ, ΠΊΠΎΡΠΎΡΡΠΉ ΠΏΡΠ΅Π΄ΡΡΠ°Π²Π»Π΅Π½ Π½Π° ΡΠ»Π΅Π΄ΡΡΡΠ΅ΠΌ ΡΡΠΊΠΈΠ·Π΅:
ΠΠ· Π΄Π°Π½Π½ΠΎΠΉ ΡΡ Π΅ΠΌΡ Π²ΠΈΠ΄Π½ΠΎ, ΡΡΠΎ ΠΏΡΠΎΡΠ΅ΡΡ ΠΊΠΎΠΏΡΠ΅Π½ΠΈΡ Π·Π°ΠΊΠ»ΡΡΠ°Π΅ΡΡΡ Π² Π³ΠΎΡΡΡΠ΅ΠΉ ΠΎΠ±ΡΠ°Π±ΠΎΡΠΊΠ΅ ΠΏΡΠΎΠ΄ΡΠΊΡΠΎΠ² Π΄ΡΠΌΠΎΠΌ ΠΎΡ Π·Π°Π»ΠΎΠΆΠ΅Π½Π½ΠΎΠΉ Π² ΠΊΠΎΠ½ΡΡΡΡΠΊΡΠΈΡ ΡΠ»Π΅ΡΡΠ΅ΠΉ ΡΠ΅ΠΏΡ. ΠΠ΄Π½Π°ΠΊΠΎ Π΄Π»Ρ ΠΊΠ°ΡΠ΅ΡΡΠ²Π΅Π½Π½ΠΎΠ³ΠΎ ΠΊΠΎΠΏΡΠ΅Π½ΠΈΡ Π½Π΅ΠΎΠ±Ρ ΠΎΠ΄ΠΈΠΌΠΎ Π²ΡΠ΄Π΅ΡΠΆΠΈΠ²Π°ΡΡ ΡΠ΅ΠΌΠΏΠ΅ΡΠ°ΡΡΡΠ½ΡΠΉ ΠΈΠ½ΡΠ΅ΡΠ²Π°Π» Π² Π΄ΠΈΠ°ΠΏΠ°Π·ΠΎΠ½Π΅ ΠΎΡ min = 55Β° Π΄ΠΎ max = 150Β°. ΠΠΎΡ ΠΈ Π²Π΅ΡΡ ΠΏΡΠΈΠ½ΡΠΈΠΏ Π³ΠΎΡΡΡΠ΅Π³ΠΎ ΠΊΠΎΠΏΡΠ΅Π½ΠΈΡ.
Π Π°ΡΡΠΌΠΎΡΡΠΈΠΌ ΡΠ°ΠΌΡΠ΅ ΠΏΠΎΠΏΡΠ»ΡΡΠ½ΡΠ΅ ΠΈ ΡΠ΄Π°ΡΠ½ΡΠ΅ ΠΊΠΎΠ½ΡΡΡΡΠΊΡΠΈΠΈ, ΠΊΠΎΡΠΎΡΡΠ΅ Π½Π°ΠΈΠ±ΠΎΠ»Π΅Π΅ ΠΏΡΠΈΠ΅ΠΌΠ»Π΅ΠΌΡ Π΄Π»Ρ ΠΈΠ·Π³ΠΎΡΠΎΠ²Π»Π΅Π½ΠΈΡ ΡΠ²ΠΎΠΈΠΌΠΈ ΡΡΠΊΠ°ΠΌΠΈ.
Π‘Π°ΠΌΠΎΠ΄Π΅Π»ΡΠ½ΡΠ΅ ΡΡΡΡΠΎΠΉΡΡΠ²Π°
ΠΡΠ΅Π½Ρ Π²ΠΎΡΡΡΠ΅Π±ΠΎΠ²Π°Π½Π½ΠΎΠΉ ΠΎΠΊΠ°Π·Π°Π»Π°ΡΡ ΡΠ»Π΅Π΄ΡΡΡΠ°Ρ ΡΠ°ΠΌΠΎΠ΄Π΅Π»ΡΠ½Π°Ρ ΠΊΠΎΠΏΡΠΈΠ»ΡΠ½Ρ ΠΈΠ· Π»ΠΈΡΡΠΎΠ²ΠΎΠ³ΠΎ ΠΌΠ΅ΡΠ°Π»Π»Π°.
ΠΡΡΠΌΠΎΡΠ³ΠΎΠ»ΡΠ½Π°Ρ Ρ ΠΏΡΠΈΠΌΠ΅Π½Π΅Π½ΠΈΠ΅ΠΌ ΡΠ²Π°ΡΠΊΠΈ
ΠΡΠ΅Π΄Π»Π°Π³Π°Π΅ΠΌΠ°Ρ ΠΏΡΡΠΌΠΎΡΠ³ΠΎΠ»ΡΠ½Π°Ρ ΠΊΠΎΠ½ΡΡΡΡΠΊΡΠΈΡ Π΄ΠΎΡΡΠ°ΡΠΎΡΠ½ΠΎ ΠΊΠΎΠΌΠΏΠ°ΠΊΡΠ½Π°, Π»Π΅Π³ΠΊΠΎ ΠΏΠΎΠ²ΡΠΎΡΡΠ΅ΡΡΡ ΠΈ ΠΎΡΠ΅Π½Ρ ΡΡΡΠ΅ΠΊΡΠΈΠ²Π½Π°.
ΠΠ»Ρ Π΅Π΅ ΠΈΠ·Π³ΠΎΡΠΎΠ²Π»Π΅Π½ΠΈΡ ΠΏΠΎΡΡΠ΅Π±ΡΠ΅ΡΡΡ ΠΏΡΠ΅Π΄Π΅Π»ΡΠ½ΡΠΉ ΠΌΠΈΠ½ΠΈΠΌΡΠΌ ΠΌΠ°ΡΠ΅ΡΠΈΠ°Π»ΠΎΠ² ΠΈ ΠΈΠ½ΡΡΡΡΠΌΠ΅Π½ΡΠΎΠ²:
- Π΄Π²Π° Π»ΠΈΡΡΠ° ΠΌΠ΅ΡΠ°Π»Π»Π° ΡΠΎΠ»ΡΠΈΠ½ΠΎΠΉ ~ 2 ΠΌΠΌ;
- ΡΠΎΠ½ΠΊΠ°Ρ Π°ΡΠΌΠ°ΡΡΡΠ°-ΠΊΠ°ΡΠ°Π½ΠΊΠ°;
- ΡΠ²Π°ΡΠΎΡΠ½ΠΎΠ΅ ΡΡΡΡΠΎΠΉΡΡΠ²ΠΎ;
- Π½Π΅Π±ΠΎΠ»ΡΡΠ°Ρ Π±ΠΎΠ»Π³Π°ΡΠΊΠ°;
- ΠΈΠ·ΠΌΠ΅ΡΠΈΡΠ΅Π»ΡΠ½ΡΠΉ ΠΈΠ½ΡΡΡΡΠΌΠ΅Π½Ρ;
- ΡΡΠΎΠ»ΡΡΠ½ΡΠΉ ΡΠ³ΠΎΠ»ΡΠ½ΠΈΠΊ.
Π§Π΅ΡΡΠ΅ΠΆ ΡΡΠΎΠΉ ΠΏΠΎΠΏΡΠ»ΡΡΠ½ΠΎΠΉ ΠΏΡΡΠΌΠΎΡΠ³ΠΎΠ»ΡΠ½ΠΎΠΉ ΠΊΠΎΠΏΡΠΈΠ»ΡΠ½ΠΈ ΠΏΡΠ΅Π΄ΡΡΠ°Π²Π»Π΅Π½ Π½ΠΈΠΆΠ΅:
ΠΠ΅ΠΏΠΎΡΡΠ΅Π΄ΡΡΠ²Π΅Π½Π½ΡΠΉ ΠΏΡΠΎΡΠ΅ΡΡ ΠΈΠ·Π³ΠΎΡΠΎΠ²Π»Π΅Π½ΠΈΡ Π½Π΅ ΠΎΡΠ΅Π½Ρ ΡΠ»ΠΎΠΆΠ΅Π½ ΠΈ ΡΠ²ΠΎΠ΄ΠΈΡΡΡ ΠΊ ΡΠ»Π΅Π΄ΡΡΡΠ΅ΠΌΡ:
- ΠΡΡΠ΅Π·Π°ΡΡΡΡ Π½Π΅ΠΎΠ±Ρ ΠΎΠ΄ΠΈΠΌΡΠ΅ ΠΊΠΎΠΌΠΏΠ»Π΅ΠΊΡΡΡΡΠΈΠ΅, ΡΠΎ Π΅ΡΡΡ Π·Π°Π³ΠΎΡΠΎΠ²ΠΊΠΈ. ΠΠ»Ρ ΡΡΠΎΠ³ΠΎ ΠΈΡΠΏΠΎΠ»ΡΠ·ΡΡΡ Π±ΠΎΠ»Π³Π°ΡΠΊΡ.
- Π€ΠΎΡΠΌΠΈΡΡΠ΅ΡΡΡ ΠΊΠΎΡΠΎΠ± ΠΊΠΎΠΏΡΠΈΠ»ΡΠ½ΠΈ ΠΈ ΡΠ²Π°ΡΠΈΠ²Π°Π΅ΡΡΡ ΡΠ²Π°ΡΠΊΠΎΠΉ.
- ΠΡΠΎΠ²Π΅ΡΡΠ΅ΡΡΡ Π²Π·Π°ΠΈΠΌΠ½Π°Ρ ΠΏΠ΅ΡΠΏΠ΅Π½Π΄ΠΈΠΊΡΠ»ΡΡΠ½ΠΎΡΡΡ ΡΡΠ΅Π½ΠΎΠΊ.
- ΠΡΠΈΠ²Π°ΡΠΈΠ²Π°Π΅ΡΡΡ Π΄Π½ΠΈΡΠ΅.
- ΠΠ·Π³ΠΎΡΠΎΠ²Π»ΡΠ΅ΡΡΡ ΠΊΡΡΡΠΊΠ° ΠΈΠ·Π΄Π΅Π»ΠΈΡ.
- ΠΠ° Π²Π½ΡΡΡΠ΅Π½Π½ΠΈΡ Π±ΠΎΠΊΠΎΠ²ΡΡ ΡΡΠ΅Π½ΠΊΠ°Ρ Π·Π°ΠΊΡΠ΅ΠΏΠ»ΡΡΡΡΡ Π½Π°ΠΏΡΠ°Π²Π»ΡΡΡΠΈΠ΅ ΠΈΠ· Π°ΡΠΌΠ°ΡΡΡΡ. ΠΠ½ΠΈ ΠΏΡΠΈΠ²Π°ΡΠΈΠ²Π°ΡΡΡΡ Π² Π΄Π²ΡΡ ΡΡΠΎΠ²Π½ΡΡ . Π’ΠΎ Π΅ΡΡΡ Π½Π°ΠΏΡΠ°Π²Π»ΡΡΡΠΈΠ΅ Π½Π° Π½ΠΈΠΆΠ½Π΅ΠΌ ΡΡΠΎΠ²Π½Π΅ ΡΠ»ΡΠΆΠ°Ρ ΠΎΠΏΠΎΡΠΎΠΉ Π΄Π»Ρ ΠΏΠΎΠ΄Π΄ΠΎΠ½Π°, Π° Π½Π° Π²Π΅ΡΡ Π½Π΅ΠΌ ΡΡΠΎΠ²Π½Π΅ β ΠΏΡΠ΅Π΄Π½Π°Π·Π½Π°ΡΠ΅Π½Ρ Π΄Π»Ρ ΡΠ΅ΡΠ΅ΡΠΊΠΈ.
- ΠΠ° Π·Π°ΠΊΠ»ΡΡΠΈΡΠ΅Π»ΡΠ½ΠΎΠΌ ΡΡΠ°ΠΏΠ΅ ΠΏΡΠΈΠ²Π°ΡΠΈΠ²Π°ΡΡΡΡ ΡΡΡΠΊΠΈ.
ΠΡΠ΅ ΠΎΠ΄ΠΈΠ½ Π²Π°ΡΠΈΠ°Π½Ρ ΠΏΡΡΠΌΠΎΡΠ³ΠΎΠ»ΡΠ½ΠΎΠΉ ΠΊΠΎΠΏΡΠΈΠ»ΡΠ½ΠΈ ΡΠΎΠΆΠ΅ Π·Π°ΡΠ»ΡΠΆΠΈΠ²Π°Π΅Ρ Π²Π½ΠΈΠΌΠ°Π½ΠΈΡ.
ΠΡΡΠΌΠΎΡΠ³ΠΎΠ»ΡΠ½Π°Ρ ΡΠ°Π·Π±ΠΎΡΠ½Π°Ρ
ΠΡΠ΅Π΄ΡΡΠ°Π²Π»Π΅Π½Π½Π°Ρ ΠΏΡΡΠΌΠΎΡΠ³ΠΎΠ»ΡΠ½Π°Ρ ΠΊΠΎΠΏΡΠΈΠ»ΡΠ½Ρ ΠΎΡΠ»ΠΈΡΠ°Π΅ΡΡΡ ΡΠ΅ΠΌ, ΡΡΠΎ ΠΏΡΠΈ Π΅Π΅ ΠΈΠ·Π³ΠΎΡΠΎΠ²Π»Π΅Π½ΠΈΠΈ Π°Π±ΡΠΎΠ»ΡΡΠ½ΠΎ ΠΎΡΡΡΡΡΡΠ²ΡΡΡ ΡΠ²Π°ΡΠΎΡΠ½ΡΠ΅ ΡΠ°Π±ΠΎΡΡ. Π ΡΡΠΎ β Π½Π΅ΠΌΠ°Π»ΠΎΠ²Π°ΠΆΠ½ΠΎ Π΄Π»Ρ ΠΌΠ½ΠΎΠ³ΠΈΡ . ΠΡΠ΅ΠΏΠ»Π΅Π½ΠΈΠ΅ ΠΊΠΎΠΌΠΏΠ»Π΅ΠΊΡΡΡΡΠΈΡ ΡΠ°ΠΌΠΎΠ³ΠΎ ΠΈΠ·Π΄Π΅Π»ΠΈΡ ΠΏΡΠΎΠΈΠ·Π²ΠΎΠ΄ΠΈΡΡΡ Ρ ΠΏΠΎΠΌΠΎΡΡΡ Π±ΠΎΠ»ΡΠΎΠ².
ΠΠ°ΡΠ΅ΡΠΈΠ°Π» ΠΈΠ·Π³ΠΎΡΠΎΠ²Π»Π΅Π½ΠΈΡ β ΡΡΠ°Π»Ρ-Π½Π΅ΡΠΆΠ°Π²Π΅ΠΉΠΊΠ°. ΠΠ΅ ΡΠΎΠ»ΡΠΈΠ½Π° ΡΠ°Π²Π½Π°:
- ΠΊΡΡΡΠΊΠ° ΠΈ Π±ΠΎΠΊΠΎΠ²ΡΠ΅ ΡΡΠ΅Π½ΠΊΠΈ ~ 0,8 ΠΌΠΌ β 1,0 ΠΌΠΌ;
- Π΄Π½ΠΎ ΠΊΠΎΠΏΡΠΈΠ»ΡΠ½ΠΈ ~ 1,5 ΠΌΠΌ.
ΠΡΠ΅ ΠΏΠΎΠ½Π°Π΄ΠΎΠ±ΠΈΡΡΡ ΡΠ³ΠΎΠ»ΠΎΠΊ Π΄Π»Ρ ΠΈΠ·Π³ΠΎΡΠΎΠ²Π»Π΅Π½ΠΈΡ ΠΎΠΏΠΎΡ ΡΠ΅ΡΠ΅ΡΠΎΠΊ.
ΠΡΠΎΠ±Π΅Π½Π½ΠΎΡΡΠΈ ΠΈΠ·Π³ΠΎΡΠΎΠ²Π»Π΅Π½ΠΈΡ:
- Π Π°Π·ΠΌΠ΅ΡΡ ΠΊΠΎΠΏΡΠΈΠ»ΡΠ½ΠΈ ΠΌΠΎΠΆΠ½ΠΎ Π²ΡΠ±ΡΠ°ΡΡ ΠΏΡΠΎΠΈΠ·Π²ΠΎΠ»ΡΠ½ΠΎ.
- ΠΡΡΠ΅Π·Π°ΡΡΡΡ Π·Π°Π³ΠΎΡΠΎΠ²ΠΊΠΈ ΡΡΠ΅Π½ΠΎΠΊ, ΠΈ Π½Π° ΠΎΠ΄Π½ΠΎΠΉ ΠΈΠ· ΡΡΠΎΡΠΎΠ½ ΠΊΠ°ΠΆΠ΄ΠΎΠΉ ΡΡΠ΅Π½ΠΊΠΈ ΡΠΎΡΠΌΠΈΡΡΠ΅ΡΡΡ Π±ΠΎΡΡΠΈΠΊ ΡΠΎΠΏΡΡΠΆΠ΅Π½ΠΈΡ Π² 2 ΠΌΠΌ. Π Π±ΠΎΡΡΠΈΠΊΠ°Ρ ΠΏΡΠΎΡΠ²Π΅ΡΠ»ΠΈΠ²Π°ΡΡΡΡ ΠΏΠΎ Π΄Π²Π° ΠΎΡΠ²Π΅ΡΡΡΠΈΡ Π΄Π»Ρ Π±ΠΎΠ»ΡΠΎΠ² ΠΊΡΠ΅ΠΏΠ»Π΅Π½ΠΈΡ.
- Π‘ΠΎΠ±ΠΈΡΠ°Π΅ΡΡΡ ΠΊΠΎΡΠΎΠ± ΠΈΠ·Π΄Π΅Π»ΠΈΡ ΠΈ ΡΠΊΡΠ΅ΠΏΠ»ΡΠ΅ΡΡΡ Π±ΠΎΠ»ΡΠ°ΠΌΠΈ Π»ΠΈΠ±ΠΎ ΡΠ°ΠΌΠΎΡΠ΅Π·Π°ΠΌΠΈ.
- ΠΠ°ΠΊΡΠ΅ΠΏΠ»ΡΡΡΡΡ ΡΠΏΠΎΡΠ½ΡΠ΅ ΡΠ³ΠΎΠ»ΡΠ½ΠΈΠΊΠΈ, ΠΊΠΎΡΠΎΡΡΠ΅ Π΄ΠΎΠ»ΠΆΠ½Ρ Π½Π°Ρ ΠΎΠ΄ΠΈΡΡΡΡ Π½Π° Π΄Π»ΠΈΠ½Π½ΡΡ Π±ΠΎΠΊΠΎΠ²ΡΡ ΡΡΠ΅Π½ΠΊΠ°Ρ .
- ΠΠ·Π³ΠΎΡΠΎΠ²Π»ΡΡΡΡΡ: ΠΊΡΡΡΠΊΠ° ΠΈ Π΄Π½ΠΎ ΠΊΠΎΠΏΡΠΈΠ»ΡΠ½ΠΈ. ΠΠΎΠ½ΡΡΡΡΠΊΡΠΈΠΈ Π΄Π½ΠΈΡΠ° ΠΈ ΠΊΡΡΡΠΊΠΈ ΡΠΎΠ²Π΅ΡΡΠ΅Π½Π½ΠΎ Π°Π½Π°Π»ΠΎΠ³ΠΈΡΠ½Ρ. ΠΡ ΡΠ°Π·ΠΌΠ΅ΡΡ Π΄ΠΎΠ»ΠΆΠ½Ρ ΠΏΡΠ΅Π²ΡΡΠ°ΡΡ ΠΏΠ»ΠΎΡΠ°Π΄Ρ ΠΏΡΠΎΠ΅ΠΊΡΠΈΠΈ ΠΊΠΎΡΠΎΠ±Π° ΠΊΠΎΠΏΡΠΈΠ»ΡΠ½ΠΈ Π½Π° 4β6 ΠΌΠΌ.
- ΠΠ°Π»Π΅Π΅ ΡΠΎΠ±ΡΠ°Π½Π½ΡΠΉ ΡΠ°Π½Π΅Π΅ ΠΊΠΎΡΠΎΠ± ΠΏΡΠΎΡΡΠΎ Π²ΡΡΠ°Π²Π»ΡΠ΅ΡΡΡ Π² ΠΊΠΎΠ½ΡΡΡΡΠΊΡΠΈΡ Π΄Π½ΠΈΡΠ° ΠΈ Π² ΠΌΠ΅ΡΡΠ°Ρ ΡΠΎΠΏΡΡΠΆΠ΅Π½ΠΈΡ Π΄Π½ΠΈΡΠ° ΡΠΎ ΡΡΠ΅Π½ΠΊΠ°ΠΌΠΈ ΡΠΎΠΆΠ΅ ΡΠ²Π΅ΡΠ»ΡΡΡΡ ΠΎΡΠ²Π΅ΡΡΡΠΈΡ Π΄Π»Ρ Π±ΠΎΠ»ΡΠΎΠ².
- Π‘ΠΊΠΎΠΌΠΏΠ»Π΅ΠΊΡΠΎΠ²Π°Π½Π½ΠΎΠ΅ ΠΈΠ·Π΄Π΅Π»ΠΈΠ΅ ΡΠΊΡΠ΅ΠΏΠ»ΡΠ΅ΡΡΡ ΠΎΠΊΠΎΠ½ΡΠ°ΡΠ΅Π»ΡΠ½ΠΎ ΠΈ Π·Π°ΠΊΡΡΠ²Π°Π΅ΡΡΡ ΠΊΡΡΡΠΊΠΎΠΉ. Π ΠΊΡΡΡΠΊΠ΅ Π½Π΅ΠΎΠ±Ρ ΠΎΠ΄ΠΈΠΌΠΎ ΠΏΡΠΎΡΠ²Π΅ΡΠ»ΠΈΡΡ ΠΎΡΠ²Π΅ΡΡΡΠΈΠ΅ Π΄Π»Ρ Π²ΡΡ ΠΎΠ΄Π° Π΄ΡΠΌΠ°.
ΠΡΠ° ΡΠ°Π·Π±ΠΎΡΠ½Π°Ρ ΠΊΠΎΠ½ΡΡΡΡΠΊΡΠΈΡ ΠΏΡΠ΅ΠΊΡΠ°ΡΠ½ΠΎ ΠΏΠΎΠ΄Ρ ΠΎΠ΄ΠΈΡ Π΄Π»Ρ ΠΏΠΎΡ ΠΎΠ΄Π½ΡΡ ΡΡΠ»ΠΎΠ²ΠΈΠΉ.
ΠΡΠ΅ ΠΎΠ΄Π½Π° Π½Π΅ΠΏΠ»ΠΎΡ Π°Ρ ΠΊΠΎΠΏΡΠΈΠ»ΡΠ½Ρ, Π½ΠΎ ΡΠΈΠ»ΠΈΠ½Π΄ΡΠΈΡΠ΅ΡΠΊΠΎΠΉ ΡΠΎΡΠΌΡ, ΡΡΠ°Π½Π΅Ρ Π½Π΅Π·Π°ΠΌΠ΅Π½ΠΈΠΌΠΎΠΉ Π² ΠΏΠΎΡ ΠΎΠ΄Π΅, ΡΠ°ΠΊ ΠΊΠ°ΠΊ ΡΡΠΎ Π΄ΠΎΠ²ΠΎΠ»ΡΠ½ΠΎ ΠΎΠΏΡΠΈΠΌΠ°Π»ΡΠ½ΡΠΉ Π²Π°ΡΠΈΠ°Π½Ρ Π΄Π»Ρ ΡΠ°ΠΊΠΈΡ ΡΠ»ΡΡΠ°Π΅Π².
Π¦ΠΈΠ»ΠΈΠ½Π΄ΡΠΈΡΠ΅ΡΠΊΠ°Ρ
Π¦ΠΈΠ»ΠΈΠ½Π΄ΡΠΈΡΠ΅ΡΠΊΠ°Ρ ΠΊΠΎΠΏΡΠΈΠ»ΡΠ½Ρ ΠΌΠΎΠΆΠ΅Ρ Π±ΡΡΡ ΡΠ²Π°ΡΠ΅Π½Π° ΠΈΠ· ΡΠ²Π΅ΡΠ½ΡΡΠΎΠ³ΠΎ Π»ΠΈΡΡΠ° Π½Π΅ΡΠΆΠ°Π²Π΅ΠΉΠΊΠΈ Π»ΠΈΠ±ΠΎ ΠΈΠ· ΠΏΠΎΠ΄Ρ ΠΎΠ΄ΡΡΠ΅Π³ΠΎ ΠΎΡΡΠ΅Π·ΠΊΠ° ΡΡΡΠ±Ρ.
ΠΠΏΠΎΠ»Π½Π΅ ΠΏΠΎΠ΄Ρ ΠΎΠ΄ΡΡΠΈΠΌΠΈ ΡΠ°Π·ΠΌΠ΅ΡΠ°ΠΌΠΈ ΡΠ°ΠΊΠΎΠΉ ΠΊΠΎΠΏΡΠΈΠ»ΡΠ½ΠΈ ΡΡΠΈΡΠ°ΡΡΡΡ:
- Π΄ΠΈΠ°ΠΌΠ΅ΡΡ ΡΠΈΠ»ΠΈΠ½Π΄ΡΠ° β 300 ΠΌΠΌ;
- Π΄Π»ΠΈΠ½Π° ΡΠΈΠ»ΠΈΠ½Π΄ΡΠΈΡΠ΅ΡΠΊΠΎΠΉ ΠΊΠΎΠΏΡΠΈΠ»ΡΠ½ΠΈ β 450 ΠΌΠΌ.
ΠΠΎΠ½ΡΡΡΡΠΊΡΠΈΠ²Π½ΡΠΌΠΈ Π΄Π΅ΡΠ°Π»ΡΠΌΠΈ ΡΡΠΎΠΉ ΠΈΠ½ΡΠ΅ΡΠ΅ΡΠ½ΠΎΠΉ ΠΊΠΎΠΏΡΠΈΠ»ΡΠ½ΠΈ ΡΠ²Π»ΡΡΡΡΡ: ΠΊΠΎΡΠΏΡΡ, ΠΏΡΠΎΡΠΈΠ²Π΅Π½Ρ, Π½Π°ΠΏΡΠ°Π²Π»ΡΡΡΠΈΠ΅ ΠΈ ΠΊΡΡΡΠΊΠ°.
ΠΡΠΎΠΌΠ΅ ΡΠΎΠ³ΠΎ, ΡΠΈΠ»ΠΈΠ½Π΄ΡΠΈΡΠ΅ΡΠΊΠ°Ρ ΠΊΠΎΠΏΡΠΈΠ»ΡΠ½Ρ ΠΌΠΎΠΆΠ΅Ρ ΠΎΡΠ»ΠΈΡΠ½ΠΎ ΡΠ»ΡΠΆΠΈΡΡ:
- ΠΊΠΎΠΌΠΏΠ°ΠΊΡΠ½ΠΎΠΉ ΠΈ ΡΡΡΠ΅ΠΊΡΠΈΠ²Π½ΠΎΠΉ ΠΏΠ°Π»Π°ΡΠΎΡΠ½ΠΎΠΉ ΠΏΠ΅ΡΠΊΠΎΠΉ, Π΅ΡΠ»ΠΈ Π·Π°ΠΏΠΎΠ»Π½ΠΈΡΡ Π΅Π΅ ΡΠΈΠ»ΠΈΠ½Π΄Ρ Π³ΠΎΡΡΡΠΈΠΌΠΈ ΡΠ³Π»ΡΠΌΠΈ;
- ΡΠ΄ΠΎΠ±Π½ΡΠΌ Π»ΠΎΠ΄ΠΎΡΠ½ΡΠΌ ΡΠ΅ΡΠΏΠ°ΠΊΠΎΠΌ;
- Π½Π°Π΄Π΅ΠΆΠ½ΡΠΌ Ρ ΡΠ°Π½ΠΈΠ»ΠΈΡΠ΅ΠΌ ΠΌΠ΅Π»ΠΊΠΈΡ Π²Π΅ΡΠ΅ΠΉ.
ΠΠΏΠΎΠ»Π½Π΅ Π΅ΡΡΠ΅ΡΡΠ²Π΅Π½Π½ΠΎ, ΡΡΠΎ Π½Π°ΠΈΠ»ΡΡΡΠΈΡ ΡΠ΅Π·ΡΠ»ΡΡΠ°ΡΠΎΠ² ΠΊΠΎΠΏΡΠ΅Π½ΠΈΡ ΠΌΠΎΠΆΠ½ΠΎ Π΄ΠΎΡΡΠΈΠ³Π½ΡΡΡ ΡΠΎΠ»ΡΠΊΠΎ Π² ΡΡΠ°ΡΠΈΠΎΠ½Π°ΡΠ½ΡΡ ΡΡΠ»ΠΎΠ²ΠΈΡΡ ΠΈ Ρ ΠΈΡΠΏΠΎΠ»ΡΠ·ΠΎΠ²Π°Π½ΠΈΠ΅ΠΌ ΠΊΠΈΡΠΏΠΈΡΠ½ΡΡ ΠΊΠΎΠΏΡΠΈΠ»Π΅Π½.
ΠΠΈΡΠΏΠΈΡΠ½Π°Ρ
ΠΠ΄Π½Π° ΠΈΠ· Π²ΠΎΠ·ΠΌΠΎΠΆΠ½ΡΡ ΠΊΠΈΡΠΏΠΈΡΠ½ΡΡ ΠΊΠΎΠ½ΡΡΡΡΠΊΡΠΈΠΉ ΠΈΠ·ΠΎΠ±ΡΠ°ΠΆΠ΅Π½Π° Π½Π° ΡΠ»Π΅Π΄ΡΡΡΠ΅ΠΌ ΡΠΈΡΡΠ½ΠΊΠ΅:
ΠΠ½ΡΡΡΠ΅Π½Π½Π΅Π΅ ΡΡΡΡΠΎΠΉΡΡΠ²ΠΎ ΠΊΠΈΡΠΏΠΈΡΠ½ΠΎΠΉ ΠΊΠΎΠΏΡΠΈΠ»ΡΠ½ΠΈ Π²ΠΏΠΎΠ»Π½Π΅ ΠΏΠΎΠ½ΡΡΠ½ΠΎ ΠΈΠ· ΠΏΡΠ΅Π΄ΡΡΠ°Π²Π»Π΅Π½Π½ΠΎΠ³ΠΎ ΡΡΠΊΠΈΠ·Π° ΠΈ ΠΎΡΠΎΠ±ΡΡ ΠΏΠΎΡΡΠ½Π΅Π½ΠΈΠΉ Π½Π΅ ΡΡΠ΅Π±ΡΠ΅Ρ. ΠΠ΄Π½Π°ΠΊΠΎ ΠΏΠΎΠ΄ΠΎΠ±Π½ΡΠ΅ ΠΊΠΎΠ½ΡΡΡΡΠΊΡΠΈΠΈ ΡΠ²Π»ΡΡΡΡΡ Π΄ΠΎΡΠΎΠ³ΠΎΡΡΠΎΡΡΠΈΠΌΠΈ ΠΈΠ·Π΄Π΅Π»ΠΈΡΠΌΠΈ, ΡΠ°ΠΊ ΠΊΠ°ΠΊ ΠΏΡΠΈΠΌΠ΅Π½ΡΠ΅ΡΡΡ ΡΠ΅Π»ΡΠΉ ΠΊΠΎΠΌΠΏΠ»Π΅ΠΊΡ ΡΠ°Π·Π»ΠΈΡΠ½ΡΡ ΠΌΠ°ΡΠ΅ΡΠΈΠ°Π»ΠΎΠ² ΠΈ ΠΊΠΎΠ½ΡΡΡΡΠΊΡΠΈΠ²Π½ΡΡ Π΄ΠΎΠΏΠΎΠ»Π½Π΅Π½ΠΈΠΉ. ΠΠ°ΠΏΡΠΈΠΌΠ΅Ρ, ΠΊΠΈΡΠΏΠΈΡΠ½ΠΎΠΉ ΠΊΠΎΠΏΡΠΈΠ»ΡΠ½Π΅ ΠΎΠ±ΡΠ·Π°ΡΠ΅Π»ΡΠ½ΠΎ Π½Π΅ΠΎΠ±Ρ ΠΎΠ΄ΠΈΠΌ ΡΡΠ½Π΄Π°ΠΌΠ΅Π½Ρ, ΡΠΎΠΏΠΊΠ° ΠΌΠΎΠ½ΡΠΈΡΡΠ΅ΡΡΡ Π² ΡΠ°ΠΌΠΎΠΉ ΠΊΠΎΠ½ΡΡΡΡΠΊΡΠΈΠΈ ΠΈ ΡΠ°ΠΊ Π΄Π°Π»Π΅Π΅.
ΠΠ°ΠΊ ΠΏΡΠ°Π²ΠΈΠ»ΠΎ, ΡΠ°ΠΊΠΈΠ΅ ΠΊΠΎΠΏΡΠΈΠ»ΡΠ½ΠΈ ΡΠΎΠΎΡΡΠΆΠ°ΡΡΡΡ ΡΠΎΠ»ΡΠΊΠΎ Π½Π° Π»ΠΈΡΠ½ΡΡ ΠΏΡΠΈΡΡΠ°Π΄Π΅Π±Π½ΡΡ ΡΡΠ°ΡΡΠΊΠ°Ρ .
Π£Π΄ΠΈΠ²ΠΈΡΠ΅Π»ΡΠ½ΠΎ, Π½ΠΎ Π²Π΅ΡΡΠΌΠ° Π½Π΅ΠΏΠ»ΠΎΡ ΠΈΡ ΡΠ΅Π·ΡΠ»ΡΡΠ°ΡΠΎΠ² ΠΌΠΎΠΆΠ½ΠΎ Π΄ΠΎΡΡΠΈΡΡ, Π΅ΡΠ»ΠΈ ΠΈΡΠΏΠΎΠ»ΡΠ·ΠΎΠ²Π°ΡΡ Π½Π΅ΠΊΠΎΡΠΎΡΡΠ΅ ΠΏΠΎΠ΄ΡΡΡΠ½ΡΠ΅ ΡΡΠ΅Π΄ΡΡΠ²Π°. Π‘Ρ Π΅ΠΌΡ ΡΡΠΈΡ ΠΏΡΠΎΡΡΠ΅ΠΉΡΠΈΡ ΡΡΡΡΠΎΠΉΡΡΠ² Π΄Π»Ρ Π³ΠΎΡΡΡΠ΅Π³ΠΎ ΠΊΠΎΠΏΡΠ΅Π½ΠΈΡ Π² ΠΈΠ·ΠΎΠ±ΠΈΠ»ΠΈΠΈ ΠΏΡΠ΅Π΄ΡΡΠ°Π²Π»Π΅Π½Ρ Π² ΠΈΠ½ΡΠ΅ΡΠ½Π΅ΡΠ΅. ΠΡΠΌΠ΅ΡΠΈΠΌ Π½Π°ΠΈΠ±ΠΎΠ»Π΅Π΅ ΡΠ΄Π°ΡΠ½ΡΠ΅ ΠΊΠΎΠ½ΡΡΡΡΠΊΡΠΈΠΈ.
ΠΠ· Π±ΠΎΡΠΊΠΈ
ΠΠ»Ρ ΡΡΠΎΠΉ ΠΊΠΎΠ½ΡΡΡΡΠΊΡΠΈΠΈ Π²ΠΏΠΎΠ»Π½Π΅ ΠΏΠΎΠ΄ΠΎΠΉΠ΄Π΅Ρ Π»ΡΠ±Π°Ρ Π±ΠΎΡΠΊΠ° ΠΏΠΎΠ΄Ρ ΠΎΠ΄ΡΡΠΈΡ ΡΠ°Π·ΠΌΠ΅ΡΠΎΠ². ΠΠ΅ ΠΌΠΎΠ΄Π΅ΡΠ½ΠΈΠ·ΠΈΡΡΡΡ ΡΠΎΠ³Π»Π°ΡΠ½ΠΎ ΡΠΈΡΡΠ½ΠΊΡ ΠΈ Π΄ΠΎΠΏΠΎΠ»Π½ΡΡΡ Π½Π΅ΠΎΠ±Ρ ΠΎΠ΄ΠΈΠΌΡΠΌΠΈ ΡΠ»Π΅ΠΌΠ΅Π½ΡΠ°ΠΌΠΈ. Π ΡΠΎΠΆΠ°Π»Π΅Π½ΠΈΡ, ΠΏΠΎΠ΄ΠΎΠ±Π½ΡΠ΅ ΠΊΠΎΠΏΡΠΈΠ»ΡΠ½ΠΈ Π½Π΅Π΄ΠΎΠ»Π³ΠΎΠ²Π΅ΡΠ½Ρ ΠΈ Π΄ΠΎΡΡΠ°ΡΠΎΡΠ½ΠΎ Π±ΡΡΡΡΠΎ ΠΏΡΠΎΠ³ΠΎΡΠ°ΡΡ. ΠΠΎ Π΄Π»Ρ ΡΠ΅Π·ΠΎΠ½Π½ΠΎΠ³ΠΎ ΠΈΡΠΏΠΎΠ»ΡΠ·ΠΎΠ²Π°Π½ΠΈΡ ΠΈΠ·Π΄Π΅Π»ΠΈΠ΅ ΠΈΠ· Π±ΠΎΡΠΊΠΈ ΡΠ²Π»ΡΠ΅ΡΡΡ Π²ΠΏΠΎΠ»Π½Π΅ ΠΏΡΠΈΠ΅ΠΌΠ»Π΅ΠΌΡΠΌ.
ΠΠ· Π²Π΅Π΄ΡΠ°
ΠΡΠ΅ ΠΎΠ΄Π½ΠΎ ΠΏΡΠΎΡΡΠ΅ΠΉΡΠ΅Π΅ ΡΠ΅ΡΠ΅Π½ΠΈΠ΅ Ρ ΠΊΠΎΠΏΡΠΈΠ»ΡΠ½Π΅ΠΉ Π΄Π»Ρ Π³ΠΎΡΡΡΠ΅Π³ΠΎ ΠΊΠΎΠΏΡΠ΅Π½ΠΈΡ β ΠΈΡΠΏΠΎΠ»ΡΠ·ΠΎΠ²Π°ΡΡ ΠΎΠ±ΡΡΠ½ΠΎΠ΅ Π²Π΅Π΄ΡΠΎ.
Π’Π°ΠΊΠ°Ρ ΠΏΡΠΈΠΌΠΈΡΠΈΠ²Π½Π°Ρ ΡΠ°ΠΌΠΎΠ΄Π΅Π»ΡΠ½Π°Ρ ΠΊΠΎΠΏΡΠΈΠ»ΡΠ½Ρ ΠΌΠΎΠΆΠ΅Ρ ΡΡΠ°ΡΡ ΠΎΡΠ»ΠΈΡΠ½ΡΠΌ ΡΡΠ΅Π½Π°ΠΆΠ΅ΡΠΎΠΌ Π² ΠΎΡΠ²ΠΎΠ΅Π½ΠΈΠΈ Π°Π·ΠΎΠ² Β«ΠΊΠΎΠΏΡΠΈΠ»ΡΠ½ΠΎΠ³ΠΎ Π΄Π΅Π»Π°Β». Π Π΅ΡΠ΅ΡΠΊΠΈ ΠΌΠΎΠΆΠ½ΠΎ ΠΏΡΠΎΡΡΠΎ ΡΠΏΠ»Π΅ΡΡΠΈ ΠΈΠ· ΠΏΡΠΎΠ²ΠΎΠ»ΠΎΠΊΠΈ, Π° ΠΌΠΎΠΆΠ½ΠΎ ΠΈ Π²ΠΎΠ²ΡΠ΅ ΠΎΠ±ΠΎΠΉΡΠΈΡΡ Π±Π΅Π· Π½ΠΈΡ . Π ΠΏΠΎΡΠ»Π΅Π΄Π½Π΅ΠΌ ΡΠ»ΡΡΠ°Π΅ Π² ΠΊΠΎΡΠΏΡΡΠ΅ Π²Π΅Π΄ΡΠ° ΡΠ²Π΅ΡΠ»ΡΡΡΡ ΠΎΡΠ²Π΅ΡΡΡΠΈΡ Π΄Π»Ρ ΠΌΠ΅ΡΠ°Π»Π»ΠΈΡΠ΅ΡΠΊΠΈΡ ΡΡΡΡΠ΅ΠΉ Ρ ΠΊΡΡΡΠΊΠ°ΠΌΠΈ, ΠΈ ΠΊΠΎΠΏΡΠΈΠΌΡΠ΅ ΠΏΡΠΎΠ΄ΡΠΊΡΡ ΠΏΡΠΎΡΡΠΎ ΠΏΠΎΠ΄Π²Π΅ΡΠΈΠ²Π°ΡΡΡΡ Π½Π° ΠΊΡΡΡΠΊΠ°Ρ .
ΠΠ° ΡΠΎΠΎΡΡΠΆΠ΅Π½ΠΈΠ΅ ΡΠ°ΠΊΠΎΠ³ΠΎ ΠΊΠΎΠΏΡΠΈΠ»ΡΠ½ΠΎΠ³ΠΎ ΡΡΡΡΠΎΠΉΡΡΠ²Π° ΡΡ ΠΎΠ΄ΠΈΡ Π²ΡΠ΅Π³ΠΎ Π½Π΅ΡΠΊΠΎΠ»ΡΠΊΠΎ ΠΌΠΈΠ½ΡΡ, ΠΎΠ΄Π½Π°ΠΊΠΎ ΠΊΠ°ΡΠ΅ΡΡΠ²ΠΎ ΠΊΠΎΠΏΡΠ΅Π½ΠΈΡ ΠΏΠΎΠ»ΡΡΠ°Π΅ΡΡΡ Π΄ΠΎΠ²ΠΎΠ»ΡΠ½ΠΎ Ρ ΠΎΡΠΎΡΠΈΠΌ.
ΠΠ΅ΡΡ ΠΏΡΠΎΡΠ΅ΡΡ ΠΊΠΎΠΏΡΠ΅Π½ΠΈΡ Π² Π²Π΅Π΄ΡΠ΅-ΠΊΠΎΠΏΡΠΈΠ»ΡΠ½Π΅, Π½Π°ΠΏΡΠΈΠΌΠ΅Ρ, ΡΡΠ±Ρ, Π·Π°Π½ΠΈΠΌΠ°Π΅Ρ ΠΎΠΊΠΎΠ»ΠΎ ΡΠ°ΡΠ°.
Π‘ΡΡΠ΅ΡΡΠ²ΡΡΡΠΈΠ΅ ΠΈΠ½ΡΠ΅ ΡΡ Π΅ΠΌΡ ΠΈ ΡΠ΅ΡΡΠ΅ΠΆΠΈ ΠΊΠΎΠΏΡΠΈΠ»ΡΠ½ΠΈ Π³ΠΎΡΡΡΠ΅Π³ΠΎ ΠΊΠΎΠΏΡΠ΅Π½ΠΈΡ Π»ΠΈΠ±ΠΎ Π²Π΅ΡΡΠΌΠ° ΡΠ»ΠΎΠΆΠ½Ρ Π΄Π»Ρ ΠΏΠΎΠ²ΡΠΎΡΠ΅Π½ΠΈΡ ΡΠ²ΠΎΠΈΠΌΠΈ ΡΡΠΊΠ°ΠΌΠΈ, Π»ΠΈΠ±ΠΎ Π½Π΅Π΄ΠΎΡΡΠ°ΡΠΎΡΠ½ΠΎ ΡΡΡΠ΅ΠΊΡΠΈΠ²Π½Ρ. ΠΠΎΡΡΠΎΠΌΡ Π² ΡΡΠΎΠΌ ΠΎΠ±Π·ΠΎΡΠ΅ ΠΎΠ½ΠΈ Π½Π΅ ΡΠ°ΡΡΠΌΠ°ΡΡΠΈΠ²Π°Π»ΠΈΡΡ.
| 
 | Π‘ΠΏΠΎΠ½ΡΠΎΡΡ: ΠΠ΅ΡΠΏΠ»Π°ΡΠ½Π°Ρ ΡΠ½Π΅ΡΠ³ΠΈΡ ΠΠΎΠ»ΡΡΠΈΡΠ΅ Π±Π΅ΡΠΏΠ»Π°ΡΠ½ΠΎΠ΅ ΡΠ»Π΅ΠΊΡΡΠΈΡΠ΅ΡΡΠ²ΠΎ ΠΎΡ ΡΠΎΠ»Π½ΡΠ° ΠΈ Π²Π΅ΡΡΠ°.Π‘ΠΎΠ±Π΅ΡΠΈ Π½Π΅Π΄ΠΎΡΠΎΠ³ΠΎ Π²Π΅ΡΡΡΠ½ΡΠ΅ Π³Π΅Π½Π΅ΡΠ°ΡΠΎΡΡ ΠΈ ΡΠΎΠ»Π½Π΅ΡΠ½ΡΠ΅ Π±Π°ΡΠ°ΡΠ΅ΠΈ. ΠΠΎΡΡΡΠΎΠΉΡΠ΅ ΡΠ²ΠΎΠΉ ΡΠΎΠ±ΡΡΠ²Π΅Π½Π½ΡΠΉ Π½Π΅Π±ΠΎΠ»ΡΡΠΎΠΉ ΡΠ°ΡΠ°ΠΉ Π£Π·Π½Π°ΠΉΡΠ΅, ΠΊΠ°ΠΊ ΡΡΠΎ ΡΠ΄Π΅Π»Π°ΡΡ Ρ 61 Π²Π΅Π»ΠΈΠΊΠΎΠ»Π΅ΠΏΠ½ΡΠΌ ΠΏΠ»Π°Π½ΠΎΠΌ ΡΡΡΠΎΠΈΡΠ΅Π»ΡΡΡΠ²Π° Π²ΡΠ΅Π³ΠΎ Π·Π° 29 Π΄ΠΎΠ»Π»Π°ΡΠΎΠ² ΡΠ΅Π³ΠΎΠ΄Π½Ρ. Π ΡΡ ΠΏΠΎΠ»ΡΡΠΈΡΡ Π±Π΅ΡΠΏΠ»Π°ΡΠ½ΠΎ, Π»Π΅Π³ΠΊΠΎ, ΡΠ΄Π΅Π»Π°ΡΡ ΡΠ²ΠΎΠΈΠΌΠΈ ΡΡΠΊΠ°ΠΌΠΈ ΡΡΠΊΠΎΠ²ΠΎΠ΄ΡΡΠ²Π° ΠΏΠΎ ΡΠ±ΠΎΡΠΊΠ΅. ΠΠ»Π°Π½Ρ Π°ΠΌΠ±Π°ΡΠΎΠ² Π΄Π»Ρ ΡΡΠΎΠ»Π±ΠΎΠ² ΡΠ²ΠΎΠΈΠΌΠΈ ΡΡΠΊΠ°ΠΌΠΈ ΠΠ°ΠΊΠ°ΠΆΠΈΡΠ΅ Π½Π΅Π΄ΠΎΡΠΎΠ³ΠΈΠ΅ Π·Π°Π³ΡΡΠΆΠ°Π΅ΠΌΡΠ΅ ΠΏΠ»Π°Π½Ρ ΡΡΠΎΠ»Π±ΠΎΠ²ΡΡ Π°ΠΌΠ±Π°ΡΠΎΠ² ΠΎΡ 10Ρ 12 Π΄ΠΎ 32Ρ 40. ΠΠΎΠ»ΡΡΠΈΡΡ 59 ΠΏΠ»Π°Π½ΠΎΠ² ΠΌΠ°ΡΡΠ΅ΡΡΠΊΠΈΡ Π‘ΠΊΠ°ΡΠ°ΡΡ ΠΏΠΎΠ΄ΡΠΎΠ±Π½ΡΠ΅ ΡΡΡΠΎΠΈΡΠ΅Π»ΡΠ½ΡΠ΅ ΡΠ΅ΡΡΠ΅ΠΆΠΈ ΠΈ Π±Π΅ΡΠΏΠ»Π°ΡΠ½ΡΠΉ ΡΠΏΠ΅ΡΠΈΠ°Π»ΠΈΡΡ ΠΏΠΎ ΡΡΡΠΎΠΈΡΠ΅Π»ΡΡΡΠ²Ρ ΡΠ²ΠΎΠΈΠΌΠΈ ΡΡΠΊΠ°ΠΌΠΈ ΡΠΎΠ²Π΅Ρ ΠΈ ΠΏΠΎΠ»ΡΡΠΈΡΠ΅ Π΄ΠΎΡΡΡΠΏ ΠΊ Π΅ΡΠ΅ Π΄Π΅ΡΡΡΠΊΠ°ΠΌ Π±Π΅ΡΠΏΠ»Π°ΡΠ½ΡΡ ΠΏΠ»Π°Π½ΠΎΠ². | 
ΠΠΎΠΏΡΠΈΠ»ΡΠ½Ρ — Π²Π΅ΠΊΡΠΎΡΠ½ΡΠΉ ΠΊΠ»ΠΈΠΏΠ°ΡΡ ΠΈ ΠΈΠ»Π»ΡΡΡΡΠ°ΡΠΈΠΈ (121)
— ΠΠ΅ΠΊΡΠΎΡΠ½Π°Ρ ΠΈΠ»Π»ΡΡΡΡΠ°ΡΠΈΡ ΠΊΠ»ΠΈΠΏ-Π°ΡΡ ΠΊΠΎΠΏΡΠΈΠ»ΡΠ½Ρ. 121 ΠΠΎΠΏΡΠΈΠ»ΡΠ½Ρ ΠΊΠ»ΠΈΠΏΠ°ΡΡ ΠΠ΅ΠΊΡΠΎΡΠ½ΡΠ΅ ΡΠΈΡΡΠ½ΠΊΠΈ Π² ΡΠΎΡΠΌΠ°ΡΠ΅ EPS Π΄ΠΎΡΡΡΠΏΠ½Ρ Π΄Π»Ρ ΠΏΠΎΠΈΡΠΊΠ° Ρ ΡΡΡΡΡ ΠΏΠΎΡΡΠ°Π²ΡΠΈΠΊΠΎΠ² Π±Π΅ΡΠΏΠ»Π°ΡΠ½ΡΡ ΠΈΠ»Π»ΡΡΡΡΠ°ΡΠΈΠΉ.- ΠΡΠ΅ Π½Π΅ Π·Π°ΡΠ΅Π³ΠΈΡΡΡΠΈΡΠΎΠ²Π°Π»ΠΈΡΡ? ΠΠ°ΡΠ΅Π³ΠΈΡΡΡΠΈΡΠΎΠ²Π°ΡΡΡΡ
- ΠΠΎΠΉΡΠΈ
- ΠΠ»Π°Π½Ρ ΠΈ ΡΠ΅Π½Ρ
- ΠΠΎΠΌ
- ΠΠ°ΡΠ°Π»ΠΎ ΡΠ°Π±ΠΎΡΡ
- Π‘ΠΊΠ°ΡΠ°ΡΡ ΠΈΠ·ΠΎΠ±ΡΠ°ΠΆΠ΅Π½ΠΈΡ
- ΠΠΎΡ ΡΡΠ΅ΡΠ½Π°Ρ Π·Π°ΠΏΠΈΡΡ
- Π‘ΠΊΠ°ΡΠ°ΡΡ Π±Π΅ΡΠΏΠ»Π°ΡΠ½ΠΎ
Π‘Π»Π΅Π΄ΡΡΡΠ°Ρ ΡΡΡΠ°Π½ΠΈΡΠ°
ΠΠΎΠΏΠΎΠ»Π½ΠΈΡΠ΅Π»ΡΠ½Π°Ρ ΠΈΠ½ΡΠΎΡΠΌΠ°ΡΠΈΡ
- ΠΠΈΡΠ΅Π½Π·ΠΈΠΎΠ½Π½ΠΎΠ΅ ΡΠΎΠ³Π»Π°ΡΠ΅Π½ΠΈΠ΅
- Π Can Stock Photo
- ΠΠΎΠ½ΡΠΈΠ΄Π΅Π½ΡΠΈΠ°Π»ΡΠ½ΠΎΡΡΡ
- ΠΡΠΎΠ΄Π°ΠΉΡΠ΅ ΡΠ²ΠΎΠΈ ΠΈΠ·ΠΎΠ±ΡΠ°ΠΆΠ΅Π½ΠΈΡ / ΠΊΠ»ΠΈΠΏΡ
- Π£ΡΠ»ΠΎΠ²ΠΈΡ ΠΈΡΠΏΠΎΠ»ΡΠ·ΠΎΠ²Π°Π½ΠΈΡ
- Π‘Π²ΡΠΆΠΈΡΠ΅ΡΡ Ρ Π½Π°ΠΌΠΈ
ΠΠΎΠΏΡΠΈΠ»ΡΠ½Ρ ΠΡΠΎΠ΅ΠΊΡ
ΠΡΡΠ½ΡΠΌ ΠΊΠΎΠΏΡΠΈΠ»ΡΠ½ΡΠΌ ΠΈ ΠΊΠΎΠΏΡΠΈΠ»ΡΠ½ΡΠΌ Π½ΡΠΆΠ½Π° ΡΡΠ³Π°.Π’ΡΠ³Π° — ΡΡΠΎ Π²ΡΠ°ΡΡΠ²Π°ΡΡΠ΅Π΅ Π΄Π΅ΠΉΡΡΠ²ΠΈΠ΅ Π²Π°ΡΠ΅Π³ΠΎ ΠΊΡΡΠΈΠ»ΡΡΠΈΠΊΠ°, ΡΡΠΎ ΡΡΠ³ΠΎΠ²Π°Ρ ΡΠΈΠ»Π°, ΠΊΠΎΡΠΎΡΠ°Ρ ΠΏΠΎΠ·Π²ΠΎΠ»ΡΠ΅Ρ Π΅ΠΌΡ Π²ΡΡΠ³ΠΈΠ²Π°ΡΡ Π²ΠΎΠ·Π΄ΡΡ Π² ΠΊΠΎΡΡΡΠΈΡΠ΅ Π΄Π»Ρ ΡΠ³ΠΎΡΠ°Π½ΠΈΡ, Π° Π·Π°ΡΠ΅ΠΌ Π²ΡΡΠ°Π»ΠΊΠΈΠ²Π°ΡΡ Π΄ΡΠΌ Π² ΠΊΠΎΠΏΡΠΈΠ»ΡΠ½ΡΡ ΠΊΠ°ΠΌΠ΅ΡΡ. Π ΡΠΎ ΠΆΠ΅ Π²ΡΠ΅ΠΌΡ ΠΎΠ½ ΡΠ΄Π°Π»ΡΠ΅Ρ Π³Π°Π·Ρ ΠΈΠ· ΠΊΠΎΠΏΡΠΈΠ»ΡΠ½ΠΈ ΡΠ΅ΡΠ΅Π· Π²ΡΡ ΠΎΠ΄Π½ΠΎΠ΅ ΠΎΡΠ²Π΅ΡΡΡΠΈΠ΅, Π±ΡΠ΄Ρ ΡΠΎ Π΄ΡΠΌΠΎΠ²Π°Ρ ΡΡΡΠ±Π°, Π΄ΡΠΌΠΎΡ ΠΎΠ΄ ΠΈΠ»ΠΈ ΠΏΡΠΎΡΡΠΎ ΠΎΡΠ²Π΅ΡΡΡΠΈΠ΅ Π² Π²Π΅ΡΡ Π½Π΅ΠΉ ΠΊΡΡΡΠΊΠ΅. Π Π±ΠΎΠ»Π΅Π΅ ΡΠ»ΠΎΠΆΠ½ΡΡ ΡΠ΅ΡΠΌΠΈΠ½Π°Ρ ΡΡΠΎ ΡΠ°Π·Π½ΠΈΡΠ° Π΄Π°Π²Π»Π΅Π½ΠΈΠΉ ΠΌΠ΅ΠΆΠ΄Ρ Π²ΠΎΠ·Π΄ΡΡ ΠΎΠΌ, ΠΎΠΊΡΡΠΆΠ°ΡΡΠΈΠΌ ΡΠΎΠΏΠΊΡ, ΠΈ Π³Π°Π·Π°ΠΌΠΈ Π² Π΄ΡΠΌΠΎΡ ΠΎΠ΄Π΅. Π§Π΅ΠΌ Π²ΡΡΠ΅ ΠΊΠΎΠ½ΡΡΡΡΠΊΡΠΈΡ, ΡΠ΅ΠΌ ΡΠΈΠ»ΡΠ½Π΅Π΅ ΡΡΠ³Π° .ΠΡΡΠΈΠ»ΡΡΠΈΠΊΠΈ, ΠΏΠΎΡΡΡΠΎΠ΅Π½Π½ΡΠ΅ ΠΈΠ· ΠΊΠ°ΠΌΠ΅Π½Π½ΠΎΠΉ ΠΊΠ»Π°Π΄ΠΊΠΈ, ΠΌΠΎΠ³ΡΡ Π²ΠΊΠ»ΡΡΠ°ΡΡ Π΄ΡΠΌΠΎΡ ΠΎΠ΄. ΠΠ΄Π½Π°ΠΊΠΎ ΡΡΠΎ Π±ΠΎΠ»ΡΡΠ΅ Π΄Π»Ρ Π²Π½Π΅ΡΠ½Π΅Π³ΠΎ Π²ΠΈΠ΄Π°, ΡΠ΅ΠΌ Π΄Π»Ρ ΠΏΡΠ°ΠΊΡΠΈΡΠ΅ΡΠΊΠΎΠΉ ΡΠ΅Π½Π½ΠΎΡΡΠΈ, ΠΏΠΎΡΠΎΠΌΡ ΡΡΠΎ ΠΊΡΡΠΈΠ»ΡΡΠΈΠΊΠΈ ΡΠ°Π±ΠΎΡΠ°ΡΡ ΠΏΡΠΈ Π΄ΠΎΠ²ΠΎΠ»ΡΠ½ΠΎ Π½ΠΈΠ·ΠΊΠΈΡ ΡΠ΅ΠΌΠΏΠ΅ΡΠ°ΡΡΡΠ°Ρ ΠΏΠΎ ΡΡΠ°Π²Π½Π΅Π½ΠΈΡ Ρ Π΄ΡΡΠ³ΠΈΠΌΠΈ Π½Π°Π³ΡΠ΅Π²Π°ΡΠ΅Π»ΡΠ½ΡΠΌΠΈ ΠΏΡΠΈΠ±ΠΎΡΠ°ΠΌΠΈ, ΠΊΠΎΡΠΎΡΡΠ΅ ΡΡΠ΅Π±ΡΡΡ Π±ΠΎΠ»ΡΡΠ΅ΠΉ ΡΡΠ³ΠΈ.
Π₯ΠΎΡΡ ΠΊΡΡΠΈΠ»ΡΡΠΈΠΊΠΈ Π±ΡΠ΄ΡΡ Π²ΡΠ΄Π΅Π»ΡΡΡ Π΄ΡΠΌ Π΄Π°ΠΆΠ΅ ΠΏΡΠΈ ΠΎΡΠ΅Π½Ρ Π½Π΅Π±ΠΎΠ»ΡΡΠΎΠΉ ΡΠΊΠ²ΠΎΠ·Π½ΡΠΊΠ΅, Π²Π°ΠΆΠ½ΠΎΡΡΡ ΡΡΠΎΠΉ ΡΡΠ³ΠΈ Π½Π΅Π»ΡΠ·Ρ Π½Π΅Π΄ΠΎΠΎΡΠ΅Π½ΠΈΠ²Π°ΡΡ. ΠΠ½ Π½ΡΠΆΠ΅Π½ Π΄Π»Ρ ΠΎΡΡΠ°ΡΡΠ²Π°Π½ΠΈΡ Π²Π»Π°Π³ΠΈ ΠΈ ΠΊΠΎΠΏΠΎΡΠΈ Π΄ΡΠΌΠ°, ΠΎΡΡΠ°ΡΡΠ΅Π³ΠΎΡΡ ΠΏΠΎΠ΄ ΠΏΠΎΠΊΡΠΎΠ²ΠΎΠΌ ΠΊΡΡΠΈΠ»ΡΡΠΈΠΊΠ°. Π‘ΡΡ Π°Ρ Π΄ΡΠ΅Π²Π΅ΡΠΈΠ½Π° ΡΠΎΠ΄Π΅ΡΠΆΠΈΡ 20% Π²Π»Π°Π³ΠΈ, ΠΈ Π² ΡΠΎΡΠ΅ΡΠ°Π½ΠΈΠΈ Ρ ΠΈΠ·Π±ΡΡΠΎΡΠ½ΡΠΌ Π²ΠΎΠ·Π΄ΡΡ ΠΎΠΌ, ΠΊΠΎΡΠΎΡΡΠΉ ΠΏΠΎΠΏΠ°Π΄Π°Π΅Ρ Π² ΠΊΠΎΠΏΡΠΈΠ»ΡΠ½ΡΡ ΠΊΠ°ΠΌΠ΅ΡΡ ΠΈ Π΄ΡΠΌΠΎΡ ΠΎΠ΄, Π½Π°ΠΌ ΠΏΡΠΈΡΠ»ΠΎΡΡ Π±Ρ ΠΏΠΎΠ΄Π½ΡΡΡ ΡΠ΅ΠΌΠΏΠ΅ΡΠ°ΡΡΡΡ Π΄ΡΠΌΠΎΡ ΠΎΠ΄Π° ΠΏΠΎΡΡΠΈ Π΄ΠΎ 180 Β° F (82 Β° C), ΡΡΠΎΠ±Ρ ΠΏΡΠ΅Π΄ΠΎΡΠ²ΡΠ°ΡΠΈΡΡ ΠΊΠΎΠ½Π΄Π΅Π½ΡΠ°ΡΠΈΡ, ΠΊΠΎΡΠΎΡΠ°Ρ ΠΌΠΎΠΆΠ΅Ρ Π²ΡΡΡΡΠΈΡΡ Π½Π°ΡΠ΅ ΠΌΡΡΠΎ. ΠΊΡΡΠΎΡΠΊΠΈ ΠΈΠ»ΠΈ ΡΠΎΡΠΈΡΠΊΠΈ.ΠΡΠ°Π²ΠΈΠ»ΡΠ½Π°Ρ ΡΡΠ³Π° ΡΠ΅ΡΠ°Π΅Ρ ΠΏΡΠΎΠ±Π»Π΅ΠΌΡ.
ΠΡΡΠ΅Π½ΠΈΠ΅ Π½Π° Π½Π΅ΡΠΎΠ²Π½ΠΎΠΉ ΠΏΠΎΠ²Π΅ΡΡ Π½ΠΎΡΡΠΈ ΡΠΆΠ΅ ΡΠΎΠ·Π΄Π°Π΅Ρ Π½Π΅ΠΊΠΎΡΠΎΡΡΡ ΡΡΠ³Ρ, ΠΏΠΎΡΠΎΠΌΡ ΡΡΠΎ ΠΎΠ΄ΠΈΠ½ ΠΊΠΎΠ½Π΅Ρ ΡΡΡΠ±Ρ Π±ΡΠ΄Π΅Ρ Π²ΡΡΠ΅ Π΄ΡΡΠ³ΠΎΠ³ΠΎ. Π’Π°ΠΊΠΈΠ΅ ΡΠ°ΠΊΡΠΎΡΡ, ΠΊΠ°ΠΊ Π²ΡΡΠΎΡΠ° Π΄ΡΠΌΠΎΡ ΠΎΠ΄Π°, ΡΠ°Π·ΠΌΠ΅Ρ Π΄ΡΠΌΠΎΡ ΠΎΠ΄Π°, Π²ΡΡΠΎΡΠ° ΠΈ Π²Π΅ΡΠ΅Ρ, Π΄ΡΡΡΠΈΠΉ Π½Π°Π΄ Π΄ΡΠΌΠΎΡ ΠΎΠ΄ΠΎΠΌ, Π²Π½ΠΎΡΡΡ ΡΠ²ΠΎΠΉ Π²ΠΊΠ»Π°Π΄ Π² ΡΡΡΠ΅ΠΊΡ ΡΡΠ³ΠΈ. Π’Π΅ΠΌ Π½Π΅ ΠΌΠ΅Π½Π΅Π΅, ΡΠ°ΠΌΡΠΌ Π²Π°ΠΆΠ½ΡΠΌ ΡΠ°ΠΊΡΠΎΡΠΎΠΌ ΡΠ²Π»ΡΠ΅ΡΡΡ ΡΠ°Π·Π½ΠΈΡΠ° ΡΠ΅ΠΌΠΏΠ΅ΡΠ°ΡΡΡ ΠΌΠ΅ΠΆΠ΄Ρ Π½Π°ΡΡΠΆΠ½ΡΠΌ Π²ΠΎΠ·Π΄ΡΡ ΠΎΠΌ ΠΈ ΡΠ΅ΠΌΠΏΠ΅ΡΠ°ΡΡΡΠΎΠΉ Π΄ΡΠΌΠΎΠ²ΡΡ Π³Π°Π·ΠΎΠ² . ΠΠΎΡ ΠΏΠΎΡΠ΅ΠΌΡ ΠΊΠ°ΠΆΠ΄Π°Ρ ΠΊΠΎΠΏΡΠΈΠ»ΡΠ½Ρ ΠΈΠ»ΠΈ Π΄ΡΠΎΠ²ΡΠ½Π°Ρ ΠΏΠ΅ΡΡ ΡΠ°Π±ΠΎΡΠ°Π΅Ρ Π»ΡΡΡΠ΅ Π² ΠΏΡΠΎΡ Π»Π°Π΄Π½ΡΠ΅ Π·ΠΈΠΌΠ½ΠΈΠ΅ ΠΌΠ΅ΡΡΡΡ, ΡΠ΅ΠΌ Π² ΡΠ΅ΠΏΠ»ΡΠ΅ Π»Π΅ΡΠ½ΠΈΠ΅ Π΄Π½ΠΈ.
ΠΠ΅ΠΊΠΎΡΠΎΡΡΠ΅ ΠΏΡΠΎΡΡΡΠ΅ ΠΊΡΡΠΈΠ»ΡΡΠΈΠΊΠΈ ΡΠ΄Π΅Π»Π°Π½Ρ ΠΈΠ· Π±Π΅ΡΠΎΠ½Π½ΡΡ Π±Π»ΠΎΠΊΠΎΠ², ΡΠ²ΠΎΠ±ΠΎΠ΄Π½ΠΎ ΡΠ»ΠΎΠΆΠ΅Π½Π½ΡΡ Π²ΠΌΠ΅ΡΡΠ΅, Π° Π΄ΡΠΌΠΎΠ²Π°Ρ ΡΡΡΠ±Π° (Π΄Π»ΠΈΠ½ΠΎΠΉ ΠΎΠΊΠΎΠ»ΠΎ 3 ΡΡΡΠΎΠ²) Π½Π°Ρ ΠΎΠ΄ΠΈΡΡΡ Π½Π° ΡΠΎΠΌ ΠΆΠ΅ ΡΡΠΎΠ²Π½Π΅, ΡΡΠΎ ΠΈ ΠΊΡΡΠΈΠ»ΡΡΠΈΠΊ. Π‘Π²Π΅ΡΡ Ρ ΠΊΠ»Π°Π΄ΡΡ ΡΡΠ°ΡΡΠΉ ΠΌΠ΅ΡΠΎΠΊ ΠΈΠ· ΠΌΠ΅ΡΠΊΠΎΠ²ΠΈΠ½Ρ Ρ ΠΊΠ°ΡΡΠΎΡΠ΅Π»Π΅ΠΌ, ΡΡΠΎΠ±Ρ Π½Π΅ Π·Π°Π΄ΡΠΌΠ»ΠΈΡΡ. Π ΡΠΎΡ ΠΌΠΎΠΌΠ΅Π½Ρ, ΠΊΠΎΠ³Π΄Π° Π²ΠΎΠ·Π΄ΡΡ Π½Π°Π³ΡΠ΅Π²Π°Π΅ΡΡΡ, ΠΎΠ½ ΠΏΠΎΠ΄Π½ΠΈΠΌΠ°Π΅ΡΡΡ ΠΏΡΡΠΌΠΎ Π²Π²Π΅ΡΡ , Π° Π΅Π³ΠΎ ΠΌΠ΅ΡΡΠΎ Π·Π°Π½ΠΈΠΌΠ°Π΅Ρ Ρ ΠΎΠ»ΠΎΠ΄Π½ΡΠΉ Π²ΠΎΠ·Π΄ΡΡ , ΡΠΎΠ·Π΄Π°Π²Π°Ρ Π΅ΡΡΠ΅ΡΡΠ²Π΅Π½Π½ΡΡ ΡΡΠ³Ρ . ΠΡΠΎ ΠΎΡΠ»ΠΈΡΠ½ΠΎ ΠΏΠΎΠ΄Ρ ΠΎΠ΄ΠΈΡ Π΄Π»Ρ ΡΠ°ΠΌΡΡ ΠΏΡΠΎΡΡΡΡ ΠΊΡΡΠΈΠ»ΡΡΠΈΠΊΠΎΠ², Π½ΠΎ ΠΊΠ°ΠΊ ΡΠΎΠ»ΡΠΊΠΎ Π² ΠΊΠΎΠ½ΡΡΡΡΠΊΡΠΈΡ Π±ΡΠ΄ΡΡ Π΄ΠΎΠ±Π°Π²Π»Π΅Π½Ρ ΡΠ°ΠΊΠΈΠ΅ Π°ΠΊΡΠ΅ΡΡΡΠ°ΡΡ, ΠΊΠ°ΠΊ ΠΏΠ΅ΡΠ΅Π³ΠΎΡΠΎΠ΄ΠΊΠΈ, ΠΎΠΏΠΎΡΡ, ΠΊΠΎΠΏΡΠΈΠ»ΡΠ½ΡΠ΅ ΠΏΠ°Π»ΠΊΠΈ, ΠΏΠΎΠ΄Π²Π΅ΡΠΈΠ²Π°Π½ΠΈΠ΅ ΠΌΡΡΠ° ΠΈ Π»ΠΎΠΊΡΠΈ Π² ΡΡΡΠ±ΠΊΠ΅, Π΄ΡΠΌΡ ΠΌΠΎΠΆΠ΅Ρ ΠΏΠΎΡΡΠ΅Π±ΠΎΠ²Π°ΡΡΡΡ Π΄ΠΎΠΏΠΎΠ»Π½ΠΈΡΠ΅Π»ΡΠ½Π°Ρ Π²ΡΠ°ΡΡΠ²Π°ΡΡΠ°Ρ ΡΠΈΠ»Π° (ΡΡΠ³Π°), ΡΡΠΎΠ±Ρ ΠΏΠΎΠ΄Π½ΡΡΡΡΡ Π²Π²Π΅ΡΡ . ΠΏΠ΅ΡΠ½Π°Ρ ΡΡΡΠ±Π°.
ΠΡΠΈΠΌΠ΅ΡΠ°Π½ΠΈΠ΅: ΡΡΠ³Π° Π·Π°Π²ΠΈΡΠΈΡ Π½Π΅ ΠΎΡ Π΄Π»ΠΈΠ½Ρ ΡΡΡΠ±Ρ, Π° ΠΎΡ ΡΠ°Π·Π½ΠΈΡΡ Π΄Π°Π²Π»Π΅Π½ΠΈΡ (Π²ΡΡΠΎΡΡ) ΠΌΠ΅ΠΆΠ΄Ρ ΡΡΠΎΠ²Π½Π΅ΠΌ Π²ΡΡ ΠΎΠ΄Π° Π΄ΡΠΌΠ° ΠΈΠ· ΠΊΠΎΡΡΡΠΎΠ²ΠΎΠΉ ΡΠΌΡ ΠΈ ΡΡΠΎΠ²Π½Π΅ΠΌ Π²Ρ ΠΎΠ΄Π° Π΄ΡΠΌΠ° Π² ΠΊΠΎΠΏΡΠΈΠ»ΡΠ½Π΅. ΠΠΎΠ»Π΅Π΅ ΠΊΠΎΡΠΎΡΠΊΠ°Ρ ΠΊΡΡΡΠ°Ρ ΡΡΡΠ±Π° ΠΌΠΎΠΆΠ΅Ρ ΡΠΎΠ·Π΄Π°ΡΡ Π±ΠΎΠ»Π΅Π΅ ΡΠΈΠ»ΡΠ½ΡΡ ΠΎΡΠ°Π΄ΠΊΡ, ΡΠ΅ΠΌ Π±ΠΎΠ»Π΅Π΅ Π΄Π»ΠΈΠ½Π½Π°Ρ Ρ ΠΌΠ΅Π½ΡΡΠΈΠΌ ΡΠ³Π»ΠΎΠΌ, ΠΊΠ°ΠΊ ΠΏΠΎΠΊΠ°Π·Π°Π½ΠΎ Π½Π° ΡΠΈΡΡΠ½ΠΊΠ΅ Π½ΠΈΠΆΠ΅.
Π§ΡΠΎ Π΄Π΅Π»Π°ΡΡ, Π΅ΡΠ»ΠΈ ΠΊΡΡΠΈΠ»ΡΡΠΈΠΊ Π½Π΅ Π²ΡΡΡΠ³ΠΈΠ²Π°Π΅Ρ Π΄ΡΠΌ? ΠΡ ΠΌΠΎΠ³Π»ΠΈ Π±Ρ ΡΠ°Π·ΠΌΠ΅ΡΡΠΈΡΡ Π½Π°ΡΡ ΠΏΠΎΠΆΠ°ΡΠ½ΡΡ ΡΠΌΡ Π½Π° 2 ΡΡΡΠ° ΠΏΠΎΠ΄ Π·Π΅ΠΌΠ»Π΅ΠΉ, Π½ΠΎ Π΄Π»Ρ ΡΡΠΎΠ³ΠΎ ΠΏΠΎΡΡΠ΅Π±ΡΠ΅ΡΡΡ ΠΏΡΠΎΠ»ΠΎΠΆΠΈΡΡ ΡΠΎΠ΅Π΄ΠΈΠ½ΠΈΡΠ΅Π»ΡΠ½ΡΡ ΡΡΡΠ±Ρ ΠΈΠ»ΠΈ ΡΠ΄Π΅Π»Π°ΡΡ ΡΡΠ°Π½ΡΠ΅Ρ.Π ΠΎΠ±ΠΎΠΈΡ ΡΠ»ΡΡΠ°ΡΡ ΠΏΡΠΈΡ ΠΎΠ΄ΠΈΡΡΡ ΠΊΠΎΠΏΠ°ΡΡ, ΠΈ Π΅ΡΠ»ΠΈ Π½Π°ΡΠ° ΠΊΠΎΠ½ΡΡΡΡΠΊΡΠΈΡ ΠΎΠΏΠΈΡΠ°Π΅ΡΡΡ Π½Π° Π±Π΅ΡΠΎΠ½Π½ΡΡ ΠΏΠΎΠ²Π΅ΡΡ Π½ΠΎΡΡΡ, ΡΡΠΎ Π²ΡΠ³Π»ΡΠ΄ΠΈΡ ΠΏΡΠΎΠ±Π»Π΅ΠΌΠΎΠΉ. ΠΠ΅ ΡΠΎΠ²ΡΠ΅ΠΌ, Π²ΡΠ΅, ΡΡΠΎ Π½Π°ΠΌ Π½ΡΠΆΠ½ΠΎ ΡΠ΄Π΅Π»Π°ΡΡ, ΡΡΠΎ Π΄ΠΎΠ±Π°Π²ΠΈΡΡ 2 ΡΡΡΠ° ΠΌΠ΅ΡΠ°Π»Π»ΠΈΡΠ΅ΡΠΊΠΎΠΉ ΡΡΡΠ±Ρ Π΄ΠΈΠ°ΠΌΠ΅ΡΡΠΎΠΌ 6 Π΄ΡΠΉΠΌΠΎΠ² ΠΊ Π²Π΅ΡΡ Π½Π΅ΠΉ ΡΠ°ΡΡΠΈ ΠΊΡΡΠΈΠ»ΡΠ½ΠΈΡΡ, ΠΈ ΠΏΡΠΎΠ±Π»Π΅ΠΌΠ° Π±ΡΠ΄Π΅Ρ ΡΠ΅ΡΠ΅Π½Π°. ΠΠ»ΠΈ ΠΌΡ ΠΌΠΎΠΆΠ΅ΠΌ ΡΠ²Π΅Π»ΠΈΡΠΈΡΡ Π²ΡΡΠΎΡΡ ΠΊΠΎΠΏΡΠΈΠ»ΡΠ½ΠΈ, Π·Π°Π»ΠΎΠΆΠΈΠ² Π΄ΠΎΠΏΠΎΠ»Π½ΠΈΡΠ΅Π»ΡΠ½ΡΠΉ ΡΡΠΎΠ²Π΅Π½Ρ Π±Π»ΠΎΠΊΠΎΠ².
Π ΠΎΡΠ΅Π½Ρ ΠΏΡΠΎΡΡΠΎΠΌ ΠΎΠ΄Π½ΠΎΠΊΠΎΠΌΠΏΠΎΠ½Π΅Π½ΡΠ½ΠΎΠΌ ΠΊΠΎΠΏΡΠΈΠ»ΡΠ½Π΅ Π΄ΠΎΡΡΠ°ΡΠΎΡΠ½ΠΎ ΡΠ°Π·ΠΆΠ΅ΡΡ ΠΎΠ³ΠΎΠ½Ρ, ΡΡΠΎΠ±Ρ ΡΠΎΠ·Π΄Π°ΡΡ Π½Π΅ΠΎΠ±Ρ ΠΎΠ΄ΠΈΠΌΡΡ ΡΡΠ³Ρ.
Π£Π²Π΅Π»ΠΈΡΠ΅Π½ΠΈΠ΅ ΡΡΠ³ΠΈ Π·Π° ΡΡΠ΅Ρ Π΄ΠΎΠ±Π°Π²Π»Π΅Π½ΠΈΡ ΡΡΠ°ΡΡΠΊΠ° ΡΡΡΠ±Ρ.
Π€ΠΎΡΠΎ Π»ΡΠ±Π΅Π·Π½ΠΎ ΠΏΡΠ΅Π΄ΠΎΡΡΠ°Π²Π»Π΅Π½ΠΎ Szuwar.
Π€ΠΎΡΠΎ Π»ΡΠ±Π΅Π·Π½ΠΎ ΠΏΡΠ΅Π΄ΠΎΡΡΠ°Π²Π»Π΅Π½ΠΎ Angin.
Π€ΠΎΡΠΎ Π»ΡΠ±Π΅Π·Π½ΠΎ ΠΏΡΠ΅Π΄ΠΎΡΡΠ°Π²Π»Π΅Π½ΠΎ ΠΠΈΡΠ΅ΠΊ.
ΠΠ΄Π΅ΡΡ ΡΠΊΠ²ΠΎΠ·Π½ΡΠΊ, ΠΈ ΡΡΡΠ±Π° ΡΠ°ΡΡΠ΅ΠΈΠ²Π°Π΅Ρ Π΄ΡΠΌ Π² Π»Π΅Ρ. Π€ΠΎΡΠΎΠ³ΡΠ°ΡΠΈΡ ΠΏΡΠ΅Π΄ΠΎΡΡΠ°Π²Π»Π΅Π½Π° ββAbratek
ΠΡΠ»ΠΈ Π² ΠΊΠ°ΡΠ΅ΡΡΠ²Π΅ Π΄ΡΠΌΠΎΠ²ΠΎΠΉ ΡΡΡΠ±Ρ ΠΈΡΠΏΠΎΠ»ΡΠ·ΡΠ΅ΡΡΡ ΠΌΠ΅ΡΠ°Π»Π»ΠΈΡΠ΅ΡΠΊΠ°Ρ ΡΡΡΠ±Π° Π΄Π»Ρ ΠΏΠ΅ΡΠΈ, ΠΏΡΠΎΡΡΠΎ ΠΈΠ·ΠΎΠ»ΠΈΡΡΡ Π΅Π΅ ΠΎΡ Π²Π½Π΅ΡΠ½Π΅ΠΉ ΡΠ΅ΠΌΠΏΠ΅ΡΠ°ΡΡΡΡ, ΠΌΡ ΡΠΎΠ·Π΄Π°Π΄ΠΈΠΌ Π±ΠΎΠ»Π΅Π΅ ΡΠΈΠ»ΡΠ½ΡΡ ΡΡΠ³Ρ Π²Π½ΡΡΡΠΈ ΡΠΈΡΡΠ΅ΠΌΡ. ΠΡΡΠ΅ΠΊΡ Π±ΡΠ΄Π΅Ρ Π½Π°ΠΈΠ±ΠΎΠ»Π΅Π΅ Π·Π°ΠΌΠ΅ΡΠ΅Π½ Π² Π±ΠΎΠ»Π΅Π΅ ΠΏΡΠΎΡ Π»Π°Π΄Π½ΡΠ΅ ΠΌΠ΅ΡΡΡΡ ΠΎΡΠ΅Π½ΡΡ ΠΈ Π·ΠΈΠΌΠΎΠΉ, ΠΊΠΎΠ³Π΄Π° ΡΠΊΠ²ΠΎΠ·Π½ΡΠΊΠΈ Π²ΡΠ΅Π³Π΄Π° ΡΠ°ΠΌΡΠ΅ ΡΠΈΠ»ΡΠ½ΡΠ΅.
ΠΡΠ°Π΄ΠΊΠ° ΠΌΠΎΠΆΠ΅Ρ Π±ΡΡΡ ΡΠ²Π΅Π»ΠΈΡΠ΅Π½Π° Π½Π°:
- ΡΠ²Π΅Π»ΠΈΡΠ΅Π½ΠΈΠ΅ Π²ΡΡΠΎΡΡ Π΄ΡΠΌΠ°
- ΡΠ²Π΅Π»ΠΈΡΠ΅Π½ΠΈΠ΅ Π΄Π»ΠΈΠ½Ρ Π΄ΡΠΌΠΎΡ ΠΎΠ΄Π°
- ΡΠ²Π΅Π»ΠΈΡΠ΅Π½ΠΈΠ΅ ΡΠ³Π»Π° Π½Π°ΠΊΠ»ΠΎΠ½Π° Π΄ΡΠΌΠΎΠ²ΠΎΠΉ ΡΡΡΠ±Ρ
- ΠΠ·ΠΎΠ»ΡΡΠΈΠΎΠ½Π½Π°Ρ ΡΡΡΠ±Π° Π΄ΡΠΌΠΎΡ ΠΎΠ΄Π° ΠΈΠ»ΠΈ Π΄ΡΠΌΠΎΡ ΠΎΠ΄Π°
ΠΠ° ΠΏΡΠΈΠ²Π΅Π΄Π΅Π½Π½ΠΎΠΌ Π²ΡΡΠ΅ ΡΠ΅ΡΡΠ΅ΠΆΠ΅ ΡΡΡΠ±Π° B ΠΊΠΎΡΠΎΡΠ΅ ΡΡΡΠ±Ρ A, Π½ΠΎ ΠΈΠΌΠ΅Π΅Ρ Π±ΠΎΠ»ΡΡΠΈΠΉ ΡΠ³ΠΎΠ» ΠΈ Π±ΠΎΠ»ΡΡΡΡ ΡΡΠ³Ρ. ΠΠ°ΠΏΡΠΈΠΌΠ΅Ρ, ΡΡΠΎΠ±Ρ ΠΏΠΎΠ»ΡΡΠΈΡΡ ΡΠ³ΠΎΠ» 30 Π³ΡΠ°Π΄ΡΡΠΎΠ² Ρ ΡΡΡΠ±ΠΊΠΎΠΉ 10 ΡΡΡΠΎΠ² (3 ΠΌ), ΠΎΡΠ½ΠΎΠ²Π°Π½ΠΈΠ΅ ΠΊΡΡΠΈΠ»ΡΡΠΈΠΊΠ° Π΄ΠΎΠ»ΠΆΠ½ΠΎ Π±ΡΡΡ ΡΠ°Π·ΠΌΠ΅ΡΠ΅Π½ΠΎ Π½Π° ΡΠ°ΡΡΡΠΎΡΠ½ΠΈΠΈ 5 ΡΡΡΠΎΠ² (1.5 ΠΌ) Π²ΡΡΠ΅ ΠΊΠΎΡΡΡΠΎΠ²ΠΎΠΉ ΡΠΌΡ.
ΠΠ΄Π½Π°ΠΊΠΎ ΠΌΠΎΠΆΠ½ΠΎ ΠΏΠΎΠ»ΡΡΠΈΡΡ Π±ΠΎΠ»ΡΡΠΈΠΉ ΡΠ³ΠΎΠ» ΠΈ Π±ΠΎΠ»ΡΡΡΡ ΠΎΡΠ°Π΄ΠΊΡ, ΠΈΡΠΏΠΎΠ»ΡΠ·ΡΡ ΠΏΡΠ΅ΠΈΠΌΡΡΠ΅ΡΡΠ²Π° Π³ΠΎΡΠ½ΠΎΠΉ ΠΌΠ΅ΡΡΠ½ΠΎΡΡΠΈ.
ΠΠΎΡΠΏΠΎΠ»ΡΠ·ΠΎΠ²Π°ΡΡΡΡ ΠΌΠ΅ΡΡΠ½ΠΎΡΡΡΡ.
Π£ΡΡΠ°Π½ΠΎΠ²ΠΊΠ° Π΄Π²Π΅ΡΠ΅ΠΉ ΡΠΎΠΏΠΊΠΈ.
ΠΠΎΡΠΎΠ²Π°Ρ ΠΊΠΎΠΏΡΠΈΠ»ΡΠ½Ρ. ΠΠΎΠΏΡΠΈΠ»ΡΠ½Ρ ΠΏΠΎΡΡΡΠΎΠΈΠ»Π° ΠΠΎΠ°Ρ ΠΈΠΌ-ΠΠΎΠ»ΡΡΠ°
Π Π΅Π³ΡΠ»ΡΡΠΎΡ ΡΡΠ³ΠΈ
ΠΠΎΠ½ΡΡΠΎΠ»Ρ ΡΡΠ³ΠΈ Π΄ΡΠΌΠ° ΠΈΠΌΠ΅Π΅Ρ ΠΏΠ΅ΡΠ²ΠΎΡΡΠ΅ΠΏΠ΅Π½Π½ΠΎΠ΅ Π·Π½Π°ΡΠ΅Π½ΠΈΠ΅ ΠΏΡΠΈ ΠΊΠΎΠΏΡΠ΅Π½ΠΈΠΈ ΠΌΡΡΠ°. ΠΡΠΎ Π΄ΠΎΡΡΠΈΠ³Π°Π΅ΡΡΡ ΠΏΡΡΠ΅ΠΌ ΡΡΡΠ°Π½ΠΎΠ²ΠΊΠΈ Π·Π°ΡΠ»ΠΎΠ½ΠΊΠΈ Π² Π΄ΡΠΌΠΎΠ²ΠΎΠΉ ΡΡΡΠ±Π΅, ΡΡΡΠ°Π½ΠΎΠ²ΠΊΠΈ Π΄ΡΠΌΠΎΠ²ΠΎΠΉ ΡΡΡΠ±Ρ ΡΠΎ Π²ΡΡΡΠΎΠ΅Π½Π½ΠΎΠΉ Π·Π°ΡΠ»ΠΎΠ½ΠΊΠΎΠΉ, ΠΏΠΎΠ΄ΡΠ΅ΠΌΠ° ΠΊΡΡΡΠΊΠΈ ΠΊΡΡΠΈΠ»ΡΡΠΈΠΊΠ°, Π΄ΠΎΠ±Π°Π²Π»Π΅Π½ΠΈΡ ΠΈΠ»ΠΈ ΡΠ΄Π°Π»Π΅Π½ΠΈΡ ΠΌΠ΅ΡΠΊΠΎΠ² ΠΈΠ· ΠΌΠ΅ΡΠΊΠΎΠ²ΠΈΠ½Ρ, Π·Π°ΠΊΡΡΡΠΈΡ ΠΎΡΠΊΡΡΡΡΡ ΠΎΡΠ²Π΅ΡΡΡΠΈΠΉ Π² Π²Π΅ΡΡ Π½Π΅ΠΉ ΠΊΡΡΡΠΊΠ΅ ΠΈΠ»ΠΈ Π»ΡΠ±ΡΡ Π΄ΡΡΠ³ΠΈΡ ΡΡΠ΅Π΄ΡΡΠ², ΠΊΠΎΡΠΎΡΡΠ΅ Ρ Π½Π°Ρ Π΅ΡΡΡ. Π½Π°ΡΠ΅ ΡΠ°ΡΠΏΠΎΡΡΠΆΠ΅Π½ΠΈΠ΅.
Π‘ΡΠ°Π½Π΄Π°ΡΡΠ½ΠΎΠ³ΠΎ ΡΠ΅ΡΠ΅Π½ΠΈΡ Π½Π΅ ΡΡΡΠ΅ΡΡΠ²ΡΠ΅Ρ, ΠΏΠΎΡΠΎΠΌΡ ΡΡΠΎ Π΅ΡΡΡ ΠΌΠ½ΠΎΠ³ΠΎ ΡΠ°Π·Π½ΡΡ ΠΊΡΡΠΈΠ»ΡΡΠΈΠΊΠΎΠ². ΠΠ²Π΅ ΠΎΡΠ½ΠΎΠ²Π½ΡΠ΅ ΠΏΡΠΈΡΠΈΠ½Ρ Π΄Π»Ρ Π±ΠΎΡΡΠ±Ρ Ρ Π·Π°Π΄ΡΠΌΠ»Π΅Π½ΠΈΠ΅ΠΌ:
- ΠΠ½ Π΄ΠΎΠ»ΠΆΠ΅Π½ Π±ΡΡΡ ΠΏΠΎΠ»Π½ΠΎΡΡΡΡ ΠΎΡΠΊΡΡΡ, ΡΡΠΎΠ±Ρ ΡΠΎΠ³ΡΠ΅ΡΡ ΠΊΡΡΠΈΠ»ΡΡΠΈΠΊΠ° (ΠΏΠ΅ΡΠ΅Π΄ ΠΏΠΎΠ΄Π°ΡΠ΅ΠΉ Π΄ΡΠΌΠ°), ΡΡΠΎΠ±Ρ ΠΈΠ·Π±Π°Π²ΠΈΡΡΡΡ ΠΎΡ Π²Π»Π°Π³ΠΈ
- ΠΠ»Ρ ΠΊΠΎΠ½ΡΡΠΎΠ»Ρ Π²ΡΡ ΠΎΠ΄Π° Π΄ΡΠΌΠ° ΠΏΡΠΈ ΠΊΠΎΠΏΡΠ΅Π½ΠΈΠΈ
ΠΡΡΠΈΠ»ΡΡΠΈΠΊ — ΡΡΠΎ Π½Π΅ Π΄ΡΠΎΠ²ΡΠ½Π°Ρ ΠΏΠ΅ΡΡ, ΡΠ΅Π»Ρ ΠΊΠΎΡΠΎΡΠΎΠΉ — ΡΠΎΠ³ΡΠ΅ΡΡ Π΄ΠΎΠΌ ΠΈΠ»ΠΈ Π²ΡΠΊΠΈΠΏΡΡΠΈΡΡ Π²ΠΎΠ΄Ρ, Π° Π΅Π΅ ΠΎΠΆΠΈΠ΄Π°Π΅ΠΌΠ°Ρ ΡΠ΅ΠΌΠΏΠ΅ΡΠ°ΡΡΡΠ° Π½Π°ΠΌΠ½ΠΎΠ³ΠΎ Π½ΠΈΠΆΠ΅. ΠΡΠΎ ΡΠ°ΠΊΠΆΠ΅ ΠΎΠ·Π½Π°ΡΠ°Π΅Ρ, ΡΡΠΎ Π½Π΅Ρ Π½Π΅ΠΎΠ±Ρ ΠΎΠ΄ΠΈΠΌΠΎΡΡΠΈ ΡΠΎΠ·Π΄Π°Π²Π°ΡΡ ΠΎΡΠ΅Π½Ρ ΡΠΈΠ»ΡΠ½ΡΡ ΡΡΠ³Ρ.ΠΠΎΠ³Π΄Π° ΠΌΡ Π½Π°ΡΠΈΠ½Π°Π΅ΠΌ Π³ΠΎΡΠΎΠ²ΠΈΡΡ ΠΌΡΡΠΎ Π²Π½ΡΡΡΠΈ ΠΊΠΎΠΏΡΠΈΠ»ΡΠ½ΠΈ ΠΈ ΡΠ΅ΠΌΠΏΠ΅ΡΠ°ΡΡΡΠ° ΠΏΠΎΠ²ΡΡΠ°Π΅ΡΡΡ, ΡΠΊΠ²ΠΎΠ·Π½ΡΠΊ ΡΡΠ°Π½ΠΎΠ²ΠΈΡΡΡ Π³ΠΎΡΠ°Π·Π΄ΠΎ Π±ΠΎΠ»Π΅Π΅ Π²Π°ΠΆΠ½ΡΠΌ. ΠΠ°ΠΌ ΡΠ°ΠΊΠΆΠ΅ ΠΏΠΎΠ½Π°Π΄ΠΎΠ±ΠΈΡΡΡ Π±ΠΎΠ»ΡΡΠ΅ ΡΡΠ³ΠΈ, Π΅ΡΠ»ΠΈ Π²Ρ ΡΠΎΠ±ΠΈΡΠ°Π΅ΡΠ΅ΡΡ ΡΠΆΠΈΠ³Π°ΡΡ Π΄ΡΠΎΠ²Π° ΡΠΈΡΡΠΎ ΠΈ ΡΡΡΠ΅ΠΊΡΠΈΠ²Π½ΠΎ. Π‘Π°ΠΌΡΠΌ ΠΏΡΠΎΡΡΡΠΌ ΡΡΡΡΠΎΠΉΡΡΠ²ΠΎΠΌ Π΄Π»Ρ ΡΠ΅Π³ΡΠ»ΠΈΡΠΎΠ²Π°Π½ΠΈΡ ΡΡΠ³ΠΈ ΡΠ²Π»ΡΠ΅ΡΡΡ ΠΏΠ»ΠΎΡΠΊΠΈΠΉ Π΄Π΅ΠΌΠΏΡΠ΅Ρ, ΠΊΠΎΡΠΎΡΡΠΉ ΠΏΡΠ΅Π΄ΡΡΠ°Π²Π»ΡΠ΅Ρ ΡΠΎΠ±ΠΎΠΉ ΠΏΠ»ΠΎΡΠΊΠΈΠΉ ΠΊΡΡΠΎΠΊ ΠΌΠ΅ΡΠ°Π»Π»Π°. ΠΠ½ ΠΏΡΠΎΡΡΠΎ Π²Ρ ΠΎΠ΄ΠΈΡ ΠΈ Π²ΡΡ ΠΎΠ΄ΠΈΡ ΠΈΠ· ΡΠ΅Π»ΠΈ Π² ΡΡΡΠ±Π΅ ΠΏΠ΅ΡΠΈ ΠΈΠ»ΠΈ ΠΊΠΈΡΠΏΠΈΡΠ½ΠΎΠΉ Π΄ΡΠΌΠΎΠ²ΠΎΠΉ ΡΡΡΠ±Π΅
.Π Π΅Π³ΡΠ»ΠΈΡΡΠ΅ΠΌΠΎΠ΅ ΠΎΡΠ²Π΅ΡΡΡΠΈΠ΅ Π½Π΅ΠΎΠ±Ρ ΠΎΠ΄ΠΈΠΌΠΎ Π² ΡΠ΅Π½ΡΡΠ΅ ΠΊΡΡΡΠΊΠΈ ΠΊΠΎΠΏΡΠΈΠ»ΡΠ½ΠΈ Π΄Π»Ρ Π²ΡΡ ΠΎΠ΄Π° ΡΡΠΎΠΉ Π²Π»Π°Π³ΠΈ. ΠΠΎΠ΄ΠΎΠΉΠ΄Π΅Ρ Π»ΡΠ±ΠΎΠ΅ ΠΏΠΎΠΊΡΡΡΠΈΠ΅, Π΄Π°ΠΆΠ΅ ΠΊΠ°ΡΡΠΎΠ½ ΠΌΠΎΠΆΠ½ΠΎ ΠΏΡΠΈΠΏΠΎΠ΄Π½ΡΡΡ Π½Π° Π΄ΡΠΉΠΌ ΠΈΠ»ΠΈ Π΄Π²Π°, ΡΡΠΎΠ±Ρ Π²ΡΠΏΡΡΡΠΈΡΡ Π΄ΡΠΌ.ΠΠΎΠΏΡΠ΅Π½ΠΎΡΡΡΠΌ Π½ΡΠΆΠ΅Π½ ΠΏΡΠΈΡΠΎΠΊ ΡΠ²Π΅ΠΆΠ΅Π³ΠΎ Π²ΠΎΠ·Π΄ΡΡ Π°, ΠΊΠΎΡΠΎΡΡΠΉ ΠΏΡΠΈΠ½ΠΎΡΠΈΡ Ρ ΡΠΎΠ±ΠΎΠΉ Π½Π΅ΠΌΠ½ΠΎΠ³ΠΎ ΡΠ²Π΅ΠΆΠ΅ΠΉ Π²Π»Π°Π³ΠΈ. ΠΡΠΎ ΡΠΎΠΆΠ΅ Π·Π°Π²ΠΈΡΠΈΡ ΠΎΡ ΠΊΠ»ΠΈΠΌΠ°ΡΠ°. ΠΠ° ΡΡΡ ΠΎΠΌ Π²ΠΎΠ·Π΄ΡΡ Π΅ ΠΊΠΎΠΏΡΠ΅Π½ΠΈΠ΅ ΠΏΡΠΈΠ²ΠΎΠ΄ΠΈΡ ΠΊ ΠΏΡΠ΅ΠΆΠ΄Π΅Π²ΡΠ΅ΠΌΠ΅Π½Π½ΠΎΠΌΡ Π²ΡΡΡΡ Π°Π½ΠΈΡ ΠΎΠ±ΠΎΠ»ΠΎΡΠΊΠΈ ΠΊΠΎΠ»Π±Π°ΡΡ. ΠΠΎΠ³Π΄Π° ΠΎΠ½ Π²ΡΡΠΎΡ Π½Π΅Ρ ΡΠ½Π°ΡΡΠΆΠΈ, Π΄ΡΠΌΡ Π±ΡΠ΄Π΅Ρ ΡΡΡΠ΄Π½Π΅Π΅ ΠΏΡΠΎΠ½ΠΈΠΊΠ½ΡΡΡ Π² ΠΌΡΡΠΎ.
ΠΠΎΡΡΡΠΈΡΠ΅ Π½Π΅ Π΄ΠΎΠ»ΠΆΠ½ΠΎ Π±ΡΡΡ ΠΏΠΎΠ»Π½ΠΎΡΡΡΡ Π·Π°ΠΊΡΡΡΠΎ ΠΈ Π·Π°ΠΊΡΡΡΠΎ ΠΏΡΠΈ ΠΊΠΎΠΏΡΠ΅Π½ΠΈΠΈ. ΠΡΠ»ΠΈ Π΄ΡΠΌ Π²ΡΡ ΠΎΠ΄ΠΈΡ ΠΈΠ· ΠΊΠΎΠΏΡΠΈΠ»ΡΠ½ΠΈ, Π·Π½Π°ΡΠΈΡ, ΠΊΠΎΡΡΡΠΎΠ²ΠΈΡΠ΅ Π΄Π΅Π»Π°Π΅Ρ ΡΠ²ΠΎΠ΅ Π΄Π΅Π»ΠΎ. ΠΠΎΠ³Π΄Π° ΠΊΠΎΠΏΡΠ΅Π½ΠΈΠ΅ Π·Π°Π²Π΅ΡΡΠ΅Π½ΠΎ ΠΈ ΠΌΡ ΡΠ΅ΡΠ°Π΅ΠΌ ΠΏΡΠΎΠ΄ΠΎΠ»ΠΆΠΈΡΡ ΠΏΡΠΈΠ³ΠΎΡΠΎΠ²Π»Π΅Π½ΠΈΠ΅ ΠΌΡΡΠ° Π²Π½ΡΡΡΠΈ ΠΊΠΎΠΏΡΠΈΠ»ΡΠ½ΠΈ, ΠΈΠ·ΠΎΠ»ΡΡΠΈΡ ΠΊΠΎΠΏΡΠΈΠ»ΡΠ½ΠΈ ΠΈ ΠΊΠΎΡΡΡΠΈΡΠ° ΡΡΠ°Π½ΠΎΠ²ΠΈΡΡΡ Π±ΠΎΠ»Π΅Π΅ Π²Π°ΠΆΠ½ΠΎΠΉ Π·Π°Π΄Π°ΡΠ΅ΠΉ.ΠΠ΅Π±ΠΎΠ»ΡΡΠΎΠΉ ΠΊΠΎΠ½ΠΈΡΠ΅ΡΠΊΠΈΠΉ ΡΠΈΡΠΎΠΊ ΠΏΠΎΠ²Π΅ΡΡ Π΄ΡΠΌΠΎΠ²ΠΎΠΉ ΡΡΡΠ±Ρ ΠΏΡΠΈΠ΄Π°ΡΡ Π΅ΠΌΡ ΠΏΡΠΈΡΡΠ½ΡΠΉ Π²ΠΈΠ΄. ΠΠ΄Π½ΠΎΠ²ΡΠ΅ΠΌΠ΅Π½Π½ΠΎ ΠΎΠ½ Π·Π°ΡΠΈΡΠ°Π΅Ρ ΡΡΡΠ±Ρ ΠΎΡ Π΄ΠΎΠΆΠ΄Ρ ΠΈ ΠΎΠ΄Π½ΠΎΠ²ΡΠ΅ΠΌΠ΅Π½Π½ΠΎ ΡΠ»ΡΠΆΠΈΡ ΠΈΡΠΊΡΠΎΠ³Π°ΡΠΈΡΠ΅Π»Π΅ΠΌ. ΠΠ΅ ΡΡΡΠ΅ΡΡΠ²ΡΠ΅Ρ ΠΏΡΠ΅Π΄ΠΏΠΎΡΡΠΈΡΠ΅Π»ΡΠ½ΠΎΠ³ΠΎ ΡΠΈΠΊΡΠΈΡΠΎΠ²Π°Π½Π½ΠΎΠ³ΠΎ Π΄ΠΈΠ°ΠΌΠ΅ΡΡΠ° ΡΡΡΠ±Ρ Π΄Π»Ρ Π²ΡΡ ΠΎΠ΄Π° Π΄ΡΠΌΠ°, Π½ΠΎ ΡΡΡΠ±Π° Π² ΡΠ΅ΡΡΡ Π΄ΡΠΉΠΌΠΎΠ² (15 ΡΠΌ) ΠΊΠ°ΠΆΠ΅ΡΡΡ Π½Π΅ΠΏΠΈΡΠ°Π½ΡΠΌ ΡΡΠ°Π½Π΄Π°ΡΡΠΎΠΌ.
ΠΠΎΡΡΡΠΏΠ½ΠΎ Π½Π° Amazon
ΠΠ½ΡΠΎΡΠΌΠ°ΡΠΈΠΈ ΠΎΠ± ΠΈΡΠΏΠ°Π½ΡΠΊΠΈΡ ΡΠΎΡΠΈΡΠΊΠ°Ρ Π½Π° Π°Π½Π³Π»ΠΈΠΉΡΠΊΠΎΠΌ ΡΠ·ΡΠΊΠ΅ ΠΎΡΠ΅Π½Ρ ΠΌΠ°Π»ΠΎ, ΠΈ Π΄Π°ΠΆΠ΅ Π² ΠΈΡΠΏΠ°Π½ΡΠΊΠΈΡ ΠΊΠ½ΠΈΠ³Π°Ρ Π΅ΡΡΡ Π»ΠΈΡΡ Π½Π΅ΡΠΊΠΎΠ»ΡΠΊΠΎ ΡΠ΅ΡΠ΅ΠΏΡΠΎΠ² Ρ ΠΎΠ±ΡΠ΅ΠΉ ΠΈΠ½ΡΠΎΡΠΌΠ°ΡΠΈΠ΅ΠΉ, ΠΎΡΠ΅Π½Ρ ΡΠΊΡΠ΄Π½ΡΠΌΠΈ ΠΈΠ½ΡΡΡΡΠΊΡΠΈΡΠΌΠΈ ΠΈ ΠΏΠΎΡΡΠΈ Π±Π΅Π· ΠΎΠ±ΡΡΡΠ½Π΅Π½ΠΈΠΉ.Β«ΠΡΠΏΠ°Π½ΡΠΊΠΈΠ΅ ΠΊΠΎΠ»Π±Π°ΡΠΊΠΈ, Π°ΡΡΠ΅Π½ΡΠΈΡΠ½ΡΠ΅ ΡΠ΅ΡΠ΅ΠΏΡΡ ΠΈ ΠΈΠ½ΡΡΡΡΠΊΡΠΈΠΈΒ» Π·Π°ΠΏΠΎΠ»Π½ΡΡΡ ΡΡΠΎΡ ΠΏΡΠΎΠ±Π΅Π», ΠΈ ΡΠΈΡΠ°ΡΠ΅Π»ΠΈ ΡΠ·Π½Π°ΡΡ Π½Π΅ ΡΠΎΠ»ΡΠΊΠΎ, ΡΡΠΎ ΡΠ°ΠΊΠΎΠ΅ ΡΠΎΡΠΈΠ·ΠΎ, Π»ΠΎΠ½Π³Π°Π½ΠΈΠ·Π°, ΡΠ°Π»ΡΠΈΡΠΎΠ½, ΡΡΡΡ, ΠΌΠΎΡΡΠΈΠ»ΡΡ, Π±ΡΡΠΈΡΠ°ΡΡΠ°, ΡΠ°Π»ΡΠΈΡΠ°, ΡΠΎΠ±ΡΠ°ΡΠ°Π΄Π°, ΡΡΡΠΌΠ±ΡΠ΅, Π°Π½Π΄ΡΠΎΠ»Π»Π°, Π±ΡΡΠ΅Π»ΠΎ, ΠΌΠΎΡΠΊΠΎΠ½, Π° ΡΠ°ΠΊΠΆΠ΅ ΠΌΠ½ΠΎΠ³ΠΈΠ΅ Π΄ΡΡΠ³ΠΈΠ΅. , Π½ΠΎ ΡΠ°ΠΊΠΆΠ΅ Π½Π°ΡΡΠΈΡΠ΅ΡΡ Π΄Π΅Π»Π°ΡΡ ΠΊΠ°ΠΆΠ΄ΡΡ ΠΊΠΎΠ»Π±Π°ΡΡ.

 ΠΠ° Π½Π΅Π΅ Π² Π΄ΠΎΠΌΠ°ΡΠ½ΠΈΡ
 ΡΡΠ»ΠΎΠ²ΠΈΡΡ
 ΠΎΠ΄Π΅Π²Π°Π΅ΡΡΡ ΡΠ»Π°Π½Π³, ΠΊΠΎΡΠΎΡΡΠΉ Π΄ΡΡΠ³ΠΈΠΌ ΠΊΠΎΠ½ΡΠΎΠΌ Π²ΡΠ²ΠΎΠ΄ΡΡ Π² Π²Π΅Π½ΡΠΈΠ»ΡΡΠΈΡ ΠΈΠ»ΠΈ ΠΎΠΊΠ½ΠΎ.
 ΠΠ° Π½Π΅Π΅ Π² Π΄ΠΎΠΌΠ°ΡΠ½ΠΈΡ
 ΡΡΠ»ΠΎΠ²ΠΈΡΡ
 ΠΎΠ΄Π΅Π²Π°Π΅ΡΡΡ ΡΠ»Π°Π½Π³, ΠΊΠΎΡΠΎΡΡΠΉ Π΄ΡΡΠ³ΠΈΠΌ ΠΊΠΎΠ½ΡΠΎΠΌ Π²ΡΠ²ΠΎΠ΄ΡΡ Π² Π²Π΅Π½ΡΠΈΠ»ΡΡΠΈΡ ΠΈΠ»ΠΈ ΠΎΠΊΠ½ΠΎ. ΠΠ°Π΅Ρ Π²Π΅ΡΡΠΌΠ° ΠΎΡΠ½ΠΎΡΠΈΡΠ΅Π»ΡΠ½ΡΠ΅ ΠΏΠΎΠΊΠ°Π·Π°Π½ΠΈΡ.
 ΠΠ°Π΅Ρ Π²Π΅ΡΡΠΌΠ° ΠΎΡΠ½ΠΎΡΠΈΡΠ΅Π»ΡΠ½ΡΠ΅ ΠΏΠΎΠΊΠ°Π·Π°Π½ΠΈΡ.
