Туалет для дачи своими руками: пошаговая инструкция
Первая постройка, которая появляется на любом участке — туалет. Мы можем как-то обойтись без домика и душа, а вот без этой постройки — никак. Для многих туалет для дачи своими руками — первый строительный опыт. Хорошо что строение незамысловатое, так что даже без наличия опыта справится несложно.
Самая первая постройка на даче — туалет. Часто это — первый опыт строительства своими руками
Хоть дачный туалет и не самая сложная постройка, особенностей много. Без четкого плана действий не обойтись. Распишем по шагам, как построить туалет на даче:
- Выбираете тип туалета.
- Определяете место на участке под строительство.
- Определяетесь с размерами и материалами для строительства.
- Приступаете к строительству.
Теперь о каждом пункте подробнее.
О видах, конструкциях домиков для дачного туалета читайте тут (со схемами и размерами).
Содержание статьи
Какой туалет сделать на даче
Перед началом строительства нужно выбрать тип дачного туалета.
Форма и размеры туалетной кабинки — далеко не все отличия, которые может иметь туалет
С выгребной ямой
При выборе такого варианта нужно учесть, что глубина ямы должна быть на 1 метр меньше, чем самый высокий уровень грунтовых вод (обычно весенний). Объем ее выбирается в зависимости от частоты посещения и количества человек. Например, в домах постоянного проживания на 2-3 человека достаточно объема в 1,5 куба.
Форма емкости — любая, но чаще делают квадратную, иногда — круглую. Стенки выкладывают из кирпича, бетона, бутовой кладки, просмоленной древесины. Можно емкость сделать из бетонных колец. Только в этом случае нужно будет побеспокоиться о герметичности стыков и дна.
Чтобы обеспечить герметичность, под кладкой и по бокам делают слой утрамбованной глины (глиняный замок) толщиной 20-30 см. Если с трамбовкой глины возится неохота, можно покрыть готовую кладку пропиткой, придающей материалам повышенную степень гидроизоляции (битумной или на основе цемента).
Чертеж дачного туалета с выгребной ямой
Выгребной туалет для дачи обязательно обустраивают системой вентиляции. В яму встраивается труба большого диаметра (не менее 100 мм), второй конец которой поднимается не менее чем на 50-70 см над крышей домика (или дома). Также вентиляционное окошко делается в самом домике. Оно может быть на дверью или на одной из боковых стен.
При заполнении более чем на 2/3 объема содержимое ямы выкачивается машиной ассенизатором. Планируя туалет для дачи своими руками, принимайте во внимание, что к яме должна подъезжать машина.
Есть два типа организации выгребной ямы:
- Обычный — под домиком.
- Люфт-клозет — яма располагается в стороне. При таком строении унитаз может стоять в доме, а нечистоты по трубам, уложенным под определенным уклоном, попадают в емкость.
Строительство люфт-клозета на даче весьма дорогая затея, разве что вы все равно решили делать пристройку или дача у вас — полноценный жилой дом, в котором проводится много времени. Вам нужна будет полноценная система вентиляции, вода для смыва, и трубы нужно будет прокладывать ниже глубины промерзания грунта. А так как они должны идти под наклоном, то и выгребная яма опускается на приличную глубину.
Схема люфт-клозета. Если любите комфорт, построить туалет можно прямо в дачном домике
При устройстве туалета такого типа важно выдержать наклон трубы — он должен быть 2-3 см на метр.
Не нужно делать больше или меньше — именно в таком диапазоне. Если сделать уклон меньше, есть риск того, что содержимое будет застаиваться. Если сделать больше, то вода убежит, а твердые и более тяжелые включения останутся в трубе и будут распространять «ароматы».
О методах устранения запахов в уличном туалете с выгребной ямой читайте тут.
Без выгребной ямы
В большинстве своем туалеты без выгребной ямы строятся намного проще и быстрее. В них отходы собираются в герметичную емкость, которая обычно ставится прямо под стульчаком. Вся разница в том, как перерабатываются отходы и нейтрализуется их запах. Есть следующие виды:
- Пудр-клозет. В кабинке ставится еще емкость с торфом, золой, опилками, землей или смесью этих компонентов. После посещения туалета отходы засыпаются слоем этой присыпки — припудриваются. Отсюда и название.
- Торфяной туалет. Это разновидность пудр-клозета. Но для присыпки используется только измельченный торф. Торфяные туалеты есть и промышленного изготовления.
Они очень похожи на привычные квартирные унитазы с бачком. Но в бачке находится не вода, а крошка торфа. После посещения туалета нужно провернуть несколько раз ручку на бачке, откуда посыпется торф. Так выглядит самый простой пудр-клозет или торфяной туалет. Построить его самостоятельно — совсем простая задача - Био-туалет. Отходы попадают в емкость, заполненную раствором содержащем микроорганизмы, перерабатывающие их. Эти кабинки часто можно увидеть в качестве уличного туалета в городах. Биотуалеты продаются как вместе с пластиковыми кабинками, так и отдельно — только унитаз с емкостью.
- Химический туалет. Принцип переработки такой же как в биотуалете, только используют не микроорганизмы, а химические вещества. Обычно они выпускаются в виде порошков или таблеток. Переработанные таким способом отходы не могут использоваться в качестве удобрения. Их периодически нужно сливать в канализацию.
Плюсы у дачных туалетов без выгребной ямы (называют еще сухими) существенные:
- вам ненужно рыть яму и возится с ее герметизацией;
- не нужно вызывать ассенизатор (платить за него) и организовывать подъезд для машины;
- строится быстро;
- переработанные отходы можно использовать как удобрения.

После переработки отходы из пудр-клозета и биотуалета можно использовать как удобрение
Минусы тоже немалые:
- Туалеты фабричного изготовления не так уж и дешевы.
- Необходимо периодически менять емкость.
- Нужно следить за наличием средств нейтрализации.
Как сделать недорогую, но красивую дорожку к туалету читайте здесь.
Нормы установки туалета на участке
Большая часть ограничений относится к туалетам с выгребной ямой: необходимо ограничить возможные загрязнения. Нормы такие:
- До источника воды — озера, реки, колодца, скважины и т.п. — должно быть не менее 25 метров. Это касается и источников, расположенных на соседних участках.
- До подвала или погреба — не менее 12 метров.
- До ближайшей обитаемой постройки — душа, бани — не менее 8 метров.
- До построек, где содержатся животные — не менее 4 метров.

- Ближайшие деревья должны находится в 4 метрах, кусты — в 1 метре.
На плане участка постарайтесь выбрать место, которое удовлетворяет всем требованиям
Остальные нормы справедливы для всех типов туалетов:
- До границы участка должно быть не менее 1 метра.
- Двери не должны открываться в сторону соседнего участка.
- При выборе места расположения нужно учитывать преобладающее направление ветра.
Выбирая место, где будете строить туалет для дачи своими руками, обращайте внимание не только на собственные постройки и объекты, но и на соседские. Это поможет избежать трений с ними и с санстанцией.
Если строить будете туалет с выгребной ямой, ко всем перечисленным требованиям нужно еще добавить — организацию подъезда для машины-ассенизатора.
Постройка дачного душа описана в этой статье.
Как сделать туалет на даче своими руками
Первые два шага вы уже прошли: выбрали тип туалета и место для его установки.
Следующий шаг — выбираем размеры. С ними определиться не так уж и сложно. Как выбрать объем выгребной ямы рассказывали — на 2-3 человека достаточно 1,5 кубометра, теперь о том, каких размеров должен быть домик для туалета. Тут все зависит от собственного желания и от габаритов хозяев. В стандартном варианте делают туалеты следующих размеров:
- высота — 220 см;
- ширина — 150 см;
- глубина — 100 см.
Эти габариты удобны для людей со средней комплекцией. Их можно изменять так, как вам удобно. Никаких стандартов нет.
Домики для туалетов чаще всего делают из дерева. Но это — не правило. Он может быть из листового материала типа ДВП, ГВЛ, из плоского шифера, кирпича и любых других строительных материалов, профилированного листового металла, даже из пластика.
Туалет на даче своими руками строят из любого материала. Этот — из профнастила
Самый любимый кровельный материал для дачного туалета — шифер. Недорого стоит устройство мягкой кровли из наплавляемых материалов.
А вообще, можно использовать любой имеющийся в наличии. Его крепят на сплошную обрешетку, так что особой разницы нет.
Строим деревенский туалет
Последний этап — собственно строительство. Порядок действий определяется тем, какого типа туалет вы будете возводить. Если с выгребной ямой, первой делают ее.
Устройство деревенского туалета с выгребной ямой. Отличный вариант для дачи
Выгребная яма для туалета
Порядок действий при строительстве такой:
- В выбранном месте выкапывают котлован. Его размеры — на 30-40 см больше, чем планируемые размеры выгребной ямы.
- На дне укладывают и трамбуют 20-30 см разведенной до пастообразного состояния глины: делают глиняный замок, который будет препятствовать проникновению нечистот в почву. Потому укладывайте пласты без пустот.
- Выкладывают дно и стены ямы из кирпича, бута, толстой пропитанной смолой доски. Главное, чтобы стенки не пропускали влагу: ни внутрь, ни изнутри она не должна поступать.
Потому необходимы меры по гидроизоляции. Потому желательно стенки выгребной ямы заштукатурить, а потом промазать гидрофобной пропиткой. Только той, которая может выдерживать агрессивные среды.Выгребная яма дачного туалета не должна пропускать воду
- Промежуток между возведенными стенками и грунтом закладывают размоченной глиной — и тут делают глиняный замок. Это — гидроизоляция снаружи.
- Сверху на яму укладывают перекрытие. Обычно его делают из досок (толщиной не менее 40 мм). В перекрытие должно быть два отверстия — одно для установки стульчака, второе — для организации люка. Люк для выкачки обычно делают двойным — чтобы не проникали неприятные запахи.
- Устанавливают вентиляционную трубу.
Далее приступают к сооружению туалетного домика.
Чтобы не возится с кладкой и гидроизоляцией, можно установить специальную пластиковую емкость — септик. Они бывают разных объемов и конструкций — с одной или двумя горловинами.
Септики в выгребную яму дачного туалета — и никаких проблем с гидроизоляцией
Котлован роется чуть больше размеров выбранного септика, емкость устанавливается, засыпается вынутым ранее грунтом. Устройство такой выгребной ямы в разы быстрее и надежнее.
Кабинка для дачного туалета
Любой туалет для дачи устанавливается в небольшой кабинке-домике. Своими руками проще всего сделать прямоугольное сооружение с односкатной крышей: минимум времени, затрат и материалов.
Основание под кабинку — столбики
Первым делом нужно позаботиться о наличии пола. Его нужно поднять на некоторое расстояние над землей. Удобнее сделать это при помощи столбиков, сложенных в углах постройки. Закапывать их на глубину промерзания грунта вряд ли стоит, но заглубить в грунт на 20-30 см ниже плодородного слоя нужно. Складывают их обычно из кирпичей, бутового камня, можно залить из бетона, и т.п. На таком основании во время пучения кабинка будет подниматься, но обычно это ни к каким серьезным повреждениям не приводит: сооружение небольшое.
- На подготовленные столбики укладывается настил.
Он обычно деревянный. Древесину желательно промазать защитными пропитками: среда агрессивная, да еще и воздействие климатических факторов. - Устанавливают вертикальные стойки из бруса 100*100 мм или большего сечения. Высота выбирается в зависимости от роста «посетителей», но редко бывает ниже 2,2 м. Передние стойки делают на несколько сантиметров (10-15 см) длиннее — для обеспечения ската кровли. Крепят их к подиуму при помощи металлических пластин или опорных брусков. Раньше использовали преимущественно длинные гвозди, теперь все чаще — саморезы.
- Верхнюю часть обвязывают по периметру таким же брусом.
Этапы строительства туалетной кабинки на даче
- Из бруса такого же сечения или меньшей толщины (50*100 мм) оформляют дверной проход. Ширина его зависит от ширины имеющейся двери.
- Если в регионе сильны ветра, можно установить дополнительные укосины — наклонные балки между вертикальными.
- Обшивают каркас.
- Делают сплошную обрешетку на крыше — доски прибивают вплотную или кладут кусок фанеры, ДВП, ГВЛ.

- Укладывают и закрепляют кровельный материал.
- Навешивают двери.
Как оказалось, туалет для дачи своими руками построить не так уж и сложно. Времени и затрат нужно немного. Зато в процессе приобретете полезные навыки.
Дачный туалет своими руками. Как сделать туалет на даче — инструкция
Даже если дача представляет собой просто голый участок земли без единой постройки, все равно не обойтись без главного – туалета. Потребность в этой незамысловатой постройке возникает уже спустя несколько часов пребывания на дачном участке. Не смотря на то, что мы все представляем, как должен выглядеть туалет и что необходимо делать, все же не стоит торопиться. В первую очередь следует изучить участок, чтобы понять, какой вид дачного туалета можно построить в конкретном случае, ведь их существует несколько. Затем необходимо определиться, где именно можно поставить туалет, соблюдая при этом санитарные правила и нормы.
И только после этого можно приступать к непосредственно строительству. В том, чтобы сделать дачный туалет своими руками, нет ничего сложного. Тем не менее, изготавливать коробку туалета не обязательно самостоятельно. Современный рынок может предложить готовые туалетные домики на любой вкус. В данной статье мы разберем инструкцию, как сделать туалет своими руками, начиная с выбора вида туалета и заканчивая изготовлением домика.
- Какой туалет на даче можно обустроить – виды и особенности
- Где можно разместить дачный туалет – правила и рекомендации
- Туалет на даче своими руками – инструкция строительства пудр-клозета
- Как построить туалет на даче с выгребной ямой
- Дачный туалет люфт-клозет и его особенности
Какой туалет на даче можно обустроить – виды и особенности
На обустроенной даче, где есть дом и фактически можно жить, желательно иметь два туалета – один в доме, а второй на улице. Туалет в доме удобно использовать ночью или в непогоду, когда идет дождь.
Все же в доме и теплее и комфортнее. Уличный туалет для дачи необходим для того, чтобы использовать его днем после огородно-садовых работ на участке и не нести грязь с улицы в дом.
Всего существует несколько видов туалетов, которые можно использовать на даче:
- Уличный туалет с выгребной ямой.
- Пудр-клозет.
- Люфт-клозет.
- Биотуалет.
- Химический туалет.
- Торфяной туалет для дачи.
На выбор туалета влияет такой показатель, как уровень залегания грунтовых вод. Если вода находится далеко (глубже 2,5 м) и никогда не поднимается выше этой отметки даже в сезон дождей или весенних паводков, то можно использовать любой из предложенных вариантов туалета. Если же уровень грунтовых вод высокий, вода находится близко от поверхности, то обустраивать туалет с выгребной ямой нельзя.
Уличный туалет с выгребной ямой – старая добрая проверенная временем конструкция. Она представляет собой выгребную яму глубиной до 1,5 м, сверху которой стоит туалетный домик.
Нечистоты в яме накапливаются и постепенно разлагаются. Если интенсивность использования такого туалета велика, то заполнение ямы происходит стремительно, нечистоты не успевают ферментироваться. Раньше такую проблему решали просто – снимали туалетный домик, закапывали старую яму, а в другом месте выкапывали новую и ставили сверху туалет. Сейчас же предпочитают чистить выгребные ямы либо с помощью ассенизаторской машины, либо вручную.
Пудр-клозет – вариант туалета для местности, где близко находится вода. В его конструкции вовсе нет выгребной ямы. Вместо нее используется емкость (ведро, бочка, ящик), которая устанавливается сразу под стульчаком. Чтобы нечистоты не слишком напоминали о себе неприятным запахом, после каждого похода в туалет их посыпают сухим торфом, опилками или золой. Сам процесс напоминает припудривание, от чего и произошло название данного вида туалетов «пудр-клозет». После заполнения емкость достается и опорожняется в компостную яму, кучу или другое место.
Со временем нечистоты, пересыпанные торфом, превратятся в чудное удобрение.
Люфт-клозет – туалет с герметичной выгребной ямой, которую очищают с помощью ассенизаторской машины. Обычно люфт-клозеты обустраивают непосредственно в доме рядом с наружной стеной дома. Выгребная яма находится снаружи, нечистоты в нее поступают по трубе. Сама яма имеет уклон в сторону от дома для удобства очистки.
Биотуалет – привычная для городских жителей кабинка с емкостью, в которую заливают активные микроорганизмы для переработки нечистот. Наверное, самый простой способ обустройства туалета на даче, так как строить ничего не нужно – можно купить готовый биотуалет любых размеров, как уличный, так и домашний.
Химический туалет отличается от биотуалета только средством переработки нечистот. Здесь используются химические реагенты, поэтому содержимое контейнера после переработки нельзя использовать в качестве удобрения на огороде, в отличие от биотуалета.
Торфяной туалет – это домашний вариант пудр-клозета. По сути пудр-клозет тоже является торфяным туалетом, ведь в нем торф используется для припудривания фекалий. Домашний торфяной туалет – модернизированное достижение цивилизации. Он очень похож на обычный унитаз, только в бачке для воды вместо воды – сухой торф, а вместо труб канализации емкость для нечистот.
Такой туалет можно смело устанавливать внутри дома. Для устранения неприятного запаха в его конструкции предусмотрена вентиляция, которую необходимо вывести на улицу.
Выбор туалета для дачи полностью зависит от ваших личных предпочтений и от условий, которые диктуют правила СанПина.
Где можно разместить дачный туалет – правила и рекомендации
На размещение уличного туалета существуют определенные ограничения. В первую очередь они касаются тех туалетов, в которых нечистоты могут контактировать с грунтом и грунтовыми водами.
- От туалета до источника воды должно быть не менее 25 м.
Будь то колодец, скважина, озеро, ручей или другой водный объект. Если дачный участок располагается под некоторым уклоном, то туалет необходимо устанавливать ниже источника забора воды. Это исключит попадание стоков в питьевую воду.
Важно! Обратите внимание, что учитывать следует не только свой источник воды, но и ближайших соседей.
- От туалета до дома и погреба или подвала должно быть минимум 12 м.
- От летнего душа или бани, сауны не менее 8 м.
- Расстояние от постройки для содержания животных до туалета должно быть 4 м.
- От стволов деревьев – 4 м, от кустарников – 1 м.
- От забора до туалета должно быть не менее 1 м.
- Также обязательно учитывается роза ветров при выборе места и расположения уличного туалета, чтобы не досаждать ни себе, ни соседям неприятным амбре.
- Дверь в туалет не должна открываться в сторону соседей.
- Если грунтовые воды ниже 2,5 м, то можно обустраивать любой уличный туалет.
Если выше 2,5 м, то туалет с выгребной ямой делать нельзя, только пудр-клозет или люфт-клозет, а также можно ставить биотуалеты. Такие конструкции безопасны в том плане, что нечистоты не могут попасть в грунтовые воды и загрязнить их.
Учтите, что при выборе места для туалета необходимо ориентироваться на объекты не только на своем участке, но и на соседском. Это касается и деревьев, и сараев, и дома, и всего остального. Для туалетов типа пудр-клозет и люфт-клозет перечисленные выше ограничения не действуют, так как в них нечистоты не контактируют с грунтом. Единственное, что придется учесть при их размещении, это розу ветров и удобство использования.
Туалет на даче своими руками – инструкция строительства пудр-клозета
Обустроить дачный туалет собственноручно не так уж и сложно, достаточно обладать начальными плотницкими навыками, инженерным мышлением и запастись помощью друга. Рассмотрим пример строительства туалета на даче по типу пудр-клозет.
Как мы уже писали, его особенность в том, что под туалетом нет выгребной ямы. И это значительно облегчает задачу. Во-первых, такой туалет можно располагать рядом с жилым домом. Во-вторых, сама технология строительства несколько легче, не придется рыть котлован. В-третьих, исключено загрязнение грунтовых вод.
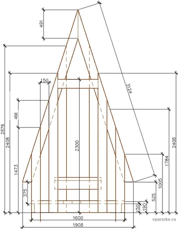
Чертеж дачного туалета
Строительство туалета необходимо начать с чертежа, чтобы все элементы и детали имели соответствующие размеры, а не на глазок. В связи с тем, что в пудр-клозете нет выгребной ямы, на чертеже будет представлена только конструкция туалетного домика.
Схематично пудр-клозет можно представить так:
Размеры туалета подбираются так, чтобы им было удобно пользоваться. Например, самый распространенный размер: ширина 1,5 м, глубина 1 м, высота 2,2 м. Размеры могут быть увеличены, если того требуют габариты хозяев. Материал изготовления туалета может быть разным: самые распространенные деревянные туалеты, но можно обшивать стены металлопрофилем, шифером или другим материалом, а также возводить стены из кирпича.
Туалет дачный деревянный – чертеж в разрезе.
Пример 1.
Пример 2.
Вы можете воспользоваться готовым чертежом, а можете составить свой. Главное – соблюдение размеров при строительстве.
Фундамент и опора для туалета
Дачный туалет – это строение, которое не требует тяжелого фундамента. В некоторых источниках Вы можете встретить предложение заливать под туалет ленточный фундамент. На самом деле это лишнее, особенно, если туалет деревянный. Опору для туалетного домика можно сделать двумя способами: первый – закопать столбы-опоры, второй выложить по периметру кирпичи или бетонные блоки.
В качестве столбов-опор можно использовать как деревянный брус или бревно, так и бетонные столбики. Последние более устойчивы к агрессивной среде и прослужат дольше.
- Первым делом размечаем участок. Крайне важно точно определить углы строения.
- Берем 4 асбестоцементные трубы диаметром от 150 мм и обмазываем их снаружи битумной мастикой.

- В углах туалетного домика выкапывает скважины и заглубляем трубы на глубину 50 – 70 см. Глубина заложения труб может быть и больше, это зависит от структуры грунта. Можно сделать 90 см или 1 м.
- На высоту 1/3 трубы их необходимо залить бетонным раствором. Старательно уплотняем бетон, чтобы удалить пузырьки воздуха.
- Внутрь труб вставляем деревянные или бетонные столбы-опоры. Чтобы закрепить их, добавляем бетонный раствор.
Столбы-опоры в данном случае могут выступать и вертикальной частью каркаса, т.е. их необходимо выгнать на высоту 2,3 м от земли. Также необходимо постоянно проверять, чтобы расположение столбов было ровным относительно углов.
Бывают случаи, когда в качестве опоры достаточно закрепить бетонные блоки или кирпичи, на которые затем будет установлен каркас. В таком случае необходимо снять верхний слой грунта на глубину 20 – 30 см и плотно утрамбовать основание. Для большей надежности на дно можно засыпать слой песка. Сверху устанавливаются бетонные блоки, кирпичи или бетонные бордюры.
Изготавливаем каркас уличного туалета
Каркас дачного туалета можно изготовить из деревянного бруса 50х50 мм или 80х80 мм. Более толстый и массивный брус 100х100 мм и больше брать не обязательно. Также можно использовать металлические уголки.
Каркас должен представлять собой конструкцию:
- 4-е несущие вертикальные опоры.
- Обвязка крыши туалета. Продольные брусья для крыши должна выступать за пределы корпуса туалета на 30 – 40 см. Спереди навес будет служить козырьком, а сзади – для отвода дождевой воды подальше от туалета.
- Обвязка или стяжка на уровне будущего стульчака. Обычно брусья обвязки стульчака крепятся в распор к несущим вертикальным опорам. Высота расположения стульчака должна быть удобной – 40 см от пола туалета.
- Диагональные укосины для прочности конструкции на задней и боковых стенках туалета.
- Каркас для крепления двери. Две вертикальные опоры на высоту до 1,9 м и горизонтальная перемычка сверху на этой же высоте.

Обязательно высчитайте высоту стульчака, так как слишком высокое сидение будет неудобным, особенно если среди хозяев есть низкорослые люди. Обозначьте, на каком уровне будет чистовой пол в туалете, и отложите от него 38 – 40 см вверх. Учтите, что сверху обвязки будет еще обшивка толщиной 20 – 25 мм.
Обшиваем корпус туалета, делаем крышу
Дальнейшее строительство дачного туалета заключается в том, чтобы обшить каркас. Так как деревянные туалеты пользуются неизменной популярностью за счет своей самобытной красоты, удобства и комфорта, то стены дачного туалета можно обшить деревянными досками.
Деревянные доски толщиной 15 – 25 мм прибивают к каркасу, плотно подгоняя их друг к другу. Располагать доски необходимо вертикально. Так как крыша будет располагаться с уклоном к задней стенке, то верхнюю часть досок обшивки придется аккуратно срезать под углом.
Вместо дерева можно использовать листы профнастила, шифера или другого материала.
С ними намного легче работать, так как потребуется всего три листа для задней и двух боковых стенок. Но в таком туалете значительно менее комфортно находиться, чем в деревянном. А все потому, что не происходит естественный влажностный и воздушный обмен через стены.
На задней стенке туалета необходимо сделать дверцу, через которую можно будет вынимать емкость с нечистотами. Обычно ее делают на всю ширину задней стенки на высоту 40 см (до высоты стульчака). Закрепляется такая дверца на петлях. Выполнить ее можно из тех же деревянных досок.
Крышу дачного туалета обычно кроют тем же материалом, что и все постройки на участке, чтобы строения не выбивались из композиции. Можно использовать листы профнастила или металлочерепицу. В крыше необходимо выполнить отверстие для вентиляционной трубы, которое затем следует тщательно герметизировать.
Если Вы хотите сделать крышу туалета деревянной, то ее обязательно следует покрыть рубероидом или другим рулонным материалом, чтобы дерево не намокало.
Навешиваем дверь
Дверь для дачного туалета обычно делают деревянной. Дверь навешиваем на петлях. Количество петель 2 или 3 зависит от тяжести и массивности двери. Чем тяжелее дверь, тем больше должно быть петель. Механизм закрывания двери в туалет каждый делает, как ему больше нравится: защелка, крючок, шпингалет или деревянная задвижка. Внутри туалета также необходимо установить защелку.
Над дверью следует сделать окошко, через которое сможет проникать естественное освещение. Обычно его делают как можно ближе к крыше, чтобы внутрь не попадала вода во время дождя. Окошко можно застеклить, тогда будет не страшен ни дождь, ни насекомые, которые часто залетают через такие оконца. Как выглядит дачный деревянный туалет, можно увидеть на фото.
Дачный туалет: фото – примеры
Обустраиваем стульчак в туалете
Сиденье или стульчак в дачном туалете выполняют из деревянных досок, вагонки или влагостойкой фанеры.
Лучше использовать чистое дерево без добавок, поэтому фанеру исключаем. Каркас будущего стульчака был сделан еще на этапе обустройства каркаса, поэтому сейчас достаточно аккуратно обшить его деревянными досками и окрасить. Посередине вырезаем отверстие, через которое будем справлять нужду. Обязательно проверьте, на какой глубине от начала стульчака следует сделать отверстие, чтобы им было удобно пользоваться.
Под стульчак устанавливаем емкость для нечистот объемом от 20 до 40 л. Кстати, крышку стульчака можно сделать откидывающуюся на петлях, а можно стационарную.
На стене в удобном месте навешиваем емкость для торфа. Внизу ставим ведро для туалетной бумаги. Внутри туалета можно установить умывальник, если это позволяют габариты строения. Тогда под умывальником устанавливаем ведро для помоев.
Как построить туалет на даче с выгребной ямой
Строительство туалета с выгребной ямой несколько сложнее, так как придется обустроить яму для отходов.
Туалетный домик для данного вида туалетов ничем не отличается, поэтому мы его затрагивать не будем. Обозначим только, как сделать коммуникации. На схеме представлено, как должна располагаться выгребная яма относительно туалетного домика. Исходя из этого, выполняем разметку участка и приступаем к земляным работам.
- Копаем выгребную яму с уклоном в сторону задней стенки туалета глубиной 1,5 м.
- Дно и стены ямы утрамбовываем глиной слоем 15 – 25 см. Некоторые вместо глины делают стены ямы из дерева, кирпича или бетона. Если грунтовые воды находятся на достаточной глубине, то делать стены выгребной ямы полностью герметичными не обязательно. Достаточно глиняного замка.
- Основание под туалет сбиваем из деревянного бруса 100х100 мм. Также можно использовать тротуарный бордюр или бетонные блоки, уложив их на землю. Если использовать деревянный брус, то его необходимо обработать антисептиком.
- Над выгребной ямой обустраиваем настил из досок. Сначала сбиваем каркас из брусьев.
Делаем между ними такое расстояние, чтобы было удобно очищать яму. Учтите, что настил делается за пределами туалетного домика, под домиком остается свободное пространство достаточного размера, чтобы нечистоты попадали в яму. - Настил необходимо обить снизу рубероидом или другим рулонным материалом.
- За туалетом устанавливаем люк, представляющий собой откидную крышку на петлях. Люк будет использоваться при очистке ямы. Деревянный люк обрабатываем антисептиком.
- Прокладываем вентиляционную трубу из ямы. Устанавливаем ее рядом с задней стенкой туалета, выводим на 70 – 100 см выше крыши туалета. Для этих целей можно использовать обычную канализационную трубу. Сверху на трубу закрепляем козырек, чтобы внутрь не попадала вода и мусор. Закрепляем трубу к задней стенке хомутами. Нижний край вентиляционной трубы должен располагаться на 15 – 20 см ниже уровня пола туалета.
- Сверху устанавливается туалетный домик.
- Вокруг туалета с выгребной ямой необходимо обязательно делать отмостку и отведение дождевой воды, чтобы она не затопила яму с нечистотами.

Если в дальнейшем планируется очищать выгребную яму с помощью ассенизаторской машины, то туалет необходимо так располагать на участке, чтобы машина могла подъехать на достаточное расстояние. Помните, рукав такой машины всего 7 м.
Дачный туалет люфт-клозет и его особенности
Чаще всего дачный туалет типа люфт-клозет устанавливается рядом с жилым домом или внутри дома. Сточная яма располагается снаружи строения, за его стенами. Туалет такого типа можно строить только там, где есть возможность обогревать сточную яму в зимний период. Если же пользоваться туалетом зимой не будут, то перед концом сезона выгребную яму необходимо полностью очистить.
Основное отличие люфт-клозета от других видов туалетов в том, что выгребная яма в нем выполняется полностью герметичной и регулярно очищается с помощью ассенизаторской машины. Вот несколько отличий в строительстве люфт-клозета:
- Герметичная яма, чтобы нечистоты не впитывались в грунт. Можно заливать яму из бетона, выполнять ее из кирпича и оштукатуривать, а можно использовать готовые пластиковые емкости – кессоны.

- Из выгребной ямы обязательно должна идти вентиляционная труба. Проводить ее необходимо через дымоход печи или камина. В свою очередь из дымохода должна идти труба в яму, через которую будет поступать теплый воздух. Это необходимо, чтобы яма не замерзала. Материал вытяжной трубы – асбестоцементная или керамическая.
- Если в доме нет обычной печи или камина, а только газовое отопление, то обогрев выгребной ямы необходимо осуществить с помощью маломощного электронагревателя.
- Над ямой делается крышка/люк. Чтобы крышка не промерзала, ее делают двойной: верхняя – металлическая или чугунная, а нижняя – деревянная. Между крышками укладываем теплоизоляционный материал.
- Уклон ямы должен быть в сторону от дома для удобства ее очистки.
В последнее время все большей популярностью пользуются торфяные туалеты для дачи. Их удобство в том, что их можно смело располагать в доме в любом помещении. Торфяные туалеты легко чистятся, практически не издают запаха, с ними может совладать даже хрупкая женщина или пожилой человек.
Также подобные туалеты можно делать на улице, тот же пудр-клозет – всего лишь предшественник современного торфяного туалета.
Как сделать туалет для дачи своими руками: чертежи, фото, пошаговая инструкция
Чтобы обеспечить комфортное пребывание на загородном участке, нужно в первую очередь построить туалет, для возможности справлять естественные потребности. Поскольку система канализации, это редкость на наших дачных массивах, то туалет придётся делать с выгребной ямой. Поэтому, очень важно правильно выбрать расположение туалета, чтобы избежать неприятного запаха и проблем с соседями. Кроме этого, из-за суровой зимы, желательно сделать дачный туалет утеплённым.
Где расположить туалет? Как правильно сделать выгребную яму? Какие материалы использовать при строительстве? И наконец, как построить туалеты разных типов? Всё это вы сможете узнать, прочитав нашу статью.
Расположение туалета на участке
В первую очередь нужно узнать, – насколько близко к поверхности вашего участка находятся грунтовые воды. Если грунтовые воды находятся ближе чем 2,5 метра к поверхности, то по санитарным нормам, выгребную яму делать нельзя. Спасти положение в такой ситуации, поможет пластиковая ёмкость для нечистот, расположенная на небольшой глубине.
Во вторых не располагайте туалет в низинах, это может привести к быстрому заполнению выгребной ямы во время сильного дождя, или в период таяния снега.
В третьих учитывайте фактор запаха, как бы хорошо не был изолирован туалет, неприятные испарения всё равно будут просачиваться из выгребной ямы и портить воздух в округе. По этой причине, лучше всего расположить туалет вдали от жилья и мест отдыха.
В четвёртых выгребная яма любого туалета нуждается в очистке, поэтому при выборе места для туалета, продумайте возможность беспрепятственного подъезда к нему ассенизаторской техники.
Ассенизаторская машина
Изготовление выгребной ямы
Выгребные ямы могут изготавливаться из монолитного бетона, кирпича, пластиковых ёмкостей и бетонных колец.
Использование для постройки выгребной ямы баков из металла, не рекомендуется, поскольку со временем, стенки железного бака подвергнутся коррозии и нечистоты начнут загрязнять почву.
Выгребная яма из монолитного бетона
Для изготовления вам понадобятся:
- Цемент.
- Песок.
- Мелкий щебень.
- Арматура.
- Жидкое стекло.
- Проволока для вязки арматуры.
- Опалубка.
- Бетономешалка или емкость для изготовления раствора и лопаты.
Выгребная яма из монолитного бетона
Правильный порядок работ для изготовления выгребной ямы из бетона, заключается в следующих действиях:
- Выройте котлован.
- Утрамбуйте дно котлована и засыпьте его песком.
- Установите прутья арматуры на дно и свяжите их проволокой.
- Изготовьте цементный раствор и залейте им дно котлована слоем 15-20 сантиметров.
- После высыхания цементного раствора, установите на стенки котлована, предварительно изготовленную арматурную решётку.

- После связывания арматуры, установите по периметру стенок котлована – опалубку. Устанавливая опалубку, учитывайте тот факт, что бетонные стенки ямы должны быть выше уровня грунта 10-20 сантиметров, это позволит избежать попадания дождевой или талой воды в яму.
- Залейте опалубку цементным раствором.
- Когда раствор полностью высохнет, снимите опалубку.
- Для дополнительной герметизации ямы, обработайте стенки и дно, жидким стеклом или битумной мастикой.
Выгребная яма из кирпича
Для ямы из кирпича понадобятся:
- Качественный кирпич.
- Цемент.
- Песок.
- Арматура.
- Битумная мастика.
Выгребная яма из кирпича
Чтобы изготовить выгребную яму из кирпича:
- Выройте котлован.
- Также как и в варианте с монолитным бетоном, произведите заливку и армирование дна ямы.
- Произведите кладку кирпича по периметру стенок ямы.
- После высыхания цементного раствора в кладке, произведите штукатурку стен ямы.

- Обработайте стены битумной мастикой.
Выгребная яма из бетонных колец
Выбрав вариант выгребной ямы из железобетонных колец, учтите, что для их перемещения вам понадобится специальная техника. Яма делается следующим образом:
- Выройте котлован круглой формы, размер котлована должен позволять свободно помещать в него бетонные кольца.
- С помощью крана установите в котлован кольца. Следите за тем, чтобы бетонные кольца вставали ровно, без перекосов и щелей.
- Заделайте зазоры между кольцами цементным раствором.
- Засыпьте грунтом пространство между стенками котлована и кольцами.
- Залейте дно котлована цементным раствором, для повышения прочности дна, можете предварительно провести армирование.
- Обработайте швы между кольцами жидким стеклом или битумной мастикой.
Выгребная яма из бетонных колец
Выгребная яма из пластиковой емкости
Данный вариант выгребной ямы самый лёгкий в производстве, но требующий затрат на приобретение вместительной пластиковой ёмкости.
Форма ёмкости должна позволять свободно откачивать из неё нечистоты.
Для установки пластикового бака вырывается яма. После помещения емкости в котлован пространство между стенками бака и котлована засыпается грунтом.
Выгребная яма из пластиковой ёмкости
Следует отметить, что все перечисленные варианты выгребных ям, можно делать без герметичного дна, только с фильтрующим слоем из щебня или песка. Этот способ устройства выгребной ямы позволяет снизить скорость накопления нечистот, за счёт ухода жидкости непосредственно в почву. Но не герметичные выгребные ямы, запрещены санитарными нормами.
Также при строительстве выгребной ямы не забывайте об отдушине для выхода горючих газов, образующихся при разложении органических веществ и при их значительном скоплении, создающих условия для возгорания.
Варианты туалета для дачи
Туалет из кирпича
Кирпичный туалет гораздо тяжелее по весу, чем деревянный, поэтому его лучше всего строить над выгребной ямой из монолитного бетона и использовать стенки ямы в качестве фундамента.
Туалет из красного кирпича
Этап первый – заливка основания
- Изготовьте опалубку с основным отверстием для поступления нечистот, расположенным по центру и дополнительным для отвода газов, расположенным за стенами туалета.
- Установите опалубку в выгребную яму и закрепите её на нескольких прутьях арматуры.
- Сделайте решётку из прутьев арматуры связанных проволокой и установите её на опалубку.
- Залейте опалубку цементным раствором, толщина слоя должна быть не менее 15 сантиметров.
Основание для кирпичного туалета
Этап второй – кладка стен
- Произведите кладку первых рядов кирпичей. Во избежание перекосов и неровной кладки используйте уровень и отвес.
- Постепенно увеличивайте число кирпичных рядов, постоянно сверяясь с отвесом и уровнем, особенно это замечание касается, дверного проёма.
- Дойдя до конца дверного проёма, установите перемычку из железных уголков.
- Для устройства односкатной крыши, фронтальную стенку туалета следует делать выше задней на 20-30 сантиметров.
Боковые стены делают с косым переходом – от фронтальной к задней стенке.
Кирпичная кладка
Этап третий – изготовление крыши и установка двери
- Установите на стены продольные балки из брусков сечением 150х50 миллиметров.
- Набейте на балки поперечные рейки сечением 50х20 миллиметров.
- Прибейте к получившейся обрешётке лист шифера, металлочерепицы или профнастила.
- Установите дверную коробку, закрепив её на анкерные болты.
- Повесьте дверное полотно на навесы и установите ручки с замком.
Этап четвёртый – отделка стен, пола и потолка
Отделывать стены и потолок в туалете можно разными материалами. Вешние стены лучше всего отделать материалом, который использовался для отделки других строений на даче. Это позволит сохранить общий стиль участка. Для внутренней отделки, можно использовать панели ПВХ, штукатурку или деревянные рейки. Используя варианты с ПВХ панелями и рейками, у вас появится возможность дополнительного утепления стен и потолка туалета минеральной ватой или пенопластовыми панелями. Для отделки пола в туалете укладывают плитку или просто настилают линолеум.
Обшивка рейками
Этап пятый – обустройство туалета
Для более удобного пользования туалетом, на центральное отверстие устанавливают специальные унитазы, у которых отсутствует канализационное «колено». Чтобы не испытывать затруднений в зимний период, желательно провести в туалет отопление. Для полного комфорта, проведите в туалет электричество и сделайте освещение как внутри, так и снаружи.
Унитаз без “колена”
Инструкция в фотографиях по строительству кирпичного туалета, также доступна в ролике:
Деревянный туалет
Преимущество деревянного туалета перед кирпичным в том, что его можно изготовить отдельно от выгребной ямы. Также благодаря лёгкому весу, деревянный туалет можно устанавливать над любым видом выгребной ямы.
Туалет – «скворечник»
Это самый бюджетный вариант деревянного туалета. Туалет «скворечник» позволяет сэкономить финансовые затраты на своё строительство, но это сильно сказывается на его комфорте. Поэтому, данный тип туалета в основном используется как временное решение и при последующем обустройстве участка, заменяется на более основательные конструкции.
Ниже приведены чертежи, по которым вы сможете построить туалет своими руками:
Порядок выполнения работ при изготовлении туалета:
- Сверяясь с чертежом, изготовьте каркас.
- Нарежьте рейки для обшивки каркаса (размеры указаны в таблице).
- Обшейте каркас пол и крышу рейками.
- Изготовьте дверь и повесьте её на петли.
- Закройте крышу рубероидом или другим кровельным материалом.
- Установите туалет на выгребную яму.
- Обработайте каркас и рейки олифой, после этого, покрасьте туалет краской.
Туалет “скворечник”
Подробную инструкцию по изготовлению туалета – «скворечник», в можете посмотреть в ролике:
Туалет – «домик»
«Домик» – более комфортный и прочный вариант деревянного туалета, по сравнению со «скворечником». Для постройки туалета – «домик», требуется больше времени и затрат на стройматериалы, но это себя оправдывает более комфортной эксплуатацией. Ознакомьтесь с чертежами туалета:
Порядок выполнения работ почти такой же, как и при изготовлении туалета «скворечник», главное сверяйтесь чаще с чертежами.
Туалет “домик”
Туалет с душем
Объединение двух бытовых построек в одну, позволяет сэкономить место на дачном участке и сократить расходы на их строительство. Правда такое соседство будет иметь и свой минус, выраженный в виде неприятного запаха во время приёма душа. Поэтому душевую кабинку следует делать более изолированной, без щелей и зазоров.
Данный тип постройки состоит из двух кабин, объединённых под одной крышей и имеющих общую стену.
Кабина – предназначенная под туалет, должна быть над выгребной ямой, а кабина для душа, должна иметь слив для воды. Ниже представлены примерные параметры туалета с душем:
Туалет с душем, можно изготовить из: кирпича, шлакоблоков, деревянных реек или досок.
Давайте рассмотрим вариант строительства из дерева. Для работы нам потребуются:
- Четыре бруса длиной по 2,75 метра и четыре бруса по 2 метра, сечением 10х10 сантиметров.
- Брусья сечением 5х10 сантиметров и длиной по 2 метра в количестве 24 штуки.
- Деревянные доски для обрешётки, сечением 1х10 сантиметров.
- Брусья сечением 5х10 сантиметров, длиной по 2 метра, в количестве 12 шт.
- Для пола в туалете, доски сечением 4х15 сантиметров в количестве 20 штук.
- Пластиковые трубы и слив.
- Цементный раствор в количестве полутора куба.
- Фанерные листы для опалубки.
- Песок и гравий, или щебень.
- Металлочерепица или другой кровельный материал.
Каркас туалета с душем
Как изготовить выгребную яму, написано выше, поэтому перейдем сразу к изготовлению каркаса:
- Сделайте нижнюю обвязку, используя бруски сечением 10х10 сантиметров.

- Для возведения каркасных стен, установите по углам брусья сечением 5х10 сантиметров. Для соединения их с нижней обвязкой используйте металлические пластины и уголки. Проверьте правильность положения брусьев с помощью уровня.
- Установите два бруска в каркасе для крепления будущей двери.
- Сделайте верхнюю обвязку, соединив с вертикальными опорами бруски сечением 10х10 сантиметров.
- На верхней обвязке установите три стойки с коньковой доской.
- Сделайте стропила для двускатной крыши с шагом 60 сантиметров, используя доски сечением 1х4 сантиметра.
- Изготовьте обрешётку из обрезных досок.
- Накройте крышу металлочерепицей.
- Перейдите к установке пола кабинке для туалета. Изготовьте каркас для постамента и обшейте его и пол доской толщиной 2 сантиметра.
- Обшейте стены туалета досками.
- Установите пенопластовые панели в каркас и заполните щели монтажной пеной.
- Произведите обшивку внутренних стен.
- Сделайте пол в душе из цементного раствора.
Заливая пол, делайте уклон для слива воды. - Поверх бетонного пола установите чистовой пол из досок.
- Обшейте стены досками и установите пенопластовые панели также как и в туалете.
- Установите двери в проёмы.
- Подведите трубу с водой и установите душ. Если на даче нет водопровода, то установите на крыше кабинки душа бак для нагрева воды на солнце.
- Проведите к кабинкам электричество и сделайте освещение.
Туалет с душем
Как изготовить туалет с душем на трубчатом фундаменте в можете узнать посмотрев видео:
Необычные варианты дачных туалетов
Туалет для дачи можно изготовить практически из любого материала и придать ему самый необычный дизайн. Ниже мы приведём вам фотографии необычных дачных туалетов:
- Туалет из брёвен.
Изготовлен по старой технологии, способом укладки брёвен с подходящим диаметром, друг на друга.
Плюсы: красивый дизайн, прочность, долговечность.
Минусы: большой вес, слабая пожарная безопасность, насекомые-вредители.
- Туалет из брёвен.
- Туалет из профилированного листа. Бюджетный вариант дачного туалета.
Плюсы: низкая стоимость.
Минусы: ужасный дизайн, ужасная жара внутри летом и сильный холод зимой.
- Туалет из профилированного листа. Бюджетный вариант дачного туалета.
- Туалет – карета. Самый необычный дачный туалет на сегодняшний день.
Плюсы: красивый дизайн, оригинальность.
Минусы: сложность изготовления, отсутствие выгребной ямы (исправимо).
- Туалет – карета. Самый необычный дачный туалет на сегодняшний день.
- Туалет – мельница. Туалет из досок стилизованный под мельницу.
Плюсы: недорогая цена, необычный дизайн.
Минусы: дешёвый вид, слабая пожарная безопасность.
- Туалет – мельница. Туалет из досок стилизованный под мельницу.
- Каменный туалет. Оригинальный туалет из камня.
Плюсы: красивый дизайн, прочность, долговечность, пожарная безопасность.
Минусы: высокая цена, трудность изготовления.
- Каменный туалет. Оригинальный туалет из камня.
- Туалет из соломы. Очень оригинальное использование соломы.
Плюсы: красивый дизайн, экологическая безопасность.
Минусы: недолговечность, очень слабая пожарная безопасность.
Изготовление дачного туалета – непростое дело, требующее хотя бы минимальных навыков в строительстве, поэтому если вы не уверены что справитесь, обратитесь лучше к специалистам. Если же вы считайте, что сможете сделать туалет своими руками, то смело приступайте к работе!
Как сделать туалет на даче своими руками
Первая постройка, которая возводится на дачном участке это туалет. Туалет на даче отличается от городского санузла отсутствием системы канализации. Поэтому постройка туалета на даче — это не только возведение кабинки, но и организация места сбора и утилизации отходов. Возможных вариантов устройства туалета на даче несколько о них и о том, как построить туалет на даче своими руками будет подробно рассказано в этом материале.
Уличный туалет для дачи
Большинство дач используется только в теплое время года, поэтому наибольшей популярностью пользуется летний или уличный туалет для дачи. Эта конструкция проста и хорошо проверена временем. Построить летний туалет на даче можно своими руками из доступных материалов, что безусловно является большим достоинством.
Рис.1. Интересный дизайн дачного туалета.
Рис.2. Такое строение будет отличным украшением участка.
Рис.3. Китайский стиль.
Уличный туалет для дачи состоит из туалетной кабинки и ямы для сбора отходов под ним. Кабинка для туалета на даче может быть изготовлена из любых материалов. Яма под туалет на даче может быть изготовлена любого размера. Глубина ямы для туалета зависит от числа пользователей.
Рис.4. Схема устройство уличного туалета с выгребной ямой.
Рис.5. Деревенский туалет самый простой вид, который имеет длительный срок эксплуатации.
Он представляет собой кабинку, под которой сделана яма. Все отходы попадают прямиков в нее. Яму можно чистить раз в 7 – 10 лет, или просто закапывать и передвигать туалет на новое место. Чтобы деревенский туалет не имел неприятного запаха в яму раз в несколько месяцев добавляют аэробных бактерий, которые перерабатывают отходы, и запах пропадает. Рис.6. Оригинальное решение для двери.
Однако выгребная яма для туалета на даче хорошо будет работать только при низком уровне грунтовых вод. Если уровень грунтовых вод большой, то выгребную яму будет постоянно подтапливать, и она все время будет переполняться. В этом случае от туалета такого типа придется отказаться, либо в место ямы придется использовать гидроизолированную емкость. Однако тогда необходимо, как минимум раз в год вызывать ассенизатор.
Рис.7. Схема уборной с выгребной ямой.
Рис.8. Устройство торфяного туалета.
Рис.9. Торфяной биотуалет для дачи.

Деревянный туалет для дачи своими руками
Строительство туалета на даче уличного типа можно разбить на три этапа подготовка ямы для сбора отходов, устройство фундамента и изготовление кабины туалета. При строительстве важно помнить, что туалет будет служить очень долго только в том случае если установка туалета на даче выполнена правильно.
Рис.10. Требования к размещению уборной на дачном участке.
Рис.11. Правила расположение строений на участке.
Выгребная яма для туалета на даче
Яма для туалета на даче изготавливают с укрепленными стенками. Если не укрепить яму под туалет на даче, то за не большой промежуток времени она быстро обвалиться. Для укрепления стенок ямы удобно использовать бак для туалета из двухсот литровой бочки.
Рис.12. Устройство ямы при низком уровне грунтовых вод.
Если существует опасность высокого уровня грунтовых вод, то необходимо использовать пластиковый герметичный бак.
Бочку вкапывают в землю в месте выгребной ямы. По мере эксплуатации туалета ее придется чистить. Чтобы облегчить это дело и одновременно не задумываться куда деть содержимое, в процессе эксплуатации туалета в него необходимо добавлять специальный состав. Этот состав можно приобрести в любом дачном магазине. В него входят бактерии, которые переработают все отходы, после чего их можно использовать как удобрение.
Рис.13. При высоком уровне грунтовых вод существует риск подтопления выгребной ямы и утечки нечистот. В этом случае для отходов используют пластиковый бак. Вокруг него устраивают дренаж. В этом случае отходы туалета на даче периодически приходится удалять, что без сомнения является недостатком такой конструкции.
Если грунтовых вод нет, то хорошо использовать металлическую бочку. В ней проделываются отверстия для того чтобы жидкая фаза отходов уходила в землю. Бочка засыпается не грунтом, а гравием. Таким образом получается дренаж для жидкой фракции. Выгребная яма для туалета на даче, построенная по такому принципу может работать более 10 лет и не требовать очистки.
Рис.14. При низком уровне грунтовых вод можно использовать металлическую или пластиковые бочку. В бочке по периметру делают отверстия для отвода жидкой фракции. Вокруг бочку засыпают гравием это обеспечивает дренаж. Такую выгребную яму чистить придется раз в несколько лет, что является большим преимуществом по сравнению с предыдущим вариантом.
Рис.15. Яма из автомобильных покрышек.
Рис.16. Выгребная яма из кирпича.
Как сделать фундамент для туалета на даче
По большому счету для такой конструкции как деревянный туалет не требуется особого фундамента. Однако для того чтобы постройка служила долго фундамент под туалет на даче все-таки нужен. Кроме того, если кабинку поднять над землей хотя бы на 10 см, то таким образом будет обеспечено проветривание туалета на даче.
Рис.17. Подняв туалет над землей на 10-20 см можно обеспечить хорошую вентиляцию выгребной ямы.
Рис.18. Летний туалет на сваях на наклонном участке.

Самый простой вариант фундамента для уличного туалета — это вырыть ямы по углам туалета глубиной 20 — 30 см, засыпать их песком, а на песок положить блоки или бордюрный камень. Так же просто будет установить свайный фундамент, для этого можно приобрести четыре винтовые сваи длиной 1 м.
Рис.19. Простейший фундамент из блоков для туалетной кабинки.
Рис.20. Фундамент из бетонных блоков.
Рис.21. Фундамент из толстой тротуарной плитки.
Чертежи деревянного туалета для дачи
Кабина туалета для дачи может иметь различный внешний вид, но по конструкции она всегда однотипная. Она изготавливается из деревянных брусьев по каркасной технологии. Сначала собирают каркас из брусков, а потом обшивают вагонкой или любым другим материалом.
Рис.22. Каркас туалета для дачи. Кабинка для туалета на даче может быть изготовлена по каркасной технологии. Сначала строят каркас из бруска сечением 60х80 или 80х80 мм.
После чего каркас обшивают, вагонкой, доской и сайдингом. Для крыши в качестве стропил может использоваться доска сечением 40х100 мм, обрешетку можно сделать из доски толщиной 20 мм. Чаще всего крышу кроют профлистом. Вентиляция туалета обеспечивается за счет окошка над дверью. Рис.23. Чертеж туалетного домика с крышей типа мансарда.
Рис.24. Основные размеры простой кабинки.
Для каркаса хорошо подойдет брус 60х80, 80х80 или 100х100 мм. Можно использовать брус меньшего сечения, но тогда необходимо ставить несколько диагональных перемычек для устойчивости конструкции.
Рис.25. Схема кабинки с размерами.
Рис.26. Чертеж и спецификация туалетной кабинки.
Каркасный туалет для дачи начинают строить со сборки основания из 4 брусков длиной 1,5 м. Далее устанавливают вертикальные стойки. Обязательно необходимо установить стойки для двери. Расстояние между стойками должно быть равно ширине двери вместе с коробкой.
В качестве стропил можно использовать доску 40х120 мм. Сверху на стропила укладывается доска толщиной 20-25мм, поверх нее настилается профлист.
Рис.27. Устройство кабинки летнего туалета.
Рис.28. Чертеж туалетной кабинки.
Как сделать вытяжку в туалете на даче
Для летнего туалета важно предусмотреть окно над дверью, это будет вентиляция туалета и источник освещения. Не стоит это окно стеклить иначе в туалете будет жарко и сильно пахнуть.
Рис.29. Окно вентиляция над дверью.
Рис.30. Устройство вентиляционного окна.
Чем обшить туалет для дачи снаружи
Снаружи для защиты от дождя каркас туалетной кабинки может быть обшит любым материалом, например, профлистом или сайдингом. Однако наиболее популярным материалом является вагонка или блок-хаус. Для крыши туалета используется любой кровельный материал, например, профлист.
Рис.31. Каркас туалета может быть зашит любым материалом.
Чаще всего используют деревянную вагонку. Однако дерево плохо противостоит атмосферным осадкам, поэтому его необходимо обрабатывать антисептиком. Рис.32. Такая кабинка будет мало заметна на участке.
Рис.33. Комбинированная обшивка туалетного домика.
Рис.34. Отделка туалета доской.
Сиденье для туалета на даче
В качестве сиденья может быть использованы различные конструкции начиная с помоста заканчивая отверстием в полу. На мой взгляд удобнее всего использовать специальное сиденье для туалета на даче.
Рис.35. В качестве сиденья может использоваться специальное ведро. Оно устанавливается на пол туалета непосредственно над ямой и крепится к полу саморезами. Крышка не позволяет распространяться неприятному запаху. Обеспечить хорошее проветривание яме можно подняв туалет на 10-15 см над уровнем земли, так не будет запаха и мух.
Рис.36. Сиденье для дачного туалета в виде унитаза.
Рис.37. Традиционный вариант сиденья.
Туалет для дачи без запаха
Существует несколько вариантов организации туалета для дачи без запаха: биотуалет, торфяной туалет, выгребная яма и септик. Все эти варианты отличаются по стоимости, сложности обслуживания и трудоемкости постройки.
Химический биотуалет на даче
Биотуалет представляет собой разновидность туалета, которым не требуется система канализации. Отходы жизнедеятельности накапливаются в специальном баке.
Рис.38. Модульный биотуалет.
Химические биотуалеты снабжены баком для накопления отходов и смыва, в бак смыва наливают воду и дезодорирующую жидкость, а в бак отходов добавляются дезинфицирующе-расщепляющую жидкость. Использование такого туалета практически аналогично городскому.
Рис.39. Химический биотуалет — это автономный комплекс, снабженный баком для нечистот. Такой туалет может быть установлен в любом месте. Однако небольшая емкость для нечистот требует постоянной утилизации отходов жизнедеятельности.
Такой туалет прекрасно подойдет для кратковременного использования.Достоинством химических биотуалетов является автономность, а, следовательно, их возможно установить в любом месте, в том числе и в доме, и не строить специального строения.
Рис.40. Дезодорирующая жидкость обеспечит отсутствие запаха.
Рис.41. Правила обращения с химическим туалетом.
Недостатком является необходимость постоянного слива отходов. Следует отметить, что не все химические жидкости позволяют сливать отходы в почву, а значит придется иметь специальное место для утилизации отходов.
Финский туалет для дачи
Торфяной туалет для дачи от химических отличаются более простой конструкцией. В своей работе они не используют химических препаратов. Конструктивно торфяные туалеты представляют собой небольшой бак с механизмом отвода жидкости. Для расщепления отходов после каждого использование необходимо в туалет засыпать немного торфа.
Рис.
42. Торфяной туалет для дачи представляет собой систему в которой отделяется твердая фракция отделяется от жидкой. Жидкая фракция отводится, а твердая за счет присыпки торфом перерабатывается в удобрения для сада. Недостатком торфяного биотуалета является необходимость утилизации жидкой фракции и регулярная чистка от переработанной твердой фракции.Большим достоинством торфяного туалета является экологичность. Отходы, перемешанные с торфом можно использовать как органическое удобрение для растений.
Рис.43. Емкость с отходами у финского туалета располагается под кабинкой.
Рис.44. Устройство торфяного туалета по финской технологии.
Недостатком является необходимость сооружения специального домика, установка вентиляции и необходимости оборудования дренажа для жидких фракций.
Рис.45. Вентиляция финского туалета.
Септик для туалета на даче
Септик для туалета на даче это самый современный способ утилизации отходов жизнедеятельности.
Существуют полностью автономные септики не требующие обслуживания. Их принцип работы построен на расщеплении отходов.
Рис.46. Принцип работы септика.
Рис.47. Схема установки септика.
Рис.48. Септик — это автономная система канализации для дома. Из-за сложности установки и необходимости круглогодичного использования, они обычно применяются в загородных домах. Нечистоты попадая в септик подвергаются разложению. Септик не требует регулярных чисток.
Учитывая сложность установки и стоимость оборудования, септики обычно применяются в загородных домах круглогодичного проживания.
Рис.49. Септик для загородного дома.
Мы рассмотрели все возможные варианты туалетов для дачи. Несмотря на обилие вариантов наибольшее распространение получили септик и традиционный уличный туалет для дачи. Септик хорош своей автономностью и возможностью организации полноценной системы канализации. Обычно септик применяют в загородных домах и дачах круглогодичного проживания.
Если дача посещается только в летний период, то самый простой вариант организации туалета — это деревенский вариант. Для деревенского туалета необходимо установить выгребную яму, роль которой обычно выполняет бочка, а сверху построить кабинку. Обычно кабинку строят из дерева. Если хорошо декорировать туалетный домик, то помимо выполнения своего прямого назначения, он будет еще прекрасным украшением участка.
Как сделать туалет на даче своими руками: чертежи, размеры
Нередко первое, о чем задумывается человек после покупки участка: как сделать простой уличный туалет на даче своими руками и готовые чертежи здесь придутся кстати, как впрочем и подробное описание всех этапов строительства, советы и нюансы.Одной из самых главных и жизненно необходимых построек на дачном или садовом участке является именно туалет. Потребность в нехитром сооружении возникает уже через несколько часов после приезда. И даже если у владельцев уже имеется санузел в уютном домике, уличные удобства никогда не будут лишними.
Простота конструкции позволяет даже человеку без особого строительного опыта обустроить туалет для дачи своими руками. А если подключить фантазию, то домик для размышлений о
тлично впишется в дизайн участка и, возможно, даже станет его украшением.
Какой туалет построить: виды и особенности
Собственно здесь есть всего два варианта: с выгребной ямой или без нее.
- Туалет с выгребной ямой – простое, проверенное опытом и временем сооружение, которое состоит из оборудованной выгребной ямы и туалетного домика над ней. По мере заполнения нечистотами яму вычищают вручную или заказывают ассенизаторскую машину.
А бывает, просто переносят домик на другое место. Старую яму закапывают, а через лет 6-7 ее содержимое окончательно перегниет и можно снова ставить туалет обратно.
- Люфт-клозет – разновидность уличного туалета с ямой для нечистот, но с той разницей, что она должна быть герметична. Такой туалет приходится строить, если он расположен близко к дому, источнику воды или когда грунтовые воды залегают высоко.

- Туалет без выгребной ямы или пудр-клозет обустраивают, если грунтовые воды залегают очень высоко или если туалетом мало пользуются. В данном случае емкостью для сбора нечистот может быть все что угодно, кроме ямы (ведро, бочка, пластиковый бак). Нужный объем определяет интенсивность пользования санузлом.
После каждого похода в такой туалет нечистоты присыпают сухим торфом, иногда используют опилки или золу, поэтому в домике должен быть предусмотрен ящик для «маскирующей пудры». После заполнения, емкость извлекают вручную, а содержимое эвакуируют в компостную яму. Если нечистоты были пересыпаны торфом, то через время они становятся чудным удобрением.
Туалет без выгребной ямы (пудр-клозет)Важно! Если грунтовые воды залегают ниже 2,5 метров, строить можно любой тип туалета, но если они расположены выше, то от выгребной ямы придется отказаться.
Где построить туалет
Для туалетов с выгребной ямой существует ряд санитарно-гигиенических норм и ограничений, от которых зависит их месторасположение на участке.
Минимальные расстояния от туалета до других объектов:
- До источников воды (колодцев, скважин, озер, рек) – 25 м;
- До домов, погребов – 12 м;
- До летнего душа или бани – 8 м;
- До ближайшего дерева – 4 м, а до кустарников – 1 м;
- До заборов – не менее 1 м.
Важно! Выбирая место строительства, стоит учитывать не только объекты, расположенные на собственном участке, а и те, которые находятся на соседнем.
Чтобы летние вечера на террасе не были испорчены амбре, место выбирают с учетом розы ветров. Если участок расположен под уклоном, туалет лучше ставить в самой низкой точке.
Строительство выгребной ямы
После выбора и подготовки участка, начинают выкапывать выгребную яму. Как правило, она квадратной формы, глубиной не менее 2 метров.
Выгребная яма бывает двух типов:
- Герметичная. Дно такой ямы бетонируют, перед заливкой армируют, а чтобы арматура не утонула в бетоне, ее кладут на колышки.
Стенки также герметизируют, шпаклюют раствором или замазывают швы битумом.
- Поглощающая.Такую яму лучше копать до песка, тогда жидкая фракция нечистот будет быстрее уходить в грунт. Дно укрывают слоем крупного щебня или гальки.
Укрепить стены выгребной ямы можно несколькими способами:
- Кирпичная кладка;
- Бетонная конструкция;
- Готовые железобетонные кольца;
- Пластиковый бак.
Сверху яму накрывают, брусьями, шифером или бетонируют, оставляя открытым только участок под стульчаком, и приступают к сборке туалетного домика.
Строительство туалетного домика
Оптимальные размеры дачного туалета 1×1,5 м, высота – 2,2-2,5 м. В противном случае он будет просто неудобен, особенно для людей с крупными формами. Самостоятельно делать чертежи туалета необязательно, если нет особых требований и идей можно воспользоваться уже готовыми.
В первую очередь, схема удобна тем, что позволяет правильно рассчитать количество стройматериалов и предварительную стоимость дворового санузла.
Основа каркаса
Туалетный домик, рекомендуют выдвигать на 2/3 вперед над выгребной ямой, обеспечивая, таким образом, к ней доступ для чистки за задней стенкой сооружения.
Стойкость постройки может обеспечить неглубокий фундамент. Между ним и каркасом укладывают гидроизоляцию, 1-2 слоя рубероида. Но для легкой постройки из дерева он вовсе не обязателен. Основу достаточно установить на бетонные блоки.
Также можно поставить четыре опорных столба. Для этого, по углам будущей конструкции вырывают четыре ямы глубиной около 60 см, в мягких грунтах можно до 1 метра, и опускают в них асбестовые трубы. Яму на треть заполняют цементным раствором. После этого в трубу устанавливают опорную балку, а яму до конца заполняют бетоном.
Сборка каркаса
Для сооружения каркаса достаточно будет брусьев сечением 50×50 или 80×80 мм, более габаритный материал брать нецелесообразно.
- Сначала собирают прямоугольную опору с перемычкой, от которой будет подниматься передняя стенка стульчака, и прикручивают ее к фундаменту или опорным стойкам. Поверх настилают доску. Толщина напольной доски должна быть не менее 3 см.
- Из бруса собирают каркас передней, задней и боковых стенок. При этом передняя стенка должна быть выше задней не менее чем на 10 см, это обеспечит необходимый уклон крыши.
- Для большей прочности конструкции на боковых и задней стенках рекомендуют сделать диагональные укосины.
- На передней стенке обязательно делают укрепление для двери, соответствующего размера и оформляют отверстие под окно.
- Каркасы стенок закрепляют на основании металлическими уголками, сверху и на уровне стульчака делают обвязку.
- Следующим этапом будет сборка каркаса стульчака и его обшивка, если не предусмотрены альтернативные варианты, например, напольный унитаз.

Обшивка каркаса
Обшивают каркас деревянными досками. Вертикальное расположение позволяет значительно сэкономить материал, а горизонтальное имитирует сруб и смотрится интересней. Доски плотно подгоняют друг к другу и крепят к основе. Вместо дерева также используют листы профнастила, шифер или любой другой материал, соответствующий бюджету строительства.
Обшивка каркаса туалетаСовет! Все деревянные элементы конструкции желательно обработать специальной антибактериальной пропиткой, которая защитит материал от влаги и вредителей, а после покрывают лаком или краской
Крыша
Крыша не должна выступать за пределы стен более чем на 30 см. Монтаж начинают с закрепления параллельных досок на небольшом расстоянии. После этого снизу зашивают козырек, прикрепляют доски снаружи по периметру. На подготовленное основание укладывают слой гидроизоляции, обычно, это рубероид, после чего покрывают конструкцию любым кровельным материалом (шифер, металлопрофиль, битумная черепица).
Дачники, которых стандартная схема домика не устраивает, могут подыскать чертежи более интересных вариантов, сделать его самостоятельно или приобрести готовые туалетные домики, они собираются по типу конструктора, а для удобства к ним обязательно прилагается инструкция и все сопутствующие чертежи.
Вытяжная вентиляция
Вытяжная вентиляция в дачном туалете – представляет собой трубу, которая отводит запахи из выгребной ямы. Нижний ее край заводят в яму, а верхний должен подниматься над крышей не менее чем на 20 см.
Обустройство вентиляции дачного туалетаДля обустройства вентиляции подойдет пластиковая труба диаметром 100 миллиметров. Ее притягивают к задней стенке с внутренней или наружной стороны строения и фиксируют железными хомутами. Чтобы усилить тягу на оголовок устанавливают насадку-дефлектор.
Установка двери для туалета
Двери устанавливают обычные деревянные, готовые пластиковые или самодельные, из того материала, которым обшивался каркас.
Навешивают дверь на 2 петли. Способ закрытия в принципе может быть любой, традиционно это защелка, шпингалет или крючок, снаружи и внутри. От более хитрых замочных систем, например, с защелками, лучше отказаться, поскольку их механизм будет подвергаться влиянию влаги и быстро поржавеет.
Освещение
Для более комфортной эксплуатации удобств лучше заблаговременно позаботиться об их освещении. Это может быть настенный фонарик, который работает от аккумулятора. Как вариант можно подвести электропроводку и подключить небольшой осветительный прибор.
Варианты освещения дачного туалетаА днем освещать внутреннее пространство будет небольшое окошко. Вырезают его, обычно, над дверьми или в верхней части двери, но вариантов на самом деле больше, от фигурных окон на стенах и до прозрачной крыши.
Совет! Выгребная яма прослужит дольше, если в нее не бросать туалетную бумагу и другие гигиенические или бытовые принадлежности, поэтому обязательно в туалете должно быть ведро.
Если позволяют размеры, удобно здесь установить обычный умывальник с подвесным носиком, тем более, что вы гребная яма уже готова.
Пудр-клозет: особенности сооружения
Отсутствие выгребной ямы является основным отличием в строительстве. Но есть и некоторые различия в конструкции домика. Придется подумать о способе извлечения емкости, в которой собираются нечистоты.
Схема: устройство пудр-клозетаДверцей, обычно, оборудуют заднюю стенку домика или переднюю стенку стульчака. Внутри кабинки устанавливают специальный ящик под торф (золу, опилки). Без вентиляции здесь так же не обойтись, только труба опускается не в яму, а непосредственно под стульчак.
Строительство туалета на даче: видео
Как построить дачный туалет своими руками: фото
Чертеж дачного туалета — Бобёр.ру
Трудно представить нашего человека без дачного участка в пригороде, но еще труднее — дачный участок без обустроенного туалета. Пусть у вас на даче нету дома для проживания, но все-таки, есть необходимость чтобы построить туалет. Даже если Вы приехали на участок на непродолжительное время, для того чтобы поработать, полить землю или отдохнуть, в любом случае вам будет нужен туалет. Инструкция постройки очень простая, и при этом постройка обходится недорого.
Трудно представить нашего человека без дачного участка в пригороде, но еще труднее — дачный участок без обустроенного туалета. Пусть у вас на даче нету дома для проживания, но все-таки, есть необходимость чтобы построить туалет.
Даже если Вы приехали на участок на непродолжительное время, для того чтобы поработать, полить землю или отдохнуть, в любом случае вам будет нужен туалет. Инструкция постройки очень простая, и при этом постройка обходится недорого.
Прежде чем начинать строить дачный туалет своими руками фото чертежи нужно найти предварительно, а потом выбирать место под постройку.
Какие действия следует провести для постройки туалета на даче своими руками
Несмотря на первый взгляд, простоту конструкции туалета на дачном участке, он относится к основным постройкам. Самой главной постройкой на участке является санузел, многие подтвердят, что за городом, без него просто невозможно находиться.
Конечно, туалет, который построен на улице ничем не заменит комфортной уборной, он обеспечит лишь некоторые удобства. Но без него невозможно полноценно работать на приусадебном участке.
Санитарные нормы постройки туалета нужно знать и создавать постройку, заданную ими.
Строительство туалета не составляет особой сложности и не требуется привлекать специалистов.
Но в постройки нужно соблюдать некоторые особенности.
Основные нормативы:
- Удобное место под постройку туалета. Не удачное место может привести к загрязнению зоны вокруг сооружения, почвы, воды. Поэтому не соблюдение санитарных норм и незнание может привести к проблемам со здоровьем и к привлечению штрафов санитарной службы.
- Удостовериться что строительство не создаст неудобства соседям.
- Обдумать метод, как будет происходить опустошение выгребной ямы.
- Если уровень грунтовых вод высокий, то постройка туалета должна быть хорошо заделана, во избежание загрязнения воды.
Как выбрать и выстроить дачный туалет своими руками фото и какие бывают виды их конструктивного исполнения:
Вариантов для выбора постройки туалета достаточно, но на выбор может повлиять:
- Бюджет, выделенный для постройки туалета;
- Частота использования данного сооружения;
- Уровень высоты грунтовых вод;
- Средства, выделенные на ремонт и утилизацию отходов.

Туалет построенный с использованием выгребной ямы
Самыми популярными и наиболее распространенными являются туалеты где основой является выгребная яма. В ней находятся отходы, которые потом впитываются в почву, но иногда все же нужно вызывать машину ассенизаторской службы для очищения ямы. От того насколько глубокая яма для отходов зависит частота очистки и вызова ассенизаторов, но эта процедура может быть очень редкой. В основном проблему утилизации можно решить с помощью земли, щебня, песка которым засыпают яму. После приходится выбирать нужную площадку под постройку.
Туалет можно построить из разных материалов это может быть:
- доски;
- металлический профиль;
- кирпич;
- шифер.
Самой важной частью в постройке являются вентиляция и качество каркасной основы.
Строительство деревянного туалета своими руками, чертежи
Основное предпочтение отдается постройкам из дерева.
Стоимость постройки не большая и не требует особых навыков. Деревянный туалет можно построить в стиле бревенчатой избушки или маленького домика. Если чертеж дачного туалета придумать самостоятельно, то можно получить не только нужную, а еще и постройку, которая украсит ваш участок. В качестве отделки можно взять вагонку. Достоинством деревянного туалета является то, что его можно легко переставить на новое место.
Недостатки деревянных построек.
- под влиянием солнца древесина деформируется, быстро высыхает и лопается;
- выгорание дерева от действия ультрафиолета;
- влажность и сырость способствует деформации каркаса постройки;
- вследствие сырости образовываются грибки, которые разрушают древесину, и она начинает гнить и выделять неприятные запахи.
Для того чтобы продлить срок службы постройки, ее необходимо обработать специальными средствами в виде пропитки. Дерево можно обработать грунтовкой и покрыть краской.
Для постройки туалета из металлопрофиля нужно построить каркас из древесины.
Можно так же построить каркас из профильных труб, которые можно соединить сваркой, но для этого нужно иметь некоторый навык. Каркас обшивается профильными листами и укрепляется саморезами или заклепками. Недостатком этой конструкции является сильное нагревание на солнце, поэтому желательно найти заранее место в тени. Чтобы туалет не так нагревался и было прохладно внутри, можно использовать для обивки пенополистирольные листы.
Достоинством данной конструкции является защита от влаги, так как металлопрофильные листы покрыты напылением.
Туалет из кирпича своими руками
Постройку из кирпича переместить не получиться, поэтому эта конструкция имеет сложности.
Кирпичная постройка требует еще выполнить перекрытие из бетона. Также нужно заранее продумать способ очистки выгребной ямы. Затраты на строительство такого туалета выше, но это будет уже полноценная постройка, которая не нуждается в ремонте долгое время.
Можно соорудить туалет из того же кирпича что, например, построен гараж или дом. Если строить дачный туалет чертежи размеры подбирать следует сразу перед постройкой конструкции. Это дает возможность вписаться в внешний вид дворика и сэкономить средства на постройку.
Вес этой постройки больше чем деревянный, поэтому под него нужно положить крепкий фундамент. Можно построить фундамент ленточного или столбчатого типа, но ленточный дает ряд преимуществ небольшие затраты земли, уменьшает расход цемента для заливки, безопасность и надежность.
Особенности и виды клозетов без выгребной ямы
Выгребная яма является самым не затратным и простым способом при постройке туалета на дачном участке, но также существует ряд ограничений и условий при установке:
- известняковый или сланцевый грунт;
- высоко проходят грунтовые воды;
- туалетом предполагает пользоваться большое количество людей;
Эти факторы не допускают постройку туалета на основе выгребной ямы на дачном участке, но можно решить эту проблему построив санузел без сточной ямы: люфт-клозет, пудр-клозет, биотуалет или химический.
Люфт-клозет конструкция на основе выгребной ямы, но она герметична. Часто его устанавливают возле стен туалета. Люфт-клозет требует использование услуг ассенизаторов чтобы периодически опустошать яму. Недостаток данного сооружения состоит в том, что в зимнее время его очистка невозможна, для этого требуется подогрев.
Пудр-клозет маленький размер резервуара около 20 л. Это дает преимущество в малом расходе на постройку этого туалета. Его установка необходима если грунтовые воды проходят высоко.
Созданный таким образом дачный туалет своими руками носит название из-за своего принципа действия. Отходы, находящиеся в яме, как бы «припудриваются» с помощью сухого состава. Для засыпания обычно используется торфяно-опилочная смесь или торф. Это способствует избавлению от дурного запаха. Все отходы отправляются в компостную яму для переработки в компост.
Биотуалет – популярный вид туалета среди дачников. У него тот же принцип что и у пудр-клозета- отходы перерабатываются за счет торфяной смеси.
Можно также использовать биопрепараты, которые содержат бактерии.
Химические туалеты – в них засыпаются препараты химического воздействия. Не стоит забывать о безопасности при использовании данного препарата. Для этих целей часто используют такие вещества, как хлорная известь, формальдегид, но нужно быть осторожным они очень токсичны.
Как сделать дачный туалет своими руками чертежи
Самым важным требованием к постройке любого туалета является то, чтобы отходы не попадали в грунт. Его постройка возможна только когда уровень воды в грунте составляет более 2,5 м. На выбор места для туалета влияют:
- расстояние между туалетом и источником воды, чем дальше, тем лучше ближайшее расстояние 30 м.;
- постройку следует строить на отдалении от погребов и подвалов;
- здания с домашними животными должны быть не ближе чем 5 м.;
- от ограждения до туалета должен оставаться 1м.;
- немаловажен выбор материала для строительства уборной;
Варианты постройки туалетов
Бывает несколько видов туалетов в виде скворечника, шалаш, избушка или домика.
Чертеж дачного туалета с размерами типа «Скворечник» выполняется из дерева, и обшита любым другим материалом. Строится она над выгребной ямой. Если вам сложно самостоятельно составить чертеж, можно воспользоваться готовыми проектами.
При строительстве следует использовать строительный уровень чтобы контролировать ровное размещение конструкции. Не стоит забывать про наличие вентиляции, в качестве которой может быть труба. Она должна быть выше уровня крыши. Для того чтобы утеплить туалет можно использовать пенопласт, украсить внутри можно по желанию.
Готовый проект «Скворечника» с размерами
Основываясь на чертеж дачного туалета «Скворечник» строим «Шалаш», он имеет более сложную конструкции, но результат того стоит. «Шалаш» имеет много разных вариантов оформления, для этого можно использовать свою фантазию или интернет. Размеры можно использовать из предыдущего проекта.
Начинать строительство нужно с ямы туалета, в ней будут размещены бетонные блоки.
Чертеж дачного туалета «Шалаш»
Особенной частью данной постройки является двускатная крыша в форме треугольника. Если это дачный туалет чертежи размеры подбираются индивидуально в связи с количеством людей, которые будут пользоваться туалетом.
Стройка состоит из нескольких этапов. Изначально монтируем фундамент с использованием изоляционного материала, который защитит от влаги.
Строительство «Шалаша» начинается с установки фундамента, затем нижней части каркаса 1 на 1метр и постройки выгребной ямы. Основание нужно обработать антисептиком.
Дальше нужно построить переднюю и заднюю часть каркаса используя чертежи, которые вы составили или готовые. На заключительном этапе следует доработка каркаса.
Туалет можно обшить выгонкой или оставшимися с работы досками. Крышу можно изготовить из различных материалов длиной 1,8 м, она упирается на переднюю и заднюю части каркаса и закрепляется. Материал для крыши можно подобрать в зависимости от вашего вкуса.
Это может быть металл, дерево, крыша из шифера или же профнастил.
При установке двери следует сразу же прикрепить к ней ручку и крючок. По окончанию работ нужно обработать туалет лаком или краской для улучшения внешнего вида постройки.
Правила постройки туалета из торфа
В случае если невозможно вырыть яму для туалета, решением является самодельный торфяной биотуалет. Он простой в обслуживании и не дорогой. Подробный чертеж дачного туалета можно найти в интернете.
Для данного торфяного биотуалета потребуются: стульчик с ведром или унитаз, емкость для торфа, торф и компостная яма. Торф позволяет отходам быстро перерабатываться и превращать их в удобрение он должен быть сухим, по мере заполнения ямы содержимое нужно отправить в компостную яму.
Подытожим. Благодаря изучению чертежей деревенских туалетов, его характеристик, способов и методов построек можно получить желаемый вид своего участка и улучшить качество пребывания на нем. Не бойтесь экспериментировать и добавлять в проекты некоторые изменения — только в таком случае вы получите яркий и комфортный результат и то самое чувство удовлетворения, которое всегда приходит после хорошо выполненного дела!
Как сделать деревянный туалет на даче своими руками: как построить самому
Благоустройство дачного участка обычно начинается со строительства туалета.
Без этого сооружения дачник обойтись никак не может. Все остальные постройки, такие как дачный домик, баня, беседка, появляются позже. Построив деревянный туалет на даче своими руками, человек может спокойно заниматься садово-огородными делами, наслаждаясь в перерывах свежим воздухом и любуясь красотами загородной местности. Перед началом земляных работ необходимо спланировать свой участок и выбрать место, безопасное с точки зрения санитарно-гигиенических требований, предъявляемым к сооружениям подобного рода.
На данном видеоролике наглядно представлен процесс строительства дачного туалета. Просмотрев видео, вы поймете, как сделать туалет на даче своими силами, а также определитесь с выбором необходимых строительных материалов.
На территории России действуют санитарные нормы и правила, в соответствии с которыми и надо производить постройку деревянного туалета на даче.
При этом надо учитывать не только свои интересы, но и требования соседей, обустраивающих свои дачные участки.
При выборе оптимального места для деревянного туалета с выгребной ямой руководствуйтесь следующими правилами:
- Расстояние от колодца (своего и соседского) до туалета должно составлять не менее 25 метров. Только при этом условии можно гарантировать качество колодезной воды, используемой в бытовых целях. Если вода из колодца будет не использоваться еще и для питья, то лучше провести анализ ее качества в лабораторных условиях.
- Такие сооружения, как туалет, обычно не возводят по центру дачного участка. Лучше подыскать место на некотором удалении от домика, чтобы человек мог комфортно пользоваться постройкой по прямому назначению, не доставляя неудобств другим людям. Чтобы соблюсти права соседей, надо отступить от границы, разделяющей участки, не менее чем на метр. Если проигнорируете это требование, то принципиальный сосед заставит вас перенести сооружение по решению суда.
Еще при этом придется оплатить и судебные издержки. - Если участок расположен под наклоном, то туалет строят в самом низком месте.
- Учитывают при выборе места и розу ветров. Это избавит от неприятных запахов. Хотя при надлежащем уходе за объектом данная проблема возникнуть не должна.
Подумайте также и о том, как вы будете чистить выгребную яму. Если возможно, то организуйте подъезд для ассенизаторской машины, откачивающей отходы из септиков, сливных и выгребных ям.
Выбор удачного места на дачном участке для строительства деревянного туалета надо делать с учетом требований санитарных норм и правил
Из всех видов дачных туалетов этот вариант является самым распространенным. Уличное сооружение просто и удобно эксплуатировать. Ведь отходы, образованные в процессе жизнедеятельности человека, попадают в глубокую выгребную яму, специально выкопанную для этой цели.
Как только яма заполниться на две трети своей глубины, так хозяин участка проводит ее очистку ручным или машинным способом.
Можно законсервировать объект, засыпав яму землей. Правда, при этом придется искать новое место для размещения туалета. Если площадь дачного участка большая, то вариант консервации и переноса объекта рассматривать можно. Если участок небольшой, то лучше почистить яму от накопившихся отходов.
Этап #1 – выкапывание выгребной ямы и укрепление ее стен
Строительство уличного туалета на даче начинается с выкапывания выгребной ямы. Ее глубина должна составлять не менее двух метров. Форма ямы представляет квадрат, все стороны которого равны одному метру.
Чтобы предотвратить осыпание грунта, надо стены выгребной ямы укрепить, используя для этого готовые железобетонные кольца, доски, кирпичную или каменную кладку. Дно ямы делается герметичным с помощью бетонной стяжки или просто засыпается слоем щебня, обеспечивающим дренаж. Если существует угроза загрязнения грунтовых вод, то стенки и дно ямы делают водонепроницаемыми, обязательно герметизируя их специальными материалами.
Схема устройства деревянного дачного туалета с герметичной выгребной ямой, вентиляционной трубой, отводящей неприятные запахи, люком для утилизации отходов
Этап #2 – строительство туалетного домика
Над выгребной ямой располагают защитное сооружение в виде домика. Прямоугольный каркас закрепляют на столбчатом фундаменте, при этом под все четыре угла деревянной коробки подкладывают блоки или кирпичи. Гидроизоляцию обеспечивают с помощью рубероида, прокладывая материал между фундаментом и деревянным каркасом. Далее алгоритм работ такой:
- Брус, используемый для сборки рамной конструкции, необходимо покрыть грунтовочной смесью и затем окрасить. Образовавшееся покрытие предохранит каркас от преждевременного гниения.
- Обработанный брус скрепляют между собой, получая раму нужного размера. Собранную конструкцию ставят на фундаментные столбы.
- Затем к раме крепят четыре, вертикально стоящие, стойки, с помощью металлических пластин и болтов.
Выставить строго вертикально стойки позволяет строительный уровень. - Далее приступают к установке стоек, необходимых для навешивания дверей.
- Закрепляют балки для сооружения крыши, так, чтобы они немного выступали по всему периметру за края конструкции. Поверхность односкатной крыши должна располагаться под небольшим уклоном. Обеспечить нужный угол позволяют задние укороченные стойки.
- Над выгребной ямой располагают подиум-сидение, для чего собирают дополнительный каркас из брусков и крепят его к основной конструкции.
- Крышу сооружают из листа шифера, укладываемого на перекладины, застеленные рубероидом.
- Остается выполнить наружную и внутреннюю обшивку, выбирая для этого имеющийся в наличии стройматериал. Чаще всего используют вагонку, сайдинг, профлист или обычные доски, если туалет строится для временного пользования. Для закрепления обшивки прибиваются к каркасу дополнительные перекладины, выпиленные по размеру из бруса или толстой доски. Подиум-сидение также обшивается вагонкой.

Заканчивают строительство навешиванием дверей, сбитых из досок, на петли.
Сооружение из бруса деревянного каркаса дачного туалета над выгребной ямой, стены которой укреплены старыми автомобильными покрышками
Устройство односкатной крыши и обшивка боковых стен дачного туалета, возводимого своими руками на участке из недорогих строительных материалов
На этапе строительства туалета необходимо позаботиться об его искусственном освещении. Придется подвести электричество и подключить небольшой осветительный прибор. Днем внутреннее пространство туалетного домика освещается сквозь небольшое окошечко, вырезаемое над дверью.
Дачники, которые с любовью относятся к своему участку, подходят творчески к устройству и отделке туалета на даче. На фотографиях, размещенных ниже, можно увидеть интересные варианты конструкций туалетных домиков.
Дачный туалет в виде сказочного деревянного домика, возведенного искусными руками настоящего мастера, является украшением всего загородного участка
Дачный туалет, построенный в виде причудливой деревянной избушки, утопает в зелени, растущей на радость заботливых хозяев участка
Этап #3 – как правильно соорудить вентиляцию?
Для удаления неприятных запахов, идущих от выгребной ямы, в конструкции туалета необходимо предусмотреть наличие вентиляции. Для ее обустройства подойдет пластиковая канализационная труба, имеющая 100 мм в диаметре. Трубу жестяными хомутами притягивают к задней стенке туалета.
Нижний конец заводят на 15 см в выгребную яму, для чего в сидении-подиуме вырезают отверстие нужного диаметра. Верхний конец вентиляционной трубы выводят наверх через отверстие, вырезанное в крыше строения. При этом конец трубы располагается на высоте, равной 20 см, над плоскостью крыши. Для усиления тяги на оголовке вентиляционной трубы закрепляется насадка-дефлектор.
В некоторых случаях нецелесообразно строить туалет с выгребной ямой. Поэтому выбирают вариант деревянного туалета, называемого пудр-клозетом. Главным отличием сооружения данного типа является отсутствие выгребной ямы. Вместо этого туалет оборудуется емкостью, которая при заполнении легко выдвигается из-под стульчака и вывозится с участка для опорожнения.
Обычно в пудр-клозете устанавливают небольшой ящик с торфом, опилками, сухим сеном или обычной землей. После посещения туалета сыпучим материалом «припудривают» отходы.
Без вентиляции в данных сооружениях также не обойтись. Монтаж вентиляции делают по описанному выше способу.
Как видите, ничего сложного в процессе постройки деревянного туалета нет. Можно придумать и свои варианты устройства этого нужного сооружения. Удивленные соседи будут просить совета, расспрашивая вас о том, как построить такой же туалет на даче своими руками. Делитесь информацией, чтобы вокруг вашего участка было у всех все красиво.
Туалет своими руками на даче: фото
Уважающий себя хозяин начинает строительство дачи с туалетом. При отсутствии канализации во дворе размещены удобства. Статья расскажет о видах и особенностях дачных туалетов, как их построить своими руками.
Установка туалета требует соблюдения обязательных правил :
- расположить конструкцию от колодца, колодца, пруда на расстоянии не менее 30 метров от них;
- надежно изолирует выгребную яму;
- выбирайте место установки так, чтобы унитаз не был виден и не мешал;
- не устраивать выгребную яму с уровнем грунтовых вод ниже 2.5 м;
- расстояние от дома — не менее 5 м, от соседнего участка — 2 м;
- предусматривают возможность подъезда канализационной машины к выгребной яме.
Виды и особенности уличных унитазов
Возникает вопрос о выборе конструкции. Типов уличных туалетов достаточно. Выделяют следующие варианты строительства своими руками:
- туалет с выгребной ямой;
- люфт шкаф;
- пудреница;
- торфяной туалет.
При правильном выборе оптимального типа дачного туалета необходимо учитывать такие факторов :
- сколько человек будет им пользоваться;
- как часто будете приходить на дачу;
- сколько денег можно потратить на строительство;
- какой уровень экологичности и гигиены для вас приемлем.
Унитаз со смывом построен в виде домика или будки с ямой для сбора сточных вод.Жидкие компоненты испаряются, некоторые из них уходят в почву. Накапливаются плотные частицы. При необходимости выгребная яма очищается вручную или с помощью канализационной машины. Возможен вариант, когда будку переносят в другое место, а яму засыпают.
Для поддержания гигиены, уничтожения мух в яму периодически заливают отбеливатель, а изнутри промывают водой с дезинфицирующей жидкостью.
Люфт-клозет — вид унитаза с выгребной ямой.От первого варианта отличается герметичной выгребной ямой большего размера. Отстойник опорожняется только путем откачки.
Для герметичности стенки котлована бетонные, сверху закрываются крышкой. Люк находится над уровнем земли. Обязательно устраивайте капюшон.
В качестве приемной воронки используется унитаз, в котором отсекается сифон.
Эта конструкция более гигиенична, чем предыдущая, но намного дороже.
Порошковый шкаф выглядит как обычный унитаз.Яма ему не нужна, сточные воды собираются в емкость под сиденьем унитаза. Хороший вариант для территорий с высоким уровнем грунтовых вод.
В будку ставится ведро с торфом, которое после каждого посещения туалета присыпается отходами.
Часто бывает необходимо очистить емкость небольшого объема. Подходит для дачи, где хозяева бывают редко.
Торфяной туалет — это промышленная версия порошкового туалета. В нем есть туалет, цистерна на 20 литров и ящик для торфа.А вот будку или туалетный домик придется построить своими руками ..
Как сделать туалет на даче: этапы строительства
Всегда есть дом в дизайне дачного туалета. Он построен из разных материалов: дерева, кирпича, камня. Под выгребные ямы и люфт-клозеты выкапывают яму. Если вы выбрали унитаз с выгребной ямой, строительство начинается именно с него.
выгребная яма может иметь глубину полтора метра и ширину 1-1,2 м.Дно ямы хорошо утрамбовано. Чтобы стены не обрушились быстро, их следует укрепить. Вы можете выбирать между различными вариантами:
- кирпич то, что легко и дешево;
- заливной бетон. Операция трудоемкая, нужно занести щебень, сделать опалубку;
- положить бетонные кольца;
- используйте пластиковый контейнер.
Если выгребная яма спроектирована под люфтовые чуланы, то дно бетонируется.Стены заделывают: кирпичные стены — мастикой, швы между кольцами заделывают раствором. Вокруг ямы делают глиняный замок толщиной в полметра.
Яма закрывается крышкой с люком для очистки. При люфте клозета необходимо обеспечить герметичность крышки и люка.
Если вы собираетесь построить кирпичный дом над котлованом, вам понадобится прочный фундамент . Вокруг кирпичной или бетонной стены котлована выкапывается траншея шириной 20 см на глубину промерзания почвы.Собирают опалубку для фундамента и одновременную заливку пола котлована. В опалубке в плитах оставляют три отверстия : для люка для очистки, для бункера и для вентиляции.
Устройство опалубки сложно на первый взгляд. На самом деле все просто: на отверстие кладут доски или ДСП с дырочками. Опалубка фундамента выполняется только снаружи. Заливается бетоном и получается монолит из перекрытия котлована и фундамента.Для прочности вставляется арматурная сетка.
Домик из кирпича построен из кирпича. Рядов через пять от стен снимите остатки раствора и проведите расшивку. Периодически уровнем и отвесом проверяйте горизонтальную и вертикальную кладку. Двери и окна внахлест изготавливаются из стального уголка.
Деревянный дом туалет строится быстрее, дешевле по стоимости. Его устройство запускается с фундамента. Есть два варианта.На поверхность бетонного фундамента кладут стержни. К ним крепятся угловые стойки. При отсутствии фундамента трубы устанавливаются по углам на глубину до 80 см и армируются бетоном. В трубы вставляются столбы.
Каркас из балок 80 × 80 мм. Сверху к столбам крепят балки для крыши. Они несколько выступают вперед и назад, образуя козырек и выступ на спине. Столбы по диагонали расшиты досками для прочности конструкции.На высоте 1,8 м спереди крепится дверная перемычка.
Стульчак из дерева. Каркас обшивается вагонкой. Посередине у края прорезается отверстие.
Крыша сделана с небольшим наклоном назад для слива воды. Сначала делается перекрытие из досок, его покрывают шифером, толью, профлистом.
Стены обшиты 25-миллиметровыми досками, плотно прибитыми вертикально. Вместо досок можно использовать шифер или профлист.
Пол возможно бетонный. Если вы желаете укладывать плитку на пол, стяжку предварительно выравнивают. Для устройства деревянного перекрытия укладываются два бревна, к ним прибиваются доски.
Вытяжка вмонтирована в заднюю стенку. Используются две металлопластиковые трубы диаметром 110 мм и длиной 0,5 и 2 метра. Короткая труба вставляется в подготовленное отверстие. Длинная труба выводится соединительным коленом под углом 90 ° над кровлей. Крепление трубы к стене осуществляется хомутами.Короткую трубу можно закрепить пенополиуретаном.
Все деревянные детали обрабатываются антисептиком, затем окрашиваются.
Туалет на даче своими руками: фото
Как сделать деревянный туалет на даче своими руками: как построить
Ландшафтный дизайн дачный участок обычно начинается со строительства туалета. Без этого строения дачнику обойтись не может.Все остальные постройки, такие как дачный домик, баня, беседка, появляются позже. Построив деревянный туалет на даче своими руками , человек может спокойно заниматься садовыми делами, наслаждаясь перерывами на свежем воздухе и любуясь красотами сельской местности. Перед земляными работами необходимо спланировать свой участок и выбрать безопасное с точки зрения санитарных требований место для подобных сооружений.
На этом видео наглядно показан процесс строительства дачного туалета.Ознакомившись с видео, вы поймете, как сделать туалет на даче своими руками, а также определитесь с выбором необходимых строительных материалов.
В России существуют санитарные нормы и правила, согласно которым необходимо производить строительство деревянного туалета на даче. При этом необходимо учитывать не только их интересы, но и с точки зрения соседей, способы обустройства своих участков.
Выбирая лучшее место для деревянного туалета с выгребной ямой, учитывайте следующие правила:
- Расстояние от колодца (вашего соседа) до туалета должно быть не менее 25 метров.Только при этом условии можно гарантировать качество колодезной воды, используемой для бытовых нужд. Если вода из колодца не будет использоваться для питья, лучше проанализировать ее качество в лаборатории.
- Такие постройки, как туалет, обычно не возводят в центре дачного участка. Лучше найти место на некотором удалении от дома, чтобы люди могли комфортно использовать постройку по прямому назначению, не доставляя неудобств окружающим. Чтобы соблюсти права соседей, необходимо отступить от границы, разделяющей участки, не менее чем на метр.Если вы проигнорируете это требование, принципиальный сосед заставит вас перенести постройку судом. Еще придется оплатить судебные издержки.
- Если участок расположен под откосом, то туалет строят в самой низкой точке.
- Учитывайте при выборе места и розу ветров. Это избавит от неприятных запахов. Хотя при правильном уходе за объектом такой проблемы возникнуть не должно.
Подумайте также о том, как вы будете чистить туалеты. По возможности устроить подъезд для вакуумных машин, откачивания отходов из септиков, выгребных ям и канализации.
Выбор удачного места на дачном участке под строительство деревянного туалета связано с требованиями санитарных норм и правил.
Из всех типов дачных туалетов этот вариант наиболее распространен. Уличная конструкция проста и удобна в эксплуатации. Ведь отходы, образующиеся в процессе жизнедеятельности человека, попадают в глубокую яму, специально вырытую для этой цели.
После заполнения ямы на две трети ее глубины владелец земли проводит ее расчистку вручную или машинным способом.Можно сохранить объект и засыпать яму землей. Однако для проведения WC придется найти новое место. Если участок дачного участка большой, вариант консервации и передачи объекта можно рассмотреть. Если участок небольшой, лучше очистить лунку от скопившихся отходов.
Этап №1 — рытье отстойника и укрепление стен
Строительство уличного туалета на даче начинается с рытья отстойника. Его глубина должна быть не менее двух метров.Форма котлована квадратная, все стороны равны одному метру.
Для предотвращения оседания грунта стены отстойника укрепить с помощью сборных железобетонных колец, досок, кирпичной или каменной кладки. Дно котлована заделывают бетонной стяжкой или просто засыпают щебнем, обеспечивая дренаж. При угрозе загрязнения грунтовых вод стены и дно котлована делают водонепроницаемыми, обязательно герметизируя их специальными материалами.
Схема устройства туалета деревянного коттеджа с герметичной выгребной ямой, вентиляционной трубой, отводом неприятных запахов, люком для вывоза мусора.
Фаза №2 — строительство бани
Над выгребной ямой защитного сооружения в виде жилого дома.Прямоугольный каркас закреплен на опоре фундамента, во всех четырех углах деревянного ящика огораживают блоки или кирпичи. Обеспечить гидроизоляцию рубероидом, прокладочным материалом между фундаментом и деревянным каркасом. Затем алгоритм работает следующим образом:
- Древесина, из которой строятся каркасные конструкции, необходимо покрыть грунтовочной смесью и затем покрасить. Полученное покрытие защитит каркас от преждевременного гниения.
- Пиломатериалы скреплены между собой под размер рамы.Собранную конструкцию кладут на фундамент сваи.
- Затем прикрепите к каркасу четыре стойки, стойки, металлические пластины и болты. Поставить стойку вертикально позволяет строительный уровень.
- Далее приступаем к установке счетчиков, необходимых для навесных дверей.
- Закрепите балки для конструкции кровли так, чтобы они были немного по периметру за край конструкции. Поверхность односкатной кровли следует располагать под небольшим уклоном. Обеспечить нужный угол позволяют укороченные задние стойки.
- Над выгребной ямой сиденье подиума, зачем собирать дополнительные планки каркаса и прикреплять к основной конструкции.
- Скат крыши из листа шифера, уложенный по балкам, покрытый гудроном.
- Осталось провести внутреннюю и внешнюю отделку салона, выбрав имеющийся материал. Мы часто используем вагонку, сайдинг, листовой металл или доску, если унитаз построен для временного использования. Для крепления обшивки прибивают к каркасу дополнительные балки, распиленные по размеру брус или толстые доски.Сиденье на подиуме также обшито вагонкой.
Комплектная конструкция навесных дверей, выбитых из досок, петель.
Строительство деревянного каркаса дачного туалета над стенами выгребной ямы, усиленного старыми автомобильными шинами
Устройство односкатной кровли и обшивки боковых стен дачного туалета, построенного своими руками на участке из недорогих стройматериалов.
На этапе постройки туалета необходимо позаботиться о его искусственном освещении.Придется подать питание и подключить небольшой осветительный прибор. Дневное внутреннее пространство туалетного домика освещается через небольшое окошко, прорезанное над дверью.
Отдыхающие, любящие творчески придать своему участку устройство, а также убранство туалета на даче. На фотографиях, размещенных ниже, можно увидеть конструкции бани.
Дачный туалет в виде сказочного деревянного домика, построенный умелыми руками этого мастера, является украшением дачного участка.
Дачный туалет, построенный в причудливой деревянной хижине, утопающей в зелени, растущей на радость заботливым хозяевам участка.
Этап №3 — как построить вентиляцию?
Для удаления запахов, исходящих из отстойника, в конструкции туалета должна быть предусмотрена вентиляция.Для ее обустройства подойдет пластиковая канализационная труба диаметром 100 мм. Металлические хомуты для труб, чтобы тянуть заднюю часть унитаза.
Нижний конец покрышки на 15 см в выгребной яме, для чего в сиденье-подиуме вырезается отверстие нужного диаметра. Верхний конец вентиляционной трубы выводится через отверстие, вырезанное в крыше здания. Конец трубы находится на высоте 20 см над плоскостью кровли. Для увеличения тяги на верхней части вентиляционной трубы закреплено сопло-дефлектор.
В некоторых случаях строительство туалета с выгребной ямой нецелесообразно. Почему стоит выбрать деревянный унитаз, называемый пудреницей. Основное отличие конструкций этого типа — отсутствие выгребных ям. Вместо этого унитаз снабжен емкостью, которая при наполнении легко выдвигается из-под сиденья и транспортируется с места для опорожнения.
Обычно в пудренице устанавливают небольшой ящик с торфом, опилками, сухим сеном или обычным грунтом. После использования унитаза сыпучий материал «присыпается» отходами.
Без вентиляции в этих конструкциях тоже нет необходимости. Монтаж вентиляции делаем по описанной выше методике.
Как видите, ничего сложного в процессе постройки деревянного туалета нет. Вы можете придумать свои версии устройства, нуждающиеся в конструкции. Удивленные соседи будут спрашивать совета, спрашивать, как построить унитаз на даче своими руками. Поговорить с окружающими были красивыми.
Связанные с контентом
европейских туалетов, которые нужно знать перед уходом от Рика Стивса
Рик Стивс
Туалеты за границей могут быть травматичными даже в Европе, но они являются одной из тех мелочей, которые могут сделать путешествие намного более интересным, чем пребывание дома — у каждого путешественника по всему миру есть одна или две отличные истории о туалете, которые придают «местным жителям» очень реальный смысл.
Промывочные машины для беспорядка
В Европе вы можете столкнуться или не встретить знакомый механизм промывки. В старых ванных комнатах унитаз может иметь шнурок вместо ручки (как правило, резервуар прикреплен к стене, а не сам унитаз). В современных ванных комнатах вы можете увидеть две кнопки на верхней части бака: одна выполняет регулярный смыв, а другая (для более легких работ) экономит воду. В Великобритании вы, вероятно, встретите «унитаз с насосом» с ручкой для смыва, которая не сработает, если вы не нажмете на нее правильно: слишком жестко или слишком мягко, и она не пойдет.(Будьте решительны, но не безжалостны.)
Туалетная бумага
Как ложка или вилка, это еще одна западная «необходимая вещь», которую многие люди на нашей планете не используют. То, что они используют, варьируется. Не буду слишком наглядным, но помните, что миллиард цивилизованных людей на этой планете никогда не едят левой рукой. В то время как европейцы используют туалетную бумагу, туалеты не всегда хорошо укомплектованы. Если вы не хотите, чтобы время от времени сушили под капельницей, возьмите с собой карманные салфетки (их легко купить в Европе) для унитазов без TP.В некоторых странах, таких как Греция и Турция, очень хрупкая сантехника. Если вы видите возле унитаза мусорную корзину с использованной туалетной бумагой, это признак того, что канализационная система не в порядке. Поместите использованный ТП в корзину для мусора, а не смывайте его. (Практическое правило в этих местах: не кладите ничего в туалет, если вы не съели это заранее.)
Платные туалетыПлата за пользование общественным туалетом — это европейский обычай, который раздражает некоторых американцев. Но разве это не стоит нескольких монет, учитывая стоимость воды, обслуживания и чистоты? И вы, наверное, в любом случае не в состоянии спорить.Монетные туалеты — это норма на автострадах, вокзалах и даже в некоторых достопримечательностях. (Во многих туалетах с монетоприемником есть самоочищающиеся сиденья для унитаза; оставайтесь там, когда закончите, чтобы посмотреть шоу.)
Иногда сам унитаз бесплатный, но дежурный в углу продает листы туалетной бумаги. Чаще всего это блюдо для чаевых у входа — местного эквивалента около 50 центов вполне достаточно. Внимание: многие сопровождающие оставляют в лотке только купюры и слишком большие монеты, чтобы сбить с толку туриста с полным пузырем.Смотрители общественных туалетов в Европе заслужили репутацию раздражительных людей. Вы тоже были бы раздражительным, если бы жили под улицей в комнате, полной общественных туалетов. Юморите их, поймите их и принесите с собой мелочь, чтобы вы могли оставить им монетку или две.
Женщины в мужском туалете
Женщины-помощницы, которые, кажется, обитают в туалетах Европы, являются популярной темой для разговоров среди мужчин-янки. Рано или поздно вы будете заниматься своими делами у писсуара, и дама принесет вам сдачу или подметает под ногами.Да, это отвлекает, но тебе просто нужно к этому привыкнуть — она уже привыкла.
Гендерно-нейтральные ванные комнаты
В некоторых европейских ванных комнатах есть общие помещения для мытья рук для женщин и мужчин с прилегающими, но отдельными туалетами. А в некоторых туалетах вообще нет различий по полу.
Унитаз для приседаний
Подавляющее большинство европейских туалетов похожи на наши собственные. Но в нескольких труднодоступных местах вы можете найти один, состоящий просто из фарфоровых следов и ямы для приседания и прицеливания.Если вы столкнетесь с приземистым унитазом, помните: те из нас, кому нужен трон, чтобы сидеть, составляют меньшинство. Во всем мире большинство людей сидят на корточках и не более того. Иногда их называют «турецкими туалетами», но чаще они встречаются в Турции.
Чтобы привыкнуть к чужим туалетам, нужно немного привыкнуть, но это путешествие. Находясь в Риме, делайте то же, что и римляне — и, прежде чем вы это узнаете, вы будете в европе.
В поисках общественного туалета
Однажды я отправил туристическую группу в город на горшок, и когда я забрал их через 20 минут, никто не нашел облегчения.Найти приличный общественный туалет может быть неприятно. Но, имея несколько советов, вы сможете в мгновение ока унюхать биффи.
Монетные туалеты на улице
В некоторых крупных городах, таких как Париж, Лондон и Амстердам, на углах улиц есть туалеты типа телефонных будок с оплатой монетами. Вставьте монету, дверь откроется, и у вас будет 15 минут использования туалета в сопровождении Синатры Музак. Когда вы уходите, дезинфицируется вся камера.
В некоторых городах есть бесплатные, простые в использовании общественные писсуары (называемые pissoir s), которые предлагают мужчинам достаточно уединения, чтобы они могли найти облегчение… иногда с видом.В Мюнхене до Олимпийских игр 1972 года были уличные писсуары, а затем решили украсить город, покончив с ними. А как насчет потребностей людей? В Мюнхене действует закон: любое заведение, где подают пиво, должно допускать посетителей (независимо от того, являются они посетителями) для посещения туалетов.
Рестораны
В любом месте, где подают еду или напитки, есть туалет. Ни один ресторатор не пометит свой туалет так, чтобы его видели люди на улице, но вы можете вежливо и уверенно зайти почти в любой ресторан или кафе и найти ванную.Предположим, что это где-то сзади, наверху или внизу. Проще всего делать это в больших помещениях, где есть столики на открытом воздухе — официанты подумают, что вы клиент, который быстро заходит внутрь. Некоторые называют это грубым; Я называю это выживанием. Если хотите, спросите разрешения. Просто улыбнитесь «Туалет?» Мне редко отказывают. Заведения быстрого питания американского типа очень распространены и обычно имеют приличный и довольно доступный «общественный» туалет. Робкие люди покупают напиток, который им не нравится, чтобы пользоваться туалетом, но в этом, как правило, нет необходимости (хотя иногда код секретной двери в ванную печатается только в чеке).
Даже в американских торговых сетях будьте готовы к культурному шоку в ванной. В большом Starbucks в Берне, Швейцария, я открыл дверь и обнаружил очень синее пространство. Мне потребовалась минута, чтобы понять, что из-за голубого света наркоманы не могут найти свои вены.
Общественные здания
Когда природа манит и нет подходящего ресторана или бара, загляните на вокзалы, правительственные здания, библиотеки, большие книжные магазины и верхние этажи универмагов. В парках часто есть туалеты, иногда такие же, как у опарыша.Никогда не покидайте музей, не воспользовавшись его туалетами — они бесплатные, чистые и украшены художественными граффити. Иногда вы можете попасть в туалетные комнаты музея из вестибюля, не платя за вход. Большие, стильные, старые вестибюли отелей впечатляют, как и многие дворцы, за которые вы заплатите. Здесь всегда можно найти королевское убежище и много мягких TP.
Как построить сухой туалет
Для нового поколения консерваторов, компостеров, домашних пивоваров и вязальщиц выпускается Making It (Rodale, 2010), окончательное руководство по домашней жизни.Экономный, самостоятельный образ жизни становится практическим решением в неустойчивом мире. Авторы Келли Койн и Эрик Кнутцен помогут вам ориентироваться в современном приусадебном хозяйстве с помощью простых пошаговых инструкций и проектов, от простых, таких как изготовление ламп на оливковом масле, до амбициозных, таких как разработка системы капельного орошения для овощей. Не тратьте отходы! Узнайте, как построить сухой туалет и повторно использовать компост для подкормки декоративных растений или фруктовых деревьев.
Туалеты со смывом используют два ценных ресурса, чистую воду и богатые азотом человеческие отходы, и объединяют их, чтобы создать проблему: сточные воды.Сухие или «человеческие» туалеты объединяют опилки и человеческие отходы, которые затем компостируются в почву. Это простая и элегантная система, которая следует требованиям природы, согласно которым не существует отходов.
В сухом туалете не используются вода, электричество или химикаты, а также водопровод или септики. Это делает его идеальным для жизни вне сети, а также в ситуациях, когда нет водопровода. Это удобный способ добавить дополнительный туалет в любой дом.
Мы бы солгали, если бы сказали, что поначалу не кажется странным пользоваться туалетом без воды, но к этому быстро привыкаешь.Если вы выросли с туалетом со смывом, ваш основной импульс — избавиться от мусора. Pronto. Однако, как только вы поймете неоспоримую логику системы, узнаете из первых рук, что она не пахнет, и увидите, как ее содержимое превращается в сладкую, чистую почву благодаря силе компостирования, вы никогда не будете так же смотреть на туалеты со смывом опять таки.
Вам понадобится
• Прочный пластиковый ящик для молока
• Ведро емкостью 5 галлонов
• Сиденье для унитаза с болтами крепления
• Фломастер или китайский маркер (опция)
• Лобзик или замочная пила
• Универсальный нож
• 4 деревянных обрезков или ножки стола
• 8 пластиковых стяжек
• Несколько галлонов опилок и ведро для их хранения, а также совок
Собираем вместе
Уборка
Найдите ящик для молока и ведро на 5 галлонов.Убедитесь, что ящик достаточно большой, чтобы вместить ведро по ширине. Когда будете собирать ящик, спросите разрешения или будьте осторожны. Мы знаем о человеке, арестованном за то, что он убирал ящики с молоком за стриптиз-клубом во всех местах. Когда полиция закончила заказывать мусорщик для ящиков с молоком, полицейский вложил туда документы. . . Как вы уже догадались, ящик из-под молока, который можно использовать как входящий.
Прикрепите сиденье унитаза к ящику
Найдите сиденье для унитаза или купите его в местном хозяйственном магазине.Переверните ящик вверх дном и прикрепите сиденье к одному из коротких концов. Обязательно отцентрируйте сиденье. Проденьте пластиковые болты, поставляемые с сиденьем унитаза, через два отверстия в решетке на дне ящика. Наденьте гайки на болты внутри ящика, затем затяните. Не затягивайте слишком сильно.
Вырежьте отверстие в ящике
Опустите сиденье унитаза на ящик. Слегка отметьте положение отверстия для сиденья, сделав несколько линий на ящике маркером или фарфоровым карандашом или надрезав ножом, используя внутренний край сиденья в качестве ориентира.Теперь вы знаете, где будет сидеть ведро. Поднимите сиденье и переверните ведро над отметками. Обведите контур верхней части ведра на ящике. Вырежьте круг лобзиком или замочной пилой.
Готовые компостные туалеты
Вы можете купить ведра емкостью 5 галлонов с маленькими сиденьями для унитаза. Ищите их в магазинах товаров для улицы. Ежедневное использование одного из них — не самое удобное предложение — они удобны, но это хорошая альтернатива, если вы не собираетесь использовать ведро в течение длительного времени и не хотите строить для него жилье.Вы можете заполнить одну из этих готовых опилок и убрать ее на всякий случай.
Отрежь ноги
Ножки унитаза поддерживают ящик так, чтобы он прилегал заподлицо с верхним краем ведра. Чтобы определить длину ножек, измерьте высоту ведра и толщину дна ящика. Вычтите долю дюйма, представляющую толщину дна ящика, из высоты ведра. Получившееся число и будет длиной ног.Ножки унитаза имеют длину 13-1 / 2 дюйма, но ваши размеры могут отличаться в зависимости от высоты ведра и толщины ящика.
Присоедините ножки
Ножки устанавливаются по четырем углам ящика, их концы упираются в пол ящика. Прикрепите их к обрешетке, пропустив кабельные стяжки через пластиковую сетку углов обрешетки и затянув. Две завязки, одна высокая и одна низкая, должны надежно удерживать ноги. Если кабельные стяжки вам не нравятся, вы можете прикрутить ножки к ящику болтами.
Инструкция по эксплуатации
Вам понадобится постоянный запас опилок для использования в качестве укрывного материала. Спросите в магазинах древесины и на лесных складах опилки. Не используйте опилки химически обработанной древесины, ДВП или фанеры. Однажды это будет почва, и вы не хотите, чтобы эти токсины попадали в почву. Опилки лучше всего подходят для укрытия и контроля запаха, хотя вы можете поэкспериментировать с другими богатыми углеродом укрывными материалами, такими как измельченная солома или сено. Все, что вы используете, должно иметь мелкую текстуру для надлежащего покрытия.Не используйте щепу или стружку. Они слишком «воздушные» и плохо справляются с запахом. Древесная щепа также нелегко компостируется.
Держите закрытый контейнер с опилками рядом с сухим туалетом. Вам понадобится совок для опилок. Мы потратили деньги на хороший металлический совок. Келли настаивала на том, что если мы собираемся покакать в ведре, нам нужно это прикосновение класса. Вы можете сделать совок, отрезав конец пластикового кувшина: держите ручку кувшина неповрежденной и сделайте надрез под углом, чтобы получилась форма совка.
Перед первым использованием домашнего компостного туалета положите на дно ведра глубокий слой опилок, примерно на 3–4 дюйма. Делай свой бизнес. Туалет humanure обрабатывает как твердые, так и жидкие отходы. Когда вы закончите, накройте осадок слоем опилок. Старайтесь не использовать слишком много опилок — достаточно, чтобы их было достаточно. Туалетная бумага может идти в ведро, но больше ничего. Когда устройство не используется, всегда закрывайте его крышкой. Если возникает запах, вероятно, вы используете недостаточно опилок. Все, что вы должны почувствовать, — это влажные опилки.
Когда ведро наполнится, выньте его в компостную кучу. Читай дальше.
Как сделать компост Humanure
Компост компостный. Все принципы компостирования, которые мы описали в этой книге, применимы к компостированию человека. Как и конский навоз или куриный помет, отходы жизнедеятельности человека являются источником азота. Как и любой другой компостируемый навоз, он может переносить болезнетворные микроорганизмы, но эти болезнетворные микроорганизмы погибают как от тепла, так и от времени. Не путайте компостирование человека с практикой использования сырых человеческих отходов в качестве удобрения, это было бы опасно.Помните, что компостирование — это процесс очищения и преобразования. Компостирование превращает все в почву.
Компостеры Expert humanure используют свой компост для выращивания пищи. Они доверяют силе компостирования, и у них достаточно опыта, чтобы знать, как управлять кучей, чтобы обеспечить ее безопасность. Мы рекомендуем новичку раскладывать готовый человеческий компост только вокруг несъедобных растений и фруктовых деревьев.
По этой причине храните компост humanure в отдельном контейнере.Бункер должен быть контейнером с закрытыми стенками и крышкой, чтобы уменьшить коэффициент вязкости. Можно использовать бочку на 50 галлонов, металлическую или пластиковую, а также большой мусорный бак или коммерческий контейнер для компоста. Если вы не планируете перемещать контейнер, его дно должно быть вырезано или продырявлено отверстиями для дренажа и проникновения червей. Черви помогут очистить почву. Если вы используете бочку или мусорное ведро, обеспечьте дополнительную аэрацию, просверлив два кольца с маленькими (1/4 дюйма) отверстиями по всему верхнему краю.
Поскольку куча накапливается с течением времени, а не сразу, компостирование Humanure представляет собой форму медленного компостирования, с небольшим дополнительным вниманием к температуре и старению.Мы поговорим об этих двух факторах в дальнейшем. Но сначала нужно поговорить об опилках. Опилки — чрезвычайно богатый углеродом материал, гораздо больше, чем сушеные листья или солома. Мы говорили о том, что компостирование — это искусство балансирования элементов земли, воздуха, огня и воды. Опилки — это элемент земли. Это очень круто.» Если он не сбалансирован большим количеством материала, богатого азотом, ваша компостная куча станет холодной и инертной. Отходы жизнедеятельности человека богаты азотом, но недостаточно «горючие», чтобы самостоятельно уравновесить все эти богатые углеродом опилки.Это особенно актуально, если в вашем доме много опилок при использовании сухого туалета. Чтобы обеспечить правильный баланс между землей и огнем, вам нужно будет добавлять в кучу дополнительную зелень каждый раз, когда вы опорожняете на нее унитаз.
Это основная процедура компостирования человека:
• Когда вы начинаете новую стопку, положите на дно мусорного ведра слой чего-нибудь абсорбирующего, например соломы или пучка опавших листьев, чтобы помочь аэрировать его и впитать лишнюю жидкость.
• Когда ведро унитаза наполнится, вылейте его содержимое в стопку. Это не так грубо, как вы думаете. Опилки оставляют многое для воображения.
• Промойте ведро и налейте воду в кучу. Удобно иметь рядом с мусорным ведром шланг, а также специальную щетку для протирки. Вы можете вымыть ведро снаружи, используя небольшое количество биоразлагаемого мыла, и вылить воду для стирки на кучу.
• Добавьте в кучу дополнительный слой «зелени». Это включает в себя кухонные отходы, кофейную гущу и зеленые обрезки с вашего двора, а также другие виды навоза, такие как конский, куриный или кроличий помет.Удобным концентрированным источником азота является люцерновая мука, которую можно недорого купить в больших пакетах. Вылейте его на поверхность чашкой. В этом небольшом количестве содержится столько же азота, сколько в охапке зелени.
• После добавления этого слоя положите сверху кучу тонким слоем сухого углеродного материала, например, мертвых листьев, сухой травы, опилок или даже слоя грязи, чтобы контролировать запах и отпугивать насекомых. Закройте корзину.
• Повторяйте этот процесс каждый раз, когда вы опорожняете ведро.
Не нужно переворачивать эту стопку. Хорошие новости, а? Если уравновесить четыре элемента: землю, воздух, огонь и воду, куча разложится сама по себе. Добавив дополнительный азот, вы сбалансировали землю и огонь. Водная стихия — это влага. Большая часть этого поступает естественным образом из мочи и воды для полоскания, но если компостная куча когда-либо выглядит сухой, добавьте воды. Воздух поступает из вентиляционных отверстий в мусорном ведре и таких легких материалов, как листья и солома. Если какой-либо из этих элементов кажется несбалансированным, примите меры, чтобы исправить это.Например, если куча кажется сырой, добавьте сухой пушистый материал, такой как солома или мертвые листья, чтобы впитать немного влаги. Если он плохо пахнет, возможно, у вас слишком много азота или куча недостаточно покрыта. Решение то же — сверху много сухого.
Свежий азот из унитаза и зелень нагреваются при разложении. Если вы измеряете температуру верхнего слоя кучи термометром для компоста через день или два после добавления нового продукта, вы должны увидеть температуру 130 ° F или выше.Со временем он остынет, и нижние части корзины также будут прохладными. Но если температура новых добавок достигнет 130 ° F, вы можете быть уверены, что любые потенциальные патогены (например, паразиты или кишечная палочка) в компосте уничтожаются.
Время также является прекрасным очищающим средством. Независимо от того, регулярно ли ваша куча достигает 130 ° F или нет, она должна быть выдержана. Когда корзина будет заполнена до верха, закройте ее крышкой и дайте ей постоять в покое не менее года. Насекомые и более мелкие формы жизни придут и завершат процесс разложения.А пока поставьте рядом новый контейнер и продолжайте.
Через год содержимое урны должно напоминать почву. Если нет, примите меры по исправлению положения. Опустошите корзину. Если материал по-прежнему выглядит так же, как и при загрузке, вероятно, вы добавили недостаточно азота. Опилки охлаждали его. Сгребите компост обратно в мусорное ведро, добавляя слой свежей зелени через каждые 6 дюймов или около того. Комбинация свежего азота и массы кучи должна снова запустить процесс компостирования и произвести достаточно тепла для завершения кучи.
Проблема сухого туалета: патогены в куче
Проблема патогенов в человеческом организме сложна. В общем, если в вашем доме нет паразитов и нет людей, страдающих кишечными заболеваниями, переносимыми бактериями, ваша компостная куча тоже не будет нести эти вещи — если только они не попали в нее через навоз. Даже в этом случае высокие температуры и долгое старение убьют почти все. Подробное обсуждение этих вопросов можно найти в книге Джозефа Дженкинса Humanure Handbook .Вы можете купить книгу или бесплатно скачать отдельные главы в формате PDF. Кроме того, помните, что эти опасения наиболее актуальны, если вы планируете использовать компост для обработки пищевых культур. Если вы планируете распространить его вокруг декоративного ландшафта или фруктовых деревьев, маловероятно, что к вам вернутся какие-то плохие животные.
Этот отрывок был перепечатан с разрешения издания Making It: Radical Home Ec для постпотребительского мира , опубликованного Rodale, 2010. Купите эту книгу в нашем магазине: Making It.
Наши лучшие туалетные подсказки для путешественниц
Этот пост содержит партнерские ссылки. Если вы совершите покупку с их помощью, мы получим небольшую комиссию без каких-либо дополнительных затрат для вас. Это помогает поддерживать работу этого сайта — спасибо!
Одна основная проблема, когда я путешествую, — это туалета . Женщине непросто пользоваться старым туалетом или иметь дело с ним, когда его совсем нет.
Борьба настоящая.
Если вы собираетесь отправиться в приключение, помните об этих лучших туалетных советах для женщин-путешественниц, чтобы снять стресс, когда он вам определенно не нужен!
1.Карманные салфетки.
Привыкайте носить бумажные салфетки и салфетки в карманах (в кафе, ресторанах и других туалетах).
Быть пойманным без лишней «туалетной бумаги» никогда не бывает весело, поэтому всегда имеет резервную копию — это ключ к предотвращению этой драмы.
В зависимости от того, куда вы путешествуете, лучше всего упаковать обычный рулон TP. Вы можете добавить мини-рулон туалетной бумаги в свой упаковочный лист и оставить его в своем рюкзаке.Или упакуйте весь рулон и всегда пополняйте запасы на день в сумочке или рюкзаке.
Чтобы упростить упаковку: Просто возьмите картон из середины обычного рулона и сдавите, чтобы сэкономить место. Полезно хранить тайник в пластиковом пакете или пакете Ziploc, чтобы он не разорвался в клочья или не намок.
2. Загрузите приложения для поиска туалетов.
Ага, они есть!
Разве вы не ненавидите его, когда исследуете новый город, и , когда зовет природа, вы не знаете, куда направиться?
Такие приложения, как Toilet Finder , могут помочь вам в этом! Эта краудсорсинговая карта туалетов дает вам доступ к более чем 70 000 туалетов, и она даже скажет вам, как далеко до ближайшего.
Если вы путешествуете по Австралии, Национальная карта общественных туалетов предоставляет рекомендации для 16 000 общественных туалетов по всей стране, поэтому добавьте его в закладки на своем мобильном телефоне.
Другие приложения, которые стоит посетить:
* Сообщите нам, используете ли вы эти приложения и насколько они полезны в разных странах.
Растяжка и работа над этими мышцами ног полезны для приседаний в туалете.3. Наращивайте мышцы ног.
Еще до того, как вы отправитесь в путешествие, наращивание мышц ног поможет вам справиться с ужасным туалетом для приседаний. Я считаю, что это особенно полезно, когда вы парите над обычными туалетами сомнительного характера.
Вы также можете проверить это сообщение в блоге с подробным описанием и советами о том, как ходить в туалет на открытом воздухе.
Вы также можете сделать следующее…
4. Инвестируйте в Shewee.
A Shewee — это многоразовая воронка для мочи, благодаря которой на ней можно пописать стоя ! Аллилуйя!
Тереза даже упаковала один из них в свою драгоценную сумочку (как обсуждалось в Подкасте HPL, эпизод 1), потому что они делают ее путешествия более приятными.
Другие модели включают одноразовые P-mates GoGirl или .
Воронки для мочи у женщин: партнерши помогают вам пописать стоя
P-Mates представляют собой одноразовое устройство для мочеиспускания женщин. Они складываются в форму воронки, которую затем можно использовать для улавливания и отвода мочи от тела в положении стоя. Преимущества включают следующее:
- Вам не нужно парить над грязными сиденьями унитаза.
- Вам не нужно сидеть на корточках в кустах, это может привести ко многим неудачам .
- Для его использования не нужно снимать слишком много одежды.
- Вы можете максимально использовать стрессовые условия, например стоять в очереди, когда ваш мочевой пузырь вот-вот лопнет.
- P-Mates одноразовые, поэтому вам не нужно беспокоиться о хранении и очистке после использования.
- Они маленькие, их можно сложить и положить в карман. В рюкзаке мало места для хранения вещей.
- Они дешевые. Вам не нужно тратить много денег, чтобы пользоваться преимуществами P-Mates во время путешествий.
5. Накопите запасную мелочь.
Даже несмотря на то, что всегда есть соблазн избавиться от лишних денег, купив закуску или пачку жевательной резинки, остановитесь. Оставьте сдачу!
Многие общественные туалеты, особенно в Европе и Юго-Восточной Азии, требуют оплаты за вход. А если они не автоматизированы, может быть, вам нужен помощник по уходу за туалетом, которому нужно давать чаевые (или платить за туалетную бумагу).
6. Упакуйте шарф.
Иногда вы можете столкнуться с ситуациями с туалетом, когда унитаза нет вообще, и в подобных случаях шарф или саронг можно использовать в качестве защиты конфиденциальности .Вы также можете заменить для этой цели турецкое полотенце.
Привяжите ее к кустам для дополнительного освещения, переделайте дверь в тех местах, где двери в ванных комнатах не обязательны, или пусть ваш замечательный парень подержит ее позади вас, чтобы вся ваша задница не показывалась вашей туристической группе, сидящей в автобус.
Когда вы путешествуете по Монголии, а единственный туалет выглядит так…
Красивые открытые монгольские равнины. Туалеты?Это действительно очень полезный совет.
7. Носите с собой дезинфицирующее средство или влажные салфетки.
Потому что, когда нет туалетов или когда туалеты не содержатся в хорошем состоянии, часто нет раковины или мыла на расстоянии около миль.
Помимо рук, вы также можете использовать дезинфицирующее средство или влажные салфетки, чтобы протереть сомнительное сиденье унитаза перед использованием.
8. Подарочный унитаз не смотри в рот.
Сделайте перерыв в ванной, когда покажется туалет … потому что вы не знаете, когда доберетесь до другого.
По возможности пользуйтесь перерывами в туалет.9. Закрепите вещи перед тем, как пользоваться приземистым горшком.
Все незакрепленные предметы, особенно телефоны, деньги и солнцезащитные очки, должны быть удалены или закреплены перед тем, как приближаться к ним.
У нас был друг, чьи солнечные очки упали на дно 6-футового приземистого туалета в Монголии и навсегда потеряли его. К счастью, это был не его телефон!
10. Научитесь просить туалет.
Как следует из названия этого поста, выучите фразу «Где туалет?» на языке этой страны.
Если вы плохо говорите, сохраните фотографию на свой телефон или сделайте карточку, которую вы можете показать людям.
Это избавит вас от неудобного языка жестов во время крайней необходимости.
И последний бонусный совет: подготовьтесь мысленно.
Я очень ценю свою конфиденциальность, когда дело доходит до использования туалета, но факт в том, что в других культурах это просто не то же самое. Когда вы путешествуете, вы можете столкнуться с неудобными туалетными ситуациями, поэтому мой лучший совет — мысленно подготовиться к этому опыту.
От коммунальных туалетов до туалетов для приседаний и уборки туалетов, о которых не заботятся, — это может быть трудный путь для женщин.
Надеюсь, некоторые из этих советов могут помочь!
Как вы готовитесь и справляетесь с неудобными туалетными ситуациями во время путешествия?
Прикрепите их к своим любимым доскам
туалетов со всего мира
Как выглядят туалеты по всему миру? Возможно, это не один из самых острых вопросов века, но стоит задуматься над ним, когда вы проводите время в собственном туалете.Заглянув в кабинки ванных комнат в других странах, можно обнаружить множество стилей туалетов, некоторые из которых более привлекательны, чем другие. Давайте отправимся в путешествие, чтобы узнать, как выглядят ванные комнаты по всему миру.
Туалеты в западном стиле
Прежде чем мы отойдем слишком далеко от дома, давайте рассмотрим основы вашего стандартного туалета в западном стиле. Конечно, вы сидите на одном туалете каждый божий день, но действительно ли вы задумывались о специфике, которая определяет стиль унитаза в Америке? Хотя вы обнаружите некоторые различия в цвете, размере и форме чаши, большинство туалетов в U.С. имеют похожие конструкции.
Итак, в чем же общие черты западных туалетов? Обычно они имеют следующие или похожие характеристики:
- Унитаз округлой формы
- Фарфор строительный
- Белый цвет
- Кромка с кромкой
- Сиденье прикреплено к верхней части чаши
- Высота около 16 дюймов от земли
- Flusher, который легко идентифицировать
- Туалетная бумага под рукой
Хотя многие туалеты, с которыми вы сталкиваетесь за границей, могут иметь похожий дизайн, вы также найдете туалеты настолько странными, что вы можете не знать, как ими пользоваться.Понимание этих разных ванных комнат может помочь вам подготовиться, если вам понадобится заняться бизнесом в чужой стране.
Плата за ванную комнату
Если вы едете за границу, всегда полезно иметь под рукой сдачу. Возможно, вы привыкли бесплатно ходить в любой общественный туалет, но в некоторых европейских странах это не так. Во многих странах от вас могут потребовать внести плату за пользование туалетом.
Как вы платите за ванную комнату?
Многие общественные туалеты требуют сдачи на хранение, чтобы открыть дверь кабинки в ванную.Некоторые страны, такие как Финляндия, более высокотехнологичны, когда дело касается оплаты за ванную комнату. Вы можете заплатить с помощью текстового сообщения, поэтому вам не нужно беспокоиться о поиске сдачи, когда вам действительно нужно идти.
Помните о системе таймера
Когда дверь откроется, ожидайте увидеть унитаз, похожий на тот, что был бы в США. Однако будьте осторожны: некоторые из этих киосков с оплатой на вынос работают по таймеру. Когда ваше время истечет, дверь откроется, и вы окажетесь незащищенными.В некоторых из этих киосков также есть автоматические дезинфицирующие средства, поэтому вы можете продезинфицировать задницу, если будете сидеть слишком долго.
Почему в некоторых странах взимается плата за пользование ванной?
Хотя многих американцев эта тенденция раздражает, монеты идут на поддержание чистоты и ухода за ванными комнатами. Если все, что вам нужно, — это небольшая мелочь, чтобы обеспечить вам доступ к чистым туалетам, вы, вероятно, обнаружите, что плата за ванную стоит своих денег.
Туалеты для приседаний
Каждый видел свою долю не очень красивых ванных комнат, и большинство женщин знают трюк «присесть на корточки над сиденьем унитаза», чтобы не вступать в контакт с неизвестным с чем.Во многих странах сидение на корточках приобретает совершенно новое значение — например, это единственный способ пользоваться туалетом.
Если вы наткнетесь на один из этих туалетов для сидения на корточках, вы, скорее всего, больше никогда не будете жаловаться на какие-либо общественные туалеты, которые встретятся в США. Эти унитазы сделаны из металла или фарфора и представляют собой просто дыру в полу. Вы садитесь на корточки над ямой, чтобы заняться делами. На них могут быть ступеньки по обе стороны от ямы, куда идут ваши ноги. Во многих случаях вы не используете туалетную бумагу для этих туалетов, и вы сможете либо спустить воду в туалете, либо использовать ведро с водой.Когда закончите, вымойте посуду из ближайшей чашки.
Многие американцы были бы шокированы, обнаружив эту ванную комнату в нескольких других странах по всему миру. Вы можете ожидать найти туалеты для сидения на корточках в нескольких азиатских странах, таких как Индия, Китай, Таиланд и Турция, где их иногда называют «турецкими туалетами».
Вот несколько общих черт туалетов для приседаний, которые вы можете ожидать:
Мойте себя водой вместо туалетной бумаги
Накачивайте мышцы ног перед поездкой в такие страны, как Индия, чтобы подготовиться к приседанию над дырой в полу.В этих туалетах обычно нет туалетной бумаги, но вы можете найти ведро с водой рядом с отверстием. Если вам интересно, вода используется для мытья себя после посещения туалета.
Вылейте воду на зад и вымойте левой рукой. Если это не заставляет вас тосковать по грязному туалету на остановке грузовика в США, мы не знаем, что будет! Нам это кажется странным, но людям во многих частях света протирать задницы бумагой кажется столь же странным и антисанитарным.
В таких странах, как Египет, вы, скорее всего, найдете шланг для уборки после поездки вместо ведра с водой. Сначала очистите задницу, а затем используйте шланг, чтобы вымыть место унитаза, чтобы он был готов для следующего человека.
Туалеты без дверей
Будьте готовы обнажить все вместе с кем-либо, пользующимся туалетом в таких странах, как Китай. Приземистые туалеты обычно появляются в помещениях, похожих на кабинки, без дверей. В Тибете вы становитесь еще ближе к другим посетителям туалетов, поскольку между туалетами для сидящих на корточках нет стен.
Туалеты для приседаний
В некоторых странах вы найдете сочетание традиционных туалетов для сидения и туалетов для сидения на корточках в виде приподнятого унитаза для приседаний с сиденьем. Если вы собираетесь в Таиланд, вам предстоит решить, найдете ли вы унитаз для сидения на корточках, традиционный сидячий унитаз или их комбинацию. Выбирайте, сидите вы или приседаете, но мы рекомендуем сначала проверить чистоту, если вы выберете вариант сидя.
К счастью для американских путешественников, туалеты в западном стиле становятся все более популярными в азиатских городах.В Китае, например, «туалетная революция» нацелена на многие популярные туристические объекты, чтобы улучшить качество и чистоту общественных туалетов. Япония также хочет поменять свои туалеты для приседаний в популярных городах, таких как Токио, чтобы привлечь больше туристов.
Популярность биде
Если вы когда-нибудь были во Франции, Италии, Японии, Португалии, Венесуэле или Аргентине, вы наверняка видели биде.
Что такое биде?
Вместо того, чтобы использовать туалетную бумагу для мытья после посещения туалета, биде смывает все сразу с вашей задней части.Биде похоже на унитаз западного образца, но имеет дополнительную насадку, которая впрыскивает воду именно туда, где вам нужно. Наклонитесь вперед, и пусть туалет сделает за вас всю грязную работу!
Вы также можете найти биде в виде отдельной арматуры с регулятором воды или в виде отдельного распылителя и шланга рядом с унитазом. В Таиланде, например, вы обычно найдете рядом с унитазом шланг для чистки.
Зачем использовать воду вместо туалетной бумаги?
Может показаться странным использование воды для мытья посуды после посещения туалета, но во многих странах водный метод имеет важное значение из-за ограниченной доступности одноразовых бумажных изделий, таких как туалетная бумага.Некоторые общества предпочитают воду бумаге для лучшей очистки. Тем не менее, другие полагаются на систему очистки воды, чтобы водопроводные системы работали должным образом. Хотя биде не стало таким популярным в США, многие страны считают, что использование воды для очистки тела более гигиенично и менее расточительно.
Можно ли еще использовать туалетную бумагу?
Помните об этом во время путешествий. Соблюдайте осторожность при использовании туалетной бумаги в других странах. Принесение собственной туалетной бумаги и смывание ее в унитаз может вызвать засорение труб и нанести ущерб местной водопроводной и канализационной системе.
Высокотехнологичные туалеты
Пользователи туалетов для приседаний могут быть шокированы, обнаружив высокотехнологичные туалеты в некоторых частях мира. Например, в Китае и Японии вы можете найти высокотехнологичные туалеты, которые превращают пользование туалетом в роскошь.
Что такое высокотехнологичные туалеты?
В то время как в некоторых туалетах в этих странах используется простой, приземистый унитаз, другие туалеты в популярных городах оснащены роскошными функциями, в которые вы не поверите. Эти туалеты напоминают западный стиль, но в них есть довольно удивительные особенности.Некоторые из опций, которые вы найдете в различных моделях, включают:
- Сканы тела
- Обогреватели сидений
- Сиденья с дистанционным управлением
- Подлокотники
- Биде автоматические
- Сушилки
- Музыка для маскировки звуков в ванной
Где найти высокотехнологичные туалеты?
Эти высокотехнологичные туалеты становятся все более обычным явлением в общественных туалетах из-за «туалетной революции». В японском аэропорту вы можете найти рядом биде с подогревом сиденья или рулон туалетной бумаги, чтобы вытереть ваш смартфон.Унитазы больше не просто функциональность — они говорят о комфорте и удобстве. Каждый должен пользоваться туалетом, так почему бы не сделать этот отдых более приятным с помощью высокотехнологичных туалетов?
Высокотехнологичные туалеты также можно найти в частных домах, поэтому, если вы подружитесь с друзьями во время следующей поездки в Японию, вы, вероятно, сможете насладиться одним из этих роскошных туалетов. У нас возникает соблазн заказать один из них для собственных ванных комнат!
Уличный туалет Trend
Вы когда-нибудь слышали об уличном туалете? В настоящее время они возвращаются в такие города, как Монреаль, Сан-Франциско и Париж.
Что такое уличные туалеты?
В таких местах, как Париж, эти общественные ванные комнаты расположены внутри небольших серых построек на тротуаре, в них есть туалет и проточная вода для мытья рук — и эта тенденция распространяется на другие города по всему миру.
Для чего предназначены уличные туалеты?
Уличные туалеты удобны для всех, кто идет по улице и кому нужно сделать пит-стоп. Этими удобствами могут пользоваться и бездомные, у которых нет доступа к собственной ванной.
Чего можно ожидать от уличного туалета?
Вы найдете все удобства типичного туалета от уличных туалетов. В таких местах, как Монреаль, есть уличные туалеты с самоочисткой, в то время как такие города, как Сан-Франциско, создали уличные туалеты с современным элегантным дизайном. Уличный туалет — это не просто флигель посреди улицы — он разработан таким образом, чтобы быть удобным и чистым для каждого пользователя.
Инспекционные туалеты
В таких странах, как Германия, вы можете встретить инспекционные туалеты.
Что такое смотровой туалет?
Издалека эти туалеты похожи на те, что вы привыкли видеть дома. Но при ближайшем рассмотрении вы заметите, что внутренняя часть чаши выглядит совсем иначе. Вместо того, чтобы быть посередине или ближе к задней части, отверстие находится в передней части чаши. Еще более странно то, что переднее отверстие чаши окружено небольшим количеством воды. Такой дизайн сильно отличается от стандартного унитаза западного образца.
Почему они называются инспекционными туалетами?
В задней части чаши есть платформа, на которую не накрывается вода.Почему? Такой дизайн позволяет вам проверить свой депозит перед тем, как смыть его. Для нас это звучит странно, но судить не будем. Когда вы смываете, он все выталкивает в отверстие. Остерегайтесь возможности разбрызгивания при попадании мочи на платформу.
Самоочищающийся унитаз
Мытье туалета — это, безусловно, одна из худших работ, но французы позаботились об этом конкретном раздражении, предоставив общественные туалетные кабинки, которые убираются сами.
Что такое самоочищающиеся туалеты?
Название говорит само за себя.Эти очень особенные туалеты обычно располагаются в одном киоске прямо вдоль улицы. Они немного похожи на футуристическую капсулу с подсветкой, указывающей, используется ли ванная, в режиме самоочистки или в неисправном состоянии. После того, как кто-то воспользуется удобствами, унитаз поворачивается обратно в стену, где он дезинфицируется для следующего пользователя.
Для чего нужны самоочищающиеся туалеты?
Самоочищающийся унитаз делает пользование туалетом удобным и гигиеничным для пользователей. Благодаря самоочищающимся туалетам общественные туалеты остаются чистыми, и никто не берет в руки ершик.Вам будет намного удобнее занять место в этих общественных туалетах, зная, что они были только что продезинфицированы до вашей очереди.
Исчезающие писсуары
Теперь вы это видите, а теперь нет! Если вы будете бродить ночью по определенным частям Лондона и других европейских городов, вы можете заметить вдоль улицы высокое цилиндрическое строение.
Что такое исчезающий писсуар?
Держитесь на безопасном расстоянии от этой конструкции — если вам не нужно помогать себе — потому что на самом деле это писсуар.Эти писсуары «урилифт» поднимаются из-под земли только ночью. Однако у вас не будет никакой конфиденциальности, если вы решите их использовать — писсуары находятся на открытом воздухе, без дверей или других типов конфиденциальности. Но если вы все равно собирались пописать в здание, скорее всего, вы не будете против использовать писсуар, который находится на открытом воздухе.
Прогуляйтесь по тем же улицам днем, и вы можете задаться вопросом, представляли ли вы что-то накануне вечером. Ночные писсуары снова опускаются в землю с наступлением утра, позволяя людям ходить прямо по ним.
Для чего нужны исчезающие писсуары?
Эти писсуары предназначены для предотвращения мочеиспускания пьяных мужчин на улицах, в зданиях и других местах. Если они собираются мочиться в общественных местах, у них с тем же успехом может быть выделенное пространство для дел, которые не будут создавать проблемы с санитарией общественных зданий и улиц.
Однако не все общественные писсуары исчезают днем. В Амстердаме также есть общественный писсуар прямо под открытым небом.Однако эти писсуары не исчезают в земле с рассветом. Вместо этого смелые пользователи могут писать в писсуары 24 часа в сутки даже средь бела дня. Цель та же, что и в лондонской версии: не дать пьяным людям мочиться по всему городу.
Туалетный этикет
Возможно, вы знаете основные правила этикета при использовании общественных туалетов в США, но осведомлены ли вы о негласных правилах использования туалетов в других странах? Ознакомьтесь с этими советами по туалетному этикету во всем мире, чтобы никого не обидеть:
- Только слева: Во многих странах водопроводная система или тип туалета не позволяют использовать туалетную бумагу.В некоторых из этих стран в туалетах используется только левая рука. Это потому, что правая рука предназначена для приветствия или приема пищи. Некоторые страны с этим правилом «только для левой руки» включают Марокко, Иран и Индию.
- Оставьте пробел: В таких странах, как Великобритания, надлежащий этикет заключается в том, чтобы оставлять хотя бы один писсуар между вами и кем-то другим, кто пользуется туалетом. Другими словами, не подходите к писсуару рядом с тем, кто уже занимается делами.
- Принесите свою туалетную бумагу: Во многих странах не ждите, что туалетную бумагу можно найти в туалетах.Когда зовет природа, принято приносить с собой туалетную бумагу.
- Ищите мусорную корзину: Если вы видите мусорную корзину рядом с унитазом, примите это как знак того, что не следует смывать туалетную бумагу. Корзина, скорее всего, предназначена для всей использованной туалетной бумаги. Многие водопроводные системы просто не справляются с туалетной бумагой.
- Носите тапочки в Японии: В японских ванных комнатах тапочки часто используются только в ванной. Это защитит ваши ноги в ванной, не отправляя микробы в остальную часть дома.Снимите домашние тапочки за пределами ванной комнаты, наденьте тапочки для ванной, чтобы справиться со своими делами, а затем снова наденьте домашние тапочки, когда закончите.
- Ограничение касания: Неважно, насколько грязными вы считаете общественные туалеты здесь — и поверьте нам, мы видели свою долю грязных ванных комнат — туалеты в некоторых странах очень вонючие и полны бактерий и микробов. Не касайтесь поверхностей больше, чем это необходимо. После этого всегда мойте руки. Также не помешает иметь при себе бутылку дезинфицирующего средства для рук на всякий случай.
Украсьте свою ванную комнату
Несмотря на то, что разные туалеты со всего мира интересны, конфиденциальность по-прежнему является важной частью дизайна коммерческих ванных комнат. Независимо от того, есть ли у вас стандартные американские туалеты или что-то более интересное из-за океана, качественные перегородки необходимы. Ваши покровители будут вам благодарны! Ознакомьтесь с нашими продуктами для перегородок, чтобы найти лучшие материалы и оборудование для стойл для ваших нужд.
Свяжитесь с One Point Partitions, чтобы получить бесплатное предложение сегодня.
Энди Хьюз
Энди вместе со своим братом Джейсоном Хьюзом основал One Point Partitions. Энди работает здесь с 2006 года и всегда старается найти более простые способы создания перегородок. Энди окончил Университет штата Айова и большую часть своей карьеры занимается строительством и продажей продукции. В свободное время он ловит рыбу и путешествует … но в основном ловит рыбу. И еще рыбалка. Кричите ему сегодня!
Как пользоваться приседающим туалетом в Китае: китайские туалетные подсказки
Китай сегодня
От Келли Обновить фев.09.2021
Использование туалетов для приседаний в Китае, возможно, не входит в «список 10 лучших» путешественников на время отпуска, но обычно становится частью их опыта в Китае. Общественные туалеты в Китае становятся все более и более санитарными, но некоторые по-прежнему шокируют.
Китай — одно из самых популярных мест отдыха в мире, и на это есть веские причины. Туризм и туалеты хорошо развиты в таких достопримечательностях, как Запретный город, а отели, отмеченные звездами, обычно соответствуют высоким стандартам, несмотря на то, что Китай является развивающейся страной.Однако одна вещь, которая удивляет многих, впервые попадая в Китай, — это приземистый унитаз.
1. Что такое приземистый унитаз? (См. Фото.)
Приземистый туалет в КитаеПриземистые туалеты не встречаются в большинстве стран западного мира, но в Китае более вероятно, что человек войдет в туалет и найдет унитаз, расположенный на одном уровне (или, простите за каламбур, «смыв») с туалетом. этаж. К этим туалетам нужно немного привыкнуть.
Туалеты для приседаний не слишком сложны в использовании. Большинство проблем человека возникают из-за незнания того, как пользоваться туалетом. Незнание того, как пользоваться этими туалетами, может означать ожидание в гораздо более длинных очередях за западными туалетами, поэтому лучше немного предвидеть.
2. Чего ожидать: чистота туалетов для приседаний в Китае
Чистота туалетов для приседаний очень сильно зависит от того, где вы находитесь в Китае . Если вы находитесь в элитном торговом центре в центре Шанхая или в аэропорту, вы можете ожидать, что туалеты будут часто проверяться персоналом и регулярно протираться шваброй (хотя неясно, как часто чистят швабру).Если вы окажетесь в безымянной деревне на холмах, будьте готовы отправиться в кирпичную лачугу без электричества и чуть больше, чем большую дыру в земле. Они могут быть некрасивыми, но, безусловно, запоминающимися!
В целом, уровень чистоты улучшается по мере развития Китая, и вы обычно окажетесь в общественном туалете, который очень похож на большинство западных общественных туалетов (например, вы все равно не захотите проводить в нем слишком долго). там). Обычно там будут киоски, уборщица наготове (которая без колебаний проталкивает швабру, пока вы занимаетесь своими делами) и, если вы собираетесь в мужской туалет, несколько джентльменов, стоящих вокруг быстро выкуривать перед тем, как вернуться к работе.
Туалеты в китайских поездах недолго остаются такими чистыми.Однако, если природа зовет вас на медленный поезд , будьте готовы к одному из самых отвратительных моментов в вашей жизни. В каждом вагоне есть два туалета для приседаний (боюсь, только туалеты для приседаний), которые через час или два в пути превращаются в места, в которых вы действительно не хотите находиться. Из-за движения поезда прицеливание становится затруднительным, и вам нужно будет за что-то ухватиться, так как падение на этот пол — это не то, что нужно испытывать.
Если можете, выбирайте поездку на высокоскоростном поезде . Туалеты на них намного лучше, с хорошим обслуживанием и могут даже включать туалет в западном стиле.
Предупреждение: Будьте готовы к тому, что некоторые из более бюджетных общественных ванных комнат не предлагают особой конфиденциальности. Туалеты со стенами кабинки, построенными всего в метре от земли без дверей, (к счастью) заменяются более высокими кабинами с дверьми, но замки (если они все еще прикреплены) могут не работать, поэтому может потребоваться удерживать дверь закрытой или шуметь чтобы другие не толкали дверь.
3. Перед выходом
Даже в большинстве 3-звездочных отелей Китая есть европейские туалеты.Это может показаться удивительным, но использование туалета для приседаний требует некоторого планирования, прежде чем вы даже покинете свой отель / аэропорт.
Хороший совет: воспользуйтесь ванной перед отъездом из аэропорта / отеля . Посетителям Китая, вероятно, в какой-то момент придется пользоваться туалетом на корточках, но выход из отеля перед выходом из отеля сократит количество перерывов в отпуске.
Многие люди также планируют пит-стопы в торговых центрах, модных ресторанах и международных отелях, поскольку в этих местах обычно есть западные туалеты.
Многие общественные туалеты не предоставляют туалетных принадлежностей , так что, как правило, неплохо собрать немного перед тем, как отправиться в путь на день.
Если вам нужно пойти, но у вас нет туалетной бумаги, у вас есть только два варианта.
- Вариант номер один (каламбур не предназначен): найдите ближайший магазин и купите туалетную бумагу (мандарин: wèishēngzhǐ 卫生纸).
- Вариант номер два (тоже не каламбур): найдите себе более симпатичный ресторан, так как они начинают предоставлять своим клиентам туалетную бумагу.Если можете, найдите бар, в нем почти всегда есть разумные туалеты и туалетная бумага.
Также велика вероятность, что в туалете не будет мыла или бумажных полотенец (или фена), чтобы вытереть руки. Вы также обнаружите, что во многих общественных туалетах, даже в больших городах, таких как Пекин, нет подогрева воды. Летом это нормально, но в зимние месяцы, когда ртуть регулярно опускается ниже -10 ° C (14 ° F), рекомендуется упаковать дезинфицирующее средство для рук перед тем, как отправиться в путь.
Вам может понадобиться небольшая сумма сдачи , так как многие общественные туалеты начали взимать плату.
4. В уборной
Первое, что человек должен сделать перед тем, как пойти в ванную, — попросить друга или члена семьи подержать им свои сумки (например, сумки для покупок, кошельки). Это не значит, что их не украдут, а потому, что обычно нет крючков, на которые можно было бы повесить эти сумки, и для равновесия понадобятся обе руки.
Не забыв вынуть туалетную бумагу из сумки, вам, возможно, придется набрать в очереди , чтобы узнать унитаз.Во многих туалетах есть как западные, так и приземистые туалеты, а на некоторых даже есть указатели, указывающие, какой туалет находится в кабине. Не принято просто ждать, пока откроется киоск, поэтому выберите одну линию киоска и придерживайтесь ее.
Следующее идеальное движение для человека — подтянуть длинные штанины на . Пол может быть мокрым из-за «несчастных случаев» или из-за обслуживающего персонала, который постоянно вытирает ванные комнаты, но в любом случае это поможет человеку избежать намокания брюк.Даже если пол выглядит сухим, упираться спинками расшатанных штанин в пол унитаза все равно нежелательно.
5. Приседания
Туалеты для приседаний не так уж и сложны, если человек знает, как им пользоваться. К сожалению, для многих людей, отдыхающих в Китае, это будет их первая поездка. Первое, что следует помнить, это то, что даже для мужчин позиция для использования этих туалетов обращена вперед (чтобы избежать разбрызгивания на сливную трубу).
Теперь необходимо стоять так, чтобы ноги стояли по обе стороны от унитаза для приседаний . На каждой стороне этих туалетов есть канавки, чтобы помочь человеку оставаться на месте во время использования туалета. Ступни человека должны быть ближе к середине этих канавок и плоскими.
После того, как все вышеупомянутые приготовления выполнены, человек может спустить штаны до середины бедер и присесть на корточки над унитазом. Важно, чтобы одежда не касалась пола ; это верно, даже если место кажется чистым и безупречным.
Когда вы закончите свой бизнес, вы можете заметить табличку с просьбой не смывать туалетную бумагу и мусорное ведро рядом с вами , заполненное использованными салфетками. В настоящее время в большинстве туалетов действительно можно смыть небольшое количество туалетной бумаги, и эти уведомления в основном существуют для предотвращения выбрасывания в туалеты всех видов мусора (как это делается в сельских туалетах). Таким образом, решение остается за вами: использовать мусорное ведро или попробовать смыть туалетную бумагу.
Будьте осторожны, когда пришло время встать , так как средний житель Запада не привык проводить даже короткий период времени в положении на корточках.Так что кровь приливает к вашим ногам и трудности с балансированием — настоящая проблема, если у вас нет практики.
Когда вы смываете унитаз , держите его хорошо чистым , чтобы избежать брызг или разбрызгивания воды.
.
Если позволяют размеры, удобно здесь установить обычный умывальник с подвесным носиком, тем более, что вы гребная яма уже готова.