трансформер своими руками по чертежам, схема изготовления песочницы с крышей-лавочкой, размеры
Для маленького ребенка незаменим активный отдых на свежем воздухе: именно поэтому каждый родитель стремится сделать так, чтобы проводить время его малышу было интересно и весело. Для летних игр во дворе частного дома идеально подойдет песочница, сделанная своими руками: ведь, как известно, лучше всего служит то, что сделано с любовью. Но при желании сделать песочницу для детей встает много вопросов по поводу сооружения. Один из них: какого вида и формы ее сделать, чтобы играть было увлекательно, но в то же время, чтобы конструкция была практичной?
Особенности
Один из самых оптимальных вариантов – это песочница с крышкой-скамейкой.
Содержимое будет защищено от внешнего воздействия, а скамейки станут удобным местом для сидения ребенка во время игры.
В такой конструкции есть ряд плюсов:
- створки откидываются легко, поэтому их может отрыть и закрыть не только взрослый человек;
- крышка в одно мгновение превращается в спинку, что создает дополнительный комфорт для ребенка;
- если детям достаточно места в песочнице, то они могут использовать одну половину крышки как игровую подставку;
- благодаря лавочке всегда можно отложить игрушки или вещи, которыми не пользуется ребенок, и при этом не потерять их.
- по желанию изделие всегда можно с легкостью отремонтировать или усовершенствовать.
Выбор места для установки
Для здоровья ребенка очень важно, где будет располагаться песочница.
Дети могут отказаться проводить в ней время только из-за того, что условия ее расположения будут для них некомфортными. Чтобы выбрать удачный участок для установки песочницы, нужно учесть несколько важных условий:
- место должно продуваться небольшим ветерком, но не сквозняком, который угрожает здоровью ребенка;
- хорошо, если песок может прогреваться: с утра до полудня желательно открывать крышку, которая освободит его от конденсата и прогреет до подходящей температуры;
- песочницу лучше ставить там, где нет высоких деревьев и зарослей, которые могут спровоцировать появление опасных насекомых возле ребенка;
- место для игр необходимо оборудовать как можно дальше от дороги и чужих глаз, но так, чтобы оно всегда могло просматриваться родителями.
Идеально, если можно подобрать такой участок, чтобы часть песочницы находилась на солнце, а часть – в тени.
Если же такой возможности нет, то лучше позаботиться об установке навеса.
Инструменты и материалы
Самый лучший выбор – песочница из дерева: такой материал не только очень прочный, но и экологичный. Однако не стоит использовать древесный материал, который содержит формальдегид, а также опасные химические вещества после обработки.
Рынок строительных материалов предлагает большой выбор древесины, стойкой к гниению, вредоносным насекомым, природным и атмосферным явлениям, но при этом безопасной для здоровья ребенка.Для постройки деревянной песочницы также понадобится крепежная фурнитура: упаковка саморезов – длинных, чтобы обеспечить надежное крепление, но не настолько, чтобы их торчащие через доски края травмировали ребенка, а также металлические петли, чтобы создать трансформирующуюся конструкцию, в количестве 8-12 штук.
Основная часть конструкции – пиломатериалы, поэтому они понадобятся в достаточном количестве.
Точное их число зависит от индивидуальных предпочтений, но если говорить о стандартных значениях, то стоит рассчитывать на восемь досок для боковых сторон, двенадцать – для изготовления верхней крышки, четыре бруска, укрепляющих углы при строительстве коробки и десять брусков – для скрепления досок во время сооружения спинки и сиденья. Материалы, выполняющие функцию лавочки, должны быть особенно тщательно выструганы и обработаны.
Пригодится перечень инструментов, которые необходимы для реализации задуманного проекта: циркулярная пила, шуруповерт, сверло, угольник (поможет обеспечить надежность конструкции, так как кривые углы песочницы сделают ее шаткой), лопата, строительный степлер для крепления покрытия, защищающего от растений, а также наждачная бумага для шлифовки.
Как сделать своими руками?
Сделать лавочку-трансформер легко, даже если у человека нет опыта. Важно подготовить все инструменты и материалы, создать чертеж и начать работу.
Сборка и обработка короба
Прежде всего, стоит сделать чертеж будущей раскладной песочницы.
Подготовить деревянные бруски и доски необходимой длины.
Все полученные элементы необходимо покрыть грунтовкой. Стоит отметить, что для стандартной конструкции будет использовано по три пары досок для крышки со скамейками, не считая досок для изготовления коробки.
Собрать коробку для песочницы с крышей и лавками. Для этого необходимо шурупами соединить доски и бруски, расположенные по углам конструкции, используя при этом угольник: в противном случае можно получить кривое, ненадежное основание. Нужно проверить, хорошо ли головки крепежа вошли в дерево, чтобы в будущем нельзя было поранить о них руки.
Необходимо произвести качественную шлифовку поверхности: это обезопасит играющих детей от заноз. То же стоит сделать с лавочками песочницы-трансформера. Получившуюся конструкцию следует обработать антисептиком для дерева, который продлит службу изделия, защитит его от воды, грибка и вредоносных насекомых.
По окончании всех работ можно покрасить изделие, а также покрыть его лаком, что тоже значительно увеличит срок действия изготовленной конструкции.
После завершения работы над коробкой нужно наметить периметр местности, которую займет песочница. Выкопать грунт примерно на 20 сантиметров по всей площади намеченного участка, выровнять дно, очистить его от остатков корней, камней и неровностей, а затем уложить пленку для защиты от растений.
Этапы изготовления створок и скамеек
Для изготовления закрывающейся песочницы с лавочкой необходимо правильно сделать крышку.
Для начала нужно распределить приготовленные материалы в зависимости от их качества: доски с ровной поверхностью нужно расположить ближе к середине конструкции, при этом необходимо класть их более гладкой стороной к песку. К ранее подготовленной коробке с помощью саморезов нужно прикрепить две доски с просверленными в них направляющими отверстиями. Саморезы лучше не затягивать туго, иначе древесина может треснуть. Оставленный зазор должен составлять около сантиметра.
Нижнюю сторону досок, которые будут выполнять роль сиденья, следует отшлифовать с помощью наждачной бумаги.
Сиденье будет соединяться с коробкой с помощью краев конструкции, которые уже на нем закреплены: для соединения с ними используются металлические петли.
Готовое сиденье нужно положить на уже закрепленные доски и поместить между ними карандаш, который покажет размер подходящего для шарнира зазора. Петли нужно закрепить саморезами. После проделанной работы стоит попробовать поднять и опустить получившуюся конструкцию и убедиться, что она работает. Чтобы надежно закрепить сиденье, можно использовать три петли вместо двух, распределяя их по длине лавочки.
Последние две доски будут использоваться для того, чтобы сделать спинку, которую также нужно закрепить с помощью петель. Для начала стоит крепить только одну доску. При установке второй нужно использовать бруски, которые будут целостно скреплять доски спинки между собой, а также не давать ей опрокинуться назад.
Бруски должны быть перпендикулярны доскам крыши, а зазоры тщательно выровнены. Желательно, чтобы крышка замыкалась, для того чтобы во время ветреной погоды песочница не открывалась, и скамейки не были сломаны.
Зачастую детские песочницы предусмотрительно делают с навесом. Есть разные способы его крепления, но для сооружения со стандартным основанием можно выбрать простой, но при этом надежный метод, который подойдет в этом случае, потому как форма песочницы это позволяет. Чтобы соорудить навес, необходимо:
- в углах коробки закрепить стойки;
- вершины стоек соединить одной обвязкой;
- установить тент на получившемся каркасе, использовать декоративные гвозди для закрепления, желательно, чтобы тент был водонепроницаемым.
Финишные работы
После завершения основной части работ нужно еще раз тщательно отшлифовать доски.
После этого следует позаботиться об обработке антисептиком. Большое внимание, как правило, уделяется последним этапам: покраске и покрытию лаком, которое создаст дополнительную защиту от попадания заноз под кожу ребенка, а также повысит уровень прочности окрашенной древесины.
Вещества для покраски следует выбирать с особой тщательностью, так как детский организм более восприимчив к внешним факторам, а большинство красок очень токсичны и отличаются долгим высыханием.
Чтобы правильно выбрать краску, стоит принимать во внимание несколько важных нюансов.
- Антисептические средства и пропитки для дерева – быстросохнущие и нетоксичные вещества.

- Самый безопасный вариант – экокраска, в основе которой лежат натуральные смолы.
- Краски для выполнения наружных работ (эмаль, фасадная краска) быстро сохнут, но более токсичны и могут оказать вредное воздействие. Тем не менее они отлично переносят атмосферные и природные явления.
- Окрашивание в любом случае стоит проводить за неделю до того, как дети начнут играть в песочнице. За это время краска или лак полностью высыхают, а запах выветривается.
После окончания всех этапов стоит ответственно подойти и к выбору песка.
В нем не должны присутствовать посторонние примеси или предметы, для увлекательной игры песок должен обладать хорошей сыпучестью, но при этом быть формируемым, чтобы дети могли лепить из него замки и куличики. Важный критерий, касающийся детского здоровья, – это отсутствие пыли. Песок можно промыть и просушить или же использовать очень мелкое сито для просеивания. Важно, чтобы материал был гигиеничным, и в нем не было никакой живности – это может навредить ребенку. Предпочтение лучше отдавать уже просеянному песку: речному или кварцевому.
При покупке в специализированном магазине стоит обратить внимание на наличие сертификата качества, который даст гарантию того, что материал чист и не содержит примесей.
Для того чтобы обеспечить ребенку безопасное времяпровождение, за изделием необходимо регулярно ухаживать: два раза в год менять песок, накрывать песочницу, чтобы в нее не попадали нежелательные предметы.
Важно, чтобы место для игр всегда содержалось в чистоте.
Как сделать песочницу с крышкой-скамейкой, смотрите далее.
Как сделать песочницу своими руками на даче: лучшие идеи и способы
Если в доме есть маленькие дети и загородный участок, но нет детской площадки, например, песочницы, неплохо было бы ее смастерить. Малыши любят играть в песке, и создание такого элемента станет для них настоящим подарком.
Разберемся, как сделать песочницу своими руками на даче, какой материал подобрать, какие виды конструкций существуют, и как наилучшим образом вписать их в дизайн участка.
Песочница имеющая крышку
Первое что мы разберем, это, как сделать песочницу своими руками с крышкой. Подобное решение отличается повышенным удобством в эксплуатации. Крышка укрывает песочницу от осадков, мусора, и домашних питомцев. Помимо этого, ее очень просто превратить в лавочку.
Прежде чем начать работу необходимо все тщательно спланировать. Нарисовать примерную схему будущего сооружения и выбрать материал изготовления. В отношении материала, как правило, большинство отдает предпочтение дереву.
Материалы
Работе с деревом намного проще, чем с пластмассами или металлом. Более того, материал абсолютно экологически чист, что нельзя сказать о некоторых видах пластмасс. Не в последнюю очередь играет и стоимость дерева, которая ощутимо ниже других материалов. По этой причине выбирая вариант, как сделать песочницу с крышкой, мы будем отталкиваться от конструкции из досок и брусьев.
Для работы нам потребуются:
- бруски 150х20х3 сантиметров для изготовления спинки у лавочки – 4 штуки;
- бруски 70х5х5 сантиметров, нужные для крепления деревянных элементов бортов – 12 штук;
- дверные петли из металла – 4 штуки;
- доски размером 150х15х3 сантиметров, это будет четыре бортика из двух досок каждый – 8 штук;
- доски размером 150х17,5х3 сантиметров из них будет сделана нижняя часть и основа для крепления – 4 штуки;
- ограничители размером 17,5х6х3 сантиметров – 4 штуки;
- упоры размером 70х6х3 сантиметров – 4 штуки.
Подготовка строительной площадки
После заготовки необходимых материалов необходимо подготовить грунт на месте строительства. Для этого:
- Периметр строительства обозначается колышками, а верхний слой почвы снимается.
Желательно углубиться в грунт более чем на 25 сантиметров, это позволит сделать дренажную подушку из гравия. - Дно вырытого котлована выравнивается и делается прослойка гидроизоляции из полиэтиленовой пленки. Чтобы исключить в песке застой влаги в пленке необходимо проделать дренажные отверстия.
- По краям котлована копаются дополнительные ямки для установки опор в количестве девяти штук.
Изготовление рамы
Подготовив место под строительство пришло самое время узнать, как сделать песочницу с крышкой и сидением. Ответ на этот вопрос начинается с изготовления каркаса. Для этого нужно:
- Из парных досок делаются четыре бортика соединяемые брусками. Для крепления лучше использовать саморезы.
- По верхнему краю бортиков установить дополнительные перпендикулярные доски, которые послужат основанием для крышки. К этим доскам крепятся петли, с отступом от края около 30 сантиметров.
- После этого закрепить на изнаночной стороне еще пару дощечек.
Изготовление спинки
Поскольку мы узнаем, как сделать песочницу своими руками с крышкой лавочкой, то к лавочке необходима спинка. Изготавливается она так:
- Со всех сторон каркаса ставятся по две дощечки и закрепляются саморезами.
- Затем фиксируются ограничители и устанавливаются брусочки для упора.
Завершающий этап
Вот мы и узнали, как сделать детскую песочницу с крышкой своими руками. Осталось установить готовую конструкцию на территории и засыпать песок. Теперь эта задача – как сделать детскую песочницу с крышкой, считается решенной:
- все детали рекомендуется подвергнуть шлифовке чтобы избежать заноз;
- однако осталось несколько важных моментов касающиеся любых песочниц из дерева. обозначим их:
- оптимальным материалом станет древесина наименее подверженная гниению, например – лиственница;
- пропитка древесины антисептиком намного продлит срок ее службы.
Песочница-парусник
Песочница не ограничивается только играми – это отличное место для развития творческих способностей ребенка. Постоянно изобретая что-то новое дети быстрее развиваются и познают мир вокруг себя.
Песочница парусник на дачеИсточник www.joyfulexecutions.comИспользуя креативный подход при планировании игровой зоны можно активно помочь ребенку в его развитии. Одной из хороших идей является песочница, выполненная в виде парусного корабля. Помимо прочего такое решение имеет и чисто практическое применение – защиту детей от прямых солнечных лучей или дождя.
Материалы
- доски размером 10×115 сантиметров для изготовления узких частей корпуса – 2 штуки;
- доски размером 10×180 сантиметров для изготовления мачт в которых необходимо просверлить отверстия для вставки рейки – 2 штуки;
- доски размером 15×115 сантиметров для изготовления широких частей корпуса – 4 штуки;
- доски размером 15×125 сантиметров для изготовления сидений играющих роль палубы – 2 штуки;
- куски досок размером 30×245 сантиметров для обшивки бортов.
Толщина досок два с половиной сантиметра, так называемая «дюймовка».
Процесс изготовления
Собирается вся конструкция достаточно просто:
- Две длинные доски обрезаются по краям под углом 45 градусов и соединяются в единую коробку при помощи коротких кусков на саморезы и клей. Полученный короб переворачивается и производится крепление торцевых деталей – сначала широкие, потом узкие.
- По центру бортов устанавливаются мачты верх которых соединяется скругленной рейкой вставляемой в загодя просверленные отверстия.
- На завершающем этапе производится шлифовка, покраска и закрепление паруса.
Но на этом фантазии не заканчиваются.
На парусник перед отправкой в «плавание» можно установить:
- подзорную трубу;
- удочки;
- штурвал;
- якорь.
Границ для творчества нет.
Несколько слов о краске
Размышляя над вопросом – как сделать детскую песочницу своими руками, не стоит забывать, что здоровье человека – это одна из важнейших жизненных ценностей, тем более здоровье ребенка. Поэтому к покраске песочницы необходимо подойти с особой тщательностью. Вот несколько советов:
- дерево, перед покраской, необходимо подвергнуть антисептической пропитке защитив его от вредителей и потемнения;
- краски лучше использовать акриловые на водной основе, быстро высыхающие и экологически безвредные.
Навесы над песочницами
Такое решение позволяет хорошо укрыть детей от прямого солнца или спастись под навесом, если пойдет дождь. Конструкции такого типа достаточно просты при возведении. В качестве примера приводим наиболее простую конструкцию.
Песочница с навесом из материи Источник amazon.
comДля ее сооружения необходимо:
- По углам коробки песочницы установить вертикальные стойки.
- Верх стоек соединить единой обвязкой.
- На получившийся каркас установить тент из материала, не пропускающего воду и закрепить его декоративными гвоздями.
На такой каркас может быть установлена стропильная система чтобы получить песочницу-домик. Возможностей решений существует огромное количество.
В видео вы увидите создание песочницы-трансформера:
Песочница-машина
Неординарных конструкций очень много. Рассмотрим одну из подобных и узнаем, как построить песочницу имеющей форму машины. Это намного проще, кажется по началу. Конечно подобное решение допустимо выполнить из дощечек, но в конкретной ситуации оптимальным решением для изготовления будет фанера.
Расходные материалы
Из расходных материалов понадобятся:
- уголки из металла для крепежа;
- фанера толщиной 1 сантиметр;
- петли из металла, если есть идея выполнить открывающийся капот;
- саморезы;
- четыре старых покрышки или кругляши от бревен, которые можно заменить кругами из фанеры стилизованными под колеса.
Фанерные детали:
- бампер – 1 штука;
- боковые борта – 2 штуки;
- боковые панели – 2 штуки;
- капот – 1 штука;
- крыша – 1 штука;
- панель приборов – 1 штука;
- сидение – 1 штука;
- торцы кузова – 2 штуки.
Проще всего вырезать требуемые детали, используя электро-лобзик.
Этапы изготовления
Процесс создания автомобиля из фанера следующий:
- Делается черновой эскиз конструкции на бумаге который переносится на фанеру.
- Размеченные элементы вырезаются, а края хорошо обрабатываются наждачной бумагой.
- Вся конструкция собирается на крепежные уголки. Для обеспечения сиденью большей надежности оно усиливается бруском.
- Капот крепится на саморезы, а при условии, что он будет открываться, устанавливаются дверные петли.
- Готовая машина покрывается краской в два слоя. При желании, можно дорисовать мелкие детали.
- После высыхания краски машина дорабатывается установкой фар, руля, колес и всего остального, на что хватит фантазии.
Несколько слов о песке
Даже к строительному песку предъявляются определенные требования. Наполнение песочницы отдельная тема и нормы здесь еще более жесткие.
В видео о создании песочницы в виде машины:
Правильные детские песочницы с крышей: этапы изготовления + примеры готовых решений
Для того чтобы песок соответствовал всем требованиям необходимо:
- избавить его от посторонних примесей;
- обеспечить гигиеничность удалив всех насекомых;
- обеспечить хорошую сыпучесть путем просушки;
- удалить пыль путем промывки.
Сейчас рынок предлагает уже подготовленный наполнитель, для песочниц который сертифицирован. Желательно приобретать кварцевый, а также речной. Реализуется наполнитель и с высоким содержанием глины. Подобные составы могут стать отличным материалом для лепки.
Покрышки в качестве строительного материала
Теперь рассмотрим одно из востребованных решений, а именно – как сделать песочницу на даче применяя автомобильные покрышки. Наиболее простое решение – это взять за базу покрышки от трактора или большого автомобиля. Для повышения безопасности желательно изолировать внутренний край сантехническим утеплителем.
Преимущества решения:
- быстрое изготовление;
- долгий срок эксплуатации;
- изготовление возможно без строительных навыков;
- минимизация расходных материалов.
Расходные материалы:
- водостойкая краска;
- кисти;
- песок для наполнения;
- покрышки
- режущий инструмент для покрышек;
- штыковая лопата.
Домик с песочницей
Дети всегда любят строить домики и потом играть там сами или с друзьями. Если построить такой домик, то радости малышей не будет предела. Выполнить его можно из дерева и проявив фантазию превратить в действительно сказочный уголок.
Песочницу можно расположить сбоку, а если домик возводился на сваях или другом возвышении прямо под ним. При высоком расположении домика обустраиваются лесенки или пандусы, которые могут легко превратиться в горки.
Если не ограничиваться чем-то одним, то можно возле домика поставить качели, карусель и другие игровые элементы. В результате может получиться отличная игровая зона нестандартная и увлекательная.
Каменная песочница
В качестве материала изготовления для песочницы отлично подойдут природные камни, обладающие разными размерами и расцветкой.
Чтобы сделать песочницу из камней понадобится:
- Выкопать небольшой котлован глубиной не более 60 сантиметров.
- По контуру котлована установить самые крупные камни, поверхность которых должна возвышаться над землей. Затем все засыпается грунтом и хорошо уплотняется.
- Второй ряд укладывается внутренней стороны и соединяется с большими камнями при помощи цементного раствора. Высота кладки второго ряда должна соответствовать первому ряду.
- Дать хорошо просохнуть раствору.
- При помощи садового распылителя опрыскать конструкцию герметиком для защиты кладки от растрескивания.
- Через неделю наполнить песочницу песком.
Плюсы такой песочницы в том, что форма ее может быть какой угодно, а в качестве ограждения можно использовать не только камни, но и кирпичи, тротуарную плитку и прочие строительные материалы.
Несколько слов об установке песочницы
Для того чтобы максимально обеспечить комфорт и продлить срок эксплуатации песочницы при ее изготовлении и установке следует соблюдать следующие правила:
- всегда шлифовать доски;
- избегать мест с близким расположением различных коммуникаций;
- обеспечивать качественное крепление;
- при изготовлении использовать материалы высокого качества;
- располагать в затененных местах;
- располагать в местах где нет аллергенных растений.
Деревянные столбики и бревна в качестве строительного материала
Из столбиков или небольших бревнышек можно сконструировать песочницу любой формы.
Простое и красивое решение песочницы из небольших бревен Источник yandex.netАлгоритм выполнения работ
Создание песочницы из бревнышек или столбиков состоит из следующих шагов:
- На земле размечается контур будущей песочницы.
- Внутри обозначенной фигуры полностью снимается дерн. После этого, по внешнему периметру копается траншея на глубину около 30 сантиметров. Ширина траншеи должна соответствовать толщине используемого материала.
- Внешний край оформляется согласно предпочтениям. Можно использовать материал одинаковой длины и получить прямой край, а можно сделать волну.
- Материал обрабатывается антисептиком и сушится.
- После просушки материал устанавливается в траншею, засыпается землей и тщательно трамбуется.
- Готовая песочница заполняется песком.
Несколько слов об уходе за песочницей
За песочницей необходимо периодически ухаживать это позволит не только поддержать ее привлекательный вид, но и продлить срок службы. Помимо этого, будут соблюдаться принятые санитарные нормы.
Красивая песочница на даче Источник yandex.netКак сделать детскую площадку своими руками: советы по изготовлению и интересные идеи
Для этого необходимо придерживаться следующих правил:
- в ночное время суток, а также в те периоды, когда песочница не используется она должна быть закрыта крышкой или защитной пленкой;
- контролировать нормальную наполненность песочницы, в случае необходимости подсыпая недостающий песок;
- не реже одного раза в год заменять песок полностью, обычно это делается в начале или конце дачного сезона;
- поддерживать песок в чистом состоянии своевременно удаляя из песочницы попавший туда мусор в виде листьев, травы или частей сломанных игрушек;
- при замене песка проводить осмотр корпуса песочницы и выполнять косметический ремонт.
Использование в ландшафтном дизайне
Конечно, песочница в первую очередь сооружается для детей, однако ничто не мешает сделать из нее и часть ландшафтного дизайна. Ее можно встроить в детскую площадку или оформить согласно общему стилю приусадебного участка, например, каменную песочницу можно вписать на участке с природным ландшафтом, в стиле модерн или минимализм.
Интересный дизайн песочницы на участкеИсточник i.pinimg.comДеревянную песочницу хорошо расположить на участке в стиле прованс или кантри. В общем, офорление — дело вкуса. А что касается, разновидностей песочницы, то в средиземноморском варианте ландшафтного дизайна прекрасно будет смотреться конструкция в виде парусника.
В индустриальном варианте — хороши площадки из покрышек или металла. Эко-стиль поддержат песочницы из деревянных пеньков.
В видео множество интересных идей для песочниц:
Как сделать песочницу из разных материалов и каким песком наполнить
Коротко о главном
Песочницы бывают с крышкой и навесом от солнца. Форма конструкций разная: от кораблика до машинки. Материалы, из которых часто делают песочницы — дерево, металл, резина и пластик. Выбор зависит от дизайна участка, предпочтений ребенка и имеющихся материалов, ведь песочницу можно соорудить из строительных остатков.
На дачном участке можно без труда разместить песочницу в любом стиле, главное, чтобы она нравилась ребенку и была красивой, сочеталась с дачным домиком.
Как сделать детскую песочницу с крышкой своими руками
Представляю на ваш суд простую песочницу с крышкой. Вы можете сделать такую же своими руками.
Как сделать простую деревянную песочницу и просто место для игры.
Оригинальная инструкция в PDF довольно подробная, хотя и была немного запутанная.
Так что надеюсь, эти фотографии сделают процесс сборки проще. Я также изменил немного конструкцию. Например выбрал более толстую древесину для верха.
Да, здесь немного больше древесины чем нужно для проекта. Я смог найти только доски длиной 2400 мм. Если вы сможете найти длиной 1800 мм, сможете сэкономить.
Три доски нужно отпилить по длине 1662 мм и по бокам прибить поперечин длиной 1469 мм. Всего поперечин будет 17.
Поперечины можете прибивать на глаз. Но у меня был строгий контролёр, поэтому пришлось замерять.
17 досок прибиваются гвоздями 45 мм. Параллельно я покрасил боковины, чтобы они пока высыхали.
Моя жена фанат Уэса Андерсона и мы использовали его любимые цвета для покраски.
- белый, 6 х 1600 мм доски и 4 х 290 мм поперечины (один угол скошен)
- синий, 6 х 1600 мм доски и 4 х 590 мм
- желтый, 4 х 1470 мм доски для коротких бортов, и 2 х 1620 мм доски для длинных бортов
- красный, 12 х 264 мм поперечины для ботов (8 из них угловые)
Начал фиксировать угловые держатели на 75 мм саморезы.
Короткие борта на месте.
Длинные борта тоже установлены.
Я ещё использовал бруски 45 х 90 мм посередине для подстраховки. В оригинальных чертежах этого не было. Я использовал синтетический материал, чтобы песок не сыпался наружу.
Центральные опорные столбики. Поперечина, которая на них кладётся – съёмная. Что бы она не мешала играть, когда створки открыты.
Поперечина установлена.
18 досок для крышки. Нужно потратить немного времени, чтобы равномерно разложить доски по цветам.
Зафиксируйте зелёные доски по краям 45 мм саморезами. Запомните, что не нужно прикручивать середину.
Нужно равномерно разложить доски и зафиксировать их.
Соберите белые доски с поперечинами.
Прикрутите белую часть сидения к зелёной с помощью петель.
Аналогично нужно прикрутить синюю часть сидения с подпорками.
Синяя спинка в открытом положении.![]()
Синяя спинка прикручивается к белой петлями.
Осталось только добавить песок и можно запускать детей.
Твитнуть
Поделиться
Плюсануть
Поделиться
Класснуть
Как сделать деревянную песочницу с крышкой и скамейкой для ребенка на даче
Из этой статьи вы узнаете:
Что необходимо малышам для интересного и увлекательного время провождения на даче? Конечно игрушки, а также место, где бы дети смогли ими поиграть. Для девочек и мальчиков достаточно небольшого пространства, на котором будет установлена всего лишь простая песочница. В ней ваш ребёнок долгое время будет занят изготовлением куличиков, песочных замков, автомобильных дорог. Вариантов конструкции для песка множество. Заботливые родители могут приобрести готовую песочницу в специализированном магазине, либо смастерить её самостоятельно своими руками.
Как сделать песочницу для детей на даче? Это не самая сложная задача для человека, который имеет представление о будущем игровом пространстве, владеет навыками работы простыми инструментами (пила, молоток, шуруповёрт, дрель), а также умеет пользоваться линейкой, уровнем, рулеткой, способен держать в руках лопату. Перед началом работы следует определиться, какую конкретно песочницу вы будите ставить, – пластиковую, металлическую, деревянную. Например, это будет песочница с крышкой и скамейкой. Перед началом основной работы необходимо подготовить проект будущей конструкции. Можно найти подходящий готовый чертёж в интернете и посмотреть видеоурок по сборке. Получив достаточное количество информации, приступить к строительству.
Поиск и подготовка места для песочницы
Поиск подходящего места для песочницы сводиться к тому, что нужно выбрать часть территории, где играя, ребёнок будет в полной безопасности. Будущая игровая площадка должна быть доступна, просматриваема, защищена от прямого попадания солнечных лучей, расположена вдали от хозяйственных объектов и посадок, которые могут вызвать аллергию.
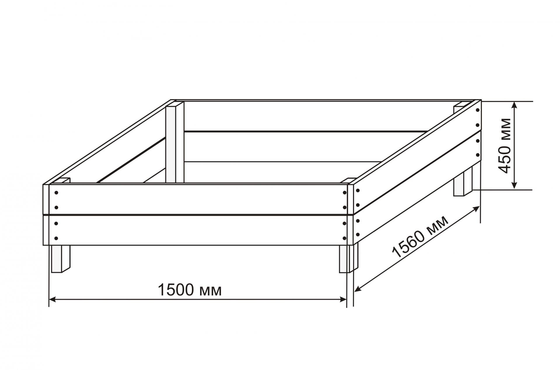
Обязательно нужно учесть размер песочницы. Для комфортного размещения одного, двух или трёх детей подойдёт сооружения размером 200 х 200 см. Деревянная песочница должна иметь под собой основу. Для этого с помощью колышек и верёвки обозначаем периметр, выкапываем яму глубиной около 250 мм. Затем её утаптываем, засыпаем песком толщиной 50 мм. Поверх песка укладываем геотекстиль или агроволокно, можно использовать плёнку, кусок линолеума (проделать отверстия для стока воды). Это поможет исключить контакт игрового песка с грунтом, а значит, он останется чистым, без примеси земли. Наличие основы предотвратит проникновение кротов, червей и насекомых.
Материал для песочницы
Изготовление песочницы из дерева предусматривает определённый список строительных материалов: брус (50 х 50), доски (30 х 150), фанера толщиной 180 мм. После распила на элементы (угловые, боковые стенки, бортики) каждую отдельную деталь нужно отшлифовать, брусья обработать антисептиком, доски покрыть грунтовкой для древесины.
Для крепежа подойдут саморезы по дереву 45 мм, дополнительно понадобятся ручки и петли для крышки. Для предания песочницы яркого и красочного вида приобретаются краски для уличных работ.
Изготовление детской песочницы
Детская песочница своими руками – это объект, который поможет малышу в развитии мелкой моторики, глазомера, раскроет его как творческую личность и поможет в тренировке таких качеств, как терпение, аккуратность. Если придерживаться определённых этапов, то положительный результат вам обеспечен. По углам песочницы устанавливаем брус. Соединяем его досками по всему периметру (в два ряда). На верх с двух сторон кладём доски для сидения. Для предохранения малышей от попадания прямых солнечных лучей, стоит установить пляжный зонт, козырёк или стационарную крышу, которая может быть в форме гриба. Так как в нашем выбранном проекте предусмотрена крышка, то рассмотрим несколько вариантов её изготовления.
- Съёмная крышка – щит, сколоченный из досок.
Есть существенный недостаток этой конструкции – её нужно убирать каждый раз перед игрой и ставить на место после окончания игровых действий. - Тент – мягкая крыша, которую перед игрой сматывают в рулон.
- Одностворчатая.
- Крышка-двери.
- Крышка-трансформер, способная не только защищать песок от посягательства животных и предохранять сыпучий материал от попадания не желаемых объектов (веток, листвы), но и трансформироваться в сидения.
Песок для детской песочницы должен обладать характеристики: хорошая сыпучесть, отсутствие посторонних компонентов, беспыльность, формируемость, сухой и чистый. Специалисты рекомендуют использовать речной песок, который состоит из чистого кварца. В магазинах продаётся специальный песок для организации детских игр с высоким содержанием глины, что существенно поможет маленьким скульпторам во время их работы над своими постройками. Надо отметить, что в такой песок добавлен реагент для отпугивания животных.
Какой бы вы песок не приобрели, перед загрузкой его в песочницу материал нужно просеять, так как при перевозке в него могли попасть нежелательные элементы. Песок засыпается в песочницу (не доходя краёв в приделах 5 см). Среднее количество необходимого песка равно 0,5 м. куб. Песочница может быть не только квадратной формы, но прямоугольная, овальная, шестиугольная, круг, лабиринт. Деревянная песочница – это классический вариант, но умельцы делают такие конструкции из автомобильных шин, пластика, брёвен и других материалов. Рядом с песочницами устанавливают горки, качели, домики, которые вместе составляют развлекательно-спортивный городок – детскую площадку для маленьких непосед.
Песочница с планами покрытия | Мои планы на открытом воздухе
Этот пошаговый проект по деревообработке представляет собой песочницу с планами покрытия . В этой статье представлены подробные инструкции по созданию хорошей песочницы со скамейками и полным покрытием.
Самое приятное в этом проекте то, что вы можете построить деревянную песочницу менее чем за выходные. Общая стоимость материалов должна быть менее 30 долларов. Мы разработали планы таким образом, чтобы держать расходы под контролем и выполнять как можно меньше работы.Это идеальный проект для того, чтобы вызвать улыбку на лицах ваших детей. Премиум-планы доступны для этого проекта в магазине .
При покупке пиломатериалов следует тщательно выбирать доски, следить за тем, чтобы они были ровными и без видимых дефектов (трещин, сучков, перегибов, гнили). Инвестиции в кедр или другие устойчивые к атмосферным воздействиям пиломатериалы — хорошая идея, так как они окупятся в долгосрочной перспективе. Используйте спиртовой уровень, чтобы отвесить и выровнять компоненты, прежде чем вставлять оцинкованные винты, иначе ящик с песком не будет иметь симметричный вид.Если у вас есть все материалы и инструменты, необходимые для проекта, вы можете выполнить работу примерно за день.
Проекты, сделанные из этих планов
Песочница со скамейками чертежи
Здание-песочница со скамейками
- A – 2 куска пиломатериала 1 × 8 – длина 48 дюймов, 2 куска – длина 46 1/2 ″ КОРОБКА
- B – 2 куска пиломатериала 1 × 4 – длина 48 дюймов 2x СИДЕНЬЕ
- C – 2 куска пиломатериала 1 × 4 – длина 48 ″, 2 куска – длина 7 1/2″ 2x СРЕДНЯЯ СЕКЦИЯ
- D – 2 доски 1×4 – длина 48″, 2 доски 2×4 – длина 14″ 2x СПИНКА
Один день
Как построить песочницу с крышкой
Изготовление бортов
Первым этапом проекта является изготовление стенок песочницы.Как вы можете легко заметить на схеме, мы рекомендуем вам использовать пиломатериал 1×8.
Сделайте 10-градусные надрезы на обоих концах планок с помощью циркулярной пилы. Зачистите края мелкозернистой наждачной бумагой и удалите остатки влажной тряпкой.
Сборка-песочницы
Отрежьте остальные компоненты коробки на расстоянии 46 1/2″. Просверлите карманные отверстия на обоих концах компонентов и закрепите их по бокам с помощью винтов 1 5/8″. Убедитесь, что углы прямые и не оставляйте зазоров между компонентами.Добавьте клей в стыки и удалите излишки влажной тряпкой.
Ткань для ландшафтного дизайна
Чтобы защитить песочницу от сорняков и других насекомых, мы рекомендуем вам установить ткань для ландшафтного дизайна внутри рамки, как показано на рисунке. Прикрепите ткань к внутренним сторонам коробки, убедившись, что она идеально натянута.
Крепление фиксированных планок сиденья
Начните строить скамейки для песочницы из планок 1х4. Тщательно отшлифуйте открытые края наждачной бумагой с зернистостью 120.Оставьте 1/2″ между планками и прикрепите их к коробке с помощью винтов 1 5/8″.
Строительство сиденья
Соберите следующие компоненты покрытия, используя планки 1×4. Прикрепите планки к планкам с помощью винтов 1 1/4″ и клея. Оставьте 1/2″ между планками, чтобы получить профессиональный результат.
Установка сиденья
Установите компоненты в песочницу, разместив планки вниз. Прикрепите петли для блокировки компонентов к планкам сиденья, как показано на схеме.
Сборка спинки
Соберите спинку для песочницы, используя рейки 1×4 и доски 2×4 для планок. Используйте винты 1 1/4″, чтобы прикрепить планки к планкам.
Установка петель
Прикрепите спинку к конструкции, предварительно сложив среднюю часть чехла. Используйте петли, чтобы зафиксировать спинку на месте. Повторите процесс для противоположной стороны песочницы.
Песочница с планами укрытий
После того, как все компоненты будут собраны, песочница будет закрыта полностью.Таким образом, вы сможете уберечься от листьев и других нежелательных гостей.
Кроме того, песочница с крышкой будет иметь аккуратный вид, соответствующий стилю любого приусадебного участка.
Песочница со скамейками чертежи
Один из последних шагов в работе по дереву — это последние штрихи. Поэтому заполните направляющие отверстия шпатлевкой по дереву и отшлифуйте поверхность наждачной бумагой с зернистостью 120. Прикрепите ручки к крышке, чтобы облегчить процесс открывания.
Главный совет: Если вы хотите улучшить внешний вид проекта и защитить деревянную песочницу от гниения, мы рекомендуем вам покрыть компоненты краской или морилкой.Премиум-планы доступны для этого проекта в магазине .
Этот проект по деревообработке представлял собой песочницу с планами покрытия . Если вы хотите увидеть больше планов на открытом воздухе, мы рекомендуем вам ознакомиться с остальными нашими пошаговыми проектами. ПОСТАВЬТЕ нам НРАВИТСЯ на Facebook и Google +, чтобы первыми узнавать о последних проектах и помогать нам добавлять для вас бесплатные планы деревообработки.
Как создать идеальную песочницу
Окунитесь в атмосферу лета, создав песочницу своими руками, которая привнесет нотку пляжа в ваш двор! В этой простой в сборке песочнице есть место для игр детей, легко закрывающаяся крышка, чтобы не пускать туда пушистых друзей, и складная скамья, на которой взрослые могут сидеть и отдыхать.
Мы составили простое пошаговое руководство по созданию идеальной песочницы для маленьких парней и девчонок в вашей жизни. Читайте дальше, чтобы узнать, как построить собственную песочницу для сидения и наслаждаться жизнью на свежем воздухе этим летом.
Список поставок
Для этого проекта вам понадобятся следующие материалы:
- Коричневый пиломатериал
- 8 — 2 дюйма x 8 дюймов x 8 футов
- 4 — 2 дюйма x 6 дюймов x 8 футов
- 16 — 1¼” x 6” x 8’ террасные доски
- Коричневые винты для настила
- 2 фунта.- 3 дюйма
- 1 фунт — 1¾ дюйма
- 12 петель для ремешков — 4 дюйма
- 4 дверные ручки — 5½ дюйма
Эти материалы можно найти в местном кооперативном домашнем центре.
Возникли проблемы с поиском нужных частей? Просто спроси! Члены команды Co-op Home Center имеют опыт и знания во всех видах проектов DIY и материалов. Они помогут вам найти то, что вам нужно, и могут дать полезные советы для вашего проекта.
Теперь, когда у вас есть все необходимое, пора начинать строить!
Часть 1. Обрамление
Начните с того, что разложите рамку.Отрежьте три дюйма от длины четырех досок 2 x 8. Сформируйте квадрат, поместив две обрезанные доски на каждом конце между двумя целыми досками 2 x 8 и прикрутите их на место, используя два трехдюймовых винта в каждом углу. Убедитесь, что рамка квадратная — используйте квадрат скорости, попробуйте метод 3-4-5 или измерьте диагонали.
Используйте оставшиеся обрезные доски в качестве опор для рамы, расположив их параллельно другим обрезным доскам с каждой стороны и оставив зазор в 12,5 дюймов. Вырежьте 10 опорных балок длиной 12½ дюймов из оставшихся двух досок 2 x 8.
Поместите пять балок с каждой стороны между опорой рамы и внешней рамой на равном расстоянии — около 15 дюймов по центру. Прикрепите все части с помощью трехдюймовых винтов.
Часть 2: Накройте крышкой
Закройте балки, прикрепив три доски 1¼ x 6. Первая доска должна быть на одном уровне с углами рамы. Прикрепите два других, оставив между досками расстояние в 1/2 дюйма. Повторите это на другой стороне песочницы.
Часть 3: Присаживайтесь
Создайте дно скамейки, уложив три доски настила параллельно друг другу на расстоянии ½ дюйма друг от друга.Вырежьте четыре 15½-дюймовых куска из доски 2 x 6. На каждом конце поместите две 15½-дюймовые детали перпендикулярно доскам, смещенные от края не менее чем на 1½ дюйма — крышка не закроется должным образом, если она будет меньше. Прикрепите 15½-дюймовые детали, которые действуют как подлокотники, с помощью 3-дюймовых винтов. Повторите эту серию шагов, чтобы сделать вторую скамейку для другой стороны песочницы.
Затем прикрепите скамейки с каждой стороны к песочнице. Положите каждую скамью параллельно доскам настила, прикрепленным к раме в Части 2.Оставьте ½ дюйма пространства. Подлокотники должны быть обращены вниз. Прикрепите скамьи с тремя петлями с каждой стороны к верхней части песочницы, используя 1¾-дюймовые винты.
Часть 4: Откиньтесь назад
Чтобы сделать спинку скамейки, положите две доски настила параллельно друг другу на расстоянии полдюйма друг от друга. Разрежьте оставшиеся доски 2 x 6 на шесть отрезков по 20 ½ дюймов. Возьмите два 20½-дюймовых куска и положите их перпендикулярно доскам настила, заподлицо с каждым краем и одним углом. Детали 2 x 6 будут выходить за край двух досок настила — все в порядке.Прикрепите с помощью 1¾-дюймовых палубных винтов. Отцентрируйте третью часть 2 x 6 между первыми двумя частями и прикрепите ее более короткими винтами. Повторите эту серию шагов с другой стороны коробки с оставшимися тремя деталями 2 x 6 и досками для настила.
Чтобы снова прикрепить скамейку к песочнице, положите задние части параллельно сиденью скамьи на расстоянии ½ дюйма друг от друга, доски 2 x 6 на верхней стороне. Крепится тремя петлями с каждой стороны.
На этом ваш проект завершен. Теперь у вас должна быть песочница с крышкой, которая раскладывается в скамейки.
- Совет: при добавлении песка убедитесь, что вы оставили достаточно места, чтобы правильно закрыть крышку песочницы.
Время играть!
Эта песочница станет отличным развлечением для всей семьи. Эта великолепная конструкция, рассчитанная на долгие годы износа, принесет вам годы удовольствия.
Ищете другие интересные летние проекты своими руками? Загляните в наш блог Co-op Home, чтобы найти много интересного вдохновения и контента.
Песочница с чертежами скамеек | HowToSpecialist
Этот пошаговый самодельный проект представляет собой песочницу с планами скамеек .
Если вы хотите узнать больше о том, как построить красивую песочницу со скамейками, обратите внимание на этот проект. Следуйте инструкциям и обращайте внимание на схемы и соберите деревянную песочницу для своих детей всего за одни выходные, даже если вы новичок в работе по дереву.
Всегда нужно планировать все с самого начала, чтобы не допустить дорогостоящих ошибок и сэкономить время. Учитывая аккуратный дизайн, эта песочница может соответствовать стилю любого двора.Отметьте линии разреза на планках, прежде чем делать разрезы, и используйте лобзик, чтобы выполнить работу. Если вы ищете другие дизайны или размеры, вам следует ознакомиться с остальными планами животных.
Есть несколько советов, которые следует учитывать, если вы хотите получить профессиональный результат. Поэтому делайте точные замеры и используйте профессиональный инструмент при резке или сверлении направляющих отверстий. Выровняйте компоненты по обоим концам и добавьте водостойкий клей в стыки, если хотите создать жесткую конструкцию.
Закруглите открытые края наждачной бумагой или с помощью хорошего фрезера.
Сделано по этому чертежу
Песочница с чертежами скамеек
Строительство песочницы со скамейками
Материалы
- A – 2 куска пиломатериала 2×12 – длина 93″ СТОРОНЫ
- B – 4 куска пиломатериала 4 × 4 – длина 11 1/2″ СТОЛБЫ
- C – 2 куска пиломатериала 2×12 – длина 48 дюймов ЛИЦА
- D – 1 кусок пиломатериала 1×10 – длина 48 дюймов СИДЕНЬЕ
- E – 5 штук бруса 1×6 – длина 48 дюймов, 2 куска бруса 1×3 – длина 17″, 2 шт. – длина 10″ СКАМЬЯ
- F – 4 куска фанеры 1/4″ – длина 6 3/4″x13 1/2″ ОБИВКИ
- G – 4 куска фанеры 1/4″ – длина 4″x7 1/2″, 3 куска – длина 1 1/2″x25″ ОБИВКИ
- 1 кусок бруса 4×4 – 4 фута
- 3 пиломатериала 2×8 – 8 футов
- 1 кусок пиломатериала 1×10 – 4 фута
- 3 пиломатериала 1×6 – 8 футов
- 1 кусок пиломатериала 1×3 – 6 футов
- 1 кусок фанеры 1/4″ – 2’x4′
- петли
- 2 винта 1/2″
- Винты 1 1/4″
Инструменты
Советы
- Используйте хорошую торцовочную пилу, чтобы сделать угловые пропилы
- Просверлите направляющие отверстия перед установкой винтов
Время
Родственные
Как построить песочницу
Изготовление бортов
Первым шагом проекта является создание стенок песочницы.
Используйте пиломатериалы 2 × 12, чтобы сделать компоненты и аккуратно вырезать. Используйте электролобзик, чтобы закруглить выемку вдоль верхней части компонента. Сгладьте края мелкозернистой наждачной бумагой.
Создание каркаса
Следующим шагом проекта является прикрепление боковых компонентов к угловым стойкам. Используйте пиломатериалы 4 × 4, чтобы построить угловые стойки. Просверлите направляющие отверстия по бокам и вставьте 2 1/2″ оцинкованных винта. Не оставляйте зазоров между компонентами и зенкуйте головки винтов, чтобы получить профессиональный результат.
Умный совет: Если вы хотите построить постоянную конструкцию, вы должны закрепить угловые стойки в земле на 1-2 фута.
Сборка рамы
Далее прикрепите лица к каркасу песочницы. Убедитесь, что углы прямые и не оставляйте зазоров между компонентами. Прежде чем вставлять шурупы, просверлите направляющие отверстия, чтобы дерево не раскололось.
Выровняйте края с большим вниманием, убедившись, что края находятся на одном уровне.
Установка колес
Чтобы улучшить внешний вид песочницы, мы настоятельно рекомендуем установить планки по бокам рамы. Соберите планки из фанеры толщиной 1/4 дюйма и выполните работу с помощью лобзика. Зачистите края мелкозернистой наждачной бумагой и удалите остатки влажной тряпкой.
Подгонка ткани
Чтобы защитить деревянные детали от влаги и повреждения водой, мы рекомендуем установить ландшафтную ткань, как показано на схеме.Прикрепите ткань к деревянной раме, убедившись, что нет зазоров.
Установка скамейки к песочнице
Прикрепите кусок дерева 1×10 к передней части песочницы, чтобы сделать красивую скамейку. Внимательно выровняйте края и закрепите планку с помощью винтов 1 1/4″, предварительно просверлив направляющие отверстия.
Изготовление скамейки
Сборка складной скамьи немного сложнее, но если вы будете следовать этим планам и инструкциям, конечный результат вас удовлетворит.
Используйте доски 1 × 6 для планок сиденья и доски 1 × 3 для опор.
Установка скамеек
Используйте петли, чтобы скрепить все вместе. Помните, что вам нужно закрепить оранжевые планки на раме, в то время как остальные панели будут скользить при сборке скамейки.
Петли
Установите сиденье на фиксированные планки, как показано на рисунке.
Установка петель
Прикрепите спинку к сиденью, как показано на рисунке.Убедитесь, что компоненты плотно соединены друг с другом.
Скамейка для песочницы
Убедитесь, что петли установлены правильно, иначе конструкция будет недостаточно жесткой. Сгладьте края наждачной бумагой. Как видите, планки сиденья соединены вместе с помощью двух планок 1×2 или 1×3.
Сборка фар
Если вы хотите добавить персонажа в песочницу, рекомендуем вам добавить в проект еще несколько планок.
Поэтому для изготовления фар используйте фанеру толщиной 1/4 дюйма. Прикрепите планки к панели с помощью гвоздей и клея.
Установка передних накладок
Соберите радиатор из брусков 1×2 (толщиной 1/4″). Выровняйте все с большой осторожностью и используйте клей и гвозди, чтобы зафиксировать компоненты на месте.
Песочница с чертежами скамеек
И последнее, но не менее важное: мы рекомендуем вам позаботиться о последних штрихах.Чтобы получить профессиональный результат, заполните отверстия и зазоры шпатлевкой по дереву и дайте ей высохнуть в течение нескольких часов. Проверьте, нет ли торчащих винтов, и при необходимости устраните эту проблему.
Умный совет: Нанесите на компоненты несколько слоев морилки или краски для наружных работ, чтобы защитить их от гниения и повреждения водой. Ознакомьтесь с остальными планами на открытом воздухе, представленными на нашем сайте.
Получить планы в формате PDF
Спасибо, что прочитали наш проект про деревянную песочницу со скамейками чертежи и рекомендуем посмотреть остальные проекты.
Не забывайте ПОДЕЛИТЬСЯ и НРАВИТСЯ нашими проектами с друзьями, используя виджеты социальных сетей, если вы хотите помочь нам продолжать добавлять бесплатные планы деревообработки, ПОДПИСЫВАЙТЕСЬ, чтобы первыми получать наши последние проекты.
Песочница «Сделай сам» с откидными сиденьями — MoneyRhythm — Пермакультура, сделай сам, козы, куры и многое другое!
С тех пор, как ураган сорвал с нашего крыльца и впоследствии разрушил нашу старую песочницу, моя жена просила меня построить эту песочницу с раскладными скамейками, которая кажется популярной на Pinterest.Поскольку сиденья складываются в чехол, это не позволит нашему кролику и кошке использовать «песочницу» в качестве горшка, что довольно неприятно.
Крытая песочница 4×6 «сделай сам» с раскладными сиденьями Проблема в том, что большинство планов песочницы «сделай сам» не включают детали, необходимые для завершения проекта. Мне нравится строить и выполнять проекты по дому, поэтому я решил поделиться своей версией здесь.
По сравнению с другими версиями самодельной песочницы с откидными сиденьями, моя версия больше на 4 фута на 6 футов и более прочна, потому что я использовал 2 дерева вместо 1 дерева (я могу стоять на закрытой версии с минимальным изгибом).Стоимость лишь незначительно выше. Вот милая таблица с деталями каждой детали, которую нужно купить и вырезать.
| Количество | Артикул | Отрезки/Разное |
| 8 | Петли для ремня | Дешевле в Интернете, купите 4 или 6 дюймов, поставляются с собственными винтами |
| 100 | Винты для настила Более дешевые винты для палубы | Я использовал именно 66, но в таком количестве их, наверное, не купишь.2 1/2″ подходит для большинства проектов, рассмотрите меньшую длину, если используете 1x древесину. Те, на которые ссылаются, изготовлены из нержавеющей стали. Винты намного дешевле в Интернете по сравнению с хозяйственными магазинами.![]() |
| 1 | 2×10 8 футов | Отрезать 6 дюймов, выбросить. Разрежьте оставшуюся 7,5-футовую доску пополам. Это делает доску подходящей к внутренней части, чтобы она могла укрепить нижнюю часть сиденья. 10 дюймов — хорошая глубина, 12 дюймов — намного дороже. Также можно использовать 1×10. |
| 1 | 2×10 12 футов | Разрезать пополам.Стороны песочницы. Можно использовать 1×10, 1×12, 1×8, 2×8, 2×12, в зависимости от желаемой силы и глубины. |
| 6 | 5/4 x 8 футов | Разрежьте каждую пополам, чтобы получить 12 четырехфутовых досок. Вы можете использовать 2 × 6, 1 × 6 и т. д. Палубные доски размером 5/4 могут удержать меня лишь с небольшим изгибом, и они были самым дешевым вариантом в моем магазине. |
| 2 | 2×4×8 футов | Отрежьте четыре детали по 23 1/2″ (спинки стульев) Cut Four 11 1/4″ частей (руки опираются на скамью) У вас останется немного. |
| 2 | Ручка для вытягивания | Та же цена онлайн, опционально технически, но приятная на ощупь |
| 1 | Сверла и сверла | Если он вам нужен, это недорогой набор, который будет работать годами |
| 1 | Пила | Я использовал торцовочную пилу (опасно, потому что я не мог разрезать 2×10 за 1 проход), но если у вас нет пилы, эта циркулярная пила справится с работой и не сломит банк (40 долларов на момент написания статьи) |
Пошаговые инструкции для самостоятельной песочницы со скамьями
Шаг 1. Закрепите 2 × 10 по углам с помощью 2 винтов на угол (используйте сверло, чтобы предварительно просверлить отверстия).Переместите короткие детали из угла примерно на 2,5 дюйма, чтобы укрепить скамью.
Шаг 2. Прикрутите четыре доски к только что созданным сторонам (измерьте диагонали (синие). Они должны быть равны, если у вас квадрат).
Красные точки — это места, где я вставил винты.
Шаг 3. Прикрепите еще по одной доске с каждой стороны, используя только ленточные петли, не прикрепляйте эти два растения к сторонам. Петли идут НА СНАРУЖИ песочницы. Убедитесь, что они открываются полностью — переверните петлю, если они не открываются.
Шаг 4. Используя 11 1/4 дюйма 2 × 4 и еще одну доску с каждой стороны, прикрепите шарнирную доску к новой доске.2×4 идут внутри песочницы. Я использовал немного мусора, чтобы разместить 2 × 4 на расстоянии около 1/4 дюйма от стенок песочницы, и 6-дюймовый С-образный зажим, чтобы удерживать все на месте, пока я просверливал направляющие отверстия и закреплял следующую доску сверху песочницы. .
Шаг 5. Прикрепите четыре петли ВНУТРИ песочницы к двум следующим доскам. Я разложил сиденья и работал сверху, но, оглядываясь назад, было бы разумнее просто перевернуть песочницу для этого шага. Здесь не помешала бы дополнительная пара рук.
Шаг 6. Закройте то, что у вас есть, и установите две оставшиеся доски, чтобы определить расстояние.
Я использовал обрезки 2 × 4 и 6-дюймовый C-образный зажим, чтобы удерживать необходимое расстояние, пока я прикреплял последнюю доску и 23 1/2 дюйма 2 × 4. Откройте одну сторону коробки и поместите 2 × 4 на спинку (снаружи) сиденья, касаясь земли под углом, под которым вы хотите наклонить сиденья. Небольшой наклон назад — это нормально. Закрепите 3 винта в каждой из планок к 2×4 с внутренней стороны сиденья (сначала через планку, затем 2×4)
Шаг 7. Прикрепите ручки, как показано на фото, чтобы упростить открывание
Заключение
Общая сумма за эту самодельную песочницу с раскладными сиденьями составила около 100 долларов.Я совершил ошибку, купив петли в Home Depot, и они были очень дорогими по сравнению с онлайн. У меня уже были инструменты, а песок был из песочницы, разрушенной ураганом Ирма. Если у вас есть доступ к поддонам, вы можете легко сделать их из них, чтобы сэкономить много денег.
Размером 4×6 футов достаточно для 2-3 детей, и он отлично подходит для очень маленьких детей, так как взрослый может сидеть на стуле, поддерживая их.
Моим детям очень понравилась небольшая бухта, созданная под сиденьями, и они уже провели несколько часов в песочнице с тех пор, как вчера я объявил, что она открыта для работы!
Создайте свою собственную песочницу
(Последнее обновление: 7 марта 2018 г.)Мои дети переросли старую песочницу размером 4 на 4 фута, которая прячется под нашим игровым набором.Его глубина всего 4 дюйма, и кора постоянно переливается через борта и в песок. Поскольку наш 2-летний ребенок каждый день часами проводит в песке, мы решили, что пришло время для обновления и нового типа приключений. Увидев действительно крутую песочницу в доме моего соседа, я сделал некоторые замеры и принялся за работу. Песочница была простой, довольно дешевой, а конечный продукт действительно классный.
Самое замечательное в дизайне этой песочницы то, что крышка также служит скамейкой.Так что, когда песочница закрыта, она закрыта наглухо. У старой песочницы была тяжелая, громоздкая крышка, которую мы в конце концов перестали использовать, превратив нашу песочницу в случайный лоток, хотя у нас нет кошек.
Когда вы открываете крышку новой песочницы, она складывается обратно в скамейку с обеих сторон, достаточно прочную, чтобы на ней могли сидеть мама и папа. Вот полные инструкции по созданию песочницы вашей мечты:
Теперь вы тоже можете играть в песочнице!
Инструменты, которые вам понадобятся:
Пила или торцовочная пила
Электродрель с битой 1/8″ и битой Phillips
11: доски 2×6 длиной 10 футов
4: доски 2×6 длиной 8 футов
4: доски 2×4 длиной 8 футов (см. комментарии ниже.Я смог использовать некоторые обрезки, которые у меня были)
Оборудование, которое вам понадобится:
4: 4-дюймовые Т-образные петли (на фото ниже)
4: 11-дюймовые обычные петли (на фото ниже)
125 (примерно): 2,5-дюймовые шурупы для дерева
20 (или около того): 1-дюймовые шурупы для дерева, если петли не поставляются с шурупами paint
Если вы хотите убедиться, что получаете нужные детали, я разместил ссылку на Amazon, где вы можете проверить или заказать детали, в конце этой записи.
Стандартная 11-дюймовая петля. Вы также можете использовать 8-дюймовую петлю.
6-дюймовая Т-образная петля на самом деле имеет длину 7 дюймов и высоту 4 дюйма.
Общее время Я потратил на проект, включая картину, резку, и сборку: 8 часов
Общая стоимость: около $ 200
Шаг 1: Резка на этот проект просто, но если у вас нет торцовочной пилы (то, что я называю торцовочной пилой), большинство хозяйственных магазинов сделают для вас разрезы за небольшую плату.
Возьмите все 11 ваших 10-футовых 2×6 и разрежьте их пополам торцовочной пилой, получив 22 2×6 длиной 5 футов. Это ширина песочницы. Оставьте четыре 8-футовых в покое, это длина коробки.
Вам понадобится 22 штуки: 2×6 длиной 5 футов.
С помощью пилы можно одновременно разрезать два 2×4. Это гарантирует, что куски будут одинаковой длины и сэкономит вам время на обрезки, поэтому аккуратно сложите два куска 2×4 на пиле и отрежьте следующее: из сложенных досок).
Вы будете использовать их для поддержки спинки скамьи.
4 отрезка по 14,5 дюймов (измерьте 14,5″, отрежьте, повторите, должно получиться 4). Вы будете использовать их как «подлокотники» на скамейке.
Используя третью часть 2×4, отрежьте четыре 11-дюймовых куска. Вы будете использовать их в качестве угловых опор.
(необязательно): я хотел, чтобы подлокотники были скошены с внешней стороны, а не квадратными. Я измерил 1 дюйм от нижней части 2×4 и один дюйм от конца. Затем я нарисовал линию, чтобы соединить метки. Затем я использовал пилу, чтобы разрезать по линии.Вы можете увидеть скос на картинке.
Вы можете увидеть скос, который я сделал на каждом «подлокотнике» в правом конце этого изображения.
Шаг 2: Рисование
Моя наименее любимая часть любого проекта — это рисование. Вот несколько советов: Положите пластик на пол в гараже и подготовьте небольшие обрезки, чтобы положить на них дерево. Я пробовал и раскатывать, и расчесывать 3-дюймовой щеткой, и мне больше нравится раскатывание.
Покрытие, которое я использовал, быстро высыхало, поэтому я мог (аккуратно) переворачивать и красить доски примерно через 20 минут.Покрасьте все стороны, концы и т. д. и дайте им высохнуть в течение 2 дней.
Дековер из красного дерева (не аэрозольная краска в баллончике).
Шаг 3. Сборка коробки
Для этого шага вам понадобятся 4 5-футовых отрезка, все 4 8-футовых отрезка, 11-дюймовые 2×4 и несколько 2,5-дюймовых винтов. На плоской поверхности встаньте на край одного из 8-футовых отрезков. Поместите один из 5-футовых отрезков на конец так, чтобы ваш винт прошел через 5-футовый отрезок в конец 8-футового отрезка.Просверлите два направляющих отверстия сверлом 1/8 дюйма. (Если вы этого не сделаете, вы рискуете расколоть торцевую доску, так как вы работаете очень близко к концу). Затем используйте 2 винта, чтобы закрепить доски. Повторите этот процесс на каждом из углов, пока не построите нижний уровень коробки. Помните: винты проходят через нижний колонтитул 5 в концы нижнего колонтитула 8.
Теперь вы повторите шаги, собрав второй слой коробки поверх первого. Пока не слишком беспокойтесь о том, что он идеально выровняется.Вы даже можете построить уровень 2 на ровной поверхности и поднять его поверх первого уровня в конце.
Здесь показаны два уровня, сложенные вместе. Вы также можете увидеть, как я повернул 11-дюймовые детали.
Когда 2 уровня уложены друг на друга, поместите один из 11-дюймовых 2×4 в каждом углу, стоя на конце. Эти доски скрепят 2 слоя вместе. Я предпочитаю чередовать их, двигаясь по часовой стрелке. Таким образом, в углу 1 плоская сторона 2 × 4 идет против 5 нижнего колонтитула; в углу 2 плоская сторона упирается в 8 колонтитул; в углу 3 плоская сторона прилегает к другому 5-футовому колонтитулу, а в углу 4 плоская сторона прилегает к другому 8-футовому колонтитулу (представьте себе вращательную симметрию, а не зеркальную симметрию).Я не уверен, что это имеет значение, так что не зацикливайтесь на этом — это точно не отразится на конечном продукте.
Кроссовки 2×4 в углу показаны изнутри.
Просверлите направляющие отверстия снаружи коробки сверлом 1/8″ и добавьте 4 винта на каждую плоскую сторону и 2 на каждую короткую сторону 2×4. Всегда рекомендуется НЕ выравнивать шурупы вертикально, иначе вы можете расколоть древесину. После того, как вы добавили по шесть шурупов в каждый угол, ваша коробка должна стать очень прочной.
Доска слева — это 5-футовый колонтитул.В этом углу 2 × 4 внутри имеет плоскую сторону против 8-футового футера. Итак, слева только 2 винта входят в 2×4, остальные 4 входят в 8-футовый колонтитул. Обратите внимание, что винты не выровнены.
Вот внутренний угол плоской стороной к 5-футовому колонтитулу (конец коробки).
Шаг 4: Сборка сидений
Чтобы собрать 2 сиденья, вам понадобятся 6 из оставшихся 5 ножек и 2 подлокотника. Положите подлокотники на расстоянии около 1,5 м друг от друга верхней стороной вниз (это имеет значение только в том случае, если вы скосили их).
Поместите три из 2x6s через них. Выровняйте квадраты 2×6 так, чтобы все концы были ровными. Отмерьте 3 дюйма с каждого конца и нарисуйте линию карандашом. Затем осторожно отрегулируйте нижний подлокотник, пока доска не окажется по центру линии. Я измерил в 1 дюйме от «спинки» сиденья (напротив скошенного конца), чтобы подлокотники выглядели однородными, но вы могли видеть это на глаз и все было в порядке. Наконец, используйте 6 2,5-дюймовых винтов (по 2 на каждой доске), чтобы закрепить подлокотник на каждом конце. Разместите шурупы немного в стороне от линии, чтобы они не располагались точно на одной линии, иначе древесина может расколоться.Повторите этот процесс для обоих концов, а затем для второго сиденья.
Здесь показано расположение винтов в гнезде.
Шаг 5. Сборка спинки сиденья
Сборка спинки сиденья почти такая же, как и сборка сиденья. Положите два 2×4 на расстоянии около 18 дюймов друг от друга. Затем положите 3 из 2x6s поперек них.
Отмерьте 21 дюйм от конца 2х6 и проведите линию легким карандашом. Выровняйте 2×4 по центру линии. Ровно 14 дюймов 2×4 должны быть ниже 2×6.Затем прикрепите винты, как описано в шаге 3.
Готовая спинка сиденья. 18 дюймов между 2×4 и 14 дюймов 2×4 нависают над 2×6.
Шаг 6: Прикрепление сиденья к спинке
Сначала положите спинку сиденья длинными 2 на 4 точно так же, как они были в конце шага 4. Затем положите сиденье поверх колес 2×4, плотно прижав их друг к другу. другие 2×6 с поднятыми подлокотниками. Убедитесь, что все выровнено. Если вы скосили подлокотники так, чтобы получилась передняя часть, передняя часть должна выходить наружу ближе к концу 2×4.Наконец, положите Т-образную петлю квадратным концом на сиденье, а треугольным концом на заднюю часть и прикрепите с помощью прилагаемых винтов (если в комплекте с петлей нет винтов, используйте винты размером 1 дюйм). Убедитесь, что петля расположена так, что сиденье складывается ВВЕРХ к вам и от 2×4 на спинке сиденья.
Повторите этот шаг с другим сиденьем и спинкой.
Вот так это выглядит при вкручивании петель.
А вот сиденье в сложенном виде со спинкой, лежащей на земле.
Шаг 7. Завершение
Вы должны убедиться, что ваша песочница выровнена, и очистить землю под ней.Возможно, вы даже захотите положить коврик для сорняков. Когда рама установлена, разложите верхнюю часть в следующем порядке: 3 свободных 2×6, низ сиденья и спинку сиденья с 2×4 вверх. Затем отразите это со спинкой сиденья, нижней частью сиденья и тремя свободными досками. Поскольку я собираю вещи довольно плотно, у меня посередине зазор всего в полдюйма. Вы можете навешивать свободные доски на любой конец, если они не подходят. Когда все будет готово к вашему удовлетворению, поместите оставшиеся 4 петли.Вы должны соединить дно сиденья с третьей доской с каждого конца песочницы. Прикрепите петли с помощью прилагаемых винтов или 1-дюймовых шурупов для дерева.
Здесь показано, как раскладывать верх.
Обратите внимание, что доски не прикреплены.
Вот расположение петель. Петли прикреплены, но торцевые доски еще не прикреплены.
Наконец, окончательно расположите детали, чтобы они были прямоугольными и ровными. У вас должно получиться 2 комплекта по 7 досок, соединенных между собой петлями, и по 2 доски на каждом конце.У вас осталось всего несколько винтов. Теперь, используя сверло 1/8 дюйма, предварительно просверлите последние отверстия. Их должно быть 24. Я делал одну доску за раз, так как все могло задеть, поэтому я просверливал направляющие отверстия, менял сверла и прикреплял доску, а затем менял местами и просверливал дополнительные направляющие отверстия. Я также начал с третьей доски, прикрепленной к петле, и работал в направлении конца песочницы.
Мне просто нужно прикрутить последние две доски. Вы можете видеть, что я использовал 2×6, которые оказались немного деформированными для торцевых досок, потому что они будут менее заметны, и они будут прикручены.
Это заметно на картинке 1 этого поста, где 2 доски были заведомо сложными!
Крышка песочницы довольно тяжелая, поэтому я также хотел добавить несколько крепких ручек. Мой друг прикрепил веревку вместо ручки, но мне больше нравятся стальные ручки. Чтобы открыть песочницу, я наступаю на ее край и тяну ручки вверх и к себе, пока сиденье не окажется в положении лежа.
Одна сторона открыта.
Готовая песочница: А где же песок, папа?
Самый последний шаг — прикрепить ручки.Я поместил их очень близко к нижней части 2×4 (дно означает конец, который будет сидеть на земле). Крышка песочницы слишком тяжелая, чтобы ее мог открыть ребенок, но с ручками в таком положении моя жена может наступить на край песочницы и потянуть ручки вверх и к себе, чтобы открыть ее.
Ручки расположены в 3 дюймах от нижней части 2×4.
Самый счастливый ребенок на свете!
Продукты, использованные в этом посте:
SaveSave
Как сделать песочницу на заднем дворе: полное руководство 2022
Вы когда-нибудь хотели сделать песочницу на заднем дворе? Мало того, что игра с песком является отличным кинестетическим занятием для детей любого возраста, дети ее просто обожают! Песочницы — это вневременные игрушки, которые никогда не выйдут из моды на заднем дворе вашей мечты.
У нас есть 3 простых способа воплотить ваши мечты в жизнь. Эти пошаговые инструкции научат вас, как сделать песочницу на заднем дворе.
3 простых варианта песочницы:
- инструменты не требуются, используется контейнер для хранения
- классическая песочница 4 x 4 фута
- большая: использование ландшафтных бревен
7 вариант хранения A 900:- Пластиковый контейнер для хранения, например контейнер для хранения под кроватью
- 1-2 50-фунтовых мешка с игровым песком
- Большая корзина — емкостью 41 кварт с неглубоким профилем отлично подходит для хранения при низкой цене, идеально подходит для хранения обуви, одежды, личных вещей, канцелярских принадлежностей, игрушек, поделки, одеяла, простыни, свитера, сапоги, игры, праздничные украшения, кухня, кладовая, ванные комнаты и многое другое!
- Контейнеры изготовлены из прочного прозрачного прозрачного пластика, который выдерживает постоянное использование и позволяет видеть содержимое, не открывая контейнер.
- Крышка с защелкой защелкивается на основании контейнера для надежного закрытия.Гладкие внутренние стороны для более полезного пространства для хранения. Штабелирование и модульная конструкция для максимального использования пространства. Контейнеры вкладываются друг в друга, когда они не используются.
- НАРУЖНЫЕ РАЗМЕРЫ с крышкой в самом широком месте: 34,375 дюйма x 15,5 дюйма x 6 дюймов ВНУТРЕННИЕ РАЗМЕРЫ в самом узком месте: 29,68 дюйма x 12,66 дюйма x 5,53 дюйма
- В комплект входят 2 прозрачных пластиковых корзины и 2 белые пластиковые крышки. Сделано в США
- (Основание) Две доски 1 x 8, обрезанные до 47 ½”
- (Основание) Две доски 1 x 8, обрезанные до 46”
- (Опоры) Четыре доски 2 x 2 на 7 ½”
- (Скамейка) Две доски 1 x 6 на 47 ½”
- Винты 1 ¼”
- Около 8 куб. Футов игрового песка или рассчитайте необходимое количество
- Краска/морилка (дополнительно)
- Рулетка
- Дрель
- Пила
- Шлифовальная машина
Ни гвоздей, ни пиломатериалов, ни инструментов! Если у вас небольшой задний двор или вы не уверены в том, чтобы сделать постоянное приспособление на заднем дворе, то эта песочница для вас! Кроме того, это самый бюджетный и бюджетный вариант.
Оглянитесь вокруг своего дома, и, скорее всего, у вас уже есть что-то, что можно использовать в качестве быстрой песочницы. Подумайте о пластиковых контейнерах для хранения или неиспользуемых контейнерах для игрушек.
Если у вас нет чего-то, что можно было бы переназначить, то быстрая поездка в магазин найдет все, что вам нужно!
Материалы:
Шаг 1: Выберите и купите контейнер
Определите размер пластикового контейнера что вы хотите для песочницы.
Мы рекомендуем длинный пластиковый контейнер для хранения под кроватью. Тем не менее, контейнер практически любого размера может работать в качестве быстрой песочницы.
Шаг 2. Приобретение песка для игр
Вам понадобится примерно 1 мешок песка для игр, в зависимости от размера выбранной вами корзины. Вынесите контейнер на улицу и насыпьте туда песок. Добавьте ложки, чашки и ракушки. Устройтесь поудобнее и наблюдайте, как ваш малыш часами играет!
Прозрачная корзина с крышкой Homz Snaplock, большая — 41 кварт, белая, 2 шт. в упаковкеПоследнее обновление от 11 января 2022 г. / Партнерские ссылки / Изображения из Amazon Product Advertising API
Вариант 2: Классическая песочница 4 x 4 дюйма со скамейкой
Классический дизайн песочницы без излишеств Сборка займет меньше времени, поэтому у ваших детей будет больше времени для игр! Две скамейки в конце обеспечивают удобное место для сидения или размещения игрушек с песком.
Это будет самодельный проект, который вам не терпится показать всем своим друзьям!
Материалы:
.Он естественно устойчив к осколкам, атмосферным воздействиям и гниению. Используйте обработанную под давлением древесину со знанием дела и на свой страх и риск. Все, что обработано CCA, содержит мышьяк и может быть вредным. Какой бы материал вы ни выбрали, убедитесь, что он безопасен для детей.
Шаг 1: Подготовка места
Сначала выберите желаемое место. Учитывайте степень воздействия солнца/тени и дренаж вашего двора.
Убедитесь, что ваша песочница не превратится в пруд после дождя!
Во-вторых, очистите песочницу от дерна.Это поможет предотвратить превращение вашей песочницы в сад с сорняками или травой!
В-третьих, мы рекомендуем выкопать коробку примерно на 4-6 дюймов. Выкапывание поможет поддержать стенки ящика и предотвратить их изгибание. Если вы решите не копать яму для песочницы, возможно, вам придется подпереть ее стенки кольями.
В-четвертых, засыпьте подготовленный участок песком или мелким гравием примерно в один дюйм. Это поможет вам выровнять раму, когда она будет установлена на место.
Этап 2: Сборка основания
- Начните изготовление базовой рамы коробки из двух частей 47 ½ дюйма и двух частей 46 дюймов.
- Измерьте и проведите линию на расстоянии около 2 дюймов от концов 47 ½-дюймовых деталей. Это отметит, где вы будете вставлять и прикручивать концы 46-дюймовых деталей.
- Предварительно просверлите отверстия и прикрутите доски 47 ½” к доскам 46” под прямым углом, чтобы получилась коробка.

- Поместите четыре доски 2×2 в углы, чтобы обеспечить поддержку коробки. Просверлите винты снаружи внутрь.
Посмотрите этот шаг в действии ниже:
Шаг 3. Создание скамейки 46-дюймовые детали.
Шаг 4: Отшлифуйте и покрасьте
Теперь вы можете придать ему индивидуальность!
Сначала отшлифуйте коробку, чтобы удалить осколки. Затем аккуратно протрите коробку влажной тканью. Наконец, покрасьте коробку, придав ей желаемый вид, и дайте ей высохнуть.
Шаг 5. Перенесите песочницу
С помощью другого взрослого перенесите песочницу во двор.
Шаг 6. Установка барьера от сорняков
Разверните барьер от сорняков внутри песочницы. Поднимите стороны коробки примерно на 4 дюйма. Обязательно протолкните ткань во все четыре угла. Прикрепите ткань скобами или небольшими гвоздями.
Шаг 7: Засыпать песком
Насыпать около 8 куб. футов игрового песка и равномерно распределить.
Как рассчитать необходимое количество песка
Вы всегда можете угадать, сколько песка вам нужно, но мы рекомендуем рассчитать правильное количество.Эта формула даст вам кубические футы: длина х ширина х глубина.
Например: 4 фута x 4 фута x 0,5 фута (6 дюймов) = 8 кубических футов
Это даст вам кубические футы, необходимые для заполнения коробки. Большинство мешков с песком для игр выпускаются в мешках по 0,5 кубических фута или 50 фунтов. Для достижения 8 куб. футов песка, вам нужно будет купить 16-50-фунтовые мешки с песком для игр.
Шаг 8. Добавьте игрушки и наслаждайтесь
Добавьте в коробку совки, лопаты, тележки и игрушки для песка. Наслаждайтесь часами простой игры!
Вариант 3: Использование ландшафтной древесины
Ландшафтная древесина является надежным вариантом для быстрой песочницы.
Чтобы упростить эту работу, мы будем использовать полные 8 футов, чтобы не было необходимости делать разрезы. Эта песочница будет размером около 8 на 8 футов и достаточно велика, чтобы все ваши дети могли играть одновременно!
Материалы:
Материалы:
- 16 ландшафтных пиломатериалов, 8 футов длинные
- 8, 7 «оцинкованные полюса сарая гвозди
- 36, 5″ наружные деревянные винты
- беспроводная дрель / водитель
- 70 квадратных футов из сорняков
- молоток
- Квадрат для рамки
- Универсальный нож
- 2 кубических ярда игрового песка или рассчитайте количество
Шаг 1: Подготовка площадки
Вы подготовите свою площадку так же, как мы инструктировали для классической песочницы размером 4 x 4 фута.
Основные моменты, о которых следует помнить:
- Выбор хорошего места во дворе
- Очистка дерна и выравнивание территории
- Выемка грунта толщиной 4-6 дюймов: это обеспечит поддержку вашей конструкции и продлит ее долговечность
- Создание слоя песка или мелкого гравия толщиной около 1 дюйма
Шаг 2.
Соберите первый слойСначала возьмите два куска дерева для ландшафта и поместите их, чтобы сформировать угол песочницы. Затем используйте уровень и угольник, чтобы детали были максимально ровными и прямыми.
Наконец, используйте два гвоздя, чтобы прикрепить его к земле.
Повторить с противоположным углом. Убедитесь, что вы создаете квадрат, чередуя углы, как показано в Части 2, Шаге 2 этой иллюстрации. Не забудьте прикрепить угол к земле гвоздями для шеста.
Шаг 3. Разметка барьера от сорняков
Покройте первый слой бревен и нижний пол песочницы ландшафтной тканью. Раскатайте ткань и оберните ее по бокам коробки.Вам нужно будет сделать несколько проходов, чтобы покрыть весь пол. Наложите ткань внахлест на 1-2 дюйма посередине. Прикрепите ткань к верхушкам первого слоя бревен с помощью скоб или гвоздей. Лишняя ткань будет удалена позже.
Шаг 4: Соберите оставшиеся 3 слоя
Продолжайте добавлять слои так же, как в шаге 2. Не забудьте чередовать перекрывающиеся доски, чтобы они были смещены относительно той, что под ней. Используйте три винта, по одному на каждом конце и один посередине, чтобы удерживать каждую деталь на месте.
Отрежьте лишнюю ткань, которая может быть видна снаружи песочницы.
Шаг 5: Засыпать песком
Самое интересное! Высыпьте весь песок в новую коробку и наблюдайте, как она наполняется! Вы можете быть удивлены, сколько песка может вместить эта песочница.
Шаг 6: Наслаждайтесь новой и большой песочницей
Пусть ваш ребенок пригласит своих друзей и будет часами наслаждаться игрой детей в песочнице!
Накрытие песочницы
Представьте, как ваш малыш выбегает на улицу, чтобы насладиться песочницей.Пока вы наслаждаетесь тишиной и покоем, они приносят вам «приз», который животное оставило в их коробке! Фу!
Это одна из причин, по которой мы рекомендуем накрывать песочницу, когда она не используется. Накрыв песочницу, вы уменьшите количество мусора, который падает или задувается в нее. Это также защитит от нежелательных животных (и их фекалий)!
Крышка песочницы может быть такой же простой, как брезент, накинутый сверху.
Еще один способ укрыться — добавить откидные сиденья, которые можно использовать как укрытие, как показано здесь.
Последнее обновление от 11 января 2022 г. / Партнерские ссылки / Изображения из Amazon Product Advertising API
Заключение
Будь то большая или маленькая песочница на заднем дворе, она обязательно оставит воспоминания на века!
Мы показали вам несколько вариантов дизайна. Вариант без инструментов заставит вашего малыша играть за то время, пока вы идете в магазин! Классическая коробка размером 4 х 4 дюйма имеет простой дизайн и будет идеально смотреться на любом заднем дворе. Наконец, ландшафтная песочница из дерева даст вам ящик, достаточно большой, чтобы все могли играть одновременно.
Какую песочницу ты сделал на заднем дворе?
А теперь поднимите шезлонг и понежьтесь на солнышке, пока ваши дети весело играют!
Amazon.com: восьмиугольная деревянная коробка для песка из кедра с досками для сидения | Экологически чистое покрытие и грунтовка | 84″ X 78″ x 9″ | 3/4″ Кедровые доски | Легкая сборка своими руками | Вмещает более 800 фунтов песка
5.
0 из 5 звезд Я легко собрал его сам, но пришлось ждать несколько дней замены деталей.
Лори Лоуренс, 29 декабря 2018 г.
Перед сборкой обязательно осмотрите все детали на наличие повреждений. После сборки прикрепите подкладку к основанию, чтобы она не соскользнула. Мне показалось, что собрать его несложно, так как я заранее прочитал все остальные отзывы.
Инструменты, которые мне понадобились для сборки:
Аккумуляторная дрель с крестообразным наконечником (или отверткой) и степлером
Тачка для перевозки всего песка, который Лоу загрузил в мой грузовик😊
Я наполнил нашу 1000 фунтов игрового песка и планирую добавить больше .
Чем больше песка, тем меньше покрытие будет провисать и собирать воду во время дождя. Говоря об обложке, она кажется тонкой и дешевой. Я ожидаю, что он порвется, но у нас было несколько сильных дождей и ураганов, и он не сдулся и не протекал. Я приятно удивлена. Я добавил 2 фотографии, показывающие, что он залит дождем. Швы на углах растянулись, но не порвались. Планирую заказать несколько дополнительных чехлов у производителя. для будущего. Во Флориде я ожидаю, что солнце изнашивает его в течение 6 месяцев. Я поставил 2 пластиковых контейнера посередине, наполненных игрушками из песка, чтобы приподнять центр.Я не хотел слишком поднимать и рвать крышку. Все еще пытаюсь найти лучший способ рассыпать песок под ним для минимального удержания воды.
На Рождество у меня было 5 детей с новыми грузовиками Tonka, которые копались в земле. У нас также было много выступлений с монстр-джемом. Снежные (Песчаные) Ангелы. Достаточно места!!! Детям постарше нравится, есть простор для творчества.

