предбанник, парник, печь, габариты бани
- Главная
- Строим дом
- Своими руками
- Баня
Как правило, в любой бане имеется три функциональных помещения:
- парная,
- моечная,
- раздевалка (предбанник).
Идеальным соотношением габаритов этих помещений является следующее: 1:1,5:2.
Кроме того, баня может быть дополнена:
- тамбуром (предохраняет предбанник от попадания холодного зимнего воздуха),
- комнатой отдыха,
- душевой.
Комнату для отдыха принято совмещать с раздевалкой и с кладовой для хранения инструментов и топлива.
Для чего нужен предбанник?
Поскольку предбанник защищает основные помещения бани от ветра и холода, его обязательно надо утеплить. Однако если вы планируете эксплуатировать баню лишь в летний период, тогда вместо предбанника можно возвести террасу либо широкое крыльцо с навесом.
Если речь идет о малогабаритной бане, то здесь предбанник может быть заменен тамбуром (широким), в котором будет располагаться вешалка для одежды. Освещение такого тамбура будет осуществляться через окошко в наружной двери.
Если есть возможность то предбанник у входа хорошо было бы дополнить маленьким бассейном либо иной емкостью с холодной водой. Это позволит чередовать горячие водные процедуры с холодными.
Освещение в предбаннике может являться искусственным либо естественным. Поскольку окна здесь обычно не зашторивают, высота подоконников от пола должна составлять не меньше 1 м 40 см.
Что можно расположить в предбаннике?
В предбаннике устанавливают подставки для:
- обуви,
- скамейки,
- вешалки для одежды,
- подставки для дров и ведер.
Если печь топят углем, тогда здесь же располагают и ящик с крышкой для угля. Если же предбанник служит и комнатой отдыха, то помимо вышеперечисленного инвентаря, тут размещают:
- стол,
- удобные стулья,
- камин,
- лежанку.
Габариты предбанника рассчитывают с учетом того, что на каждого человека (члена семьи) должно приходиться не меньше 1,3м2. При этом необходимо учесть, что ширина данного помещения не должна быть меньше 1м.
При вычислении габаритов моечной также придерживаются определенных стандартов. Здесь на каждого человека должно приходиться не меньше 1м2. Помимо этого, моечная должна иметь достаточно места для того, чтоб разместить в ней емкости с горячей, холодной водой, скамеек (возможно, и душа).
Если вы планируете проводить в моечной сеансы оздоровительного массажа, тогда ее габариты должны быть не меньше 2м х 2м – это позволит поставить в ней лежак подходящего размера.
Требования к парной
С парной моечная соединяется посредством легкой перегородки. Основным требованием, которое предъявляется к парной, является поддержание, а также сохранение высокой температуры.
Размеры данного помещения могут быть разными – здесь все зависит от того количества людей, на какое она рассчитывается. А также от выбранного типа печи-каменки.
Одной из главных составляющих парной является полок, размеры и форма которого определяются тем, в какой позе вам нравится париться.
Считается, что наименьшей шириной пристенного полка является от 40 см до 45 см (для положения сидя) и от 94 см до 100 см (для положения лежа). Лучше всего, когда полок в парной довольно длинный и широкий – это позволит не только сидеть на нем, но и лежать.
Печь-каменка в парной
Чтоб создавать и поддерживать в парной высокую температуру, в ней устанавливают печь-каменку либо электрический нагреватель – калорифер.
Главное преимущество калорифера заключается в том, что они могут нагревать воздух парной до очень высоких температур и обеспечивают их дальнейшее регулирование. Однако они не способны качественно поддерживать в помещении необходимую температуру и уровень влажности.
В связи с этим в парной рекомендуется устанавливать все-таки печь-каменку, использующую какой-либо вид топлива. Необходимо проследить за тем, чтоб она размещалась вдалеке от легковоспламеняющихся деталей парной и во избежание получения людьми ожогов, была оснащена ограждающей конструкцией, выполненной из теплоизоляционного материала.
Если посещение бани вы планируете совмещать с общением в кругу дорогих друзей, тогда полезная площадь помещения должна быть не меньше 12 м2, и при этом моечная и парная обязательно должны быть разделены. Это позволит вам удобнее поддерживать в данных помещениях различные температуры (когда одни будут мыться, а другие париться).
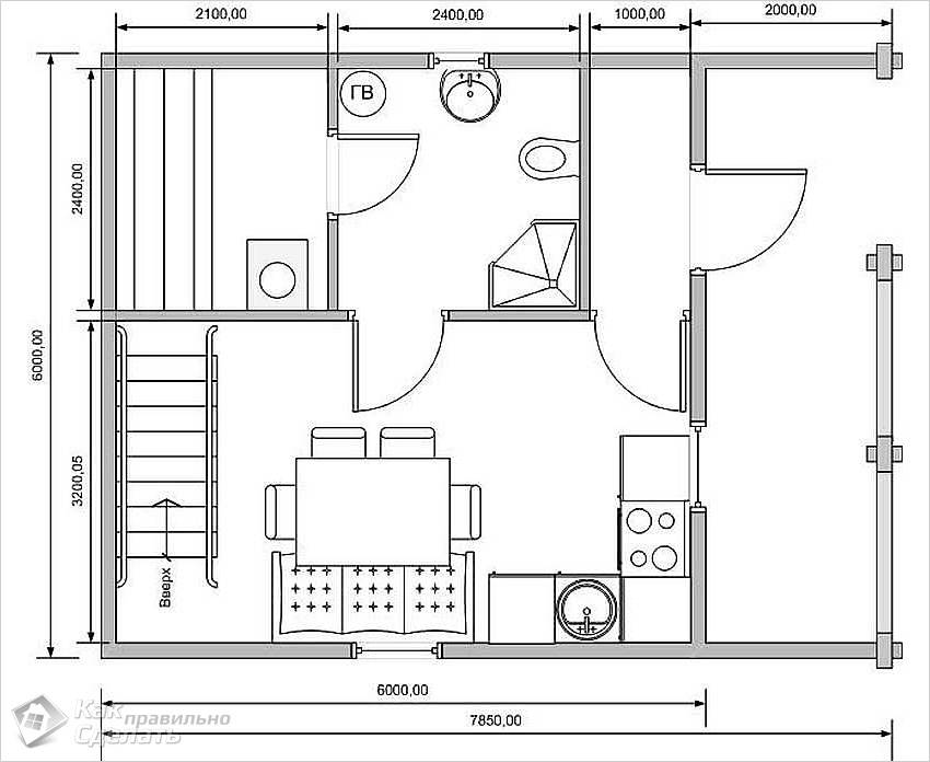
Габариты бани на двоих
Приводим приблизительные габариты бани, предназначенной для одновременного ее посещения двумя – тремя людьми:
- наружные размеры бани – 4м х 4м,
- предбанник – 1,5м х 2,4м,
- моечная – 2м х 2м,
- парная – 2м х 1,5м.
Когда полезная площадь бани составляет меньше 2 м2, то ее называют банной камерой либо банным шкафом. Конечно же, ни банные камеры, ни мини-бани не могут похвалиться тем уровнем комфорта, который обеспечивает баня, возведенная на большом приусадебном участке и обладающая полезной площадью около 15 м2. Но, когда возможности не позволяют, лучше обзавестись маленькой банькой, чем совсем никакой не иметь.
Статьи про бани:
- назад в раздел «Строительство дома своими руками»
- Веники для бани
- Баня и сауна в доме
- Вентиляционные отверстия в бане
- Система вентиляции бани
- Внутренняя отделка бани
- Возведение рубленной бани
- Возведение стен бани
- Вспомогательные материалы для строительства бани
- Выбор места для бани
- Выбор печи для бани
- Делаем мебель для бани
- Уменьшаем влажность на стенах бани
- Какую баню выбрать?
- Выбираем камни для бани
- Устройство канализационной системы для бани
- Конопатка деревянной бани
- Эксплуатация люков и дымоходов
- Материалы для строительства бани
- Монтаж бетонного пола в бане
- Монтаж дверей и окон бани
- Монтаж деревянного пола в бане
- Монтаж потолка бани
- Освещение в бане
- Особенности выбора плитки для бани
- Отделка банных срубов
- Отопление бани
- Очистка зольника
- Как правильно выбрать печь для бани
- Как правильно париться в бане
- Печи-каменки для твердого топлива
- Потолок парилки
- Правила растопки печи
- Разновидности печей для бани
- Ремонт бани
- Ремонт печной трубы
- Ремонтируем венец печной трубы
- Стены бани
- Обустройство крыши бани
- Теплоизоляция бани
- Инструкции по установке печи
- Фундамент бани
- Чистка кирпичей дымохода
- Выбираем электрокаменку для сауны
пошаговая инструкция с советами специалистов
Многие люди любят сходить в баню, но не все хотят тратить деньги на ее посещение.
К счастью, это и не обязательно. Соорудить место для души и отдыха можно самому. Вместе с экспертом банного дела Верой Петракович рассказываем, как построить баню своими руками, и сколько сил и средств на это уйдет.
Пошаговая инструкция по строительству бани
Чтобы построить баню самостоятельно, необходимо подготовиться к этому процессу. Разработать план, смету и четко ей следовать.
1. Планировка
В первую очередь необходимо продумать конструкцию своей бани. Она может быть:
- Отдельностоящая — с парилкой, моечной и предбанником. Если есть возможность и место, то сюда реально добавить дополнительные комнаты и второй этаж;
- На первом этаже дома — здесь просто необходимо выделить помещение под парилку. Остальные комнаты — моечная, раздевалка — уже есть;
- Пристройка к дому — баня может занять территорию веранды, либо для нее придется делать отдельный фундамент. Желательно, пристройку делать к кирпичному дому, так безопаснее;
- Баня на колесах и баня-бочка — современные варианты, представляющие собой миниатюрную парную с минимальным набором банных компонентов.
Они могут быть передвижными и статичными. В последнем случае даже не обязательно устанавливать фундамент.
— Минимальный набор бани — парилка, моечная и предбанник. Если есть место, можно организовать комнату отдыха, но это не обязательно для тех, кто делает баню, например, на дачном участке, — рассказывает Вера.
По словам эксперта, желательно располагать такое помещение недалеко от водоема или источника подачи воды — скважины или колодца — тогда не будет проблем с проведением коммуникаций.
2. Разработка схемы
Расположение помещений и размеры конструкций лучше продумать заранее. Для этого необходимо подготовить соответствующие чертежи. Главное правило — провести расчеты с учетом среднего роста посетителя.
Высота потолков в среднестатистической бане обычно начинается от 2 метров и выше. Не менее 1 кв. метра должно быть выделено в парной на человека. Предбанник — не менее 2 кв. метров, моечная — 1,5 кв. метра. Чем больше, тем лучше, особенно в парной, ведь это самое главное место в бане.
Все цифры и показатели нужно вносить в специальную схему. В ней должны быть отражены:
- план постройки;
- план отделений;
- схематическое расположение фундамента со всеми размерами;
- схема крыши;
- планировка внутри помещения — потолок, пол, разделительные конструкции;
- монтажные схемы, установка печи, водных коммуникаций и полок.
Готовые чертежи есть в интернете, либо их можно заказать у специалиста. Некоторые умельцы способны нарисовать схему постройки бани своими руками самостоятельно.
3. Выбор материалов для бани
Основа бани может быть выполнена не только из дерева, но и других материалов. У каждого есть свои плюсы и минусы. Выбор остается за владельцами.
Дерево
Традиционные русские бани выполнены именно из этого материала. Приятный аромат, натуральные составляющие — это то, что люди знают и любят. Среди минусов — надежность. Древесина портится от воды, огнеопасна, «любима» насекомыми. В связи с этим она нуждается в специальной обработке антисептиками.
- Бревна. Чаще всего это сосна, дуб, лиственница. Принцип укладки — шип-паз. Важно учитывать, что бревна довольно-таки тяжелые, одному с установкой не справиться;
- Брус. Каркасная конструкция, которая легко возводится. Если к бревнам фундамент делать нужно основательный, то здесь хватит облегченного. Брус желательно брать из сосны, липы (только для внутренней отделки) или осины, она самая дорогая, но хорошо удерживает тепло;
- Лафет. Это те же бревна, только благодаря обработке они не круглые, а прямоугольные. Соединяются по принципу «норвежского замка», где благодаря угловому соединению и процессу самозаклинивания при сушке дерева очень плотно прилегают друг к другу, сохраняя тепло и обеспечивая надежность. Лафет может быть из классических пород, популярностью также пользуется кедр. Среди минусов — дорогая цена;
- Доски. Самые простые бани собирают из готовых поддонов или отдельных досок. Фиксируются они специальными крепежами, саморезами, деревянными шпонками.

Арболит
Бетонные блоки, из которых строится баня, выполнены из древесных опилок, смешанных с цементом. Такой материал недорого стоит, его удобно собирать и он легко весит. Однако этот материал плохо проводит тепло и неустойчив к влаге.
Арболитовые блоки. Фото: wikipedia.orgКирпич
Баня из камня отличается долгим сроком службы. Строения из керамики или клинкерного кирпича не требуют дополнительной облицовки, они безопасны и могут часто использоваться без особого ущерба.
У бань из кирпича должен быть надежный фундамент. Самый надежный — монолитный ленточный. Его не так просто устанавливать, но зато с ним возникнет больших проблем. Камень же дорого стоит, плохо пропускает воздух и требует утепления изнутри.
Также в качестве материалов могут быть использованы более дешевые альтернативы кирпичу: пеноблоки, шлакоблоки, газоблоки и керамзитоблоки.
4. Выбор места
Этот пункт можно отнести к планировке, но все-таки лучше сказать о нем отдельно. Специалисты рекомендуют делать входную дверь в бане с южной стороны, чтобы зимой в нее было проще заходить. Окна лучше ставить на солнечной стороне, чтобы помещение хорошо освещалось без электричества.
— Не забывайте о правилах пожарной безопасности. Желательно, такую постройку ставить на расстоянии не менее 10-15 метров от дома, — делится Петракович.
Более того, нормы расположения бани прописаны в законодательстве:
- дистанция до соседнего забора — больше метра;
- до деревянного здания, построенного по-соседству — от 15 метров;
- до дома на участке — больше 8 метров;
- от 5 метров и выше — удаленность от дороги и улицы;
- от 6 до 11 метров — расстояние до сооружений из негорючих материалов;
- 5 метров — расстояние до ближайшего водоема;
- 15 метров — расстояние до леса;
- в пределах одного метра не должно быть кустарников;
- в пределах 4 метров не должно быть высоких деревьев;
- минимум 12 метров должен быть отступ от колодца или скважины.

5. Внутреннее обустройство
Выбор материалов нужно продумать не только для наружного обустройства бани, но и для внутреннего. В частности, важно позаботиться о теплоизоляции. Если баня находится под одной крышей с домом, то используется наружная. Когда это отдельное строение, то достаточно внутреннего утепления.
Теплоизоляция в бане должна быть гигроскопичной, не содержать токсинов, обладать низкой теплопроводностью, соответствовать нормам пожарной безопасности и удерживать форму. Для тех, кто делает баню своими руками, важно и такое качество, как простота крепления.
Еще один необходимый момент — пароизоляция. Для нее применяют следующие элементы:
- пленка с армирующим покрытием;
- мембрана из нетканого полотна;
- листы с фольгированным покрытием.

Также следует продумать вопрос проведения коммуникаций. Если баня прикреплена к дому, то с этим будет разобраться проще. В частности это касается водоотведения.
— Чтобы баня была сухая, в ней необходимо правильно отладить отход и поступление воды, — отмечает наша собеседница. — Слив, канализация, все должно быть сделано грамотно.
Для подачи воды из скважины или водоема необходимо будет приобрести специальный насос для этих целей. Поступает вода по трубе, которая обязательно должна быть загерметизирована. Тут же необходимо позаботиться и о гидроизоляции.
К слову, если вы не планируете пользоваться баней часто, то и воду туда проводить необязательно. Необходимое количество ее можно принести с собой в бутылках или других емкостях.
Какие работы нужно будет выполнить при постройке бани
Когда понимание того, как построить баню своими руками есть, составлена схема, закуплены необходимые материалы, то нужно приступать к делу. Рассказываем, с чего следует начинать.
Подготовка участка и заливка фундамента
Под баню нужна ровная площадка — никакой травы, прочей растительности и мусора. Верхний слой почвы снимается на уровне 15-20 см. Периметр выделяете колышками, на которые натягиваете веревку.
Следом предстоит вырыть траншею, ямы под столбы (если баня каркасная) или котлован. Все зависит от того, какой тип строения у вас будет и с какими основанием. Для бань из кирпича или бревен лучше делать монолитную бетонную ленту с небольшим уровнем заглубления. В таких случаях перед заливкой фундамента используйте армирование.
Строительство корпуса
Как уже сказано выше, здесь многое зависит от материалов, из которых будет ваша баня. Если вы делаете ее из каменных блоков или кирпича, то сначала следует выровнять основание с помощью цемента и после высыхания застелить его сложенным вдвое рубероидом, который возьмет на себя функции гидроизоляции.
Укладывать стены нужно начинать с углов. Важно соблюдать плоскость следить за тем, чтобы конструкции располагались на одном уровне.
Кирпич кладут на смесь цемента и песка. Блочные конструкции — на клей. На местах, где будут расположены окна и дверь, монтируются перемычки. Также необходимо создать армопояс, который свяжет все стены здания в единый каркас. На нем фиксируются болты под кровлю. Крышу возводят, когда применяемые в скрепке элементов растворы набирают прочность.
Бревна укладываются по принципу шип-паз. Учитывая их вес — вам понадобится помощник. Брать лучше не голые необработанные бревна, а оцилиндрованные, одинаковые в сечении.
Для бруса хватит облегченного фундамента. Сборка из него называется каркасной, она считается одной из самых быстрых. Стены делают по типу решетки. Сначала собирается нижняя обвязка бруса, элементы скрепляются саморезами или монтируются встык на металлические углы, потом монтируется обвязочная доска на торце, впритык к которой идут напольные лаги, с обратной стороны они подрезаются, чтобы была установлена другая торцевая доска для обвязки. Лаги должны быть размещены так, чтобы между ними помещался теплоизолятор, идеальный вариант — минеральная вата.
Для нижней обвязки бруса подойдут размеры 100х100 мм. Под каркас стен — 50х100 мм. Для пароизоляции лучше применять пленку. Наружную и внутреннюю обшивку делают, как правило, из обрезной доски, вагонки, ОСБ или сайдинга. Обшивку и теплоизоляцию в каркасной бане делают после монтажа крыши.
Проста в установке и баня из поддонов и досок. Их крепят между собой саморезами или деревянными шпонками. Положение может быть как вертикальным, так и горизонтальным.
Установка пола
Здесь укладка идет по «слоеному» типу. Сначала идут лаги, которые могут быть металлическими, деревянными, полимерными или железобетонными. Затем черновой пол, пароизоляционная лента, утеплитель, гидроизоляция и верхний настил.
В бане из бруса пол делать проще. Сначала идет утеплительный слой, а потом чистовая доска.
Вера Петракович уверена, что пол лучше делать из кафельной плитки. Под нее можно установить бетонное основание. Если речь идет не о парилке, то пол можно оставить из дерева, но в помещении, где очень жарко, такой использовать не рекомендуется.
Установка крыши
Крыша может быть двускатная или односкатная. Первый вариант подойдет, если ваша баня расположена в месте, где не бывает сильного ветра. Второй — для бани, пристроенной к дому.
Возведение кровли начинается с установки мауэрлата, на котором закрепляется стропильная система крыши. Дальше необходимо постелить слой гидроизоляции и закрепить планки обрешетки. Последний этап — укладка кровли. Подойдут шифер, рубероид, битумная черепица и другие материалы по вашему усмотрению. Часто, например, используют профлист. На потолке также рекомендуется для надежности бани установить теплоизоляционный слой.
Установка печи
Как указывает эксперт, печь необходимо подбирать по объему парилки. Полноценная кирпичная печь будет являться неотъемлемой частью конструкции и под нее потребуется заложить отдельный фундамент. Такая печь долго удерживает тепло и лучше прогревает парную. При постройке кирпичной печи используется огнеупорная глина.
Если у вас небольшая парная, то можно приобрести металлическую печь.
Они бывают с теплообменниками, греют и баню, и воду. Такие конструкции могут быть обложены натуральным камнем — он дает мягкое, лучистое тепло. Но данное устройство небезопасно и рядом с печкой, как правило, стелят листы металла.
Железные печи бывают закрытые, где топка внизу, каменка посередине, а сверху бак под воду и открытые — с камнями, уложенными снаружи.
Труба у печи должна быть с прямым выводом, чтобы не засорялась.
Внутренняя отделка
Утеплитель укладывается между брусками, которые крепятся на внутреннюю часть стен на расстоянии 40-50 см друг от друга. Специалисты рекомендуют применять минеральную вату. Закрывается она пароизоляционной пленкой, которая, в свою очередь, закрывается отделочным материалом. Для последнего слоя берут доски до 2-4 см из осины, липы или ольхи. Хвойные ни в коем случае нельзя использовать в парной, так как они при нагреве выделяют смолу. Пиломатериалы из ОСБ и ДВП тоже запрещены.
Внутренняя отделка бани. Фото: pixabay.comВнутренняя отделка бани.
Фото: pixabay.comВнутренняя отделка бани. Фото: pixabay.comУстановка перегородок и полок
Перегородки в бане делаются также из специальных деревянных брусков. Их задача — разделить обособленные помещения. Уже в лагах пола должно быть предусмотрено место для ее установки и закрепления.
Полок в парилке должен быть максимально удобен. Его желательно делать в 2 или даже 3 яруса — в форме больших ступенек. Расстояние до потолка — не менее 100-120 см. От пола до первого полка расстояние должно быть не менее 30-45 см. Между ярусами промежуток — 50 см. Полки должны быть широкими для сидения и лежания, 80-90 см должно хватить. Длина, желательно, не менее 180 см, чтобы можно было вытянуть ноги.
Каркас полка собирается из бруса. К нему монтируется обрезная шлифованная доска.
Установка вентиляции
Вентиляция в бане бывает двух видов — естественная и принудительная. Первую обеспечивают окна — через одно поступает холодный воздух, через второе уходит горячий. Вторая подразумевает под собой встроенное устройство, работающее от электричества.
Советы экспертов
- Устанавливайте керамическую плитку с подогревом, чтобы помещение быстрее прогревалось.
- Если позволяет площадь, делайте моечную и парилку отдельно друг от друга.
- Стройте баню недалеко от водоема.
- Главное в бане — хорошие камни, которые дают лучистое тепло. Талькохлорит считается не самым идеальным вариантом — он обладает неприятным запахом. Нефрит и жадеит отлично подойдут для печки в баню, но они весьма дорогостоящие.
- Где хороший пар, не нужно много воды, он сам выполняет очищающие функции. Для умывания достаточно несколько баклажек с водой.
- Для наружной отделки бани применяют сайдинг, покраску, декоративные элементы, фасадную плитку, вагонку, облицованный кирпич и стеновые панели.
Популярные вопросы и ответы
Как снизить расходы на постройку бани?
Снизить расходы поможет грамотный подбор элементов. Так, при строительстве каркаса из бревен лучше выбирать сосну, а не дуб или лиственницу.
Если момент не принципиальный, то вообще лучше выбрать другой тип строения — каркасные бани из брусов будут дешевле. Еще дешевле упрощенная баня из поддонов или досок. Если вы хотите построить баню из блоков, то наиболее доступным выглядит арболит. Для пароизоляции самый дешевый вариант — пленка. Для утепления — вата.
Сэкономить можно, если делать баню в качестве пристройки к дому. Тогда не будет необходимости закупаться обилием стройматериалов.
Что лучше поручить специалистам?
Если вы хотите построить кирпичную отдельную баню, то лучше поручить это людям, которые имеют опыт кладки — от заливки фундамента до установки крыши. Также желательно отдать на руки профессионалам проведение коммуникаций и установку гидроизоляции.
Нужно ли узаконивать баню на участке?
Не обязательно. Узаконивать нужно пользование скважинами, где есть определенные ограничения по тарифам. Но не все их используют для своей бани.
7 составляющих конструкции бани [+15 ФОТО]
То, что является конструктивными элементами бани, своим предназначением определяет структуру взводимого строения.
И нужно сказать, что возводимая конструкция бани своими руками будет индивидуальна в том случае, когда все эти элементы будут оригинальными.
Но при этом они всегда присутствуют, независимо от того из каких материалов строилась баня, и какова цена этих материалов.
Фото классической бани со всеми ее конструктивными элементами
Из чего конструктивно состоит баня
Конструкции, являющиеся элементами бани подразделяются на несущие и ограждающие. Роль ограждающих элементов заключается в отделении помещений от улицы и от других помещений, в то время как на несущие элементы ложится вся нагрузка.
Для некоторых из них характерна и та и другая функция.
- Фундамент. Находится под землей, его задачей принять на себя вес всего здания, передать и распределить эту нагрузку на грунт.
Пример ленточного фундамента
- Стены. Относятся к вертикальной составляющей конструкции здания. Их функция и несущая и ограждающая.
В задачу несущих стен входит передача нагрузки от крыши, а также перекрытий фундаменту.
Самонесущие такую нагрузку не передают, они обладают только собственным весом и по сути своей это ограждающие конструкции.
Возведение стен бани
- Отдельные опоры. Это различные стойки, колонны, столбы, по своей сути являющиеся несущими элементами. И они передают нагрузки, оказываемые перекрытиями или другими несущими элементами, на фундамент.
Опоры передают нагрузку от крыши фундаменту
- Перекрытия. В их задачу входит разделение внутреннего пространства по горизонтали, а также несение полезной нагрузки, которая передается на стены и опоры. Следовательно, перекрытия – это тоже несущие элементы бани.
Потолочное перекрытие в бане
- Крыша. Это защита бани от осадков. В ее состав входит кровельный материал и поддерживающие его несущие конструкции.
Простейшая конструкция крыши
- Перегородки. Это вертикальные ограждающие конструкции бань, делящие внутреннее пространство на отдельные помещения.
Перегородки в бане не несут на себе никакой нагрузки
- Из основных несущих элементов конструкции составляется единая пространственная система, называемая несущим остовом бани.

Конструктивные элементы бани
Фундамент
Конструкция столбчатого фундамента
В первую очередь он относится к несущей части всей бани. Из-за его нахождения в земле на него действует влага, и он может промерзать, и поэтому должен обладать прочностью и устойчивостью.
Значит при его создании необходимо строгое соблюдение технологии и использование материалов хорошего качества.
- То, насколько глубоко закладывается фундамент, определяется видом грунта. В глинистых и суглинистых грунтах, вспучивающихся при промерзании, основание фундамента закладывается ниже, чем уровень промерзания на 20 см.
Если грунты песчаные или гравелистые, то зависимости глубины закладки от уровня промерзания. В этом случае необходимо учитывать уровень расположения грунтовых вод, но не меньше чем 0,5 метра от поверхности. - По своей конструкции фундаменты для бани подразделяются на столбчатые и ленточные.
- Для защиты фундамента от дождя и поверхностной влаги необходима отмостка.

Конструкция стен
Самыми лучшими банями считаются те, стены которых сложены из бревен или бруса. Эти материалы отлично сохраняют тепло, способны пропускать воздух и воду. Благодаря этому в таких банях наблюдается естественный воздухообмен, сохраняется приятный запах и комфортная атмосфера.
При возведении таких стен используются хвойные породы дерева, при этом заготовка должна происходить зимой, при минимальном сокодвижении. Ну а самым простым и удобным материалом для строительства зданий считается брус.
Брус для стен бани – самый лучший материал
Совет: Строить бани из бруса или бревен лучше всего зимой, в этом случае при высыхании материал, находящийся уже в срубе, меньше трескается и его меньше ведет, то есть он меньше перекручивается.
При строительстве стен бани могут использоваться облегченные кирпичи или камни с пустотами. Но в этом случае необходимо дополнительное утепление, зато есть другие достоинства: долговечность и меньшая пожароопасность.
Хорошо сохраняют тепло стены сложенные из газосиликатных или пенобетонных блоков. Но для таких стен обязательна и внешняя и внутренняя отделка, ввиду высокой гигроскопичности этих материалов.
Конструкция крыши
Главными характеристиками крыши должны быть прочность, легкость и водонепроницаемость. Выделяют плоскую, одно- и двухскатную крышу. Для бани более характерными являются двухскатные крыши, в некоторых случаях для красоты добавляют вальмы.
Совет: Если в Вашей местности преобладают постоянные сильные ветра, то крышу стоит сделать как можно более пологой, при большом количестве осадков: снега зимой и дождя летом, сделать уклон круче.
Конструктивно крыша состоит из стропил, несущей части, влагоизоляции, теплоизоляционного слоя, контробрешетки, обрешетки и кровельного материала. Довольно часто, при отсутствии мансарды и если чердачное помещение хорошо проветривается бани, то гидроизоляцию и утепление не используют.
Полная конструкция крыши под металлочерепицу
Вид обрешетки определяется видом кровельного материала.
Если планируется шифер, металлочерепица, ондулин или профилированный лист, то для обустройства обрешетки достаточно досок, толщиной 25 мм, смонтированных на определенном расстоянии друг от друга. Если же используется натуральная черепица, то необходимы бруски, толщиной в 50 мм, а расстояние между ними определяется размерами материала.
При монтаже мягкой кровли обрешетку делают уже двойной, где первым слоем всплошную прибивают обрезные доски, толщиной 25 мм, вторым слоем кладут фанеру, толщиной от 5 мм. Сверху укладывается материал мягкой кровли.
Конструкция пола
Конструкция пола в бане – это начальный этап внутренней отделки. Перед укладкой пола, необходимо сооружение дренажной системы и подготовка фундамента под печь. Только в том случае, если будет соблюдена инструкция по обустройству дренажа, в бане будет отсутствовать затхлый запах, и будет отводиться лишняя вода.
Внимание: Чтобы водосток был наиболее оптимальным, пол в парной и моечной должен располагаться под небольшим уклоном.
Чаще всего пол в бане делается деревянным, и по своей конструкции бывает протекающим и непротекающим.
При настиле досок на лаги, которые опираются на фундамент, а также столбики посередине, при этом доски монтируются всплошную, получается непротекающий пол. При этом монтируют черновые полы, и пространство под чистовым полом утепляется. Поверхность пола имеет уклон в какую-либо сторону либо к центру помещения.
Монтаж непротекающего пола
Для обустройства протекающего пола необходимо, чтобы грунт хорошо впитывал воду, либо провести соответствующие мероприятия. Снимается слой почвы, примерно до полуметра и насыпают щебенки или керамзита.
Заливают бетоном, при этом поверхность бетона должна иметь уклон, в сторону приемника воды. После чего на лаги настилают тщательно отшлифованные доски, при этом между ними остаются промежутки примерно в 1-2 см.
Так выглядит протекающий пол в бане
В предбаннике и комнате отдыха не требуется наклон.
Поэтому его настилают из половых шпунтованных досок, с черновыми полами и утеплением под ним. Также может быть положена кафельная нескользящая плитка.
Конструкция потолка
Конструктивно потолок бани состоит из балочного бруса, подшивных досок потолка, накатной обшивки, утеплителя и пароизоляции.
Различают подшивные, настильные и панельные потолки.
- Подшивной потолок.
При возведении стен бани укладываются потолочные балки. В процессе отделки снизу они обшиваются каким-либо чистовым материалом, чаще всего вагонкой.
Сверху на вагонку укладывают слой пароизоляции, затем слой утеплителя, и снова пароизоляция. Возможна зашивка сверху какими-либо досками, можно необрезными.
Монтаж подшивного потолка
- Настильный потолок.
Чаще всего такой потолок делают в небольших, 2-3 метра в ширину, помещениях. Чистовой материал настилается непосредственно на верхнюю обвязку стен и перегородок. На этот материал стелется пароизоляция, затем утеплитель, и снова пароизоляция.
Внимание: Для того чтобы по краям утеплитель не вываливался, по периметру помещения сооружаются специальные оградительные борта.
Керамзит поверх настильного потолка
- Панельный потолок.
Заранее собираются специальные щиты, шириной в пределах одного метра, длиной равной длине помещения. Коробка из досок обшитая и сверху и снизу. Внутри сэндвич из двух слоев пароизоляции и утеплителя. Затем из таких щитов собирают потолок.
Совет: так как щиты в сборе довольно тяжелые, то стоит их собирать непосредственно наверху
.
Монтаж щитового потолка наверху
Вывод
Понимание того, из чего конструктивно состоит баня, какие требования к основным элементам предъявляются, помогает не только при строительстве новой бани. Точно также все будет понятно, если делается реконструкция бани своими руками.
По всем этим вопросам можно найти информацию на нашем портале, и в видео в этой статье.
62 идеи дизайна ванной комнаты, которые вы захотите попробовать
По
Кристин Хоэнадель
Кристин Хоэнадель
Кристин Хоэнадель — эксперт по дизайну интерьеров. Она освещала тенденции в области архитектуры, интерьеров и декора для таких изданий, как New York Times, Interior Design, Lonny, а также американских и международных изданий Elle Decor. Она живет в Париже, Франция, и побывала в более чем 30 странах, что дало ей глобальный взгляд на дизайн дома.
Узнайте больше о The Spruce’s Редакционный процесс
Обновлено 20.06.22
Ель / Кристофер Ли Фото
В то время как интересная часть проектирования ванной комнаты заключается в выборе сантехники и отделки, важно принять важные решения о том, как максимизировать функциональность и оптимизировать планировку, прежде чем вы начнете обдумывать более мелкие детали.
Успешный дизайн ванной комнаты требует работы с ограничениями пространства, в котором вы должны принимать важные решения о том, как комната функционирует и течет. Это означает думать о таких вещах, как лучший дизайн душа для максимального комфорта и эффективности. Где разместить ванну, если у вас есть место и желание. Какой размер и тип туалетного столика вы можете поместить в вашу конкретную ванную комнату. Как обойти существующее расположение окон, чтобы максимизировать поток воздуха и естественный свет. Какая дверь лучше всего подходит для уединения и простоты использования, или, в случае основного люкса, стоит ли вообще устанавливать дверь.
Ознакомьтесь с этими ванными комнатами в различных стилях и размерах, чтобы найти идеи, которые помогут вам спроектировать или изменить дизайн вашей ванной комнаты, будь то создание с нуля элегантного главного люкса в гостиничном стиле, реконструкция гостевой ванной комнаты или превращение небольшой ванной комнаты в квартире-студии в ванную комнату.
дзен-подобный оазис, который максимально использует каждый квадратный сантиметр пространства.
01 из 62
Открытая планировка
Дизайн Cathie Hong Interiors / Фото Маргарет Остин Фото
Этот смелый минималистский двойной душ и ванна открытой планировки от дизайнера интерьеров Кэти Хонг из Cathie Hong Interiors имеет поворотные стеклянные двери, которые можно оставить открытыми, чтобы максимизировать поток света и воздуха из закругленных окон, или закрыть, чтобы предотвратить нежелательные брызги душа. Двойные душевые лейки скрытно установлены на противоположных сторонах замкнутой умывальной комнаты, что позволяет сосредоточить внимание на ванне и обзоре.

02 из 62
Двойные настенные раковины
Дизайн JL Design / Фото Reagen Taylor Photography
Не каждая общая ванная комната нуждается во встроенном двойном туалетном столике. В общей ванной комнате этого ребенка от JL Design соответствующие настенные промышленные раковины висят на удобной для детей высоте, чтобы дать братьям и сестрам собственное пространство.
03 из 62
Настенная плитка
Дизайн Alexis Bednyak Design и Searl Lamaster Howe Architects / Фото и стиль Алиссы Розенхек
Покрытие стен ванной комнаты камнем или плиткой от пола до потолка стало широко распространенной тенденцией дизайна, которая практична с точки зрения очистки и имеет визуальное преимущество, заключающееся в том, что она привлекает взгляд вверх, чтобы сделать ванную комнату более просторной. В этой роскошной чикагской высотной ванной комнате от Alexis Bednyak Design и Searl Lamaster Howe Architects черная каменная плита покрывает дальнюю стену, создавая драматический фокус.
Плитка для душа из светлого камня также доходит до потолка для контраста. 04 из 62
Освещение
Дизайн Tidal Interiors / Фото Дженни Зигварт
Установка хорошего освещения является важной частью любого дизайна комнаты, но освещение в ванной часто может быть резким и нелестным в той комнате, где вы меньше всего этого хотите. В этой ванной комнате от дизайнера интерьеров Рианны Джонс из Tidal Interiors светодиодная подсветка придает гламурный оттенок гладкой встроенной душевой нише от стены до стены. Окружающий свет создает успокаивающее свечение для ночного душа и добавляет еще один уровень освещения в пространство, где не хватает естественного света. Если вы пытаетесь добавить света в душ, обязательно наймите профессионала, который сможет гарантировать его безопасность и водонепроницаемость.
05 из 62
Туалетный столик из переработанного материала
Дизайн А. Набера Дизайн / Фото Дженни Зигварт
Выбирая туалетный столик для ванной комнаты, подумайте о том, чтобы использовать винтажную или старинную деревянную мебель, добавить раковину и водонепроницаемую столешницу.
Дизайнер интерьеров Эбби Набер из A. Naber Design превратила современный буфет середины века в красивый туалетный столик с характером и большим количеством места для хранения.06 из 62
Голландская дверь
Дизайн JRS ID / Фото Лилы Сид
В этой светлой, яркой и элегантной ванной комнате от дизайнера интерьеров Джессики Риско Смит из JRS ID белоснежная смесь отделки согревается латунными светильниками и гламурным освещением. Но настоящей звездой шоу является голландская дверь, ведущая наружу, верхнюю часть которой можно открыть, чтобы увеличить естественную вентиляцию и освещение.
07 из 62
Промышленная перегородка
Дизайн Лизы Гилмор Дизайн / Фото Native House Photography
При проектировании ванной комнаты не чувствуйте себя обязанным придерживаться одного стиля. Эта эклектичная ванная комната от дизайнера интерьеров Лизы Гилмор из Lisa Gilmore Design имеет яркую стеклянную перегородку из черной металлической сетки, в которой находится просторный душ.
Эта особенность промышленного дизайна создает контраст с мягкой, полированной декоративной отделкой ванной комнаты, такой как узорчатая плитка и цветочные обои.08 из 62
Настенная плитка Surround
Дизайн Mindy Gayer Design Co. / Фото Линдси Стетсон Томпсон
Дизайнер интерьеров Минди Гайер из Mindy Gayer Design Co. определила комбинированный душ и ванну в этой относительно небольшой ванной комнате с фартуком, облицованным плиткой от пола до потолка. Насадка для душа расположена по центру над ванной и подвешена к потолку, чтобы уменьшить визуальный беспорядок. С одной стороны висит крючок для полотенец, а с другой — встроенные уголки, но дизайнер пропустил занавеску для душа, чтобы сохранить ощущение открытости.
09 из 62
Сквозная
Интерьеры Дезире Бернс
В длинной и узкой ванной комнате в стиле коридора обязательно оставьте центральную аллею свободной для облегчения циркуляции и сохранения четкости линий обзора.
Дизайнер интерьеров Дезире Бернс из Desiree Burns Interiors сделала эту проходную ванную комнату особенной, добавив слой мятно-зеленой краски, которая добавляет свежести, не привлекая к себе слишком много внимания. 10 из 62
Разделенные
Дизайн Эмили Хендерсон Дизайн / Фото Сары Лигорриа-Трамп
В то время как ванные комнаты открытой планировки в моде, есть что сказать об общей ванной комнате, которая имеет отдельные зоны, которые могут обеспечить уединение, когда это необходимо, как, например, эта ванная комната от дизайнера интерьеров Эмили Хендерсон из Emily Henderson Design.
11 из 62
Windows
Дизайн Lori Gentile Interior Design / Фото Jenny Siegwart
Душ с доступом к естественному свету — это роскошь. В этой мраморной душевой кабине в калифорнийской ванной комнате от Lori Gentile Interior Design пара окон обеспечивает много естественного света, а встроенная скамейка у окна создает расслабляющее место, где можно побрить ноги или подождать, пока маска для волос впитается.
12 из 62
Двойной душ
Дизайн JRS ID / Фото Эрин Фейнблатт
Двойные душевые лейки в этой просторной ванной комнате от дизайнера интерьеров Джессики Риско Смит из JRS ID практически невидимы благодаря стене из плитки с графическим рисунком. Ванна спрятана под окном, а прозрачная стена из стеклянных дверей душа практически исчезает, чтобы предотвратить разбрызгивание, при этом максимально увеличивая пространство для большой ванны для купания.
13 из 62
Выступ
Дизайн Mindy Gayer Design Co. / Фото Ванессы Лентин
Дизайнер интерьеров Минди Гайер из Mindy Gayer Design Co. добавила встроенный выступ, в котором находится водопровод для большой ванны. Но это практичное дизайнерское решение также предоставляет возможность для демонстрации декора и аксессуаров, не говоря уже о месте, где можно поставить бокал вина для тех, кто любит пить напиток во время купания.
14 из 62
Двойная ниша
Дизайн и фотографии Малкольма Симмонса для Эмили Хендерсон Дизайн
Зачем строить одну нишу для ванной, когда у вас может быть две, как эта ванная комната от автора Emily Henderson Design Малкольма Симмонса, которая идеально подходит для совместного использования или отделения повседневных продуктов от предметов домашнего спа-дня раз в неделю.
15 из 62
Перспективы в рамке
Дизайн Tidal Interiors / Фото Jenny Siegwart
Создание линий обзора и перспектив делает маленькое пространство более обширным, а большое — более интересным. Дизайнер интерьеров Рианна Джонс из Tidal Interiors добавила в эту просторную калифорнийскую ванную комнату обшитый деревом уголок над большим двойным туалетным столиком, который имеет мягкую подсветку и оснащен широким зеркалом, отражающим вид и естественный свет от раздвижных стеклянных дверей напротив.
16 из 62
Стенка для туалетного столика
Дизайн Лизы Гилмор Дизайн / Фото Native House Photography
В этой просторной основной ванной комнате от дизайнера интерьеров Лизы Гилмор из Lisa Gilmore Design специальная туалетная стена включает в себя деревянную тумбу с большим количеством мест для хранения, удобное кресло, красивое золотое зеркало и винтажное освещение.
17 из 62
Деревянные акценты
Дизайн Tidal Interiors / Фото Дженни Зигварт
Дизайнер интерьеров Рианна Джонс из Tidal Interiors добавила теплоты в современную черно-белую ванную комнату, выбрав деревянную облицовку туалетного столика и плитку под дерево, чтобы создать акцентную стену душа и фокус.
18 из 62
Темное дерево
Дизайн Flourish Interior Design / Фото Jenny Siegwart
Дизайнер интерьеров Дженн Баннистер из Flourish Interior Design обшила туалетный столик и высокие смежные шкафы для хранения темным деревом, что создает цельный вид и теплый, заземляющий элемент в чистой современной полностью белой ванной комнате. Тонкое вертикальное окно с непрозрачным стеклом пропускает естественный свет, сохраняя конфиденциальность.
19 из 62
Настенная плитка
Лаура Брофи Интерьеры
Иногда лучший способ максимизировать восприятие пространства в ванной комнате — это умное использование дизайнерской отделки. Один из способов создать элегантную современную ванную комнату — выложить плиткой все поверхности одного оттенка, как в этом красивом дизайне ванной комнаты от дизайнера интерьеров Лауры Брофи из Brophy Interiors.
20 из 62
Искусственные окна
Дизайн Latham Interiors
Дизайнер интерьеров Сара Латам из Latham Interiors использовала простые прямоугольные зеркала, имитирующие окна и раздвижные стеклянные двери по обеим сторонам ванной, создавая перспективы, отражая естественный свет и максимизируя виды.

11 лучших зеркал для ванной 2022 года
21 из 62
Влажная комната
Дизайн Flourish Interior Design / Фото Jenny Siegwart
Дизайнер интерьеров Дженн Баннистер из Flourish Interior Design создала душевую, в которой душ и ванна расположены у правой стены, компактный и эффективный дизайн, который хорошо работает в ванной комнате в стиле железной дороги с достаточной шириной.
22 из 62
Арки
Дизайн Kate Marker Interiors
Дизайнер интерьеров Кейт Маркер из Kate Marker Interiors привнесла архитектурный интерес в новую постройку, добавив большие зеркала и встроенные бра во вставленные арки над двойными туалетными столиками в ванной комнате, которые добавляют блеска и создают ощущение роскошного отеля.
23 из 62
Стена конфиденциальности
Дизайн «Если бы стены могли говорить»
Дизайнер интерьеров из Ямайки Джоэль Смит из If Walls could Talk создала ощущение уединения в этой общей ванной комнате, создав туалетный уголок с двумя окнами, который частично скрыт стеной.

24 из 62
Встраиваемая ванна
Интерьеры Дезире Бернс
В то время как скульптурные отдельно стоящие садовые ванны находятся в тренде, нет ничего плохого в классической встроенной ванне для обтекаемого вида, которую легко содержать в чистоте. В этой основной ванной комнате дизайнер интерьеров Дезире Бернс из Desiree Burns Interiors создала консоль на правой стене, которая создает место для демонстрации произведений искусства и декора, скрывая сантехнику для ванны.
25 из 62
Уголок для хранения
Дизайн Latham Interiors
В этой ванной комнате от дизайнера интерьеров Сары Латам из Latham Interiors дизайнер создал встроенный открытый и закрытый уголок для хранения, который по-прежнему оставляет место для просторного душа, добавляя функциональности комнате.
26 из 62
Под карнизом
Дизайн NORD для Living Architecture / Фото Джека Хобхауса
В этом доме, спроектированном NORD для Living Architecture, черная садовая ванна спрятана под карнизом и освещена мансардным окном, а окрашенная в белый цвет корабельная настил и раковина фермерского дома соответствуют обстановке английской сельской местности.
Черно-белая палитра добавляет жесткости современному краю, что не дает ей выглядеть симпатичной. 27 из 62
Нечетные углы
Дизайн Latham Interiors
Если в вашей ванной комнате неудобные углы, превратите эту дизайнерскую ошибку в элемент декора, как дизайнер интерьеров Сара Лэтэм из Latham Interiors, которая облицовала душ контрастной плиткой и добавила душевые прозрачные стеклянные двери, сделанные на заказ, чтобы придать более обтекаемый вид. .
28 из 62
Уникальное окно
Эрин Уильямсон Дизайн
Эта ванная комната от Erin Williamson Design имеет множество декоративных отделок: от привлекательных полов из цементной плитки до фасадов из орехового дерева и матовой черной сантехники Brizo. Но шестиугольное окно, встроенное в дальнюю стену душа и окруженное простой белой плиткой, является уникальной особенностью, которая создает запоминающийся дизайн.
29 из 62
Железнодорожный стиль
Дизайн Cathie Hong Interiors / Фото Christy Q.
PhotographyВ этой ванной в стиле железной дороги от дизайнера интерьеров Кэти Хонг из Cathie Hong Interiors ванна расположена в дальнем конце под окном. Дизайнер добавил темно-серую плитку с узором «елочка», который придает глубину длинной прямоугольной комнате, создавая фартук, который продолжается на пол, создавая бесшовный вид.
30 из 62
Ванная комната
Дизайн Studio KT
Дизайнер интерьеров Кара Томас из Studio KT разработала гигантскую душевую кабину в этой главной спальне, используя ту же черно-серую палитру, что и соседняя гардеробная, чтобы создать сплоченность и плавность между пространствами.
31 из 62
Большое искусство
Дизайн Джинджер Барбер Дизайн интерьера / Фото Майкла Хантера
В этой роскошной высотной ванной комнате от дизайнера интерьеров Джинджер Барбер из Ginger Barber Interior Design окна от пола до потолка обеспечивают широкий открытый вид и естественный фокус.
Но дизайнер установил крупное произведение искусства на соседней стене, чтобы дать глазам еще одно место для отдыха, которое добавляет цвет и яркость современному пространству нейтральных тонов.32 из 62
Бесшовные
Дизайн Cathie Hong Interiors / Фото Маргарет Остин Фото
Дизайнер интерьеров Кэти Хонг из Cathie Hong Interiors выложила плиткой эту просторную ванную комнату от пола до линии сводчатого потолка, чтобы легко определить пространство и облегчить уборку. Стеклянные двери создают плавный переход от зоны ванны к душевой кабине и позволяют свету из соседних окон осветлять пространство.
33 из 62
Симметрия
Дизайн Living with Lolo / Фото Life Created
Дизайнер интерьера Лорен Лернер из Living with Lolo обработала окно в этой основной ванной комнате, установив столешницу вдоль стены и расположив подходящие раковины, зеркала и подвесные светильники рядом друг с другом, чтобы максимально использовать доступное пространство на стене.
Симметрия двойных раковин добавляет структурности асимметричной планировке, делая ее изысканной и целеустремленной.34 из 62
Зеркальная стена
Кендалл Уилкинсон Дизайн
Один из способов сделать вашу ванную комнату более индивидуальной — это добавить декоративные элементы, сделанные на заказ. В этой просторной ванной комнате от Kendall Wilkinson Design зеркальная стена украшена декоративными зеркалами в рамах над каждой раковиной, а также встроенными бра и потолочными светильниками, которые добавляют рассеянный свет.
35 из 62
Встроенные уголки
Дезире Бернс Интерьеры
На левой стене Desiree Burns Interiors добавила неглубокий выступ и встроенные уголки, которые предлагают дополнительное пространство для декора и предметов для ванны и уравновешивают дизайн.
36 из 62
Затемненное стекло
Эрин Уильямсон Дизайн
В этом историческом обновлении дома в Калифорнии дизайнер интерьеров Эрин Уильямсон из Erin Williamson Design добавила затемненные стекла на окна и двери, которые сохраняют конфиденциальность, пропуская свет.

37 из 62
Pony Wall
Дизайн Tyler Karu Design + Interiors / Фото Эрин Литтл
Дизайнер интерьеров Тайлер Кару из Tyler Karu Design + Interiors добавил сплошную стену в виде пони, которая обеспечивает некоторую конфиденциальность во время принятия душа и создает четкое разделение между душем и туалетом, чтобы максимально увеличить пространство.
7 лучших комплектов для душа 2022 года | Ель
38 из 62
Прозрачный
Дизайн Kate Marker Interiors / Фото Stoffer Photography
Дизайнер интерьеров Кейт Маркер из Kate Marker Interiors добавила прозрачные стеклянные двери от пола до потолка, которые отделяют душ и ванну от остальной части ванной комнаты, создавая защиту от брызг, не блокируя естественный свет из окон.
39 из 62
Каменная огранка
Кендалл Уилкинсон Дизайн
Если у вас есть бюджет, пространство и желание, дизайн вашей ванной комнаты вокруг солидной ванны превратит пространство в экспонат.
В этой роскошной ванной комнате от дизайнера интерьеров Кендалла Уилкинсона из Kendall Wilkinson Design скульптурная каменная ванна плавает перед рядом окон от пола до потолка с видом на улицу, а раздвижные перегородки в японском стиле можно отрегулировать, чтобы добавить конфиденциальности. все еще позволяя естественному свету проникать внутрь.40 из 62
Сиденье у окна
Интерьеры Дезире Бернс
Если вам посчастливилось иметь дополнительное пространство, превратите ванную комнату в комнату отдыха, добавив кресла. В этой просторной ванной комнате от дизайнера интерьеров Дезире Бернс из Desiree Burns Interiors сиденье у окна, достаточно большое для двоих между двойными туалетными столиками, создает возможность для дополнительного хранения, а также место, где можно отдохнуть и насладиться видом, делая себе педикюр.
41 из 62
Подвесной
Дизайн Майте Гранда
Подвесные унитазы делают ванную комнату современной и обновленной, их легко чистить, а пространство кажется легким и воздушным.
В этой просторной ванной комнате от дизайнера интерьеров Майте Гранда выступ, образованный скрытой сантехникой за унитазом, создает возможность украшения, чтобы вращаться в искусстве, растениях, цветах или декоративных предметах. 42 из 62
Смешанные материалы
Дизайн Mindy Gayer Design Co. / Фото Lane Dittoe
При проектировании полностью белой ванной комнаты обязательно смешивайте материалы, чтобы создать интерес и не дать ей показаться слишком холодной и стерильной. Дизайнер интерьеров Минди Гайер из Mindy Gayer Design Co. покрыла стены этой ванной комнаты в Южной Калифорнии вертикальными переплетами, чтобы подчеркнуть высоту потолка. Белая древесина простирается до полустенного входа в душ и гармонирует с белой мраморной плиткой.
43 из 62
Текстурированная древесина
Дизайн Эми Леферинк из Interior Impressions / Фото Mackenzie Merrill Photography
Если вам посчастливилось работать с большой ванной комнатой, рассмотрите возможность зонирования отдельных областей, чтобы максимизировать функциональность.
В этой ванной комнате от дизайнера интерьеров Эми Леферинк из Interior Impressions стена для полотенец в просторной закрытой душевой с текстурным деревянным акцентом, крючками для полотенец и тиковой скамейкой, которая выглядит как дополнительная комната.44 из 62
Секретная дверь
Дизайн Майте Гранда
Дизайнер интерьеров Майте Гранда добавила настенные молдинги в эту длинную, прямолинейную ванную комнату без окон, которая скрывает потайную дверь наружу.
45 из 62
Угловая скамья
Дизайн Tyler Karu Design + Interiors / Фото Эрин Литтл
Дизайнер интерьеров Тайлер Кару из Tyler Karu Design + Interiors добавил угловую скамью в правом углу этой душевой кабины, которая обеспечивает место для сидения, не занимая слишком много места на полу, чтобы поддерживать циркуляцию.
46 из 62
Встроенные
Интерьеры Шарбонно
Встроенные конструкции от пола до потолка придают этой ванной комнате от дизайнера интерьеров Нэнси Шарбонно из Charbonneau Interiors особую атмосферу.
Сочетание открытого и закрытого хранения предлагает место для хранения и демонстрации стопок полотенец, предметов искусства и предметов, в то время как большое количество шкафов и ящиков скрывают беспорядок. Большое зеркало, прикрепленное к стене между встроенными шкафами, создает ощущение простора и воздушности.47 из 62
Плитка «Забыть»
Лаура Брофи Интерьеры
Плитка — популярный выбор в ванной комнате, но для тех, кто предпочитает более обтекаемый вид или просто не может выдержать постоянный уход, необходимый для поддержания чистоты швов, почему бы не выбрать бетонную отделку, такую как этот минималистский душ от дизайнера интерьера. Лаура Брофи из Brophy Interiors.
48 из 62
Уголок для ванны
Красивый беспорядок
Эта глубокая реконструкция уголка ванной комнаты от A Beautiful Mess украшена плиткой цвета морской волны, которая определяет пространство. Ванна расположена в углу, оставляя пространство под окном свободным и достаточно места для циркуляции, когда ванна не используется.

49 из 62
Настенный
Дизайн Эмили Хендерсон Дизайн / Фото Сары Лигорриа-Трамп
Дизайнер интерьеров Эмили Хендерсон из Emily Henderson Design сэкономила рабочее пространство в этой драматической черно-белой ванной комнате, установив сантехнику на стене над двойной раковиной. Тот же трюк можно использовать с фурнитурой для ванны.
50 из 62
Ниша для ванны
Дизайн: Lindye Galloway Studio+Shop / Фото Чада Меллона
Дизайнер интерьеров из округа Ориндж, Калифорния Линди Галлоуэй из Lindye Galloway Studio+Shop добавила графического интереса к нише ванны в этой полностью белой ванной комнате с черными акцентами, включая двойное окно с черной металлической сеткой и черно-белую подвеску. светлый оттенок и черная ванна.
51 из 62
Плавающий бетон
Дизайн Джулиана Порчино
Агент по недвижимости и дизайнер интерьеров Джулиан Порчино добавил плавающую раковину из полированного бетона от стены до стены, которая привносит индустриальный стиль в простую компактную ванную комнату.
Столешницы остаются в основном голыми, а туалетные принадлежности хранятся в зеркальной аптечке над туалетным столиком для минималистского вида. Стеклянная душевая стена и дверь доходят до потолка, позволяя естественному свету проникать внутрь и усиливая ощущение простора в довольно узкой ванной комнате.52 из 62
Потолок в деревенском стиле
Эмили Хендерсон Дизайн / Фото Сары Лигорриа-ТрампВысокие потолки
В этой просторной основной ванной комнате от дизайнера интерьеров Эмили Хендерсон из Emily Henderson Design открытые потолки облицованы натуральным деревом, что подчеркивает углы и добавляет архитектурный интерес к пространству. Практичный пол из каменной плитки сланцево-серого цвета добавляет минеральной нотки, которая уравновешивает все дерево, а белые стены и современная бытовая техника сохраняют дизайн свежим.
53 из 62
Двойные опции
Дизайн Living with Lolo / Фото Life Created
Дизайнер интерьеров Лорен Лернер из Living with Lolo воспользовалась преимуществами этого глубокого душа для создания зон: от основной душевой зоны с тропическим душем посередине до удобной скамьи вдоль задней стены с точечной насадкой для бритья ног и т.
д. Уход за собой.54 из 62
Затемненный стеклянный экран
Дизайн House of One
Дизайнер интерьеров Бриттани Фаринас из House of One создала в этой ванной немного уединения, установив непрозрачную стеклянную перегородку между туалетом и душем.
55 из 62
Вертикальное пространство
Интерьеры Мела Бина
Дизайнер интерьеров Мел Бин из компании Mel Bean Interiors максимизировал каждый сантиметр доступного вертикального пространства в этой ванной комнате, добавив высокие зеркала, длинные вертикальные бра и встроенные шкафы на боковой стене, которые простираются до самых высоких потолков. Это идеальное решение для хранителей туалетной бумаги во всем мире.
56 из 62
Декоративная стена
Дизайн Living with Lolo / Фото Life Created
Если у вас есть роскошь пространства, создание зон может сделать вашу ванную комнату похожей на спа и особенной.
Здесь дизайнер интерьеров Лорен Лернер из Living with Lolo создала особую стену, которая служит фоном для глубокой ванны. Декоративная стена частично скрывает его и ее шкафы с обеих сторон.57 из 62
Двойной режим
Дизайн GreyHunt Interiors / Фото Стейси Зарин Голдберг
В этом дизайне от дизайнера интерьеров Салли Лорд из GreyHunt Interiors встроенная ванна и просторный душ расположены на дальней стене ванной комнаты. Чтобы максимизировать пространство, сантехника ванны расположена у задней стены, освобождая дополнительное пространство в изголовье (или изножье) корпуса ванны, чтобы оно действовало как душевая скамья для примыкающего душа. Прищурьтесь и стекло исчезнет,
58 из 62
Встроенный туалетный столик
Дизайн: Lindye Galloway Studio+Shop / Фото Чада Меллона
Если вам нравится иметь специальное место для нанесения макияжа или ухода за кожей, подумайте о том, чтобы отказаться от двойных раковин в основной ванной комнате и вместо этого установить встроенный туалетный столик, как в этой ванной от Lindye Galloway Studio + Shop.
Туалетный столик находится на одном уровне с туалетным столиком, но встроен ниже, поэтому его удобно использовать сидя.59 из 62
Душевая
Дизайн JL Design / Фото Reagen Taylor Photography
В этой традиционной основной ванной комнате от дизайнера интерьеров Джессики Дэвис из Нэшвилла, штат Теннесси, JL Design, большая ванна занимает почетное место под окном, а просторная душевая комната встроена в угол под углом к полностью стеклянная дверь, которая создает ощущение комнаты в комнате.
60 из 62
Обман зрения
Дизайн Джулиана Порчино
Не всем нужен дзен-оазис в ванной комнате. И не всегда нужно сносить стены, чтобы изменить восприятие пространства. Используя графическую плитку с динамичным черно-белым рисунком, агент по недвижимости и дизайнер интерьеров Джулиан Порчино создал обтекаемый фартук для душа и ванны, который добавляет ощущение ритма и движения, заставляя глаз думать, что пространство шире и крупнее, чем он есть.

61 из 62
Домашний спа
Дизайн Latham Interiors
Если пространство и деньги не имеют значения, почему бы не разместить домашний спа-центр на плане вашей ванной комнаты, например, от дизайнера интерьеров Сары Лэтэм из Latham Interiors.
62 из 62
Винтаж
Эрин Уильямсон Дизайн
Обновление старого дома не означает, что вы должны его модернизировать. В этом бунгало в Остине дизайнер интерьеров Эрин Уильямсон из Erin Williamson Design хотела сохранить винтажную атмосферу дома, обновив ванную комнату проверенной временем отделкой и вневременным стилем. От дешевой плитки на полу до отдельно стоящей фарфоровой и хромированной раковины и зеркала со скошенной кромкой — в ванной комнате царит классическая атмосфера, которая кажется свежей и переживет модные тенденции.
Не знаете, какой цвет выбрать для ванной? Пройдите наш короткий тест и узнайте, какая цветовая палитра подходит именно вам!
15 идей для ремонта ванной комнаты
Дизайн интерьера — Дизайн кухни и ванной | Ассоциированная степень
Отпечатано 19.
10.2022
- Доступность программы
- Ориентировочная стоимость
- Прием
- Результаты программы
Доступность программы *
Дизайн интерьера — Дизайн кухни и ванной
| Адреса | Осень 2022 | Весна 2023 | Лето 2023 | Осень 2023 |
|---|---|---|---|---|
Эпплтон |
Некоторые курсы могут быть доступны в нескольких местах.
Ключ
Прием заявок на этот срок
Заявки на этот срок не принимаются
Сметная стоимость
Затраты могут не включать все книги или все материалы и расходные материалы.
Некоторые расходы на учебники могут быть включены в сметную стоимость программы.
9 631,56 долл. США*
Стоимость на основе текущего обучения и сборов
$125.00*
Дополнительные материалы и расходные материалы
1 803,50 доллара США*
Учебники
* Стоимость обучения может быть изменена.
Приемная
Оценка навыков
Для поступления на эту программу требуется оценка академических навыков или следующее: средний балл средней школы 2,75 или выше (последние 10 лет) ИЛИ обеспечить получение степени младшего специалиста или более высокой степени ИЛИ; 165 или выше на экзаменах GED серии 2014 ИЛИ; ACT ИЛИ SAT ИЛИ Accuplacer ИЛИ Companion ИЛИ Compass (последние 3 года), чтобы отказаться от общеобразовательного уровня; Стоимость оценки Accuplacer составляет 15 долларов США; Каталожный №: 94100100; Узнайте больше на www.
fvtc.edu/Assessment.
Дополнительная информация
Национальная ассоциация кухонь и ванных комнат (NKBA) признает степень младшего специалиста по дизайну интерьера — дизайну кухонь и ванных комнат в качестве дочерней программы NKBA.
Результаты программы
- Применение деловой практики, связанной с производством кухонь и ванных комнат
- Применение основ дизайна в проектах кухонь и ванных
- Применение процесса проектирования к проектам кухни и ванной
- Дизайн в соответствии с параметрами искусственной среды
- Интеграция кодов, влияющих на кухню и ванную комнату
- Интеграция отраслевых рекомендаций, влияющих на кухню и ванную комнату
Варианты перевода зачетных единиц колледжа
КАРЬЕРНЫЕ ВОЗМОЖНОСТИ
- Консультант по дизайну
- Оценщик
- Дизайнер интерьера
- Дизайнер кухни и ванной
- Продавец-консультант
Факты трудоустройства выпускников
За пределами класса
Для студентов доступно более 45 различных клубов и организаций.
Многие клубы напрямую связаны с программами, предлагаемыми в FVTC, поэтому вы можете развивать профессиональные связи, встречаясь с другими студентами.
Мы здесь, чтобы помочь вам добиться успеха. Вы найдете широкую сеть поддержки в Fox Valley Tech. Не стесняйтесь обращаться к нам, если вам нужна помощь.
Employment Connections здесь, чтобы помочь вам с вашими потребностями в трудоустройстве. Наши услуги начинаются, когда вы регистрируетесь в качестве студента FVTC, и продолжаются на протяжении всей вашей карьеры.
Нужна помощь?
Свяжитесь со Службой зачисления по вопросам о приеме, финансовой помощи, регистрации, обучении и переводе кредита.
Приемный центр
Электронная почта: Admissionsspecialist@fvtc.
edu
Телефон: 920-735-4740
Текст: 920-294-1738
Варианты перевода кредита
Это ваши кредиты. Возьмите их с собой!
Независимо от того, являетесь ли вы новым студентом, переходите ли вы в другой двухгодичный колледж или получаете степень бакалавра, мы упростим для вас беспрепятственный перевод ваших кредитов. Имея полную аккредитацию Высшей учебной комиссии, мы предлагаем соглашения о передаче кредита более чем 65 двух- и четырехгодичным колледжам.
Перевод в
Многие студенты приходят в Технологический институт Фокс-Вэлли с кредитами, которые они уже заработали либо в старшей школе, либо в других колледжах и университетах. Также возможно получить кредит за знания и навыки, связанные с карьерой, которые вы уже освоили.
Перевод из школы
Планируете ли вы в будущем четырехлетнее обучение? Сэкономьте время и деньги, начав здесь. Вы можете получить степень младшего специалиста в Fox Valley Tech, а затем применить свои кредиты для получения степени бакалавра.
Или легко перевести свои кредиты в другие двухгодичные колледжи.
Затрудняюсь ответить
Не знаете, какая профессия вам подходит? Позвольте нам помочь вам выбрать программу. Сотрудники Fox Valley Tech могут помочь вам определить навыки, ценности, интересы, профессиональные и образовательные возможности, чтобы определить наилучший путь для достижения ваших целей.
Узнать больше
Индивидуальная помощь
Позвольте нам провести вас через процесс поступления от начала до конца.
Приемный центр Местоположение и карты
Электронная почта: [email protected]
Телефон: 920-735-4740
Текст: 920-294-1738
51 современная идея дизайна ванной комнаты плюс советы о том, как дополнить вашу ванную комнату аксессуарами
Нравится архитектура и дизайн интерьера? Следуйте за нами…
- Подписаться
Все мы проводим много времени в своих ванных комнатах, поэтому правильно сделать из них просто великолепное место.
Уникальные ванны, элегантные тумбы и туалеты современного дизайна бывают всех форм и размеров, чтобы соответствовать пространству и бюджету, как большому, так и маленькому. Помимо основных удобств, ванные комнаты могут быть оснащены шикарными диспенсерами и местами для хранения. Освещение также является неотъемлемой частью головоломки при проектировании ванной комнаты, поскольку свет может полностью изменить настроение пространства. Чтобы вдохновить вас на следующий ремонт, мы собрали коллекцию из 51 современной идеи для ванной комнаты, включающую потрясающую сантехнику, мебель, смесители, аксессуары для ванных комнат и атмосферные схемы освещения.
- 1 |
- Визуализатор: Габриэла Кравчик

- 2 |
- Визуализатор: Наталия Яхела
- 3 |
- Визуализатор: Амр Абдин
- 4 |
- Визуализатор: ONI Render
- 5 |
- Визуализатор: Олег Кучер

- 6 |
- Визуализатор: Андрей Корнийчук
- 7 |
- Визуализатор: Сергей Амброс
- 8 |
- Документ-камера: Mia Design Studio
- 9 |
- Визуализатор: ТОЛЬКО студия
- 10 |
- Документ-камера: VisEngine

- 11 |
- Документ-камера: Studio Saxe
- 12 |
- Визуализатор: Martin Krizan
- 13 |
- Визуализатор: Павел Михаленок
- 14 |
- Документ-камера: TOTL Studio

- 15 |
- Визуализатор: Анжелика Андрейченко
- 16 |
- Документ-камера: Rome Srebranets
- 17 |
- Дизайнер: Филипп Старк
- 18 |
- Визуализатор: Екатерина Домрачева
- 19 |
- Визуализатор: Слава Корчагин

- 20 |
- Документ-камера: Архитектура Z.Design
- 21 |
- Визуализатор: Мохамед Муса
- 22 |
- Визуализатор: Петренко Арсентий
- 23 |
- Документ-камера: Joana Santos Ferreira

- 24 |
- Документ-камера: Silvia Saez
- 25 |
- Visualizer: S.Hotvianskyi & M.Temnikov
- 26 |
- Визуализатор: Станислав Каминский
- 27 |
- Визуализатор: Мария Гуминилович
Эта медная ванна с выдвижной крышкой в традиционном стиле и современная медная раковина на пьедестале составляют роскошную команду. Гладкие серые кафельные стены противодействуют жару блестящего медного тона.- 28 |
- Документ-камера: Muhammed Ali Jouhar
- 29 |
- Визуализатор: Игорь Сиротов
- 30 |
- Визуализатор: Александр Муравейко

- 31 |
- Документ-камера: Mark Hunter
- 32 |
- Визуализатор: Роман Валеев
- 33 |
- Визуализатор: Ахмед Ибрагим
- 34 |
- Визуализатор: Vanilla Studio
- 35 |
- Визуализатор: Евгений Жданов
- 36 |
- Визуализатор: Евгений Жданов

- 37 |
- Документ-камера: Мухаммед Али Джухар
- 38 |
- Документ-камера: Кристофер Червински
- 39 |
- Визуализатор: Дарья Бабий
- 40 |
- Визуализатор: RUDA Studio
- 41 |
- Документ-камера: Studio Horizont

- 42 |
- Документ-визуализатор: Мария Папко
- 43 |
- Визуализатор: Архипластика
- 44 |
- Визуализатор: Ника Воротынцева
- 45 |
- Документ-камера: INNOI Design
- 46 |
- Документ-камера: J Lozgar
- 47 |
- Документ-камера: Ле Хан
Кроме того, одевайте полки и украшайте их аксессуарами, как в основном жилом помещении, а не забивайте их случайными туалетными принадлежностями — оставьте это для скрытого пространства для хранения.- 48 |
- Дизайнер: Ахмед Морси
- 49 |
- Документ-камера: Ogovio
- 50 |
- Визуализатор: Елена Седова
- 51 |
- Визуализатор: Моханад Аль Хомси
- 52 |


Они могут быть передвижными и статичными. В последнем случае даже не обязательно устанавливать фундамент.


Самонесущие такую нагрузку не передают, они обладают только собственным весом и по сути своей это ограждающие конструкции.


Плитка для душа из светлого камня также доходит до потолка для контраста.
Дизайнер интерьеров Эбби Набер из A. Naber Design превратила современный буфет середины века в красивый туалетный столик с характером и большим количеством места для хранения.
Эта особенность промышленного дизайна создает контраст с мягкой, полированной декоративной отделкой ванной комнаты, такой как узорчатая плитка и цветочные обои.
Дизайнер интерьеров Дезире Бернс из Desiree Burns Interiors сделала эту проходную ванную комнату особенной, добавив слой мятно-зеленой краски, которая добавляет свежести, не привлекая к себе слишком много внимания.


Черно-белая палитра добавляет жесткости современному краю, что не дает ей выглядеть симпатичной.
Photography
Но дизайнер установил крупное произведение искусства на соседней стене, чтобы дать глазам еще одно место для отдыха, которое добавляет цвет и яркость современному пространству нейтральных тонов.
Симметрия двойных раковин добавляет структурности асимметричной планировке, делая ее изысканной и целеустремленной.
В этой роскошной ванной комнате от дизайнера интерьеров Кендалла Уилкинсона из Kendall Wilkinson Design скульптурная каменная ванна плавает перед рядом окон от пола до потолка с видом на улицу, а раздвижные перегородки в японском стиле можно отрегулировать, чтобы добавить конфиденциальности. все еще позволяя естественному свету проникать внутрь.
В этой просторной ванной комнате от дизайнера интерьеров Майте Гранда выступ, образованный скрытой сантехникой за унитазом, создает возможность украшения, чтобы вращаться в искусстве, растениях, цветах или декоративных предметах.
В этой ванной комнате от дизайнера интерьеров Эми Леферинк из Interior Impressions стена для полотенец в просторной закрытой душевой с текстурным деревянным акцентом, крючками для полотенец и тиковой скамейкой, которая выглядит как дополнительная комната.
Сочетание открытого и закрытого хранения предлагает место для хранения и демонстрации стопок полотенец, предметов искусства и предметов, в то время как большое количество шкафов и ящиков скрывают беспорядок. Большое зеркало, прикрепленное к стене между встроенными шкафами, создает ощущение простора и воздушности.
Столешницы остаются в основном голыми, а туалетные принадлежности хранятся в зеркальной аптечке над туалетным столиком для минималистского вида. Стеклянная душевая стена и дверь доходят до потолка, позволяя естественному свету проникать внутрь и усиливая ощущение простора в довольно узкой ванной комнате.
д. Уход за собой.
Здесь дизайнер интерьеров Лорен Лернер из Living with Lolo создала особую стену, которая служит фоном для глубокой ванны. Декоративная стена частично скрывает его и ее шкафы с обеих сторон.
Туалетный столик находится на одном уровне с туалетным столиком, но встроен ниже, поэтому его удобно использовать сидя.