Планировка бани: варианты, как выбрать, фото
Чтобы пользоваться баней было удобно и безопасно, необходимо тщательно продумать ее планировку. Разбираемся, как это сделать правильно
Фото: shutterstock
При планировке бани важно обратить внимание не только на расположение комнат внутри строения, но и на правильное размещение его на участке. Баня должна отвечать нормативам строительства, пожарной безопасности и требованиям эргономичности использования. Узнали у экспертов, какие факторы нужно учитывать при постройке бани.
- Нормативы
- Основные помещения
- Виды планировки
- Как выбрать планировку
- Комментарии экспертов
Эксперты в статье:
- Вячеслав Смирнов, специалист онлайн-сервиса для поиска специалистов «Профи»;
- Евгений Спиряков, операционный директор направления «Полимерные мембраны и PIR» ТЕХНОНИКОЛЬ;
- Михаил Байнов, продукт-менеджер компании КНАУФ.

www.adv.rbc.ru
Планировка бани на участке
Большинство бань не относятся к объектам капитального строительства (то есть не превышают высоты второго этажа). Чаще всего это хозяйственные постройки, которые не нужно регистрировать. Баню можно построить на участках ИЖС, СНТ и ЛПХ. Однако размещение объекта должно соответствовать определенным правилам. Нормативы возведения любых объектов регулируются СП 53.13330.2011 [1]. Вот что нужно учитывать:
- при смежных с соседями участках расстояние от бани до забора должно быть не меньше 1 м;
- баню нужно ставить так, чтобы при дожде сток воды по скату не попадал на соседний участок;
- строение должно располагаться на расстоянии 8 м от любой постройки, включая уборную. Причем это требование не имеет ограничения по участку, поэтому необходимо проследить, чтобы дача была установлена на этом же расстоянии от соседских домов;
- такое же расстояние должно быть соблюдено в отношении колодца и компоста.

Есть также несколько рекомендаций, как разместить постройку, чтобы пользоваться ею было комфортно:
- дверь на южную сторону поможет избежать завала сугроба в зимний период — там снег тает быстрее;
- окна на запад обеспечат обилие естественного солнечного света;
- если разместить баню недалеко от природного водоема, можно сэкономить на строительстве бассейна.
Помещения в бане
При планировке бани необходимо грамотно расположить все базовые помещения.
Парилка
Это сердце бани. Здесь размещается печка, а температура достигает самых высоких показателей. Задача для строителя — сконструировать ее таким образом, чтобы тепло удерживалось как можно дольше, а места хватало для основных банных процедур. Вот несколько рекомендаций по планировке парной:
- комната должна располагаться дальше всего от входной двери.
Окна здесь не нужны вовсе; - дверь лучше всего сделать узкой и невысокой, чтобы выходило как можно меньше пара;
- в парной нужны лавки и пространство, достаточное для размещения нескольких людей, чтобы исключить опасность обжечься об элементы печи или угли;
- расстояние от печки до деревянных элементов при этом должно быть не меньше 20 см;
- именно в этом помещении парятся вениками и ополаскиваются из тазов. Стоит предусмотреть место под хранение инвентаря;
- при планировании этого помещения следует заранее учесть, сколько человек в нем будет находиться одновременно. Рассчитывать нужно из соображения по 2 кв. м на человека.
Моечная
Относительно современное изобретение и совершенно необязательное, если планируется небольшая баня. Однако если есть желание, сюда можно провести водопровод и организовать полноценный душ.
Предбанник
При входе в основное помещение необходим буфер для удержания тепла. Обычно это предбанник, в котором можно оставить верхнюю одежду, обувь, инвентарь, дрова.
Зона отдыха или столовая
Это необязательное, но полезное помещение в случае, если планируется совмещать баню с чаепитием. Здесь можно разместить и большой стол, и посуду, и удобный диван. При наличии такой комнаты строение даже можно будет использовать для проживания.
Бассейн или купель
Приятно поплавать после парной или окунуться в ледяную воду. Эти элементы можно установить как в моечной или парной, так и выделить отдельную комнату под бассейн.
Таким образом, минимально в бане должны быть тамбур и парная, а по максимуму планировка ограничена только фантазией и возможностями.
Виды планировки бани
Выбирая размер бани, важно учесть толщину стен и утепления. Главное правило — двери в бане всегда должны открываться наружу.
Это необходимо из соображений безопасности — чтобы в экстренном случае человек смог выбить дверь и выбраться из помещения.
Баня 3×4
В планировку 3×4 м поместится баня минимальной комплектации: парная, моечная и небольшая комната отдыха
Это минимальный комфортный размер для бани, на такой площади можно организовать небольшую парилку на одного-двух человек и предбанник. При желании можно даже организовать небольшую помывочную или компактную зону отдыха.
Баня 6×4
Чем дальше парная находится от выхода, тем лучше будет сохраняться тепло
Строение в виде ровного прямоугольника позволит сконструировать парную так, чтобы хранить в ней тепло дольше. Это помещение стоит разместить по противоположной стене от входа, отгородив небольшой моечной. Останется место и для тамбура, и для зоны отдыха.
Баня 6×6
В больших банях печь можно расположить рядом с другими комнатами, чтобы она обогревала все строение
Квадратная планировка удобна тем, что помещения можно сделать самого разного размера.
Если печку расположить в центральной части строения, то она будете понемногу согревать все прилегающие комнаты, отдавая основной жар парилке. Это удобно, если планируется использовать баню зимой или ночевать в ней. Для летнего использования стоит продумать террасу, куда можно выйти и охладиться.
Баня с бассейном
Бассейн лучше всего расположить в отдельном помещении
При проектировании бассейна в бане нужно учитывать несколько важных моментов:
- твердый фундамент. Даже самая небольшая чаша бассейна дает серьезную нагрузку на почву — придется использовать монолитный железобетон;
- канализационные коммуникации. Одного бойлера и слива будет уже недостаточно, нужно выстраивать полноценную систему;
- бассейн можно купить готовым;
- размеры. Если речь идет о полноценной чаше для плавания, то величина ее должна быть не менее 3×4 м, чтобы можно было хотя бы развернуться и сделать несколько движений в воде.
Глубины в 140 см достаточно для взрослых людей, если не хочется нырять. Для бань с бассейном подойдет размер от 8 м по каждой стороне, чтобы вместить все необходимые помещения; - с точки зрения планировки бассейн лучше размещать в отдельном помещении. Дело в том, что чаще всего он за счет облицовки кафелем и прохладной воды сохраняет невысокую температуру. Если разместить эту комнату через дверь от парной, есть риск, что тепло из этой комнаты будет испаряться быстрее. В остальном ограничений по расположению нет — бассейн может быть установлен даже на террасе.
Баня с купелью
Купель можно установить в парной или моечной
Купель — резервуар со стоячей водой, в котором могут поместиться в полный рост один или несколько человек. Чаще всего, особенно в банях в русском стиле, купель выглядит как деревянная бочка. Поскольку ее используют, чтобы окунуться в холодную воду после парной, величина чаши может быть небольшой, а вот глубина должна быть достаточной, чтобы человек смог поместиться с головой.
Хороший вариант — это купель на веранде. Можно наслаждаться видом природы, а зимой вода в купели охлаждается до максимально возможного состояния
Чаще всего купель размещают в парилке. Это самый простой и дешевый способ, ведь не придется выводить коммуникации в другие комнаты, все водоотведение останется в одном месте. Также она может быть возведена в моечной, если такая комната предусмотрена. Популярностью пользуются и уличные варианты, которые можно установить на террасе или непосредственно на улице рядом с баней.
Баня с террасой
Комнату отдыха можно переместить на террасу
Терраса — неплохой способ сэкономить на стройматериалах. По сути, часть функционала всегда можно вынести в эту пристройку, а непосредственно в бане оставить парную и тамбур. Несмотря на то что места для хранения вещей и дров можно спокойно организовать снаружи, от предбанника отказываться все же не рекомендуется. Именно он помогает сохранять тепло в парной, задерживая холодный воздух с улицы.
А вот комнату отдыха можно спокойно перенести на террасу, установив там диваны и стол. Если все же хочется обойтись без предбанника, на террасе придется установить обогреватель. Также снаружи можно расположить бассейн или купель. Но это потребует дополнительной работы над водоотведением.
Фото: shutterstock
Как выбрать планировку бани
- для чего нужна баня: будут ли в ней только париться или в дополнение к этому использовать как полноценную ванную комнату, зону для отдыха и бассейн. Исходя из этого можно определить вместительность, количество и назначение комнат;
- сколько человек будет находиться в бане одновременно. Это повлияет и на размер самого строения;
- какую баню предпочитают вдалельцы: финскую сухую, русскую или, может быть, турецкий хаммам. От этого будет зависеть не только тип печи, которую нужно будет использовать, но и размер парной.
Сухая сауна нуждается в небольшом помещении — там температура крайне высокая, а влажность низкая, люди сидят. В русской бане принято париться вениками, а значит, нужна более просторная комната с достаточной высотой потолков, чтобы обмахивать друг друга; - особенности климата. Если в регионе суровые зимы, то утеплить здание придется дополнительно. В теплом климате вполне можно вынести функциональные помещения на террасу;
- где находится участок, на котором будет построено здание. Если он стоит с подветренной стороны, придется убедиться, что стены надежно удерживают тепло и оно не будет уходить со сквозняком;
- размеры бюджета и участка. Именно они накладывают основные ограничения при постройке бани.
Комментарии экспертов:
Вячеслав Смирнов, специалист онлайн-сервиса для поиска специалистов «Профи»:
— Если бюджет ограничен, я рекомендую сделать стены, лавки и потолок бани из липы и приобрести недорогую электрическую печку.
Материалы влияют на запах внутри парной и долгосрочность эксплуатации — кому-то нравится кедр, а кому-то ольха.
Чтобы в бане было безопасно, нужно разместить печку на расстоянии от стен и лавок.
Чтобы протопить баню с предбанником, парной и моечной, понадобится дровяная печь. Сначала нужно протопить все здание, чтобы температура была везде одинаковой, а уже потом закрыть парную и увеличить температуру там.
Баню можно сделать без предбанника, но с террасой. В таком случае нужно топить с террасы — сначала установить определенную температуру, а уже потом наслаждаться паром.
Михаил Байнов, продукт-менеджер компании КНАУФ:
— При строительстве бани рекомендуется применять влагостойкие материалы, например аквапанель. Это цементное основание под дальнейшую отделку плиткой, штукатуркой или краской. За счет своего состава она не боится влаги и выдерживает высокие температуры до 80 °С. Существуют аквапанели для обшивки стен (аквапанель внутренняя и аквапанель универсальная) и потолков (аквапанель скайлайт).
Необязательно всю банную зону зашивать аквапанелью. Если хотите оставить деревянное основание, то аквапанель по желанию можно использовать только в мокрой зоне. Этот материал также пригодится, если вы хотите обшить помещение плиткой, которая плохо крепится на дерево. Использование аквапанели в качестве промежуточного слоя между деревянным основанием и дальнейшей отделкой позволяет избежать рисков повреждения материалов.
Аквапанель применяют во всех типах бани (русская баня, сауна, хаммам). Хаммамы, как правило, в своей планировке имеют изгибы и закругленные формы. Аквапанель гнется в сухом виде и позволяет создавать криволинейные поверхности с радиусом сгиба до 1 м и куполообразные формы.
Евгений Спиряков, операционный директор направления «Полимерные мембраны и PIR» ТЕХНОНИКОЛЬ:
— Наибольшее распространение в России получили бани из дерева, это традиционный материал. Но сейчас все чаще стали рассматривать и кирпич — он помогает создать стильное, современно выглядящее строение, при этом повышает уровень пожарной безопасности.
Это особенно важно при плотной застройке, как это бывает в большинстве коттеджных поселков и СНТ.
При выборе любого материала особое значение имеет теплоизоляция. Именно она отвечает за то, как парная держит пар, и влияет на пожаробезопасность. В России сейчас представлен широкий спектр теплоизоляции, но некоторые виды для утепления бани не подходят. Важно выбирать негорючие материалы, которые не распространяют пламя. Также утеплитель не должен выделять в воздух вредные вещества под воздействием высоких температур, должен быть устойчивым к влаге, плесени и грибкам.
Кроме того, желательно, чтобы он отличался низкой теплопроводностью. Именно эта характеристика отвечает за теплоизолирующие свойства. Чем теплопроводность ниже, тем меньшего слоя утеплителя будет достаточно для эффективной работы парной. Этим требованиям отвечает теплоизоляция на основе пенополиизоцианурата — PIR, материал прошел испытания в Институте химии растворов РАН. Безопасность материала подтверждена и одним из самых строгих европейских сертификатов по эмиссии вредных веществ М1.
Кроме того, PIR- плита с двух сторон обложена фольгой толщиной в 40 микрон. Она выполняет не только роль пароизоляции, но и имеет выраженный отражающий эффект.
7 рекомендаций как сделать планировку сауны [+ФОТО]
Любое строительство сауны или бани начинается с планировки, которая включает в себя ее расположение на участке или в доме, а также план помещений в самой бане. Поэтому к выполнению планировки следует подойти очень серьезно, так как именно от нее зависит, какой именно получится конструкция и насколько комфортной будет сауна. Далее мы рассмотрим основные правила и особенности ее планирования.
3D проект финской бани с планировкой
Планировка расположения сауны на участке
При выборе места для строительства сауны следует учитывать следующие моменты:
- Самым оптимальным вариантом планировки сауны на участке является ее возведение возле водоемов, на расстоянии 15-20 метров от берега. Такое расположение обеспечивает сауну неограниченным источником воды, а также возможностью контрастного омовения.
Если водоема поблизости нет, то можно организовать искусственный пруд либо установить деревянную бочку-купальню. - Участок не должен просматриваться от дороги и соседей. Если такого места на участке нет, то сауну можно будет оградить живой изгородью из плетущихся растений или кустарников. Это позволит скрыться от посторонних глаз, чтобы ничего не мешало насладиться банными процедурами в полной мере.
- Кроме того, имеется еще один нюанс планировки бани на участке – в целях пожарной безопасности, строение должно располагаться не ближе чем на 15 метров от жилого дома. Естественно, нельзя пристраивать баню к хозяйственным постройкам и к самому дому.
Финская сауна на берегу водоема
Планировка финской бани
Как уже говорилось выше, прежде чем начать строительство, необходимо выполнить план сауны, который позволит посчитать необходимое количество стройматериала и его стоимость. Кроме того, план – это своего рода инструкция проведению строительства.
Сауна в классическом варианте представляет собой прямоугольное здание, которое поделено на три отсека:
- Раздевалку, которая выполняет функцию предбанника и места для отдыха;
- Моечное отделение;
- Парилку.

Все существующие планировки бань и саун можно условно поделить на два типа:
- Продольное расположение помещений;
- Смежное расположение помещений.
При продольном размещении, баня имеет прямоугольную «вытянутую» форму, а помещения располагаются один за другим. При смежном расположении, строение имеет квадратную или близкую к квадратной форму.
Продольная планировка финской бани
Оптимальным вариантом является планировка финской бани размером 6х6 метров, поэтому пользуется большой популярностью. Если вы только приобрели загородный участок, то такая финская баня может стать первым капитальным строением и на время заменить строительство основного дома, на которое уйдет гораздо больше времени.
Такая планировка позволяет не только комфортно попариться и помыться, но и отдохнуть в просторной комнате после банных процедур. Кроме того мансардный этаж позволяет организовать там даже бильярдную комнату или тренажерный зал.
К недостаткам этой планировки является относительно высокая цена постройки.
Но зато, можно существенно сэкономить время на строительство, используя сухой пиломатериал.
Совет!
Размер парной следует выбирать в зависимости от предполагаемого количества парящихся, из расчета – полтора квадратных метра на одного парящегося.
Планировка перегородок
Как правило, сауны бывают двух типов:
- Одноэтажные;
- С мансардным этажом.
Совет!
Внутренние перегородки следует возводить из того же материала, что и наружные стены, в этом случае они послужат дополнительной опорой и будут выполнять гидроизолирующую функцию.
Планировка — сауна с мансардой 6 на 6 метров
Если рассмотреть проект сауны 6 на 6 метров, то сама баня обладает размером 4х6 метров, остальную площадь занимает веранда или терраса.
Внутренние помещения включают в себя:
- Комнату отдыха площадью 8-9 квадратных метров;
- Помывочную комнату площадью в 4 квадратных метра;
- Саму парную площадью около 5 квадратных метров.

Если строение будет иметь мансардный этаж, то лестницу лучше всего сделать в комнате отдыха, чтобы исключить попадание влаги на второй этаж.
Обратите внимание!
Лестницу на мансардный этаж не стоит устанавливать на террасе, особенно, если баня будет использоваться зимой, так как каждый раз выходить на холод будет неприятно.
Кирпичная печь
Печь
При планировке сауны, необходимо определиться с конструкцией печи и ее расположением. Многие хозяева оказываются перед выбором — возвести кирпичную или установить металлическую печь-каменку.
При выборе следует иметь в виду:
- Кирпичная печь дольше разогревается, но зато хорошо держит тепло и может прогреть большое помещение.
- Металлическая печь легко устанавливается, быстро разогревается, но так же быстро остывает. Кроме того, такая каменка сможет отопить лишь небольшое помещение – моечную и парилку.
Поэтому, если вы хотите париться круглый год, то однозначно надо отдать предпочтение кирпичной печи.
Сама каменка устанавливается в парной, но ее лицевая часть с топкой выводится в комнату отдыха.
Устройство металлической каменки
Предложенная планировка является наиболее классическим вариантов, но при желании, конечно же, можно изменить размеры помещений и их расположение.
Финские дома с сауной
Если у вас нет возможности строить отдельно дом и сауну, то отличным выходом из этой ситуации являются проекты финских домов с сауной. Как правило, строение представляет собой одно- или двухэтажное здание, которое имеет собственный стиль и неповторимый дизайн.
На фото — деревянный финский дом
Надо сказать, что финские архитекторы уделяют много времени расположению комнат, поэтому они продуманы до мелочей. Кроме того, планировка финских домов с сауной отличается просторностью помещений. Практически в каждом доме кухня совмещена с гостиной, а на втором этаже расположено большое помещение для встреч или отдыха.
Ещё одной особенностью деревянных финских домов является проектирование террас, которые имеются практически в каждом доме.
В домах со вторым этажом или мансардой обязательно присутствует балкон.
Совет!
Финские дома следует собирать из отборной древесины, которой уже более 100 лет.
Связано это с тем, что более молодые деревья имеют тонкий ствол.
Однако, главной отличительной особенностью такого дома, конечно же, является наличие финской бани. Без этого просто немыслима жизнь настоящего финна.
План финской бани с сауной
Вывод
Разобравшись в нюансах планирования саун и бань, составить план своими руками не составит труда. При этом вы сможете рассчитать стоимость проекта и избежите многих проблем во время самого строительства. При желании, можно упростить задачу и взять за основу готовый план, к примеру, предложенный выше.
Дополнительную информацию по данной теме можно получить из видео в этой статье.
Добавить в избранное Версия для печати
Поделитесь:
Рейтинг статьи:
Статьи по теме
Все материалы по теме
проект планировки и устройство сауны подвале частного дома, как сделать конструкцию
Несколько советов для проектирования бани с террасой
Планируя местоположение объекта, стоит учитывать направление ветров в данном климате.
Нужно террасу выполнять таким образом, чтобы основное строение закрывало ее от ветра.
Важно! Этот же показатель важен, если на террасе планируется располагать барбекю, чтобы дым от него не шел на тех, кто находится внутри. Заранее определяется цель проектирования
Если хочется создать тень на время летнего зноя, то лучше отказаться от расположения конструкции на южной стороне. Если же она строится для принятия солнечных ванн, то южная сторона – отличное решение
Заранее определяется цель проектирования. Если хочется создать тень на время летнего зноя, то лучше отказаться от расположения конструкции на южной стороне. Если же она строится для принятия солнечных ванн, то южная сторона – отличное решение.
Классическая терраса лишена кровли, но для практичности все-таки стоит ее возвести, так как погода непредсказуема, и осадки могут помешать полноценному отдыху.
Если предполагается возвести барбекю, то нужно поддерживать меры безопасности. Проекты бань с террасой и барбекю предполагают использование для строительства печи только огнеупорного кирпича.
При этом часть пола и стен около нее выкладывается материалом, который неспособен к возгоранию.
Важно! Если баня с террасой будет использоваться круглый год, то заранее в нее проводится отопление, а терраса остекляется. Монтаж барбекю производят только в стороне от основного места отдыха, в отдельной зоне, которая должна быть приспособлена для приготовления пищи и оснащена всем необходимым
Монтаж барбекю производят только в стороне от основного места отдыха, в отдельной зоне, которая должна быть приспособлена для приготовления пищи и оснащена всем необходимым.
Внутренняя отделка и зонирование пространства
Прогресс и фантазия дизайнеров не стоят на месте, поэтому всё чаще можно встретить и бани с бассейном, и с купелью, и двухэтажные, и одноэтажные, с туалетом и ванной. Ограничений практически нет
Хотя, конечно, электронику и технику рядом с паровыми помещениями следует располагать с осторожностью
Считается, что на одного человека в традиционной русской парилке должно приходиться около 5-6 квадратных метров.
Соответственно, её размер следует высчитывать индивидуально. Однако не советуем планировать баню более чем для 15 человек. Помните, что лучше всего, когда парилка имеет прямой выход в предбанник.
С учётом проведённой канализации, прямо рядом с парилкой можно обустроить туалет или душевую комнату (по-другому именуемую моечной). Далеко не каждый, особенно в зимнее время, рискнёт после бани нырнуть в ледяной прорубь или речку. Многие предпочтут просто окунуться в ванную или спокойно постоять под душем.
В бане должна присутствовать и некоторая мебель. Конечно, вам понадобятся лавки (лучше переносные) или двухъярусные полки для комфортного лежания. В этот же набор входят баки с горячей водой (например, на подогреве от печи) и водоотвод. Для предбанника лучше прикупить комплект из стола и пары скамей или стульев, а также раковину или мойку, держатели для полотенец, вешалку.
Что же касается отделки, то наиболее популярным вариантом считается дерево. Это экологичный и полностью безопасный материал, который прочно закрепился в представлении россиян о традиционной бане
Очень важно, чтобы сама вагонка была качественная.
Пересушенная будет набухать во время водных процедур, а сырая после усушки образует щели
Для парилки совершенно не подходят хвойные породы деревьев, так как они сильно нагреваются.
Для парилки зачастую выбирают лиственные породы: берёза, ясень, липа, осина, лиственница. Они не накаляются от высокой температуры и не выделяют какого-либо запаха. Им не страшен грибок, они быстро сохнут и не подвержены гниению. Особняком держится ясень (из-за сочетания внешней красоты и хороших характеристик), а также светло-коричневая ольха, которая обладает идеально ровной поверхностью и не впитывает посторонних запахов.
Моечную или предбанник вполне можно отделать и хвойными породами. Идеально подойдёт сосна или еловая вагонка. Температура здесь не настолько высока, чтобы дерево начало выделять смолы, но достаточна, чтобы хвойный аромат радовал душу, успокаивал. Также фитонциды, выделяемые вместе с запахом, оздоровительно влияют на человека: повышают сопротивляемость к инфекционным заболеваниям.
Поэтому такая баня имеет вдвойне полезный результат. К слову, отделка моечной вообще каких-либо ограничений не имеет: стены могут быть и из гипсокартона, и из ПВХ, и из плитки.
Для комнаты отдыха идеальным вариантом является сосна. Во-первых, ее палитра варьируется от бледно-желтых до красноватых оттенков, а, во-вторых, она доступна везде и её легко обрабатывать, красить, полировать. Рисунок сосны вполне подходит в качестве декоративного, а со временем эта древесина становится только красивее.
Также здесь подойдёт и ель. Работать с ней чуть сложнее. Если сосна фактически идеально гладкая, то ель имеет достаточное количество сучков. Обрабатывать её также сложнее, но смолы в себе она содержит меньше, что делает её чуть более безопасной.
Универсальный вариант (и для моечной, и для парилки, и для любых других комнат) – это белый или кавказский дуб. Благодаря большому количеству дубильных веществ, он не теряет своей прочности даже при воздействии на него высоких температур и влажности.
До того как начать обрабатывать дерево, его нужно занести в баню и оставить там (как минимум на сутки). Это называется акклиматизацией материала, и нужно для того, чтобы дерево привыкло к температуре и не изменило свои свойства уже после отделки.
Полы, по аналогии со стенами, можно сделать деревянными. Также не запрещается использовать бетон или керамику. А вот искусственные материалы использовать категорически нельзя. Они имеют свойства выделять при нагревании не самые полезные для человека вещества. Кстати, вы можете установить в бане систему теплого пола. Конечно, не в парилке, а, например, в комнате отдыха или предбаннике.
Не стоит экономить на внутренней отделке – она несёт достаточно важную функцию. Именно от неё зависит, сколько баня будет служить, и именно она оберегает вас от ожогов, утепляет и гидроизолирует помещение. Помимо всего прочего, внутренняя отделка играет и декоративную роль, а выделение целебных запахов положительно влияет на ваше здоровье.
Какой дизайн предпочесть?
Дизайн бани внутри может быть очень разным, как вы уже могли убедиться по фото выше — и с комнатой отдыха все точно так же. В конечном итоге, характер отделки и оформление интерьера целиком и полностью являются прерогативой хозяев. Которые чаще всего идут на поводу у общепринятой практики, стоит заметить. Поэтому классический русский стиль — это то, что вероятнее всего можно увидеть в подавляющем большинстве современных бань.
Между тем, пространство вариантов не такое узкое — и вы вполне можете выбрать для себя действительно что-то неординарное и интересное. А мы вам в этом поможем. Держите подборку фото с лучшими дизайнами комнаты отдыха в бане.
Оборудование
В последнюю очередь устанавливается небольшая электрокаменная печь, которая крепится к стене на высоте 20 см от пола. Изготовление небольшой деревянной решетки, ограждающей горячую поверхность каменки, будет наилучшим решением для безопасности в кабинке. Однако древесина такой решетки обязательно должна находиться не ближе, чем в 50 мм от нагревателя.
Следующим этапом монтируются розетки и светодиодные лампы, которые тоже можно оградить небольшой деревянной решеткой. На нагревательный элемент укладываются круглые камни с гладкой поверхностью. Камни необходимо заранее вымыть и просушить. Укладывается диабаз, порфирит, талькохлорит или жадеит так, чтобы не оставалось просветов между камушками.
Проект бани с террасой
При планировании бани возможны вариации, ведь все делается на свой вкус. Одним из вариантов размещения комнаты отдыха является ее вынесение из проекта на улицу. Вернее, это будет уже не место, а небольшая территория, украшенная цветами или другими элементами искусственного ландшафта. Это позволит освободить пространство в самой бане и предусмотреть действительно оригинальное место для отдыха между приемом воздушных процедур в парной.
Проект с террасой хорошо подойдет тем, кто предпочитает отдых на природе и ценит каждый кусочек своего ландшафта. При этом площадь, занимаемую парильным и моечным отделениями, можно незначительно, но уменьшить, лавируя размерами по предпочтениям.
В этом проекте роль зоны отдыха играет открытая внешняя терраса. Внутреннее пространство здесь делится только на парную и комнату отдыха. Моечная оборудуется в самой парильне или не предусматривается вовсе. Планировка имеет следующие габариты:
- парильня имеет размеры 2000 х 3000 миллиметров;
- на комнату отдыха остается 2800 х 3000 миллиметров;
- толщина стен – 200 миллиметров;
- ширина террасы может регулироваться по желанию владельца участка. Мы предлагаем следующие параметры – 5000 х 1900 миллиметров.
Этот вариант может возводиться как в качестве самостоятельного строения, так и пристройки к дому. В таком случае в комнате отдыха желательно оборудовать моечную, а зоной отдыха сделать внутренние жилые помещения жилья.
Планировка пространства
Каждый свободный метр бани размером 4х3 должен использоваться рационально. Помимо парной и предбанника тут может найтись место еще и для душевой. Главное – предварительно начертить план и убедиться в том, что все комнаты действительно будут удобными и функциональными.
Каждый из отсеков имеет свои особенности планировки:
Парная
Основная часть любой бани – это, конечно же, парная. Под нее не обязательно выделять слишком много места. Если хочется, чтобы баня была более функциональной, и нашлось место еще для чего-то, кроме парилки, то можно ограничиться пространством в полтора на два метра. В таком крохотном помещении хватит места для расположения одного человека на полке. Тут же хватит свободных метров и под небольшую печку или котел для обогрева помещения.
Комната отдыха
Еще одна важная часть помещения – это комната отдыха. Очень выгодно делить помещение на несколько таких зон. Делается все это для того, чтобы во второй комнате можно было спокойно отдыхать, не страдая от жары.
Предбанник
Эта комната предназначена сразу для нескольких целей. Тут хранятся дрова или твердое топливо. Это же помещение служит и входом в баню. Также оно может стать раздевалкой и местом, где будут храниться все вещи, пока хозяева и гости находятся в парной.
Помывочная
Душевая комната или же помывочная – это тоже очень важное помещение. Оно также должно отделяться от остальных
В моечной, как правило, температура в разы ниже, чем в парилке. Также важно сделать ее максимально закрытой. Ведь принятие душа – это скрытный процесс, во время которого не хочется ловить на себе взгляды окружающих.
Поскольку моечная обогревается отдельно, то ее не стоит делать большой. Да и для других комнат место сохранить тоже нужно. Достаточно, чтобы одному человеку было удобно принять душ, не натыкаясь на стены и не испытывая дискомфорта. В некоторых случаях хватает комнаты размером в половину квадратных метров.
Стоит продумать все максимально тщательно. Очень важна естественная вентиляция и хорошее отопление. В случае такой планировки комната для отдыха может быть вынесена либо на мансарду, либо в дом. Таким выносом помещения можно решить проблему нехватки места.
Бассейн
Поскольку баня небольших размеров – это совсем не то помещение, где хватит места и для комфортной парилки, и для огромного бассейна, то последний приходится располагать не внутри, а снаружи.
При этом всегда можно сделать бассейн защищенным от непогоды, купив обыкновенный навес. Также стоит отметить, что сейчас особой популярностью пользуются бассейны каскадного типа. Это интересная конструкция, в которой несколько частей бассейна располагаются одна над другой.
Из-за этого вода в них может быть разной температуры. Например, в одной части бассейна горячей, а в противоположном конце – почти ледяной. Придумана такая конструкция не для плаванья, а для интересного отдыха и для закалки своего организма.
С чего начинать – определяемся с типом бани
По типу конструкции выделяют следующие типы бань:
- Встроенная – это совмещенная баня с домом, когда внутри дома выделяются помещения под парилку и моечную. В этом случае гостиная служит комнатой отдыха;
- Отдельно стоящая – полноценная баня, выстроенная в виде отдельного здания с наличием всех необходимых помещений (парилка, моечная, предбанник и/или комната отдыха).
Зона отдыха может быть вынесена на террасу, мансарду, или в беседку с барбекю. - Пристройка – небольшая по размерам баня, пристроенная к одной из стен дома.
- Экономный вариант – маленькие бани с большой террасой или без, в основном выполняющие только функции парилки.
- Баня-палатка – тип мобильной бани, идеальный вариант для активного отдыха на природе.
Баня-палатка изнутриИсточник vatydu.sobitake.ru.net
Баня в два этажа
Двухэтажная баня – это, скорее больше жилое, чем оздоровительное здание, так как второй этаж и бо́льшая часть первого этажа практически всегда отводится под жизненно необходимые помещения, которые нужны и без наличия бани в хозяйстве. Очень редко оба этажа отдаются именно под помещения бани и все, что с ней может быть связано.
Второй этаж может строиться как отдельный полноценный этаж, как мансарда или как жилое чердачное помещение. В данном проекте это – мансарда, в которой будут отдыхать гости.
То есть, второй этаж бани служит гостевым домиком. Количество внутренних перегородок определяет, какие помещения вы будете планировать.
Это может быть одна или две спальни с комнатой отдыха, а может быть просто большой холл с диваном для сна и отдыха после бани. Но принимать гостей на несколько дней вовсе не обязательно, и в таком случае из второго этажа можно просто сделать игровую комнату с биллиардом или оборудовать чилаут с домашним кинотеатром.Двухэтажная баня 6 × 6 метров
Габариты парилки
На выбор габаритов парной влияют такие параметры:
- частота использования;
- количество отдыхающих;
- рост и другие индивидуальные особенности людей;
- размещение полок;
- дизайн оформления.
Потребности хозяев различаются. Кому-то хватает маленькой баньки из двух комнат, другим потребуется возвести двухэтажный банный комплекс для полноценного отдыха.
Размеры полок выбирать нужно исходя из положения приема процедур:
- Чтобы париться лежа, придется сделать длину полки 2 м.
При длине в 1,5 м отдыхающим придется лежать с полусогнутыми ногами. - По ширине полки от стены должны быть минимум 0,4 м. Этого хватит, чтобы сидеть было удобно.
- Чтобы ноги не касались пола, ширину увеличивают до 0,8 м.
- При конструкции полок в виде лежаков расстояние от стены делают в 1,5-1,8 м.
Внешняя и внутренняя отделка бани
Видео описание
Для наружной отделки применяют следующие отделочные материалы:
Материалы для утепления, пароизоляция
Наружное утепление бань требуется при наличии круглогодичного проживания в ней, то есть при строительстве дома и бани под одной крышей. Если же баня представляет собой отдельно стоящее здание, и используется строго по назначению, то проводится только внутреннее утепление.
При строительстве каркасной бани, утепление уже заложено внутрь конструкции. Во всех других случаях необходимо проводить монтаж утеплителя, чаще всего используют минеральную вату.
Пароизоляция проводится для защиты утеплителя и деревянных конструкций здания. Без нее утеплитель со временем придет в негодность, дерево напитается влагой и деформируется.
Отделка стен с утеплениемИсточник parki48.ru
Устройство канализации и пола
Пол в бане может быть двух видов: деревянный и бетонный. Деревянный пол в предбаннике делают сплошным, утепленным, в парилке и моечной – проливным, со сбором воды стекающей между досками пола.
Алгоритм монтажа утепленного пола:
- Установка лаг.
- Монтаж чернового пола.
- Закрепление пароизоляции.
- Укладка утеплителя.
- Монтаж гидроизоляции.
- Монтаж чистового пола.
Проливной пол имеет свои хитрости и трудности в монтаже – правильно сделать его самостоятельно практически невозможно, особенно не имея навыков строительства.
Сбор воды с поверхности проливного полаИсточник beton-stroyka.ru
Бетонный пол делают под уклоном, для сбора воды в одном месте, где монтируется канализационное отверстие для вывода воды из бани. Чтобы бетон не намокал после каждого пользования баней, его облицовывают керамической плиткой. Чтобы не было холодно ногам, при ходьбе босиком, применяют деревянные решетки.
>Бетонный пол, облицованный плиткойИсточник mdv63.ru
Устройство крыши
Независимо от типа крыши и кровельного материала проводится утепление и гидроизоляция потолка, иначе пары, поднимаясь на чердак, будут конденсироваться на балках кровли, постепенно разрушая их.
Тип крыши зависит от местности и технических параметров строения:
- Двухскатная высокая крыша используется при строительстве бани в густо застроенных поселках, где влияние ветров на кровлю будет минимальным.
- При строительстве бани в степных районах, подверженных обдуву сильного ветра, уклон крыши делается минимальным.

- Кровлю для бани-пристройки делают односкатной.
Видео описание
Несколько интересных проектов на видео:
Экономварианты
Маленькие бани для дачи экономят место на приусадебном участке, сочетая в себе все характеристики традиционной бани. Отлично подойдут как временные строения, когда на строительство большой бани нет средств, а попариться хочется уже сейчас.
Экономбаня обшитая имитацией брусаИсточник bane.guru
Каркасная баняИсточник line-home.ru
Баня 2х3 м обшитая сайдингомИсточник plotnic.ucoz.ru
Одноэтажные бани
Одноэтажные бани с террасой популярны тем, что зону отдыха в весенне-летний период можно переносить на свежий воздух.
Компактная баня с вынесенной зоной отдыха на террасуИсточник market.sakh.com
Интересный вариант бани с террасойИсточник parki48.ru
Баня из оцилиндрованного дерева с террасойИсточник topfonpack.ru
Бани с мансардой
Для любителей отдохнуть большой компанией идеально подходят бани с мансардным этажом. Большая комната отдыха на первом этаже позволяет уместить достаточное количество гостей, а наличие спален на втором этаже избавит хозяев от вопроса – где уложить всех на ночлег.
Баня с мансардным этажом и двумя беседками на разных уровняхИсточник teremgrad35.com
Баня с мансардой и беседкой для барбекюИсточник www.domamo.ru
Нестандартные конструкции
Округлые линии – главная затея нестандартного интерьера баниИсточник archdaily.cn
Минибаня на колесахИсточник vw-bus.in.ua
Баня-луковица в ФинляндииИсточник termalfurdo.hu
Дачные бани становятся одним из главных атрибутов приусадебной застройки участка.
Благодаря экономным вариантам строительства маленьких бань, каждый сможет стать владельцем недорогой парилки, а любителям шумных компаний и активного отдыха подойдут варианты с наличием большой комнаты отдыха и террасы.
Строительные работы
Чтобы срок службы бани был длительным, при строительстве должны соблюдаться нормы и требования. Весь процесс состоит из нескольких этапов:
- Выбор места и разметка на участке.
- Приобретение строительных материалов.
- Строительство фундамента.
- Возведение стен.
- Установка дверей и окон.
- Монтаж крыши и кровли.
- Отделка помещений.
Выбор месторасположения бани
От правильности выбора места для строительства зависит удобство пользования и срок службы парной. Существует несколько особенностей:
- Баня своими руками должна строиться на возвышенности. Если ее нет, то рекомендуется возвести искусственную возвышенность. В таком случае требуется год для оседания почвы.

- Водопровод. Оптимальный вариант, позволяющий быстро набирать воду в парную, – скважина.
- Подвоз и хранение топливных материалов. Место для хранения следует выбрать еще на стадии планирования.
Выбор материала для фундамента, стен и крыши
Фундамент следует устраивать с учетом строительного материала, выбранного для стен:
- Для бревенчатого, брусового и каркасного здания подходит свайный или столбчатый фундамент.
- Для более тяжелых строений из кирпича и блоков требуется ленточный.
В качестве кровельного материала можно использовать профлист или металлочерепицу.
Разметка и фундамент
Когда схема бани по чертежам готова, можно приступать к разметке на участке. Для этого в точном соответствии с проектом по углам устанавливают колышки с натянутой веревкой. Если планируется монтаж свайного или столбчатого фундамента, то в этом случае необходимо установить колышки во всех местах, где будут стоять опоры.
После установки опалубки траншея заполняется бетоном и элементами армирования.
Профессионалы предупреждают: при таких размерах бани с комнатой отдыха представляют собой пятистенок. По этой причине перегородку закладывают еще на стадии фундамента.
Возведение стен. Окна и двери
Первый этап кирпичной кладки, пеноблоков или венец (при возведении здания из бревна и бруса) считается крайне важным. От правильности его выполнения зависит весь дальнейший ход работы. После окончания кладки первого ряда ее стоит проверить с помощью уровня. Если присутствует перекос, то лучше переделывать сразу. Второй ряд начинают класть с угла.
Уже на этом этапе отмечают место расположения окон и дверных проемов. При этом нужно помнить: рамы и двери подлежат установке только в готовое здание. Эти элементы для парных лучше всего выполнять из древесины.
Крыша бани
После возведения стен необходим монтаж кровли. С этой работой также можно справиться без привлечения специалистов:
- После строительства стен укладывают потолочные балки, которые перекрываются досками.

- Следующий этап – монтаж стропильной системы и обрешетки.
- Кровля может быть представлена профлистом или черепицей.
- Заключительный этап монтажа включает в себя установку слива.
Полы
Полы в русской бане монтируют в несколько этапов:
- Черновой пол.
- Слой гидроизоляции. С его помощью блокируют попадание влаги снизу.
- Утеплитель. Этот слой требуется во всех помещениях, кроме моечной и парной. В этом качестве можно использовать минеральную вату.
- Поверх теплоизоляции укладывается еще 1 слой гидро- и пароизолятора.
- Заключительный этап – укладка чистового пола.
Основные помещения парильни
Есть различные планы бань. Для лучшего их понимания, а также выбора такого проекта, который будет отвечать всем требованиям и индивидуальным пожеланиям, рекомендуется знать, из каких основных помещений состоит классическая парильня. Их три:
- Предбанник (или раздевалка)
- Моечная
- Парная
В бане должны быть скамья, полок, печь, вешалка.
Иногда в них размещают шкафы, столы, лежанки. В зависимости от размеров основных помещений и их расположения относительно друг друга, строят различные виды парилен. Так, в плане может быть предусмотрено совмещение парной и моечной. Парильня может быть рассчитана на два человека (мини-баня) или на большую семью, состоящую из шести и более человек.
Моечная комната одновременно может быть и душевой. В ней располагаются ванночки для принятия душа, скамейки и емкости с водой. Также иногда в этой комнате устанавливают стиральную машину. Минимальный размер ее рассчитывается в зависимости от количества одновременно моющихся человек: на каждого принимающего водные процедуры должно приходиться от 2-3 м² площади. От парной комната отделяется перегородкой с дверью. Это позволяет при необходимости регулировать в комнате уровень влажности и температуру.
Парная – основное помещение каждой бани, от устройства которого зависит эффективность всех банных процедур. Она должна быть комфортной, безопасной.
Воздух и тепло в ней должны распространяться равномерно, а температура должна быть достаточно высокой. Дверь в эту комнату делают с низкой коробкой и высоким порогом, так как такая ее конструкция позволяет максимально сохранить тепло в парильной комнате. При этом всегда в бане должна быть организована достаточная вентиляция, проходящая через вентиляционный канал в печи либо через форточку.
Основные типы бань
Наиболее часто используемые планы бань можно разделить на несколько групп:
- Бани с тремя основными помещениями
- Бани с совмещенной моечной и парильной комнатой
- Семейные бани
Варианты, которые имеют три отдельных основных помещения – моечную, предбанник и парильню – могут быть рассчитаны на двух или трех человек. Для их отопления используется печь-каменка. В плане бани небольшого размера вместо скамьи используют табуретки. В парильне средних размеров печь установлена так, что топочное отверстие расположено в моечной комнате. А в наибольшей по площади бане печку можно установить в предбаннике, где также поместятся шкафы для одежды и столы.
Вариант с совмещенной с парилкой моечной комнатой является мини-баней. Такой план бани из кирпича или дерева считается не совсем удобным. В помещении в этом случае температура воздуха будет ниже, а влажность – выше, чем в «избушке» с отдельными моечной и парильной. Выбор такого проекта строительства оправдан в том случае, когда размеры строения должны быть максимально уменьшены. Для комфортной эксплуатации бани можно воспользоваться советами специалистов для уменьшения влажности воздуха:
- Воду необходимо использовать умеренно, стараясь не разбрызгивать ее
- Желательно не устанавливать в бане душ
- Печь в этом случае должна иметь достаточно большую теплотворную мощность
И третья группа – это семейные , рассчитанные на 4-8 человек. В них может быть много помещений, помимо основных комнат: душевая, комната отдыха, терраса. При строительстве бань по такому плану есть определенные требования для устройства моечной комнаты, предбанника, парной.
Определяясь с планом бани, следует учесть все особенности конструкции этого здания, а также возможности и потребности семьи.
Как подобрать печь исходя из габаритов бани
От мощности печи зависит нагрев помещения до нужной температуры и качество выработанного пара. Для газовых и дровяных печей этот фактор не критичен, поскольку они и так хорошо прогревают комнату. А вот неправильный выбор мощности электрического прибора приведет к тому, что зимой в парилке будет холодно.
Даже небольшая металлическая печь обогреет комнату объемом 18 куб. м, нагреет до 70 л воды.
В маленьких парных принято ставить печи из металла. Они компактные, быстро набирают температуру.
Чтобы улучшить длительность теплоотдачи металлическую печь облицовывают кирпичом.
Для классической русской бани с большой парной всегда актуальной остается кирпичная печь.
Особенности
Домашняя сауна представляет собой деревянную кабину с хорошей тепло- и пароизоляцией, а обладатели частных домов могут организовать вместительную сауну в собственном подвале. Перед тем как начать любые строительные работы, необходимо разработать проект планировки, произвести все необходимые расчеты и чертежи.
Проект чаще всего составляется при постройке целого здания, поэтому при переделке одной из уже существующих комнат дома или квартиры достаточно будет составить эскиз. Также существует вариант покупки уже готовой кабинки, в таком случае можно просто использовать инструкцию, прилагающуюся к ней.
Печки для бани с раздельной топкой, мойкой, парилкой
Выше мы уже пытались рассказать вкратце читателю о том, что увеличение размера бани с неизбежностью приводит к необходимости решения вопроса об отоплении помещений помимо парилки.
О том, каким образом рассчитывается мощность печи под известную кубатуру парного помещения можно узнать здесь. Однако там речь идет об адекватном задаче отоплении именно парного помещения.
Если вывести топку в комнату отдыха, где она будет выполнять функцию камина, часть тепла будет передаваться комнате отдыха. Будет ли этого достаточно – определяется только опытным путем, потому что имеет значение и конкретная температура за окном, и мощность печи, и кубатура комнаты отдыха.
А ведь у нас есть еще мыльная – как быть с ней? Можно вывести одну из сторон печки, но так обычно поступают с кирпичными печами, хотя можно поэкспериментировать с кирпичным обкладом металлической печки.
Другой вариант обогрева мыльной – вынести бак, который греет печь, в помывочную, тогда бак будет выполнять функцию радиатора.
Еще один вариант – обогреватели или теплый пол. Вы не так много времени проводите в бане, поэтому работа обогревателей не пробьет дыры в бюджете.
Можно еще вывести нагрев горячей воды в радиаторы, то есть создать автономную систему отопления в бане, но нужно помнить, что нагрев воды отбирает тепло у печки, поэтому ее мощность падает. А ведь есть еще лето, когда отопление не нужно.
Поэтому печка должна быть такая, чтобы вы могли регулировать ее мощность. Это реально для газовых печей, электрических, но с дровяными придется повозиться – в том числе и с кирпичными.
Если вы интересуетесь, какие есть печи для бани – русской или финской – полистайте наш раздел, посвященный печкам.
Там много полезной информации и про печки для бани с раздельной топкой, мойкой, парилкой..
Традиционно русские бани строили из дерева. В наше время всё чаще для таких целей используют огнестойкий кирпич, который более безопасен, при этом не менее экологичен. Данный строительный материал удобен в применении и позволяет воплотить в жизнь проект бани любой сложности. Перед началом строительства кирпичной бани необходимо ознакомиться с преимуществами и недостатками самого материала и строения из него.
Огнестойкий кирпич стоит дороже древесины, но и плюсов у него немало, а именно:
- высокий уровень пожарной безопасности – по степени огнеустойчивости кирпич значительно превосходит дерево. Огнеупорный кирпич отлично противостоит пожару, чего не скажешь о дереве;
- долговечность – баня, построенная из кирпича, может прослужить более 50 лет;
- экологичность – при изготовлении кирпича используется натуральное, природное сырьё, материал не представляет опасности для здоровья человека;
- простота в эксплуатации – не требуется особого ухода за кирпичным фасадом бани;
- применение кирпича позволит сооружать бани разнообразных форм и размеров, воплощать даже сложнейшие архитектурные проекты, использовать различные виды внутренней и наружной отделки.
Прочность постройки позволяет экспериментировать с внутренней планировкой и формой крыши.
Минусы бань из кирпича являются следующими:
- высокая теплоёмкость – чтобы обогреть кирпичную парную уйдёт значительно больше времени, чем аналогичное деревянное строение;
- повышенная гигроскопичность – для избегания образования сырости в помещении обязательно следует выполнить комплекс гидро-, паро- и теплоизоляционных работ;
- стоимость строительного материала – огнестойкий кирпич довольно дорогой материал, следовательно, и строительство бани обойдётся недёшево;
- необходимость сооружения ленточного, глубокого фундамента и проведения отделочных работ;
- для обеспечения теплосбережения потребуется большая толщина стен.
Планировка маленькой бани с мойкой и парилкой
Правильно, по уму устроенная маленькая баня ничуть не уступит по комфорту бо́льшим по масштабу. Единственно, конечно, если все делать по минимуму, то и париться в ней одновременно сможет только 1-2 человека.
Но иногда именно это и есть то, что нужно.
Когда размер помещения невелик, встает вопрос о том, рентабельно ли будет делить его дополнительно перегородкой, делая баню с парилкой и мойкой отдельно. Но и для самых крохотных вариантов равно встречаются бани с помывочной и парилкой как вместе, так и раздельно. Поэтому дадим оба варианта.
3х3, мойка и парилка вместе
Тут надо определиться, как вы планируете использовать второе помещение, которое является естественным «тамбуром» между совмещенной моечной и парилкой, и улицей. Если есть желание поставить какой-никакой диванчик и столик, то общую площадь лучше делить поровну (см. план). А если это будет всего лишь предбанник, что-то вроде прихожки, где можно раздеться, то его величину можно сократить до приемлемого минимума.
Планировка (план) бани 3х3 мойка и парилка вместе.
Обратите внимание на то, что печка в такой маленькой парной должна быть соответствующей мощности, чтобы не перегревать ее. А дальше вас ждет довольно трудноразрешимое противоречие
Дело в том, что сауна, она же «суховоздушка», как любят называть ее те, кто относится к ней негативно, предполагает низкую влажность – не более 15%.
В моечной же влажность обычно выше. Температура в сауне от 70 до 90 градусов (это в человеколюбивом варианте). Такая температура не будет комфортной для мытья.
Вы можете возразить, что и не собирались устраивать сауну, но проблема в том, что при таких габаритах у вас просто нет возможности сделать полноценную русскую баню, где печь должна быть либо кирпичной, либо в кирпичном/каменном обкладе, да еще с внутренней каменкой.
Вариант – либо хоть немного увеличить площадь парилки, чтобы сделать кирпичный обклад пусть для минимальной самодельной металлической печурки, либо воспользоваться генератором пара, чтобы париться как в нормальной русской бане, либо как-то приспособиться управлять печкой, чтобы во время мытья у вас была подходящая температура.
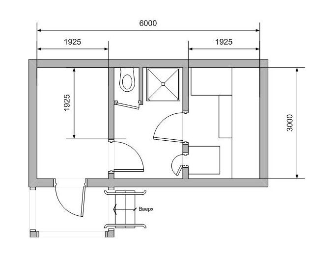
3х4 мойка и парилка отдельно
Что будет, если предыдущий план увеличить буквально на метр? У вас появится возможность разделить единое банно-моечное пространство на два отдельных помещения.
Планировка (план) бани 3х4 мойка и парилка отдельно.
Как видите, на мойку в этом случае выделяется не больше метра (а вы помните, да, что мы не берем в расчет толщину стен), зато парилка приобретает нормальные размеры, которые и при больших площадях всей бани редко сильно увеличиваются.
Опять же, заметьте, что при желании вы легко увеличите размеры парной за счет ширины комнаты отдыха. Если она – не более, чем предбанник, смело сокращайте ее размеры, чтобы выиграть в габаритах парной и моечной.
ВНИМАНИЕ! Помните, да, что дверь из парилки всегда открывается наружу, чтобы ее можно было выбить при необходимости. И всегда, если возможно, из парного помещения дверь ведет в помывочную, а не в другие комнаты.
Заключение
Баня даже с самой простой комнатой отдыха, к сожалению, все еще остается для многих неосуществимой мечтой ввиду очевидного дефицита свободной площади. Однако если вы можете себе позволить такое удовольствие, то, определенно, стоит приложить максимум усилий для того, чтобы ваш проект оказался оптимальным.
И если определенных знаний по оформлению интерьера вам не хватает, то всегда можно воспользоваться чужим опытом. Надеемся, что предложенные планы бань с выделенными помещениями под комнаты отдыха привели вас к каким-то конкретным выводам по поводу общего направления дизайна помещения. А если нет, то не беда: интересные идеи всегда где-то рядом, и возможно, что буквально завтра они посетят вас, подобно тому, как к поэтам внезапно приходит муза в тот момент, когда они уже отчаялись увидеть ее появление.
Фото: fb.ru, vk.com, www.stroy-podskazka.ru, forumhouse.ru.
Сауна на открытом воздухе: размер, пол, электричество?
Уличная сауна идеального размера
- Структура 8×12
- Сауна 6×8*
- Раздевалка 6×8
- Двойные скамейки с обеих сторон.
- Плита по центру задней стены.
- Каркасная конструкция 2×4
- Скат крыши 5/12
- Поставьте в сауне окно, если у вас хороший вид.
Я был в нескольких сотнях различных саун.
В каждой сауне я сидел на скамейке и размышлял о том, что хорошо, что плохо, а что безобразно в дизайне и конструкции каждой из них.
Некоторые сауны рассчитаны на двоих, и в них нельзя устроить хорошую вечеринку в сауне. Некоторые сауны больше, чем сауна для четырех человек, и для их нагрева требуется слишком много времени, они используют слишком много энергии или дров. Часто в слишком больших горячих комнатах сауны лойли (пар от брызг воды на камни в сауне) никогда не достигает вас. С божественными пропорциями, согласно грекам и подтвержденным Да Винчи, эта сауна размером 8 x 12 футов является моим окончательным планом сауны.
В этой конструкции сауны используются стандартные для Северной Америки размеры, что сводит к минимуму отходы при строительстве и позволяет полностью обрезать материал. В нем есть раздевалка, которая является важным пространством для уединения и наслаждения пивом или возлиянием между раундами, а также служит буфером для экстремальных температур в холодном климате.
Советы по созданию сауны на открытом воздухе
- Каркас внутренней стены из 2×2 вместо 2×4 – просто обложите стену фанерой 1/2″ для жесткости. Это не несущая стена, и дополнительные 1,5 дюйма, безусловно, ценны!
- Внутреннюю стену можно немного сдвинуть, чтобы увеличить сауну (скажем, внутренние размеры 6 футов 2 дюйма на 7 футов 4 дюйма). На скамье шириной 6 футов 2 дюйма могут разместиться четыре человека, и приятно лежать на скамейке в сауне. Удобная сауна и просторная раздевалка – вот цель. Собираете группу людей на вечеринку в сауне? Не парься! Щелкните здесь, чтобы получить уравнение вечеринки в сауне.
Обновление за март 2015 г.
3D-чертеж выше может быть не лучшим расположением печи. Благодаря комментарию Адама ниже, здесь, возможно, есть две разные конфигурации, каждая из которых предлагает следующие преимущества:
- больше места для стояния.
- меньше смотрят друг на друга на скамейке.
- меньше натыкаться на печку ой.

- асимметричный поток, лучше обсудить между обходами в саду, все в тумане, мокром от дождя
Цементная или деревянная основа?
Мой проект сауны 8×12 предполагает деревянный, а не бетонный пол.
- 2×6 краевых балок зеленого цвета.
- Балки зеленого пола 2×6 с шагом 16″ или 24″ по центру.
- 3/4″ черновой пол и вуаля.
Стивен, я знаю, что в вашей сауне есть цементная плита, и я построил пару саун с основанием из цементных плит (что можно назвать работой «отлично»), но я нахожу с деревянным основанием для вашей сауны на заднем дворе. это может быть:
- построено быстрее.
- легко выравнивается даже на дороге.
- двигается, если вы двигаетесь, или если ваш партнер начинает шевелиться.
- назвали «временным сооружением» для хмурых инспекторов строительных норм.
- легко выдвигается в качестве верхней части террасы (хотя я предпочитаю сланцевый внутренний дворик с сауной на открытом воздухе, чтобы в перерывах между походами в сауну можно было снова использовать каменную среду из камней для сауны).

Сауна на открытом воздухе с электричеством и без него
Как упоминалось в этом видео, многие деревенские сауны и сауны на берегу озера не имеют электричества. В Финляндии и повсюду многие традиционные сауны были построены до появления электричества. Также многие сауны строятся вдали от основного дома, хижины или коттеджа. Положительным моментом является то, что эта реальность помогает превратить строительство сауны в настоящий побег: шаг назад во времени и к простоте.
Солнечные и ветровые системы становятся все более доступными
Сауны, которые освещались исключительно свечами или фонарями, теперь могут включаться одним щелчком выключателя, как LM в Apollo 13.
Потратьте дополнительное время и деньги для проводки конструкции для освещения и розеток.
Простой светильник для обогрева помещения, пара настенных светильников в раздевалке и светильник для наружного патио — все, что нужно (сила трех). О, и поставить их всех на диммеры.
Можно подать питание в структуру, подключив электрическую вилку RV (дорого) или простую штепсельную вилку, спрятанную под конструкцией снаружи. Систему можно протестировать и включить для вечеринок в сауне, подключив удлинитель от ближайшего источника питания.
Проложите провод 12/2 от внешней вилки под нижней пластиной непосредственно к розетке GFI, затем подключите питание к источникам света и дополнительным розеткам. Это защищает всю вашу систему от скачков напряжения и несчастных случаев, например. когда пьяный гость думает, что твой тройной выключатель — это раковина.
Хороший коврик для ног в сауне на открытом воздухе
Вот простой коврик для ног, удобный для ног в сауне на открытом воздухе. Мне особенно нравится стоять босиком на этой кедровой циновке зимой. Снег, лед и холодная вода просачиваются в землю, и мои ноги остаются довольно сухими. Этот напольный коврик выглядит намного приятнее, чем пластиковый коврик. Просто вырвите несколько планок из кедровой доски или, возможно, купите несколько кедровых досок 1 × 1 или 2 × 2 на лесопилке, прикрепите пару поперечных опор внизу с помощью финишного гвоздезабивателя и вуаля.
СОВЕТЫ ПО ДИЗАЙНУ ДОМАШНЕЙ САУНЫ — LORI DENNIS
by Sara Plaisted | 22 января 2021 г. | Ванны, Бесплатный совет по дизайну интерьера, Зеленая жизнь, Тенденции дизайна интерьера, Без категорий, Велнес
Сауны снова на пике популярности, и нам это нравится! Имея так много преимуществ для здоровья, мы знаем, почему все больше людей просят нас создать для них такой образ жизни в их собственном доме. Существует множество вариантов, стилей и материалов на выбор, мы разберем их для вас здесь и дадим наш экспертный совет с лучшими Советы по дизайну домашней сауны .
Влажная и сухая сауны The Well в Нью-Йорке
ИСТОРИЯ САУНЫ Популярность саун с годами продолжает расти, и интересно подумать об их истории. На протяжении веков люди со всего мира использовали сауну для общего оздоровления, расслабления и социального счастья. Теперь, благодаря исследованиям, мы можем показать все преимущества, которые варьируются от сияющей кожи и мощного детоксикации до улучшения сна и укрепления вашей иммунной системы.
Культуры Скандинавии, Османской империи, Азии, Европы и коренных народов имеют свою версию горячей сауны, будь то баня, парилка или дровяная хижина. Основная цель состояла в том, чтобы попотеть и очистить его, по крайней мере, за 15 минут, 60, если вы серьезно.
Слово «сауна» происходит от слова «Спа-столица мира» в Финляндии и означает просто «небольшое помещение или здание, предназначенное для проведения сеансов сухого или влажного тепла».
Мы знаем, о чем вы думаете. Почему бы не использовать одну из небольших комнат вашего дома и не превратить ее в собственную сауну? Не волнуйтесь, мы вас прикроем.
В ЧЕМ ПРЕИМУЩЕСТВА САУНЫ?
Сауны приносят столько пользы для здоровья и хорошего самочувствия, что их можно ощутить уже через несколько минут. Если вы можете переносить комнатную температуру от 150 до 195 градусов, это того стоит, особенно если вы включите ее в свой еженедельный распорядок дня.
Повышение температуры тела улучшит ваш внешний вид и самочувствие, потому что оно увеличивает частоту пульса до темпа легкой пробежки и улучшает кровообращение, что помогает сжигать калории и заставляет вас чувствовать себя прекрасно.
Преимущества сауны:
Уменьшить стресс и увеличить расслабление
Детокс
Снижение артериального давления
Помощь в похудении
Увеличение энергии
повышает производительность мозга. Может помочь предотвратить болезнь Альцгеймера и деменцию
Улучшает кожу
Уменьшает воспаление
Укрепляет иммунную систему
Улучшение функции легких
Антидепрессант
Помогает заснуть
Снимает боль в суставах и способствует восстановлению мышц
Некоторые из наших первых опытов использования сауны, возможно, были в отеле во время путешествия или в соседнем спа-центре.
Места гостеприимства вдохновляют так много невероятных дизайнеров и часто имеют лучшие виды. Но почему бы не принести это ощущение здоровья и расслабления в свой дом?
Гранд-отель Тремеццо, озеро Комо, Италия
Спа-курорт Kimpton Seafire Resort Spa через журнал Inteior Design Magazine
Intercontinental Los Angeles Downtown Sauna
Jumeirah Port Soller – куполообразный хаммам на Майорке, Испания.
ПРЕИМУЩЕСТВА ДОМАШНЕЙ САУНЫ- Сокращение времени в пути и времени ожидания
- Удобно, когда у вас мало времени — быстрый побег за 15 минут сделает свое дело!
- Комфорт и легкость собственного дома
- Единовременное вложение денег
КАК ДОБАВИТЬ ДОМАШНЮЮ САУНУ ГДЕ НУЖНО ПОСТАВИТЬ САУНУ В ВАШЕМ ДОМЕ?
РАСПОЛОЖЕНИЕ – РАСПОЛОЖЕНИЕ – РАСПОЛОЖЕНИЕ
Не беспокойтесь, если вам кажется, что у вас нет места.
В зависимости от размера вашего дома или квартиры, всегда есть варианты.
- Выделенная сауна – Постройте или переоборудуйте пустую комнату или дополнительную ванную комнату в сауну.
- Домашний тренажерный зал или йога-студия – Выделите угол комнаты для сауны.
- Частичная ванная комната – Превратите ванную или душевую в сауну.
- Гардеробная — Если у вас есть более 5 футов на 5 футов, сауну можно сделать.
- Снаружи — Установите короб для сауны на террасе вашего патио, сбоку от дома или постройте его на заднем дворе.
- Гараж . Сможете ли вы освободить небольшую комнату, убрав кучу пожертвований или храня праздничные украшения?
Есть несколько вопросов, которые определят, сколько может стоить домашняя сауна, и это . .
.
Каков ваш бюджет и сколько места у вас есть для домашней сауны?
Цена сауны, изготовленной по индивидуальному заказу, может составлять от 20 000 до 100 000 долларов, в зависимости от того, сколько наворотов вы выберете. Если вы ищете готовый блок, который можно разместить на площади больше 5 × 5, цена может варьироваться от 1500 до 10 000 долларов.
СОВЕТ ПО ДИЗАЙНУ ДОМАШНЕЙ САУНЫ: ВЫБОР ТИПА ДОМАШНИХ САУН ДОМАШНЯЯ САУНА НА ЗАКАЗПланируйте построить или переоборудовать дополнительную комнату или часть большой ванной комнаты в вашем доме, где вы можете выделить место для сауны.
Замените стены стеклом, чтобы визуально расширить пространство.
Превратите душ или ванну в сауну.
ПРИОБРЕТЕНИЕ ЗАГОТОВЛЕННОГО ЯЩИКА ДЛЯ САУНЫ Не хватает места? В этой ванной комнате мы заменили ванну и душ сборной коробкой для сауны.
Даже большой шкаф будет дополнительным пространством для небольшого помещения.
НАСКОЛЬКО БОЛЬШОЙ БЛОК ДЛЯ САУНЫ?
Блоки для сауны бывают разных размеров. Единицы для 1 человека имеют высоту около 40 ″ x 44 ″ x 76 ″, а единицы для 5 человек — около 78 ″ x 42 ″ x 71 ″, где угловая единица имеет высоту около 71 ″ x 47 ″ x 77 ″.
ПОКРЫТИЕ ДЛЯ САУНЫОдеяло для сауны — лучшая альтернатива, когда у вас мало места или мало денег. Нам очень нравится это портативное одеяло для сауны дальнего инфракрасного диапазона Higher DOSE. Он прост в использовании, легко чистится и может легко храниться в шкафу или под кроватью. Дополнительным бонусом является то, что это одеяло изготовлено из кристаллов магнитной терапии, древесного угля, глины, аметиста и турмалина.
Инфракрасное одеяло для сауны Higher DOSE
ПОСТРОИТЬ УЛИЧНУЮ САУНУ Сауна на открытом воздухе — отличное решение для тех, у кого мало места в помещении и есть немного лишнего места на заднем дворе для небольшого оазиса.
Построить уличную сауну на заднем дворе.
Разместите готовый бокс для сауны на террасе.
ДОМАШНЯЯ САУНА СОВЕТЫ ПО ПРОЕКТИРОВАНИЮ ТИП ТЕПЛА- Сухой нагрев, дрова или электричество являются более традиционными источниками тепла.
- Влажная (паровая) сауна
- Far Infrared — этот глубокий детоксицирующий пот позволяет вашему телу вывести в 7 раз больше токсинов и тяжелых металлов и увеличить частоту сердечных сокращений для здорового сияния.
Минималистская сауна с корзиной для горячих камней
МАТЕРИАЛЫ ДЛЯ САУНЫ ДЕРЕВОПри проектировании сауны можно выбрать различные породы дерева, аскептус, кедр, эвкалипт. . Хотя эвкалипт пахнет невероятно, мы предпочитаем кедр из-за его высокой производительности и долговечности.
ПЛИТКА Влажная или паровая сауна лучше всего подходит для использования плитки или камня.
Мозаика отлично подходит для изогнутых поверхностей, таких как скамейки или наклонный потолок, как показано в одном из наших проектов ниже. В паровой сауне важно выложить плиткой потолок, чтобы защитить его от лишней влаги.
Встроенный паровой диван внутри душевой, отделанной мозаичной плиткой
Плиточный паровой душ с изогнутыми скамьями, покрытыми мозаикой.
КРИСТАЛЛИЧЕСКИЙ КВАРЦСчитается, что добавление кристаллов в сауну улучшает целебные свойства разума, тела и души. Наши любимые кристаллы включают аметист, розовый кварц или турмалин.
Хрустальная сауна в спорт-отеле Panorama, Италия
СОЛЬВ течение сотен лет соль использовалась для поддержания здоровья и хорошего самочувствия. Преимущества включают облегчение аллергии, уменьшение воспаления легких, облегчение проблем с кожей и помощь вашему телу в более быстром заживлении, среди многих других.
MILJKO / GETTY IMAGES
Стена из розовой соли
КАМЕНЬ или КАМЕНЬ Контраст дерева с необработанным или необработанным камнем придает стилю сауны естественный элемент.
Добавьте лавовый камень или вулканический камень для увеличения тепла.
Установите душ в сауне или рядом с ней для удобного ополаскивания до и после смыва.
ОСВЕЩЕНИЕОсвещение жизненно важно для отдыха. Используйте непрямой и тускло освещенный теплый свет во всей сауне. Если вам интересны лечебные свойства хромотерапии, продолжайте прокручивать.
Сауна в отеле Virgin Active, Милан
АКСЕССУАРЫ ЗВУК + ХРОМАТЕРАПИЯЧтобы действительно улучшить впечатления от посещения сауны, добавьте звуковую систему и функцию хромотерапии. Установите декоративное освещение и свой личный саундтрек, чтобы погрузиться в атмосферу, побаловать себя йогой или включить сауну в практику медитации.
ДОМАШНЯЯ САУНА СОВЕТЫ И СТИЛИ САУНА В СКАНДИНАВСКОМ СТИЛЕ Лаконичный дизайн досок из светлого дерева и камней из белого камня.
Роскошные мраморные плиты под классической серой мозаикой. Сиденья-скамейки
кажутся более открытыми, чем угловые сиденья, которые закручиваются вокруг.
Стенка для сауны с сухим душем, душем и влажным паром. Отделка белой мозаикой.
САУНА СОВРЕМЕННОГО ГОРОДСКОГО СТИЛЯШифер Плитка серого цвета создает бетонный городской вид рядом с необработанной древесиной.
САУНА НА ЗАДНЕМ ДВОРЕДаже в самом маленьком пространстве снаружи есть место для сауны.
Что бы вы выбрали для своей домашней сауны? Это сложный выбор, потому что мы хотим их всех!
ДОМАШНЯЯ САУНА СОВЕТЫ ПО ДИЗАЙНУ | от Сара Плейстед
Как спроектировать сауну — Harvia.com
Первая страница
Идеи и тенденции
Вдохновение
Как спроектировать сауну?
На что следует обратить внимание при планировании ремонта сауны? Существуют альтернативные варианты, доступные для различных потребностей и предпочтений.
Мы составили информационный пакет, который поможет вам на всех этапах ремонта сауны.
Реконструкция сауны начинается с мечты: подумайте о том, какой должна быть ваша идеальная сауна, как она будет выглядеть и какие функции она будет выполнять. Когда вы нашли фотографию сауны своей мечты, можно браться за рулетку. Измерьте ширину, высоту и глубину вашей сауны, а также оконные и дверные проемы. Также измерьте бревенчатые, каменные и оконные поверхности, которые влияют на требования к мощности нагрева; это поможет профессионалам выбрать печь для сауны с нужной мощностью для вашей сауны.
Разрешения и конструкции
Как правило, для ремонта сауны в частном доме не требуется разрешение на строительство или уведомление о действии. Разрешение необходимо только для сноса или строительства несущей конструкции и расширения санузла.
Разрешение также необходимо для строительства совершенно новой ванной комнаты или сауны. В этом случае обратитесь в службу надзора за домом вашего собственного муниципалитета.
Если вы живете в жилищной компании, вы должны уведомить совет директоров жилищной компании о ремонте. Как правило, жилищные компании требуют, чтобы гидроизоляционные и электрические работы выполнялись профессионалом. Поэтому приступать к сносу следует только после того, как вы убедитесь, что разрешения в порядке.
Снос старой сауны
При сносе старой сауны важно проверить вскрывшиеся из-под поверхности конструкции и при необходимости отремонтировать их перед установкой новых поверхностей. Алюминиевая бумага должна быть неповрежденной и герметичной. Если бумага повреждена, проверьте, нет ли повреждений и за бумагой. Если все в порядке, можно приступать к установке новых поверхностей.
Стеклянные стены стали более популярными на объектах ремонта, и их можно установить в зависимости от конструкции стены с дверью.
Профессионал должен оценить возможность установки стеклянной стены на стадии сноса. Может потребоваться установка дополнительной опоры для существующей стены.
Обновление строительных решений в соответствии с современными требованиями
За последние несколько десятилетий строительные технологии развивались как на дрожжах, и вместо старых стали доступны новые виды строительных решений и материалов. Несмотря на то, что такие материалы, как изоляционные материалы на основе уретана, доступны уже давно, они не использовались в саунах, построенных 20–30 лет назад.
Преимущество уретановых листов в качестве изоляции заключается в их тонкости. Лист уретана толщиной 30 мм соответствует 80 мм изоляции из минеральной ваты. Замена изоляции может сэкономить 5 см толщины стены в небольших помещениях. Гидроизоляционные продукты также получили большое развитие в последние годы, значительно снижая риск повреждения водой.
Кстати, обратите внимание, что если вы заменяете дровяную каменку на электрическую, старый каменный дымоход нельзя закрывать панелями или устанавливать над ним скамейки, если дымоход все еще используется.
С другой стороны стены часто есть камин, железная печь или что-то подобное, соединенное с тем же дымоходом. Кладка может быть облицована плиткой, но к ней нельзя ничего прикреплять. Вы должны проверить этот вопрос с пожарной службой в вашем районе.
Электроустановки при реконструкции сауны
Электромонтажные работы в сауне всегда должны выполняться профессионалом. Это означает, что вам следует заблаговременно связаться с опытным электриком, когда вы планируете электрические работы в сауне. В большинстве случаев нет смысла менять расположение каменки при ремонте сауны, но с электрической каменкой при желании это обычно возможно.
Изменения в электропроводке следует планировать на самой ранней стадии ремонта. Кабели питающего тока проложены в изоляции стен, а это значит, что этот вопрос нужно учитывать уже на этапе сноса. Когда поверхности будут установлены, менять электрификацию будет поздно.
Выбор скамеек и материалов поверхности
При проектировании сауны необходимо учитывать, сколько человек будет пользоваться сауной одновременно и как часто.
Сиденье для одного человека обычно имеет ширину 60 см.
Если вы хотите, чтобы в сауне было как можно больше сидячих мест, а пространство довольно маленькое, обычно лучшим решением является простая прямая скамья. Если вы попытаетесь установить угловую скамью или даже U-образную скамью в небольшой сауне, конечный результат может показаться тесным и неудобным в использовании. Это означает, что вам нужно быть реалистом и учитывать пространство при выборе модели скамейки.
Несколько вариантов материалов для сауны
В качестве материала можно выбрать одну из нескольких пород дерева: красновато-коричневую ольху, светлую осину или темную термообработанную осину. Существует также богатое сочетание светлой ели и черного цвета для скамеек. Harvia использует для изготовления саун только экологически чистую древесину.
Дайте волю своему воображению при оформлении поверхностей стен! В дополнение к традиционным панелям вы можете добавить характер стенам с помощью различных видов камня.
Все более распространенным вариантом является также замена передней стены сауны стеклянной стеной, что придает пространству простор и современный вид. 9№ 0023
Вы можете использовать формы, цвета и методы монтажа панелей для создания желаемой атмосферы в сауне. В качестве обшивочного материала можно выбрать ель, сосну, осину, термообработанную осину, термообработанную брашированную ольху, ольху или вагонку по-черному.
Эксклюзивные воздушные скамейки Effex Скамья Harvia Solide, модель из прозрачной белой ели Скамья Harvia Block, модель из термообработанной осиныДополнение к сауне
Вы можете создать настроение и атмосферу в сауне разными способами. Расположение стеновых панелей, выбор дерева, обработка поверхности и непрямое светодиодное или цветное освещение создают неповторимую атмосферу. Если вы хотите поднять свои впечатления от сауны на новый уровень, есть множество доступных вариантов.
Сауны-гибриды становятся все более распространенными.
Это означает, что помимо электрической каменки или дровяной каменки, сауна также оснащена одним или несколькими инфракрасными излучателями. Инфракрасные излучатели установлены за верхней скамейкой. Они предназначены для разогрева человека, сидящего на соответствующем сиденье, а не всей сауны.
Инфракрасный обогреватель прогревает вас изнутри, проникая глубже в ткани кожи до 5 см.
Вы можете согреться перед инфракрасным обогревателем, например, во время купания в сауне, или просто посидеть в обычной одежде в холодный осенний день.
Вы также можете использовать сауну и инфракрасный обогреватель одновременно; однако температура сауны не должна превышать 70 градусов Цельсия.
Инфракрасные кабины предлагают те же преимущества для здоровья, что и традиционная сауна: также было обнаружено, что они расширяют периферические кровеносные сосуды и в результате облегчают боль.
Автоматический диспенсер для воды .
