Проекты и чертежи беседок — besedki-stroy.ru
Перейти к контенту
Изначально планируя строительство беседки, нужно сразу определиться с формой и размерами будущей конструкции по отношению к площади участка, создать проект и чертёж беседки.
Рубрика: Проекты и чертежиАвтор: Вера Хачаева 0 1 071 просмотров
Дачные участки являются излюбленным местом отдыха для многих городских жителей и по праву считаются отличным вариантом организации отдыха на свежем воздухе. Чтобы обеспечить максимальный комфорт, требуется помимо жилого…
Рубрика: Проекты и чертежиАвтор: Вера Хачаева 0 1 752 просмотров
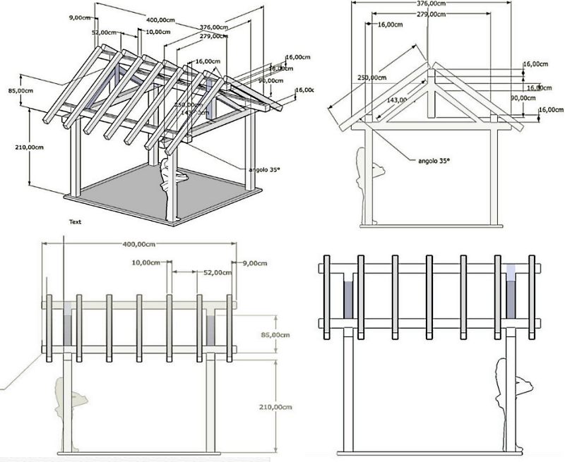
На практике используется огромное количество идей построек для имеющегося загородного участка. Одной и них выступает беседка с параметрами 4 на 4. Благодаря квадратной форме существенно упрощается процесс строительства…
Рубрика: Проекты и чертежиАвтор: Вера Хачаева 0 1 803 просмотров
Практически все владельцы загородных домов интересуются возможностью самостоятельной постройки на приусадебном участке беседке с размерами 3х3 м. Это универсальный показатель, а в случае использования дерева, можно с…
Рубрика: Проекты и чертежиАвтор: Вера Хачаева 0 766 просмотров
Во холодное время года ,когда появляется желание комфортно отдохнуть на свежем воздухе то сразу на ум приходит зимняя беседка. Это идеальное сооружение для зимних посиделок с семьей и…
Рубрика: Проекты и чертежиАвтор: Вера Хачаева 0 964 просмотров
Постройка бани с беседкой под одной крышей – универсальное современное решение. С точки зрения архитектуры, принято считать, что это объединение двух абсолютно разных конструкций, которые отличаются принципом…
Рубрика: Проекты и чертежиАвтор: Вера Хачаева 0 803 просмотров
Любители экзотики в интерьере всё чаще обращаются к восточному стилю, как символу единения с природой и душевной гармонии, которых так не хватает в бешеном ритме жизни. Беседки в…
Рубрика: СтроительствоАвтор: Вера Хачаева 0 1 687 просмотров
На первый взгляд идея беседки из поддонов может выглядеть странно. Но на самом деле – это оригинальный подход, который может значительно сократить бюджет на строительстве малой постройки. Преимущественные…
Рубрика: Проекты и чертежиАвтор: Вера Хачаева 0 1 436 просмотров
Многие любители загородного отдыха ценят в садовых беседках в первую очередь легкость и функциональность. Как совместить эти качества воедино? Одно из многочисленных решений такой задачи, является разборная конструкция….
Рубрика: Проекты и чертежиАвтор: Вера Хачаева 0 800 просмотров
Садовые беседки – это самое лучшее место для проведения вечеров в семейном кругу и в компании друзей. Сложность проекта определяет уровень сложности постройки. Благодаря современным материалам, возведение конструкции…
Рубрика: Проекты и чертежиАвтор: Вера Хачаева 0 1 448 просмотров
Загородный домик или небольшая дача – это мечта для многих людей. Дача – это отличное место, где можно отдохнуть или провести какое-то семейное мероприятие на свежем воздухе. Беседка…
Рубрика: Проекты и чертежиАвтор: Вера Хачаева 0 572 просмотров
Наверное, нет человека, который не мечтает о загородном домике, где можно проводить выходные или летний отпуск. Наиболее комфортные условия не определяют только роскошные дома. Можно ограничится небольшим уютным…
Рубрика: Проекты и чертежиАвтор: Вера Хачаева 0 479 просмотров
Для завершения образа дома, многие хозяева принимают решение выполнить небольшую пристройку. Веранда к дому – это не только дополнительная пристройка, но и декоративная часть здания, которая добавляет уют…
фото, чертежи, из поликарбоната, из железа, как сделать просто и красиво
Металлические изделия часто используются для создания беседок. Конструкции собираются из кованого железа, круглых и профильных труб, отделываются стеклом, деревом. Используются любые кровельные материалы по желанию. Сделать для дачи летнюю беседку из металла своими руками не сложно, нужно только понять некоторые моменты.
Плюсы и минусы
Достоинства:
- доступная стоимость;
- большой ассортимент и эстетичность оформления;
- легкость установки, схема сборки несложная;
- огнеупорные строения не загорятся;
- практичность и долгий срок службы;
- возможность установки без строительства фундамента;
- множество вариантов применения.

Односкатные прямоугольные конструкции отличаются такими достоинствами:
- простота проектирования;
- сравнительная легкость установки;
- сниженный расход материала;
- устойчивость к порывам ветра;
- строительство занимает немного времени.
Недостатки укрытий из металлоконструкций:
- низкая теплоизоляция, строение промерзает зимой;
- железо покрывается ржавчиной, требуется регулярная обработка.
Коррозия портит любые металлические изделия со временем.
На фото беседки из металла просто и красиво:
Полезные советы
При оборудовании временной постройки сборка каждого элемента выполняется вручную. Нужно выбирать подходящие крепления для разборных конструкций. Используются многоразовые соединения, которые быстро разбираются и устанавливаются заново.
Вместо самостоятельного изготовления деталей можно приобрести некоторые заготовки. Это значительно облегчит и ускорит работу.
Если самостоятельное изготовление вызывает трудности, рекомендуется обращаться к специалистам.
Каркас любой сложности можно сварить за пару дней. Установка аксессуаров всегда обходится дороже и занимает немало времени.
Как строить беседку своими руками из металла и других материалов
Определиться с типом будущей садовой беседки из металла помогут чертежи и проекты:
Из металла и поликарбоната
Сначала выполняется разметка на месте возведения и закупается необходимый материал. Прямоугольная конструкция собирается проще всего, поэтому на участке делается соответствующая разметка.
Материалы:
- металлопрофиль для обвязки по периметру;
- детали для столбов;
- профиль для каркаса крыши.
Как строить беседку из поликарбоната и металла:
- По углам забиваются колья.
- Измеряется расстояние между противоположными углами. Диагонали в металлической беседке всегда должны быть одинаковые.
- Профили раскладываются по разметке. Длина каждой детали измеряется перед сварочными работами.
- Можно соединить профиль на уголки, чтобы строение легче разбиралось.
Только болты обеспечивают прочную стяжку.
Столбы рекомендуется устанавливать совместно со сборкой нижних узлов. Опоры выравниваются с помощью строительного уровня или отвеса.
Верхняя обвязка крепится, когда зафиксируется основание. Детали фиксируются на столбах сбоку или сверху. Для крепления также используются болты.
Крыша делается пологой или скатной.
Пологая конструкция самая простая. Разборная постройка со скатным каркасом будет состоять из большего количества комплектующих. Время сборки значительно увеличится, транспортировать изделия будет труднее. Цена строения со скатной крышей повышается. Поэтому рекомендуется проектировать пологую крышу.
Металлический каркас обшивается поликарбонатом. Крепление тоже выполняется на болты. Входные двери проектируются легко, но будет лучше без них. Пол стелется на нижнюю обвязку или крепится на отдельных столбах.
Из металлических труб
Детали соединяются сварочным швом или болтовым соединением.
Не на каждой даче можно оставлять металлические изделия без присмотра. Поэтому свариваются отдельные модули, которые скрепляются болтами.
Профильные трубы используются для изготовления. Работа с ними выполняется проще. Толщина металла не должна быть меньше 2 мм.
Круглые трубы сложнее варятся, поэтому для самостоятельной сборки понадобится опыт. Такие детали стоят дешевле по сравнению с прямоугольными профилями.
Конструкция из алюминиевых труб меньше весит, поэтому такой металл рекомендуется использовать при проектировании разборных беседок. Алюминий стоит дороже обычной оцинкованной стали.
Материалы для дачной беседки из металлических труб:
- трубы 50х50 мм используются с легкой кровлей из профнастила, металлочерепицы, простого или битумной мягкой кровли;
- 75х75 мм подходит для шифера и классической черепицы.
Тонкий профиль используется для изготовления перемычек. Минимальная толщина 20х30 мм. Размеры профиля определяются высотой конструкции.
Больший диаметр выбирается под меньшие стойки. Всегда учитывается вес материалов для обшивки каркаса и кровли.
Для оборудования металлической беседки своими руками 3х3 м высотой 2,2 м понадобятся такие материалы:
- труба для горизонтальной обвязки 50х50 – 12 м;
- детали для изготовления перемычек 20х20 50 м;
- стальная полоса 20х4 мм – 2 м.
Столбы устанавливаются на бетонный фундамент по разметке. Нижняя и верхняя горизонтальная обвязка приваривается к ним. Делается каркас крыши, устанавливается кровельный материал.
Из металла и дерева
Деревянные элементы используются для сборки лавочек, столиков, пола, ограждений и украшений под каркасом крыши. Они крепятся к металлу на болты или заклепки.
Поверхность лакируется или красится для удобства и внешней привлекательности. Популярностью пользуются черные металлические детали и коричневые лакированные деревянные элементы.
Из стекла и металла
Стеклянные детали вставляются в беседку из металла по всей высоте каркаса для защиты от ветра или в качестве бортиков.
Рекомендуется использовать прочные листы от 6 мм толщиной. Стекла вставляются в металлическую рамку, приваренную к опорам, или крепятся на болтовое соединение. Остекление крыши выполняется таким же способом.
Устанавливаются прозрачные стекла или узорчатые поверхности:
- рисунок по стеклу из пескоструя;
- матирование;
- фотопечать.
Узорчатая поверхность может быть направлена внутрь или наружу. Это может создавать неудобства. Чтобы внешняя привлекательность не нарушалась, лучше заказывать остекление с двусторонним рисунком.
Беседка из металла своими руками разных форм
Из железа для мангала
Проект такой конструкции будет немного сложнее.
- Место расположения мангала для приготовления еды.
- Несколько лавочек и столик для трапезы.
Дополнительно в такую железную беседку для дачи можно установить несколько кресел, для этого тоже понадобится свободное место. Рекомендуется создавать строение хотя бы 3х3 м, чтобы не возникало ощущение тесноты, когда под навесом соберется много гостей.
Разновидность мангала влияет на конструкцию. Можно поставить легкий металлический короб или массивное изделие в виде печи. Для кирпичного мангала сооружается бетонный фундамент. Легкая металлическая конструкция на ножках ставится на дощатое основание, но придется позаботиться о пожарной безопасности, ограничить контакт углей с деревом. Под мангалом стелется тонкий металлический лист, препятствующий возгоранию.
Кирпичный мангал строится в первую очередь:
- Сначала делается фундамент.
- Выкапывается небольшая яма по размерам изделия.
- На дно высыпается песок и щебень, для создания места скопления влаги.

- Вокруг ямы выставляется опалубка так, чтобы край фундамента был немного выше пола. Примерная высота – 15-20 см над землей.
- Через несколько дней фундамент затвердеет и можно будет начинать кладку кирпича.
Сооружение мангала:
- Кладка выполняется по чертежам, внизу располагается дровница, выше оборудуется зона барбекю.
- Над мангалом сооружается дымоход высотой 2-3 м.
- Кладка выполняется из обычного облицовочного кирпича и цементного раствора.
- Место соприкосновения с пламенем и внутренняя часть дымохода делается из огнеупорного кирпича и глиняного раствора или специальной смеси для печей.
После строительства мангала можно приступать к оборудованию беседки для дачи. Металлический каркас можно собрать в прямоугольной или шестиугольной форме, разместив мангал и столик с лавочками на противоположных сторонах.
Каркас делается также, как в предыдущем примере, но вместо болтовых соединений детали свариваются между собой.
Бортики можно изготовить из кованных металлических конструкций с фигурными элементами, изготовленными на заказ. Они делаются по размерам и привариваются к вертикальным опорам.
Крыша проектируется так, чтобы из нее выходил дымоход. Кирпич не должен соприкасаться с кровельным материалом, поэтому вокруг трубы ставится специальный кожух.
Шестигранная
Беседка с площадью 6 кв/м. Длина 1-го бруска обвязки — 1,5 м.
Сначала выполняется разметка для заливки фундамента шестигранной формы.
Как построить шестигранную беседку из металла своими руками:
- 6 брусков устанавливаются по углам, между ними натягивается веревка.
- Расстояние между соседними деревянными деталями должно быть одинаковое.
- Колья вынимаются, бурятся ямы для заливки основания.
- Часто используются фундаментные блоки, они приобретаются в готовом виде или делаются самостоятельно. Буронабивные сваи обеспечивают наибольшую устойчивость конструкции.
- Шестигранное основание делается для того, чтобы нижняя обвязка на нем располагалась в идеальном горизонтальном положении.

- 6 вертикальных столбов крепятся к обвязке. Их положение регулируется строительным уровнем.
- Доски укладываются на пол параллельно одной или каждой из граней шестиугольника.
Каркас крыши и стропильная система собирается на земле, потом ставится наверх с помощью погрузочной техники. Сначала создается шестиугольная обвязка для вертикальной опоры, затем к ней крепятся от углов к центру железные прутья, которые соединяются сваркой и укрепляются металлическим кожухом. Кровельный материал укладывается в самом конце.
Обвязка в форме правильного шестиугольника
Основание из блоков 20 на 20 на 40 см
установка столбов: шиповое соединение
Крепление столба к нижней обвязке на уголки
Собранная на земле крыша
Стропильная система
Стропильная система
Прямоугольная
Степень закрытости:
- Закрытое изделие защищается от осадков и ветра. На стены устанавливаются стеклоблоки. Строения эксплуатируются в любое время года.

- Полуоткрытая частично сдерживает проникновение осадков внутрь.
- Открытая – это навес с 4-мя опорами.
Рекомендуется ставить такой навес возле дома, при проектировании выполняется назначение сооружения. Определяется точная нагрузка на строение, чтобы правильно выбрать сечение креплений.
Угол наклона односкатной крыши зависит от кровельного материала:
- металлочерепица – 30°;
- профилированный лист – 8°;
- рубероид – 5°;
- фальцевая кровля – от 18 до 30°;
- шифер – 20-35°.
Слишком маленький угол наклона приводит к разрушению крыши под давлением стега.
Как построить прямоугольную беседку из металла своими руками для дачи:
- место под строительство очищается;
- бурятся ямки под фундамент;
- вертикальные опоры вставляются в лунки, ровняются с помощью уровня;
- ямки заливаются бетоном;
- делается горизонтальная и вертикальная обвязка;
- каркас крыши устанавливается под определенным углом;
- стелется кровельный материал.

Наклон обеспечивается низким расположением столбов с одной стороны укрытия.
Четырехскатная
Для такой крыши применяется несколько видов стропил:
- Диагональные формируют кровлю и выдерживают основной вес. Для установки используются крепкие металлические детали.
- Центральные и промежуточные крепятся к коньку и опорам.
- Короткие привариваются к опорному каркасу и накосным стропилам. Они устанавливаются параллельно промежуточным.
Замер выполняется с помощью мерной рейки в такой последовательности:
- на верхней обвязке отмечается осевая линия;
- определяется половина ширины коньковой балки;
- отмечается расположение 1-го промежуточного стропила;
- рейка соединяется с центральной отметкой и вычисляется позиция 2-го промежуточного стропила.
Такой замер выполняется для всех углов для упрощения установки.
Нижняя обвязка и вертикальные опоры устанавливаются на фундамент, выдерживающий большие нагрузки.
Последовательность действия при строительстве четырехскатной беседки своими руками:
- Сначала устанавливаются коньковая балка на вертикальные опоры.
- Под нужным углом привариваются диагональные стропила, из которых делаются скаты кровли.
- Стропильные ноги увеличиваются при необходимости накладками на следующем этапе.
- Устанавливаются средние и промежуточные стропила, потом крепятся нарожники.
- Наверх стелется гидроизоляционный слой.
- Поверх него устанавливается кровельный материал.
Виды четырехскатных конструкций:
- вальмовая с 2-мя треугольными скатами;
- полувальмовая создается из двух трапециевидных плоскостей и 2-х треугольников, но конструкция имеет ломанные плоскости;
- шатровая формируется из 4-х треугольных скатов — они соединяются в одном месте наверху; получается четырехреберная пирамида, такое изделие самое дорогое.
Учитываются такие нагрузки:
- вес кровельного пирога;
- масса выпадающих осадков в регионе;
- порывы ветра.

Вес каркаса тоже учитывается в чертежах.
Разборные беседки из металла
Разборные конструкции легкие, поэтому можно устанавливать их на кирпичные или каменные столбики. Нет необходимости возводить для них фундамент.
Правила сборки каркаса для возведения разборной беседки:
- вертикальные столбы соединяются с горизонтальными ограждениями с помощью болтов или специальных замков;
- столбы ставятся на каменное основание и соединяются друг с другом;
- на нижнюю обвязку крепятся перегородки, на которые укладывается пол; некоторые производители делают цельные щиты, используемые в качестве напольного покрытия.
Крыша собирается на земле, вместе с горизонтальной обвязкой, затем одевается на вертикальные опоры.
Беседка, пристроенная к дому
Если изделие присоединяется к дому, часть вертикальных опор не устанавливается.
Крыша и нижняя обвязка крепится на горизонтальные металлические опоры на стене. Поддерживается вертикальными опорами с противоположной стороны.
Для крепления к стене дома используются анкерные болты длиной до 25 см. Размер зависит от материалов, из которых построено здание. Анкер должен проходить через внешнюю отделку, утеплитель, и закрепляться в несущей стене хотя бы на глубине 10 см.
Несколько анкерных креплений обеспечит надежную фиксацию металлического профиля на стене.
На обвязку ставится напольное покрытие, оборудуются лавочки или столик.
Рекомендуется делать односкатную крышу. Кровельный материал используется такой же, как для основного здания. Можно постелить наверх поликарбонат, чтобы в месте для отдыха было больше света.
Беседка под виноград
Под виноград строятся временные или постоянные сооружения. Разборные конструкции используются в теплое время года. Зимой они разбираются, складываются. Детали весят немного, легко снимаются и транспортируются.
Стационарные конструкции ставятся на фундамент держатся на крепких опорах.
Под виноград делаются легкие конструкции разной формы.
Для строительства металлической беседки под виноград для дачи понадобится:
- металлическая арматура для каркаса;
- купить цемент, крепкую проволоку, гравий и песок;
- арматура вставляется в лунку под фундамент, все заливается цементом;
- для повышения жесткости к арматуре крепится несколько направляющих;
- детали соединяются сварочным аппаратом;
- устанавливаются вертикальные опоры, верхняя обвязка и крыша.
Односкатная крыша позволит сэкономить на материалах. Можно приспособить такую конструкцию под летнюю гостиную, установить внутри столик или натянуть гамак.
Растение должно опираться на крепкую решетку.
Инструкция по сборке:
- металлическая проволока натягивается параллельно на расстоянии 30 см;
- металлический каркас покрывается грунтовкой, красится водостойкой эмалью;
- крепятся декоративные элементы по желанию;
- по периметру высаживается виноград.

Через 2-3 года растение разрастется и будет создавать уютную тень.
Беседка 3м х 5м — архитектурный проект | Скачать чертежи, чертежи, блоки Autocad, 3D модели
- Русский
- Разные строительные чертежи
- Автокад
- Производство
Узнайте, как скачать этот материал
Telegram бот для поиска материалов
Покупка чертежей
Подпишитесь на получение информации о новых материалах:
t.
me/alldrawings
vk.com/alldrawings
Описание Архитектурно-строительный проект деревянной беседки из оцилиндрованного бревна.
Содержание проекта
__33.zip [ 2 МБ ] |
беседка 3х5. |
Аналогичные материалы
Беседка — архитектурно-строительная часть
Дизайн беседки, чертежи 2015
Проект мангальной беседки
Садовая беседка
Беседка и магазин
Теневой навес (беседка) для детского сада
Деревянный каркас беседки
Беседка 3х3
Бесплатная загрузка на сегодня
Обновление через: 4 часа 55 минут
Внутренний водопровод и канализация производственного здания»
Проект системы наблюдения за помещением безопасности
Чертеж танка
Входная дверь
Прочие материалы
Реконструкция электроснабжения 10 кВ — Автосборочный завод Форд
Строительные единицы
проект выставочной галереи
Проект временного жилого поселка — EOM
White Gazebo — Etsy Australia
Etsy больше не поддерживает старые версии вашего веб-браузера, чтобы обеспечить безопасность пользовательских данных.

dwg
[
2 МБ
]