парилки, расчет на 4 человека, ширина, высота, как выбрать, фото
Прежде чем приступать к строительству бани, необходимо определиться с её проектом, который включает в себя парилку, моечную и предбанник. Важно понимать, что будущая баня должна приносить удовольствие, ее использование быть комфортным и удобным. Для этого производятся расчёты размеров парилки в бане, а также определяются параметры остальных помещений. Разберемся в этой статье какой оптимальный размер бани, и какие расчеты принимаются во внимание при проектировании.
Небольшая баня с террасойИсточник bouw.ruЧто следует учесть при проектировании бани
Ключевой стадией в проектировании бани является определение размеров парилки. Эта величина основывается на том, какое количество человек будут ею пользоваться одновременно. Расчёт рекомендовано производить по следующему стандарту: для комфортного прохождения банных процедур на одного посетителя понадобится от 1 до 2 м².
Стоит подчеркнуть, что не существует стандартных размеров для бани. Каждый, кто решил её построить, определяет размеры на основании собственных критериев:
- среднее количество посетителей и их рост;
- индивидуальные предпочтения и потребности;
- частота посещений.
Например, одним достаточно небольшой баньки, где можно будет привести себя в порядок после дачных дел. Другие же возводят целые банные комплексы, которые рассчитаны на многочасовое времяпровождения в кругу хорошей компании.
Проект мансардной бани с небольшой террасойИсточник toolboxprodhouse.comУсловно, все бани можно разделить на две категории:
- сезонные – в большей степени используются в дачный период;
- круглогодичные – такие постройки имеют контур утепления, что позволяет использовать баню в любой период года.
Какие бывают помещения в бане и их предназначение
Правильная планировка создает уютные условия для посещения бани. Проект бани зависит от пожеланий и предпочтений хозяев, но имеет несколько помещений, которые создают комфорт и удобство принятия оздоровительных процедур. Основными помещениями являются парная, предбанник и моечная.
Индивидуальный проект бани из клееного брусаИсточник 9ban.ruПарная
Основное помещение, ради которого и возводится баня – это парная. В ней должна располагаться печь, которая изготавливается из кирпича или металла. В парной возводятся полки – они представляют собой деревянные лежаки, на которых и происходят основные процедуры.
Старые банные постройки сезонного типа не имеют отдельной душевой. Такие сооружения имеют скромные размеры, поэтому с целью экономии места отдельные моечные не обустраивались.
Но это плохо сразу по нескольким причинам – от банального неудобства до возможных негативных последствий, ведь сочетание мыла и высокой температуры может навредить человеку.
Именно поэтому рекомендуется устанавливать отдельную душевую кабинку, моечный комплекс или купель еще на стадии монтажа коммуникаций, организовывая подвод чистой и отвод использованной воды.
Оформление моечной зоны в частной банеИсточник derevodim.com.uaВ большинстве старых построек нагрев воды осуществляется при помощи бака (котла), а подача холодной воды отсутствует – её приносят вёдрами. Для этого в бане и предусматривались разного рода ёмкости: корыта и тазы, которые предназначаются для смешивания воды. Но если вы не являетесь приверженцем традиций в ущерб комфорту, то водопровод нужно обустраивать обязательно.
Санузел
Некоторые бани оборудуются санузлом и мнения на этот очень разноплановые. Если хозяин банного комплекса желает оборудовать санузел, ему следует учитывать свободное пространство постройки и возможность подвода и утепления коммуникаций.
В роли стандартного унитаза также может выступать биотуалет.
Если же баня имеет несколько этажей, то на каждом из них есть смысл расположить отдельный санузел с дополнительным угловым умывальником.
Оборудованный санузел в бане из срубаИсточник parki48.ruПредбанник
В бане классического исполнения он выступает в роли не только гардеробной, но и комнаты отдыха. Это тот самый случай, когда большое количество свободного пространства делает комнату уютней и придаёт дополнительный комфорт. Например, можно установить камин, мягкий уголок, телевизор или вовсе расположить бильярдный стол.
В большинстве случаев предбанник имеет место для хранения дров и мебель для отдыха после парной. Независимо от размеров и типа бани, её проект составляется так, чтобы предбанник был тем местом, откуда можно попасть в остальные помещения: парилку, моечную, уборную.
Тамбур
Если баня эксплуатируется круглый год, то есть смысл в установке тамбура, который в холодный период времени способствует предотвращению сквозняков и помогает удерживать тепло внутри помещений.Для больших банных комплексов характерны дополнительные помещения: тренажёрный зал, бойлерная, сушилка для веников, терраса, бассейн и другие.
Бани из бревна: плюсы и минусы материала, выбор места строительства, проекты и цены
Оптимальные размеры помещений бани
При определении размеров парилки важнейшим параметром является мощность печи, так как она способствует поддерживанию нужной температуры в постоянном режиме. Для газовых и дровяных печей этот нюанс не столь важен, так как они способны справляться с этой задачей даже в больших помещениях. Чего нельзя сказать об электрической печи – если ее подобрать неправильно, то мощности может хватать только не небольшие парилки.
Ниже приводятся рекомендации, с помощью которых можно рассчитать оптимальный размер парилки:
- Для начала следует определиться с высотой потолка помещения. Здесь всё зависит от индивидуальных предпочтений хозяина. Например, если он предпочитает париться в сидячем положении, то вполне хватит прибавить 100-110 см к уровню верхнего лежака – этой высоты будет достаточно. Для процедур с веником необходимо добавить еще как минимум 50 см для создания более комфортных условий. Делать потолок ниже 210 см специалисты не советуют;
- Что касается полок, то при вытянутом положении во весь рост потребуется до двух метров их длины. Если рассматривать полутораметровые варианты, то следует учитывать – париться придётся, поджав ноги;
- Оптимальный размер парилки в бане, рассчитанной на одного человека, считается 85 х 120 см .
Единственным условием является компактность печи, дабы предотвратить риски ожогов;
- Если проектировать более просторную баню, рассчитанную на два человека, то габариты парной должны быть от 1,5 х 2 м. Этот размер считается минимальным, при котором будет достаточное свободное пространство для двоих людей, предоставляя им возможность разминуться, не задевая печи;
- Стандартом считается размер парилки 2 х 2 м. Площадь такого помещения с лёгкостью уместит три человека.
Строительство бани из бруса: от проекта до введения в эксплуатацию
Планирование остальных помещений основано на следующих принципах:
- Чтобы не биться локтями о стены, раздевалка должна иметь минимальную ширину 1 – 1,2 м. Её не имеет смысла проектировать большой, так как она будет использоваться только лишь на входе и выходе из бани.

- Душевая проектируется исходя из расчёта 1,5 м² на одного человека. Этого места вполне хватит, чтобы помыться, не мешая остальным.
- На предбанник распространяется принцип – больше свободного пространства, выше комфорт. Естественно, всё в пределах разумного, ведь неоправданно большое помещение будет достаточно прохладным. Оптимальным размером считается 3 х 3 м.
- Если рассматривать террасу и веранду, то здесь все индивидуально, но надо учитывать, что под эти пристройки надо рассчитывать размер фундамента.
Придерживаясь всех вышеперечисленных рекомендаций, оптимальные размеры бани варьируются от 3 х 3,5 м до 5 х 6 м.
Интересное видео о бане из кедра:
Высота помещений в бане
Важнейшим условием для парилки является наличие порога перед входом либо высота её пола должна быть больше на 10 – 15 см, чем в других комнатах.
Это позволит лучше сохранять пар в помещении. Что касается душевой, то здесь уровень полов опускается 3 см, по сравнению с предбанником.
Бытует традиция, благодаря которой определяют высоту потолка в бане. Она заключается в том, что за основу берётся рост самого высокого члена семьи и прибавляется определённый запас, учитывающий размах веником. Итоговым значением является 2,1 – 2,5 метра.
Для тех людей, кто предпочитает париться на верхнем ярусе, расстояние от полки до потолка должно составлять от 1 м и больше. Если париться в лежачем положении, то достаточно и 50 см.
Ещё одним важным условием для парилки является уровень верхней полки – он должен быть выше камней в печи. Как правило, каменку размещают на высоте 1 м от пола, так как при этом наблюдается наиболее благоприятная атмосфера в парильном помещении.
Размеры лежаков в парилкеИсточник pinterest.comДля окон в бане также существуют рекомендации.
Например, нижняя часть оконного проёма должна располагаться на высоте от 120 см от уровня пола, а в моечном помещении этот показатель составляет 1,5 м.
Из чего строить баню: плюсы и минусы популярных материалов
Планировка бани
Верно подобранные размеры бани ещё не означают надлежащий уровень комфорта. Очень важно уделить внимание планировке помещений. Например, не каждому гостю понравится наличие туалета в душевой. Наиболее рациональным решением будет отказаться от умывальника, туалета и душевой кабины в пользу настенного душа с обливными вёдрами, а для большего комфорта установить скамью.
Хозяева бани часто используют душевые кабины закрытого типа. Они предотвращают разбрызгивание воды, которая негативно сказывается на сроке службы отделочных материалов, в частности деревянных.
Пол в моечной рекомендуется утеплить, с помощью стяжки сделать небольшой уклон – для лучшего сбора и последующего слива воды. В качестве напольного покрытия преимущественно используют кафель без глянца, что снижает вероятность поскользнуться на мокром полу.
При проектировании предбанника важно правильно расставить мебель, не загораживая все необходимые проходы. Об этом можно позаботится ещё на стадии покупки столов и диванов. Так, откидной стол и небольшая скамья с табуретами существенно сэкономит площадь пола.
На стадии проектирования парильного помещения особое внимание уделяется также схеме печи – дымоход должен располагаться рядом с коньком, для удобства при его чистке. Для людей, которые любят после парилки окунуться в пруд или бассейн – рассчитывается планировка таким образом, чтобы расстояние от парной до выхода из бани было небольшим.
Оптимальные размеры бани на 4 человекаИсточник pinterest.comМебель для бани
При выборе мебели особое внимание уделяется следующим нюансам:
- Древесина. Материал должен отличаться низкой степенью теплопроводности, плотностью, а также содержать минимальное количество смол.
Древесина должна иметь устойчивость к высоким температурам и повышенному уровню влажности. Идеальными породами являются липа и осина. - Расстановка полок в парилке. Поскольку они предназначены не для сиденья, их размеры составляют: 1,4 – 2 м – длина; 0,4 – 1,5 м – ширина, а промежуток между ступенями варьируется от 40 до 60 см. Первый ярус располагают на уровне 20 см и выше от пола, а верхняя ступень – не более 1,2 м до потолка.
- Скамейки в парной. Существует три способа расположения полок: ступени (вдоль стены размещают от двух до трёх ступеней), г-образный тип (первая и последняя ступени устанавливаются на одной стене, а средний ярус на боковой) и купе (две полки размещаются друг над другом, верхнюю из которых можно поднимать).
Какие особенности строительства бани и домов ручной рубки? Как правильно выбрать материалы и на что обратить внимание? Ответы смотрите в этом видео:
Особенности банных помещений
Подводя итоги, следует отметить некоторые хитрости банной атмосферы. Например, пар недостаточной влажности может привести к охлаждению гостей в парном помещении. Так, при относительном его уменьшении на 30% влага будет значительно быстрее испаряться из кожи человека, что приведёт к остыванию тела.
Именно для контроля этого процесса в парильной вешают сразу два градусника – один стандартный, а второй имеет кончик, обмотанный влажной тканью, что позволяет показывать температуру кожного покрытия человека, который находится в парилке.
Термометр для использования в банеИсточник oglasi.svet24.siДеревянная купель для бани: разновидности, монтаж, стоимость
Заключение
Подбор проекта парной зависит от количества посетителей, которые будут одновременно принимать банные процедуры, эффективности и размеров печи, а также ваших личных предпочтений.
Для эффективного использования пространства парной максимально уменьшается площадь пола в пользу пространства для лежаков и полок.
Каждый базовый вариант парилки можно скорректировать под индивидуальные потребности и оформить в едином стиле с остальными постройками на участке.
Оптимальные размеры бани для 2 человек
Ответить однозначно на этот вопрос невозможно. Ведь сколько людей — столько и мнений. Каждый человек по-своему представляет проект идеальной сауны. Для кого-то — это небольшая постройка рядом с домом, которая используется изредка время от времени. Мечта другого — настоящий банный комплекс, в котором можно не только хорошо попариться, но также отдохнуть с целой компанией друзей. В любом случае, размер бани — один из важнейших параметров, который учитывается на первоначальном этапе создания проекта. И он зависит не только от личных предпочтений и желаний хозяина земельного участка, но и от многих других факторов. К ним относятся основной материал постройки, размер земельного участка и дома, тип и качество грунтов, возможность подключения к коммуникациям, количество принимающих баню и так далее.
Тщательно продумав все эти и прочие детали, вы сможете подобрать оптимальный размер вашей бани для личного пользования.Схемы оптимальных размеров
Планировка и общие размеры
Классическая русская баня состоит из парилки, моечной, предбанника и других подсобных помещений. В качестве основного обогрева используется электрическая или дровяная каменка.
Минимальные размеры бани, рассчитанной на 2–3 человека, составляют 1,9×2,1 метра. Она комплектуется одной большой скамейкой для принятия процедур в положении сидя или лежа.
Средняя баня имеет следующие параметры – 2,6×2,5 метра. Для эргономичного использования свободного пространства, скамейки размещаются в Г или П-образной форме по всему периметру.
При этом важно соблюдать оптимальную высоту потолка, чем он ниже, тем меньше расход топлива на обогрев помещения.
Как правило, скамья для отдыха размещается на уровне верхней части топки – 100 см, поэтому для максимального удобства отдыхающих, оптимальная высота потолка должна составлять не менее 2,4 метра.
Высота бани определяется технологическими особенностями проекта и общими габаритами будущего строения.
Перед строительством бани следует определить:
- перечень необходимых помещений;
- местоположение помещений на плане строения.
Баня на 2 человека может состоять из:
- комнаты отдыха, совмещенной с раздевалкой;
- душевой кабины;
- парилки.
В бане для 3 человек не будет лишней отдельная душевая, для четырех — отдельные раздевалка и комната отдыха.
- Помещение для хранения топлива будет полезным при печном отоплении.
- Постирочная облегчит труд хозяйки.
- Тамбур повысит комфортность использования бани в зимнее время.
- Туалет нужен, если хозяева любят отдыхать в бане длительное время.
Большое значение для приятного времяпровождения в бане имеет удобная планировка. Составляя план или выбирая проект бани следует обращать внимание на:
- удобство передвижения;
- рациональное использование пространства;
- разделение площади строения на зоны отдыха, помывки, обслуживания;
- соблюдение правил пожарной безопасности (согласно им двери из парилки, душевой, тамбура должны открываться наружу).

Нужно мысленно пройтись по плану, подумать, удобно ли будет пройти из комнаты отдыха в баню или парилку, не будешь ли ты мешать другим отдыхающим, занося дрова, рационально ли расставлены мебель и оборудование.
Несколько слов о бане
Чрезмерно большие габариты парилки, также как и слишком маленькие, будут создавать неудобства. На прогрев большого помещения будет уходить значительное количество топлива, что приведет неэффективному расходованию ресурсов. Так как любое пространство ограничено, то увеличение парилки повлечет за собой уменьшение остальных помещений, например, комнаты отдыха. Поэтому уже на стадии проектирования нужно позаботиться о том, какие будут оптимальные размеры для конкретной бани.
В расчет площади основной комнаты в бане берется не только предполагаемое количество человек, которое будет находиться внутри, но и размер печи. Рядом с ней должно оставаться достаточно пространства, чтобы никто не получил ожог или другое повреждение.
Пример плана бани с парной и комнатой отдыха
Топливом служит газ, уголь, дрова, электричество. В каждом случае будет разная внутренняя компоновка. Больше всего места занимают кирпичные печи на дровах. Положительным качеством в этой ситуации служит то, что на них не нужно устанавливать дополнительную защиту от воздействия на стены, с ними тяжелее получить ожог.
Во время монтажа металлической печи ее поверхность нуждается в дополнительной термозащите от возможного обжигания.
Подбирая оптимальный размер парилки в бане, стоит брать в расчет то, в какой позе будут париться посетители:
- для позиции сидя потребуется минимум места;
- промежуточные положения полусидя/полулежа нуждаются в большем пространстве;
- значительного места требуют бани, в которых любят париться лежа.
Чаще всего оптимальный размер бани для 3 человек в сидячем положении ограничивается значениями 1,3х1,8 м. То же помещение бани для 4 человек понадобится расширить до 1,5х2,0 м.
В эти габариты не включена печь. Под нее также нужно выделить место исходя из ее эксплуатационных характеристик.
Габариты полки (ширину) выбирают по тому, как большее время будут себя вести посетители:
- достаточно 0,4 м ширины от стенки для сидячего положения среднего человека;
- посидеть с поднятыми ногами на полке удастся на ширине около 0,8-0,9 м;
- принять полулежащую позицию получится с расстоянием до стены 1,5 м;
- во весь рост удастся полежать на лавке не менее 1,8 м, но чаще всего в таком случае располагаются уже вдоль стены.
Предлагаем ознакомиться: Размер печки для бани
Выбирая оптимальные размеры полки в бане, стоит учесть, что их устанавливают часто в несколько этажей.
- Наименьшая ширина у нижней ступени. Она используется для детей или в качестве подставки для банных принадлежностей.
- Вторую полку используют чаще всего, поэтому у нее наибольшая ширина.
- Высота от поверхности третьей полки до потолка не должна быть меньше метра, чтобы оставалась возможность там сидеть комфортно.

Высота между полками остается примерно 0,3-0,4 м. Доски на поверхности прибиваются с зазором в 3-4 мм для улучшения циркуляции воздуха.
Дверной проем должен быть таким, чтобы минимизировать потерю жара. Обязательно устанавливается небольшой порожек. Распространенными габаритами являются размеры 0,8х1,5 м.
Дверь из парилки всегда должна открываться наружу, чтобы обеспечить безопасную эксплуатацию бани.
Основные правила для определения размеров отдельных помещений бани
Предбанник
Оптимальные размер предбанника колеблются от 1,2*2,5 до 1,8*3,5 м. Так как помещение не предназначено для долгого нахождения в нем, больших размеров не требуется. Они вполне достаточны и для небольшой семьи, и для достаточно крупной компании. Увеличивать предбанник имеет смысл только если площадей явные излишки, либо для использования его как склад.
Самое большое помещение практически любой бани. Даже для бани с самым небольшим размером, эта комната занимает около половины всей площади.
В крайнем случае, если баня совсем невелика, раздевалку объединяют с предбанником. В таком случае площадь комнаты отдыха может достигать 2/3 общей площади бани.
Моечная
Как и в случае с другими помещениями, конкретные размеры моечной зависят, в первую очередь, от размеров бани. Обычно она занимает около трети от общей площади. Минимальными размерами являются для 3-4 человек 2*2,1 м., при наличии душевого отделения 2,5*3 м. Если планируется бассейн, соответственно доля моечного отделения увеличивается на его площадь с подходами к нему.
Парилка
Большое значение при определении оптимальных размеров парной играет тип используемой печи. Наиболее массивные кирпичные печи не нуждаются в дополнительной изоляции от стен, в то время как металлические должны устанавливаться не ближе одного метра от стен. Минимальные размеры парилки для 3-4 человек составляют 1,5*2 м.
Нет смысла подробно останавливаться на небольших 10-12 метровых пристройках к дому и их планировке – главное для нее все поместить, а минимальные требуемые размеры указаны.
Гораздо интереснее возможные схемы размещения помещений площадью 25 кв.м. (стандартный сруб 5*5) и выше. Ниже представлены некоторые из них.
Баня 5*5
Планировка позволяет разместить все 4 вида помещения: холл (предбанник), комната отдыха, душевая и парная, соотношение площадей которых соответственно 0,5*2,35*1,25*1, что достаточно близко к рекомендуемым. Кроме того, имеющейся площади достаточно для строительства небольшой веранды.
Баня 5,4*6,4
Особенности планировки: роль предбанника играет терраса; в комнате отдыха расположен туалет, за счет чего доля моченой несколько ниже, чем обычно; для удобства выделен небольшой склад для дров. Соотношение площадей помещений практически 2,3*1*1 соответственно комната отдыха, моечная и парилка.
Баня 9,3*5,5
Еще более просторная планировка, при которой практически все площади увеличиваются. Парная достигает размера 7,3 кв.м., что является близким к максимальному без потери эффективности использования.
Соотношение площадей основных помещений 2,5*1,1*1. Такие размеры позволят с удовольствием провести время немаленькой компании любителей пара.
Наличие мансарды превращает небольшую баню в достаточно комфортное место досуга, так как именно площади комнаты отдыха увеличиваются в несколько раз. Наличие террасы еще делает проект еще более интересным. Соотношение площадей на 1-ом этаже следующее: раздевалка (совмещенная с предбанником)/моечная/парилка соответственно: 1*1,6*6.
Габариты скамеек
Оптимальные габариты скамеек, установленных в парилках, определяются функциональными особенностями их использования:
- Для сидения с вытянутыми ногами – 45 см;
- Для сидения с согнутыми ногами – 95 см;
- Для лежания с поднятыми ногами – 155 см;
- Для лежания с выпрямленными ногами (во весь рост) – 185 см.

Если в парной имеется до трех скамеек, то самая низкая из них должна иметь минимальную ширину. Она предназначена для детей или выкладывания аксессуаров и принадлежностей для проведения процедур.
Оптимальное расстояние между верхней скамьей и потолком не превышает 1 метра.
Между отдельными деревянными элементами, из которых изготовлены скамейки, должны быть небольшие зазоры в 0,35 см для обязательной конвекции воздуха.
Габариты предбанника и комнаты отдыха
Предбанник представляет собой специальную раздевалку, которая расположена непосредственно перед парной или моечной.
Некоторые проекты предусматривают совмещение предбанника с комнатой отдыха.
В предбаннике посетители раздеваются и подготавливаются к проведению основных процедур, а также отдыхают после мытья.
В большинстве предбанников расположены скамьи, стулья, зеркала и вешалки для одежды. Некоторые оснащаются компактными бассейнами для проведения термических процедур. Для любителей массажа может быть установлен специальный топчан. Здесь же находится всевозможная утварь для оздоровительных процедур – ведра, ковши, топливо для каменок.
В средней бане предбанник имеет следующие габариты – 20 кв.м. в малогабаритных строениях – до 6 кв.м.
Отдельную комнату для отдыха рекомендуется обустраивать в средних и больших строениях. Некоторые проекты предусматривают наличие открытых или закрытых террас, которые в большинстве случаев используются в качестве комнат отдыха.
Для компании из 4 человек достаточно комнаты отдыха на 8 кв.м. В ней вполне может уместиться компактный столик, стулья и даже раскладной диван.
Дополнительно можно оборудовать место для проведения чайной церемонии. Для компаний на 6–10 человек лучше предусмотреть помещение размером до 15 кв.м.
В средней бане предбанник имеет следующие габариты – 20 кв.м., в малогабаритных строениях – до 6 кв.м.
Функциональное наполнение моечной комнаты, то есть наличие емкостей для воды, душевой кабинки или целого бассейна, определяется на стадии разработки проекта.
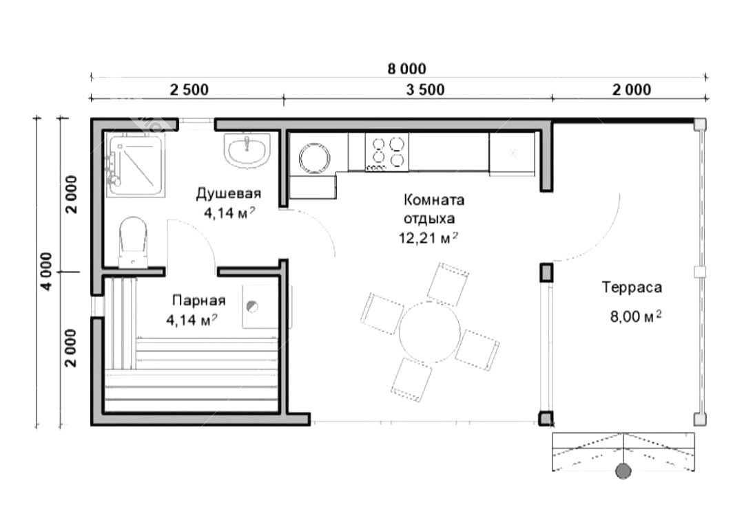
При этом для каждого из вариантов будут предусмотрены свои нормативы размеров. Если говорить о бане для четырех человек, в которой моечная комната оснащена только резервуарами с водой, минимальный размер такого помещения составит 200×210 см.
При этом печка устанавливается таким образом, чтобы ее каменка находилась в парилке, а топка с баком для горячей воды – в моечном отделении. Мощность печи должна быть достаточной, чтобы полноценно обогреть парилку и обеспечить парильщиков горячей водой в полной мере. Например, небольшая металлическая печь с каменкой способна прогреть помещение объемом в 18 м3, а также нагреть около 70 литров воды.
Если только речь не идет о совмещенной парилке с мойкой – отделять эти помещения друг от друга в таком случае должна глухая стенка с дверью.
Вполне приемлемо в моечной комнате врезать окно. Размещать его следует не ниже 1,4 метров от пола. Желательно устраивать окна в баню не напротив входной двери и не делать их слишком большими – достаточно 50×70 см.
Дверное полотно для помывочной делают стандартным – 180×80 см, а вот порог желательно приподнять, чтобы избежать сквозняков.
Предлагаем ознакомиться: Глиняный раствор для кладки печи: как приготовить, где взять глину, как сделать состав, раствор из глины, как правильно развести
При наличии дополнительных средств мойку можно оборудовать душевой кабинкой. Если выбрать достаточно компактную модель, то она займет порядка 90×90 см.
Таким образом, учитывая все указанные показатели, можно утверждать, что стандартный размер бани для четверых человек при наличии трех отдельных комнат, будет составлять от 360×380 см.
Если же появится необходимость в совмещении парилки с моечным отделением, размеры такой бани должны составлять как минимум 210×400 см.
Размеры окна для парной
В парной очень высокая температура и повышенная влажность, поэтому классические осветительные приборы в ней размещать категорически запрещается по технике пожарной безопасности. Поэтому чтобы париться не в полной темноте, в ней необходимо сделать небольшое окошко и утеплить его. Это позволит создать в парилке приемлемый уровень освещенности и предотвратить потерю тепла.
Чтобы избежать сквозняков, окно следует делать на высоте не менее полутора метров от пола, а чтобы избежать потери тепла, в него устанавливают двойной стеклопакет. Что касается оптимальных габаритов окна, то они составляют приблизительно 500х700 миллиметров.
Также уделите внимание и размеру дверей в бане. Дверной проем в парилку должен быть немного больше, чем аналогичный в душевой. Это позволит сохранить немного полезной площади без ущерба комфорту.
Таблица минимальных размеров бани и ее помещений
Обустройство дверей, окон и освещения
Размеры дверей – не маловажный параметр при обустройстве подобного строения. Рекомендуемые габариты дверей с одной створкой следующие: ширина – 75 см, высота – 175 см.
Чтобы сохранить тепло, пол в парной должен быть на 22 см выше, чем в помещении для мойки. При этом рекомендуется установить дверь, открывающуюся наружу с высоким порогом.
В маленьких и компактных парилках не предусматривается обустройство окна, чтобы предотвратить возможные тепловые потери.
В габаритных парилках рекомендуется устанавливать низкие окна, расположенные ближе к полу. Размеры окон – 35×35 см. Лучше предусмотреть парный способ размещения окон на стене, противоположной от отопительного прибора.
Подобное расположение способствует правильному скоплению пара под потолком и предотвращению его смешивания с охлажденным воздухом над уровнем пола.
При проектировании бани особое внимание следует обратить на правильное освещение парилки. Светильники не должны быть чрезмерно яркими, чтобы не утомлять глаза. Рекомендуется выбирать устройства, предназначенные для эксплуатации в помещениях с повышенной влажностью и перепадами температур.
Таким образом, наиболее подходящие габариты парной и моечной можно подобрать, учитывая максимальное количество посетителей, их половую принадлежность и возраст, а также эксплуатационные характеристики отопительного оборудования.
Общая информация
При проектировании бани большинство людей уделяют большое внимание выбору строительных материалов, утеплению, гидроизоляции и другим вещам, оставляя без внимания размеры будущего строения.
И это очень большая ошибка, поскольку баня, размеры которой будут рассчитаны неправильно, будет непрактична в эксплуатации. Например, если парилка будет слишком большой, то для того, чтобы прогреть ее до нужной температуры потребуется значительно больше времени и топлива. Помимо этого, увеличивая ее размеры, вы жертвуете площадью душевой и комнаты отдыха. Поэтому к расчету размеров бань следует подходить очень серьезно.
Подбор печи-каменки
Определяясь с тем, каких размеров должна быть парилка, стоит принимать в расчет не только нормативы пространства на одного человека, но и габариты печи с каменкой, будь то кирпичная или металлическая. Топливом для печи может служить жидкое горючее, газ, дрова или электричество.
Печи из кирпича занимают довольно много места, однако, ввиду того, что об их стены трудно обжечься, никакого дополнительного простенка для изоляции не требуется, что, конечно, экономит пространство.
Баня на одного человека
Обычно такая баня размещается в пристройке и ей не требуется предбанник.
Площадь определяется минимальной, но с учетом того, чтобы сохранялись удобства. Иначе посещение бани приведет к дискомфорту вместо получения удовольствия.
Минимальная ширина раздевалки должна быть не менее 1 метра, а общая площадь – не менее 1,3 кв.м. Душевую вполне достаточно сделать еще меньше – 1 кв.м. Парная комната должна помимо места для человека (1 кв.м., если париться только сидя, и 1,5 кв.м. – стоя) предусматривать и место для печи.
Таким образом, общая площадь бани на одного человека должна составлять примерно 4,5- 6 кв.м.
Определение оптимальных параметров
Моечное отделение с душем на четырех посетителей.
- Исходя из проекта бани, в моечной комнате могут устанавливаться резервуары с холодной и горячей водой либо душевая кабина и небольшой бассейн.
- В любом из случаев для мойки определены свои минимальные габариты. Для четырех пользователей стандартное помещение, не имеющее бассейна и душа, должно обладать сторонами, минимум 200×210 см.
- Печь можно разместить сразу в двух комнатах. Ее топка может быть в мойке, а каменка – в парном отделении. В моечной комнате должен размещаться и печной бак для нагретой воды.
- Банная печка должна обладать размерами, достаточными для обогрева помещений парной и подготовки нужного объема кипятка. Так, компактная каменка с металлическими стенками, способна отопить парилку, имеющую объем в 18 м3 и нагреть до 70 литров воды. Этого вполне достаточно для одновременного обслуживания четырех пользователей.
- Парилку от моечного помещения следует отделять глухой перегородкой, имеющей дверь.
- В мойке можно установить окна. Их надо поместить на высоту не меньше 140 см от уровня пола. Лучше, если это будет не стена напротив входа в помещение. В противном случае будут создаваться сквозняки. Оконные блоки не должны быть слишком большими. Оптимальный размер — 50×70 см.
- Дверь в моечное помещение можно установить почти стандартного размера — 180×80 см. Порог надо сделать высоким, чтоб по полам не гуляли сквозняки.

- Если вас не смущает дополнительная цена оборудования, то в мойке можно расположить душевые кабины. Минимально, каждая из них будет занимать площадь 90×90 см.
- При желании соорудить бассейн, учтите, что объем мойки увеличится.
Чтобы определить оптимальный размер парилки в бане, нужно продумать, в каком положении парильщики будут находиться во время процедур – сидя или лежа. Кроме того, могут быть предусмотрены иные варианты – сидя на полке, согнув ноги, или лежачее положение с ногами на подставках. Следовательно, значительным образом влияет на габариты парной расположение лежаков, их количество и размер.
Предлагаем ознакомиться: Кирпичный щиток для металлической печи порядовка
Если речь идет о небольшой парной, рассчитанной на четверых посетителей, где полки позволяют, как сидеть, так и прилечь, стартовые размеры будут начинаться с 150×200 см.
Прибавив к этому значению площадь подходов к лежанкам и габариты печи-каменки, можно говорить о приемлемых размерах парилки.
В парных отделениях с принудительным вентилированием, как правило, не предусматривают никаких окон. Однако если такой системы нет, для проветривания и просушки парилки потребуется оконце с размерами 40×40 см. Его размещают в противоположной от печи стороне на уровне верхнего полка. Остекление делают двойным.
При проектировании приспособлений для парения необходимо находить консенсус между стандартизированными требованиями и наличием индивидуальных особенностей членов семейства или постоянных посетителей.
Варианты для бани или сауны
От заранее выверенных метров и сантиметров зависит комфорт пребывания в бане. Также эти данные важны при закупке строительных материалов.
https://www.youtube.com/watch?v=uSB-P947znw
Для этого и рекомендуют сначала измерять предполагаемое пространство, а затем выбирать приглянувшуюся или оптимальную для помещения конфигурацию и глубину полков. Параметры следует соотносить с требованиями удобства и комфорта тех, кто будет находиться здесь с целью мытья или оздоровления.
Европейские стандарты для бани
При замерах учитывают следующее:
- длина полка может варьироваться от 1,8 до 2 м – последний параметр позволит принимать гостей практически любого роста, а экономия на длине сделает неудобным лежачее положение для высокого человека;
- можно ограничиться и 1,5 м, но на такой ступени можно лежать только с полусогнутыми ногами или в позе эмбриона, что делает сомнительным получение настоящего удовольствия от парилки;
- минимум для нижней полки – 40 см, обычно ее используют как подставку под ноги, но такая ширина позволяет и сидеть с достаточным комфортом новичку или плохо воспринимающему высокую температуру;
- средняя и верхняя обычно делаются не менее 60 см, на таком пространстве можно сидеть в разных позах и довольно длительное время.
На даче
Стоит также отметить:
- если полки шириной в 90 см, на них удобно принимать лежачее положение и на спине, и на животе;
- расчет высоты начинается не с нижней, а с верхней полки, при этом основным ориентиром в русской бане служит паровая дверка печи, но нижняя лавка не должна находиться ниже 30 см от пола;
- крепление вертикальных опор должно быть не реже 60 см, чтобы конструкция не прогибалась даже при значительном весе лежащего или сидящих, хотя оно может немного варьироваться в зависимости от толщины используемого дерева;
- высота верхнего полка должна измеряться от потолка сверху – от головы сидящего на верхней лавке оставляется не менее метра до потолка, поэтому имеет важное значение, сколько составляет высота бани.

Размеры полков в парилке
Нюансы высоты
Размеры полков в сауне могут отличаться от параметров, рекомендованных для русской парилки. Достаточно провести сравнение способа нагревания воздуха и обычного метода парения, чтобы в этом убедиться.
В финской чаще сидят, чем лежат, и расстояние от полка до потолка, и ширина лежака не столь принципиальны. Полок может подниматься от пола на высоту в 140–150 см. К тому же сауну можно строить меньше в высоту и по остальным размерам. Воздух в ней нагревается намного быстрее.
Размеры в плане
Парная с мойкой в одном помещении
Если по каким-либо причинам на приусадебном участке недостаточно места для возведения просторной бани, очень часто приходится экономить пространство, совмещая парную и моечную комнату в одном помещении. В данном случае будет довольно сложно сказать, какой размер бани самый оптимальный, ведь не каждый захочет жертвовать комфортом и ухудшать качество банных процедур.
Стоит признать, что мойка в бане – это достаточно популярный вариант обустройства.
Поскольку в такой объединенной парилке, из-за наличия емкости с горячей водой, будет повышенная влажность, рекомендуем придерживаться следующих советов:
- Вам будет намного комфортнее, если сначала распарить тело, а уж потом приступать к мытью.
- Подача дров в топку печи должна производиться из предбанника.
- Нормативы к обустройству окон и дверей аналогичны таковым в отдельной парилке.
- Для размещения инвентаря для мытья, специальных лежаков и емкостей с горячей и холодной водой, следует заложить в проект дополнительную площадь. Кроме того, понадобится пространство не менее 80×80 см для установки вертикальной каменки для металлической печки.
Метки: баня, оптимальный, парилка, размер
« Предыдущая запись
Бюджетные бани небольшой площади
В последнее время все большую популярность приобретают бани размером 4х4 метра. Они обладают компактными размерами, неплохой практичностью и удобством, а также недорогой ценой.
Несмотря на довольно скромную площадь, благодаря продуманной планировке в бане предусмотрено три комнаты — парилка, душевая и предбанник, поэтому в такой бане вы можете хорошенько попариться и приятно провести время с одним или двумя друзьями.
Что касается планировки, то такие бани могут быть одноэтажными или мансардного типа. Во втором случае комната отдыха располагается на втором этаже, а первый полностью отводится под парилку и моечную, что позволяет посещать баню большой компанией.
Если отвечать на вопрос об оптимальном размере бани, то однозначного решения нет, поскольку все зависит от того какую баню вы хотите и как вы ее хотите обустроить.
Ниже видео о том, как самому рассчитать оптимальные габариты для бани.
Стандартный размер бани для дачи. Размер бани. Оптимальный размер бани, конструкция. Размеры парной и мойки
Перед началом строительства бани на участке своего загородного дома, наверное, каждый хозяин первым делом задумывается о том, какой размер бани выбрать, чтобы обеспечить максимальный уровень удобства, и в тоже время, рационально использовать площадь и свои ресурсы.
Учитывая то, что собственная баня должна, как правило, удовлетворять потребности одной семьи, стандартные размеры бани в таком случае, составляют 5х5 м, или же, другими словами, площадь ее должна быть 25 м².
Теперь о полах
Ванная комната является одним из самых ценных и уважаемых мест в доме. Зеркала для ванной: дополнительная мебель. Зеркало является фундаментальной частью ванной: этот предмет обеспечивает комнату и способствует гармонизации окружающей среды, создавая приятные перспективы, которые делают каждую уникальную ванную комнату. Зеркало в ванной комнате, расположенное над умывальником, также оказывает важную помощь при расчесывании, чистке или просто приготовлении к утру перед лицом дня. Поэтому выбор зеркала должен отвечать потребностям семьи, не забывая при этом о том, чтобы стиль и декор ванной комнаты были учтены при выборе.
При строительстве деревянной бани в виде сруба, наиболее подходящим материалом будет деревянный брус, благодаря своим удобным геометрическим параметрам и хорошим теплоизолирующим свойствам.
В этом случае, для того, чтобы рассчитать, какой размер бруса выбрать для бани, нужно учитывать не только размер самого помещения, но и длину вылета бруса по углам здания.
Зеркала для ванной комнаты: как выбрать идеальное решение? Прежде чем вы рассмотрите материалы и форму зеркала для ванной комнаты, вам необходимо определить правильный размер. Если ванная очень большая, вы можете выбрать двойной раствор умывальника, который, таким образом, будет дополнять два отдельных зеркала, которые будут расположены на близком расстоянии. В противном случае, если ванная комната маленькая, желательно купить зеркало для контейнера, что обеспечит больше места для хранения продуктов и аксессуаров любого типа, таким образом оптимизируя доступную площадь.
Для качественной теплоизоляции стен помещения, размер бруса для бани по толщине должен составлять не менее 100 мм.
Планировка бани
Как правило, общепринятая планировка, учитывая стандартные размеры бань, предполагает наличие в них, как минимум четырех помещений.
Первое , второе — это парная, третье — помывочное отделение, и четвертое, это комната отдыха
.
Вы также должны всегда стараться следовать общей линии мебели для каждой комнаты и, в частности, для ванной комнаты. Зеркальные покрытия, материалы и цвета должны идеально вписываться в стены и мебель в ванной, создавая гармоничный и элегантный стиль. Итак, если вы выберете современный декор, зеркало должно будет вернуться к этому стилю, предлагая квадратные и основные линии, возможно. В зависимости от ваших потребностей вы можете выбрать зеркала с подсветкой по периметру, зеркала с двойным освещением или зеркала с подсветкой.
Такие установки способствуют, несомненно, сложным операциям, таким как трюк или складчатость. Наконец, они скрывают некоторые интересные предложения, с антиквариатом, предлагаемым по скромным ценам. Эти решения широко используются в мебели для ванных комнат, с зеркалами, расположенными на умывальнике или, альтернативно, позади ванны, тем самым обеспечивая большую глубину помещения.
Задолго до того, как мы будем иметь дело с Сарваром или Бюком. Паркинг полупустой, полная ванна. Мы платим, как всегда, с карточкой и без каких-либо проблем.
В отдельных случаях, какие бывают при постройке бани в ограниченных условиях, в целях экономии места и средств, предбанник совмещают с комнатой отдыха, а парная, после принятия банных процедур, используется в качестве помывочного помещения.
Как обустроить двери, освещение и окна
Как и на пустой автостоянке, были полные бассейны. Единственное, что мы не посетили, это сауна. Не то чтобы мы боялись, но мы не были готовы — без халата. Ну, в спа-салоне не купается. Отличная еда, цены, как и в нашей стране, огромный выбор. Вечером мы поехали приятно расслабленно, но также устали. На берегах реки Раба, в идиллической атмосфере волшебный город западной Венгрии, история которого неразрывно связана с историей замка Западной Шарвар с богатой историей находится в 120 километрах от Вены и Граца, 193 км от Будапешта, в 75 километрах к югу от одного из самых красивых венгерском города — Шопрон, в 60 км к северу от Балатона и примерно в 260 км к юго-востоку от Брно.
Предбанник
Обычно, это прохладная комната, находящаяся сразу же после входа в баню. Предназначена для защиты внутренних помещений от попадания холода, хранения небольшого запаса дров, веников и прочих принадлежностей, а также она используется в качестве раздевалки. Отапливается в зимний период за счет высокой температуры топочного отделения печи-каменки, выходящего в предбанник, или при помощи отдельной небольшой печки.
Город был важным перекрестком военных путей в древние времена; доказательство своей стратегической роли является тем фактом, что на протяжении тысяч лет, могут похвастаться силой века, этот район был важным центром образования и культуры. Испаренный солевой раствор используется для лечения заболеваний астмы и верхних дыхательных путей. Как ванна лечение может быть использован с отличными результатами в лечении заболеваний опорно-двигательного, ревматизма, бесплодия, послеоперационная реабилитации и Выявление проблем вегетативной нервной системы.
Размер предбанника для компании из 2-3 человек, должен составлять как минимум 1,2х2,5 м, а если его увеличить до 1,5х3,0 м, можно рассчитывать на комфортное использование семьей из 4 человек.
Достаточно часто, когда используется минимальный размер бани, предбанник, по совместительству, выполняет функцию комнаты отдыха, для чего в нем устанавливают стол и скамейки или лежанку размером 0,5х1,8 м. При этом размер предбанника должен быть увеличен до 3,5х2,0 м, чтобы обеспечивать комфортное одновременное размещение всех посетителей бани.
В прошлом, однако, это была его сила Сарвар важных перекрестков, и с древних времен. Площадь в десять гектаров вырастает более 350 видов деревьев и многих других редких растений. Всего в нескольких шагах от отеля находится главная улица с множеством магазинов; Вы можете посетить все, от известных пекарен, через уютные рестораны до сувенирных магазинов, сумочек и изделий из кожи. Конечно, наличие банкоматов на всех распространенных типах платежных карт; они также могут использоваться во многих магазинах напрямую.
Размеры парного отделения
Соседние достопримечательности включают дендрарий и средневековый замок. В столетии первая книга была напечатана на венгерском языке.
В соседнем дендрарий является площадь 10 га бесчисленны редкой растительностью, более 350 видов деревьев и кустарников, дубов и тис и запоминание более чем через сто лет. Из семи водоемов до озера, состоящих на поездки на лодках, берега реки Раба, дикий сад и лесопарк возле города само по себе таит много в сценическую для каждого посетителя, независимо от возраста.
Комната отдыха
В случае, когда предполагается стандартный размер бани, в ней обустраивается полноценная отдельная комната для отдыха, размером 4х2,5м. В ней обычно устанавливается набор мебели для отдыха из невпитывающих влагоустойчивых материалов, лежанку или кресло-качалку, при желании, на стену монтируется телевизор, устанавливается холодильник для фруктов и напитков.
Длинный каменный мост в Шарвар ведет к пятиугольной крепости замка надашдь, когда окруженный рвом, который с момента своего основания в веках служил в качестве военной крепости и благородном жительства. Для драгоценных и эффектных элементов интерьера Рассмотрим теперь интерьер, чтобы быть одним из самых красивых замков музеев в Венгрии прямо здесь, в городе Шарвар. Воздействие проинструктировать посетителя о прошлом, в котором история Сарвар переплетается с историей замка, а также жизни венгерских гусар, но есть также богатая коллекция декоративно-прикладного искусства продукции.
Имеет две или три двери, одна из которых ведет в предбанник, а другие, в помывочное отделение и в парную. Она, как правило, оборудуется окном с двойным остеклением и открывающейся секцией для охлаждения после парной и проветривания помещения.
Если баня строится из расчета на 6 человек и более за одно посещение, обустройство отдельной комнаты отдыха, является уже скорее обязательным условием для комфортного принятия банных процедур.
Сайт был в далеком прошлом, населенных славянами и стоял там один раз и славянское поселение. Сегодня замок находится в центре города на площади Кошута, а также то, что вы большинство уловов в Шарвар. Замок был окружен рвом, поэтому доступ к нему каменный мост.
Баня для большой компании
Интерьер замка теперь музей, где вы можете узнать о его истории.
На стенах фрески, которые изображают различные события из дней борьбы с турками. В спа-салоне вы найдете для себя соответствующие услуги для каждой возрастной категории. Лечебная воды здесь, в Шарвар, содержащей щелочные, хлорид, бром, йод, многочисленные микроэлементы и испаренный физиологический раствор используются для лечения астмы и заболеваний верхних дыхательных путей. Как ванна кора может быть использован с отличными результатами в лечении заболеваний опорно-двигательного, ревматизма, бесплодия, послеоперационная реабилитации и Выявление проблем вегетативной нервной системы.
Совет!
В целях соблюдения правил противопожарной безопасности, должны открываться только наружу.
Парная
Парную можно по праву называть самым сердцем любой бани. Это, собственно, то помещение, ради которого устраивается весь банно-оздоровительный комплекс.
Противопоказания: ишемическая болезнь сердца, варикозное расширение вен, случаи внезапной дыхательной и сердечно-сосудистой недостаточности, инфекционных заболеваний.
Под наблюдением ревматологов с высоким уровнем знаний в состоянии здоровья, чтобы измерить «прошивает» состоит из различных процедур оптимального лечения. Гостям также предлагаются дополнительные услуги за пределами традиционных курортов и пакеты варьируются от одной до трех недель. Каждая процедура начинается с медицинским осмотром, в котором композиция составлена из индивидуальной программы лечения.
Для нормального выполнения своих функций, при оборудовании парной своими руками, рекомендуется соблюдать определенные минимальные требования.
- Уделить повышенное внимание теплоизоляции всего помещения, включая пол, стены, потолок, окна и двери.
- Рекомендуемый размер парного отделения должен составлять ориентировочно 2,5х2,5 м.
- Высота потолков должна быть не более 2,1 м.
- В помещении должна быть установлена печь-каменка с рекомендуемой массой камней 100 килограмм, и горизонтальные полки, длиной 1,8-2,0 м, установленные в два или три яруса на разных уровнях по высоте.

- Желательно, чтобы в парной было окно, с двойным или тройным остеклением, однако оно обязательно должно быть небольшого размера. В других помещениях размеры окон в бане не имеют принципиального значения, и могут выполняться на усмотрение владельца.
Основные правила для определения размеров отдельных помещений бани
В качестве терапии предлагают различные виды массажа и гидротерапии, электротерапии и кислородных процедур и программ упражнений для физических лиц, соответственно. группа. Ванны в окружении зелени Шарвара, рядом с системой рекреационных водоемов. Нынешние условия небольшие, имеют семейную атмосферу и очень хорошую и эффективную целебную воду. Леса и луга находятся в их окрестностях, и в этом окружении город построит свой новый туристический центр. Вместо модернизации и расширения старых ванн, чтобы построить совершенно новый терапевтический спа-центр с большим количеством спортивных и оздоровительных услуг, с опытом комплекс бассейнов с саунами, бассейном для детей, бассейны и исцеления.
Совет!
В целях сокращения тепловых потерь при входе и выходе из парной, конструкцию двери нужно делать как можно меньшей высоты, при этом, оборудовав ее высоким порогом.
Помывочное помещение
Предназначено для мытья тела после оздоровительных процедур. В нем обычно устанавливаются емкости с холодной и горячей водой и скамьи для помывки. Если есть централизованное водоснабжение, можно оборудовать душевую кабинку. Помещение может использоваться, как в комплексе с баней, так и самостоятельно, для ежедневного мытья и принятия душа, без протапливания парного отделения.
Эти новые ванны станут требовательным объектом, способным предоставлять полный спектр услуг, чтобы соответствовать последним западным тенденциям. Существует также медицинское обслуживание, предлагающее широкий спектр современных, традиционных и естественных лекарств.
В спа-центре предлагается целый ряд фитнес-залов в течение дня. Наши программы дают всем хорошую возможность узнать здоровый образ жизни в спорте и движении.
Наши тренинги не предназначены для развития спортивных навыков, упор делается на программы укрепления здоровья и хорошее общее чувство.
Его расположение обычно обустраивают так, чтобы оно являлось как бы промежуточным помещением между парной и комнатой для отдыха.
Это можно обосновать несколькими положительными аспектами такой планировки помещений.
- Горячий воздух из парной не будет сразу попадать в относительно холодную комнату отдыха, что позволит избежать образования конденсата, и как следствие, сырости в помещении.
- Тем самым, горячий воздух из парной будет обогревать помывочное отделение, создавая комфортные условия для мытья.
- После жаркой парной есть возможность сразу же принять холодный душ или окатиться ледяной водой в помывочном отделении.
Садовая баня Емеля.
Баня для семьи
Индивидуумы могут выбрать индивидуальные программы для измерения после измерения их состояния. Вы можете пойти в аэробику в течение дня в разное время, легко перегружать лишний вес, поддерживать свою физическую форму и быть более подходящим.
Мы предлагаем широкий спектр программ от аэробики через гимнастику позвоночника до дыхательной техники.
Создаем дизайн-проект бани: размеры парной
Самые маленькие посетители могут круглый год водный питомника, детский бассейн на летней площадке, чтобы играть, открытый бассейн для детей ясельного возраста и детский приключенческого бассейн. Веселые шоу и детская анимация также способствуют идеальному выпуску детей. Услуги, которые предлагаются для посетителей с весны до осени: Плавание для младенцев Детские приключения бассейна детской площадки игрушки Летней серии павильонов различного многофункциональных спортивных площадок Пляжа бассейна — бассейн, бассейн с волнами, горка, трамплин, террасы для принятия солнечных ванн.
Она представляет собой полностью готовое решение, которое поставляется заказчику в собранном виде. Внутри смонтирована печь-каменка, оборудован водопровод, и установлена система нагрева воды.
Такая баня, хоть и имеет небольшие размеры, но у нее есть свои преимущества.
- Во-первых, это относительно невысокая цена.
- Во-вторых – простой и быстрый способ установки позволяет начать ее эксплуатацию через несколько часов после доставки.
- И, в-третьих, благодаря небольшим размерам, высокоэффективной теплоизоляции и арочной системе кровли, такая конструкция очень экономична в плане расхода топлива.
Сегодня можно встретить бани любых «фасонов», конфигураций и размеров. Фантазия у обычных частных застройщиков и специализированных фирм настолько богата, что вариантов и проектов существует великое множество.
В сауну можно попасть только без купальника, только с полотенцем и сауной. В комнатах для отдыха необходимо использовать банные полотенца или простыни или пользоваться халатами. Детям в возрасте до 12 лет запрещено въезжать в сауны. Сумки больших размеров нельзя вводить в сауну. Допускается только гигиеническая игла и банные полотенца.
Фотографии выполнены на заказ моей женой Кветушкой. Хорошая ванна сделает ванну удобной для родителя и привлекательной для ребенка.
Важно выбрать правильный вид, размер и внимание к элементам конструкции ванны. Знаете ли вы, что становление ребенка становится все более популярным в ведре?
Но, при этом всегда остаётся вопрос, какой самый оптимальный размер бани? Ведь всегда хочется сэкономить не в ущерб своему комфорту. И на этот вопрос однозначно ответить нельзя, так как здесь много различных факторов. Каких? Об этом чуть ниже…
Прежде, чем начинать строительство бани, следует точно определиться: что Вы хотите и способны ли Вы это сделать? Одним словом – совпадают ли Ваши потребности с Вашими возможностями? Если да, то это уже хорошо. Если нет, то придётся кое-что «урезать» и создать бюджетный вариант своей задумки.
Ванны можно разделить в зависимости от размера. Решив купить ванну, подумайте, сколько места у вас в квартире. Некоторые модели, например, купальники, занимают гораздо больше места, чем небольшая ванна, которую вы можете легко спрятать в ванной комнате.
Как правило, производители не уточняют, к какому возрасту предназначен ребенок.
Однако многие родители говорят, что он не работает до 6 месяцев. Если вас беспокоит первая детская ванна, вы можете подумать о покупке детской ванны. Стабильное поддержание нестабильной головы ребенка и неизменное заживление пупка может быть довольно сложной задачей. Полезным решением является гамак, помещенный на ванну или картридж, который покупают и помещают в ванну. Они предназначены для поддержки головы и тела ребенка, чтобы он был как можно более стабильным и не скользил в воду.
Небольшие размеры бани-бочки
Нужно учитывать такой момент: сколько человек планируется постоянно посещать баню. Большая у Вас семья или нет. Строить большую солидную баню на 3-4 человека – это просто не серьёзно. Хотя, с другой стороны: если «хочется и можется», то почему бы и нет. Если позволяет территория участка, есть финансовые возможности и желание – можно построить двухэтажный банный комплекс и для двух человек. Здесь, как говорится, на всё воля хозяина.
Одним словом, оптимальный размер бани и её планировка определяется индивидуально по каждому случаю.
И вот основные моменты, которые влияют на этот выбор (немного повторюсь): Ваши желания, Ваши возможности, размер земельного участка, численность семьи, климатические условия, из чего будет строиться баня, какой на участке грунт, в какое время года баня будет эксплуатироваться, какая планируется банная печь, и какой вид топлива при этом будет использоваться. Можно ещё долго перечислять пункты, которые повлияют на выбор размера бани.
Размеры парной и мойки
Парилка, как правило, является одним из главных помещений бани. По мнению специалистов, минимальная площадь на одного человека не должна быть меньше 1 квадратного метра. То есть, если планируется постоянно париться вдвоём, то минимальные размеры бани, а точнее парной, должны составлять 2 квадратных метра. Значит, размер помещения 1м. на 2 м.
Такие маленькие габариты, естественно создают определённые неудобства: недостаточный объём воздуха (как следствие – плохая ), некуда поставить каменку, да и просто – тесно, так как для комфортной парилки нужно как минимум два .
А они в свою очередь имеют тоже определённые минимальные размеры.
Проект бани 6*4,5
Проект бани 3*5
Вывод напрашивается сам собой: размер парной для двух-трёх человек – 4-5 квадратных метра. Это оптимальный вариант, но можно немного больше. Слишком большое парильное помещение делать просто не целесообразно. Лишние затраты на топливо и время. Следует учитывать, что для комфортного пребывания в парной, высота потолков не должна быть более 2,0-2,2 метра. Выше делать не нужно, а в некоторых случаях разумно сделать их ещё меньше.
Мойка обычно строится по размеру чуть больше парилки. Здесь располагаются тазики, может быть душ или душевая кабина, баки для воды, возможно, какие-то полки, скамейки и так далее. Всё это занимает место, следовательно, чтобы было комфортно, надо немного увеличить размеры. 6 квадратных метров вполне достаточно для 2-3 человек.
Размеры комнаты отдыха и предбанника
Теперь немного о других комнатах бани. Комната отдыха организуется в достаточно больших банях с теми условиями, чтобы в ней можно было с комфортом отдохнуть и провести за чашечкой чая определённое время.
Здесь всё зависит от того числа людей, которых Вы привыкли видеть в своём кругу.
Комната отдыха в бане
В уединённой, семейной обстановке, достаточно комнаты 8-9 квадратов. Здесь вполне поместится небольшой стол, стулья и даже диван. Есть место для чаепития и отдыха. В то же время, для большой и шумной компании такого помещения будет явно недостаточно. Для приёма большого количества гостей нужна комната отдыха более внушительных размеров.
Предбанник делается в небольших бюджетных банях. Он является своего рода температурным барьером между улицей и парной или мойкой, и в тоже время своеобразной раздевалкой. Здесь может быть установлена какая-то банная мебель, шкафы, скамейки и т. д. Но бывает ещё и такой вариант: баня пристроена или встроена в дом. В этом случае предбанник просто не нужен. Можно просто обойтись небольшой вешалкой. Пример такого на видео ниже…
Подсобные и другие помещения бани
Если баня имеет , то это уже большое солидное сооружение, можно её «обозвать» настоящим банным комплексом.
Размеры у бассейнов могут быть разными, значит, и размеры бани будут соответствующими. Здесь уже фигурируют размеры 10 метров и более. Так как есть бассейн, разумно поставить душевую кабину и сделать санузел. На это тоже уйдут свои квадратные метры.
Бывает такое, что баню надо отапливать круглый год или как-то сезонно. Размеры такого банного комплекса приличные. Обычная дровяная печь здесь не справится. Для обогрева больших площадей устанавливают котлы. В данном случае необходимо помещение под котельную, где будет стоять «отопитель». Его размеры (помещения) напрямую будут зависеть от типа котла и от топлива, на котором он будет работать.
Большим плюсом пользуются газифицированные районы страны. Здесь можно поставить на газовом топливе. Но если у Вас твёрдотопливный вариант, следовательно, необходимо помещение для дров или угля.
Баня с террасой
При обустройстве террасы открытого или закрытого типа, её квадратура тоже будет учитываться в общих размерах бани, так как фундамент под всё строение один.
Напоследок, простой пример из жизни. Имея на сегодняшний день, баню средних размеров (4×4,5 м.), мне уже в ней становится тесно. Хотя не скажу, что огромная семья (4 человека и кошка). Хочется сделать небольшую открытую террасу, чтобы поставить диван и тёплыми летними вечерами после парилки там отдыхать.
Итак, какой можно сделать вывод? Оптимальный размер бани – это понятие абстрактное и сугубо индивидуальное. Некоторые ездят на «меринах», а некоторым достаточно нашего родного «жигулёнка». Одни одеваются в дорогих бутиках, другие на дешёвых рынках. Тоже самое можно сказать про баню. Пусть Ваша не имеет бассейна и второго этажа, главное, чтобы она была тёплая, практичная и нравилась Вам. Не стоит за кем-то гнаться, но в тоже время, надо всегда стремиться к лучшему. Удачи всем!
Цитата мудрости: Свободен лишь тот, кто владеет собой .
какие должны быть размеры и конструкция?
Баня — особенная постройка. Ни в каком другом строении нет такого сложного влажностного и температурного режима, поэтому и требования к каждому элементу в бане, в том числе и к дверям, отличаются от таковых для обычных жилых домов.
Двери и окна — главные источники тепловых потерь в бане. Поэтому они традиционно делаются небольшими, чтобы как можно дольше сохранить тепло. Оптимальные размеры двери зависят от назначения помещения.
Дверь в парилку из предбанника обычно самая маленькая:
- в высоту она не должна превышать 190 см;
- ширина — не более 70 см;
- толщина — 7–10 см, если речь не идет о стекле;
- минимальная толщина закаленного стеклянного дверного полотна — 6 мм.
Чем меньше размеры дверного полотна, тем меньше драгоценного пара и тепла покинет парилку при ее открытии. Раньше в традиционной русской бане делали высокий порог, который препятствовал образованию неприятных сквозняков, стелящихся по полу. В современных банях и саунах с эффективными печами непрерывного действия, наоборот, часто желательно отверстие под дверью в несколько сантиметров. От верхней границы дверного полотна до потолка парилки должно оставаться около 70 см — это позволяет создать в помещении карман, в котором будет образовываться «паровой пирог», характерный для русской бани.
Размеры двери между парилкой и моечной такие же. За исключением одной тонкости: между дверным полотном и коробкой обязательны должны быть увеличенные на 5 мм зазоры, иначе под воздействием влаги дверь может разбухнуть и даже заклинить.
Входная дверь в баню также должна быть небольшой, но для нее размеры не так критичны. Обычно ее делают на 10 см выше, чем рост самого высокого члена семьи, а в ширину придерживаются стандартных 60–80 см. Желателен небольшой порог — так в предбанник будет попадать меньше грязи с улицы. В отличие от внутренних, входная дверь может быть двойной.
Особенности конструкции двери в парнуюНезависимо от того, какой стиль парения вы предпочитаете, дверь в парилку обязательно должна соответствовать шести требованиям:
- Открытие — наружу. Это не только безопасно, но и практично: так вы не будете забирать место и без того в небольшом помещении парилки.
- Никаких замков, засовов и жестких защелок — дверь должна открываться легко без необходимости поворота ручки.
Для этого подходят обычные роликовые защелки или магнитные фиксаторы. - Материал полотна — дерево или стекло, коробка — только из дерева. Если баня домашняя, лучше выбирать прозрачную дверь.
- Дверное полотно должно быть легким, чтобы дверь без проблем открывал даже ребенок.
- Дверь не должна с усилием входить в коробку — да, плотно подогнанное полотно снизит потери тепла и пара, но это чревато, если в парилке кому-то станет плохо. Чтобы дверь прилегала герметично, лучше используйте резиновые или силиконовые уплотнители по контуру (не по бокам!) полотна.
- Ручка — из дерева, иначе вы рискуете обжечь руки. Современные стильные ручки из закаленного стекла также походят, а вот металл — недопустим.
Кроме того, при установке предусмотрите небольшой зазор между дверью и порогом. Через него в парилку будет поступать свежий воздух.
Двери для саун и бань в нашем каталоге
С уважением, интернет-магазин Ателье Саун
Подбор оптимального размера бани
Правильно подобранный оптимальный размер бани влияет на все эксплуатационно-технические параметры, позволяя снизить стоимость возведения постройки и достичь при этом максимально возможного уровня комфорта при ее посещении.
Учитывая это, становится понятным, почему определению габаритов уделяется настолько много внимания.
Факторы, влияющие на размеры бани
Для подбора оптимального размера бани необходимо учитывать несколько наиболее серьезных факторов, в частности:
- Количество посетителей. Очевидно, что постройка, рассчитанная на семью из 2-3-х человек, заметно отличается от здания, куда будут приходить большие компании.
- Число помещений. Стандартный набор комнат включает раздевалку и комнату отдыха, которые иногда совмещаются, а также моечную и парилку. Однако, нередко планировка здания дополняется тамбуром, туалетом, кухней или баром, отдельным помещением для бильярда и т.д.
- Вариант строительства. Баня, как правило, представляет собой или отдельно стоящее здание, или пристройку к жилому дому. Во втором случае отпадает необходимость в тамбуре и раздевалке, что снижает требуемые размеры постройки.
- Технология строительства. Наиболее востребованными сегодня считаются бани из профилированного бруса, оцилиндрованного бревна или возведенные по каркасной технологии.
Каждый из перечисленных вариантов имеет собственные типовые решения, связанные с габаритами здания. - Площадь участка. Чем просторнее участок принадлежит собственнику, тем свободнее он в выборе габаритов располагаемых на нем строений.
- Назначение здания. Часто баня из бруса возводится на участке в первую очередь. Обычно в подобной ситуации выбирается двухэтажное здание, второй этаж которого выполняется жилым. Он используется в таком качестве до постройки главного дома.
- Финансовые возможности владельца. В современных условиях важность экономического критерия только возрастает. Поэтому часто именно готовность собственника потратить финансовые ресурсы выступает в виде главного фактора, определяющего размеры бани.
Наличие такого количества разнообразных обстоятельств объясняет, почему сегодня на российском строительном рынке представлено множество различных проектов бань. Более того, серьезные подрядчики или производители срубов предлагают их бесплатно в виде бонуса при заключении договора на строительство.
Стандартные габариты бани
Очевидно, что не бывает оптимального для всех случаев жизни размера бани. Это логично, учитывая большое количество влияющих на этот параметр факторов, указанных выше. Тем не менее, опытным путем определено количество площади, необходимой для одного посетителя. Этот показатель равен 1,3-1,5 кв. м. парной и 2-2,5 кв. м. моечной комнаты.
Поэтому сегодня наиболее стандартными считаются постройки, имеющие размеры:
- различные сочетания длины стен от 2,3 до 4-5 метров – для небольших семей в составе 2-3 человек;
- здания, длина стен которых составляет от 4 до 6 метров – для небольших компаний и семей из 4-5 человек;
- бани, имеющие стены длиной от 6 до 10-12 метров – для крупных компаний и гостеприимных владельцев.
В последнем случае проектом часто предусмотрен второй или мансардный этаж, на котором располагаются жилые помещения или дополнительные комнаты отдыха, например, игровой или бильярдный зал.
Оптимальный размер бани | Строительство бани
Для каждого застройщика оптимальный размер бани будет индивидуальным,потому что у каждого свои вкусы и возможности.
Выбор размера бани зависит от нескольких исходных данных в каждом конкретном случае:
1.От размера вашего участка, на котором вы собираетесь поставить баню.
На вашем участке будут еще другие постройки: дом, гараж, хозяйственный блок. Поэтому размер и место постройки необходимо увязать в соответствии с противопожарными правилами необходимых расстояний между строениями. Надо учитывать и постройки соседа на ваших границах. Если вы очень хотите большую комфортную, с бассейном, с гостиным домом баню, а она никак не вписывается в размеры вашего участка с учетом других ваших строений и строений соседей, то рекомендую рассмотреть другой вариант ее планировки , с меньшими размерами. Может стоит отказаться от каких-то больших помещений или оборудования . Например, сократить размеры моечной, в которой вместо бассейна поставить купель или даже ограничиться обливным устройством.
Еще раз подумать ,более внимательно, над планировкой : поменять местами и совместить назначение помещений. Например, вы запланировали отдельное помещение котельной, его можно убрать совсем, если в вашем гостином доме с баней будет дровяное отопление с установкой кирпичной печи , и не будет монтироваться система отопления с котлом и системой трубопроводов. Или, например, можно убрать помещение раздевалки на входе , если у вас есть еще и комната отдыха. Думаю, что принцип планирования помещений понятен.
2.Сколько человек одновременно будет находиться в бане: может вы будете париться семейно(только вдвоем), а может у вас будет постоянные гости-любители бани человек 6-7 одновременно.
В любом случае, даже, если у вас в гостях постоянная компания любителей русской бани, нет смысла делать большую парилку. Многие застройщики ошибаются, думая, что парилка больших размеров- это комфортно.
В первую очередь, парилке должны быть свойственны: хороший пар, равномерный прогрев и парение при комфортных условиях.
А поскольку любители попариться, все равно, в парилку заходят по двое, то площадь парилки не должна превышать 6м2 .Оптимальная площадь парилки около 5м2. Например, размерами 3*1.5м или 2.5*2м2.
Парилка таких размеров хорошо прогревается по всей ее площади и объему, в любой удаленной точке от банной печи. К тому же,такой площади достаточно для размещения оборудования и мебели: полока,скамейки ,печи,бака для воды.
3.Какие ваши финансовые возможности. От них зависит многое, в том числе и выбор стандартного набора помещений : будет ли у вас отдельное помещение моечной или вам достаточно того, чтобы парилка совмещала в себе и функции моечной. Размеры моечной также зависят от ваших возможностей, так как в данном помещении можно просто поставить, по-старинке, скамейки с шайками(тазиками), а можно и установить душевую кабинку, купель или бассейн.
Вы уже поняли, по вышесказанному, что современную русскую баню строят с комфортом. В понятие «минимального комфорта » входят три отдельных помещения: парилка, моечная и комната отдыха, которая по совместительству является раздевалкой.
В состав комфортной бани для гостей входят дополнительные помещения и оборудование : санузел, отдельные раздевалки, бассейн, купель, кухня.
И ,все же, зачастую строят простую баню: на даче, на огородном массиве.
Стандартный набор помещений для дачной бани -это парилка -моечная и раздевалка. Ее размеры определяются размерами парилки- моечной: 3х1.5 (2)м или 2.5х2м.
К парилке добавляете раздевалку и, у вас получается размер сруба равный зх4 или 2.5х4м. Если раздевалку совмещаете с комнатой отдыха, то размер получается 3х5м.
Если хотите выделить небольшую моечную, то размер уже будет 4х 5м или 3х6м, в зависимости от последовательности расположения помещений на плане.Обычно участки на огородах небольшие,поэтому все помещения бани выстраивают в одну линию,тогда может получиться баня размерами 9х3м,если добавить к основным банным помещениям еще кладовую для дров и туалет.
Как вы уже поняли, оптимальный размер бани- это комфорт и наслаждение банными процедурами: вы с удовольствием паритесь, принимаете контрастный душ или обливаетесь холодной водой из шайки, когда, после очередного парения дубовыми и березовыми веничками ,вы с «кайфом» плаваете в бассейне, или, с задержкой дыхания, опускаетесь в купель с колодезной водой.
Для женщин- это комфортное моечная и комната отдыха ,где они могут не спеша, с удовольствием нанести на кожу лица и тела различные скрабы и крема , сделать себе антицеллюлитный массаж на некоторых местах вакуумными баночками, понежить свои ножки в ванночках с расслабляющими настоями.
Для мужчин- это жаркий пар, высокая температура ,парение до седьмого пота и экстремальные виды контрастности !!!
Эх,русская баня!!!
ищем золотую середину габаритов помещения. Основные правила для определения размеров отдельных помещений бани
Русская баня — не только место, где можно вымыться. Для многих это лучший отдых после трудовых будней, здесь можно расслабиться и пообщаться. О пользе банных процедур все знают с детства, научные исследования уже давно доказали их положительное влияние на организм в целом, а также пользу для профилактики различных заболеваний. Сейчас многие строят бани самостоятельно, причем не только в деревнях. Но многие, впервые приступающие к строительству бани, в особенности молодые люди, не знают, с чего же начать.
Рассмотрим основные правила строительства и стандартный размер бани, начиная с выбора участка.
Выбор участка
Считается, что лучшим местом для постройки бани будет берег речки, озера или пруда. Но для предотвращения неприятностей во время весеннего половодья не стоит размещать баню ближе, чем на 15 метров от берега воды, и располагать ее надо так, чтобы грязная вода не стекала в водоем.
Выберите участок, находящийся на небольшом возвышении. Благодаря этому вам не придется делать водоотведение, вода будет стекать сама. Например, можно разместить ее на возвышенности или крутом склоне, в форме землянки с террасой или верандой, которая станет местом отдыха, естественным солярием и площадкой для детских игр. И не забывайте о скромности, лучше чтобы баня была отгорожена от посторонних глаз большими деревьями или декоративной изгородью.
Если вы любитель баньки «по-черному», надо учитывать, что расстояние от нее до других строений должно быть не меньше 12 метров.
А если вы решили отстроить баню в жилом помещении, предпочтение надо отдать сауне, в ней под воздействием высокой температуры дерево высохнет и не будет подвергаться гниению.
Ориентирование
Итак, участок выбрали, теперь надо разобраться, как поставить баню. Где установить дверь, какие сделать размеры дверей в бане, куда будут выходить окна? При наличии террасы, вход лучше сделать с южной стороны, она более теплая. И зимой при таком расположении будет меньше сугробов и таять по весне они будут быстрее. А окна располагают так, чтобы попадало заходящее солнышко, ведь баню чаще топят ближе к вечеру. Еще нужно учитывать наклон косых дождей — если не получается сделать вход с противоположной стороны, то целесообразней отстроить тамбур для защиты двери от намокания.
Баня: размеры, планировка
Стандартная баня делится на парилку, моечную и предбанник, их соотношение должно быть — 1:1,5:2.
Самая крохотная представляет собой теплый «шкаф», где помещаются не более двух человек в сидячем состоянии.
Обогреваются такие сауны электрической печкой и встроить их возможно даже в ванную комнату стандартной городской квартиры. Минимальные параметры стандартной бани на одну семью — 1,8:2 метра, туда должна вмещаться хотя бы одна лавка, где человек сможет расположиться в положении лежа. В бане с параметрами 2,5:2,4 для экономии места делают скамьи в форме буквы Г, а в еще больших по величине — параллельную или П-образную лавку.
Высота также должна быть минимальной, потому что чем больше параметры помещения, тем больше нужно топлива для его обогрева. Если учесть, что верхний ярус каменной печки находится на высоте примерно 1 метра от пола, а верхняя полка делается наравне с ним, значит, для удобства человека, парящегося сидя, высота потолка должна быть не менее 2,1 метра.
И если вы любите ходить в баню большой компанией, парная и обмывочная должны быть разделены, и размер бани должен быть не менее 12 кв. метров.
Внутреннее Парная
Парная — главное помещение, без него не обходится ни одна русская баня.
Величина парной может быть любой, она зависит от того, какую вы выберете печку и сколько человек будут мыться одновременно, ну и от того, как вам больше нравится париться, лежа или сидя. Обычно на одного человека берется 1,5 кв. метра.
Основа парной — полок или скамья, ее размер зависит от ваших предпочтений и площади бани. Если вы больше любите париться сидя, то ширина должна варьироваться в пределах 40-45 см, лежа — не менее 95 см.
Для прогрева парной используют каменные печки или электрические — калориферы. Главное достоинство калориферов в том, что они быстрее и сильнее прогревают парную и впоследствии температуру можно регулировать. Но они с трудом поддерживают нужную температуру и влажность.
Моечная
Моечная — непосредственно помещение, где мы моемся. Тут находятся резервуары с холодной и горячей водой, лавочки для сидения, возможно душевая или небольшая купель. Размер помывочной рассчитывают, исходя из параметров — не менее 1 кв. метра на одну персону.
Предбанник
Прямое назначение этого помещения — раздевалка перед входом в моечную или парную. Но в наши дни, когда баню используют не только для помывки, она превратилась комнату отдыха. В идеале это должно быть отдельное помещение. Здесь посетители бани смогут раздеться, отдохнуть после парной, просохнуть после помывки, да и вообще привести себя в порядок. Для удобства в предбаннике можно расположить скамейки, стулья, повесить зеркало, поместить вешалки для одежды и полотенец или даже поставить маленький бассейн, чтобы чередовать горячие и холодные процедуры. Любители массажа могут установить специальный лежак. Также в предбаннике нужно выделить угол под ведра с водой, уголь или дрова и для другой необходимой утвари.
Обустройство предбанника зависит от его размеров и ваших предпочтений. Если размер предбанник можно заменить на большой прихожую с вешалкой и В больших банях делают отдельный предбанник и комнату отдыха, а если вы будете использовать баню только в теплое время года, ее вообще можно заменить на террасу.
Размеры должны быть небольшими, а сами двери — одностворчатыми, это позволит дольше сохранить тепло. Их ширина не должна превышать 0.7 м, а высота 1.7 м.
Строительство бани
Если вы решили своими усилиями, вам необходимо все тщательно обдумать: выбрать подходящее место, решить, какой будет размер бани, из скольких помещений она будет состоять, определиться с материалом, из которого вы ее будете строить. Особенно если вы собираетесь делать все, начиная от чертежей, самостоятельно.
Например, если строить из бревна, нужно помнить, что их обычно делают длиной примерно 4,5 метров, а брус — 5,5 метров. Также для возведения бани можно использовать строительные блоки. При их использовании нет никаких ограничений, все зависит от плана вашей будущей бани.
Подходите к строительству бани со всей ответственностью и тогда все у вас обязательно получится.
Бани размер 4 /4
Сейчас очень популярны бани 4 на 4 метра — это прекрасный, малобюджетный вариант.
Планировка может быть в двух вариантах строения: одноэтажной и мансардного типа.
Классическое расположение помещений: в одноэтажной бане комната отдыха и раздевалка совмещены. Размеры 2 на 4 метра. Если баня мансардного типа строения, в таком помещении может располагаться только раздевалка, потому как основную часть занимает Дальше расположено моечное отделение и парилка, размер которых 2 на 2 метра. В бане 4 на 4 метра рекомендуется ставить небольшую металлическую печь, так как большая печь-каменка занимает много места и нельзя будет разделить между собой парилку и моечную. Лицевая часть печки с топкой выводится в комнату отдыха, а сама печь устанавливается в парилке. Если будет желание, можно пристроить террасу и переоборудовать чердачное помещение в летнюю комнату отдыха.
О своей бане на земельном участке мечтает практически каждый. Но что делать, если бюджет сильно ограничен, или свободная площадь слишком мала? Отказаться от задумки построить баню? Не обязательно! Существуют , которые уместятся даже на маленьком земельном участке.
Хорошими вариантами будут бани 2 на 2 или 2 на 3.
Они отличаются компактностью, и для возведения подобных построек требуется немного материалов.
Бани 2 на 2 и 2 на 3: преимущества
Главные преимущества небольших бань:
- компактность. Постройку можно построить даже на небольшом земельном участке;
- экономичность. Для возведения бани не нужно большое количество материалов, поэтому строительство обойдется дешево;
- легкость возведения. Строительство небольшой постройки требует значительно меньше усилий, поэтому будет достаточно простой;
- высокая скорость возведения. Очевидно, что возведение крупной двухэтажной бани займет много времени, а постройка небольшой бани 2х2 будет закончена в короткие сроки;
- быстрый разогрев парной. В небольшом помещении быстро будет достигнут нужный температурный режим.
Даже в условиях небольшой площади, баня может быть достаточно функциональной и удобной, главное — правильно составить проект.
Бани 2 на 2 и 2 на 3: проекты, фото
Проект бани — важная составляющая в процессе строительства бани.
Постройка небольшая — всего 4-6 квадратных метров, поэтому важно каждый метр использовать разумно.
Обычно в банях делают три помещения: предбанник/комнату отдыха, парную и моечную. Но когда в распоряжении всего 4-6 квадратов, обычно ограничиваются двумя помещениями: парной и моечной.
Внутри должно быть комфортно и максимально свободно. В парной лучше всего установить легкую электрическую печь из стали, т. к. кирпичные и чугунные модели слишком массивные.
Оптимальный вариант расположения полок — купе, это поможет сэкономить полезное пространство.
Моечная будет в такой бане небольшой, поэтому лучше отказаться от стандартного варианта — лавки и тазиков. Более практичный способ — повесить ушат.
В одной стороне моечной можно расположить душ, а в другой поставить небольшой складной столик и два стула.
Есть другой вариант планировки — объединение парной и моечной. В этом случае вы сможете сделать небольшую прихожую.
Баня 2х2 и 2х3: особенности и нюансы постройки
Баня таких размеров, конечно, не подходит для большой компании.
Ее обычно строят в случае, если ее будут посещать один-два человека. Если вы собираетесь ходить в баню зимой, то лучше выбрать другой вариант, где будет возможность сделать хотя бы три отдельных помещения, но предпочтительнее, если их будет четыре. К примеру, баня 4х4 хорошо подойдет для круглогодичного использования.
Нередко проект бани 2 на 2 выбирают для того, чтобы сделать из него пристройку к дому.
Несмотря на то, что баня небольшая и легкая, это не значит, что можно экономить на строительных материалах. Нужно сделать крепкий и прочный фундамент. Если вы будете строить деревянную баню, то нужно использовать качественную древесину, а не второсортную.
Сегодня также растет популярность постройки . Они имеют небольшие размеры, при этом достаточно функциональны. Если вы захотите поставить у себя на земельном участке мобильную баню, то необязательно строить ее своими руками, можно купить готовую.
Баня 2 на 2 и другие подобные проекты — это отличный вариант для тех, кто хочет сэкономить пространство или деньги.
Они быстро прогреваются и легко возводятся. При правильном подходе и грамотном составлении плана даже небольшая постройка, площадью 4 квадратных метра, может быть функциональной и удобной.
5 517
Проект бани 3 на 5 м: фото, примеры. Как составить проект бани 3х5?
Дача без бани – дело немыслимое. Каждый уважающий себя хозяин земельного участка и дачного домика стремится построить хоть маленькую, но свою работающую баню. И это понятно: баня – это исконно русская традиция, это отдых и здоровье, в конце концов, говоря современным языком – это релакс. Но просто так баню не простроишь – нужен проект и оптимально подходящая планировка бани. Это – первоочередная задача, а какими бывают проекты, и какой лучше выбрать – поговорим ниже.
Для участков 3 или 6 соток великолепно подойдет банька площадью 3 х 4 метра, проект которой вы видите на рисунке выше. Принцип бани – наличие парного помещения, и в нашем конкретном случае парилка имеет довольно большую площадь – 8 м 2 .
В ней можно разместить 2-3 полки (лежака), и останется место для каменки. Остальные помещения можно включать в проект по необходимости. Например, без биллиардной в бане можно помыться, а вот в биллиардной без парилки – никак.
После порции горячего пара необходимо смыть с себя грязь и усталость, и здесь нужна душевая комната – ее еще называют помывочной. Два квадратных метра для помывки одного человека вполне достаточно, как видно из проекта. Есть даже комната отдыха, в которой можно просто посидеть, попить квасу, отдохнуть перед очередным сеансом пара. Комната для отдыха в нашем типовом проекте имеет площадь 4,5 м 2 , также, конечно, есть и тамбур, в котором можно организовать небольшую раздевалку.
О необходимых помещениях
Но даже самая миниатюрная баня не может состоять из одной парилки – это просто неудобно. Поэтому в небольших проектах основное помещение делят перегородками на несколько комнат, которым отводят ту или иную роль. Не обязательно делать несущие перегородки и закладывать под них фундамент – достаточно разделить площадь легкими деревянными перегородками, как это показано в проекте ниже.
Сама планировка бани достаточно просторная – 4 х 6 метров.
Разделение основной постройки на несколько помещений позволит (и это главное) быстро, эффективно и качественно прогревать парилку, не перегревая при этом остальные комнаты, особенно – комнату отдыха. Кроме того, план бани нужно тщательно продумать на предмет свободного доступа ко всем помещениям.
Предбанник
Предназначение предбанника – вход в баню, хранение дров или другого топлива, раздевалка (гардеробная), отделение холодного помещения от прогреваемых печкой. Предбанник – это своего рода терминатор, по одну сторону которого теплый воздух, по другую – холодный. Из предбанника двери должны вести и в душевую комнату, и в парную, и в комнату для отдыха.
Этот план бани размером 3 х 5 метров предусматривает большой и просторный (насколько это позволяют планы строительства и площадь постройки) предбанник, в котором можно при помощи перегородок обустроить все остальные помещения – склад для дров, раздевалку, и т.
д. В таком предбаннике можно сделать достаточно большое окно, главное, чтобы окна не было в парной. Двери в парной должны быть только одни, и выходить они должны в тот же предбанник. Из самого предбанника можно попасть во все остальные помещения.
Помывочная или душевая комната
Душевое помещение должно быть отделено от других, так как в нем, прежде всего, температура должна быть ниже, чем в парной, а само функциональное назначение этой комнаты подразумевает скрытность процесса. Чтобы не тратить и без того небольшой объем энергоносителей на обогрев помывочной, ее делают небольшой – в пределах 2-3 квадратных метров. Такую площадь под душевую можно выделить в любом, даже самом маленьком, проекте. А если баня предназначена исключительно для мужских посещений, то душевую вообще можно сделать миниатюрной – около 0,5 м2. Зато за ее счет можно расширить комнату отдыха.
Если планировка бани 6 на 4 метра вас устраивает, то душевую можно организовать так, как показано на рисунке выше – это небольшое, но достаточно удобное и функциональное помещение.
Для семейной бани, чем более с детьми, душевая должна быть большой, удобной и многофункциональной, что подразумевает включение в ее состав отделения (или отдельного помещения) для стирки и других нужд. Из-за большой площади такая помывочная может быть даже основным помещением в бане, поэтому следует предусмотреть хорошую принудительную и естественную вентиляцию, естественное и искусственное помещение, правильно рассчитать схему отопления и площадь помещения по максимальному количеству посетителей. Если составлен именно такой план бани, то комнату отдыха можно вообще исключить из проекта, и перенести ее в дом.
Парилка
Парное помещение необходимо как можно дальше отодвигать в проекте от входной двери. Располагается парилка в максимальном удалении от входных дверей. Окон в парилке не делают, дверь – только одна. Основные размеры (длина, ширина, высота потолка) могут быть любыми, но внутренние размеры рассчитываются согласно существующим нормативам, куда входят стандарты:
- Строительных и отделочных материалов;
- Параметры системы вентиляции;
- Количества посетителей парной;
- Мощности и теплоотдачи каменки или другой модели печки;
- Пожарной безопасности;
- Эргономические и конструктивные параметры парилки.

Стандарты по высоте парилки довольно жесткие – 210-240 см, при этом и ширина, и длина парной комнаты может варьироваться в пределах 84 -115 см -190-235 см для самых маленьких проектов на одного человека. Понятно, что бо́льшие размеры бани повлекут за собой и увеличение размеров парилки. Кроме того, если особенности планирования направлены на минимизацию площади всех помещений, то места в парилке можно предусмотреть сидячими.
Из приведенного проекта парилки понятно, что полки могут быть и сидячими, и для лежачего положения. При каскадном расположении полок свободную площадь в парилке можно значительно расширить.
Проекты бань
Начиная строительство бани проекты можно разрабатывать какие угодно, но они должны привязываться к площади участка и расположению жилого дома на нем.
Первый пример – баня с комнатой отдыха в виде отдельного помещения. Именно из-за отдельного расположения это помещение может быть нагружено дополнительными функциями – раздевалки, предбанника, душевой.
В этом проекте, несмотря на то, что помещение для отдыха довольно большое, есть и второй этаж, который может быть предназначен для активного отдыха – игры в биллиард, например, или просто для просмотра телевизора. Судя по проекту, комната отдыха занимает половину всей площади, исключая тамбур. Так как высокая температура из парилки сюда не попадает, в комнате можно поставить мягкий уголок и бытовую электронику. Даже при непостоянной протопке бани переохлаждение интерьеру не грозит. Сделать комнату более комфортабельной и уютной можно установкой специальной банной печки с каминным модулем, который будет находиться одновременно и в парилке, и в комнате для отдыха.
Баня с бассейном
Да, в классическом варианте бассейн в бане не предусмотрен, но ничто не мешает его построить, и приведенный ниже план проекта это наглядно доказывает. И это – не предел: в бане можно организовать и зимний сад, и комнату для тренировок, и даже спальню.
Проект одноэтажной бани размером 7 х 11 метров – это и вместительная комната для отдыха, и отдельное помещение парной, и душевая комната, и бассейн.
Вход в бассейн – из коридора, и это более удобно, так как сначала может потребоваться раздеться, не посещая парилку. осуществляется через комнату отдыха. В данном проекте все помещения бани – раздельные, и проходным является только коридор. В этой многофункциональной бане предусмотрен даже санузел, несмотря на то, что всего один этаж довольно сильно ограничивает возможности архитектора по площади.
Баня в два этажа
Двухэтажная баня – это, скорее больше жилое, чем оздоровительное здание, так как второй этаж и бо́льшая часть первого этажа практически всегда отводится под жизненно необходимые помещения, которые нужны и без наличия бани в хозяйстве. Очень редко оба этажа отдаются именно под помещения бани и все, что с ней может быть связано.
Второй этаж может строиться как отдельный полноценный этаж, как мансарда или как жилое чердачное помещение. В данном проекте это – мансарда, в которой будут отдыхать гости. То есть, второй этаж бани служит гостевым домиком. Количество внутренних перегородок определяет, какие помещения вы будете планировать. Это может быть одна или две спальни с комнатой отдыха, а может быть просто большой холл с диваном для сна и отдыха после бани. Но принимать гостей на несколько дней вовсе не обязательно, и в таком случае из второго этажа можно просто сделать игровую комнату с биллиардом или оборудовать чилаут с домашним кинотеатром.
Первый этаж – это стандартный набор помещений, необходимых для полноценного функционирования бани: парилка, помывочное помещение, комната отдыха со столовой зоной, и санузел. Естественно, есть и большой тамбур, в котором размещается склад для дров и раздевалка.
Баня с пристройками
При большой площади земельного участка есть великолепная возможность расширить и баню, построив ее не как отдельный функциональный объект, а как бытовой комплекс – с пристройками, обеспечивающими раздельное пользование помещениями на большой площади одного этажа. Здесь можно пристроить к бане отдельно: комнату отдыха, спальни, санузел и ванную комнату, кухню, хранилище для дров или угля, бассейн, и даже детскую комнату.
В общем, из бани можно сделать полноценный жилой дом.
Решение будет идеальным для проживания только весной, летом и осенью, так как в теплое время не нужно оборудовать капитальное отопление, утеплять здание, приобретать много мебели, и т.д. Это – эконом-вариант сборной конструкции бани.
Преимущество состоит в «плавучести» проекта – можно пристраивать любые помещения и в любом количестве, было бы свободное место на земле. Кроме того, технология раздельного строительства позволяет уменьшить расходы на стройматериалы – не для всех помещений нужны одни и те же, часто дорогостоящие, материалы, особенно для фундаментов. Если пристройка будет ненагруженной, то ее можно ставить на сваи или на столбчатые опоры, и строить стены из дерева, а не из кирпича.
Если какие-то помещения эксплуатируются в обычных условиях, а не при повышенной влажности, то экономнее будет не закладывать в смету применение паро- и гидроизоляционных материалов.
Строительство бани своими руками — это достаточно сложный процесс, в котором каждый шаг играет важную роль.
Возведение постройки начинается с составления плана. Для начала нужно определиться с количеством комнат и, конечно, их размерами.
Факторы, влияющие на оптимальные размеры бани
Точной формулы того, как определить оптимальный размер бани, не существует. На данные показатели влияют разные факторы:
- площадь участка под застройку;
- бюджет, выделенный на строительство;
- количество людей, которые будут ходить в баню одновременно;
- собственные пожелания (кто-то предпочитает просторные помещения, другие чувствуют себя комфортнее в небольших комнатах).
Если вы являетесь обладателем скромного по размерам участка, нерационально занимать всю площадь постройкой, лучше отдать предпочтение компактной небольшой бане. Если нужна дополнительная площадь, то всегда можно сделать или постройку с мансардой.
И обратная ситуация также верна: если площадь вашего участка велика, то нет смысла ограничивать себя и делать небольшую баню в уголке, лучше выбрать более крупный проект, где можно будет отдохнуть большой компанией.
Но учтите, чем больше площадь бани, тем больше материалов для ее строительства потребуется, а, значит, расходы будут возрастать.
Количество людей, которые будут ходить в баню, играет не менее важную роль. Если вы собираетесь париться в одиночку или парой, то скромной бани размером 2х3 м или 3х3 м будет достаточно. Оптимальный размер бани для 3 человек составляет 3х3 м или 3х4 м. Размеры бани на 4 человека должны быть не менее 4х4 м. Конечно, если в ваших планах отдыхать большой семьей и с друзьями, то лучше выбрать проект бани 8х8 м, 10х10 м или больше.
Если вы собираетесь ходить в парную редко, то нет смысла больших размеров, достаточно будет компактного и бюджетного варианта. Другое дело, если вы планируете париться регулярно, тогда, конечно, лучше сделать уютную и комфортную постройку.
Сезонная и круглогодичная бани также отличаются своими размерами. Постройка для использования круглый год будет более крупной, т. к. требуются дополнительные сантиметры для утепления стен, пола и потолка.
На размеры бани влияют и материалы, используемые в строительстве. К примеру, если вы возводите постройку из различных блоков (пеноблоков, газоблоков, керамзитобетона и др.), то здание может иметь любые размеры и формы. Если же вы собираетесь строить , бруса, бревна, то лучше выбрать размеры, кратные 3, 4 и 6 м, к примеру, 4х4 м, 6х4 м, 6х6 м и т. д.
Такой выбор объясняется тем, что в продаже имеются брусья соответствующей длины. Если вы выберете другие габариты бани, то возрастет количество неиспользуемых обрезков, что будет лишней тратой денег.
На размеры бани оказывает влияние количество помещений. Минимум их должно быть два, самый популярный вариант — три комнаты, но бывают проекты и больше, где предусмотрены дополнительные помещения, террасы.
Баня: размеры, количество помещений
В любой бане обязательно должна быть парная. Она является самым главным помещением, куда приходят, чтобы попариться. В бане обязательно есть печь и . Больше здесь ничего не нужно.
На каждого человека должен приходиться 1 кв. м парной. Оптимальный минимальный размер сауны для 1-2 человек — 3,6 кв. м. В таком помещении можно разместить скамью длиной 1,8 м, чтобы один человек мог поместиться на ней лежа или два сидя. Оптимальный размер парилки на 3 человека — 4-5 кв. м, размер бани на 4 человека — 5-6 кв. м.
На этапе проектирования бани очень важно предусмотреть все детали, чтобы готовая постройка была не только красивой внешне и функциональной, но и удобной для посетителей. Особое внимание следует обратить на оптимальные размеры бани, которые позволяют в ней находиться определенному количеству человек одновременно. О том, каких размеров должна быть баня в целом, и каждое ее помещение в частности, пойдет речь далее в материале.
В зависимости от финансовых возможностей, а также индивидуальных требований и пожеланий хозяев, функциональное наполнение бани может быть самым различным. Это может быть двухкомнатное строение, состоящее всего лишь из предбанника и парилки с мойкой, либо полноценный крупный комплекс с бассейном, террасой и прочими комнатами для отдыха и развлечений.
Современные бани с бассейном очень популярны.
Отметим, что, несмотря на разнообразие вариантов, существуют строгие нормативы для подобных помещений, согласно которым предусмотрены минимальные размеры бани, составляющие 1 м 2 на 1 человека в каждой из ее комнат.
Размеры предбанника
Если предбанник размещается в небольшой по размеру бане, рассчитанной на 4 человека, то можно использовать его сразу в нескольких целях:
- Совместить с комнатой отдыха.
- Эксплуатировать в качестве тамбура – промежуточной зоной между горячей парилкой и холодным воздухом на улице.
- Разместить тут поленницу для дров или место для хранения угля, чтобы было удобно протапливать печку.
- Установить в нем стиральную машинку, если к дому не подведена вода.
Как правило, размеры бани с комнатой отдыха для 4 человек предусматривают параметры предбанника не меньше 1,8×3,6 метров. Тут предусмотрена небольшая раздевалка. А вот чтобы осталось место для установки мебели для отдыха, помещение придется расширять.
Окна в предбаннике устанавливают большие, с двойными стеклами. Их монтируют, примерно, на высоте 1 метра от пола.
Если конструкция бани не предусматривает наличие веранды или террасы, то входная дверь будет размещаться именно в предбаннике. Она обязательно должна открываться наружу – это требование правил техники безопасности. Отдельно стоит сказать о размерах дверного полотна для парилки. Оптимально, если они составляют 160/180×70 см.
Отметим также, что во избежание сквозняка и быстрого остужения бани в зимнее время, наружную дверь желательно утеплить с внешней стороны.
Какими должны быть габариты парилки
Подбор печи-каменки
Определяясь с тем, каких размеров должна быть парилка, стоит принимать в расчет не только нормативы пространства на одного человека, но и габариты печи с каменкой, будь то кирпичная или металлическая. Топливом для печи может служить жидкое горючее, газ, дрова или электричество.
Печи из кирпича занимают довольно много места, однако, ввиду того, что об их стены трудно обжечься, никакого дополнительного простенка для изоляции не требуется, что, конечно, экономит пространство.
А вот металлические печи нагреваются до очень высоких температур и могут представлять опасность для посетителей. Для них обязательно нужен защитный экран. Как правило, такую печку размещают, как минимум, в 1 метре от основных стен парной.
Дополнительные параметры
Чтобы определить оптимальный размер парилки в бане, нужно продумать, в каком положении парильщики будут находиться во время процедур – сидя или лежа. Кроме того, могут быть предусмотрены иные варианты – сидя на полке, согнув ноги, или лежачее положение с ногами на подставках. Следовательно, значительным образом влияет на габариты парной расположение лежаков, их количество и размер.
Если речь идет о небольшой парной, рассчитанной на четверых посетителей, где полки позволяют, как сидеть, так и прилечь, стартовые размеры будут начинаться с 150×200 см.
Прибавив к этому значению площадь подходов к лежанкам и габариты печи-каменки, можно говорить о приемлемых размерах парилки.
В парных отделениях с принудительным вентилированием, как правило, не предусматривают никаких окон. Однако если такой системы нет, для проветривания и просушки парилки потребуется оконце с размерами 40×40 см. Его размещают в противоположной от печи стороне на уровне верхнего полка. Остекление делают двойным.
Что касается дверных проемов, то вход в парилку должен перекрываться небольшой дверкой с высоким порожком (до 30 см высотой). Ее размер составляет 150×70 см, и открывается она из парной.
Парная с мойкой в одном помещении
Если по каким-либо причинам на приусадебном участке недостаточно места для возведения просторной бани, очень часто приходится экономить пространство, совмещая парную и моечную комнату в одном помещении. В данном случае будет довольно сложно сказать, какой размер бани самый оптимальный, ведь не каждый захочет жертвовать комфортом и ухудшать качество банных процедур.
Стоит признать, что мойка в бане — это достаточно популярный вариант обустройства.
Поскольку в такой объединенной парилке, из-за наличия емкости с горячей водой, будет повышенная влажность, рекомендуем придерживаться следующих советов:
- Вам будет намного комфортнее, если сначала распарить тело, а уж потом приступать к мытью.
- Подача дров в топку печи должна производиться из предбанника.
- Нормативы к обустройству окон и дверей аналогичны таковым в отдельной парилке.
- Для размещения инвентаря для мытья, специальных лежаков и емкостей с горячей и холодной водой, следует заложить в проект дополнительную площадь. Кроме того, понадобится пространство не менее 80×80 см для установки вертикальной каменки для металлической печки.
Таким образом, учитывая все параметры, минимальный размер парилки с мойкой, рассчитанной на четверых человек, должен начинаться с показателей в 200×210 см.
Требования к моечной комнате
Функциональное наполнение моечной комнаты, то есть наличие емкостей для воды, душевой кабинки или целого бассейна, определяется на стадии разработки проекта.
При этом для каждого из вариантов будут предусмотрены свои нормативы размеров. Если говорить о бане для четырех человек, в которой моечная комната оснащена только резервуарами с водой, минимальный размер такого помещения составит 200×210 см.
При этом печка устанавливается таким образом, чтобы ее каменка находилась в парилке, а топка с баком для горячей воды – в моечном отделении. Мощность печи должна быть достаточной, чтобы полноценно обогреть парилку и обеспечить парильщиков горячей водой в полной мере. Например, небольшая металлическая печь с каменкой способна прогреть помещение объемом в 18 м 3 , а также нагреть около 70 литров воды.
Если только речь не идет о совмещенной парилке с мойкой – отделять эти помещения друг от друга в таком случае должна глухая стенка с дверью.
Вполне приемлемо в моечной комнате врезать окно. Размещать его следует не ниже 1,4 метров от пола. Желательно устраивать окна в баню не напротив входной двери и не делать их слишком большими – достаточно 50×70 см.
Дверное полотно для помывочной делают стандартным – 180×80 см, а вот порог желательно приподнять, чтобы избежать сквозняков.
При наличии дополнительных средств мойку можно оборудовать душевой кабинкой. Если выбрать достаточно компактную модель, то она займет порядка 90×90 см.
Безусловно, если у вас в планах сооружение бассейна или любых других механизмов для омовения, размеры мойки будут автоматически увеличиваться до необходимых параметров.
Итоги
Таким образом, учитывая все указанные показатели, можно утверждать, что стандартный размер бани для четверых человек при наличии трех отдельных комнат, будет составлять от 360×380 см. Если же появится необходимость в совмещении парилки с моечным отделением, размеры такой бани должны составлять как минимум 210×400 см.
Размеры и размеры ванн: руководство по стандартным размерам ванн
Хотите большую ванну? Ты не одинок! Вопрос… подойдет ли?
Ванные комнаты — это та часть дома, которую сложно переделать.
Большинство из них достаточно малы, чтобы работала только одна конфигурация. Любая перестановка может влететь в копеечку, так как все элементы (ванна, унитаз, раковина) требуют переноса сантехники.
Планирование пространства имеет первостепенное значение. В больших ванных комнатах больше места для маневра при замене сантехники, но не каждый может втиснуть красивую большую ванну в маленькую ванную.Понимание общих размеров и размеров ванн — это первый шаг к созданию идеальной ванной комнаты.
Нишевые ванны
Одна из самых распространенных ванн, альковная ванна, находится в конце небольшой ванной комнаты по ширине, окруженной тремя стенами. Ванна-альков имеет одну обработанную сторону. Остальные три стороны незавершенные, обычно с небольшой кромкой для облицовки плиткой, чтобы предотвратить повреждение водой.
Стандартный размер ванны
В большинстве домов есть ванна такого размера. Размер ванной комнаты идеально подходит для этой ванны, а это означает, что любые замены, вероятно, должны быть точно такого же размера.
Модернизация для большей ванны может означать перемещение стен или посягательство на пространство для ходьбы (или место для туалета) в ванной комнате.
Вполне возможно установить более глубокую ванну в нише. Если вам нравится долго принимать ванну, это, вероятно, ваш самый экономичный вариант, хотя вам, возможно, придется заменить окантовку ванны или плитку.
- Стандартная длина ванны: 60 дюймов (5 футов)
- Ширина ванны на подставке: 32 дюйма
- Стандартная высота ванны: 18 дюймов
Малый размер ванны
Сверхмаленькие ванны встречаются нечасто, но если вам нужна ванна в маленьком пространстве, ее можно заставить работать.В большинстве очень маленьких ванных комнат вместо ванны установлен душ. Эти меньшие ванны не имеют стандартного размера, поэтому дважды измерьте их, прежде чем покупать
. Размеры указаны для внешней стороны ванны. Некоторые небольшие ванны имеют внутреннюю ширину замачивания 22 дюйма.
На самом деле, залезть внутрь ванны перед покупкой — хорошая идея, чтобы убедиться, что маленькая ванна вам подойдет.
- Длина маленькой ванны: 43-55 дюймов
- Ширина маленькой ванны: 30 дюймов
- Высота маленькой ванны: 14-15 дюймов
Размер длинной ванны
Значительная часть людей ростом более 5 футов и хочет более длинную ванну для замачивания.Ванна длиной более 60 дюймов не поместится в большинстве стандартных ниш, но если вы уже передвигаете стену или строите новый дом, почему бы не приобрести ванну побольше?
- Длина удлиненного бака: 72 дюйма
- Ширина удлиненного бака: 36 дюймов
- Высота удлиненного бака: 20 дюймов
Встраиваемая ванна
Встраиваемые ванны по размерам аналогичны ваннам в нише, за исключением того, что передняя часть ниши также должна быть собрана, а не иметь готовую переднюю часть.В итоге вы получите плиточный фасад и более законченный и роскошный вид.
Ванна-капельница может быть установлена в нише или в любом другом подходящем месте. Встраиваемые ванны также различаются по размеру, поскольку они не предназначены специально для стандартных ниш. Приведенные ниже размеры являются средними, поэтому, если вам нужна более глубокая или широкая ванна, вы, скорее всего, найдете ее!
- Вставная ванна, длина: 60 дюймов
- Вставная ванна, ширина: 30 дюймов
- Вставная ванна, высота: 16 дюймов
Встраиваемая ванна,
Как и встраиваемые ванны, для нижнего монтажа требуется опора, обеспечивающая гибкость для готовых сторон.Вместо того, чтобы ободок был виден, в ваннах с нижним монтажом требуется плитка или камень (например, мрамор или гранит), помещенный по краю. Если вы хотите, чтобы в вашей ванне было ощущение роскоши и спа, это ваш билет.
Несмотря на то, что встраиваемые под пол ванны могут быть не намного дороже, чем ниша, они требуют больших затрат на рабочую силу и материалы для обрамления ванны, облицовки плиткой или камнем.
- Длина ванны для установки под столешницу: 60 дюймов
- Ширина ванны для установки под установку: 30 дюймов
- Высота ванны для установки под установку: 16 дюймов
Гидромассажные ванны
Хотя эти ванны могут выглядеть больше, чем обычно, большинство из них поместятся в стандартную нишу.Гидромассажные ванны акриловые, а тонкая оболочка хорошо скрывает трубки для действия струи.
Если вы любите долго полежать, в гидромассажных ваннах вода дольше сохраняется горячей из-за движения воды. Есть множество вариантов струй, которые могут дуть водой или просто воздухом. Если вам нравится использовать соли или масла для ванн, вихревая ванна, которая дует воздухом, все еще является вариантом. В ваннах, в которых циркулирует вода, не должно быть мыла или солей, проходящих через струйные трубки.
- Длина гидромассажной ванны: 60 дюймов
- Ширина гидромассажной ванны: 32-36 дюймов
- Высота гидромассажной ванны: 18-24 дюймов
Отдельно стоящая ванна
К счастью, отдельные ванны не являются обычными размерами.
Они, безусловно, красивы и сделают заявление в вашей ванной комнате. Они бывают разных размеров, что позволяет легко найти то, что лучше всего подходит для вашего пространства. Есть даже версии с высокой спинкой, которые выглядят очень удобно.
До появления сантехники наиболее распространенными были отдельно стоящие ванны. Теперь требуется немного дополнительной работы, чтобы установить отдельно стоящую ванну, но это того стоит из-за великолепного внешнего вида.
Угловые ванны
Угловая ванна, идеально подходящая для отдыха, станет забавным дополнением вашей ванной комнаты.Угловые ванны имеют скорее треугольную форму, чем традиционную прямоугольную, что делает их идеальными для снятия стресса и успокоения.
Размеры от 5×5 до 6×6, глубина пропитки около 20 дюймов. Поскольку угловые ванны не являются обычным дополнением, размеры не совсем стандартны.
Указание по глубине ванны
Поскольку большинство ванн измеряется по внешнему виду, стоит покопаться, чтобы определить внутреннюю глубину замачивания.
Самые короткие ванны имеют высоту 14 дюймов, но глубина замачивания составляет всего около восьми дюймов.Неглубокая ванна, подобная этой, подходит для людей, которые в основном принимают душ, купают детей и не хотят входить в высокую ванну. Но если вам нравится время от времени принимать ванну, такой глубины замачивания недостаточно для взрослого человека.
Глубокие ванны более высокие, чтобы принять душ, так что это следует учитывать при выборе ванны. Некоторые версии имеют высоту 20 дюймов и глубину замачивания 13 дюймов. У производителей больше различий в глубине, поэтому присмотритесь, чтобы найти ванну, которая лучше всего соответствует вашим потребностям.
Руководство по стандартным размерам ванны
Что нужно знать о стандартных размерах ванны? Ваша типичная ванная комната должна включать в себя так много элементов. И большинство из этих компонентов необходимы.
Мы не можем оставить одно и сосредоточиться на другом.
При этом каждый предмет занимает определенную площадь. Например, унитаз, полки, ванна и туалетный столик, которые больше по размеру, могут занимать столько места.
Теперь, когда каждый квадратный метр в цене, оптимизация пространства становится необходимостью.И именно тогда нам нужно учитывать размеры, особенно для более крупных устройств. Понимание стандартных размеров ванны — еще один шаг к правильно спланированной и эффективной планировке ванной комнаты.
Ваша ванна или ванна-душ должны вписываться в интерьер ванной комнаты, чтобы не выглядеть неуместно. Например, если ваша ванна слишком велика, у вас может остаться всего несколько дюймов, чтобы маневрировать между раковиной, туалетом и душевой. Опять же, если он слишком мал, вся ваша ванная комната может казаться плавающей в пространстве.Следовательно, необходимо знать правильные размеры ванны.
Каковы стандартные размеры ванн? Стандартные размеры предназначены для приблизительной оценки размеров ванны.
Обычная ванна от стены до стены будет приблизительно иметь размеры 60 дюймов в длину и 30-32 дюйма в ширину . Однако эти цифры могут сильно различаться в зависимости от формы и типа ванны, которую вы планируете купить.
Помните, что не существует единого стандартного размера ванны.Поскольку сегодня на рынке представлен широкий ассортимент ванн, домовладелец избалован выбором!
Различные категории ванн включают в себя встроенные ванны, ванны для купания, вставные ванны, угловые ванны и отдельно стоящие ванны, и это лишь некоторые из них. Поэтому ниже мы описали стандартные размеры ванн (длину, ширину и высоту) для некоторых распространенных разновидностей. Просмотрите их и решите, какой блок лучше всего подойдет для вашей существующей ванной комнаты.
Имейте в виду, что ванна стандартного размера стоит от 200 долларов США до 14 000 долларов США — в зависимости от материала, качества и дизайна ванны.
Ванны Alcove – это отличное решение для небольших и узких ванных комнат. Он ограничен тремя стенами и устанавливается по ширине помещения. Следовательно, более длинные стенки служат концами, а задняя стенка образует одну сторону.
Но в случае больших ванных комнат альковы не лучший вариант. Поскольку стены недостаточно близки для создания ниши, ее, возможно, придется разместить по всей длине, а на одном конце ванны будет построена нестандартная стена.
Средний размер ванны для ниши: 48-72 дюйма в длину и 15-20 дюймов в ширину.
Маленькие ванны Поскольку большие помещения постепенно становятся роскошью, домовладельцам обычно приходится выбирать маленькие ванные комнаты. В таких случаях лучше всего подходят маленькие ванны. Если пространство очень тесное, то вы можете просто отказаться от идеи ванны и вместо этого выбрать душ. Однако, если вам действительно нужна ванна, вы можете выбрать ванну меньшего размера.
Средний размер ванны для небольших ванн: 54 дюйма в длину, 30 дюймов в ширину и 15 дюймов в высоту.
Просматривайте инвестиционную панель вашего дома
Ваш капитал и способы его увеличения, а также помощь в управлении техническим обслуживанием и обеспечением видимости местных проектов
Небольшие ванныУмеренные ванны — наиболее распространенный вариант для максимальных домов.Это связано с тем, что в большинстве ванных комнат установлены ванны стандартного размера.
средний размер ванны для умеренных ванн: 60 дюймов в длину, 32 дюйма в ширину и 18 дюймов в высоту.
Длинные ванны Длинные ванны представляют собой сегмент ванн в нише. Он просто имеет более длинные и широкие размеры, чтобы вместить более двух человек одновременно.
Если у вас большая ванная комната и вы хотите установить ванну большего размера, это идеальный вариант.
средний размер ванны для длинных ванн: 72 дюйма в длину, 36 дюймов в ширину и 20 дюймов в высоту .
Овальные ванныВы можете приобрести овальные ванны в виде вставных или отдельно стоящих ванн. Благодаря большому размеру и достаточному пространству они являются еще одним хорошим вариантом для больших ванных комнат. Обычно такие блоки не длиннее, а шире стандартных ванн.
средний размер ванны для овальных ванн: 60 дюймов в длину, 40 дюймов в ширину и 24 дюйма в высоту.
Гидромассажные ванны Гидромассажные ванны могут показаться больше, чем обычные ванны. Тем не менее, они поставляются в размерах, которые соответствуют пространствам, готовым к нишам. Оснащенные тонкой акриловой оболочкой, они обеспечивают дополнительное внутреннее пространство для сокрытия соответствующих струйных трубок и насосного агрегата.
Вы можете получить их как в обычных прямоугольных размерах, так и в огромных моделях
средний размер ванны для гидромассажных ванн: 32-36 дюймов в длину, 18 дюймов в ширину и 23 дюйма в высоту.
Угловые ванныУгловые ванны идеально подходят для вашей главной ванной комнаты, когда вы хотите проводить достаточно времени, принимая теплую ванну и расслабляясь с книгой или бокалом вина. Роскошные и просторные, они являются идеальным вариантом для домовладельцев, которые любят парную, омолаживающую и глубокую ванну.
Средний размер ванны для угловых ванн: 60 дюймов в длину, 60 дюймов в ширину и 22 дюйма в высоту.
Каждый из вышеперечисленных стилей ванн представлен в самых разных размерах. Вы можете выбрать ту, которая подойдет для вашей ванной комнаты.Тем не менее, тщательно измерьте размер комнаты, а затем решите, какая конфигурация ванны лучше всего подходит для вашего помещения.
Подробнее: Приборы для ванных комнат, которые повысят стоимость дома
Автор Аниша Датта.11 июня 2019 г.
Мастер слов и опытный разработчик контента, Аниша Дутта в настоящее время пишет для Kukun. Она проявляет большой интерес и знания о последних, будущих тенденциях в области домашнего дизайна и пытается обогатить домовладельцев вдохновляющими советами и рекомендациями по благоустройству дома, разбивая жаргон на простые слова.
Заядлый читатель и странник по привычке, она писатель по страсти.
Понимание размеров ванны | Блог
Опубликовано Джеймсом Робертсом в среду, 16 ноября 2011 г.
Если вы ищете новую ванну, либо для замены уже имеющейся, либо в рамках новой разработки, вы столкнетесь с термином «стандартный размер ванны для Великобритании».Но что, если вы ищете что-то, выходящее за рамки этого определения, например, маленькую ванну или даже большую ванну. Мы надеемся, что знание немного большего о размерах ванны должно облегчить принятие решения при попытке сделать правильную покупку.
Какой длины ванна?
Когда использовалась имперская система, стандартный размер ванны в Великобритании составлял 5 футов 6 дюймов в длину.
С введением метрической системы текущий стандартный размер ванны в Великобритании составляет 1700 мм в длину и 700 мм в ширину.Это рассматривалось как прямая замена имперской стандартной ванны.
Стандартный размер ванны
Стандартные размеры ванн Великобритании (мм):
Стандартный размер ванны – длина 1700 мм x ширина 700 мм
Маленькая ванна – длина 1400 мм x ширина 700 мм
Компактная ванна – длина 1200 мм x ширина 700 мм
Большая ванна – длина 1800 мм x и более
Поскольку принято считать, что стандартная ширина ванны составляет 700 мм, то широкой ванной считается любая ванна диаметром от 800 мм и выше.
Большие ванны с размерами более 1800 мм в длину и более 800 мм в ширину, как правило, представляют собой отдельно стоящие ванны.
Выше приведены общие рекомендации по размерам ванны в Великобритании, но что делать, если длина ванны, которую вы ищете, не соответствует общепринятым спецификациям.
Как заменить ванну
Обычный запрос, который мы слышим в ванных комнатах Sanctuary: «Мы ищем замену ванне, которая в настоящее время подходит от стены до стены в нашей ванной комнате. Измерив длину ванны, она составляет ровно 1685 мм.Однако, глядя на доступные ванны, очень трудно найти ванну такой точной длины. Что нам следует сделать?»
Это распространенная проблема, и решение может быть проще, чем вы думаете.
Часто, когда люди принимают ванну, они измеряют от стены до стены. Это конкретное измерение может быть несколько искажено, если стены облицованы плиткой с одного или обоих концов. Если стены облицованы плиткой, то ванна фактически находится немного под плиткой, поэтому измеренная длина от облицованной плиткой стены до облицованной плиткой стены будет отличаться от длины, измеренной после снятия плитки.
Таким образом, в ответ на наш запрос, если наш клиент измерил плиточную стену до плиточной стены, и длина составила 1685 мм, он вполне может обнаружить, что измерение необработанной стены к необработанной стене намного ближе к 1700 мм.
Поскольку разница между двумя измерениями и уровень допуска не велики, где-то от 10 мм до 30 мм, то замена ванны 1700 мм на ванну 1685 мм не вызовет особых проблем и даст вам больше возможностей с точки зрения выбор ванн.
Замена ванны
Однако это руководство не высечено на камне.Обязательно проконсультируйтесь с профессиональным сантехником, так как не все экземпляры подходят для этого сценария. Бывают случаи, когда после удаления всей плитки длина от стены до стены все еще не соответствует размерам ванны. Это может потребовать выноса части стены. Опять же, профессиональный сантехник сможет проконсультировать вас по этому поводу.
Если после всего этого у вас все еще возникают проблемы с поиском размера ванны, подходящего для вашего помещения, и вы определенно не хотите выполнять какие-либо структурные работы, продолжайте поиски.Размеры ванн подходят для всех помещений. Конечно, вам придется поискать немного усерднее, но в конечном итоге ваша тяжелая работа окупится, и вы будете вознаграждены идеальной ванной для вас за то пространство, которое у вас есть.
Какой стандартный размер ванны?
При рассмотрении вопроса о том, какой тип новой сантехники установить в вашей ванной комнате, одним из наиболее распространенных вопросов является правильный размер ванны для вашей ванной комнаты.
Поскольку ванны доступны в нескольких различных размерах, вы можете подумать, что не существует стандартного или нормального размера.Однако то, что вы можете выбрать размер, не означает, что не существует стандартного размера, как мы покажем ниже.
Стандартный размер ванны
Стандартный размер ванны в Великобритании составляет 1700 мм (Д) x 700 мм (Ш) в ширину.
Учитывая, что средняя ванная комната в Великобритании имеет размеры 2700 мм x 2300 мм, этот стандартный размер имеет смысл, чтобы было достаточно места сбоку и в конце ванны.
Очевидно, что иметь достаточно места для раковины и унитаза жизненно важно, поэтому ванна такого размера идеально подходит для средней ванной комнаты в Великобритании.
Гидромассажная ванна Luna Tamar
У нас есть большой выбор стандартных ванн 1700 x 700 мм, одна из самых популярных – Luna Tamar. Благодаря большой зоне купания стильные округлые линии придают ванне Tamar уникальное, характерное и роскошное ощущение. Неудивительно, что это фаворит клиентов!
Маленькие ванны
Если у вас маленькая ванная комната или ванная необычной формы, у вас нет причин отказываться от роскоши принятия ванны, потому что существуют ванны, специально предназначенные для установки в маленькой ванной комнате.
Самые распространенные небольшие ванны по-прежнему имеют ширину 700 мм, но их длина меньше 1500 мм или 1600 мм. Угловые ванны также являются отличным вариантом для ванных комнат, которым не хватает места.
Компактная гидромассажная ванна Luna G2
Самая маленькая гидромассажная ванна, которую мы предлагаем, — компактная гидромассажная ванна Luna G2 размером 1400 мм (Д) x 700 мм (Ш).
Это фантастический вариант, если у вас ограниченное пространство, поскольку он намного короче по длине, но при этом предоставляет все возможности, которые вы ожидаете от роскошной гидромассажной ванны.
Большие ванны
Если вы можете позволить себе роскошь очень большой ванной комнаты, возможно, вы захотите сделать ее больше, чем стандартный размер ванны 1700 мм x 700 мм.
Действительно, стандартный размер большой ванны составляет 1800 мм (Д) x 850 мм (Ш), предлагая значительно больше места, чем стандартная ванна. Такие большие ванны часто бывают двусторонними, то есть краны находятся в центре, и нередко в них могут разместиться двое взрослых.
Роскошная гидромассажная ванна Riho Grande
Наша самая большая роскошная гидромассажная ванна — это Riho Grande, размеры которой составляют 1800 мм (Д) x 1150 (Ш) — более чем достаточно места для комфортного отдыха двух взрослых.
РОДСТВЕННЫЕ СТАТЬИ
• Подбор удобной ванны для дома
• Идеи для хранения вещей в небольших ванных комнатах
• Как спланировать новую ванную комнату
Какой размер ванны вам нужен?
От размера ванны до типа ванны, есть много вещей, которые следует учитывать, тратя деньги на новую ванну, чтобы занять почетное место в вашей ванной комнате.
Возможно, вы обновляете свою ванную комнату? Может быть, вы хотите расслабиться и просто принять душ? Вы можете хотеть его для мытья ваших малышей?
Какой бы ни была причина, мы создали это руководство, чтобы помочь вам подобрать ванну идеального размера для вашего помещения.
Читайте дальше, чтобы узнать, как подобрать ванну идеального размера для вашей ванной комнаты…
Что такое стандартный размер ванны?
Дизайну и планировке ванных комнат всегда уделяется огромное внимание. Размер не ограничивает качество стиля ванной комнаты. Существуют стандартные размеры и размеры ванн:
- Средний размер ванны в Великобритании: 1700 мм в длину и 700 мм в ширину
- Маленький размер ванны: 1400–1500 мм в длину и 700 мм в ширину
- большой размер ванны: 1800 мм в длину и около 800 мм в ширину
Средний размер ванны основан на наиболее распространенном типе ванны в Великобритании — односторонняя ванна.
Стандартная высота ванны составляет около 550 мм, включая односторонние и прямые ванны, а также угловые и отдельно стоящие ванны. Прямая односторонняя ванна с размерами 1700 мм х 700 мм будет иметь среднюю высоту 545 мм, что даст вместимость 200 л.
Какие бывают ванны?
В Plumbworld имеется большой выбор типов ванн, включая самые популярные среди покупателей из Великобритании.
Наиболее распространенные стили ванн:
Прямые ванны
Прямые ванны установлены в большинстве домов Великобритании и подходят для самых компактных помещений.Эти ванны доступны из стали или акрила в одно- или двухконтурной версии.
Ванна прямого типа обычно окружена панелью для ванны, что может означать, что она называется встроенной ванной. Обычно их устанавливают у стены или в углу ванной для экономии места. Еще одним преимуществом прямой ванны является то, что она также служит душевой кабиной, если вы добавите шторку для ванны или занавеску для душа.
В чем разница между односторонней и двусторонней ванной?
Основное различие между этими двумя вариантами прямой ванны заключается в том, как вы их используете и где расположены краны.
Односторонняя ванна обычно предназначена для использования одним человеком. Смесители расположены на одном конце, что идеально подходит для душевых кабин, которые представляют собой вертикальную стену, где находится заглушка, а другой имеет пологий наклон.
Двусторонняя ванна предназначена для использования двумя людьми. Смесители и заглушка расположены и установлены в центре ванны – смесители крепятся либо к стене, либо к самой ванне. Это означает, что каждый конец имеет наклон, что позволяет двум людям купаться вместе или одному человеку вытягиваться.Большинство отдельно стоящих ванн двусторонние.
Стандартный размер прямой ванны: 1500–1800 мм в длину x 700–800 мм в ширину
Угловые ванны
Угловые ванны — отличное решение для экономии места, аккуратно вписывающееся в один из углов вашей ванной комнаты.
Угловая ванна часто шире и короче, чем прямая ванна, которую проще установить и даже использовать в качестве душевой кабины благодаря дополнительной ширине.
Некоторые модели имеют встроенное сиденье или приподнятую кромку, что облегчает мытье маленьких детей и обеспечивает мобильность.Их округлая форма с глубокими прорезями создает ощущение погружения в джакузи и местный спа-центр. Добавьте форсунки, чтобы создать еще более роскошное погружение. Угловые ванны требуют панели для ванны, чтобы завершить внешний вид, и большинство из них снабжено ими.
Стандартный размер угловой ванны: 1200–1600 мм в длину x 900–1400 мм в ширину
Отдельно стоящие ванны
t должны быть размещены против угла.Благодаря своей отдельно стоящей конструкции эти ванны могут стать центральным элементом вашей ванной комнаты в современном или традиционном стиле.
Отдельно стоящие ванны не требуют отделочной панели и имеют двойные торцы для создания эффекта спа, что позволяет принимать ванну одновременно двум людям.
Тем не менее, дренажная и островная арматура для ванн может потребовать профессиональной установки. Это связано с необходимостью замены сантехники. Если у вас есть наличные, это ванны, в которых можно выплеснуться.
Подробнее: Полное руководство по отдельно стоящим ваннам
Стандартный размер отдельностоящей ванны: 1800 мм x 800 мм и глубина 500-600 мм
Гидромассажные ванны
Гидромассажные ванны расслабляющее и роскошное купание в вашем собственном доме.Как следует из названия, эти ванны оснащены гидромассажными форсунками, которые размещаются на боковой стенке ванны, а затем управляются с помощью элементов управления.
Эти современные ванны являются воплощением роскоши, поскольку они включают в себя специальные функции, которые помогают пользователю чувствовать себя максимально комфортно. Хромотерапия, использование света, используемого для расслабления пользователя, является функцией вихревых ванн Plumbworld и может сочетаться с гидротерапией для успокаивающего эффекта.
Стандартный размер гидромассажной ванны: 1700 мм x 750 мм или 1800 мм x 850 мм
Как снять мерки для ванны?
Покупка слишком большой или маленькой ванны — это простая ошибка, которая может привести к задержкам с ремонтом.
Вот наше пошаговое руководство по измерению размеров ванны – на примере прямой ванны:
- Выберите место, где вы разместите ванну – если она находится рядом с дверью, не забудьте учесть это. и насколько он открывается.
- Чтобы определить длину, измерьте расстояние от одной стороны ванны или пространства, которое она заполнит, до другой.
- Ширину измеряйте от задней стенки наружу, принимая во внимание все, что находится на пути – умывальник, шкафы и т. д.
- Высота ванны снаружи измеряется от пола до верхнего края. Это также поможет, если вам нужна панель для ванны.
- Если ваши стены облицованы плиткой, помните, что ванна будет находиться немного под ними, поэтому измерение длины от стены, облицованной плиткой, до стены, облицованной плиткой, будет отличаться от фактической длины.
Для измерения длины отдельностоящих ванн высота и ширина измеряются по верхнему краю или выступу. Что касается глубины, измерьте расстояние от пола до верхнего края и включите ножки ванны, если вы покупаете отдельно стоящую ванну такого типа.
Имейте в виду, что вам нужно будет оставить место вокруг ванны для кранов и т. д.
Олли Лайон
Олли — мастер-самоучка, которому особенно нравится ремонт кухни и ванной комнаты. В свободное время Олли любит кататься на велосипеде и ходить в походы.
Нам нравится видеть, как вы преображаете ванную комнату, и делиться ими на нашей странице в Instagram . Если у вас был ремонт Plumbworld, отметьте нас на своих фотографиях, чтобы мы были представлены!
Мы хотели бы знать, так почему бы не поделиться с нами своими любимыми дизайнами в социальных сетях?
Найдите нас по телефону:
Facebook | Твиттер | Инстаграм | TikTok | Pintrest
Кроме того, подпишитесь на нашу рассылку, чтобы получать последние предложения, новые продукты и рекомендации.
Вы планируете обновить ванную комнату или кухню? Совершайте покупки в Интернете по номеру Plumbworld , чтобы получить гарантированно низкие цены и доставку на следующий день.
Не забудьте прочитать остальную часть нашего блога , чтобы получить дополнительные советы по ванной комнате и кухне.
Размеры ванны. Стандартные размеры ванны
Каковы стандартные размеры ванн?
Размеры ванн не могут быть обобщены, и каждый производитель будет иметь свои собственные спецификации ванн для конкретного продукта, но когда дело доходит до основ, существуют стандартные размеры ванн по типам ванн, которые позволяют клиентам и установщикам прогнозировать дизайн дома и процесс установки.
Таблица размеров стандартной ванны
Размеры ванны от стены до стены | ||||
Длина (Д) | Ширина (Ш) | Высота (В) | Вместимость ванны (галлоны) | Стандарты (Д x Ш x В) |
48 дюймов | 32 дюйма | 25 дюймов | 68 | 60 дюймов x 30 дюймов (32 дюйма) x 14–30 дюймов |
60″ | 30 дюймов | 14 дюймов | 58 | |
60″ | 32 дюйма | 17 дюймов | 56 | |
60″ | 48 дюймов | 20 дюймов | 75 | |
66 дюймов | 32 дюйма | 18 дюймов | 61 | |
72 дюйма | 36 дюймов | 20 дюймов | 68 | |
72 дюйма | 42 дюйма | 20 дюймов | 82 | |
Размеры угловой ванны | ||||
48 дюймов | 48 дюймов | 19 дюймов | 70 | Определены три размера ванны |
60″ | 60 дюймов | 24 дюйма | 84 | |
72 дюйма | 72 дюйма | 20 дюймов | 120 | |
Размеры отдельно стоящей ванны | ||||
50 дюймов | 24 дюйма | 24 дюйма | 40 | 60″ x 32″ (30″) x 30″ |
60″ | 30 дюймов | 30 дюймов | 45 | |
60″ | 32 дюйма | 26 дюймов | 43 | |
66 дюймов | 36 дюймов | 20 дюймов | 63 | |
72 дюйма | 32 дюйма | 30 дюймов | 70 | |
Размеры ванны | ||||
48 дюймов | 28 дюймов | 38 дюймов | 45 | Длина 48″ и 60″; ширина может варьироваться |
60″ | 30 дюймов | 38 дюймов | 65 | |
60″ | 36 дюймов | 38 дюймов | 78 | |
Размеры в таблице являются внешними размерами стандартной ванны, а не действительными размерами ванны.
Емкость — это фактор, который определяет внутреннее пространство ванны в галлонах. Внутренние размеры будут различаться даже по сравнению с такими же внешними размерами ванны и будут определяться формой и стилем ванны. У некоторых отдельно стоящих ванн могут быть ножки, которые добавят еще 4–5 дюймов к общей высоте ванны. Все размеры в таблице являются имперскими характеристиками длины, ширины и высоты ванны в дюймах. Наименее важным параметром является высота ванны, которая не сильно влияет на установку, и даже для стандартной ванны размером 60 x 30 дюймов она может отличаться на пару дюймов в обе стороны.
Как измерить черновой каркас стандартной ванны от стены до стены?
Самая важная цифра – это длина ванны от стены до стены. При обрамлении ванной комнаты отверстие для стандартной 5-футовой ванны должно быть указано как точное измерение расстояния между стойками стены без учета или добавления толщины плитки, подкладочных досок или водостойкого гипсокартона.![]()
Характеристики угловой ванны.
Угловая ванна обычно имеет треугольную округлую форму с длиной и шириной, как правило, равными относительно размеров сторон, прислоняющихся к угловым стенкам.Технически большинство ванн можно установить в углу ванной комнаты независимо от ее формы. Знание точных размеров угловой ванны не является решающим фактором, потому что она может поместиться в любой прямоугольный угол, если позволяет размер ванной комнаты.
Что такое слив в стандартной ванне?
В отношении точного положения слива такого стандарта не существует. Некоторые ванны от стены до стены имеют слив в нескольких дюймах от более длинной стороны по центру по ширине, в некоторых гидромассажных ваннах или угловых ваннах слив расположен в центре.Сантехник должен проложить дренаж в соответствии с конструкцией ванны.
Каковы стандартные размеры гидромассажной ванны?
Ванны джакузи не выделяются в отдельные группы по своим размерам.
Гидромассажные ванны будут иметь те же размеры, что и обычная ванна, за исключением того, что они могут быть доступны не во всех стандартных размерах и обычно относятся к продуктам с большей емкостью и характеристиками.
Стандартные размеры ванны в метрической системе.
Преобразование 60”Д x 30”Ш x 20”В равно 1524мм x 762мм x 508мм.Но фактор стандартов должен быть принят во внимание. Для многих стран размер 5 дюймов от стены до стены не соответствует строительным стандартам, а размеры 180 см x 70 см x 45 см при вместимости 140 литров не будут рассматриваться как нестандартные размеры.
Что такое ванна стандартного размера? | Размеры ванны
Быстрый ответ: Стандартный размер ванны в Великобритании составляет 1700 м в длину и 700 мм в ширину.
Установка ванны в ванной на первый взгляд может показаться простым проектом.Но есть много соображений, которые нужно учесть, прежде чем продолжить, и одно из них — размер.
Выбор правильного размера ванны – первый шаг.
Итак, какой стандартный размер ванны?
Вот несколько советов, которые помогут вам принять решение:
Стандартный размер ванны
Традиционно стандартная ванна имеет длину 1700 мм и ширину около 700 мм. Это стандартная ванна, но вы также можете купить ванну меньшего или большего размера в зависимости от ваших потребностей. Обычно самая маленькая ванна имеет длину от 1400 до 1500 мм и ширину 700 мм.Если вы хотите что-то большее, на рынке есть ванны длиной 1800 мм и шириной 800 мм. Это часто будут отдельно стоящие ванны, которые обычно находятся в больших ванных комнатах. Несмотря на эти варианты, ванна должна быть не менее 760 мм в ширину, чтобы в ней было комфортно.
Ванна различной длины и размеров
Говоря о ванне «стандартного» размера, существует несколько различных вариантов, которые вы можете выбрать для своей ванной комнаты.
Некоторые примеры стандартных размеров в британских ваннах следующие:
| Ванна Тип | Ванна Длина | Ванна ширина | |||||||||||||||
|---|---|---|---|---|---|---|---|---|---|---|---|---|---|---|---|---|---|
Small
Это также распространено для людей, чтобы попросить нас показать это в см. Как учитывать размер ванной комнаты?Перед покупкой ванны также очень важно учитывать размер вашей ванной комнаты. Золотое правило заключается в том, чтобы ванна была достаточно большой, чтобы удовлетворить ваши потребности, не загромождая пространство. Есть несколько вещей, которые вы можете сделать, чтобы достичь этого. Во-первых, соотношение размеров ванны и ванной комнаты должно быть идеальным. К сожалению, нет простого способа определить это, поскольку размеры и формы ванных комнат различаются.Кроме того, нет ограничений в размерах ванной комнаты. Хотя не часто вы найдете большие ванные комнаты, есть много людей, которые имеют относительно большие пространства. Проблема в том, что вы не получите ванну длиной более 2000 мм. Таким образом, чем больше ваша ванная комната, тем сложнее будет найти правильное соотношение. Получить БЕСПЛАТНУЮ смету Однако оценить соотношение можно. Покупка ванны подходящего размера для вашей ванной комнаты иногда может быть сложной задачей. Но если вы знаете размер своей ванной комнаты, вам будет легко подобрать правильный размер. Нет размеров, соответствующих стандартным размерам ванны (1650 мм)Вы часто обнаружите, что если вы измерите свою текущую ванну от стены до стены, она может немного отличаться от стандартного размера ванны, о котором мы говорили выше.Этому может быть несколько причин. Люди регулярно измеряют стену до стены и получают результат 1650 мм. Возможно, вы измеряете стену, выложенную плиткой, поэтому несколько миллиметров толщины двух плиток, которые вы измеряете, могут быть причиной того, что она не работает. Если это так, то при удалении текущей ванны вы можете обнаружить, что плитки обрезаны под уплотнением, которое вы не видите, но если это не так, вы можете попробовать разрезать их, чтобы вместить ванну. Еще одна вещь, которую вы можете сделать, это добавить окантовку ванны, чтобы компенсировать дополнительное пространство, и выбрать ванну немного меньшего размера. Пример цен на стандартные ванныМы собрали на Amazon несколько примеров некоторых ванн стандартного размера, чтобы дать вам представление о том, сколько может стоить приобретение одной ванны для вашей новой ванной: Узнать цену для установки в ванной Не слишком ли много всего, о чем нужно думать? Вы всегда можете обратиться к профессионалу, который поможет вам установить вашу ванную комнату, сняв с вас всю нагрузку. |

Соотношение площадей основных помещений 2,5*1,1*1. Такие размеры позволят с удовольствием провести время немаленькой компании любителей пара.
Если же появится необходимость в совмещении парилки с моечным отделением, размеры такой бани должны составлять как минимум 210×400 см.
Размеры ванны в см: 10 мм = 1 см, поэтому, например, стандартная британская ванна будет иметь размеры 170 см (Д) x 70 см (Ш).
Стандартная ванная комната имеет размеры 2400 х 1500 мм. Это относительно мало, и поэтому рекомендуется использовать более короткую душевую ванну длиной около 1500 мм.Вы также можете выбрать угловую ванну, чтобы сэкономить место. В случае, если у вас большая ванная комната, гораздо проще получить любой тип ванны, который вы хотите. Стандартные большие ванные комнаты имеют размеры 3660 x 3050 мм. Это большое пространство для игр. Единственная проблема здесь будет заключаться в том, чтобы найти ванну, достаточно большую, чтобы идеально вписаться в большую ванную комнату. Но вы можете обойти это, изменив положение ванны. Не существует установленного метода принятия решения о том, где следует расположить ванну.Вам придется сесть с бумагой и ручкой, спланировать всю ванную комнату и протестировать различные места, прежде чем сделать выбор.
